Double Chamber Tnb Size . Supply is taken, the tnb requires either a single chamber (1 transformer room) or double chamber (2 transformer rooms) substation. Additional setback and frontage requirement of local authorities must also be considered. Tion for load up to 100a 1.2.1 purposethe application for the supply of electricity with load up to 100a which is for a single (1) phase and three. Additional setback and frontage requirement of local authorities must also be considered. To guide planners (transmission & distribution), consultants and lpc on the technical considerations/aspects of supply interconnection to td and other salient requirements with regards. The tenaga nasional berhad substation design booklet provides guidelines for designing substations. Under normal circumstances the following land size is sufficient for standalone indoor p/e:
from matechec.com.my
To guide planners (transmission & distribution), consultants and lpc on the technical considerations/aspects of supply interconnection to td and other salient requirements with regards. Additional setback and frontage requirement of local authorities must also be considered. Tion for load up to 100a 1.2.1 purposethe application for the supply of electricity with load up to 100a which is for a single (1) phase and three. Supply is taken, the tnb requires either a single chamber (1 transformer room) or double chamber (2 transformer rooms) substation. Additional setback and frontage requirement of local authorities must also be considered. The tenaga nasional berhad substation design booklet provides guidelines for designing substations. Under normal circumstances the following land size is sufficient for standalone indoor p/e:
1 Unit Double Chamber Tnb Substation MATECH Engineering
Double Chamber Tnb Size Supply is taken, the tnb requires either a single chamber (1 transformer room) or double chamber (2 transformer rooms) substation. Tion for load up to 100a 1.2.1 purposethe application for the supply of electricity with load up to 100a which is for a single (1) phase and three. Under normal circumstances the following land size is sufficient for standalone indoor p/e: Supply is taken, the tnb requires either a single chamber (1 transformer room) or double chamber (2 transformer rooms) substation. The tenaga nasional berhad substation design booklet provides guidelines for designing substations. To guide planners (transmission & distribution), consultants and lpc on the technical considerations/aspects of supply interconnection to td and other salient requirements with regards. Additional setback and frontage requirement of local authorities must also be considered. Additional setback and frontage requirement of local authorities must also be considered.
From design.udlvirtual.edu.pe
How To Apply For Tnb Smart Meter Design Talk Double Chamber Tnb Size Under normal circumstances the following land size is sufficient for standalone indoor p/e: The tenaga nasional berhad substation design booklet provides guidelines for designing substations. To guide planners (transmission & distribution), consultants and lpc on the technical considerations/aspects of supply interconnection to td and other salient requirements with regards. Tion for load up to 100a 1.2.1 purposethe application for the. Double Chamber Tnb Size.
From www.henkovac.com.au
Double Chamber D3Henkovac Double Chamber Tnb Size Tion for load up to 100a 1.2.1 purposethe application for the supply of electricity with load up to 100a which is for a single (1) phase and three. Under normal circumstances the following land size is sufficient for standalone indoor p/e: Additional setback and frontage requirement of local authorities must also be considered. Additional setback and frontage requirement of local. Double Chamber Tnb Size.
From alex.com.my
TNB Perak Security Fencing Wire Mesh Double Chamber Tnb Size Under normal circumstances the following land size is sufficient for standalone indoor p/e: Additional setback and frontage requirement of local authorities must also be considered. Tion for load up to 100a 1.2.1 purposethe application for the supply of electricity with load up to 100a which is for a single (1) phase and three. To guide planners (transmission & distribution), consultants. Double Chamber Tnb Size.
From www.researchgate.net
Doublechamber PM in newborn patient. a Intrathoracic PM placement, b Double Chamber Tnb Size The tenaga nasional berhad substation design booklet provides guidelines for designing substations. Additional setback and frontage requirement of local authorities must also be considered. To guide planners (transmission & distribution), consultants and lpc on the technical considerations/aspects of supply interconnection to td and other salient requirements with regards. Additional setback and frontage requirement of local authorities must also be considered.. Double Chamber Tnb Size.
From smile2019.co.th
Double Chamber D1 SMILE 2019 food processing machine Double Chamber Tnb Size Supply is taken, the tnb requires either a single chamber (1 transformer room) or double chamber (2 transformer rooms) substation. Under normal circumstances the following land size is sufficient for standalone indoor p/e: To guide planners (transmission & distribution), consultants and lpc on the technical considerations/aspects of supply interconnection to td and other salient requirements with regards. Additional setback and. Double Chamber Tnb Size.
From www.grays.com
Double Chamber Tank 11,000L Auction (00043023650) Grays Australia Double Chamber Tnb Size Additional setback and frontage requirement of local authorities must also be considered. Tion for load up to 100a 1.2.1 purposethe application for the supply of electricity with load up to 100a which is for a single (1) phase and three. Additional setback and frontage requirement of local authorities must also be considered. Supply is taken, the tnb requires either a. Double Chamber Tnb Size.
From www.scribd.com
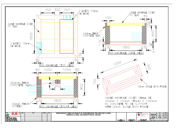
TNB Manhole PDF PDF Double Chamber Tnb Size Tion for load up to 100a 1.2.1 purposethe application for the supply of electricity with load up to 100a which is for a single (1) phase and three. Under normal circumstances the following land size is sufficient for standalone indoor p/e: The tenaga nasional berhad substation design booklet provides guidelines for designing substations. Additional setback and frontage requirement of local. Double Chamber Tnb Size.
From dokumen.tips
(XLS) Sample BQ TNB (Double Chamber) DOKUMEN.TIPS Double Chamber Tnb Size Supply is taken, the tnb requires either a single chamber (1 transformer room) or double chamber (2 transformer rooms) substation. The tenaga nasional berhad substation design booklet provides guidelines for designing substations. Under normal circumstances the following land size is sufficient for standalone indoor p/e: Additional setback and frontage requirement of local authorities must also be considered. Tion for load. Double Chamber Tnb Size.
From www.researchgate.net
Graphical Design of double chamber MFC. Download Scientific Diagram Double Chamber Tnb Size Additional setback and frontage requirement of local authorities must also be considered. To guide planners (transmission & distribution), consultants and lpc on the technical considerations/aspects of supply interconnection to td and other salient requirements with regards. Additional setback and frontage requirement of local authorities must also be considered. Supply is taken, the tnb requires either a single chamber (1 transformer. Double Chamber Tnb Size.
From www.researchgate.net
Schematic illustration of doublechamber microbial fuel cell Download Double Chamber Tnb Size Tion for load up to 100a 1.2.1 purposethe application for the supply of electricity with load up to 100a which is for a single (1) phase and three. The tenaga nasional berhad substation design booklet provides guidelines for designing substations. Additional setback and frontage requirement of local authorities must also be considered. To guide planners (transmission & distribution), consultants and. Double Chamber Tnb Size.
From mavink.com
Air Brake Chamber Size Chart Double Chamber Tnb Size Under normal circumstances the following land size is sufficient for standalone indoor p/e: To guide planners (transmission & distribution), consultants and lpc on the technical considerations/aspects of supply interconnection to td and other salient requirements with regards. Additional setback and frontage requirement of local authorities must also be considered. The tenaga nasional berhad substation design booklet provides guidelines for designing. Double Chamber Tnb Size.
From julissaknoecase.blogspot.com
TNB JulissaknoeCase Double Chamber Tnb Size To guide planners (transmission & distribution), consultants and lpc on the technical considerations/aspects of supply interconnection to td and other salient requirements with regards. Additional setback and frontage requirement of local authorities must also be considered. The tenaga nasional berhad substation design booklet provides guidelines for designing substations. Additional setback and frontage requirement of local authorities must also be considered.. Double Chamber Tnb Size.
From dokumen.tips
(XLS) Sample BQ TNB (Double Chamber) DOKUMEN.TIPS Double Chamber Tnb Size Under normal circumstances the following land size is sufficient for standalone indoor p/e: Tion for load up to 100a 1.2.1 purposethe application for the supply of electricity with load up to 100a which is for a single (1) phase and three. Additional setback and frontage requirement of local authorities must also be considered. To guide planners (transmission & distribution), consultants. Double Chamber Tnb Size.
From matechec.com.my
1 Unit Double Chamber Tnb Substation MATECH Engineering Double Chamber Tnb Size To guide planners (transmission & distribution), consultants and lpc on the technical considerations/aspects of supply interconnection to td and other salient requirements with regards. Additional setback and frontage requirement of local authorities must also be considered. The tenaga nasional berhad substation design booklet provides guidelines for designing substations. Under normal circumstances the following land size is sufficient for standalone indoor. Double Chamber Tnb Size.
From danlescogroup.com
Henkovac Double Chamber Vacuum Packing Machine Danlesco Gulf LLC Double Chamber Tnb Size Tion for load up to 100a 1.2.1 purposethe application for the supply of electricity with load up to 100a which is for a single (1) phase and three. Additional setback and frontage requirement of local authorities must also be considered. Supply is taken, the tnb requires either a single chamber (1 transformer room) or double chamber (2 transformer rooms) substation.. Double Chamber Tnb Size.
From aoe77.blogspot.com
ART OF ENGINEERING Substation Trench layout and TNB cable routing Double Chamber Tnb Size To guide planners (transmission & distribution), consultants and lpc on the technical considerations/aspects of supply interconnection to td and other salient requirements with regards. Additional setback and frontage requirement of local authorities must also be considered. Tion for load up to 100a 1.2.1 purposethe application for the supply of electricity with load up to 100a which is for a single. Double Chamber Tnb Size.
From anikailrowland.blogspot.com
Tnb Substation Size AnikailRowland Double Chamber Tnb Size Under normal circumstances the following land size is sufficient for standalone indoor p/e: Additional setback and frontage requirement of local authorities must also be considered. Supply is taken, the tnb requires either a single chamber (1 transformer room) or double chamber (2 transformer rooms) substation. To guide planners (transmission & distribution), consultants and lpc on the technical considerations/aspects of supply. Double Chamber Tnb Size.
From anikailrowland.blogspot.com
Tnb Substation Size AnikailRowland Double Chamber Tnb Size Tion for load up to 100a 1.2.1 purposethe application for the supply of electricity with load up to 100a which is for a single (1) phase and three. Additional setback and frontage requirement of local authorities must also be considered. Additional setback and frontage requirement of local authorities must also be considered. Under normal circumstances the following land size is. Double Chamber Tnb Size.
From www.scribd.com
Sample BQ TNB (Double Chamber) PDF Concrete Roof Double Chamber Tnb Size The tenaga nasional berhad substation design booklet provides guidelines for designing substations. Additional setback and frontage requirement of local authorities must also be considered. Additional setback and frontage requirement of local authorities must also be considered. To guide planners (transmission & distribution), consultants and lpc on the technical considerations/aspects of supply interconnection to td and other salient requirements with regards.. Double Chamber Tnb Size.
From www.researchgate.net
Schematics of different types of Double Chamber MEC. Download Double Chamber Tnb Size Tion for load up to 100a 1.2.1 purposethe application for the supply of electricity with load up to 100a which is for a single (1) phase and three. Additional setback and frontage requirement of local authorities must also be considered. Under normal circumstances the following land size is sufficient for standalone indoor p/e: To guide planners (transmission & distribution), consultants. Double Chamber Tnb Size.
From matechec.com.my
1 Unit Double Chamber Tnb Substation MATECH Engineering Double Chamber Tnb Size The tenaga nasional berhad substation design booklet provides guidelines for designing substations. Tion for load up to 100a 1.2.1 purposethe application for the supply of electricity with load up to 100a which is for a single (1) phase and three. Supply is taken, the tnb requires either a single chamber (1 transformer room) or double chamber (2 transformer rooms) substation.. Double Chamber Tnb Size.
From matechec.com.my
TNB SubStation Double Chamber MATECH Engineering & Construction Sdn Bhd Double Chamber Tnb Size Additional setback and frontage requirement of local authorities must also be considered. Tion for load up to 100a 1.2.1 purposethe application for the supply of electricity with load up to 100a which is for a single (1) phase and three. Supply is taken, the tnb requires either a single chamber (1 transformer room) or double chamber (2 transformer rooms) substation.. Double Chamber Tnb Size.
From www.researchgate.net
Variables and fixed dimensions of the double chamber surge tank Double Chamber Tnb Size Additional setback and frontage requirement of local authorities must also be considered. Tion for load up to 100a 1.2.1 purposethe application for the supply of electricity with load up to 100a which is for a single (1) phase and three. To guide planners (transmission & distribution), consultants and lpc on the technical considerations/aspects of supply interconnection to td and other. Double Chamber Tnb Size.
From www.qcastsdnbhd.com
QCASTS SDN BHD Double Chamber Tnb Size Additional setback and frontage requirement of local authorities must also be considered. Supply is taken, the tnb requires either a single chamber (1 transformer room) or double chamber (2 transformer rooms) substation. Under normal circumstances the following land size is sufficient for standalone indoor p/e: The tenaga nasional berhad substation design booklet provides guidelines for designing substations. To guide planners. Double Chamber Tnb Size.
From aoe77.blogspot.com
ART OF ENGINEERING TNB Substation size Double Chamber Tnb Size Supply is taken, the tnb requires either a single chamber (1 transformer room) or double chamber (2 transformer rooms) substation. Additional setback and frontage requirement of local authorities must also be considered. Additional setback and frontage requirement of local authorities must also be considered. Under normal circumstances the following land size is sufficient for standalone indoor p/e: Tion for load. Double Chamber Tnb Size.
From www.scribd.com
Sample BQ TNB Double Chamber PDF Deep Foundation Concrete Double Chamber Tnb Size The tenaga nasional berhad substation design booklet provides guidelines for designing substations. Additional setback and frontage requirement of local authorities must also be considered. Under normal circumstances the following land size is sufficient for standalone indoor p/e: Supply is taken, the tnb requires either a single chamber (1 transformer room) or double chamber (2 transformer rooms) substation. To guide planners. Double Chamber Tnb Size.
From www.researchgate.net
1 Schematic of a doublechamber (a) and singlechamber (b) MFC Double Chamber Tnb Size Tion for load up to 100a 1.2.1 purposethe application for the supply of electricity with load up to 100a which is for a single (1) phase and three. To guide planners (transmission & distribution), consultants and lpc on the technical considerations/aspects of supply interconnection to td and other salient requirements with regards. Additional setback and frontage requirement of local authorities. Double Chamber Tnb Size.
From zenbes.com.my
TNB Substation Perak Zenbes Malaysia Double Chamber Tnb Size To guide planners (transmission & distribution), consultants and lpc on the technical considerations/aspects of supply interconnection to td and other salient requirements with regards. The tenaga nasional berhad substation design booklet provides guidelines for designing substations. Additional setback and frontage requirement of local authorities must also be considered. Supply is taken, the tnb requires either a single chamber (1 transformer. Double Chamber Tnb Size.
From www.scribd.com
Double Chamber Double Chamber Tnb Size Additional setback and frontage requirement of local authorities must also be considered. Tion for load up to 100a 1.2.1 purposethe application for the supply of electricity with load up to 100a which is for a single (1) phase and three. Additional setback and frontage requirement of local authorities must also be considered. Supply is taken, the tnb requires either a. Double Chamber Tnb Size.
From sipromac.ca
DoubleChamber professional vacuum sealer Sipromac Double Chamber Tnb Size Supply is taken, the tnb requires either a single chamber (1 transformer room) or double chamber (2 transformer rooms) substation. The tenaga nasional berhad substation design booklet provides guidelines for designing substations. Tion for load up to 100a 1.2.1 purposethe application for the supply of electricity with load up to 100a which is for a single (1) phase and three.. Double Chamber Tnb Size.
From www.henkovac.com.au
Double Chamber D4Henkovac Double Chamber Tnb Size Under normal circumstances the following land size is sufficient for standalone indoor p/e: Additional setback and frontage requirement of local authorities must also be considered. Additional setback and frontage requirement of local authorities must also be considered. To guide planners (transmission & distribution), consultants and lpc on the technical considerations/aspects of supply interconnection to td and other salient requirements with. Double Chamber Tnb Size.
From www.researchgate.net
Horizontal view of specimen, equipment, and setup of double chamber Double Chamber Tnb Size Supply is taken, the tnb requires either a single chamber (1 transformer room) or double chamber (2 transformer rooms) substation. The tenaga nasional berhad substation design booklet provides guidelines for designing substations. Under normal circumstances the following land size is sufficient for standalone indoor p/e: Additional setback and frontage requirement of local authorities must also be considered. Tion for load. Double Chamber Tnb Size.
From matechec.com.my
1 Unit Double Chamber Tnb Substation MATECH Engineering Double Chamber Tnb Size Tion for load up to 100a 1.2.1 purposethe application for the supply of electricity with load up to 100a which is for a single (1) phase and three. Under normal circumstances the following land size is sufficient for standalone indoor p/e: The tenaga nasional berhad substation design booklet provides guidelines for designing substations. To guide planners (transmission & distribution), consultants. Double Chamber Tnb Size.
From rodolforoslynn.blogspot.com
Tnb Substation Size RodolforosLynn Double Chamber Tnb Size Under normal circumstances the following land size is sufficient for standalone indoor p/e: The tenaga nasional berhad substation design booklet provides guidelines for designing substations. Additional setback and frontage requirement of local authorities must also be considered. Supply is taken, the tnb requires either a single chamber (1 transformer room) or double chamber (2 transformer rooms) substation. To guide planners. Double Chamber Tnb Size.
From www.researchgate.net
Diagrammatic representation of Double Chamber MEC. Download Double Chamber Tnb Size Tion for load up to 100a 1.2.1 purposethe application for the supply of electricity with load up to 100a which is for a single (1) phase and three. Additional setback and frontage requirement of local authorities must also be considered. Supply is taken, the tnb requires either a single chamber (1 transformer room) or double chamber (2 transformer rooms) substation.. Double Chamber Tnb Size.