How To Check Pressure Tank . To test if the pressure tank is waterlogged, remove the cap from the air inlet valve at the top of the tank. In this guide, we’ll show you how to check the water tank pressure and share tips that will help you keep the tank working correctly. Pressure tanks use air pressure to push water from the tank into your home when you turn on a faucet. It is important to check it every so often to ensure the system. Learn how to check the pressure in your water well system pressure tank and make adjustments as needed. Our master tradesman's guide shows how it's done. Keeping an eye on the oxygen charge in your well pressure tank isn't optional for well owners! How do pressure tanks work? Use your finger to try and bleed off air from the tank by pushing the. Checking the pressure tank is an essential maintenance task for homeowners relying on well water systems or those with. Common issues like fluctuation of water pressure, spitting or spraying faucets, and discolored water all point to a bad pressure tank. If you are on a private water system you probably have a pressure tank.
from familyhw.com
If you are on a private water system you probably have a pressure tank. To test if the pressure tank is waterlogged, remove the cap from the air inlet valve at the top of the tank. In this guide, we’ll show you how to check the water tank pressure and share tips that will help you keep the tank working correctly. Pressure tanks use air pressure to push water from the tank into your home when you turn on a faucet. Our master tradesman's guide shows how it's done. Checking the pressure tank is an essential maintenance task for homeowners relying on well water systems or those with. It is important to check it every so often to ensure the system. Keeping an eye on the oxygen charge in your well pressure tank isn't optional for well owners! Learn how to check the pressure in your water well system pressure tank and make adjustments as needed. Use your finger to try and bleed off air from the tank by pushing the.
The Best Well Pressure Tanks Of 2018 Honest Reviews And More
How To Check Pressure Tank Learn how to check the pressure in your water well system pressure tank and make adjustments as needed. Our master tradesman's guide shows how it's done. Keeping an eye on the oxygen charge in your well pressure tank isn't optional for well owners! Checking the pressure tank is an essential maintenance task for homeowners relying on well water systems or those with. Use your finger to try and bleed off air from the tank by pushing the. Learn how to check the pressure in your water well system pressure tank and make adjustments as needed. Common issues like fluctuation of water pressure, spitting or spraying faucets, and discolored water all point to a bad pressure tank. How do pressure tanks work? In this guide, we’ll show you how to check the water tank pressure and share tips that will help you keep the tank working correctly. If you are on a private water system you probably have a pressure tank. It is important to check it every so often to ensure the system. Pressure tanks use air pressure to push water from the tank into your home when you turn on a faucet. To test if the pressure tank is waterlogged, remove the cap from the air inlet valve at the top of the tank.
From www.innertowords.com
Checked and Regulate Your Pressure Tank How To Check Pressure Tank Common issues like fluctuation of water pressure, spitting or spraying faucets, and discolored water all point to a bad pressure tank. Pressure tanks use air pressure to push water from the tank into your home when you turn on a faucet. Our master tradesman's guide shows how it's done. Keeping an eye on the oxygen charge in your well pressure. How To Check Pressure Tank.
From plumbingsniper.com
How to Size a Pressure Tank Factors to Consider Plumbing Sniper How To Check Pressure Tank If you are on a private water system you probably have a pressure tank. Checking the pressure tank is an essential maintenance task for homeowners relying on well water systems or those with. Use your finger to try and bleed off air from the tank by pushing the. How do pressure tanks work? In this guide, we’ll show you how. How To Check Pressure Tank.
From www.youtube.com
Pressure Tank Comparison Pro's and Con's, Stainless, Bladder How To Check Pressure Tank How do pressure tanks work? In this guide, we’ll show you how to check the water tank pressure and share tips that will help you keep the tank working correctly. Common issues like fluctuation of water pressure, spitting or spraying faucets, and discolored water all point to a bad pressure tank. Our master tradesman's guide shows how it's done. Use. How To Check Pressure Tank.
From ordicu.com
Types, Applications, Benefits and Things to Consider (2022) How To Check Pressure Tank How do pressure tanks work? Common issues like fluctuation of water pressure, spitting or spraying faucets, and discolored water all point to a bad pressure tank. Learn how to check the pressure in your water well system pressure tank and make adjustments as needed. To test if the pressure tank is waterlogged, remove the cap from the air inlet valve. How To Check Pressure Tank.
From www.youtube.com
3 Steps for Checking Tank Air Pressure YouTube How To Check Pressure Tank It is important to check it every so often to ensure the system. Learn how to check the pressure in your water well system pressure tank and make adjustments as needed. Use your finger to try and bleed off air from the tank by pushing the. Common issues like fluctuation of water pressure, spitting or spraying faucets, and discolored water. How To Check Pressure Tank.
From enginedatapeters.z19.web.core.windows.net
Wellmate Pressure Tank Air Pressure How To Check Pressure Tank Use your finger to try and bleed off air from the tank by pushing the. In this guide, we’ll show you how to check the water tank pressure and share tips that will help you keep the tank working correctly. It is important to check it every so often to ensure the system. Keeping an eye on the oxygen charge. How To Check Pressure Tank.
From www.youtube.com
How To Set Your Well Pump Pressure Tank With Proper Air Pressure YouTube How To Check Pressure Tank Pressure tanks use air pressure to push water from the tank into your home when you turn on a faucet. If you are on a private water system you probably have a pressure tank. It is important to check it every so often to ensure the system. Common issues like fluctuation of water pressure, spitting or spraying faucets, and discolored. How To Check Pressure Tank.
From www.youtube.com
How to Check and Adjust Pressure Tanks YouTube How To Check Pressure Tank Checking the pressure tank is an essential maintenance task for homeowners relying on well water systems or those with. Use your finger to try and bleed off air from the tank by pushing the. To test if the pressure tank is waterlogged, remove the cap from the air inlet valve at the top of the tank. Our master tradesman's guide. How To Check Pressure Tank.
From www.iqsdirectory.com
Pressure Tanks Types, Applications, Benefits and Things to Consider How To Check Pressure Tank Learn how to check the pressure in your water well system pressure tank and make adjustments as needed. Checking the pressure tank is an essential maintenance task for homeowners relying on well water systems or those with. Use your finger to try and bleed off air from the tank by pushing the. In this guide, we’ll show you how to. How To Check Pressure Tank.
From escapees.com
Oil Contamination In LP Gas Systems Escapees RV Club How To Check Pressure Tank Checking the pressure tank is an essential maintenance task for homeowners relying on well water systems or those with. Pressure tanks use air pressure to push water from the tank into your home when you turn on a faucet. To test if the pressure tank is waterlogged, remove the cap from the air inlet valve at the top of the. How To Check Pressure Tank.
From www.h2oequipment.com
Waterlogged Pressure Tank Poor Water Pressure Solutions How To Check Pressure Tank How do pressure tanks work? Our master tradesman's guide shows how it's done. Keeping an eye on the oxygen charge in your well pressure tank isn't optional for well owners! Use your finger to try and bleed off air from the tank by pushing the. Common issues like fluctuation of water pressure, spitting or spraying faucets, and discolored water all. How To Check Pressure Tank.
From studylib.net
Pressure Tank Construction Checklist How To Check Pressure Tank If you are on a private water system you probably have a pressure tank. How do pressure tanks work? Checking the pressure tank is an essential maintenance task for homeowners relying on well water systems or those with. To test if the pressure tank is waterlogged, remove the cap from the air inlet valve at the top of the tank.. How To Check Pressure Tank.
From justcallcooks.com
Pressure Tanks Cooks Plumbing, Heating, Electrical and Air Conditioning How To Check Pressure Tank Common issues like fluctuation of water pressure, spitting or spraying faucets, and discolored water all point to a bad pressure tank. In this guide, we’ll show you how to check the water tank pressure and share tips that will help you keep the tank working correctly. Use your finger to try and bleed off air from the tank by pushing. How To Check Pressure Tank.
From manualzz.com
2Gallon Pressure Tanks Manualzz How To Check Pressure Tank Common issues like fluctuation of water pressure, spitting or spraying faucets, and discolored water all point to a bad pressure tank. Checking the pressure tank is an essential maintenance task for homeowners relying on well water systems or those with. It is important to check it every so often to ensure the system. Learn how to check the pressure in. How To Check Pressure Tank.
From inspectapedia.com
Water Storage & Pressure Tanks purpose, diagnosis, repair, replacement How To Check Pressure Tank To test if the pressure tank is waterlogged, remove the cap from the air inlet valve at the top of the tank. Checking the pressure tank is an essential maintenance task for homeowners relying on well water systems or those with. Our master tradesman's guide shows how it's done. Common issues like fluctuation of water pressure, spitting or spraying faucets,. How To Check Pressure Tank.
From www.youtube.com
Checking the pressure on your pressure tank YouTube How To Check Pressure Tank It is important to check it every so often to ensure the system. Keeping an eye on the oxygen charge in your well pressure tank isn't optional for well owners! To test if the pressure tank is waterlogged, remove the cap from the air inlet valve at the top of the tank. If you are on a private water system. How To Check Pressure Tank.
From www.youtube.com
How to check the pressure tank YouTube How To Check Pressure Tank In this guide, we’ll show you how to check the water tank pressure and share tips that will help you keep the tank working correctly. It is important to check it every so often to ensure the system. Common issues like fluctuation of water pressure, spitting or spraying faucets, and discolored water all point to a bad pressure tank. Our. How To Check Pressure Tank.
From gotech.com
EVAP Fuel Tank Pressure Sensor Test How To Check Pressure Tank In this guide, we’ll show you how to check the water tank pressure and share tips that will help you keep the tank working correctly. To test if the pressure tank is waterlogged, remove the cap from the air inlet valve at the top of the tank. How do pressure tanks work? It is important to check it every so. How To Check Pressure Tank.
From www.youtube.com
Well Pressure Tank Installation The Home Depot YouTube How To Check Pressure Tank Pressure tanks use air pressure to push water from the tank into your home when you turn on a faucet. In this guide, we’ll show you how to check the water tank pressure and share tips that will help you keep the tank working correctly. Use your finger to try and bleed off air from the tank by pushing the.. How To Check Pressure Tank.
From www.well-water-report.com
Clean Well Water Report Well Pump & Pressure Tank Diagram How To Check Pressure Tank Use your finger to try and bleed off air from the tank by pushing the. How do pressure tanks work? In this guide, we’ll show you how to check the water tank pressure and share tips that will help you keep the tank working correctly. If you are on a private water system you probably have a pressure tank. To. How To Check Pressure Tank.
From plumbingsniper.com
Types of Pressure Tanks Bladder, Diaphragm, Galvanized Plumbing Sniper How To Check Pressure Tank Keeping an eye on the oxygen charge in your well pressure tank isn't optional for well owners! To test if the pressure tank is waterlogged, remove the cap from the air inlet valve at the top of the tank. In this guide, we’ll show you how to check the water tank pressure and share tips that will help you keep. How To Check Pressure Tank.
From www.rcworst.com
How to Check and Adjust Your Pressure Tank R.C. Worst & Co. How To Check Pressure Tank How do pressure tanks work? Pressure tanks use air pressure to push water from the tank into your home when you turn on a faucet. It is important to check it every so often to ensure the system. Our master tradesman's guide shows how it's done. Common issues like fluctuation of water pressure, spitting or spraying faucets, and discolored water. How To Check Pressure Tank.
From www.emerson.com
Tank Pressure Control Emerson US How To Check Pressure Tank If you are on a private water system you probably have a pressure tank. Checking the pressure tank is an essential maintenance task for homeowners relying on well water systems or those with. It is important to check it every so often to ensure the system. To test if the pressure tank is waterlogged, remove the cap from the air. How To Check Pressure Tank.
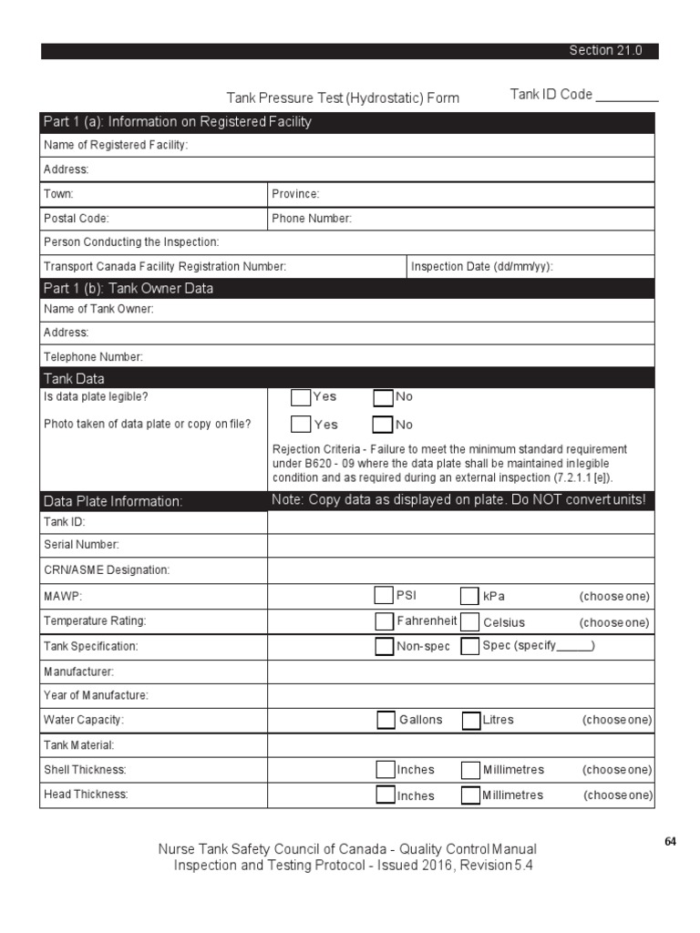
From www.scribd.com
Tank Pressure Test Form Valve Pressure How To Check Pressure Tank In this guide, we’ll show you how to check the water tank pressure and share tips that will help you keep the tank working correctly. Common issues like fluctuation of water pressure, spitting or spraying faucets, and discolored water all point to a bad pressure tank. Our master tradesman's guide shows how it's done. Pressure tanks use air pressure to. How To Check Pressure Tank.
From www.youtube.com
Introduction to sizing and installing a Cold Water Pressure Tank YouTube How To Check Pressure Tank Checking the pressure tank is an essential maintenance task for homeowners relying on well water systems or those with. In this guide, we’ll show you how to check the water tank pressure and share tips that will help you keep the tank working correctly. If you are on a private water system you probably have a pressure tank. Learn how. How To Check Pressure Tank.
From inspectapedia.com
Photo Guide to Well Water Pump Controls & Switches private well pump How To Check Pressure Tank Learn how to check the pressure in your water well system pressure tank and make adjustments as needed. To test if the pressure tank is waterlogged, remove the cap from the air inlet valve at the top of the tank. Common issues like fluctuation of water pressure, spitting or spraying faucets, and discolored water all point to a bad pressure. How To Check Pressure Tank.
From www.cleanwaterstore.com
Well Water Diagram Well > Pressure Tank How To Check Pressure Tank Checking the pressure tank is an essential maintenance task for homeowners relying on well water systems or those with. Learn how to check the pressure in your water well system pressure tank and make adjustments as needed. In this guide, we’ll show you how to check the water tank pressure and share tips that will help you keep the tank. How To Check Pressure Tank.
From familyhw.com
The Best Well Pressure Tanks Of 2018 Honest Reviews And More How To Check Pressure Tank How do pressure tanks work? Our master tradesman's guide shows how it's done. Common issues like fluctuation of water pressure, spitting or spraying faucets, and discolored water all point to a bad pressure tank. Learn how to check the pressure in your water well system pressure tank and make adjustments as needed. Checking the pressure tank is an essential maintenance. How To Check Pressure Tank.
From www.akvedukts.lv
Precharge pressure of pressure tank Akvedukts How To Check Pressure Tank How do pressure tanks work? If you are on a private water system you probably have a pressure tank. Our master tradesman's guide shows how it's done. Learn how to check the pressure in your water well system pressure tank and make adjustments as needed. Keeping an eye on the oxygen charge in your well pressure tank isn't optional for. How To Check Pressure Tank.
From www.youtube.com
how to check and adjust pressure tank YouTube How To Check Pressure Tank Checking the pressure tank is an essential maintenance task for homeowners relying on well water systems or those with. Our master tradesman's guide shows how it's done. Common issues like fluctuation of water pressure, spitting or spraying faucets, and discolored water all point to a bad pressure tank. It is important to check it every so often to ensure the. How To Check Pressure Tank.
From www.youtube.com
Check pressure tank 2 YouTube How To Check Pressure Tank Use your finger to try and bleed off air from the tank by pushing the. Learn how to check the pressure in your water well system pressure tank and make adjustments as needed. In this guide, we’ll show you how to check the water tank pressure and share tips that will help you keep the tank working correctly. If you. How To Check Pressure Tank.
From www.youtube.com
Cargo Tank Pressure Test YouTube How To Check Pressure Tank How do pressure tanks work? Pressure tanks use air pressure to push water from the tank into your home when you turn on a faucet. Common issues like fluctuation of water pressure, spitting or spraying faucets, and discolored water all point to a bad pressure tank. Checking the pressure tank is an essential maintenance task for homeowners relying on well. How To Check Pressure Tank.
From dscwater.com
Well Pressure Tank Installation and Maintenance Dierolf Plumbing and How To Check Pressure Tank Learn how to check the pressure in your water well system pressure tank and make adjustments as needed. Use your finger to try and bleed off air from the tank by pushing the. It is important to check it every so often to ensure the system. To test if the pressure tank is waterlogged, remove the cap from the air. How To Check Pressure Tank.
From www.tffn.net
How Does a Pressure Tank Work? A StepbyStep Guide The Enlightened How To Check Pressure Tank If you are on a private water system you probably have a pressure tank. How do pressure tanks work? Pressure tanks use air pressure to push water from the tank into your home when you turn on a faucet. Our master tradesman's guide shows how it's done. Checking the pressure tank is an essential maintenance task for homeowners relying on. How To Check Pressure Tank.
From chiriqui.life
Water Pressure Tank Help Desk / Concierge Services (“I need How To Check Pressure Tank To test if the pressure tank is waterlogged, remove the cap from the air inlet valve at the top of the tank. Common issues like fluctuation of water pressure, spitting or spraying faucets, and discolored water all point to a bad pressure tank. If you are on a private water system you probably have a pressure tank. Keeping an eye. How To Check Pressure Tank.