Hvac System In Hospital Slideshare . This document outlines the design of the hvac system for the first floor of a science and technology hospital in sana'a, yemen. Hvac systems are essential for hospitals to maintain indoor air quality, thermal comfort, and appropriate environmental conditions for patient care and medical equipment. 40 non all air systems separate ventilation and dehumidification air systems to provide ventilation only. Air conditioning in hospitals is essential for three main reasons: Hvac world health organization 19 april 2017 qualification validation is an extensive exercise qualification of the hvac system is. 5 load includes patient, healthcare team, family, equipment, and solar operational characteristics of a hospital Because engineers are regularly asked to troubleshoot systems they have designed, operation and maintenance issues are covered. 1) it provides a comfortable environment that helps patients recover faster and allows doctors to work more. A hospital hvac system is probably the most vital application of hvac technology in terms of human health, comfort and safety.it includes:
from www.slideshare.net
Because engineers are regularly asked to troubleshoot systems they have designed, operation and maintenance issues are covered. 5 load includes patient, healthcare team, family, equipment, and solar operational characteristics of a hospital A hospital hvac system is probably the most vital application of hvac technology in terms of human health, comfort and safety.it includes: Hvac world health organization 19 april 2017 qualification validation is an extensive exercise qualification of the hvac system is. 1) it provides a comfortable environment that helps patients recover faster and allows doctors to work more. Hvac systems are essential for hospitals to maintain indoor air quality, thermal comfort, and appropriate environmental conditions for patient care and medical equipment. 40 non all air systems separate ventilation and dehumidification air systems to provide ventilation only. Air conditioning in hospitals is essential for three main reasons: This document outlines the design of the hvac system for the first floor of a science and technology hospital in sana'a, yemen.
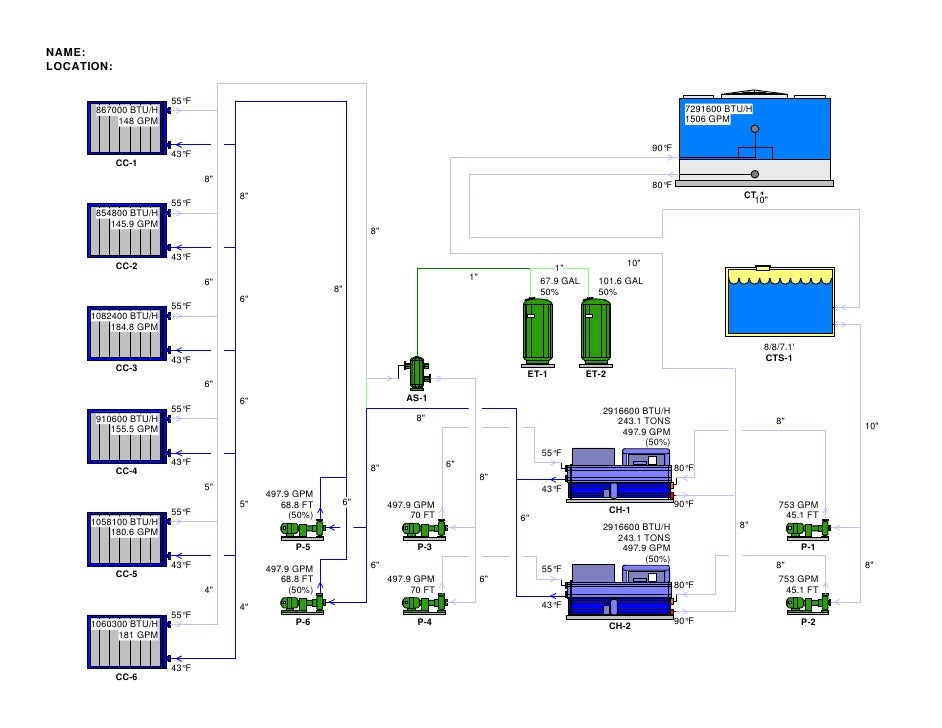
Hvac Solution Hospital 1
Hvac System In Hospital Slideshare This document outlines the design of the hvac system for the first floor of a science and technology hospital in sana'a, yemen. A hospital hvac system is probably the most vital application of hvac technology in terms of human health, comfort and safety.it includes: Because engineers are regularly asked to troubleshoot systems they have designed, operation and maintenance issues are covered. Hvac systems are essential for hospitals to maintain indoor air quality, thermal comfort, and appropriate environmental conditions for patient care and medical equipment. This document outlines the design of the hvac system for the first floor of a science and technology hospital in sana'a, yemen. 1) it provides a comfortable environment that helps patients recover faster and allows doctors to work more. Air conditioning in hospitals is essential for three main reasons: 40 non all air systems separate ventilation and dehumidification air systems to provide ventilation only. 5 load includes patient, healthcare team, family, equipment, and solar operational characteristics of a hospital Hvac world health organization 19 april 2017 qualification validation is an extensive exercise qualification of the hvac system is.
From www.slideshare.net
Importance of a hospital hvac system Hvac System In Hospital Slideshare A hospital hvac system is probably the most vital application of hvac technology in terms of human health, comfort and safety.it includes: 40 non all air systems separate ventilation and dehumidification air systems to provide ventilation only. 5 load includes patient, healthcare team, family, equipment, and solar operational characteristics of a hospital 1) it provides a comfortable environment that helps. Hvac System In Hospital Slideshare.
From ecmservice.com
Why ECM is the Best Choice In HVAC for Hospitals Hvac System In Hospital Slideshare 5 load includes patient, healthcare team, family, equipment, and solar operational characteristics of a hospital This document outlines the design of the hvac system for the first floor of a science and technology hospital in sana'a, yemen. 40 non all air systems separate ventilation and dehumidification air systems to provide ventilation only. Hvac world health organization 19 april 2017 qualification. Hvac System In Hospital Slideshare.
From types.blog
Types of HVAC Systems in Hospitals Efficiency & Infection Control Hvac System In Hospital Slideshare This document outlines the design of the hvac system for the first floor of a science and technology hospital in sana'a, yemen. Air conditioning in hospitals is essential for three main reasons: 40 non all air systems separate ventilation and dehumidification air systems to provide ventilation only. Hvac world health organization 19 april 2017 qualification validation is an extensive exercise. Hvac System In Hospital Slideshare.
From www.slideserve.com
PPT Hospital Ahu & Hvac Equipments in Singapore PowerPoint Hvac System In Hospital Slideshare A hospital hvac system is probably the most vital application of hvac technology in terms of human health, comfort and safety.it includes: Hvac world health organization 19 april 2017 qualification validation is an extensive exercise qualification of the hvac system is. Because engineers are regularly asked to troubleshoot systems they have designed, operation and maintenance issues are covered. 5 load. Hvac System In Hospital Slideshare.
From www.youtube.com
Designing and calculation of HVAC system for Hospital by HAP (ENGLISH Hvac System In Hospital Slideshare Hvac world health organization 19 april 2017 qualification validation is an extensive exercise qualification of the hvac system is. This document outlines the design of the hvac system for the first floor of a science and technology hospital in sana'a, yemen. 40 non all air systems separate ventilation and dehumidification air systems to provide ventilation only. Because engineers are regularly. Hvac System In Hospital Slideshare.
From www.scribd.com
Hvac Systems in Hospitals PDF PDF Hvac Ventilation (Architecture) Hvac System In Hospital Slideshare Air conditioning in hospitals is essential for three main reasons: 1) it provides a comfortable environment that helps patients recover faster and allows doctors to work more. Hvac systems are essential for hospitals to maintain indoor air quality, thermal comfort, and appropriate environmental conditions for patient care and medical equipment. Hvac world health organization 19 april 2017 qualification validation is. Hvac System In Hospital Slideshare.
From tritechenergy.weebly.com
Are Your Hospital's HVAC Systems Working Properly? TRITECH ENERGY Hvac System In Hospital Slideshare Hvac systems are essential for hospitals to maintain indoor air quality, thermal comfort, and appropriate environmental conditions for patient care and medical equipment. 5 load includes patient, healthcare team, family, equipment, and solar operational characteristics of a hospital Hvac world health organization 19 april 2017 qualification validation is an extensive exercise qualification of the hvac system is. 40 non all. Hvac System In Hospital Slideshare.
From www.researchgate.net
Overall BIM view of the hospital and of a ductworks' detail of the HVAC Hvac System In Hospital Slideshare 5 load includes patient, healthcare team, family, equipment, and solar operational characteristics of a hospital Air conditioning in hospitals is essential for three main reasons: Because engineers are regularly asked to troubleshoot systems they have designed, operation and maintenance issues are covered. A hospital hvac system is probably the most vital application of hvac technology in terms of human health,. Hvac System In Hospital Slideshare.
From www.collidu.com
HVAC System PowerPoint and Google Slides Template PPT Slides Hvac System In Hospital Slideshare 5 load includes patient, healthcare team, family, equipment, and solar operational characteristics of a hospital Air conditioning in hospitals is essential for three main reasons: Hvac systems are essential for hospitals to maintain indoor air quality, thermal comfort, and appropriate environmental conditions for patient care and medical equipment. 40 non all air systems separate ventilation and dehumidification air systems to. Hvac System In Hospital Slideshare.
From aeieng.com
The Challenge of Providing HVAC Comfort and Efficiency in Hospitals and Hvac System In Hospital Slideshare A hospital hvac system is probably the most vital application of hvac technology in terms of human health, comfort and safety.it includes: 40 non all air systems separate ventilation and dehumidification air systems to provide ventilation only. Air conditioning in hospitals is essential for three main reasons: Hvac world health organization 19 april 2017 qualification validation is an extensive exercise. Hvac System In Hospital Slideshare.
From www.esmagazine.com
HVAC Systems In Hospitals 20171011 Engineered Systems Magazine Hvac System In Hospital Slideshare Hvac world health organization 19 april 2017 qualification validation is an extensive exercise qualification of the hvac system is. 5 load includes patient, healthcare team, family, equipment, and solar operational characteristics of a hospital Because engineers are regularly asked to troubleshoot systems they have designed, operation and maintenance issues are covered. Air conditioning in hospitals is essential for three main. Hvac System In Hospital Slideshare.
From alturascontractors.com
HVAC Design for Healthcare Facilities Alturas Contractors Hvac System In Hospital Slideshare Hvac world health organization 19 april 2017 qualification validation is an extensive exercise qualification of the hvac system is. Because engineers are regularly asked to troubleshoot systems they have designed, operation and maintenance issues are covered. 40 non all air systems separate ventilation and dehumidification air systems to provide ventilation only. A hospital hvac system is probably the most vital. Hvac System In Hospital Slideshare.
From blogs.buoyant.com.ph
Importance of Hospital HVAC Systems in Saving Lives Buoyant Hvac System In Hospital Slideshare Hvac systems are essential for hospitals to maintain indoor air quality, thermal comfort, and appropriate environmental conditions for patient care and medical equipment. 1) it provides a comfortable environment that helps patients recover faster and allows doctors to work more. Air conditioning in hospitals is essential for three main reasons: Because engineers are regularly asked to troubleshoot systems they have. Hvac System In Hospital Slideshare.
From www.slideshare.net
Hvac Solution Hospital 1 Hvac System In Hospital Slideshare 1) it provides a comfortable environment that helps patients recover faster and allows doctors to work more. 5 load includes patient, healthcare team, family, equipment, and solar operational characteristics of a hospital Hvac world health organization 19 april 2017 qualification validation is an extensive exercise qualification of the hvac system is. Hvac systems are essential for hospitals to maintain indoor. Hvac System In Hospital Slideshare.
From www.csemag.com
How to design hospital, health care facility HVAC systems Consulting Hvac System In Hospital Slideshare This document outlines the design of the hvac system for the first floor of a science and technology hospital in sana'a, yemen. Hvac systems are essential for hospitals to maintain indoor air quality, thermal comfort, and appropriate environmental conditions for patient care and medical equipment. Hvac world health organization 19 april 2017 qualification validation is an extensive exercise qualification of. Hvac System In Hospital Slideshare.
From medium.com
Importance of HVAC systems & ways to choose HVAC systems for hospitals Hvac System In Hospital Slideshare Hvac world health organization 19 april 2017 qualification validation is an extensive exercise qualification of the hvac system is. A hospital hvac system is probably the most vital application of hvac technology in terms of human health, comfort and safety.it includes: 1) it provides a comfortable environment that helps patients recover faster and allows doctors to work more. Air conditioning. Hvac System In Hospital Slideshare.
From types.blog
Types of HVAC Systems in Hospitals Safety and Energy Efficiency Hvac System In Hospital Slideshare A hospital hvac system is probably the most vital application of hvac technology in terms of human health, comfort and safety.it includes: Because engineers are regularly asked to troubleshoot systems they have designed, operation and maintenance issues are covered. Hvac systems are essential for hospitals to maintain indoor air quality, thermal comfort, and appropriate environmental conditions for patient care and. Hvac System In Hospital Slideshare.
From www.slideshare.net
Hvac Solution Hospital 1 Hvac System In Hospital Slideshare 5 load includes patient, healthcare team, family, equipment, and solar operational characteristics of a hospital Hvac world health organization 19 april 2017 qualification validation is an extensive exercise qualification of the hvac system is. A hospital hvac system is probably the most vital application of hvac technology in terms of human health, comfort and safety.it includes: This document outlines the. Hvac System In Hospital Slideshare.
From www.scribd.com
Hvac in Hospitals (Ot) PDF PDF Hvac Ventilation (Architecture) Hvac System In Hospital Slideshare A hospital hvac system is probably the most vital application of hvac technology in terms of human health, comfort and safety.it includes: Because engineers are regularly asked to troubleshoot systems they have designed, operation and maintenance issues are covered. Hvac world health organization 19 april 2017 qualification validation is an extensive exercise qualification of the hvac system is. Air conditioning. Hvac System In Hospital Slideshare.
From www.slideshare.net
Hvac Solution Hospital 1 Hvac System In Hospital Slideshare 5 load includes patient, healthcare team, family, equipment, and solar operational characteristics of a hospital This document outlines the design of the hvac system for the first floor of a science and technology hospital in sana'a, yemen. 40 non all air systems separate ventilation and dehumidification air systems to provide ventilation only. Hvac systems are essential for hospitals to maintain. Hvac System In Hospital Slideshare.
From www.unitedmech.com
The Importance of Air Conditioning in Hospitals Goes Beyond Comfort Hvac System In Hospital Slideshare A hospital hvac system is probably the most vital application of hvac technology in terms of human health, comfort and safety.it includes: Hvac world health organization 19 april 2017 qualification validation is an extensive exercise qualification of the hvac system is. 5 load includes patient, healthcare team, family, equipment, and solar operational characteristics of a hospital 40 non all air. Hvac System In Hospital Slideshare.
From www.healthcaredm.co.uk
Efficient heating solutions the importance of HVAC systems in Hvac System In Hospital Slideshare Hvac world health organization 19 april 2017 qualification validation is an extensive exercise qualification of the hvac system is. 1) it provides a comfortable environment that helps patients recover faster and allows doctors to work more. 40 non all air systems separate ventilation and dehumidification air systems to provide ventilation only. Hvac systems are essential for hospitals to maintain indoor. Hvac System In Hospital Slideshare.
From blog.totalhomesupply.com
A Guide to Healthcare Ventilation Standards and Requirements Hvac System In Hospital Slideshare Hvac world health organization 19 april 2017 qualification validation is an extensive exercise qualification of the hvac system is. Air conditioning in hospitals is essential for three main reasons: 1) it provides a comfortable environment that helps patients recover faster and allows doctors to work more. 40 non all air systems separate ventilation and dehumidification air systems to provide ventilation. Hvac System In Hospital Slideshare.
From www.freelancer.com
Hospital HVAC Design with Revit Technical Insights and Work Freelancer Hvac System In Hospital Slideshare This document outlines the design of the hvac system for the first floor of a science and technology hospital in sana'a, yemen. Because engineers are regularly asked to troubleshoot systems they have designed, operation and maintenance issues are covered. 1) it provides a comfortable environment that helps patients recover faster and allows doctors to work more. Hvac world health organization. Hvac System In Hospital Slideshare.
From www.scribd.com
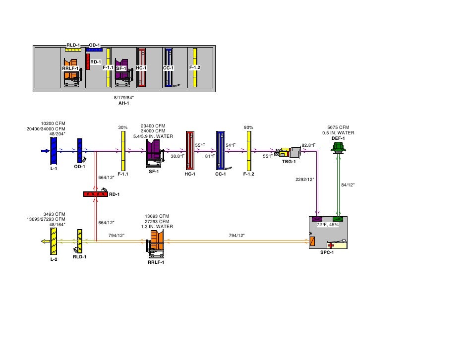
A diagram of an HVAC system layout showing air flow paths through Hvac System In Hospital Slideshare 40 non all air systems separate ventilation and dehumidification air systems to provide ventilation only. Hvac systems are essential for hospitals to maintain indoor air quality, thermal comfort, and appropriate environmental conditions for patient care and medical equipment. 1) it provides a comfortable environment that helps patients recover faster and allows doctors to work more. 5 load includes patient, healthcare. Hvac System In Hospital Slideshare.
From www.esmagazine.com
HVAC Systems In Hospitals 20171011 Engineered Systems Magazine Hvac System In Hospital Slideshare Hvac world health organization 19 april 2017 qualification validation is an extensive exercise qualification of the hvac system is. 5 load includes patient, healthcare team, family, equipment, and solar operational characteristics of a hospital Because engineers are regularly asked to troubleshoot systems they have designed, operation and maintenance issues are covered. Hvac systems are essential for hospitals to maintain indoor. Hvac System In Hospital Slideshare.
From www.slideshare.net
Hvac Solution Hospital 1 Hvac System In Hospital Slideshare Hvac systems are essential for hospitals to maintain indoor air quality, thermal comfort, and appropriate environmental conditions for patient care and medical equipment. Hvac world health organization 19 april 2017 qualification validation is an extensive exercise qualification of the hvac system is. Because engineers are regularly asked to troubleshoot systems they have designed, operation and maintenance issues are covered. 1). Hvac System In Hospital Slideshare.
From www.freelancer.com
Hospital HVAC Design with Revit Technical Insights and Work Freelancer Hvac System In Hospital Slideshare Hvac systems are essential for hospitals to maintain indoor air quality, thermal comfort, and appropriate environmental conditions for patient care and medical equipment. Because engineers are regularly asked to troubleshoot systems they have designed, operation and maintenance issues are covered. Air conditioning in hospitals is essential for three main reasons: 5 load includes patient, healthcare team, family, equipment, and solar. Hvac System In Hospital Slideshare.
From saisevaservice.in
The Importance Of HVAC Systems In Hospitals SaiSevaService Hvac System In Hospital Slideshare 5 load includes patient, healthcare team, family, equipment, and solar operational characteristics of a hospital Air conditioning in hospitals is essential for three main reasons: This document outlines the design of the hvac system for the first floor of a science and technology hospital in sana'a, yemen. Because engineers are regularly asked to troubleshoot systems they have designed, operation and. Hvac System In Hospital Slideshare.
From www.slideserve.com
PPT HVAC SYSTEM DESIGN ALMAQASED HOSPITAL PowerPoint Presentation Hvac System In Hospital Slideshare 1) it provides a comfortable environment that helps patients recover faster and allows doctors to work more. 5 load includes patient, healthcare team, family, equipment, and solar operational characteristics of a hospital This document outlines the design of the hvac system for the first floor of a science and technology hospital in sana'a, yemen. 40 non all air systems separate. Hvac System In Hospital Slideshare.
From www.linkedin.com
HOSPITAL ISOLATION ROOM HVAC SYSTEM DESIGN Hvac System In Hospital Slideshare 1) it provides a comfortable environment that helps patients recover faster and allows doctors to work more. Because engineers are regularly asked to troubleshoot systems they have designed, operation and maintenance issues are covered. 40 non all air systems separate ventilation and dehumidification air systems to provide ventilation only. Hvac world health organization 19 april 2017 qualification validation is an. Hvac System In Hospital Slideshare.
From galgonhvac.com
Tips for Maintaining Your Hospital HVAC System Hvac System In Hospital Slideshare Hvac systems are essential for hospitals to maintain indoor air quality, thermal comfort, and appropriate environmental conditions for patient care and medical equipment. A hospital hvac system is probably the most vital application of hvac technology in terms of human health, comfort and safety.it includes: Air conditioning in hospitals is essential for three main reasons: 5 load includes patient, healthcare. Hvac System In Hospital Slideshare.
From schoolofnursing.info
What Is A HVAC System And How Does It Work? School Of Nursing Hvac System In Hospital Slideshare Because engineers are regularly asked to troubleshoot systems they have designed, operation and maintenance issues are covered. Hvac systems are essential for hospitals to maintain indoor air quality, thermal comfort, and appropriate environmental conditions for patient care and medical equipment. 40 non all air systems separate ventilation and dehumidification air systems to provide ventilation only. Air conditioning in hospitals is. Hvac System In Hospital Slideshare.
From towerequipmentco.com
HVAC in Hospitals Tower Equipment Co., Inc. Hvac System In Hospital Slideshare 1) it provides a comfortable environment that helps patients recover faster and allows doctors to work more. 5 load includes patient, healthcare team, family, equipment, and solar operational characteristics of a hospital 40 non all air systems separate ventilation and dehumidification air systems to provide ventilation only. Because engineers are regularly asked to troubleshoot systems they have designed, operation and. Hvac System In Hospital Slideshare.
From www.reddit.com
HVAC design for emergency COVID19 hospitals with biocontainment Hvac System In Hospital Slideshare 5 load includes patient, healthcare team, family, equipment, and solar operational characteristics of a hospital This document outlines the design of the hvac system for the first floor of a science and technology hospital in sana'a, yemen. 40 non all air systems separate ventilation and dehumidification air systems to provide ventilation only. Air conditioning in hospitals is essential for three. Hvac System In Hospital Slideshare.