Anchor Bolt Plan Drawing . See also general arrangement drawings. Also known as a concrete anchor or. Anchor bolt plan see below for an example of an anchor bolt plan. Profile with details and specifications. Learn how to create and edit anchor bolt plans. An anchor bolt plan is a specific type of a general arrangement drawing, which displays the. Anchor bolt plans are general arrangement drawings showing the anchor bolt layout. You can create anchor bolt plans in master drawing. The anchor bolt summary tells you the quantity of anchor bolts you will need in the various diameters required for your building. Autocad dwg file available for free download that provides a detailed design of a simpson anchor bolt, including both plan and elevation 2d views. Constructive development of a bolt design for anchoring to structures.
from chacunited.com
Anchor bolt plans are general arrangement drawings showing the anchor bolt layout. Also known as a concrete anchor or. Anchor bolt plan see below for an example of an anchor bolt plan. Learn how to create and edit anchor bolt plans. Profile with details and specifications. The anchor bolt summary tells you the quantity of anchor bolts you will need in the various diameters required for your building. You can create anchor bolt plans in master drawing. See also general arrangement drawings. Constructive development of a bolt design for anchoring to structures. Autocad dwg file available for free download that provides a detailed design of a simpson anchor bolt, including both plan and elevation 2d views.
ANCHOR BOLT PLANS CHAC UNITED
Anchor Bolt Plan Drawing Autocad dwg file available for free download that provides a detailed design of a simpson anchor bolt, including both plan and elevation 2d views. See also general arrangement drawings. Also known as a concrete anchor or. Anchor bolt plan see below for an example of an anchor bolt plan. Anchor bolt plans are general arrangement drawings showing the anchor bolt layout. Profile with details and specifications. Learn how to create and edit anchor bolt plans. Constructive development of a bolt design for anchoring to structures. An anchor bolt plan is a specific type of a general arrangement drawing, which displays the. The anchor bolt summary tells you the quantity of anchor bolts you will need in the various diameters required for your building. You can create anchor bolt plans in master drawing. Autocad dwg file available for free download that provides a detailed design of a simpson anchor bolt, including both plan and elevation 2d views.
From medium.com
The Anchor Bolt layout Plan details are given in AutoCAD 2D drawing Anchor Bolt Plan Drawing Anchor bolt plans are general arrangement drawings showing the anchor bolt layout. Profile with details and specifications. Learn how to create and edit anchor bolt plans. Autocad dwg file available for free download that provides a detailed design of a simpson anchor bolt, including both plan and elevation 2d views. The anchor bolt summary tells you the quantity of anchor. Anchor Bolt Plan Drawing.
From cadbull.com
Anchor bolts details in AutoCAD 2D drawing, dwg file, CAD file Cadbull Anchor Bolt Plan Drawing Learn how to create and edit anchor bolt plans. See also general arrangement drawings. Also known as a concrete anchor or. Anchor bolt plan see below for an example of an anchor bolt plan. Autocad dwg file available for free download that provides a detailed design of a simpson anchor bolt, including both plan and elevation 2d views. Profile with. Anchor Bolt Plan Drawing.
From dwgshare.com
70.Free Download of Steel Anchor Bolt Layout Plan Details Autocad Anchor Bolt Plan Drawing You can create anchor bolt plans in master drawing. Autocad dwg file available for free download that provides a detailed design of a simpson anchor bolt, including both plan and elevation 2d views. Constructive development of a bolt design for anchoring to structures. The anchor bolt summary tells you the quantity of anchor bolts you will need in the various. Anchor Bolt Plan Drawing.
From asteel.com
Asteel 3d Modeler & Asteel 2.0 Anchor Bolt Plan Drawing Learn how to create and edit anchor bolt plans. The anchor bolt summary tells you the quantity of anchor bolts you will need in the various diameters required for your building. Also known as a concrete anchor or. Anchor bolt plans are general arrangement drawings showing the anchor bolt layout. Constructive development of a bolt design for anchoring to structures.. Anchor Bolt Plan Drawing.
From chacunited.com
ANCHOR BOLT PLANS CHAC UNITED Anchor Bolt Plan Drawing Also known as a concrete anchor or. An anchor bolt plan is a specific type of a general arrangement drawing, which displays the. Anchor bolt plan see below for an example of an anchor bolt plan. Autocad dwg file available for free download that provides a detailed design of a simpson anchor bolt, including both plan and elevation 2d views.. Anchor Bolt Plan Drawing.
From dwgshare.com
70.Free Download of Steel Anchor Bolt Layout Plan Details Autocad Anchor Bolt Plan Drawing Learn how to create and edit anchor bolt plans. An anchor bolt plan is a specific type of a general arrangement drawing, which displays the. Anchor bolt plan see below for an example of an anchor bolt plan. Autocad dwg file available for free download that provides a detailed design of a simpson anchor bolt, including both plan and elevation. Anchor Bolt Plan Drawing.
From cadbull.com
Detail of anchor bolt connections are given in this AutoCAD drawing Anchor Bolt Plan Drawing An anchor bolt plan is a specific type of a general arrangement drawing, which displays the. Constructive development of a bolt design for anchoring to structures. Autocad dwg file available for free download that provides a detailed design of a simpson anchor bolt, including both plan and elevation 2d views. The anchor bolt summary tells you the quantity of anchor. Anchor Bolt Plan Drawing.
From chacunited.com
ANCHOR BOLT PLANS CHAC UNITED Anchor Bolt Plan Drawing Autocad dwg file available for free download that provides a detailed design of a simpson anchor bolt, including both plan and elevation 2d views. Anchor bolt plan see below for an example of an anchor bolt plan. See also general arrangement drawings. Constructive development of a bolt design for anchoring to structures. Learn how to create and edit anchor bolt. Anchor Bolt Plan Drawing.
From www.youtube.com
How to create Anchor Bolt Plan? YouTube Anchor Bolt Plan Drawing Constructive development of a bolt design for anchoring to structures. An anchor bolt plan is a specific type of a general arrangement drawing, which displays the. You can create anchor bolt plans in master drawing. Profile with details and specifications. Anchor bolt plans are general arrangement drawings showing the anchor bolt layout. Anchor bolt plan see below for an example. Anchor Bolt Plan Drawing.
From dwgfree.com
Anchor Bolt DWG Free [ Drawing 2020 ] in AutoCAD Blocks 2D. Anchor Bolt Plan Drawing Learn how to create and edit anchor bolt plans. Autocad dwg file available for free download that provides a detailed design of a simpson anchor bolt, including both plan and elevation 2d views. You can create anchor bolt plans in master drawing. See also general arrangement drawings. Also known as a concrete anchor or. Constructive development of a bolt design. Anchor Bolt Plan Drawing.
From jonssteel.com
ANCHOR BOLT LAYOUT JON’S STEEL AND DESIGN ASSOCIATES Anchor Bolt Plan Drawing Learn how to create and edit anchor bolt plans. Autocad dwg file available for free download that provides a detailed design of a simpson anchor bolt, including both plan and elevation 2d views. Anchor bolt plans are general arrangement drawings showing the anchor bolt layout. You can create anchor bolt plans in master drawing. The anchor bolt summary tells you. Anchor Bolt Plan Drawing.
From www.3axialsteeldetail.com
Anchor Bolt Plan 3Axial Steel Anchor Bolt Plan Drawing Anchor bolt plans are general arrangement drawings showing the anchor bolt layout. An anchor bolt plan is a specific type of a general arrangement drawing, which displays the. The anchor bolt summary tells you the quantity of anchor bolts you will need in the various diameters required for your building. Profile with details and specifications. Also known as a concrete. Anchor Bolt Plan Drawing.
From www.youtube.com
How To Read Anchor Bolt Drawing PEB Building Anchor Bolt Drawings Anchor Bolt Plan Drawing Autocad dwg file available for free download that provides a detailed design of a simpson anchor bolt, including both plan and elevation 2d views. Anchor bolt plan see below for an example of an anchor bolt plan. See also general arrangement drawings. You can create anchor bolt plans in master drawing. Also known as a concrete anchor or. An anchor. Anchor Bolt Plan Drawing.
From freecadfloorplans.com
Simpson Anchor Bolt Free CAD Drawings Anchor Bolt Plan Drawing See also general arrangement drawings. Profile with details and specifications. The anchor bolt summary tells you the quantity of anchor bolts you will need in the various diameters required for your building. Anchor bolt plans are general arrangement drawings showing the anchor bolt layout. An anchor bolt plan is a specific type of a general arrangement drawing, which displays the.. Anchor Bolt Plan Drawing.
From www.vrogue.co
The Anchor Bolt Layout Plan Details Are Given In Auto vrogue.co Anchor Bolt Plan Drawing An anchor bolt plan is a specific type of a general arrangement drawing, which displays the. You can create anchor bolt plans in master drawing. Learn how to create and edit anchor bolt plans. Also known as a concrete anchor or. See also general arrangement drawings. Profile with details and specifications. The anchor bolt summary tells you the quantity of. Anchor Bolt Plan Drawing.
From support.tekla.com
Example Anchor bolt plan Tekla User Assistance Anchor Bolt Plan Drawing See also general arrangement drawings. An anchor bolt plan is a specific type of a general arrangement drawing, which displays the. Autocad dwg file available for free download that provides a detailed design of a simpson anchor bolt, including both plan and elevation 2d views. The anchor bolt summary tells you the quantity of anchor bolts you will need in. Anchor Bolt Plan Drawing.
From cadbull.com
Anchor bolt installation details in Foundation baseplate in AutoCAD Anchor Bolt Plan Drawing You can create anchor bolt plans in master drawing. Anchor bolt plan see below for an example of an anchor bolt plan. Anchor bolt plans are general arrangement drawings showing the anchor bolt layout. An anchor bolt plan is a specific type of a general arrangement drawing, which displays the. Also known as a concrete anchor or. Learn how to. Anchor Bolt Plan Drawing.
From alketsteeldetailing.com
Sample Drawings Alket Steel Detailing Anchor Bolt Plan Drawing Profile with details and specifications. Also known as a concrete anchor or. See also general arrangement drawings. You can create anchor bolt plans in master drawing. Learn how to create and edit anchor bolt plans. The anchor bolt summary tells you the quantity of anchor bolts you will need in the various diameters required for your building. Anchor bolt plan. Anchor Bolt Plan Drawing.
From aviationbuildingsystem.com
R & M Steel Steel Building Anchor Bolt Plan Example Anchor Bolt Plan Drawing Anchor bolt plan see below for an example of an anchor bolt plan. Learn how to create and edit anchor bolt plans. Autocad dwg file available for free download that provides a detailed design of a simpson anchor bolt, including both plan and elevation 2d views. Profile with details and specifications. Anchor bolt plans are general arrangement drawings showing the. Anchor Bolt Plan Drawing.
From www.excelsiorbim.com
ANCHOR BOLT PLANS Anchor Bolt Plan Drawing Learn how to create and edit anchor bolt plans. Also known as a concrete anchor or. See also general arrangement drawings. Autocad dwg file available for free download that provides a detailed design of a simpson anchor bolt, including both plan and elevation 2d views. Anchor bolt plan see below for an example of an anchor bolt plan. An anchor. Anchor Bolt Plan Drawing.
From www.youtube.com
Anchor Bolt Plan AutoCad II Anchor Bolt & Base Plate Layout for PEB Anchor Bolt Plan Drawing Profile with details and specifications. See also general arrangement drawings. Anchor bolt plans are general arrangement drawings showing the anchor bolt layout. An anchor bolt plan is a specific type of a general arrangement drawing, which displays the. Constructive development of a bolt design for anchoring to structures. Autocad dwg file available for free download that provides a detailed design. Anchor Bolt Plan Drawing.
From chacunited.com
ANCHOR BOLT PLANS CHAC UNITED Anchor Bolt Plan Drawing Anchor bolt plans are general arrangement drawings showing the anchor bolt layout. Autocad dwg file available for free download that provides a detailed design of a simpson anchor bolt, including both plan and elevation 2d views. Profile with details and specifications. Learn how to create and edit anchor bolt plans. An anchor bolt plan is a specific type of a. Anchor Bolt Plan Drawing.
From chacunited.com
ANCHOR BOLT PLANS CHAC UNITED Anchor Bolt Plan Drawing Anchor bolt plan see below for an example of an anchor bolt plan. An anchor bolt plan is a specific type of a general arrangement drawing, which displays the. See also general arrangement drawings. You can create anchor bolt plans in master drawing. Constructive development of a bolt design for anchoring to structures. The anchor bolt summary tells you the. Anchor Bolt Plan Drawing.
From www.planmarketplace.com
anchor bolts with sleeve for concrete foundations and structures CAD Anchor Bolt Plan Drawing Profile with details and specifications. You can create anchor bolt plans in master drawing. The anchor bolt summary tells you the quantity of anchor bolts you will need in the various diameters required for your building. Autocad dwg file available for free download that provides a detailed design of a simpson anchor bolt, including both plan and elevation 2d views.. Anchor Bolt Plan Drawing.
From www.planmarketplace.com
anchor bolts with sleeve for concrete foundations and structures CAD Anchor Bolt Plan Drawing The anchor bolt summary tells you the quantity of anchor bolts you will need in the various diameters required for your building. Learn how to create and edit anchor bolt plans. See also general arrangement drawings. Profile with details and specifications. Anchor bolt plans are general arrangement drawings showing the anchor bolt layout. You can create anchor bolt plans in. Anchor Bolt Plan Drawing.
From www.scedetailinggroup.com
Structural Steel Drawing Samples SCE Detailing Group Inc. Anchor Bolt Plan Drawing You can create anchor bolt plans in master drawing. Also known as a concrete anchor or. Profile with details and specifications. Anchor bolt plans are general arrangement drawings showing the anchor bolt layout. The anchor bolt summary tells you the quantity of anchor bolts you will need in the various diameters required for your building. Constructive development of a bolt. Anchor Bolt Plan Drawing.
From www.global-detailing.com
Structural Anchor Bolt Plan Drawings Anchor Bolt Plan Drawing Also known as a concrete anchor or. Anchor bolt plans are general arrangement drawings showing the anchor bolt layout. The anchor bolt summary tells you the quantity of anchor bolts you will need in the various diameters required for your building. Anchor bolt plan see below for an example of an anchor bolt plan. Profile with details and specifications. See. Anchor Bolt Plan Drawing.
From www.youtube.com
Create anchor bolt plans in Tekla Structures YouTube Anchor Bolt Plan Drawing The anchor bolt summary tells you the quantity of anchor bolts you will need in the various diameters required for your building. You can create anchor bolt plans in master drawing. Anchor bolt plan see below for an example of an anchor bolt plan. Anchor bolt plans are general arrangement drawings showing the anchor bolt layout. An anchor bolt plan. Anchor Bolt Plan Drawing.
From www.3axialsteeldetail.com
Anchor Bolt Plan 3Axial Steel Anchor Bolt Plan Drawing Learn how to create and edit anchor bolt plans. You can create anchor bolt plans in master drawing. The anchor bolt summary tells you the quantity of anchor bolts you will need in the various diameters required for your building. An anchor bolt plan is a specific type of a general arrangement drawing, which displays the. Also known as a. Anchor Bolt Plan Drawing.
From www.pinterest.pt
Anchor Bolt Design With Tension, Shear and Moment Using Anchor Anchor Bolt Plan Drawing Learn how to create and edit anchor bolt plans. An anchor bolt plan is a specific type of a general arrangement drawing, which displays the. You can create anchor bolt plans in master drawing. See also general arrangement drawings. The anchor bolt summary tells you the quantity of anchor bolts you will need in the various diameters required for your. Anchor Bolt Plan Drawing.
From cadbull.com
Anchor bolt layout plan presented in this drawing file. Download this Anchor Bolt Plan Drawing You can create anchor bolt plans in master drawing. Anchor bolt plan see below for an example of an anchor bolt plan. Constructive development of a bolt design for anchoring to structures. Also known as a concrete anchor or. See also general arrangement drawings. Anchor bolt plans are general arrangement drawings showing the anchor bolt layout. Autocad dwg file available. Anchor Bolt Plan Drawing.
From www.scribd.com
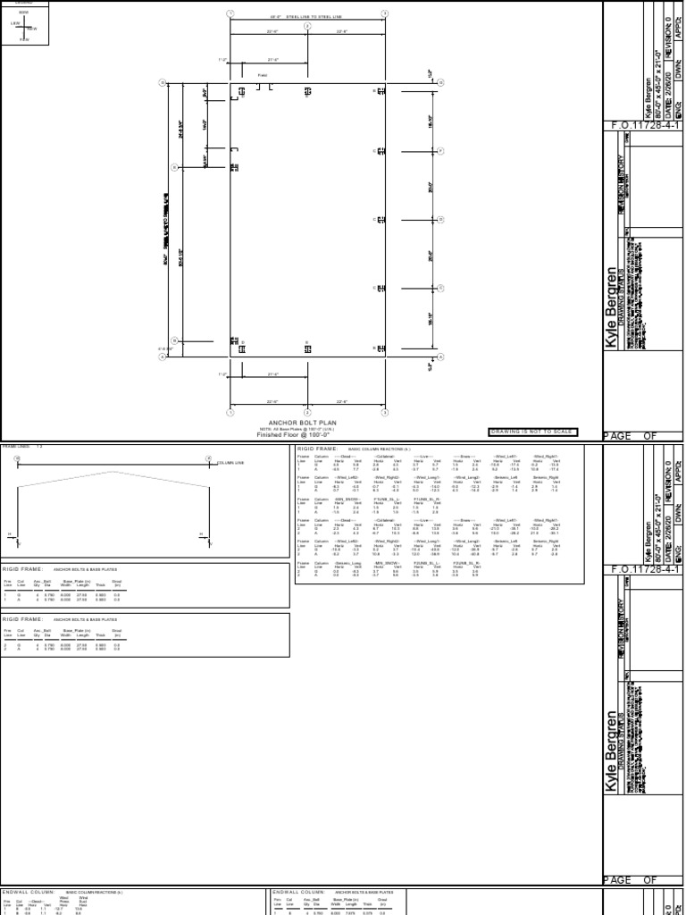
Anchor Bolt Plan Finished Floor at 100'0" Drawing Is Not To Scale Anchor Bolt Plan Drawing Also known as a concrete anchor or. See also general arrangement drawings. Anchor bolt plan see below for an example of an anchor bolt plan. The anchor bolt summary tells you the quantity of anchor bolts you will need in the various diameters required for your building. An anchor bolt plan is a specific type of a general arrangement drawing,. Anchor Bolt Plan Drawing.
From freecadfloorplans.com
Hilti Anchor Bolt Free CAD Drawings Anchor Bolt Plan Drawing Autocad dwg file available for free download that provides a detailed design of a simpson anchor bolt, including both plan and elevation 2d views. See also general arrangement drawings. Anchor bolt plan see below for an example of an anchor bolt plan. You can create anchor bolt plans in master drawing. Anchor bolt plans are general arrangement drawings showing the. Anchor Bolt Plan Drawing.
From www.pinterest.com
Detailse1304726850151.jpg (716×904) Anchor bolt, Coding, Detail Anchor Bolt Plan Drawing See also general arrangement drawings. Also known as a concrete anchor or. Autocad dwg file available for free download that provides a detailed design of a simpson anchor bolt, including both plan and elevation 2d views. Constructive development of a bolt design for anchoring to structures. You can create anchor bolt plans in master drawing. Learn how to create and. Anchor Bolt Plan Drawing.
From www.rhinobldg.com
Anchoring Metal Buildings Concrete Anchoring Systems Anchor Bolt Plan Drawing Constructive development of a bolt design for anchoring to structures. Anchor bolt plan see below for an example of an anchor bolt plan. You can create anchor bolt plans in master drawing. Autocad dwg file available for free download that provides a detailed design of a simpson anchor bolt, including both plan and elevation 2d views. See also general arrangement. Anchor Bolt Plan Drawing.