Dakota Fire & Safety Equipment Trading . We sell and service fire extinguishers in north dakota as well as a number of different fire department. We provide sales of amerex, buckeye, and victory fire extinguishers as well as providing mobile service for all types of handheld fire extinguishers. Call sales on their cell: Find out about our arctic compressor certified dealer, dakota fire extinguishers! We have access to fire truck parts and or stock most parts needed for repairs in the emergency repair industry. Aed sales & service arctic & 3m scott certified compressor services. Call us in our office: We can also provide you and your.
from patch.com
Call sales on their cell: We have access to fire truck parts and or stock most parts needed for repairs in the emergency repair industry. We sell and service fire extinguishers in north dakota as well as a number of different fire department. Aed sales & service arctic & 3m scott certified compressor services. We provide sales of amerex, buckeye, and victory fire extinguishers as well as providing mobile service for all types of handheld fire extinguishers. We can also provide you and your. Call us in our office: Find out about our arctic compressor certified dealer, dakota fire extinguishers!
Fire Safety Equipment Dealer USA Fire Fighting Equipment Seattle
Dakota Fire & Safety Equipment Trading Call us in our office: We sell and service fire extinguishers in north dakota as well as a number of different fire department. Aed sales & service arctic & 3m scott certified compressor services. We have access to fire truck parts and or stock most parts needed for repairs in the emergency repair industry. Call us in our office: Call sales on their cell: Find out about our arctic compressor certified dealer, dakota fire extinguishers! We can also provide you and your. We provide sales of amerex, buckeye, and victory fire extinguishers as well as providing mobile service for all types of handheld fire extinguishers.
From iconic.com.bd
Fire Safety Training Iconic Engineering Limited Dakota Fire & Safety Equipment Trading We can also provide you and your. Call sales on their cell: We sell and service fire extinguishers in north dakota as well as a number of different fire department. Call us in our office: Aed sales & service arctic & 3m scott certified compressor services. We provide sales of amerex, buckeye, and victory fire extinguishers as well as providing. Dakota Fire & Safety Equipment Trading.
From www.youtube.com
Fire Prevention Company Port St. Lucie Fire Safety Equipment YouTube Dakota Fire & Safety Equipment Trading We provide sales of amerex, buckeye, and victory fire extinguishers as well as providing mobile service for all types of handheld fire extinguishers. Find out about our arctic compressor certified dealer, dakota fire extinguishers! Call us in our office: Call sales on their cell: We can also provide you and your. Aed sales & service arctic & 3m scott certified. Dakota Fire & Safety Equipment Trading.
From www.pinterest.com
Fargo North Dakota Fire Department badge Fargo north dakota, North Dakota Fire & Safety Equipment Trading Call sales on their cell: We can also provide you and your. We have access to fire truck parts and or stock most parts needed for repairs in the emergency repair industry. Call us in our office: We provide sales of amerex, buckeye, and victory fire extinguishers as well as providing mobile service for all types of handheld fire extinguishers.. Dakota Fire & Safety Equipment Trading.
From industrialaw.co.za
Industrial Law Solutions Dakota Fire & Safety Equipment Trading We can also provide you and your. Aed sales & service arctic & 3m scott certified compressor services. Call us in our office: We provide sales of amerex, buckeye, and victory fire extinguishers as well as providing mobile service for all types of handheld fire extinguishers. We have access to fire truck parts and or stock most parts needed for. Dakota Fire & Safety Equipment Trading.
From www.linkedin.com
Fire Safety Equipments Dakota Fire & Safety Equipment Trading Aed sales & service arctic & 3m scott certified compressor services. We provide sales of amerex, buckeye, and victory fire extinguishers as well as providing mobile service for all types of handheld fire extinguishers. We sell and service fire extinguishers in north dakota as well as a number of different fire department. Call sales on their cell: Find out about. Dakota Fire & Safety Equipment Trading.
From www.pinterest.com
Dakota Fire Hole Dakota fire hole, Doomsday prepper, Survival techniques Dakota Fire & Safety Equipment Trading We sell and service fire extinguishers in north dakota as well as a number of different fire department. Call sales on their cell: We have access to fire truck parts and or stock most parts needed for repairs in the emergency repair industry. Aed sales & service arctic & 3m scott certified compressor services. Find out about our arctic compressor. Dakota Fire & Safety Equipment Trading.
From www.facebook.com
Rmj fire safety equipment trading Norzagaray Dakota Fire & Safety Equipment Trading Aed sales & service arctic & 3m scott certified compressor services. Call us in our office: Call sales on their cell: We can also provide you and your. We have access to fire truck parts and or stock most parts needed for repairs in the emergency repair industry. We sell and service fire extinguishers in north dakota as well as. Dakota Fire & Safety Equipment Trading.
From www.templateroller.com
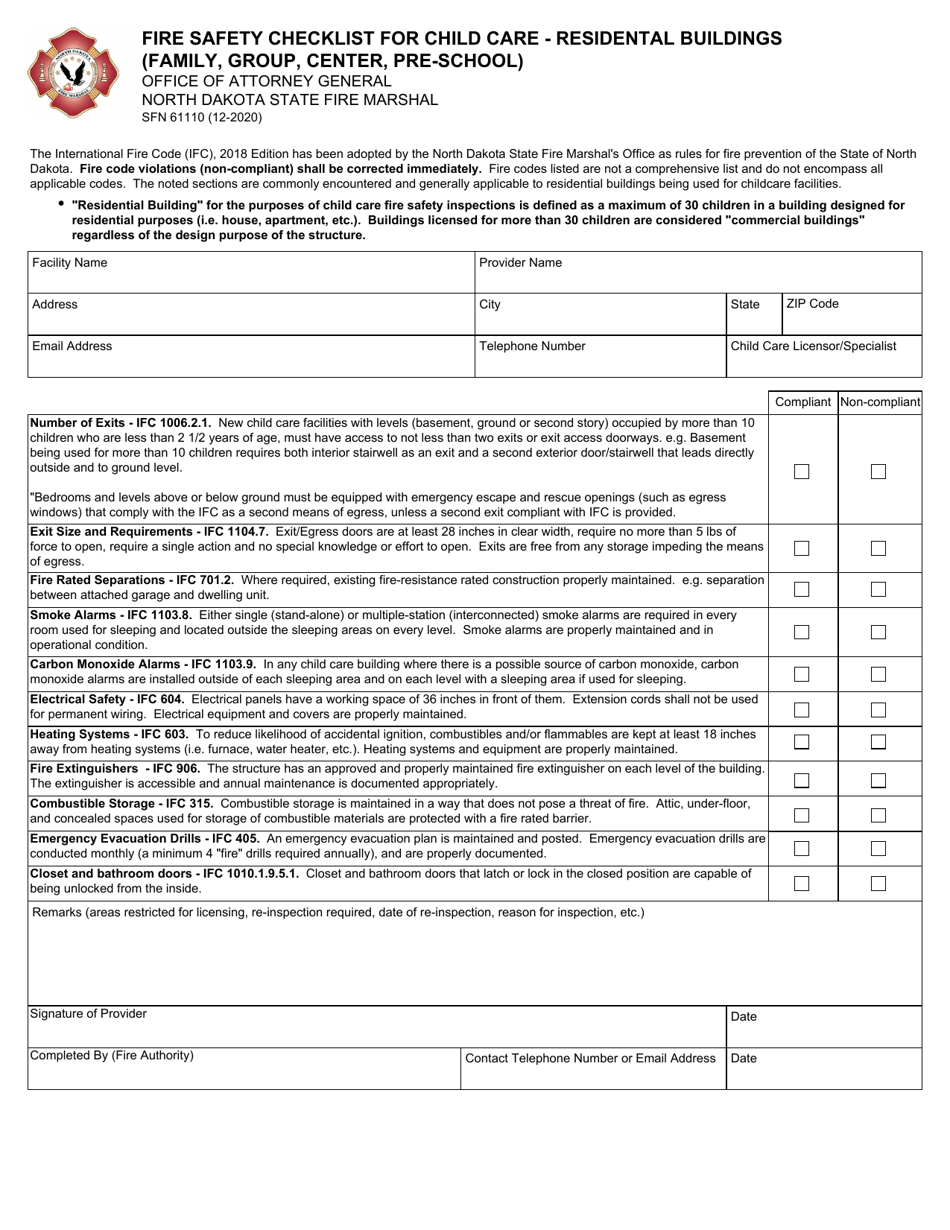
Form SFN61110 Fill Out, Sign Online and Download Fillable PDF, North Dakota Fire & Safety Equipment Trading Call us in our office: Call sales on their cell: Aed sales & service arctic & 3m scott certified compressor services. We provide sales of amerex, buckeye, and victory fire extinguishers as well as providing mobile service for all types of handheld fire extinguishers. We have access to fire truck parts and or stock most parts needed for repairs in. Dakota Fire & Safety Equipment Trading.
From manglamfire.com
Manglam Fire Protech Dakota Fire & Safety Equipment Trading We provide sales of amerex, buckeye, and victory fire extinguishers as well as providing mobile service for all types of handheld fire extinguishers. We have access to fire truck parts and or stock most parts needed for repairs in the emergency repair industry. Call us in our office: We can also provide you and your. Find out about our arctic. Dakota Fire & Safety Equipment Trading.
From vadodarahelpline.com
A Plus Fire & Safety System, Vadodara Helpline Dakota Fire & Safety Equipment Trading We sell and service fire extinguishers in north dakota as well as a number of different fire department. We provide sales of amerex, buckeye, and victory fire extinguishers as well as providing mobile service for all types of handheld fire extinguishers. Call us in our office: Find out about our arctic compressor certified dealer, dakota fire extinguishers! We have access. Dakota Fire & Safety Equipment Trading.
From www.facebook.com
Rmj fire safety equipment trading Norzagaray Dakota Fire & Safety Equipment Trading Find out about our arctic compressor certified dealer, dakota fire extinguishers! Call us in our office: We sell and service fire extinguishers in north dakota as well as a number of different fire department. Aed sales & service arctic & 3m scott certified compressor services. Call sales on their cell: We have access to fire truck parts and or stock. Dakota Fire & Safety Equipment Trading.
From weisfiresafety.com
Centerton Fire Department Weis Fire & Safety Equipment, LLC Dakota Fire & Safety Equipment Trading Find out about our arctic compressor certified dealer, dakota fire extinguishers! We provide sales of amerex, buckeye, and victory fire extinguishers as well as providing mobile service for all types of handheld fire extinguishers. Call sales on their cell: Aed sales & service arctic & 3m scott certified compressor services. We can also provide you and your. Call us in. Dakota Fire & Safety Equipment Trading.
From www.bombayfiresafety.com
Safety Products of Dealers Suppliers Ahmedabad, Gujarat Dakota Fire & Safety Equipment Trading We can also provide you and your. Call us in our office: Aed sales & service arctic & 3m scott certified compressor services. We have access to fire truck parts and or stock most parts needed for repairs in the emergency repair industry. We provide sales of amerex, buckeye, and victory fire extinguishers as well as providing mobile service for. Dakota Fire & Safety Equipment Trading.
From www.jamestownsun.com
Wildfire smoke moves across North Dakota Jamestown Sun News Dakota Fire & Safety Equipment Trading We sell and service fire extinguishers in north dakota as well as a number of different fire department. Aed sales & service arctic & 3m scott certified compressor services. Call sales on their cell: We have access to fire truck parts and or stock most parts needed for repairs in the emergency repair industry. Call us in our office: We. Dakota Fire & Safety Equipment Trading.
From www.pinterest.com
Dakota Fire Hole Explained Dakota Fire & Safety Equipment Trading We can also provide you and your. Call us in our office: We provide sales of amerex, buckeye, and victory fire extinguishers as well as providing mobile service for all types of handheld fire extinguishers. We sell and service fire extinguishers in north dakota as well as a number of different fire department. Call sales on their cell: Aed sales. Dakota Fire & Safety Equipment Trading.
From www.expertmarketresearch.com
Global Fire Safety Equipment Market Report, Size, Analysis 20212026 Dakota Fire & Safety Equipment Trading We have access to fire truck parts and or stock most parts needed for repairs in the emergency repair industry. Call us in our office: Aed sales & service arctic & 3m scott certified compressor services. We can also provide you and your. Call sales on their cell: We provide sales of amerex, buckeye, and victory fire extinguishers as well. Dakota Fire & Safety Equipment Trading.
From mazaya-fire.com
معدات مكافحة الحريق MAZAYA FIRE Dakota Fire & Safety Equipment Trading We have access to fire truck parts and or stock most parts needed for repairs in the emergency repair industry. Call sales on their cell: We provide sales of amerex, buckeye, and victory fire extinguishers as well as providing mobile service for all types of handheld fire extinguishers. We sell and service fire extinguishers in north dakota as well as. Dakota Fire & Safety Equipment Trading.
From www.indiamart.com
Fire Safety Equipment at Rs 1650 in New Delhi Dakota Fire & Safety Equipment Trading Call sales on their cell: Call us in our office: Aed sales & service arctic & 3m scott certified compressor services. We provide sales of amerex, buckeye, and victory fire extinguishers as well as providing mobile service for all types of handheld fire extinguishers. We sell and service fire extinguishers in north dakota as well as a number of different. Dakota Fire & Safety Equipment Trading.
From www.vecteezy.com
Fire fighting equipment set. Fire protection icons. Fire safety Dakota Fire & Safety Equipment Trading Call sales on their cell: We have access to fire truck parts and or stock most parts needed for repairs in the emergency repair industry. We can also provide you and your. We provide sales of amerex, buckeye, and victory fire extinguishers as well as providing mobile service for all types of handheld fire extinguishers. We sell and service fire. Dakota Fire & Safety Equipment Trading.
From www.shoutmecrunch.com
Essential Fire Safety Rules Everyone Should Know [2024] Dakota Fire & Safety Equipment Trading Find out about our arctic compressor certified dealer, dakota fire extinguishers! Call sales on their cell: Aed sales & service arctic & 3m scott certified compressor services. We have access to fire truck parts and or stock most parts needed for repairs in the emergency repair industry. Call us in our office: We can also provide you and your. We. Dakota Fire & Safety Equipment Trading.
From www.hearingfirst.org
Fire and Emergency Safety Tips for Kids with Hearing Loss Hearing Dakota Fire & Safety Equipment Trading We have access to fire truck parts and or stock most parts needed for repairs in the emergency repair industry. Find out about our arctic compressor certified dealer, dakota fire extinguishers! We can also provide you and your. Call us in our office: Call sales on their cell: We sell and service fire extinguishers in north dakota as well as. Dakota Fire & Safety Equipment Trading.
From www.pinterest.ch
Dakota fire Dakota Fire & Safety Equipment Trading Find out about our arctic compressor certified dealer, dakota fire extinguishers! We sell and service fire extinguishers in north dakota as well as a number of different fire department. We have access to fire truck parts and or stock most parts needed for repairs in the emergency repair industry. We provide sales of amerex, buckeye, and victory fire extinguishers as. Dakota Fire & Safety Equipment Trading.
From www.firesafetyequipment.co.uk
HMO Fire Safety Guide Fire Safety Equipment Dakota Fire & Safety Equipment Trading We provide sales of amerex, buckeye, and victory fire extinguishers as well as providing mobile service for all types of handheld fire extinguishers. Aed sales & service arctic & 3m scott certified compressor services. Call us in our office: We have access to fire truck parts and or stock most parts needed for repairs in the emergency repair industry. We. Dakota Fire & Safety Equipment Trading.
From www.tradefurniturecompany.co.uk
Light Dakota Fire Surround Dakota Fire & Safety Equipment Trading We sell and service fire extinguishers in north dakota as well as a number of different fire department. We provide sales of amerex, buckeye, and victory fire extinguishers as well as providing mobile service for all types of handheld fire extinguishers. Call us in our office: We can also provide you and your. Call sales on their cell: Aed sales. Dakota Fire & Safety Equipment Trading.
From www.linkedin.com
LIBERTY Fire & Safety Equipment Trading LLC on LinkedIn WES3 Flexible Dakota Fire & Safety Equipment Trading We sell and service fire extinguishers in north dakota as well as a number of different fire department. Aed sales & service arctic & 3m scott certified compressor services. Call us in our office: We provide sales of amerex, buckeye, and victory fire extinguishers as well as providing mobile service for all types of handheld fire extinguishers. We can also. Dakota Fire & Safety Equipment Trading.
From oraska.com
Fire Safety Equipments Oraska Dakota Fire & Safety Equipment Trading We have access to fire truck parts and or stock most parts needed for repairs in the emergency repair industry. We can also provide you and your. We sell and service fire extinguishers in north dakota as well as a number of different fire department. Call sales on their cell: We provide sales of amerex, buckeye, and victory fire extinguishers. Dakota Fire & Safety Equipment Trading.
From www.vrogue.co
Fire Safety Equipment vrogue.co Dakota Fire & Safety Equipment Trading We can also provide you and your. Find out about our arctic compressor certified dealer, dakota fire extinguishers! We provide sales of amerex, buckeye, and victory fire extinguishers as well as providing mobile service for all types of handheld fire extinguishers. Aed sales & service arctic & 3m scott certified compressor services. Call us in our office: We have access. Dakota Fire & Safety Equipment Trading.
From patch.com
Fire Safety Equipment Dealer USA Fire Fighting Equipment Seattle Dakota Fire & Safety Equipment Trading We sell and service fire extinguishers in north dakota as well as a number of different fire department. Find out about our arctic compressor certified dealer, dakota fire extinguishers! Call us in our office: Call sales on their cell: We can also provide you and your. We provide sales of amerex, buckeye, and victory fire extinguishers as well as providing. Dakota Fire & Safety Equipment Trading.
From www.fspaustralia.com.au
Different Fire Safety Equipment in the Oil and Chemical Industry Dakota Fire & Safety Equipment Trading Call sales on their cell: We sell and service fire extinguishers in north dakota as well as a number of different fire department. We have access to fire truck parts and or stock most parts needed for repairs in the emergency repair industry. Call us in our office: We provide sales of amerex, buckeye, and victory fire extinguishers as well. Dakota Fire & Safety Equipment Trading.
From familysurvival.com
How to build a Dakota Fire Hole (StepbyStep with Pictures) Family Dakota Fire & Safety Equipment Trading Call us in our office: Call sales on their cell: We have access to fire truck parts and or stock most parts needed for repairs in the emergency repair industry. We provide sales of amerex, buckeye, and victory fire extinguishers as well as providing mobile service for all types of handheld fire extinguishers. We can also provide you and your.. Dakota Fire & Safety Equipment Trading.
From www.capitalsolutions.pk
Fire Safety Equipment for Commercial and Residential Buildings Dakota Fire & Safety Equipment Trading We have access to fire truck parts and or stock most parts needed for repairs in the emergency repair industry. Find out about our arctic compressor certified dealer, dakota fire extinguishers! Call sales on their cell: Call us in our office: Aed sales & service arctic & 3m scott certified compressor services. We provide sales of amerex, buckeye, and victory. Dakota Fire & Safety Equipment Trading.
From www.vfp.com.au
Reasons, Why Schools Must Have Fire Safety Equipment? Blog VFP Dakota Fire & Safety Equipment Trading We sell and service fire extinguishers in north dakota as well as a number of different fire department. Aed sales & service arctic & 3m scott certified compressor services. We provide sales of amerex, buckeye, and victory fire extinguishers as well as providing mobile service for all types of handheld fire extinguishers. We can also provide you and your. We. Dakota Fire & Safety Equipment Trading.
From www.nitrofire.co.uk
Home [www.nitrofire.co.uk] Dakota Fire & Safety Equipment Trading We have access to fire truck parts and or stock most parts needed for repairs in the emergency repair industry. We sell and service fire extinguishers in north dakota as well as a number of different fire department. Aed sales & service arctic & 3m scott certified compressor services. Call us in our office: Find out about our arctic compressor. Dakota Fire & Safety Equipment Trading.
From www.linkedin.com
Announcing LIBERTY Fire & Safety Equipment Trading LLC's Exciting Dakota Fire & Safety Equipment Trading Call sales on their cell: Call us in our office: Find out about our arctic compressor certified dealer, dakota fire extinguishers! We have access to fire truck parts and or stock most parts needed for repairs in the emergency repair industry. We sell and service fire extinguishers in north dakota as well as a number of different fire department. We. Dakota Fire & Safety Equipment Trading.
From www.theworkplacedepot.co.uk
Fire Safety Equipment The Workplace Depot Dakota Fire & Safety Equipment Trading We sell and service fire extinguishers in north dakota as well as a number of different fire department. Call sales on their cell: We can also provide you and your. Aed sales & service arctic & 3m scott certified compressor services. Find out about our arctic compressor certified dealer, dakota fire extinguishers! We have access to fire truck parts and. Dakota Fire & Safety Equipment Trading.