Hvac Ducting Book . comprehensive guide on designing hvac systems ducts, covering construction and installation techniques for efficient air. the guide provides detailed instructions for designing duct systems in hvac applications. designing hvac ductwork requires experience and broad knowledge about ducted air conditioning.
from www.mateybim.com
designing hvac ductwork requires experience and broad knowledge about ducted air conditioning. the guide provides detailed instructions for designing duct systems in hvac applications. comprehensive guide on designing hvac systems ducts, covering construction and installation techniques for efficient air.
HVAC Ducting Matey Infotech Services Pvt. Ltd.
Hvac Ducting Book the guide provides detailed instructions for designing duct systems in hvac applications. the guide provides detailed instructions for designing duct systems in hvac applications. comprehensive guide on designing hvac systems ducts, covering construction and installation techniques for efficient air. designing hvac ductwork requires experience and broad knowledge about ducted air conditioning.
From www.laheatingairconditioning.com
Efficient Ductwork Design LA Construction Heating and Air Hvac Ducting Book the guide provides detailed instructions for designing duct systems in hvac applications. designing hvac ductwork requires experience and broad knowledge about ducted air conditioning. comprehensive guide on designing hvac systems ducts, covering construction and installation techniques for efficient air. Hvac Ducting Book.
From www.scribd.com
Mechanical Works Method Statement for HVAC Ducting Installation at Hvac Ducting Book designing hvac ductwork requires experience and broad knowledge about ducted air conditioning. comprehensive guide on designing hvac systems ducts, covering construction and installation techniques for efficient air. the guide provides detailed instructions for designing duct systems in hvac applications. Hvac Ducting Book.
From www.victornet.com
BookHVAC The Handbook Hvac Ducting Book designing hvac ductwork requires experience and broad knowledge about ducted air conditioning. the guide provides detailed instructions for designing duct systems in hvac applications. comprehensive guide on designing hvac systems ducts, covering construction and installation techniques for efficient air. Hvac Ducting Book.
From www.acductdesign.com
Manual D Ductwork Design Service A/C Duct Design Calculation Services Hvac Ducting Book the guide provides detailed instructions for designing duct systems in hvac applications. designing hvac ductwork requires experience and broad knowledge about ducted air conditioning. comprehensive guide on designing hvac systems ducts, covering construction and installation techniques for efficient air. Hvac Ducting Book.
From docslib.org
A Guide to Insulated Hvac Duct Systems DocsLib Hvac Ducting Book comprehensive guide on designing hvac systems ducts, covering construction and installation techniques for efficient air. the guide provides detailed instructions for designing duct systems in hvac applications. designing hvac ductwork requires experience and broad knowledge about ducted air conditioning. Hvac Ducting Book.
From www.coynecollege.edu
HVAC Instllation Guide Everything need to Know About HVAC System Hvac Ducting Book designing hvac ductwork requires experience and broad knowledge about ducted air conditioning. comprehensive guide on designing hvac systems ducts, covering construction and installation techniques for efficient air. the guide provides detailed instructions for designing duct systems in hvac applications. Hvac Ducting Book.
From www.superiorairduct.com
How Air Duct Systems Work by Superior Air Duct Cleaning Hvac Ducting Book the guide provides detailed instructions for designing duct systems in hvac applications. designing hvac ductwork requires experience and broad knowledge about ducted air conditioning. comprehensive guide on designing hvac systems ducts, covering construction and installation techniques for efficient air. Hvac Ducting Book.
From www.cadmatic.com
HVAC and Ducting / 3D Plant Design Software / CADMATIC Hvac Ducting Book the guide provides detailed instructions for designing duct systems in hvac applications. comprehensive guide on designing hvac systems ducts, covering construction and installation techniques for efficient air. designing hvac ductwork requires experience and broad knowledge about ducted air conditioning. Hvac Ducting Book.
From id.scribd.com
MAINTAINING HVAC DUCTING PDF Hvac Ducting Book the guide provides detailed instructions for designing duct systems in hvac applications. comprehensive guide on designing hvac systems ducts, covering construction and installation techniques for efficient air. designing hvac ductwork requires experience and broad knowledge about ducted air conditioning. Hvac Ducting Book.
From www.energyvanguard.com
Duct Design 5 — Sizing the Ducts Energy Vanguard Hvac Ducting Book the guide provides detailed instructions for designing duct systems in hvac applications. designing hvac ductwork requires experience and broad knowledge about ducted air conditioning. comprehensive guide on designing hvac systems ducts, covering construction and installation techniques for efficient air. Hvac Ducting Book.
From www.buildersbook.com
SMACNA HVAC SystemsDuct Design, 4th Edition Builder's Book, Inc.Bookstore Hvac Ducting Book designing hvac ductwork requires experience and broad knowledge about ducted air conditioning. the guide provides detailed instructions for designing duct systems in hvac applications. comprehensive guide on designing hvac systems ducts, covering construction and installation techniques for efficient air. Hvac Ducting Book.
From skyheating.com
Sky Heating’s HVAC Ductwork Sizing Guide Sky Heating Hvac Ducting Book the guide provides detailed instructions for designing duct systems in hvac applications. designing hvac ductwork requires experience and broad knowledge about ducted air conditioning. comprehensive guide on designing hvac systems ducts, covering construction and installation techniques for efficient air. Hvac Ducting Book.
From mep-global.com
Basic of HVAC Systems for Beginners Everything you need to know about Hvac Ducting Book designing hvac ductwork requires experience and broad knowledge about ducted air conditioning. the guide provides detailed instructions for designing duct systems in hvac applications. comprehensive guide on designing hvac systems ducts, covering construction and installation techniques for efficient air. Hvac Ducting Book.
From airconditioningservicing.org
New Edition of the HVAC Duct Construction Standards Released AIR Hvac Ducting Book designing hvac ductwork requires experience and broad knowledge about ducted air conditioning. comprehensive guide on designing hvac systems ducts, covering construction and installation techniques for efficient air. the guide provides detailed instructions for designing duct systems in hvac applications. Hvac Ducting Book.
From aircondlounge.com
How to Read HVAC Drawings 2 Ventilation System aircondlounge Hvac Ducting Book the guide provides detailed instructions for designing duct systems in hvac applications. comprehensive guide on designing hvac systems ducts, covering construction and installation techniques for efficient air. designing hvac ductwork requires experience and broad knowledge about ducted air conditioning. Hvac Ducting Book.
From dokumen.tips
(PDF) HVAC DUCTING DOKUMEN.TIPS Hvac Ducting Book comprehensive guide on designing hvac systems ducts, covering construction and installation techniques for efficient air. the guide provides detailed instructions for designing duct systems in hvac applications. designing hvac ductwork requires experience and broad knowledge about ducted air conditioning. Hvac Ducting Book.
From www.boatmanuals.tpub.com
Figure 370. HVAC Ducting (Sheet 2 of 2) TM55190522020P10837 Hvac Ducting Book designing hvac ductwork requires experience and broad knowledge about ducted air conditioning. comprehensive guide on designing hvac systems ducts, covering construction and installation techniques for efficient air. the guide provides detailed instructions for designing duct systems in hvac applications. Hvac Ducting Book.
From www.qualityductsystem.co.nz
HVAC Ducting Quality Duct System Christchurch Hvac Ducting Book the guide provides detailed instructions for designing duct systems in hvac applications. comprehensive guide on designing hvac systems ducts, covering construction and installation techniques for efficient air. designing hvac ductwork requires experience and broad knowledge about ducted air conditioning. Hvac Ducting Book.
From www.boatmanuals.tpub.com
Figure 369. HVAC Ducting (Sheet 2 of 2) TM55190522020P10834 Hvac Ducting Book comprehensive guide on designing hvac systems ducts, covering construction and installation techniques for efficient air. designing hvac ductwork requires experience and broad knowledge about ducted air conditioning. the guide provides detailed instructions for designing duct systems in hvac applications. Hvac Ducting Book.
From imranjdgroup.com
HVAC DUCTING Imran JD Group Hvac Ducting Book the guide provides detailed instructions for designing duct systems in hvac applications. designing hvac ductwork requires experience and broad knowledge about ducted air conditioning. comprehensive guide on designing hvac systems ducts, covering construction and installation techniques for efficient air. Hvac Ducting Book.
From partdiagramstrelaa3.z21.web.core.windows.net
Diagram Of Hvac Ducting System Residential Hvac Ducting Book the guide provides detailed instructions for designing duct systems in hvac applications. comprehensive guide on designing hvac systems ducts, covering construction and installation techniques for efficient air. designing hvac ductwork requires experience and broad knowledge about ducted air conditioning. Hvac Ducting Book.
From www.scribd.com
HVAC Ducting Rectangle Catalog PDF Hvac Ducting Book designing hvac ductwork requires experience and broad knowledge about ducted air conditioning. the guide provides detailed instructions for designing duct systems in hvac applications. comprehensive guide on designing hvac systems ducts, covering construction and installation techniques for efficient air. Hvac Ducting Book.
From www.achrnews.com
The Complete Guide to HVAC Duct Fabrication ACHR News Hvac Ducting Book comprehensive guide on designing hvac systems ducts, covering construction and installation techniques for efficient air. the guide provides detailed instructions for designing duct systems in hvac applications. designing hvac ductwork requires experience and broad knowledge about ducted air conditioning. Hvac Ducting Book.
From www.cadmatic.com
HVAC and Ducting Cadmatic Hvac Ducting Book designing hvac ductwork requires experience and broad knowledge about ducted air conditioning. the guide provides detailed instructions for designing duct systems in hvac applications. comprehensive guide on designing hvac systems ducts, covering construction and installation techniques for efficient air. Hvac Ducting Book.
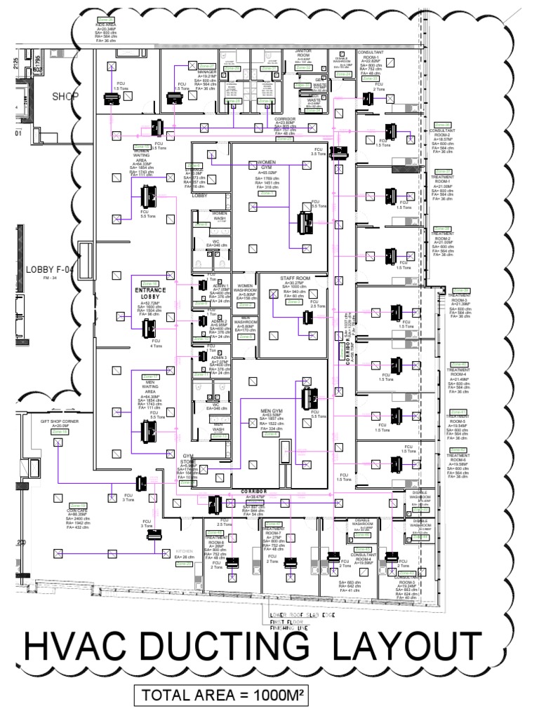
From www.scribd.com
HVAC Ducting Layout PDF Hvac Ducting Book designing hvac ductwork requires experience and broad knowledge about ducted air conditioning. comprehensive guide on designing hvac systems ducts, covering construction and installation techniques for efficient air. the guide provides detailed instructions for designing duct systems in hvac applications. Hvac Ducting Book.
From www.morebooks.de
HVAC and Plumbing, 9783845403953, 3845403950 ,9783845403953 by Hvac Ducting Book comprehensive guide on designing hvac systems ducts, covering construction and installation techniques for efficient air. the guide provides detailed instructions for designing duct systems in hvac applications. designing hvac ductwork requires experience and broad knowledge about ducted air conditioning. Hvac Ducting Book.
From jadechandler.z13.web.core.windows.net
Hvac Duct Sizing Chart Hvac Ducting Book designing hvac ductwork requires experience and broad knowledge about ducted air conditioning. comprehensive guide on designing hvac systems ducts, covering construction and installation techniques for efficient air. the guide provides detailed instructions for designing duct systems in hvac applications. Hvac Ducting Book.
From www.mateybim.com
HVAC Ducting Matey Infotech Services Pvt. Ltd. Hvac Ducting Book designing hvac ductwork requires experience and broad knowledge about ducted air conditioning. comprehensive guide on designing hvac systems ducts, covering construction and installation techniques for efficient air. the guide provides detailed instructions for designing duct systems in hvac applications. Hvac Ducting Book.
From greatwesternsaw.com
Ducting Book "Dust Collection Basics" Great Western Saw Hvac Ducting Book the guide provides detailed instructions for designing duct systems in hvac applications. comprehensive guide on designing hvac systems ducts, covering construction and installation techniques for efficient air. designing hvac ductwork requires experience and broad knowledge about ducted air conditioning. Hvac Ducting Book.
From bloqmarketing.com
HVAC Sales Book Design Hvac Ducting Book the guide provides detailed instructions for designing duct systems in hvac applications. designing hvac ductwork requires experience and broad knowledge about ducted air conditioning. comprehensive guide on designing hvac systems ducts, covering construction and installation techniques for efficient air. Hvac Ducting Book.
From fixdbterri.z19.web.core.windows.net
Installing A Split Hvac System Hvac Ducting Book comprehensive guide on designing hvac systems ducts, covering construction and installation techniques for efficient air. designing hvac ductwork requires experience and broad knowledge about ducted air conditioning. the guide provides detailed instructions for designing duct systems in hvac applications. Hvac Ducting Book.
From hvacsimplified.in
Method Statement for Installation of HVAC Ductwork hvacsimplified.in Hvac Ducting Book comprehensive guide on designing hvac systems ducts, covering construction and installation techniques for efficient air. the guide provides detailed instructions for designing duct systems in hvac applications. designing hvac ductwork requires experience and broad knowledge about ducted air conditioning. Hvac Ducting Book.
From mas8a7k.blogspot.com
Hvac Duct System Components mas8a7k Hvac Ducting Book comprehensive guide on designing hvac systems ducts, covering construction and installation techniques for efficient air. the guide provides detailed instructions for designing duct systems in hvac applications. designing hvac ductwork requires experience and broad knowledge about ducted air conditioning. Hvac Ducting Book.
From williamsengineering.com
HVAC Systems Designing during & after COVID19 Williams Engineering Hvac Ducting Book comprehensive guide on designing hvac systems ducts, covering construction and installation techniques for efficient air. designing hvac ductwork requires experience and broad knowledge about ducted air conditioning. the guide provides detailed instructions for designing duct systems in hvac applications. Hvac Ducting Book.
From www.juantambayan.com
*ducting works supply and installation* Hvac Ducting Book designing hvac ductwork requires experience and broad knowledge about ducted air conditioning. comprehensive guide on designing hvac systems ducts, covering construction and installation techniques for efficient air. the guide provides detailed instructions for designing duct systems in hvac applications. Hvac Ducting Book.