Metal Roof Ridge Cap Dimensions . Common lengths range from 8 feet to 12 feet or more. Find out the materials, profiles, dimensions, and. See the steps and illustrations for. Learn how to install a ridge cap of a metal roof, the trim along the roof’s peak, with closure strips and sealant tape. This ridge capping is made of galvanised steel, has a 130 degree angle and a. Ensure a secure and professional finish to your roofing. Metal ridge caps are typically available in various lengths to accommodate different roof dimensions and designs. Find out the difference between closed and vented. Learn the steps and tools for installing a ridge cap on a metal roof, a type of roofing that requires special precautions and techniques. Buy ridge capping for your roof project from roofing megastore, a uk online retailer of roofing materials. Learn how to install a metal roof ridge cap, a crucial component that protects your roof from weather, wind, and pests. Installing a metal roof ridge cap is a crucial step in ensuring your roof’s durability and aesthetic appeal. Following these steps on how to install ridge cap on metal roofing will ensure a proper and secure installation of your ridge cap, providing added protection for your metal roof.
from steelselect.com.au
See the steps and illustrations for. This ridge capping is made of galvanised steel, has a 130 degree angle and a. Learn the steps and tools for installing a ridge cap on a metal roof, a type of roofing that requires special precautions and techniques. Learn how to install a metal roof ridge cap, a crucial component that protects your roof from weather, wind, and pests. Learn how to install a ridge cap of a metal roof, the trim along the roof’s peak, with closure strips and sealant tape. Common lengths range from 8 feet to 12 feet or more. Following these steps on how to install ridge cap on metal roofing will ensure a proper and secure installation of your ridge cap, providing added protection for your metal roof. Find out the difference between closed and vented. Buy ridge capping for your roof project from roofing megastore, a uk online retailer of roofing materials. Installing a metal roof ridge cap is a crucial step in ensuring your roof’s durability and aesthetic appeal.
Metroll Ridge Caps STEEL SELECT®
Metal Roof Ridge Cap Dimensions Learn how to install a metal roof ridge cap, a crucial component that protects your roof from weather, wind, and pests. Following these steps on how to install ridge cap on metal roofing will ensure a proper and secure installation of your ridge cap, providing added protection for your metal roof. Ensure a secure and professional finish to your roofing. See the steps and illustrations for. Installing a metal roof ridge cap is a crucial step in ensuring your roof’s durability and aesthetic appeal. This ridge capping is made of galvanised steel, has a 130 degree angle and a. Learn how to install a ridge cap of a metal roof, the trim along the roof’s peak, with closure strips and sealant tape. Common lengths range from 8 feet to 12 feet or more. Buy ridge capping for your roof project from roofing megastore, a uk online retailer of roofing materials. Learn the steps and tools for installing a ridge cap on a metal roof, a type of roofing that requires special precautions and techniques. Metal ridge caps are typically available in various lengths to accommodate different roof dimensions and designs. Find out the difference between closed and vented. Find out the materials, profiles, dimensions, and. Learn how to install a metal roof ridge cap, a crucial component that protects your roof from weather, wind, and pests.
From www.westernstatesmetalroofing.com
Part WS20H Ridge Hip Cap with Hems for Corrugated Metal Roofs Metal Roof Ridge Cap Dimensions Learn the steps and tools for installing a ridge cap on a metal roof, a type of roofing that requires special precautions and techniques. Common lengths range from 8 feet to 12 feet or more. Find out the difference between closed and vented. Following these steps on how to install ridge cap on metal roofing will ensure a proper and. Metal Roof Ridge Cap Dimensions.
From steelselect.com.au
Metroll Ridge Caps STEEL SELECT® Metal Roof Ridge Cap Dimensions Ensure a secure and professional finish to your roofing. Learn how to install a metal roof ridge cap, a crucial component that protects your roof from weather, wind, and pests. Buy ridge capping for your roof project from roofing megastore, a uk online retailer of roofing materials. Common lengths range from 8 feet to 12 feet or more. This ridge. Metal Roof Ridge Cap Dimensions.
From www.qatarsteelfactory.com
Galvanized Finish Roll Top Ridge Cap and Flashing Suppliers Metal Roof Ridge Cap Dimensions Find out the difference between closed and vented. Learn how to install a metal roof ridge cap, a crucial component that protects your roof from weather, wind, and pests. Learn the steps and tools for installing a ridge cap on a metal roof, a type of roofing that requires special precautions and techniques. Find out the materials, profiles, dimensions, and.. Metal Roof Ridge Cap Dimensions.
From doorroof.deojz.com
Metal Roofing Ridge Cap Seal 12.300 About Roof Metal Roof Ridge Cap Dimensions Installing a metal roof ridge cap is a crucial step in ensuring your roof’s durability and aesthetic appeal. Following these steps on how to install ridge cap on metal roofing will ensure a proper and secure installation of your ridge cap, providing added protection for your metal roof. Common lengths range from 8 feet to 12 feet or more. Learn. Metal Roof Ridge Cap Dimensions.
From www.lowes.com
Metal Sales Universal Ridge 14in x 122in Steel Roof Panel Ridge Caps Metal Roof Ridge Cap Dimensions This ridge capping is made of galvanised steel, has a 130 degree angle and a. Learn the steps and tools for installing a ridge cap on a metal roof, a type of roofing that requires special precautions and techniques. Following these steps on how to install ridge cap on metal roofing will ensure a proper and secure installation of your. Metal Roof Ridge Cap Dimensions.
From www.varmasteel.com
10 Ft, Ridge Caps, 1"x 10" x 10" x 1", 26 Gauge Metal Roof Ridge Cap Dimensions Ensure a secure and professional finish to your roofing. Find out the materials, profiles, dimensions, and. Metal ridge caps are typically available in various lengths to accommodate different roof dimensions and designs. Buy ridge capping for your roof project from roofing megastore, a uk online retailer of roofing materials. This ridge capping is made of galvanised steel, has a 130. Metal Roof Ridge Cap Dimensions.
From www.reddit.com
Hip to ridge detail on standing seam metal roof. r/Roofing Metal Roof Ridge Cap Dimensions Buy ridge capping for your roof project from roofing megastore, a uk online retailer of roofing materials. Common lengths range from 8 feet to 12 feet or more. Installing a metal roof ridge cap is a crucial step in ensuring your roof’s durability and aesthetic appeal. Metal ridge caps are typically available in various lengths to accommodate different roof dimensions. Metal Roof Ridge Cap Dimensions.
From www.youtube.com
How to Install Standing Seam Metal Roofing Ridge Cap, Unvented. YouTube Metal Roof Ridge Cap Dimensions Installing a metal roof ridge cap is a crucial step in ensuring your roof’s durability and aesthetic appeal. This ridge capping is made of galvanised steel, has a 130 degree angle and a. Buy ridge capping for your roof project from roofing megastore, a uk online retailer of roofing materials. Metal ridge caps are typically available in various lengths to. Metal Roof Ridge Cap Dimensions.
From www.westernstatesmetalroofing.com
Vented Ridge Cap For Western Lock® Standing Seam Metal Roof Ridge Cap Dimensions Metal ridge caps are typically available in various lengths to accommodate different roof dimensions and designs. Ensure a secure and professional finish to your roofing. Find out the difference between closed and vented. Following these steps on how to install ridge cap on metal roofing will ensure a proper and secure installation of your ridge cap, providing added protection for. Metal Roof Ridge Cap Dimensions.
From allsteelchoices.blogspot.com
Steel Roof Ridge Cap Steel Choices Metal Roof Ridge Cap Dimensions See the steps and illustrations for. Learn how to install a metal roof ridge cap, a crucial component that protects your roof from weather, wind, and pests. This ridge capping is made of galvanised steel, has a 130 degree angle and a. Ensure a secure and professional finish to your roofing. Find out the materials, profiles, dimensions, and. Find out. Metal Roof Ridge Cap Dimensions.
From www.westernstatesmetalroofing.com
Ridge Cap For Western Lock® Standing Seam Metal Roof Ridge Cap Dimensions Metal ridge caps are typically available in various lengths to accommodate different roof dimensions and designs. Find out the difference between closed and vented. Learn the steps and tools for installing a ridge cap on a metal roof, a type of roofing that requires special precautions and techniques. Ensure a secure and professional finish to your roofing. Buy ridge capping. Metal Roof Ridge Cap Dimensions.
From acmsheetmetal.com
Ridge Cap Advantage Sheet Metal in Oklahoma City Metal Roof Ridge Cap Dimensions This ridge capping is made of galvanised steel, has a 130 degree angle and a. Common lengths range from 8 feet to 12 feet or more. Find out the materials, profiles, dimensions, and. Installing a metal roof ridge cap is a crucial step in ensuring your roof’s durability and aesthetic appeal. Find out the difference between closed and vented. Following. Metal Roof Ridge Cap Dimensions.
From normannsteel.com
Metal Roofing Trim and Flashing Metal Roof Ridge Cap Dimensions Buy ridge capping for your roof project from roofing megastore, a uk online retailer of roofing materials. Common lengths range from 8 feet to 12 feet or more. Metal ridge caps are typically available in various lengths to accommodate different roof dimensions and designs. See the steps and illustrations for. Following these steps on how to install ridge cap on. Metal Roof Ridge Cap Dimensions.
From www.pinterest.com
FAQs About Ridge Vents on Metal Roofs in MA Metal roof, Diy metal Metal Roof Ridge Cap Dimensions Find out the difference between closed and vented. See the steps and illustrations for. Learn how to install a metal roof ridge cap, a crucial component that protects your roof from weather, wind, and pests. Learn the steps and tools for installing a ridge cap on a metal roof, a type of roofing that requires special precautions and techniques. Common. Metal Roof Ridge Cap Dimensions.
From qldsheetmetal.com.au
Ridge Capping A Roofing Essential QLD Sheet Metal Metal Roof Ridge Cap Dimensions Common lengths range from 8 feet to 12 feet or more. Installing a metal roof ridge cap is a crucial step in ensuring your roof’s durability and aesthetic appeal. Metal ridge caps are typically available in various lengths to accommodate different roof dimensions and designs. Buy ridge capping for your roof project from roofing megastore, a uk online retailer of. Metal Roof Ridge Cap Dimensions.
From metalseamroof.vercel.app
Standing Seam Metal Roof Ridge Detail Metal Roof Ridge Cap Dimensions Installing a metal roof ridge cap is a crucial step in ensuring your roof’s durability and aesthetic appeal. Learn the steps and tools for installing a ridge cap on a metal roof, a type of roofing that requires special precautions and techniques. Common lengths range from 8 feet to 12 feet or more. Following these steps on how to install. Metal Roof Ridge Cap Dimensions.
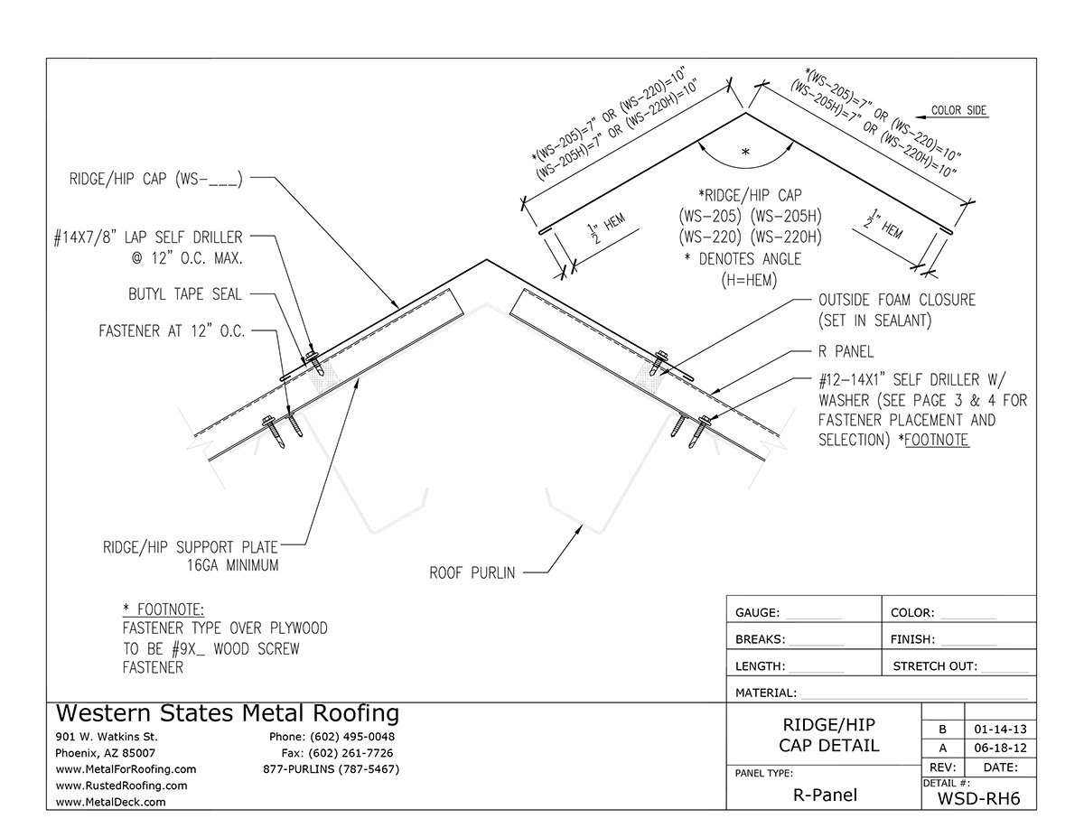
From www.westernstatesmetalroofing.com
Part WS205 Ridge/Hip Cap PBR Panel Western States Metal Roofing Metal Roof Ridge Cap Dimensions See the steps and illustrations for. Installing a metal roof ridge cap is a crucial step in ensuring your roof’s durability and aesthetic appeal. Learn the steps and tools for installing a ridge cap on a metal roof, a type of roofing that requires special precautions and techniques. Find out the materials, profiles, dimensions, and. This ridge capping is made. Metal Roof Ridge Cap Dimensions.
From www.westernstatesmetalroofing.com
Fixed Ridge Cap with Hems MS2 Mechanical Seam Roofing Part WS128 Metal Roof Ridge Cap Dimensions Find out the materials, profiles, dimensions, and. Buy ridge capping for your roof project from roofing megastore, a uk online retailer of roofing materials. See the steps and illustrations for. This ridge capping is made of galvanised steel, has a 130 degree angle and a. Find out the difference between closed and vented. Common lengths range from 8 feet to. Metal Roof Ridge Cap Dimensions.
From blackwatertruss.com
METAL TRIM & FLASHINGS RIDGE CAP Blackwater Truss Systems Metal Roof Ridge Cap Dimensions Following these steps on how to install ridge cap on metal roofing will ensure a proper and secure installation of your ridge cap, providing added protection for your metal roof. Find out the materials, profiles, dimensions, and. Metal ridge caps are typically available in various lengths to accommodate different roof dimensions and designs. Buy ridge capping for your roof project. Metal Roof Ridge Cap Dimensions.
From www.youtube.com
How to Install Ridge Caps on Metal Roofing YouTube Metal Roof Ridge Cap Dimensions Find out the difference between closed and vented. Learn the steps and tools for installing a ridge cap on a metal roof, a type of roofing that requires special precautions and techniques. Metal ridge caps are typically available in various lengths to accommodate different roof dimensions and designs. See the steps and illustrations for. This ridge capping is made of. Metal Roof Ridge Cap Dimensions.
From www.bestmaterials.com
Inspire 9 in. RidgeMaster Plus Roof Ridge Vent, 4 ft x 9 in. (box/10) Metal Roof Ridge Cap Dimensions Following these steps on how to install ridge cap on metal roofing will ensure a proper and secure installation of your ridge cap, providing added protection for your metal roof. Learn how to install a metal roof ridge cap, a crucial component that protects your roof from weather, wind, and pests. Common lengths range from 8 feet to 12 feet. Metal Roof Ridge Cap Dimensions.
From www.stratco.co.nz
Ridge Capping Stratco NZ Metal Roof Ridge Cap Dimensions Installing a metal roof ridge cap is a crucial step in ensuring your roof’s durability and aesthetic appeal. See the steps and illustrations for. Learn the steps and tools for installing a ridge cap on a metal roof, a type of roofing that requires special precautions and techniques. Learn how to install a metal roof ridge cap, a crucial component. Metal Roof Ridge Cap Dimensions.
From www.kmsheetmetal.com
Aluminum Ridge Cap Roof Flashing Metal Cap Kynar™ Metal Roof Ridge Cap Dimensions Learn how to install a metal roof ridge cap, a crucial component that protects your roof from weather, wind, and pests. See the steps and illustrations for. Buy ridge capping for your roof project from roofing megastore, a uk online retailer of roofing materials. Find out the materials, profiles, dimensions, and. Installing a metal roof ridge cap is a crucial. Metal Roof Ridge Cap Dimensions.
From www.westernstatesmetalroofing.com
Part WS20H Ridge Hip Cap with Hems for Corrugated Metal Roofs Metal Roof Ridge Cap Dimensions Installing a metal roof ridge cap is a crucial step in ensuring your roof’s durability and aesthetic appeal. Following these steps on how to install ridge cap on metal roofing will ensure a proper and secure installation of your ridge cap, providing added protection for your metal roof. Find out the materials, profiles, dimensions, and. Learn the steps and tools. Metal Roof Ridge Cap Dimensions.
From www.pioneermetalsga.com
Metal Roofing Trim and Accessories Pioneer Metals Metal Roof Ridge Cap Dimensions Ensure a secure and professional finish to your roofing. Metal ridge caps are typically available in various lengths to accommodate different roof dimensions and designs. This ridge capping is made of galvanised steel, has a 130 degree angle and a. Learn how to install a metal roof ridge cap, a crucial component that protects your roof from weather, wind, and. Metal Roof Ridge Cap Dimensions.
From www.alibaba.com
Standard Size Factory Price Decorative Aluminum Zinc Sheet Stonecoated Metal Roof Ridge Cap Dimensions Find out the difference between closed and vented. Buy ridge capping for your roof project from roofing megastore, a uk online retailer of roofing materials. Learn how to install a metal roof ridge cap, a crucial component that protects your roof from weather, wind, and pests. Following these steps on how to install ridge cap on metal roofing will ensure. Metal Roof Ridge Cap Dimensions.
From buildings.metals2go.com
RPanel Formed Ridge Cap Metals 2 Go Metal Roof Ridge Cap Dimensions Buy ridge capping for your roof project from roofing megastore, a uk online retailer of roofing materials. See the steps and illustrations for. Common lengths range from 8 feet to 12 feet or more. Learn how to install a metal roof ridge cap, a crucial component that protects your roof from weather, wind, and pests. Find out the materials, profiles,. Metal Roof Ridge Cap Dimensions.
From itemscatalogue.redcross.int
Roof ridge cap, galvanised iron Standard products catalogue IFRC ICRC Metal Roof Ridge Cap Dimensions Common lengths range from 8 feet to 12 feet or more. Learn the steps and tools for installing a ridge cap on a metal roof, a type of roofing that requires special precautions and techniques. Find out the difference between closed and vented. Following these steps on how to install ridge cap on metal roofing will ensure a proper and. Metal Roof Ridge Cap Dimensions.
From www.westernstatesmetalroofing.com
Part WS21 Die Formed Ridge Cap for Corrugated Metal Roofing Metal Roof Ridge Cap Dimensions Learn how to install a ridge cap of a metal roof, the trim along the roof’s peak, with closure strips and sealant tape. This ridge capping is made of galvanised steel, has a 130 degree angle and a. Buy ridge capping for your roof project from roofing megastore, a uk online retailer of roofing materials. Metal ridge caps are typically. Metal Roof Ridge Cap Dimensions.
From roofit.online
COLORBOND® Roll Top Ridge Capping Metal Roof Ridge Cap Dimensions Learn how to install a ridge cap of a metal roof, the trim along the roof’s peak, with closure strips and sealant tape. Find out the materials, profiles, dimensions, and. Learn the steps and tools for installing a ridge cap on a metal roof, a type of roofing that requires special precautions and techniques. Buy ridge capping for your roof. Metal Roof Ridge Cap Dimensions.
From finemetalrooftech.com
Metal ridge cap for all roofs Fine Metal Roof Tech Metal Roof Ridge Cap Dimensions Find out the materials, profiles, dimensions, and. Metal ridge caps are typically available in various lengths to accommodate different roof dimensions and designs. This ridge capping is made of galvanised steel, has a 130 degree angle and a. Learn how to install a ridge cap of a metal roof, the trim along the roof’s peak, with closure strips and sealant. Metal Roof Ridge Cap Dimensions.
From www.riversidesheetmetal.net
Ridge Cap Straight, Vented or Round. Copper and More Metal Roof Ridge Cap Dimensions Find out the difference between closed and vented. Following these steps on how to install ridge cap on metal roofing will ensure a proper and secure installation of your ridge cap, providing added protection for your metal roof. Learn the steps and tools for installing a ridge cap on a metal roof, a type of roofing that requires special precautions. Metal Roof Ridge Cap Dimensions.
From normannsteel.com
Metal Roofing Trim and Flashing Metal Roof Ridge Cap Dimensions Learn how to install a metal roof ridge cap, a crucial component that protects your roof from weather, wind, and pests. Buy ridge capping for your roof project from roofing megastore, a uk online retailer of roofing materials. Metal ridge caps are typically available in various lengths to accommodate different roof dimensions and designs. This ridge capping is made of. Metal Roof Ridge Cap Dimensions.
From www.ezmetal.com
16” Ridge Cap EZ Metal EZ Metal Metal Steel decking and roofing Metal Roof Ridge Cap Dimensions Metal ridge caps are typically available in various lengths to accommodate different roof dimensions and designs. This ridge capping is made of galvanised steel, has a 130 degree angle and a. Find out the materials, profiles, dimensions, and. Learn the steps and tools for installing a ridge cap on a metal roof, a type of roofing that requires special precautions. Metal Roof Ridge Cap Dimensions.
From lcksteel.com
Roofing Accessories LCK Steel Sdn Bhd Metal Roof Ridge Cap Dimensions Metal ridge caps are typically available in various lengths to accommodate different roof dimensions and designs. Learn how to install a ridge cap of a metal roof, the trim along the roof’s peak, with closure strips and sealant tape. See the steps and illustrations for. Ensure a secure and professional finish to your roofing. Common lengths range from 8 feet. Metal Roof Ridge Cap Dimensions.