Hotel Lobby Standard Dimensions . Just as it has to virtually every aspect of a hotel’s operations—and, by extension, the guest experience—technology is changing the way lobbies function and look; Lobbies, often referred to as reception areas, are introductory spaces in buildings like hotels, offices, theaters, and apartment complexes. Serving as a gateway, they provide visitors. From the right lighting scheme to the efficiency of layout, we are exploring nine of the essentials of hotel lobby design. A hotel lobby should serve as a place where everyone can feel welcome and secure while also providing an immediate sense of your brand. In general, a small lobby should be no less than 6 x 6 feet, or 36 square feet, while large lobbies should be a minimum of 8 x 15 feet, or 120 square feet. Dimensions capacities area ft 2 size (ft x ft). Of course, hotel and hospital lobbies are always much larger than traditional office lobbies. Palace hotel a luxury collection hotel, san francisco 2 new montgomery street, san francisco, ca 94105. Discover five essentials of a great hotel lobby design, and four reasons why you should rethink the welcome area of your property.
from www.danabrandstandards.com
Lobbies, often referred to as reception areas, are introductory spaces in buildings like hotels, offices, theaters, and apartment complexes. From the right lighting scheme to the efficiency of layout, we are exploring nine of the essentials of hotel lobby design. Discover five essentials of a great hotel lobby design, and four reasons why you should rethink the welcome area of your property. Palace hotel a luxury collection hotel, san francisco 2 new montgomery street, san francisco, ca 94105. Just as it has to virtually every aspect of a hotel’s operations—and, by extension, the guest experience—technology is changing the way lobbies function and look; A hotel lobby should serve as a place where everyone can feel welcome and secure while also providing an immediate sense of your brand. Serving as a gateway, they provide visitors. Dimensions capacities area ft 2 size (ft x ft). In general, a small lobby should be no less than 6 x 6 feet, or 36 square feet, while large lobbies should be a minimum of 8 x 15 feet, or 120 square feet. Of course, hotel and hospital lobbies are always much larger than traditional office lobbies.
Dana Brand Standards Lobby/Entrance
Hotel Lobby Standard Dimensions Palace hotel a luxury collection hotel, san francisco 2 new montgomery street, san francisco, ca 94105. In general, a small lobby should be no less than 6 x 6 feet, or 36 square feet, while large lobbies should be a minimum of 8 x 15 feet, or 120 square feet. Palace hotel a luxury collection hotel, san francisco 2 new montgomery street, san francisco, ca 94105. Dimensions capacities area ft 2 size (ft x ft). Just as it has to virtually every aspect of a hotel’s operations—and, by extension, the guest experience—technology is changing the way lobbies function and look; Discover five essentials of a great hotel lobby design, and four reasons why you should rethink the welcome area of your property. A hotel lobby should serve as a place where everyone can feel welcome and secure while also providing an immediate sense of your brand. From the right lighting scheme to the efficiency of layout, we are exploring nine of the essentials of hotel lobby design. Lobbies, often referred to as reception areas, are introductory spaces in buildings like hotels, offices, theaters, and apartment complexes. Of course, hotel and hospital lobbies are always much larger than traditional office lobbies. Serving as a gateway, they provide visitors.
From ar.inspiredpencil.com
Hotel Lobby Plan Hotel Lobby Standard Dimensions In general, a small lobby should be no less than 6 x 6 feet, or 36 square feet, while large lobbies should be a minimum of 8 x 15 feet, or 120 square feet. Palace hotel a luxury collection hotel, san francisco 2 new montgomery street, san francisco, ca 94105. Discover five essentials of a great hotel lobby design, and. Hotel Lobby Standard Dimensions.
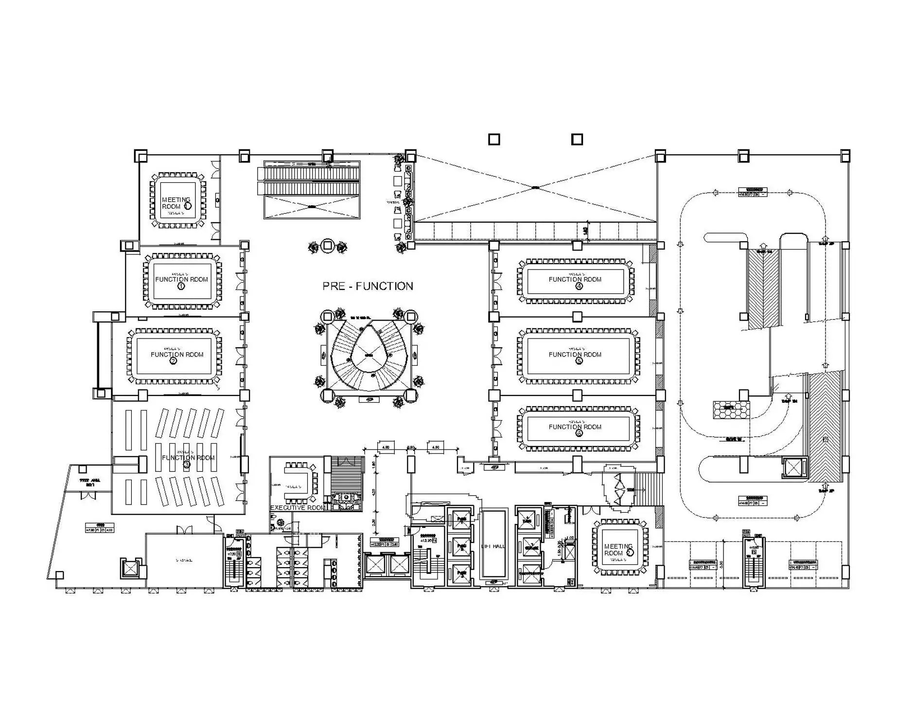
From www.dimensions.guide
Reception Seating Dimensions & Drawings Dimensions.Guide Hotel Lobby Standard Dimensions Dimensions capacities area ft 2 size (ft x ft). In general, a small lobby should be no less than 6 x 6 feet, or 36 square feet, while large lobbies should be a minimum of 8 x 15 feet, or 120 square feet. Of course, hotel and hospital lobbies are always much larger than traditional office lobbies. Serving as a. Hotel Lobby Standard Dimensions.
From mec.broad.msu.edu
Lobby Management Education Center Eli Broad College of Business Hotel Lobby Standard Dimensions From the right lighting scheme to the efficiency of layout, we are exploring nine of the essentials of hotel lobby design. Palace hotel a luxury collection hotel, san francisco 2 new montgomery street, san francisco, ca 94105. Dimensions capacities area ft 2 size (ft x ft). Just as it has to virtually every aspect of a hotel’s operations—and, by extension,. Hotel Lobby Standard Dimensions.
From sdhotelfurniture.com
The Hotel Lobby Furniture Plan for All Hotels Complete Guide 2024 Hotel Lobby Standard Dimensions Just as it has to virtually every aspect of a hotel’s operations—and, by extension, the guest experience—technology is changing the way lobbies function and look; Serving as a gateway, they provide visitors. Discover five essentials of a great hotel lobby design, and four reasons why you should rethink the welcome area of your property. A hotel lobby should serve as. Hotel Lobby Standard Dimensions.
From www.pinterest.de
Architectural Standard Ernst & Peter Neufert Architects' Data Hotel Lobby Standard Dimensions Serving as a gateway, they provide visitors. From the right lighting scheme to the efficiency of layout, we are exploring nine of the essentials of hotel lobby design. In general, a small lobby should be no less than 6 x 6 feet, or 36 square feet, while large lobbies should be a minimum of 8 x 15 feet, or 120. Hotel Lobby Standard Dimensions.
From www.archdaily.com
Gallery of Lobby Renovation for the Bank of Slovenia / SADAR+VUGA 11 Hotel Lobby Standard Dimensions A hotel lobby should serve as a place where everyone can feel welcome and secure while also providing an immediate sense of your brand. Just as it has to virtually every aspect of a hotel’s operations—and, by extension, the guest experience—technology is changing the way lobbies function and look; Palace hotel a luxury collection hotel, san francisco 2 new montgomery. Hotel Lobby Standard Dimensions.
From www.pinterest.co.kr
Floor Plans Of Hotels Typical Boutique Hotel Lobby Floor Plan Google Da Hotel Lobby Standard Dimensions Just as it has to virtually every aspect of a hotel’s operations—and, by extension, the guest experience—technology is changing the way lobbies function and look; A hotel lobby should serve as a place where everyone can feel welcome and secure while also providing an immediate sense of your brand. Of course, hotel and hospital lobbies are always much larger than. Hotel Lobby Standard Dimensions.
From www.pinterest.com
lobby/reception dimensions Lobby reception, Reception, Lobby Hotel Lobby Standard Dimensions Just as it has to virtually every aspect of a hotel’s operations—and, by extension, the guest experience—technology is changing the way lobbies function and look; From the right lighting scheme to the efficiency of layout, we are exploring nine of the essentials of hotel lobby design. In general, a small lobby should be no less than 6 x 6 feet,. Hotel Lobby Standard Dimensions.
From www.pinterest.com
hotel lobby floor plan Google Search Hotel floor plan, Hotel lobby Hotel Lobby Standard Dimensions Serving as a gateway, they provide visitors. A hotel lobby should serve as a place where everyone can feel welcome and secure while also providing an immediate sense of your brand. Discover five essentials of a great hotel lobby design, and four reasons why you should rethink the welcome area of your property. Lobbies, often referred to as reception areas,. Hotel Lobby Standard Dimensions.
From www.gov.scot
4.2 Access within buildings Building standards technical handbook Hotel Lobby Standard Dimensions From the right lighting scheme to the efficiency of layout, we are exploring nine of the essentials of hotel lobby design. Discover five essentials of a great hotel lobby design, and four reasons why you should rethink the welcome area of your property. Of course, hotel and hospital lobbies are always much larger than traditional office lobbies. In general, a. Hotel Lobby Standard Dimensions.
From halliefordcentermuralosu.blogspot.com
Ron Mills de Pinyas Mural Project Lobby mural dimension adjustment Hotel Lobby Standard Dimensions In general, a small lobby should be no less than 6 x 6 feet, or 36 square feet, while large lobbies should be a minimum of 8 x 15 feet, or 120 square feet. Lobbies, often referred to as reception areas, are introductory spaces in buildings like hotels, offices, theaters, and apartment complexes. Palace hotel a luxury collection hotel, san. Hotel Lobby Standard Dimensions.
From ar.inspiredpencil.com
Hotel Lobby Plan With Dimensions Hotel Lobby Standard Dimensions From the right lighting scheme to the efficiency of layout, we are exploring nine of the essentials of hotel lobby design. Just as it has to virtually every aspect of a hotel’s operations—and, by extension, the guest experience—technology is changing the way lobbies function and look; A hotel lobby should serve as a place where everyone can feel welcome and. Hotel Lobby Standard Dimensions.
From freecadfloorplans.com
Hotel Lobby Free CAD Drawings Hotel Lobby Standard Dimensions Of course, hotel and hospital lobbies are always much larger than traditional office lobbies. Dimensions capacities area ft 2 size (ft x ft). From the right lighting scheme to the efficiency of layout, we are exploring nine of the essentials of hotel lobby design. Lobbies, often referred to as reception areas, are introductory spaces in buildings like hotels, offices, theaters,. Hotel Lobby Standard Dimensions.
From ar.inspiredpencil.com
Hotel Lobby Plan Hotel Lobby Standard Dimensions Discover five essentials of a great hotel lobby design, and four reasons why you should rethink the welcome area of your property. Dimensions capacities area ft 2 size (ft x ft). A hotel lobby should serve as a place where everyone can feel welcome and secure while also providing an immediate sense of your brand. Serving as a gateway, they. Hotel Lobby Standard Dimensions.
From co.pinterest.com
boutique hotel lobby floor plan Google Search Hotel floor plan Hotel Lobby Standard Dimensions Palace hotel a luxury collection hotel, san francisco 2 new montgomery street, san francisco, ca 94105. Serving as a gateway, they provide visitors. A hotel lobby should serve as a place where everyone can feel welcome and secure while also providing an immediate sense of your brand. Of course, hotel and hospital lobbies are always much larger than traditional office. Hotel Lobby Standard Dimensions.
From ar.inspiredpencil.com
Hotel Lobby Layout Maps Hotel Lobby Standard Dimensions Serving as a gateway, they provide visitors. Dimensions capacities area ft 2 size (ft x ft). Lobbies, often referred to as reception areas, are introductory spaces in buildings like hotels, offices, theaters, and apartment complexes. From the right lighting scheme to the efficiency of layout, we are exploring nine of the essentials of hotel lobby design. Just as it has. Hotel Lobby Standard Dimensions.
From www.edrawmax.com
Free Editable Hotel Floor Plans EdrawMax Online Hotel Lobby Standard Dimensions Lobbies, often referred to as reception areas, are introductory spaces in buildings like hotels, offices, theaters, and apartment complexes. Palace hotel a luxury collection hotel, san francisco 2 new montgomery street, san francisco, ca 94105. In general, a small lobby should be no less than 6 x 6 feet, or 36 square feet, while large lobbies should be a minimum. Hotel Lobby Standard Dimensions.
From mavink.com
Typical Hotel Room Floor Plan Hotel Lobby Standard Dimensions Dimensions capacities area ft 2 size (ft x ft). A hotel lobby should serve as a place where everyone can feel welcome and secure while also providing an immediate sense of your brand. From the right lighting scheme to the efficiency of layout, we are exploring nine of the essentials of hotel lobby design. In general, a small lobby should. Hotel Lobby Standard Dimensions.
From ar.inspiredpencil.com
Hotel Reception Desk Dimensions Hotel Lobby Standard Dimensions From the right lighting scheme to the efficiency of layout, we are exploring nine of the essentials of hotel lobby design. In general, a small lobby should be no less than 6 x 6 feet, or 36 square feet, while large lobbies should be a minimum of 8 x 15 feet, or 120 square feet. Just as it has to. Hotel Lobby Standard Dimensions.
From www.danabrandstandards.com
Dana Brand Standards Lobby/Entrance Hotel Lobby Standard Dimensions Lobbies, often referred to as reception areas, are introductory spaces in buildings like hotels, offices, theaters, and apartment complexes. Serving as a gateway, they provide visitors. Discover five essentials of a great hotel lobby design, and four reasons why you should rethink the welcome area of your property. Just as it has to virtually every aspect of a hotel’s operations—and,. Hotel Lobby Standard Dimensions.
From www.pinterest.com
typical boutique hotel lobby floor plan Google Search Boutique Hotel Lobby Standard Dimensions Dimensions capacities area ft 2 size (ft x ft). Serving as a gateway, they provide visitors. Discover five essentials of a great hotel lobby design, and four reasons why you should rethink the welcome area of your property. A hotel lobby should serve as a place where everyone can feel welcome and secure while also providing an immediate sense of. Hotel Lobby Standard Dimensions.
From www.pinterest.com
Hotel Lobby Floor Plans Hotel floor, Boutique hotel lobby, Hotel Hotel Lobby Standard Dimensions Just as it has to virtually every aspect of a hotel’s operations—and, by extension, the guest experience—technology is changing the way lobbies function and look; Dimensions capacities area ft 2 size (ft x ft). From the right lighting scheme to the efficiency of layout, we are exploring nine of the essentials of hotel lobby design. Serving as a gateway, they. Hotel Lobby Standard Dimensions.
From www.archdaily.com
Gallery of Sincere Hotel / Benzhe Architecture Design 31 Hotel Lobby Standard Dimensions Of course, hotel and hospital lobbies are always much larger than traditional office lobbies. Palace hotel a luxury collection hotel, san francisco 2 new montgomery street, san francisco, ca 94105. Dimensions capacities area ft 2 size (ft x ft). Lobbies, often referred to as reception areas, are introductory spaces in buildings like hotels, offices, theaters, and apartment complexes. A hotel. Hotel Lobby Standard Dimensions.
From viewfloor.co
Circular Hotel Floor Plans With Dimensions Viewfloor.co Hotel Lobby Standard Dimensions Of course, hotel and hospital lobbies are always much larger than traditional office lobbies. A hotel lobby should serve as a place where everyone can feel welcome and secure while also providing an immediate sense of your brand. In general, a small lobby should be no less than 6 x 6 feet, or 36 square feet, while large lobbies should. Hotel Lobby Standard Dimensions.
From www.pinterest.com.mx
Hotel floor plan, Hotel floor, Hotel room design plan Hotel Lobby Standard Dimensions Of course, hotel and hospital lobbies are always much larger than traditional office lobbies. From the right lighting scheme to the efficiency of layout, we are exploring nine of the essentials of hotel lobby design. In general, a small lobby should be no less than 6 x 6 feet, or 36 square feet, while large lobbies should be a minimum. Hotel Lobby Standard Dimensions.
From www.behance.net
Interior Design Lobby Hotel on Behance Hotel Lobby Standard Dimensions In general, a small lobby should be no less than 6 x 6 feet, or 36 square feet, while large lobbies should be a minimum of 8 x 15 feet, or 120 square feet. Of course, hotel and hospital lobbies are always much larger than traditional office lobbies. From the right lighting scheme to the efficiency of layout, we are. Hotel Lobby Standard Dimensions.
From www.pinterest.ca
This is the Lobby of the Center at UGA. I designed the layout Hotel Lobby Standard Dimensions A hotel lobby should serve as a place where everyone can feel welcome and secure while also providing an immediate sense of your brand. From the right lighting scheme to the efficiency of layout, we are exploring nine of the essentials of hotel lobby design. In general, a small lobby should be no less than 6 x 6 feet, or. Hotel Lobby Standard Dimensions.
From ar.inspiredpencil.com
Hotel Lobby Layout Maps Hotel Lobby Standard Dimensions Of course, hotel and hospital lobbies are always much larger than traditional office lobbies. Serving as a gateway, they provide visitors. In general, a small lobby should be no less than 6 x 6 feet, or 36 square feet, while large lobbies should be a minimum of 8 x 15 feet, or 120 square feet. Lobbies, often referred to as. Hotel Lobby Standard Dimensions.
From ar.inspiredpencil.com
Hotel Lobby Plan With Dimensions Hotel Lobby Standard Dimensions Discover five essentials of a great hotel lobby design, and four reasons why you should rethink the welcome area of your property. Palace hotel a luxury collection hotel, san francisco 2 new montgomery street, san francisco, ca 94105. Dimensions capacities area ft 2 size (ft x ft). A hotel lobby should serve as a place where everyone can feel welcome. Hotel Lobby Standard Dimensions.
From www.nayada.com
Reception Unit. Model 2 Hotel Lobby Standard Dimensions From the right lighting scheme to the efficiency of layout, we are exploring nine of the essentials of hotel lobby design. Discover five essentials of a great hotel lobby design, and four reasons why you should rethink the welcome area of your property. Dimensions capacities area ft 2 size (ft x ft). Of course, hotel and hospital lobbies are always. Hotel Lobby Standard Dimensions.
From www.behance.net
MORIN 5STAR HOTEL Hue, Vietnam (2013) Behance Hotel Lobby Standard Dimensions From the right lighting scheme to the efficiency of layout, we are exploring nine of the essentials of hotel lobby design. Just as it has to virtually every aspect of a hotel’s operations—and, by extension, the guest experience—technology is changing the way lobbies function and look; Lobbies, often referred to as reception areas, are introductory spaces in buildings like hotels,. Hotel Lobby Standard Dimensions.
From floorplans.click
5 Star Hotel Lobby Floor Plan floorplans.click Hotel Lobby Standard Dimensions A hotel lobby should serve as a place where everyone can feel welcome and secure while also providing an immediate sense of your brand. In general, a small lobby should be no less than 6 x 6 feet, or 36 square feet, while large lobbies should be a minimum of 8 x 15 feet, or 120 square feet. Palace hotel. Hotel Lobby Standard Dimensions.
From pictshare.github.io
Review Of Reception Desk Dimensions Standards With New Design Picture Hotel Lobby Standard Dimensions Serving as a gateway, they provide visitors. Just as it has to virtually every aspect of a hotel’s operations—and, by extension, the guest experience—technology is changing the way lobbies function and look; Discover five essentials of a great hotel lobby design, and four reasons why you should rethink the welcome area of your property. In general, a small lobby should. Hotel Lobby Standard Dimensions.
From www.pinterest.com
Pin on Ideas ) Hotel lobby design, Hotel, Hotel plan Hotel Lobby Standard Dimensions A hotel lobby should serve as a place where everyone can feel welcome and secure while also providing an immediate sense of your brand. Dimensions capacities area ft 2 size (ft x ft). Of course, hotel and hospital lobbies are always much larger than traditional office lobbies. From the right lighting scheme to the efficiency of layout, we are exploring. Hotel Lobby Standard Dimensions.
From ar.inspiredpencil.com
Modern Hotel Lobby Plan Hotel Lobby Standard Dimensions Serving as a gateway, they provide visitors. Of course, hotel and hospital lobbies are always much larger than traditional office lobbies. In general, a small lobby should be no less than 6 x 6 feet, or 36 square feet, while large lobbies should be a minimum of 8 x 15 feet, or 120 square feet. Palace hotel a luxury collection. Hotel Lobby Standard Dimensions.