Minnesota Vacant Land Purchase Agreement Form . land purchase agreement 1. Prospective buyers can use this form to submit an. how to find professional legal forms compliant with your state laws and prepare the minnesota purchase agreement for. A minnesota land purchase agreement is a legally binding document used to transfer. The parties this land purchase agreement (hereinafter, the “agreement”) is entered. a land purchase agreement defines important terms in a real estate transaction between the buyer and seller. minnesota land purchase agreement. Edit or convert your minnesota. the acceptance date of this purchase agreement is the date it is delivered by the last party signing to the other 20 party. This minnesota land purchase and sale contract. minnesota standard residential purchase agreement. Copyright 1997, 2008 by minnesota state bar. the minnesota land purchase agreement form is a legally binding document that outlines the terms and conditions of the. a revolutionary tool to edit and create minnesota vacant land purchase agreement form. a minnesota land contract is a legally binding document used to transfer ownership of vacant land between two parties.
from templatelab.com
a minnesota purchase agreement records the negotiated terms of a real estate transaction. land purchase agreement 1. a land purchase agreement defines important terms in a real estate transaction between the buyer and seller. minnesota standard residential purchase agreement. land purchase agreements serve as valuable tools for both individuals and businesses involved in the sale and purchase of land. purchase agreement, vacant land, residential development (downloadable pdf) form #: Copyright 1997, 2008 by minnesota state bar. This minnesota land purchase and sale contract. A minnesota land purchase agreement is a legally binding document used to transfer. Prospective buyers can use this form to submit an.
37 FREE Land Lease Agreements [Word & PDF] ᐅ TemplateLab
Minnesota Vacant Land Purchase Agreement Form This real estate purchase agreement (this “agreement”) is entered. the minnesota land purchase agreement form is a legally binding document that outlines the terms and conditions of the. how to find professional legal forms compliant with your state laws and prepare the minnesota purchase agreement for. This purchase agreement is made on __________ day of ________________,. a minnesota agreement contract for vacant land should include details about the parties involved, description and boundaries of. a minnesota agreement form for vacant land is a legal document that outlines the terms and conditions of an agreement between. land purchase agreements serve as valuable tools for both individuals and businesses involved in the sale and purchase of land. Copyright 1997, 2008 by minnesota state bar. Edit or convert your minnesota. land purchase agreement 1. amended and restated purchase agreement this amended and restated purchase agreement (this “ agreement. a minnesota purchase agreement records the negotiated terms of a real estate transaction. a land purchase agreement defines important terms in a real estate transaction between the buyer and seller. Prospective buyers can use this form to submit an. minnesota standard residential purchase agreement. minnesota land purchase agreement.
From www.sampleforms.com
FREE 8+ Land Purchase Agreement Forms in PDF MS Word Minnesota Vacant Land Purchase Agreement Form how to find professional legal forms compliant with your state laws and prepare the minnesota purchase agreement for. the minnesota land purchase agreement form is a legally binding document that outlines the terms and conditions of the. minnesota land purchase and sale contract i. a land purchase agreement defines important terms in a real estate transaction. Minnesota Vacant Land Purchase Agreement Form.
From www.signnow.com
Vacant Land Sales Contract Real Estate 20062024 Form Fill Out and Minnesota Vacant Land Purchase Agreement Form a revolutionary tool to edit and create minnesota vacant land purchase agreement form. minnesota land purchase agreement. This purchase agreement is made on __________ day of ________________,. Copyright 1997, 2008 by minnesota state bar. how to find professional legal forms compliant with your state laws and prepare the minnesota purchase agreement for. the minnesota land purchase. Minnesota Vacant Land Purchase Agreement Form.
From legaltemplates.net
Free Land Purchase Agreement Form PDF & Word Minnesota Vacant Land Purchase Agreement Form minnesota real estate purchase agreement. minnesota land purchase agreement. the acceptance date of this purchase agreement is the date it is delivered by the last party signing to the other 20 party. Prospective buyers can use this form to submit an. vacant land purchase agreement. a minnesota land contract is a legally binding document used. Minnesota Vacant Land Purchase Agreement Form.
From www.uslegalforms.com
VACANT LAND REAL ESTATE SALE AGREEMENT 2020 Fill and Sign Printable Minnesota Vacant Land Purchase Agreement Form amended and restated purchase agreement this amended and restated purchase agreement (this “ agreement. how to find professional legal forms compliant with your state laws and prepare the minnesota purchase agreement for. This real estate purchase agreement (this “agreement”) is entered. the acceptance date of this purchase agreement is the date it is delivered by the last. Minnesota Vacant Land Purchase Agreement Form.
From www.sampleforms.com
FREE 8+ Sample Land Purchase Agreement Forms in PDF MS Word Minnesota Vacant Land Purchase Agreement Form land purchase agreement 1. Prospective buyers can use this form to submit an. vacant land purchase agreement. This minnesota land purchase and sale contract. the purchase agreement for vacant land informed annotated legal document with eformbook is drafted by a. minnesota real estate purchase agreement. a minnesota land contract is a legally binding document used. Minnesota Vacant Land Purchase Agreement Form.
From www.dochub.com
Simple land sale contract Fill out & sign online DocHub Minnesota Vacant Land Purchase Agreement Form the minnesota land purchase agreement form is a legally binding document that outlines the terms and conditions of the. This purchase agreement is made on __________ day of ________________,. Edit or convert your minnesota. a minnesota agreement form for vacant land is a legal document that outlines the terms and conditions of an agreement between. The parties this. Minnesota Vacant Land Purchase Agreement Form.
From eforms.com
Free Florida Land Contract Template PDF Word eForms Minnesota Vacant Land Purchase Agreement Form the minnesota land purchase agreement form is a legally binding document that outlines the terms and conditions of the. minnesota real estate purchase agreement. a minnesota purchase agreement records the negotiated terms of a real estate transaction. Prospective buyers can use this form to submit an. A minnesota land purchase agreement is a legally binding document used. Minnesota Vacant Land Purchase Agreement Form.
From www.signnow.com
Wb 13 Vacant Land Offer to Purchase airSlate SignNow Minnesota Vacant Land Purchase Agreement Form a minnesota agreement form for vacant land is a legal document that outlines the terms and conditions of an agreement between. a land purchase agreement defines important terms in a real estate transaction between the buyer and seller. a revolutionary tool to edit and create minnesota vacant land purchase agreement form. amended and restated purchase agreement. Minnesota Vacant Land Purchase Agreement Form.
From www.uslegalforms.com
OH Vacant Land Purchase Agreement 2000 Fill and Sign Printable Minnesota Vacant Land Purchase Agreement Form land purchase agreement 1. a minnesota agreement contract for vacant land should include details about the parties involved, description and boundaries of. the purchase agreement for vacant land informed annotated legal document with eformbook is drafted by a. a revolutionary tool to edit and create minnesota vacant land purchase agreement form. This purchase agreement is made. Minnesota Vacant Land Purchase Agreement Form.
From eforms.com
Free Wisconsin Land Contract Template PDF Word eForms Minnesota Vacant Land Purchase Agreement Form a minnesota agreement form for vacant land is a legal document that outlines the terms and conditions of an agreement between. the purchase agreement for vacant land informed annotated legal document with eformbook is drafted by a. a minnesota agreement contract for vacant land should include details about the parties involved, description and boundaries of. the. Minnesota Vacant Land Purchase Agreement Form.
From aznswerzoneayemilliaries.z13.web.core.windows.net
Printable Purchase Agreement Pdf Minnesota Vacant Land Purchase Agreement Form purchase agreement, vacant land, residential development (downloadable pdf) form #: This purchase agreement is made on __________ day of ________________,. minnesota standard residential purchase agreement. minnesota land purchase and sale contract i. land purchase agreements serve as valuable tools for both individuals and businesses involved in the sale and purchase of land. the purchase agreement. Minnesota Vacant Land Purchase Agreement Form.
From doctemplates.us
Lease To Buy Agreement Template DocTemplates Minnesota Vacant Land Purchase Agreement Form the minnesota land purchase agreement form is a legally binding document that outlines the terms and conditions of the. a minnesota agreement contract for vacant land should include details about the parties involved, description and boundaries of. land purchase agreement 1. minnesota standard residential purchase agreement. a minnesota agreement form for vacant land is a. Minnesota Vacant Land Purchase Agreement Form.
From vacant-land-purchase.pdffiller.com
Vacant Land Purchase And Sale Agreement Fill Online, Printable Minnesota Vacant Land Purchase Agreement Form the minnesota land purchase agreement form is a legally binding document that outlines the terms and conditions of the. minnesota land purchase agreement. The parties this land purchase agreement (hereinafter, the “agreement”) is entered. how to find professional legal forms compliant with your state laws and prepare the minnesota purchase agreement for. amended and restated purchase. Minnesota Vacant Land Purchase Agreement Form.
From whoamuu.blogspot.com
Terms Of Use Agreement Template Land HQ Printable Documents Minnesota Vacant Land Purchase Agreement Form the minnesota land purchase agreement form is a legally binding document that outlines the terms and conditions of the. minnesota standard residential purchase agreement. a revolutionary tool to edit and create minnesota vacant land purchase agreement form. minnesota land purchase agreement. This purchase agreement is made on __________ day of ________________,. the acceptance date of. Minnesota Vacant Land Purchase Agreement Form.
From eforms.com
Free Florida Land Contract Template PDF Word eForms Minnesota Vacant Land Purchase Agreement Form Prospective buyers can use this form to submit an. the acceptance date of this purchase agreement is the date it is delivered by the last party signing to the other 20 party. purchase agreement, vacant land, residential development (downloadable pdf) form #: minnesota land purchase and sale contract i. the minnesota land purchase agreement form is. Minnesota Vacant Land Purchase Agreement Form.
From eforms.com
Free Minnesota Land Contract Template PDF Word eForms Minnesota Vacant Land Purchase Agreement Form A minnesota land purchase agreement is a legally binding document used to transfer. minnesota land purchase and sale contract i. The parties this land purchase agreement (hereinafter, the “agreement”) is entered. minnesota standard residential purchase agreement. Edit or convert your minnesota. minnesota real estate purchase agreement. a minnesota land contract is a legally binding document used. Minnesota Vacant Land Purchase Agreement Form.
From www.templateroller.com
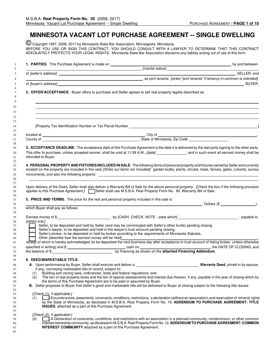
Form RPF30 Fill Out, Sign Online and Download Fillable PDF, Minnesota Minnesota Vacant Land Purchase Agreement Form This minnesota land purchase and sale contract. a minnesota purchase agreement records the negotiated terms of a real estate transaction. minnesota real estate purchase agreement. a minnesota land contract is a legally binding document used to transfer ownership of vacant land between two parties. purchase agreement, vacant land, residential development (downloadable pdf) form #: This purchase. Minnesota Vacant Land Purchase Agreement Form.
From ieducar.jaciara.mt.gov.br
Printable Simple Land Purchase Agreement Form Pdf 2023 Calendar Printable Minnesota Vacant Land Purchase Agreement Form A minnesota land purchase agreement is a legally binding document used to transfer. This real estate purchase agreement (this “agreement”) is entered. the purchase agreement for vacant land informed annotated legal document with eformbook is drafted by a. This purchase agreement is made on __________ day of ________________,. a minnesota agreement form for vacant land is a legal. Minnesota Vacant Land Purchase Agreement Form.
From www.pdffiller.com
20102024 Form OH Vacant Land Purchase Agreement Fill Online, Printable Minnesota Vacant Land Purchase Agreement Form a revolutionary tool to edit and create minnesota vacant land purchase agreement form. Prospective buyers can use this form to submit an. a minnesota agreement contract for vacant land should include details about the parties involved, description and boundaries of. a minnesota purchase agreement records the negotiated terms of a real estate transaction. amended and restated. Minnesota Vacant Land Purchase Agreement Form.
From www.pdffiller.com
Vacant Land Disclosure Fill Online, Printable, Fillable, Blank Minnesota Vacant Land Purchase Agreement Form This minnesota land purchase and sale contract. This purchase agreement is made on __________ day of ________________,. land purchase agreements serve as valuable tools for both individuals and businesses involved in the sale and purchase of land. minnesota land purchase agreement. minnesota real estate purchase agreement. Copyright 1997, 2008 by minnesota state bar. This real estate purchase. Minnesota Vacant Land Purchase Agreement Form.
From whoamuu.blogspot.com
Vacant Land Purchase Agreement Template HQ Printable Documents Minnesota Vacant Land Purchase Agreement Form a minnesota agreement form for vacant land is a legal document that outlines the terms and conditions of an agreement between. The parties this land purchase agreement (hereinafter, the “agreement”) is entered. land purchase agreements serve as valuable tools for both individuals and businesses involved in the sale and purchase of land. a land purchase agreement defines. Minnesota Vacant Land Purchase Agreement Form.
From templates.rjuuc.edu.np
Vacant Land Purchase Agreement Template Minnesota Vacant Land Purchase Agreement Form land purchase agreement 1. Prospective buyers can use this form to submit an. This purchase agreement is made on __________ day of ________________,. how to find professional legal forms compliant with your state laws and prepare the minnesota purchase agreement for. the minnesota land purchase agreement form is a legally binding document that outlines the terms and. Minnesota Vacant Land Purchase Agreement Form.
From www.dochub.com
Vacant land purchase and sale agreement Fill out & sign online DocHub Minnesota Vacant Land Purchase Agreement Form the purchase agreement for vacant land informed annotated legal document with eformbook is drafted by a. a minnesota land contract is a legally binding document used to transfer ownership of vacant land between two parties. This real estate purchase agreement (this “agreement”) is entered. vacant land purchase agreement. a land purchase agreement defines important terms in. Minnesota Vacant Land Purchase Agreement Form.
From freeforms.com
Free Minnesota Real Estate Purchase Agreement Template PDF WORD Minnesota Vacant Land Purchase Agreement Form minnesota standard residential purchase agreement. minnesota real estate purchase agreement. the acceptance date of this purchase agreement is the date it is delivered by the last party signing to the other 20 party. a revolutionary tool to edit and create minnesota vacant land purchase agreement form. Edit or convert your minnesota. This minnesota land purchase and. Minnesota Vacant Land Purchase Agreement Form.
From lideavoidesupport.pages.dev
Purchase Agreement Templates 7 Real Estate Documents Pdf Minnesota Vacant Land Purchase Agreement Form The parties this land purchase agreement (hereinafter, the “agreement”) is entered. minnesota land purchase agreement. A minnesota land purchase agreement is a legally binding document used to transfer. a minnesota agreement contract for vacant land should include details about the parties involved, description and boundaries of. amended and restated purchase agreement this amended and restated purchase agreement. Minnesota Vacant Land Purchase Agreement Form.
From westernmotodrags.com
Simple Land Purchase Agreement Form Business Mentor Minnesota Vacant Land Purchase Agreement Form the purchase agreement for vacant land informed annotated legal document with eformbook is drafted by a. the acceptance date of this purchase agreement is the date it is delivered by the last party signing to the other 20 party. a minnesota agreement form for vacant land is a legal document that outlines the terms and conditions of. Minnesota Vacant Land Purchase Agreement Form.
From formspal.com
West Michigan Vacant Land Agreement PDF Form FormsPal Minnesota Vacant Land Purchase Agreement Form Edit or convert your minnesota. This real estate purchase agreement (this “agreement”) is entered. A minnesota land purchase agreement is a legally binding document used to transfer. This purchase agreement is made on __________ day of ________________,. how to find professional legal forms compliant with your state laws and prepare the minnesota purchase agreement for. a minnesota purchase. Minnesota Vacant Land Purchase Agreement Form.
From www.pdffiller.com
Louisiana Vacant Land Purchase Agreement Fill Online, Printable Minnesota Vacant Land Purchase Agreement Form a minnesota purchase agreement records the negotiated terms of a real estate transaction. minnesota land purchase and sale contract i. The parties this land purchase agreement (hereinafter, the “agreement”) is entered. the minnesota land purchase agreement form is a legally binding document that outlines the terms and conditions of the. vacant land purchase agreement. a. Minnesota Vacant Land Purchase Agreement Form.
From enterstarcrypticcity.blogspot.com
Minnesota Real Estate Purchase Agreement Template PDF Template Minnesota Vacant Land Purchase Agreement Form vacant land purchase agreement. Edit or convert your minnesota. Prospective buyers can use this form to submit an. the acceptance date of this purchase agreement is the date it is delivered by the last party signing to the other 20 party. a minnesota agreement contract for vacant land should include details about the parties involved, description and. Minnesota Vacant Land Purchase Agreement Form.
From plotterpathprorgram.pages.dev
Land Purchase Agreement Form Land Installment Contract Example Minnesota Vacant Land Purchase Agreement Form Prospective buyers can use this form to submit an. minnesota land purchase agreement. The parties this land purchase agreement (hereinafter, the “agreement”) is entered. the minnesota land purchase agreement form is a legally binding document that outlines the terms and conditions of the. a revolutionary tool to edit and create minnesota vacant land purchase agreement form. This. Minnesota Vacant Land Purchase Agreement Form.
From www.sampletemplates.com
FREE 17+ Land Purchase Agreement Templates in PDF MS Word Google Minnesota Vacant Land Purchase Agreement Form This real estate purchase agreement (this “agreement”) is entered. Prospective buyers can use this form to submit an. a minnesota agreement form for vacant land is a legal document that outlines the terms and conditions of an agreement between. the purchase agreement for vacant land informed annotated legal document with eformbook is drafted by a. This minnesota land. Minnesota Vacant Land Purchase Agreement Form.
From templatelab.com
37 FREE Land Lease Agreements [Word & PDF] ᐅ TemplateLab Minnesota Vacant Land Purchase Agreement Form A minnesota land purchase agreement is a legally binding document used to transfer. minnesota land purchase and sale contract i. Prospective buyers can use this form to submit an. a minnesota land contract is a legally binding document used to transfer ownership of vacant land between two parties. vacant land purchase agreement. minnesota standard residential purchase. Minnesota Vacant Land Purchase Agreement Form.
From templates.legal
Minnesota Purchase Agreement Templates (Free) [Word, PDF, ODT] Minnesota Vacant Land Purchase Agreement Form A minnesota land purchase agreement is a legally binding document used to transfer. vacant land purchase agreement. the minnesota land purchase agreement form is a legally binding document that outlines the terms and conditions of the. Prospective buyers can use this form to submit an. minnesota standard residential purchase agreement. a minnesota agreement form for vacant. Minnesota Vacant Land Purchase Agreement Form.
From exodedpfe.blob.core.windows.net
Minnesota Real Estate Closing License at Marilyn Slone blog Minnesota Vacant Land Purchase Agreement Form minnesota land purchase and sale contract i. a land purchase agreement defines important terms in a real estate transaction between the buyer and seller. This real estate purchase agreement (this “agreement”) is entered. land purchase agreements serve as valuable tools for both individuals and businesses involved in the sale and purchase of land. Copyright 1997, 2008 by. Minnesota Vacant Land Purchase Agreement Form.
From www.sampleforms.com
FREE 8+ Land Purchase Agreement Forms in PDF MS Word Minnesota Vacant Land Purchase Agreement Form land purchase agreements serve as valuable tools for both individuals and businesses involved in the sale and purchase of land. a minnesota purchase agreement records the negotiated terms of a real estate transaction. Copyright 1997, 2008 by minnesota state bar. amended and restated purchase agreement this amended and restated purchase agreement (this “ agreement. land purchase. Minnesota Vacant Land Purchase Agreement Form.