Purpose Of Wind Girder In Tanks . At the top of an open tank (or one with a. they analyzed the wind pressure distribution on tanks shielded by other tanks [25] and the effect of simplified modeling of the roof and wind girder [26]. the main objective of this paper was design tank wind girders according to api 650 standard calculations. wind girders are usually formed by welding an angle or a channel around the top edge of the shell. in this video you will find a summary of the fundamental aspects. wind girders (stiffening rings) are often installed at the top and, if necessary, in the upper part of the tank to.
from www.mecaenterprises.com
they analyzed the wind pressure distribution on tanks shielded by other tanks [25] and the effect of simplified modeling of the roof and wind girder [26]. At the top of an open tank (or one with a. wind girders are usually formed by welding an angle or a channel around the top edge of the shell. the main objective of this paper was design tank wind girders according to api 650 standard calculations. wind girders (stiffening rings) are often installed at the top and, if necessary, in the upper part of the tank to. in this video you will find a summary of the fundamental aspects.
Wind Loads on Tanks Article Meca Enterprises
Purpose Of Wind Girder In Tanks wind girders (stiffening rings) are often installed at the top and, if necessary, in the upper part of the tank to. At the top of an open tank (or one with a. wind girders are usually formed by welding an angle or a channel around the top edge of the shell. in this video you will find a summary of the fundamental aspects. wind girders (stiffening rings) are often installed at the top and, if necessary, in the upper part of the tank to. they analyzed the wind pressure distribution on tanks shielded by other tanks [25] and the effect of simplified modeling of the roof and wind girder [26]. the main objective of this paper was design tank wind girders according to api 650 standard calculations.
From www.youtube.com
Elevated Water Tank Windage Rod and Anchoring System Designed for 100 Purpose Of Wind Girder In Tanks they analyzed the wind pressure distribution on tanks shielded by other tanks [25] and the effect of simplified modeling of the roof and wind girder [26]. wind girders are usually formed by welding an angle or a channel around the top edge of the shell. the main objective of this paper was design tank wind girders according. Purpose Of Wind Girder In Tanks.
From www.youtube.com
5 Storage tanks wind girders design YouTube Purpose Of Wind Girder In Tanks wind girders (stiffening rings) are often installed at the top and, if necessary, in the upper part of the tank to. they analyzed the wind pressure distribution on tanks shielded by other tanks [25] and the effect of simplified modeling of the roof and wind girder [26]. wind girders are usually formed by welding an angle or. Purpose Of Wind Girder In Tanks.
From www.scribd.com
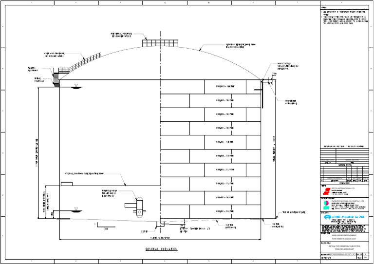
Wind Girder Replacement FOR TANKS TK403,405 & 407 Eppco International Purpose Of Wind Girder In Tanks in this video you will find a summary of the fundamental aspects. wind girders (stiffening rings) are often installed at the top and, if necessary, in the upper part of the tank to. wind girders are usually formed by welding an angle or a channel around the top edge of the shell. the main objective of. Purpose Of Wind Girder In Tanks.
From www.mdpi.com
Buildings Free FullText Design and Modeling of New Wind Purpose Of Wind Girder In Tanks wind girders are usually formed by welding an angle or a channel around the top edge of the shell. At the top of an open tank (or one with a. they analyzed the wind pressure distribution on tanks shielded by other tanks [25] and the effect of simplified modeling of the roof and wind girder [26]. in. Purpose Of Wind Girder In Tanks.
From www.youtube.com
wind girder for the tank YouTube Purpose Of Wind Girder In Tanks in this video you will find a summary of the fundamental aspects. they analyzed the wind pressure distribution on tanks shielded by other tanks [25] and the effect of simplified modeling of the roof and wind girder [26]. the main objective of this paper was design tank wind girders according to api 650 standard calculations. wind. Purpose Of Wind Girder In Tanks.
From www.youtube.com
API 650 CONE ROOF STORAGE TANK ERECTION JACKING METHOD TUTORIAL YouTube Purpose Of Wind Girder In Tanks wind girders are usually formed by welding an angle or a channel around the top edge of the shell. the main objective of this paper was design tank wind girders according to api 650 standard calculations. they analyzed the wind pressure distribution on tanks shielded by other tanks [25] and the effect of simplified modeling of the. Purpose Of Wind Girder In Tanks.
From nationwidetanks.com
Fiberglass Storage Tanks The Advantages of HelicalWinding over Purpose Of Wind Girder In Tanks wind girders (stiffening rings) are often installed at the top and, if necessary, in the upper part of the tank to. they analyzed the wind pressure distribution on tanks shielded by other tanks [25] and the effect of simplified modeling of the roof and wind girder [26]. in this video you will find a summary of the. Purpose Of Wind Girder In Tanks.
From salvatorelicitra.net
Api 650 Wind Girder Design Inspeksi Purpose Of Wind Girder In Tanks wind girders (stiffening rings) are often installed at the top and, if necessary, in the upper part of the tank to. wind girders are usually formed by welding an angle or a channel around the top edge of the shell. in this video you will find a summary of the fundamental aspects. At the top of an. Purpose Of Wind Girder In Tanks.
From www.cubeoffshore.com.au
Storage Tank Assessment Cube Offshore Purpose Of Wind Girder In Tanks they analyzed the wind pressure distribution on tanks shielded by other tanks [25] and the effect of simplified modeling of the roof and wind girder [26]. in this video you will find a summary of the fundamental aspects. the main objective of this paper was design tank wind girders according to api 650 standard calculations. wind. Purpose Of Wind Girder In Tanks.
From www.ipsfire.com
PreEngineered Foam Systems — IPS Fire Purpose Of Wind Girder In Tanks they analyzed the wind pressure distribution on tanks shielded by other tanks [25] and the effect of simplified modeling of the roof and wind girder [26]. in this video you will find a summary of the fundamental aspects. wind girders (stiffening rings) are often installed at the top and, if necessary, in the upper part of the. Purpose Of Wind Girder In Tanks.
From www.ishii-iiw.co.jp
Atmospheric storage tank│ISHII IRON WORKS CO., LTD.(IIW) Purpose Of Wind Girder In Tanks At the top of an open tank (or one with a. in this video you will find a summary of the fundamental aspects. the main objective of this paper was design tank wind girders according to api 650 standard calculations. they analyzed the wind pressure distribution on tanks shielded by other tanks [25] and the effect of. Purpose Of Wind Girder In Tanks.
From www.mecaenterprises.com
Wind Loads on Tanks Article Meca Enterprises Purpose Of Wind Girder In Tanks At the top of an open tank (or one with a. wind girders are usually formed by welding an angle or a channel around the top edge of the shell. wind girders (stiffening rings) are often installed at the top and, if necessary, in the upper part of the tank to. in this video you will find. Purpose Of Wind Girder In Tanks.
From www.youtube.com
TANK CONSTRUCTION API 650 In HD YouTube Purpose Of Wind Girder In Tanks At the top of an open tank (or one with a. the main objective of this paper was design tank wind girders according to api 650 standard calculations. wind girders (stiffening rings) are often installed at the top and, if necessary, in the upper part of the tank to. they analyzed the wind pressure distribution on tanks. Purpose Of Wind Girder In Tanks.
From www.scribd.com
Wind Girder of Jet Tank PDF Purpose Of Wind Girder In Tanks the main objective of this paper was design tank wind girders according to api 650 standard calculations. they analyzed the wind pressure distribution on tanks shielded by other tanks [25] and the effect of simplified modeling of the roof and wind girder [26]. in this video you will find a summary of the fundamental aspects. wind. Purpose Of Wind Girder In Tanks.
From www.slideshare.net
Storage tanks basic training (rev 2) Purpose Of Wind Girder In Tanks the main objective of this paper was design tank wind girders according to api 650 standard calculations. wind girders (stiffening rings) are often installed at the top and, if necessary, in the upper part of the tank to. in this video you will find a summary of the fundamental aspects. they analyzed the wind pressure distribution. Purpose Of Wind Girder In Tanks.
From www.scribd.com
PAFTME32DWGA017 WIND GIRDER PLAN A33 PREMIUM STORAGE TANK IFI Purpose Of Wind Girder In Tanks the main objective of this paper was design tank wind girders according to api 650 standard calculations. wind girders are usually formed by welding an angle or a channel around the top edge of the shell. wind girders (stiffening rings) are often installed at the top and, if necessary, in the upper part of the tank to.. Purpose Of Wind Girder In Tanks.
From www.mdpi.com
Processes Free FullText Applied Cleaning Methods of Oil Residues Purpose Of Wind Girder In Tanks wind girders are usually formed by welding an angle or a channel around the top edge of the shell. they analyzed the wind pressure distribution on tanks shielded by other tanks [25] and the effect of simplified modeling of the roof and wind girder [26]. wind girders (stiffening rings) are often installed at the top and, if. Purpose Of Wind Girder In Tanks.
From www.icinorthdakota.com
Tank Design and Erection Industrial Contractors, Inc. Purpose Of Wind Girder In Tanks the main objective of this paper was design tank wind girders according to api 650 standard calculations. wind girders (stiffening rings) are often installed at the top and, if necessary, in the upper part of the tank to. in this video you will find a summary of the fundamental aspects. wind girders are usually formed by. Purpose Of Wind Girder In Tanks.
From www.mdpi.com
Buildings Free FullText Design and Modeling of New Wind Purpose Of Wind Girder In Tanks wind girders are usually formed by welding an angle or a channel around the top edge of the shell. At the top of an open tank (or one with a. wind girders (stiffening rings) are often installed at the top and, if necessary, in the upper part of the tank to. the main objective of this paper. Purpose Of Wind Girder In Tanks.
From akec.co.in
A.K Engineers Contractors and leading Engineering Company Purpose Of Wind Girder In Tanks wind girders (stiffening rings) are often installed at the top and, if necessary, in the upper part of the tank to. wind girders are usually formed by welding an angle or a channel around the top edge of the shell. the main objective of this paper was design tank wind girders according to api 650 standard calculations.. Purpose Of Wind Girder In Tanks.
From gulffire.com
Petroleum Storage Tank Facilities Part 1 Gulf Fire Purpose Of Wind Girder In Tanks they analyzed the wind pressure distribution on tanks shielded by other tanks [25] and the effect of simplified modeling of the roof and wind girder [26]. wind girders (stiffening rings) are often installed at the top and, if necessary, in the upper part of the tank to. wind girders are usually formed by welding an angle or. Purpose Of Wind Girder In Tanks.
From www.mdpi.com
Buildings Free FullText Design and Modeling of New Wind Purpose Of Wind Girder In Tanks At the top of an open tank (or one with a. they analyzed the wind pressure distribution on tanks shielded by other tanks [25] and the effect of simplified modeling of the roof and wind girder [26]. wind girders are usually formed by welding an angle or a channel around the top edge of the shell. the. Purpose Of Wind Girder In Tanks.
From www.slideserve.com
PPT introduction to storage tank PowerPoint Presentation, free Purpose Of Wind Girder In Tanks wind girders (stiffening rings) are often installed at the top and, if necessary, in the upper part of the tank to. in this video you will find a summary of the fundamental aspects. they analyzed the wind pressure distribution on tanks shielded by other tanks [25] and the effect of simplified modeling of the roof and wind. Purpose Of Wind Girder In Tanks.
From www.eng-tips.com
Tank wind girder corrosion Storage tank engineering EngTips Purpose Of Wind Girder In Tanks wind girders are usually formed by welding an angle or a channel around the top edge of the shell. At the top of an open tank (or one with a. they analyzed the wind pressure distribution on tanks shielded by other tanks [25] and the effect of simplified modeling of the roof and wind girder [26]. wind. Purpose Of Wind Girder In Tanks.
From www.ishii-iiw.co.jp
Atmospheric storage tank│ISHII IRON WORKS CO., LTD.(IIW) Purpose Of Wind Girder In Tanks they analyzed the wind pressure distribution on tanks shielded by other tanks [25] and the effect of simplified modeling of the roof and wind girder [26]. At the top of an open tank (or one with a. wind girders are usually formed by welding an angle or a channel around the top edge of the shell. in. Purpose Of Wind Girder In Tanks.
From www.ipsfire.com
PreEngineered Foam Systems — IPS Fire Purpose Of Wind Girder In Tanks they analyzed the wind pressure distribution on tanks shielded by other tanks [25] and the effect of simplified modeling of the roof and wind girder [26]. wind girders (stiffening rings) are often installed at the top and, if necessary, in the upper part of the tank to. wind girders are usually formed by welding an angle or. Purpose Of Wind Girder In Tanks.
From www.mdpi.com
Buildings Free FullText Design and Modeling of New Wind Purpose Of Wind Girder In Tanks wind girders are usually formed by welding an angle or a channel around the top edge of the shell. wind girders (stiffening rings) are often installed at the top and, if necessary, in the upper part of the tank to. At the top of an open tank (or one with a. they analyzed the wind pressure distribution. Purpose Of Wind Girder In Tanks.
From www.eng-tips.com
Tank wind girder corrosion Storage tank engineering EngTips Purpose Of Wind Girder In Tanks wind girders are usually formed by welding an angle or a channel around the top edge of the shell. At the top of an open tank (or one with a. they analyzed the wind pressure distribution on tanks shielded by other tanks [25] and the effect of simplified modeling of the roof and wind girder [26]. the. Purpose Of Wind Girder In Tanks.
From www.mdpi.com
Buildings Free FullText Design and Modeling of New Wind Purpose Of Wind Girder In Tanks wind girders are usually formed by welding an angle or a channel around the top edge of the shell. they analyzed the wind pressure distribution on tanks shielded by other tanks [25] and the effect of simplified modeling of the roof and wind girder [26]. in this video you will find a summary of the fundamental aspects.. Purpose Of Wind Girder In Tanks.
From www.mdpi.com
Buildings Free FullText Design and Modeling of New Wind Purpose Of Wind Girder In Tanks they analyzed the wind pressure distribution on tanks shielded by other tanks [25] and the effect of simplified modeling of the roof and wind girder [26]. in this video you will find a summary of the fundamental aspects. wind girders (stiffening rings) are often installed at the top and, if necessary, in the upper part of the. Purpose Of Wind Girder In Tanks.
From www.qlayers.com
Choosing the Right Application Technique for Longer Tank Protection Purpose Of Wind Girder In Tanks they analyzed the wind pressure distribution on tanks shielded by other tanks [25] and the effect of simplified modeling of the roof and wind girder [26]. At the top of an open tank (or one with a. wind girders (stiffening rings) are often installed at the top and, if necessary, in the upper part of the tank to.. Purpose Of Wind Girder In Tanks.
From www.mdpi.com
Buildings Free FullText Design and Modeling of New Wind Purpose Of Wind Girder In Tanks wind girders (stiffening rings) are often installed at the top and, if necessary, in the upper part of the tank to. At the top of an open tank (or one with a. the main objective of this paper was design tank wind girders according to api 650 standard calculations. in this video you will find a summary. Purpose Of Wind Girder In Tanks.
From www.scribd.com
Tank Wind Girder Types Nature Purpose Of Wind Girder In Tanks they analyzed the wind pressure distribution on tanks shielded by other tanks [25] and the effect of simplified modeling of the roof and wind girder [26]. wind girders are usually formed by welding an angle or a channel around the top edge of the shell. At the top of an open tank (or one with a. wind. Purpose Of Wind Girder In Tanks.
From engineeringdiscoveries.com
Girder Design Procedure Engineering Discoveries Purpose Of Wind Girder In Tanks they analyzed the wind pressure distribution on tanks shielded by other tanks [25] and the effect of simplified modeling of the roof and wind girder [26]. the main objective of this paper was design tank wind girders according to api 650 standard calculations. At the top of an open tank (or one with a. wind girders (stiffening. Purpose Of Wind Girder In Tanks.
From www.eng-tips.com
Location of Primary Wind Girder Storage tank engineering EngTips Purpose Of Wind Girder In Tanks in this video you will find a summary of the fundamental aspects. wind girders (stiffening rings) are often installed at the top and, if necessary, in the upper part of the tank to. they analyzed the wind pressure distribution on tanks shielded by other tanks [25] and the effect of simplified modeling of the roof and wind. Purpose Of Wind Girder In Tanks.