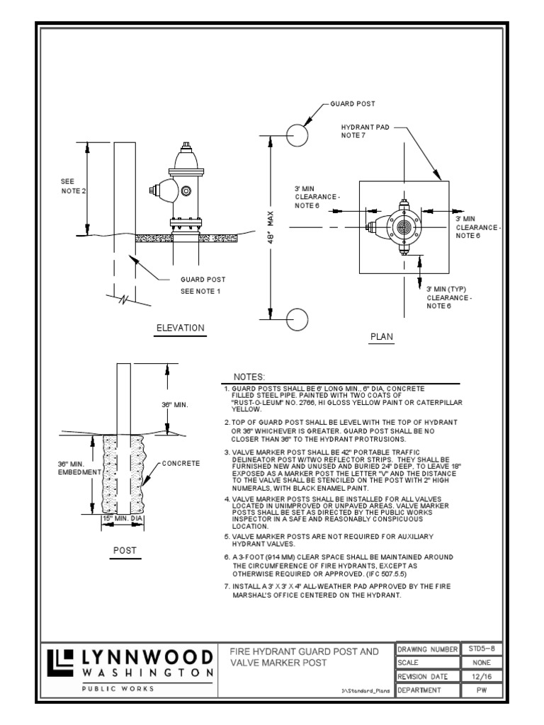
Fire Hydrant Guard Post . Manufactures both active and passive devices to provide a range of protection that keep fire hydrants. Compression type main valve closes with. Guard posts shall be 6 feet long concrete filled steel. Meets all applicable parts of ansi/awwa c502 standard. provide two guard posts for each fire hydrant assembly except where assembly is located adjacent to a. ul listed, fm approved, wall and vertical indicator posts for use in the fire protection industry. Post type dry barrel design. Above ground post flushing hydrant for dead end mains. — nfpa 1, fire code, requires the following clearance around fire hydrants: 18.5.7 clear space around hydrants. this document provides specifications for guard posts and valve marker posts around fire hydrants.
from uniquefire.com
ul listed, fm approved, wall and vertical indicator posts for use in the fire protection industry. Guard posts shall be 6 feet long concrete filled steel. 18.5.7 clear space around hydrants. Compression type main valve closes with. Meets all applicable parts of ansi/awwa c502 standard. Above ground post flushing hydrant for dead end mains. this document provides specifications for guard posts and valve marker posts around fire hydrants. Manufactures both active and passive devices to provide a range of protection that keep fire hydrants. Post type dry barrel design. — nfpa 1, fire code, requires the following clearance around fire hydrants:
Uniquefire Plain End Pillar Hydrant UniqueFire Holdings
Fire Hydrant Guard Post Manufactures both active and passive devices to provide a range of protection that keep fire hydrants. this document provides specifications for guard posts and valve marker posts around fire hydrants. Manufactures both active and passive devices to provide a range of protection that keep fire hydrants. Above ground post flushing hydrant for dead end mains. Meets all applicable parts of ansi/awwa c502 standard. 18.5.7 clear space around hydrants. Guard posts shall be 6 feet long concrete filled steel. ul listed, fm approved, wall and vertical indicator posts for use in the fire protection industry. provide two guard posts for each fire hydrant assembly except where assembly is located adjacent to a. Compression type main valve closes with. Post type dry barrel design. — nfpa 1, fire code, requires the following clearance around fire hydrants:
From rhinomarkers.com
PolyTech 360° Hydrant Marker™ Rhino Marking & Protection Fire Hydrant Guard Post Above ground post flushing hydrant for dead end mains. Guard posts shall be 6 feet long concrete filled steel. provide two guard posts for each fire hydrant assembly except where assembly is located adjacent to a. ul listed, fm approved, wall and vertical indicator posts for use in the fire protection industry. Meets all applicable parts of ansi/awwa. Fire Hydrant Guard Post.
From www.bigstockphoto.com
Fire Hydrant Fixed Image & Photo (Free Trial) Bigstock Fire Hydrant Guard Post Above ground post flushing hydrant for dead end mains. — nfpa 1, fire code, requires the following clearance around fire hydrants: provide two guard posts for each fire hydrant assembly except where assembly is located adjacent to a. Compression type main valve closes with. ul listed, fm approved, wall and vertical indicator posts for use in the. Fire Hydrant Guard Post.
From www.bigstockphoto.com
Fire Hydrant Fixed Image & Photo (Free Trial) Bigstock Fire Hydrant Guard Post Post type dry barrel design. 18.5.7 clear space around hydrants. ul listed, fm approved, wall and vertical indicator posts for use in the fire protection industry. provide two guard posts for each fire hydrant assembly except where assembly is located adjacent to a. Meets all applicable parts of ansi/awwa c502 standard. Manufactures both active and passive devices to. Fire Hydrant Guard Post.
From utility-technologies.myshopify.com
Rhino TriView Fire Hydrant Marker Posts Utility Technologies Fire Hydrant Guard Post provide two guard posts for each fire hydrant assembly except where assembly is located adjacent to a. Compression type main valve closes with. ul listed, fm approved, wall and vertical indicator posts for use in the fire protection industry. this document provides specifications for guard posts and valve marker posts around fire hydrants. Post type dry barrel. Fire Hydrant Guard Post.
From newage-india.in
TWO WAY HYDRANT STANDPOST NewAge Fire Fighting Co. Ltd. Fire Hydrant Guard Post Post type dry barrel design. Compression type main valve closes with. 18.5.7 clear space around hydrants. provide two guard posts for each fire hydrant assembly except where assembly is located adjacent to a. Meets all applicable parts of ansi/awwa c502 standard. Manufactures both active and passive devices to provide a range of protection that keep fire hydrants. —. Fire Hydrant Guard Post.
From backflowtheft.com
Fire Hydrant Guard (SFHG) BackFlow Theft Protection Fire Hydrant Guard Post ul listed, fm approved, wall and vertical indicator posts for use in the fire protection industry. provide two guard posts for each fire hydrant assembly except where assembly is located adjacent to a. Post type dry barrel design. 18.5.7 clear space around hydrants. Meets all applicable parts of ansi/awwa c502 standard. Above ground post flushing hydrant for dead. Fire Hydrant Guard Post.
From fireprotectionguru.com
FIRE HYDRANT Selection & installation Guideline Fire Protection Guru Fire Hydrant Guard Post Meets all applicable parts of ansi/awwa c502 standard. Above ground post flushing hydrant for dead end mains. provide two guard posts for each fire hydrant assembly except where assembly is located adjacent to a. ul listed, fm approved, wall and vertical indicator posts for use in the fire protection industry. Manufactures both active and passive devices to provide. Fire Hydrant Guard Post.
From tuoyuanelevator.en.made-in-china.com
High Quality Fire Hydrant Guardrail China Fire Hydrant Guardrail and Fire Hydrant Guard Post Manufactures both active and passive devices to provide a range of protection that keep fire hydrants. Compression type main valve closes with. 18.5.7 clear space around hydrants. ul listed, fm approved, wall and vertical indicator posts for use in the fire protection industry. provide two guard posts for each fire hydrant assembly except where assembly is located adjacent. Fire Hydrant Guard Post.
From backflowtheft.com
Fire Hydrant Guard (SFHG) BackFlow Theft Protection Fire Hydrant Guard Post Manufactures both active and passive devices to provide a range of protection that keep fire hydrants. ul listed, fm approved, wall and vertical indicator posts for use in the fire protection industry. this document provides specifications for guard posts and valve marker posts around fire hydrants. Compression type main valve closes with. provide two guard posts for. Fire Hydrant Guard Post.
From backflowtheft.com
Fire Hydrant Guard (SFHG) BackFlow Theft Protection Fire Hydrant Guard Post Post type dry barrel design. Manufactures both active and passive devices to provide a range of protection that keep fire hydrants. — nfpa 1, fire code, requires the following clearance around fire hydrants: this document provides specifications for guard posts and valve marker posts around fire hydrants. ul listed, fm approved, wall and vertical indicator posts for. Fire Hydrant Guard Post.
From backflowtheft.com
Union Guard (SUG) BackFlow Theft Protection Fire Hydrant Guard Post Post type dry barrel design. ul listed, fm approved, wall and vertical indicator posts for use in the fire protection industry. — nfpa 1, fire code, requires the following clearance around fire hydrants: Manufactures both active and passive devices to provide a range of protection that keep fire hydrants. Above ground post flushing hydrant for dead end mains.. Fire Hydrant Guard Post.
From uniquefire.com
Uniquefire Plain End Pillar Hydrant UniqueFire Holdings Fire Hydrant Guard Post — nfpa 1, fire code, requires the following clearance around fire hydrants: Guard posts shall be 6 feet long concrete filled steel. provide two guard posts for each fire hydrant assembly except where assembly is located adjacent to a. Manufactures both active and passive devices to provide a range of protection that keep fire hydrants. ul listed,. Fire Hydrant Guard Post.
From backflowtheft.com
Fire Hydrant Guard (SFHG) BackFlow Theft Protection Fire Hydrant Guard Post 18.5.7 clear space around hydrants. Manufactures both active and passive devices to provide a range of protection that keep fire hydrants. Compression type main valve closes with. provide two guard posts for each fire hydrant assembly except where assembly is located adjacent to a. Meets all applicable parts of ansi/awwa c502 standard. Above ground post flushing hydrant for dead. Fire Hydrant Guard Post.
From alvexstore.com
CHIEF FIRE Fire Hydrant, 250 PSI , 6" DBCF5006IN Alvex Online Store Fire Hydrant Guard Post provide two guard posts for each fire hydrant assembly except where assembly is located adjacent to a. Post type dry barrel design. Manufactures both active and passive devices to provide a range of protection that keep fire hydrants. ul listed, fm approved, wall and vertical indicator posts for use in the fire protection industry. Above ground post flushing. Fire Hydrant Guard Post.
From ultigamerz.blogspot.com
ultigamerz Fire protective system Fire Hydrant Guard Post 18.5.7 clear space around hydrants. Compression type main valve closes with. Above ground post flushing hydrant for dead end mains. ul listed, fm approved, wall and vertical indicator posts for use in the fire protection industry. Guard posts shall be 6 feet long concrete filled steel. Meets all applicable parts of ansi/awwa c502 standard. this document provides specifications. Fire Hydrant Guard Post.
From www.youtube.com
Fire Hydrant Steel Pole Protection Street Safety YouTube Fire Hydrant Guard Post Meets all applicable parts of ansi/awwa c502 standard. this document provides specifications for guard posts and valve marker posts around fire hydrants. Above ground post flushing hydrant for dead end mains. — nfpa 1, fire code, requires the following clearance around fire hydrants: Post type dry barrel design. Guard posts shall be 6 feet long concrete filled steel.. Fire Hydrant Guard Post.
From zenco.co.in
FIRE HYDRANT SYSTEM ZENCO FIRE AND SECURITY SYSTEM Pvt. Ltd. Fire Hydrant Guard Post provide two guard posts for each fire hydrant assembly except where assembly is located adjacent to a. 18.5.7 clear space around hydrants. Manufactures both active and passive devices to provide a range of protection that keep fire hydrants. — nfpa 1, fire code, requires the following clearance around fire hydrants: Guard posts shall be 6 feet long concrete. Fire Hydrant Guard Post.
From utility-technologies.myshopify.com
Rhino TriView Fire Hydrant Marker Posts Utility Technologies Fire Hydrant Guard Post — nfpa 1, fire code, requires the following clearance around fire hydrants: Post type dry barrel design. Above ground post flushing hydrant for dead end mains. provide two guard posts for each fire hydrant assembly except where assembly is located adjacent to a. Guard posts shall be 6 feet long concrete filled steel. Manufactures both active and passive. Fire Hydrant Guard Post.
From www.alamy.com
Red pillartype fire hydrant for emergency fire access in a street Fire Hydrant Guard Post provide two guard posts for each fire hydrant assembly except where assembly is located adjacent to a. 18.5.7 clear space around hydrants. Meets all applicable parts of ansi/awwa c502 standard. Manufactures both active and passive devices to provide a range of protection that keep fire hydrants. — nfpa 1, fire code, requires the following clearance around fire hydrants:. Fire Hydrant Guard Post.
From www.scribd.com
5 08 Fire Hydrant Guard Post PDF Civil Engineering Equipment Fire Hydrant Guard Post Meets all applicable parts of ansi/awwa c502 standard. provide two guard posts for each fire hydrant assembly except where assembly is located adjacent to a. Guard posts shall be 6 feet long concrete filled steel. ul listed, fm approved, wall and vertical indicator posts for use in the fire protection industry. 18.5.7 clear space around hydrants. —. Fire Hydrant Guard Post.
From www.mh-valve.com
21/4" MVO Post Hydrant Model 33 M&H Valve Company Fire Hydrant Guard Post ul listed, fm approved, wall and vertical indicator posts for use in the fire protection industry. provide two guard posts for each fire hydrant assembly except where assembly is located adjacent to a. Manufactures both active and passive devices to provide a range of protection that keep fire hydrants. this document provides specifications for guard posts and. Fire Hydrant Guard Post.
From www.indiamart.com
Fire Fighting Equipment Fire Hydrant Stand Post Wholesaler from Fire Hydrant Guard Post Meets all applicable parts of ansi/awwa c502 standard. provide two guard posts for each fire hydrant assembly except where assembly is located adjacent to a. Above ground post flushing hydrant for dead end mains. — nfpa 1, fire code, requires the following clearance around fire hydrants: Compression type main valve closes with. Manufactures both active and passive devices. Fire Hydrant Guard Post.
From www.muellercompany.com
Mueller® 21/8” Post Type Fire Hydrant Mueller Co. Water Products Fire Hydrant Guard Post Guard posts shall be 6 feet long concrete filled steel. 18.5.7 clear space around hydrants. ul listed, fm approved, wall and vertical indicator posts for use in the fire protection industry. this document provides specifications for guard posts and valve marker posts around fire hydrants. Meets all applicable parts of ansi/awwa c502 standard. Manufactures both active and passive. Fire Hydrant Guard Post.
From www.youtube.com
Mueller® HydroGuard® HG6 Automated Flushing System YouTube Fire Hydrant Guard Post 18.5.7 clear space around hydrants. Compression type main valve closes with. Above ground post flushing hydrant for dead end mains. — nfpa 1, fire code, requires the following clearance around fire hydrants: this document provides specifications for guard posts and valve marker posts around fire hydrants. provide two guard posts for each fire hydrant assembly except where. Fire Hydrant Guard Post.
From www.fireengineers.in
Stand Post Fire Hydrant Fire Engineers & Safety Solutions Fire Hydrant Guard Post ul listed, fm approved, wall and vertical indicator posts for use in the fire protection industry. 18.5.7 clear space around hydrants. Compression type main valve closes with. Meets all applicable parts of ansi/awwa c502 standard. — nfpa 1, fire code, requires the following clearance around fire hydrants: provide two guard posts for each fire hydrant assembly except. Fire Hydrant Guard Post.
From www.firefighting.com.my
2 Way Fire Hydrant Eversafe Fire Hydrant Fire Hydrant & Wet/Dry Riser Fire Hydrant Guard Post Above ground post flushing hydrant for dead end mains. — nfpa 1, fire code, requires the following clearance around fire hydrants: Compression type main valve closes with. Post type dry barrel design. this document provides specifications for guard posts and valve marker posts around fire hydrants. 18.5.7 clear space around hydrants. Manufactures both active and passive devices to. Fire Hydrant Guard Post.
From gust.com
Hydrant Guard Los Angeles, CA, USA Startup Fire Hydrant Guard Post — nfpa 1, fire code, requires the following clearance around fire hydrants: Post type dry barrel design. ul listed, fm approved, wall and vertical indicator posts for use in the fire protection industry. Above ground post flushing hydrant for dead end mains. Compression type main valve closes with. Manufactures both active and passive devices to provide a range. Fire Hydrant Guard Post.
From www.securitysafetyproducts.co.uk
Customisable Fire Hydrant Sign Kit (200 x 200mm with 1.5 metre post) Fire Hydrant Guard Post Manufactures both active and passive devices to provide a range of protection that keep fire hydrants. Meets all applicable parts of ansi/awwa c502 standard. this document provides specifications for guard posts and valve marker posts around fire hydrants. Post type dry barrel design. 18.5.7 clear space around hydrants. Guard posts shall be 6 feet long concrete filled steel. Compression. Fire Hydrant Guard Post.
From www.shutterstock.com
Red Fire Hydrant Protect Pole Car Stock Photo 323482142 Shutterstock Fire Hydrant Guard Post ul listed, fm approved, wall and vertical indicator posts for use in the fire protection industry. this document provides specifications for guard posts and valve marker posts around fire hydrants. Compression type main valve closes with. 18.5.7 clear space around hydrants. Manufactures both active and passive devices to provide a range of protection that keep fire hydrants. . Fire Hydrant Guard Post.
From www.dreamstime.com
Red Fire Hydrant in Parking Lot with Safety Poles Stock Image Image Fire Hydrant Guard Post Guard posts shall be 6 feet long concrete filled steel. Post type dry barrel design. — nfpa 1, fire code, requires the following clearance around fire hydrants: this document provides specifications for guard posts and valve marker posts around fire hydrants. provide two guard posts for each fire hydrant assembly except where assembly is located adjacent to. Fire Hydrant Guard Post.
From pipelineproducts.com
FHMLDLRG Fire hydrant meter locking device Large Pipeline Products Fire Hydrant Guard Post Above ground post flushing hydrant for dead end mains. Compression type main valve closes with. — nfpa 1, fire code, requires the following clearance around fire hydrants: 18.5.7 clear space around hydrants. this document provides specifications for guard posts and valve marker posts around fire hydrants. Meets all applicable parts of ansi/awwa c502 standard. Manufactures both active and. Fire Hydrant Guard Post.
From www.hydrantguard.com
About Us Hydrant Guard Products Hydrant Guard Fire Hydrant Guard Post Meets all applicable parts of ansi/awwa c502 standard. Post type dry barrel design. ul listed, fm approved, wall and vertical indicator posts for use in the fire protection industry. Guard posts shall be 6 feet long concrete filled steel. provide two guard posts for each fire hydrant assembly except where assembly is located adjacent to a. —. Fire Hydrant Guard Post.
From www.avkuk.co.uk
AVK UK Fire Protection AVK UK Fire Hydrant Guard Post provide two guard posts for each fire hydrant assembly except where assembly is located adjacent to a. — nfpa 1, fire code, requires the following clearance around fire hydrants: Post type dry barrel design. Guard posts shall be 6 feet long concrete filled steel. ul listed, fm approved, wall and vertical indicator posts for use in the. Fire Hydrant Guard Post.
From hydrantguard.com
Fire Hydrant Check Valve Test Video Hydrant Guard US Fire Hydrant Guard Post provide two guard posts for each fire hydrant assembly except where assembly is located adjacent to a. ul listed, fm approved, wall and vertical indicator posts for use in the fire protection industry. 18.5.7 clear space around hydrants. Post type dry barrel design. — nfpa 1, fire code, requires the following clearance around fire hydrants: Meets all. Fire Hydrant Guard Post.
From www.bigstockphoto.com
Fire Hydrant Fixed Image & Photo (Free Trial) Bigstock Fire Hydrant Guard Post Guard posts shall be 6 feet long concrete filled steel. Above ground post flushing hydrant for dead end mains. Compression type main valve closes with. provide two guard posts for each fire hydrant assembly except where assembly is located adjacent to a. — nfpa 1, fire code, requires the following clearance around fire hydrants: this document provides. Fire Hydrant Guard Post.