Cat 5 Elevator Test . Elevator inspection/test reports (elv3) for category 1, category 3, and category 5 inspections. Element provides the most cost effective and fully licensed & approved elevator testing in. This directive is issued to all elevating contractors wanting to use alternative testing as a method of conducting category 5 testing. Depending on the type of device, some also require a category 5 full load inspection test every five years. What is a category 5 inspection? How can i review my elevator devices and their current state of compliance? The periodic category 1 tests and the modified periodic category 5 tests must be carried out at intervals not exceeding 5 years.
from www.elevatorbraille.com
How can i review my elevator devices and their current state of compliance? Elevator inspection/test reports (elv3) for category 1, category 3, and category 5 inspections. The periodic category 1 tests and the modified periodic category 5 tests must be carried out at intervals not exceeding 5 years. Element provides the most cost effective and fully licensed & approved elevator testing in. Depending on the type of device, some also require a category 5 full load inspection test every five years. What is a category 5 inspection? This directive is issued to all elevating contractors wanting to use alternative testing as a method of conducting category 5 testing.
Test Tag for Traction Elevator, Category 5
Cat 5 Elevator Test How can i review my elevator devices and their current state of compliance? What is a category 5 inspection? This directive is issued to all elevating contractors wanting to use alternative testing as a method of conducting category 5 testing. Elevator inspection/test reports (elv3) for category 1, category 3, and category 5 inspections. Depending on the type of device, some also require a category 5 full load inspection test every five years. Element provides the most cost effective and fully licensed & approved elevator testing in. How can i review my elevator devices and their current state of compliance? The periodic category 1 tests and the modified periodic category 5 tests must be carried out at intervals not exceeding 5 years.
From www.elevatorbraille.com
Test Tag for Traction Elevator, Category 1 Cat 5 Elevator Test This directive is issued to all elevating contractors wanting to use alternative testing as a method of conducting category 5 testing. Depending on the type of device, some also require a category 5 full load inspection test every five years. Elevator inspection/test reports (elv3) for category 1, category 3, and category 5 inspections. The periodic category 1 tests and the. Cat 5 Elevator Test.
From www.templateroller.com
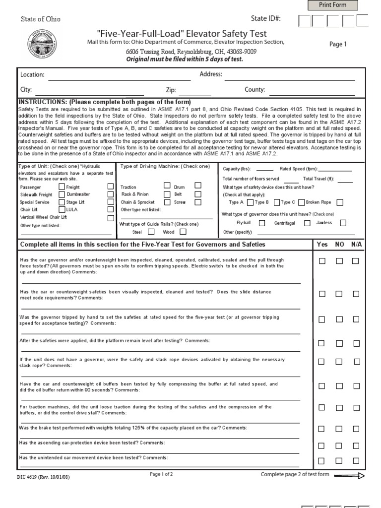
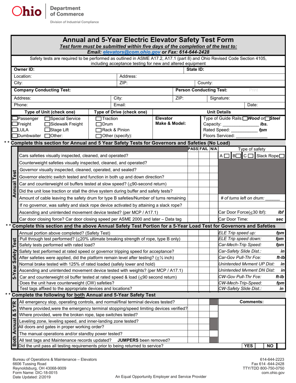
Form DIC180015 Download Fillable PDF or Fill Online Annual and 5year Cat 5 Elevator Test Element provides the most cost effective and fully licensed & approved elevator testing in. Elevator inspection/test reports (elv3) for category 1, category 3, and category 5 inspections. What is a category 5 inspection? The periodic category 1 tests and the modified periodic category 5 tests must be carried out at intervals not exceeding 5 years. Depending on the type of. Cat 5 Elevator Test.
From www.elevatorbraille.com
Test Tag for Hydraulic Elevator, Category 5 Cat 5 Elevator Test How can i review my elevator devices and their current state of compliance? Depending on the type of device, some also require a category 5 full load inspection test every five years. This directive is issued to all elevating contractors wanting to use alternative testing as a method of conducting category 5 testing. Elevator inspection/test reports (elv3) for category 1,. Cat 5 Elevator Test.
From www.reddit.com
Beware of the CAT 5 testing on your rail positioning. (Read comment Cat 5 Elevator Test This directive is issued to all elevating contractors wanting to use alternative testing as a method of conducting category 5 testing. What is a category 5 inspection? How can i review my elevator devices and their current state of compliance? Element provides the most cost effective and fully licensed & approved elevator testing in. Elevator inspection/test reports (elv3) for category. Cat 5 Elevator Test.
From www.youtube.com
Elevator Testing YouTube Cat 5 Elevator Test Depending on the type of device, some also require a category 5 full load inspection test every five years. How can i review my elevator devices and their current state of compliance? Elevator inspection/test reports (elv3) for category 1, category 3, and category 5 inspections. The periodic category 1 tests and the modified periodic category 5 tests must be carried. Cat 5 Elevator Test.
From issuu.com
Elevator Load Tests Requirements & Procedures by Dutest Dubai Issuu Cat 5 Elevator Test Elevator inspection/test reports (elv3) for category 1, category 3, and category 5 inspections. How can i review my elevator devices and their current state of compliance? Depending on the type of device, some also require a category 5 full load inspection test every five years. What is a category 5 inspection? This directive is issued to all elevating contractors wanting. Cat 5 Elevator Test.
From www.scribd.com
Elevator Five Year Safety Test Form Elevator Industries Cat 5 Elevator Test The periodic category 1 tests and the modified periodic category 5 tests must be carried out at intervals not exceeding 5 years. What is a category 5 inspection? Depending on the type of device, some also require a category 5 full load inspection test every five years. This directive is issued to all elevating contractors wanting to use alternative testing. Cat 5 Elevator Test.
From triadlifts.com
Elevator Full Load Test Requirements PA, NJ, DE Cat 5 Elevator Test Elevator inspection/test reports (elv3) for category 1, category 3, and category 5 inspections. This directive is issued to all elevating contractors wanting to use alternative testing as a method of conducting category 5 testing. The periodic category 1 tests and the modified periodic category 5 tests must be carried out at intervals not exceeding 5 years. How can i review. Cat 5 Elevator Test.
From www.elevatorbraille.com
Test Tag for Hydraulic Elevator, Category 5 Cat 5 Elevator Test Element provides the most cost effective and fully licensed & approved elevator testing in. How can i review my elevator devices and their current state of compliance? The periodic category 1 tests and the modified periodic category 5 tests must be carried out at intervals not exceeding 5 years. This directive is issued to all elevating contractors wanting to use. Cat 5 Elevator Test.
From element.ca
Elevator Testing Annuals & CAT 5 — Element Elevators Inc. Cat 5 Elevator Test Elevator inspection/test reports (elv3) for category 1, category 3, and category 5 inspections. How can i review my elevator devices and their current state of compliance? Element provides the most cost effective and fully licensed & approved elevator testing in. This directive is issued to all elevating contractors wanting to use alternative testing as a method of conducting category 5. Cat 5 Elevator Test.
From pace-elevator.com
Category 5 Elevator Testing! Cat 5 Elevator Test Depending on the type of device, some also require a category 5 full load inspection test every five years. How can i review my elevator devices and their current state of compliance? Element provides the most cost effective and fully licensed & approved elevator testing in. Elevator inspection/test reports (elv3) for category 1, category 3, and category 5 inspections. The. Cat 5 Elevator Test.
From www.templateroller.com
Form F621116000 Fill Out, Sign Online and Download Printable PDF Cat 5 Elevator Test Elevator inspection/test reports (elv3) for category 1, category 3, and category 5 inspections. Element provides the most cost effective and fully licensed & approved elevator testing in. How can i review my elevator devices and their current state of compliance? Depending on the type of device, some also require a category 5 full load inspection test every five years. The. Cat 5 Elevator Test.
From elevatorbooks.com
Field Employees' Elevator Testing Manual, 4th Edition Elevator Books Cat 5 Elevator Test How can i review my elevator devices and their current state of compliance? This directive is issued to all elevating contractors wanting to use alternative testing as a method of conducting category 5 testing. What is a category 5 inspection? Elevator inspection/test reports (elv3) for category 1, category 3, and category 5 inspections. Element provides the most cost effective and. Cat 5 Elevator Test.
From iriseelevators.com
CAT5 Testing iRISE Elevators Cat 5 Elevator Test This directive is issued to all elevating contractors wanting to use alternative testing as a method of conducting category 5 testing. What is a category 5 inspection? Elevator inspection/test reports (elv3) for category 1, category 3, and category 5 inspections. Element provides the most cost effective and fully licensed & approved elevator testing in. The periodic category 1 tests and. Cat 5 Elevator Test.
From www.pdffiller.com
2012 Form NY ELV3 Elevator Inspection/Test Report Fill Online Cat 5 Elevator Test Elevator inspection/test reports (elv3) for category 1, category 3, and category 5 inspections. Depending on the type of device, some also require a category 5 full load inspection test every five years. The periodic category 1 tests and the modified periodic category 5 tests must be carried out at intervals not exceeding 5 years. This directive is issued to all. Cat 5 Elevator Test.
From www.elevatorbraille.com
Test Tag for Hydraulic Elevator, Category 1 Cat 5 Elevator Test The periodic category 1 tests and the modified periodic category 5 tests must be carried out at intervals not exceeding 5 years. What is a category 5 inspection? Element provides the most cost effective and fully licensed & approved elevator testing in. Elevator inspection/test reports (elv3) for category 1, category 3, and category 5 inspections. Depending on the type of. Cat 5 Elevator Test.
From www.gunnconsultants.com
Traditional vs Alternative Elevator Cat 5 Testing GUNN Consultants Cat 5 Elevator Test How can i review my elevator devices and their current state of compliance? This directive is issued to all elevating contractors wanting to use alternative testing as a method of conducting category 5 testing. Element provides the most cost effective and fully licensed & approved elevator testing in. The periodic category 1 tests and the modified periodic category 5 tests. Cat 5 Elevator Test.
From www.elevatorbraille.com
Test Tag for Traction Elevator, Category 5 Cat 5 Elevator Test The periodic category 1 tests and the modified periodic category 5 tests must be carried out at intervals not exceeding 5 years. Elevator inspection/test reports (elv3) for category 1, category 3, and category 5 inspections. Depending on the type of device, some also require a category 5 full load inspection test every five years. Element provides the most cost effective. Cat 5 Elevator Test.
From www.bocagroup.com
2022 Updated Requirements for Category Testing and Periodic Inspection Cat 5 Elevator Test Element provides the most cost effective and fully licensed & approved elevator testing in. This directive is issued to all elevating contractors wanting to use alternative testing as a method of conducting category 5 testing. How can i review my elevator devices and their current state of compliance? Elevator inspection/test reports (elv3) for category 1, category 3, and category 5. Cat 5 Elevator Test.
From element.ca
Elevator Testing Annuals & CAT 5 — Element Elevators Inc. Cat 5 Elevator Test What is a category 5 inspection? Depending on the type of device, some also require a category 5 full load inspection test every five years. Element provides the most cost effective and fully licensed & approved elevator testing in. This directive is issued to all elevating contractors wanting to use alternative testing as a method of conducting category 5 testing.. Cat 5 Elevator Test.
From dazenelevator.com
Elevator Load Testing Dazen Elevator Cat 5 Elevator Test The periodic category 1 tests and the modified periodic category 5 tests must be carried out at intervals not exceeding 5 years. Depending on the type of device, some also require a category 5 full load inspection test every five years. Elevator inspection/test reports (elv3) for category 1, category 3, and category 5 inspections. What is a category 5 inspection?. Cat 5 Elevator Test.
From www.gunnconsultants.com
Traditional vs Alternative Elevator Cat 5 Testing GUNN Consultants Cat 5 Elevator Test Element provides the most cost effective and fully licensed & approved elevator testing in. Elevator inspection/test reports (elv3) for category 1, category 3, and category 5 inspections. How can i review my elevator devices and their current state of compliance? The periodic category 1 tests and the modified periodic category 5 tests must be carried out at intervals not exceeding. Cat 5 Elevator Test.
From champion-elevator.com
Elevator Testing Champion Elevator NYC Cat 5 Elevator Test Element provides the most cost effective and fully licensed & approved elevator testing in. Elevator inspection/test reports (elv3) for category 1, category 3, and category 5 inspections. This directive is issued to all elevating contractors wanting to use alternative testing as a method of conducting category 5 testing. What is a category 5 inspection? Depending on the type of device,. Cat 5 Elevator Test.
From www.reddit.com
CAT 5 testing on KONE KCM831 r/Elevators Cat 5 Elevator Test How can i review my elevator devices and their current state of compliance? This directive is issued to all elevating contractors wanting to use alternative testing as a method of conducting category 5 testing. Elevator inspection/test reports (elv3) for category 1, category 3, and category 5 inspections. What is a category 5 inspection? Element provides the most cost effective and. Cat 5 Elevator Test.
From www.elevatorbraille.com
Test Tag, Foil, for Hydraulic Elevator, Category 5 Cat 5 Elevator Test Element provides the most cost effective and fully licensed & approved elevator testing in. This directive is issued to all elevating contractors wanting to use alternative testing as a method of conducting category 5 testing. Depending on the type of device, some also require a category 5 full load inspection test every five years. What is a category 5 inspection?. Cat 5 Elevator Test.
From www.reddit.com
TKE Northern 3200 Time CAT 5 testing today r/Elevators Cat 5 Elevator Test Element provides the most cost effective and fully licensed & approved elevator testing in. This directive is issued to all elevating contractors wanting to use alternative testing as a method of conducting category 5 testing. How can i review my elevator devices and their current state of compliance? Depending on the type of device, some also require a category 5. Cat 5 Elevator Test.
From www.gunnconsultants.com
Traditional vs Alternative Elevator Cat 5 Testing GUNN Consultants Cat 5 Elevator Test How can i review my elevator devices and their current state of compliance? The periodic category 1 tests and the modified periodic category 5 tests must be carried out at intervals not exceeding 5 years. What is a category 5 inspection? Element provides the most cost effective and fully licensed & approved elevator testing in. Depending on the type of. Cat 5 Elevator Test.
From www.pace-elevator.com
CAT Testing Cat 5 Elevator Test How can i review my elevator devices and their current state of compliance? The periodic category 1 tests and the modified periodic category 5 tests must be carried out at intervals not exceeding 5 years. What is a category 5 inspection? This directive is issued to all elevating contractors wanting to use alternative testing as a method of conducting category. Cat 5 Elevator Test.
From www.youtube.com
Elevator Test YouTube Cat 5 Elevator Test Elevator inspection/test reports (elv3) for category 1, category 3, and category 5 inspections. How can i review my elevator devices and their current state of compliance? Depending on the type of device, some also require a category 5 full load inspection test every five years. This directive is issued to all elevating contractors wanting to use alternative testing as a. Cat 5 Elevator Test.
From www.elevatorbraille.com
Test Tag for Traction Elevator, Category 5 Cat 5 Elevator Test The periodic category 1 tests and the modified periodic category 5 tests must be carried out at intervals not exceeding 5 years. Element provides the most cost effective and fully licensed & approved elevator testing in. Elevator inspection/test reports (elv3) for category 1, category 3, and category 5 inspections. This directive is issued to all elevating contractors wanting to use. Cat 5 Elevator Test.
From www.formsbank.com
Roped & Hydraulic Elevator Annual Safety Test Report printable pdf download Cat 5 Elevator Test Depending on the type of device, some also require a category 5 full load inspection test every five years. How can i review my elevator devices and their current state of compliance? This directive is issued to all elevating contractors wanting to use alternative testing as a method of conducting category 5 testing. Element provides the most cost effective and. Cat 5 Elevator Test.
From www.hitachi.com
Development of UltraHighSpeed Elevator that Achieved the World’s Cat 5 Elevator Test Depending on the type of device, some also require a category 5 full load inspection test every five years. What is a category 5 inspection? Elevator inspection/test reports (elv3) for category 1, category 3, and category 5 inspections. This directive is issued to all elevating contractors wanting to use alternative testing as a method of conducting category 5 testing. Element. Cat 5 Elevator Test.
From www.vrogue.co
Elevator Maintenance Checklist Sharp Elevators And Es vrogue.co Cat 5 Elevator Test Depending on the type of device, some also require a category 5 full load inspection test every five years. The periodic category 1 tests and the modified periodic category 5 tests must be carried out at intervals not exceeding 5 years. Element provides the most cost effective and fully licensed & approved elevator testing in. How can i review my. Cat 5 Elevator Test.
From www.youtube.com
I Built an Elevator for My Cat YouTube Cat 5 Elevator Test What is a category 5 inspection? Elevator inspection/test reports (elv3) for category 1, category 3, and category 5 inspections. The periodic category 1 tests and the modified periodic category 5 tests must be carried out at intervals not exceeding 5 years. Element provides the most cost effective and fully licensed & approved elevator testing in. This directive is issued to. Cat 5 Elevator Test.
From kencorelevator.com
Elevator FullLoad Test Requirements and Procedures Elevator Cat 5 Elevator Test The periodic category 1 tests and the modified periodic category 5 tests must be carried out at intervals not exceeding 5 years. This directive is issued to all elevating contractors wanting to use alternative testing as a method of conducting category 5 testing. How can i review my elevator devices and their current state of compliance? What is a category. Cat 5 Elevator Test.