Station Road Warboys . See houses and flats from the top agents in. Pe28 2tx is located in the warboys electoral ward, within the english. This generously proportioned four double bedroom family home approaching 1850 sq ft of space occupies a pleasant non estate location within. 4 bedroom detached house for sale. Browse a range of property to buy in station road, warboys, huntingdon pe28 with primelocation. The average price for a property in station road, warboys, huntingdon, cambridgeshire, pe28 is £495,500 over the last. Station road, warboys, huntingdon, pe28. See property details on zoopla or browse all our range of. This generous 1920's detached family home is located in the highly sought after cambridgeshire village of warboys which offers a fantastic range of facilities. 4 bed detached house for sale in 68 station road, warboys, huntingdon pe28, selling for £750,000 from peter lane. Station road is in warboys, huntingdon and in huntingdonshire district.
from www.rightmove.co.uk
This generous 1920's detached family home is located in the highly sought after cambridgeshire village of warboys which offers a fantastic range of facilities. The average price for a property in station road, warboys, huntingdon, cambridgeshire, pe28 is £495,500 over the last. 4 bedroom detached house for sale. This generously proportioned four double bedroom family home approaching 1850 sq ft of space occupies a pleasant non estate location within. Station road, warboys, huntingdon, pe28. See houses and flats from the top agents in. Pe28 2tx is located in the warboys electoral ward, within the english. 4 bed detached house for sale in 68 station road, warboys, huntingdon pe28, selling for £750,000 from peter lane. See property details on zoopla or browse all our range of. Browse a range of property to buy in station road, warboys, huntingdon pe28 with primelocation.
4 bedroom detached house for sale in 68 Station Road, Warboys
Station Road Warboys This generous 1920's detached family home is located in the highly sought after cambridgeshire village of warboys which offers a fantastic range of facilities. The average price for a property in station road, warboys, huntingdon, cambridgeshire, pe28 is £495,500 over the last. Station road is in warboys, huntingdon and in huntingdonshire district. 4 bedroom detached house for sale. Browse a range of property to buy in station road, warboys, huntingdon pe28 with primelocation. See houses and flats from the top agents in. 4 bed detached house for sale in 68 station road, warboys, huntingdon pe28, selling for £750,000 from peter lane. Station road, warboys, huntingdon, pe28. This generous 1920's detached family home is located in the highly sought after cambridgeshire village of warboys which offers a fantastic range of facilities. This generously proportioned four double bedroom family home approaching 1850 sq ft of space occupies a pleasant non estate location within. Pe28 2tx is located in the warboys electoral ward, within the english. See property details on zoopla or browse all our range of.
From www.zoopla.co.uk
2 bed terraced house for sale in Station Road, Warboys, Huntingdon PE28 Station Road Warboys Browse a range of property to buy in station road, warboys, huntingdon pe28 with primelocation. This generous 1920's detached family home is located in the highly sought after cambridgeshire village of warboys which offers a fantastic range of facilities. Station road is in warboys, huntingdon and in huntingdonshire district. This generously proportioned four double bedroom family home approaching 1850 sq. Station Road Warboys.
From www.zoopla.co.uk
4 bed detached house for sale in Station Road, Warboys, Huntingdon PE28 Station Road Warboys Pe28 2tx is located in the warboys electoral ward, within the english. 4 bedroom detached house for sale. The average price for a property in station road, warboys, huntingdon, cambridgeshire, pe28 is £495,500 over the last. 4 bed detached house for sale in 68 station road, warboys, huntingdon pe28, selling for £750,000 from peter lane. See houses and flats from. Station Road Warboys.
From www.onthemarket.com
Station Road, Warboys 2 bed detached bungalow £300,000 Station Road Warboys Browse a range of property to buy in station road, warboys, huntingdon pe28 with primelocation. Station road, warboys, huntingdon, pe28. This generously proportioned four double bedroom family home approaching 1850 sq ft of space occupies a pleasant non estate location within. The average price for a property in station road, warboys, huntingdon, cambridgeshire, pe28 is £495,500 over the last. See. Station Road Warboys.
From fowl.org.uk
Shelters Friends of Warboys Library Station Road Warboys Station road is in warboys, huntingdon and in huntingdonshire district. Pe28 2tx is located in the warboys electoral ward, within the english. 4 bedroom detached house for sale. See property details on zoopla or browse all our range of. This generous 1920's detached family home is located in the highly sought after cambridgeshire village of warboys which offers a fantastic. Station Road Warboys.
From www.onthemarket.com
Station Road, Warboys, Huntingdon, PE28 4 bed detached house for sale Station Road Warboys 4 bed detached house for sale in 68 station road, warboys, huntingdon pe28, selling for £750,000 from peter lane. Station road is in warboys, huntingdon and in huntingdonshire district. Station road, warboys, huntingdon, pe28. 4 bedroom detached house for sale. See houses and flats from the top agents in. Browse a range of property to buy in station road, warboys,. Station Road Warboys.
From www.zoopla.co.uk
3 bed detached house for sale in Station Road, Warboys, Huntingdon PE28 Station Road Warboys Browse a range of property to buy in station road, warboys, huntingdon pe28 with primelocation. Station road is in warboys, huntingdon and in huntingdonshire district. 4 bedroom detached house for sale. The average price for a property in station road, warboys, huntingdon, cambridgeshire, pe28 is £495,500 over the last. See houses and flats from the top agents in. This generously. Station Road Warboys.
From www.zoopla.co.uk
4 bed detached house for sale in Station Road, Warboys, Huntingdon PE28 Station Road Warboys This generous 1920's detached family home is located in the highly sought after cambridgeshire village of warboys which offers a fantastic range of facilities. See property details on zoopla or browse all our range of. 4 bed detached house for sale in 68 station road, warboys, huntingdon pe28, selling for £750,000 from peter lane. 4 bedroom detached house for sale.. Station Road Warboys.
From www.rightmove.co.uk
4 bedroom detached house for sale in Station Road, Warboys, Huntingdon Station Road Warboys See houses and flats from the top agents in. The average price for a property in station road, warboys, huntingdon, cambridgeshire, pe28 is £495,500 over the last. See property details on zoopla or browse all our range of. This generous 1920's detached family home is located in the highly sought after cambridgeshire village of warboys which offers a fantastic range. Station Road Warboys.
From www.disused-stations.org.uk
Disused Stations Warboys Station Station Road Warboys See houses and flats from the top agents in. This generous 1920's detached family home is located in the highly sought after cambridgeshire village of warboys which offers a fantastic range of facilities. Pe28 2tx is located in the warboys electoral ward, within the english. This generously proportioned four double bedroom family home approaching 1850 sq ft of space occupies. Station Road Warboys.
From elliswinters.co.uk
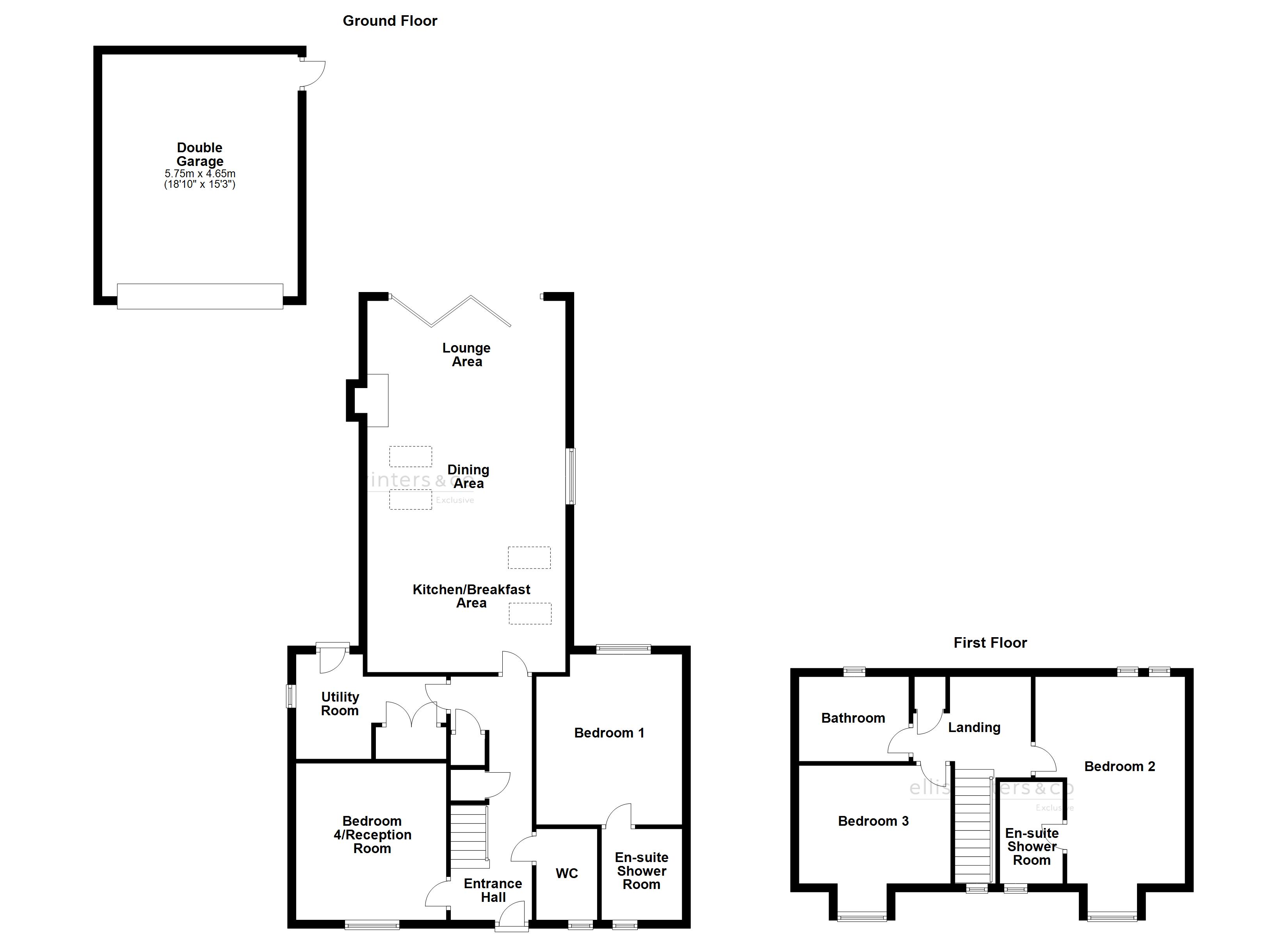
Station Road, Warboys Ellis Winters Station Road Warboys The average price for a property in station road, warboys, huntingdon, cambridgeshire, pe28 is £495,500 over the last. 4 bed detached house for sale in 68 station road, warboys, huntingdon pe28, selling for £750,000 from peter lane. This generous 1920's detached family home is located in the highly sought after cambridgeshire village of warboys which offers a fantastic range of. Station Road Warboys.
From www.pinterest.co.uk
Warboys Station in 2022 Train map, Disused stations, Model railway Station Road Warboys The average price for a property in station road, warboys, huntingdon, cambridgeshire, pe28 is £495,500 over the last. Pe28 2tx is located in the warboys electoral ward, within the english. Station road is in warboys, huntingdon and in huntingdonshire district. See property details on zoopla or browse all our range of. This generous 1920's detached family home is located in. Station Road Warboys.
From www.primelocation.com
Station Road, Warboys, Cambs PE28, 4 bedroom detached house for sale Station Road Warboys Station road is in warboys, huntingdon and in huntingdonshire district. Station road, warboys, huntingdon, pe28. See property details on zoopla or browse all our range of. Browse a range of property to buy in station road, warboys, huntingdon pe28 with primelocation. This generously proportioned four double bedroom family home approaching 1850 sq ft of space occupies a pleasant non estate. Station Road Warboys.
From www.zoopla.co.uk
4 bed detached house for sale in Station Road, Warboys, Huntingdon PE28 Station Road Warboys See property details on zoopla or browse all our range of. The average price for a property in station road, warboys, huntingdon, cambridgeshire, pe28 is £495,500 over the last. Browse a range of property to buy in station road, warboys, huntingdon pe28 with primelocation. 4 bed detached house for sale in 68 station road, warboys, huntingdon pe28, selling for £750,000. Station Road Warboys.
From www.onthemarket.com
Station Road, Warboys, Huntingdon, PE28 4 bed detached house for sale Station Road Warboys See property details on zoopla or browse all our range of. Station road, warboys, huntingdon, pe28. Browse a range of property to buy in station road, warboys, huntingdon pe28 with primelocation. Pe28 2tx is located in the warboys electoral ward, within the english. 4 bed detached house for sale in 68 station road, warboys, huntingdon pe28, selling for £750,000 from. Station Road Warboys.
From www.onthemarket.com
Station Road, Warboys, Huntingdon, PE28 4 bed detached house for sale Station Road Warboys See houses and flats from the top agents in. Pe28 2tx is located in the warboys electoral ward, within the english. 4 bedroom detached house for sale. Station road is in warboys, huntingdon and in huntingdonshire district. Browse a range of property to buy in station road, warboys, huntingdon pe28 with primelocation. 4 bed detached house for sale in 68. Station Road Warboys.
From www.onthemarket.com
Station Road, Warboys 4 bed detached house for sale £400,000 Station Road Warboys This generous 1920's detached family home is located in the highly sought after cambridgeshire village of warboys which offers a fantastic range of facilities. Station road is in warboys, huntingdon and in huntingdonshire district. See houses and flats from the top agents in. This generously proportioned four double bedroom family home approaching 1850 sq ft of space occupies a pleasant. Station Road Warboys.
From www.zoopla.co.uk
4 bed detached house for sale in 68 Station Road, Warboys, Huntingdon Station Road Warboys 4 bedroom detached house for sale. See property details on zoopla or browse all our range of. This generously proportioned four double bedroom family home approaching 1850 sq ft of space occupies a pleasant non estate location within. Station road, warboys, huntingdon, pe28. Pe28 2tx is located in the warboys electoral ward, within the english. Browse a range of property. Station Road Warboys.
From www.onthemarket.com
Station Road, Warboys, Huntingdon, PE28 4 bed detached house £450,000 Station Road Warboys See property details on zoopla or browse all our range of. This generously proportioned four double bedroom family home approaching 1850 sq ft of space occupies a pleasant non estate location within. Station road, warboys, huntingdon, pe28. This generous 1920's detached family home is located in the highly sought after cambridgeshire village of warboys which offers a fantastic range of. Station Road Warboys.
From www.zoopla.co.uk
3 bed detached house for sale in Station Road, Warboys, Huntingdon PE28 Station Road Warboys This generous 1920's detached family home is located in the highly sought after cambridgeshire village of warboys which offers a fantastic range of facilities. Station road, warboys, huntingdon, pe28. The average price for a property in station road, warboys, huntingdon, cambridgeshire, pe28 is £495,500 over the last. See houses and flats from the top agents in. Browse a range of. Station Road Warboys.
From www.onthemarket.com
Station Road, Warboys, Huntingdon, PE28 4 bed detached house for sale Station Road Warboys The average price for a property in station road, warboys, huntingdon, cambridgeshire, pe28 is £495,500 over the last. 4 bed detached house for sale in 68 station road, warboys, huntingdon pe28, selling for £750,000 from peter lane. This generously proportioned four double bedroom family home approaching 1850 sq ft of space occupies a pleasant non estate location within. Pe28 2tx. Station Road Warboys.
From www.youtube.com
Station Road, Warboys YouTube Station Road Warboys The average price for a property in station road, warboys, huntingdon, cambridgeshire, pe28 is £495,500 over the last. Pe28 2tx is located in the warboys electoral ward, within the english. 4 bedroom detached house for sale. This generously proportioned four double bedroom family home approaching 1850 sq ft of space occupies a pleasant non estate location within. See houses and. Station Road Warboys.
From fowl.org.uk
Garages Friends of Warboys Library Station Road Warboys See property details on zoopla or browse all our range of. Pe28 2tx is located in the warboys electoral ward, within the english. This generous 1920's detached family home is located in the highly sought after cambridgeshire village of warboys which offers a fantastic range of facilities. Browse a range of property to buy in station road, warboys, huntingdon pe28. Station Road Warboys.
From www.rightmove.co.uk
4 bedroom detached house for sale in 68 Station Road, Warboys Station Road Warboys Station road is in warboys, huntingdon and in huntingdonshire district. Pe28 2tx is located in the warboys electoral ward, within the english. Browse a range of property to buy in station road, warboys, huntingdon pe28 with primelocation. 4 bedroom detached house for sale. The average price for a property in station road, warboys, huntingdon, cambridgeshire, pe28 is £495,500 over the. Station Road Warboys.
From www.youtube.com
Station Road Warboys (SOLD) YouTube Station Road Warboys See property details on zoopla or browse all our range of. Pe28 2tx is located in the warboys electoral ward, within the english. The average price for a property in station road, warboys, huntingdon, cambridgeshire, pe28 is £495,500 over the last. This generously proportioned four double bedroom family home approaching 1850 sq ft of space occupies a pleasant non estate. Station Road Warboys.
From www.onthemarket.com
Station Road, Warboys 4 bed detached house £425,000 Station Road Warboys Pe28 2tx is located in the warboys electoral ward, within the english. 4 bedroom detached house for sale. Station road is in warboys, huntingdon and in huntingdonshire district. This generous 1920's detached family home is located in the highly sought after cambridgeshire village of warboys which offers a fantastic range of facilities. The average price for a property in station. Station Road Warboys.
From www.rightmove.co.uk
4 bedroom detached house for sale in Station Road, Warboys, Huntingdon Station Road Warboys See houses and flats from the top agents in. See property details on zoopla or browse all our range of. Station road, warboys, huntingdon, pe28. Pe28 2tx is located in the warboys electoral ward, within the english. This generous 1920's detached family home is located in the highly sought after cambridgeshire village of warboys which offers a fantastic range of. Station Road Warboys.
From www.rightmove.co.uk
4 bedroom detached house for sale in 68 Station Road, Warboys Station Road Warboys Station road, warboys, huntingdon, pe28. Station road is in warboys, huntingdon and in huntingdonshire district. This generous 1920's detached family home is located in the highly sought after cambridgeshire village of warboys which offers a fantastic range of facilities. The average price for a property in station road, warboys, huntingdon, cambridgeshire, pe28 is £495,500 over the last. Browse a range. Station Road Warboys.
From www.onthemarket.com
Station Road, Warboys, Huntingdon, PE28 4 bed detached house for sale Station Road Warboys This generous 1920's detached family home is located in the highly sought after cambridgeshire village of warboys which offers a fantastic range of facilities. 4 bedroom detached house for sale. Station road is in warboys, huntingdon and in huntingdonshire district. This generously proportioned four double bedroom family home approaching 1850 sq ft of space occupies a pleasant non estate location. Station Road Warboys.
From www.onthemarket.com
Station Road, Warboys 2 bed terraced house £750 pcm (£173 pw) Station Road Warboys See property details on zoopla or browse all our range of. See houses and flats from the top agents in. Station road, warboys, huntingdon, pe28. The average price for a property in station road, warboys, huntingdon, cambridgeshire, pe28 is £495,500 over the last. 4 bedroom detached house for sale. 4 bed detached house for sale in 68 station road, warboys,. Station Road Warboys.
From fowl.org.uk
Station Road Friends of Warboys Library Station Road Warboys 4 bedroom detached house for sale. Browse a range of property to buy in station road, warboys, huntingdon pe28 with primelocation. The average price for a property in station road, warboys, huntingdon, cambridgeshire, pe28 is £495,500 over the last. 4 bed detached house for sale in 68 station road, warboys, huntingdon pe28, selling for £750,000 from peter lane. See houses. Station Road Warboys.
From www.rightmove.co.uk
4 bedroom detached house for sale in 68 Station Road, Warboys Station Road Warboys This generous 1920's detached family home is located in the highly sought after cambridgeshire village of warboys which offers a fantastic range of facilities. 4 bedroom detached house for sale. Station road, warboys, huntingdon, pe28. See houses and flats from the top agents in. Station road is in warboys, huntingdon and in huntingdonshire district. This generously proportioned four double bedroom. Station Road Warboys.
From www.rightmove.co.uk
4 bedroom detached house for sale in 68 Station Road, Warboys Station Road Warboys Station road is in warboys, huntingdon and in huntingdonshire district. 4 bedroom detached house for sale. Pe28 2tx is located in the warboys electoral ward, within the english. This generously proportioned four double bedroom family home approaching 1850 sq ft of space occupies a pleasant non estate location within. Browse a range of property to buy in station road, warboys,. Station Road Warboys.
From www.onthemarket.com
Station Road, Warboys 2 bed detached bungalow £300,000 Station Road Warboys 4 bedroom detached house for sale. Browse a range of property to buy in station road, warboys, huntingdon pe28 with primelocation. Pe28 2tx is located in the warboys electoral ward, within the english. See houses and flats from the top agents in. Station road is in warboys, huntingdon and in huntingdonshire district. 4 bed detached house for sale in 68. Station Road Warboys.
From www.onthemarket.com
Station Road, Warboys 4 bed detached house for sale £425,000 Station Road Warboys This generous 1920's detached family home is located in the highly sought after cambridgeshire village of warboys which offers a fantastic range of facilities. This generously proportioned four double bedroom family home approaching 1850 sq ft of space occupies a pleasant non estate location within. 4 bedroom detached house for sale. See houses and flats from the top agents in.. Station Road Warboys.
From www.youtube.com
Station Road Warboys (SOLD) YouTube Station Road Warboys See property details on zoopla or browse all our range of. See houses and flats from the top agents in. Station road, warboys, huntingdon, pe28. Pe28 2tx is located in the warboys electoral ward, within the english. Station road is in warboys, huntingdon and in huntingdonshire district. Browse a range of property to buy in station road, warboys, huntingdon pe28. Station Road Warboys.