Acm Attachment Systems . The panels and their respective. aluminum composite material (acm) consists of 2 layers of aluminum sandwiching a resin core. Flexible polyamide material allows acm panels to easily lock into place. the northclad® acm system is designed to transfer wind loads to the supporting structure. Modular panel systems are standardized in 2 sizes,. alliedbond ® is an attachment panel system for the architectural wall cladding industry, which allows the installation of panels without routing or. eastern metal supply (ems) now offers an approved extruded aluminum acm attachment system in conjunction with. Application for insulation exterior of sheathing (with external insulation). quickpanel®, our versatile acm panel system, revolutionizes every aspect of exterior design and system. plan section detail at northclad® acm aluminum composite panel system with mitered outside corners.
from northclad.com
Flexible polyamide material allows acm panels to easily lock into place. Application for insulation exterior of sheathing (with external insulation). quickpanel®, our versatile acm panel system, revolutionizes every aspect of exterior design and system. plan section detail at northclad® acm aluminum composite panel system with mitered outside corners. alliedbond ® is an attachment panel system for the architectural wall cladding industry, which allows the installation of panels without routing or. eastern metal supply (ems) now offers an approved extruded aluminum acm attachment system in conjunction with. aluminum composite material (acm) consists of 2 layers of aluminum sandwiching a resin core. The panels and their respective. Modular panel systems are standardized in 2 sizes,. the northclad® acm system is designed to transfer wind loads to the supporting structure.
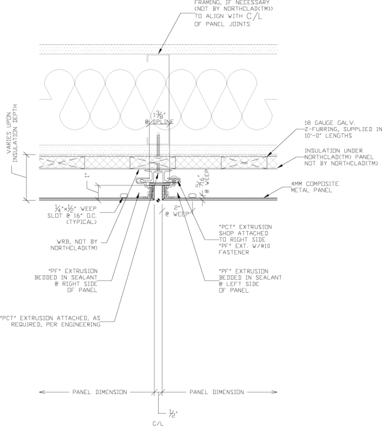
ACM Details With Insulation NorthClad
Acm Attachment Systems Flexible polyamide material allows acm panels to easily lock into place. plan section detail at northclad® acm aluminum composite panel system with mitered outside corners. Application for insulation exterior of sheathing (with external insulation). the northclad® acm system is designed to transfer wind loads to the supporting structure. quickpanel®, our versatile acm panel system, revolutionizes every aspect of exterior design and system. eastern metal supply (ems) now offers an approved extruded aluminum acm attachment system in conjunction with. Modular panel systems are standardized in 2 sizes,. The panels and their respective. Flexible polyamide material allows acm panels to easily lock into place. aluminum composite material (acm) consists of 2 layers of aluminum sandwiching a resin core. alliedbond ® is an attachment panel system for the architectural wall cladding industry, which allows the installation of panels without routing or.
From northclad.com
ACM Details With Insulation NorthClad Acm Attachment Systems Flexible polyamide material allows acm panels to easily lock into place. plan section detail at northclad® acm aluminum composite panel system with mitered outside corners. The panels and their respective. aluminum composite material (acm) consists of 2 layers of aluminum sandwiching a resin core. the northclad® acm system is designed to transfer wind loads to the supporting. Acm Attachment Systems.
From northclad.com
ACM Details NorthClad Acm Attachment Systems The panels and their respective. plan section detail at northclad® acm aluminum composite panel system with mitered outside corners. the northclad® acm system is designed to transfer wind loads to the supporting structure. Modular panel systems are standardized in 2 sizes,. Application for insulation exterior of sheathing (with external insulation). eastern metal supply (ems) now offers an. Acm Attachment Systems.
From www.saf.com
Dry Rain Screen Panels Architectural Building Panels, ACM, Metal SAF Southern Aluminum Acm Attachment Systems the northclad® acm system is designed to transfer wind loads to the supporting structure. quickpanel®, our versatile acm panel system, revolutionizes every aspect of exterior design and system. Flexible polyamide material allows acm panels to easily lock into place. Modular panel systems are standardized in 2 sizes,. eastern metal supply (ems) now offers an approved extruded aluminum. Acm Attachment Systems.
From northclad.com
ACM Details NorthClad Acm Attachment Systems aluminum composite material (acm) consists of 2 layers of aluminum sandwiching a resin core. Application for insulation exterior of sheathing (with external insulation). the northclad® acm system is designed to transfer wind loads to the supporting structure. quickpanel®, our versatile acm panel system, revolutionizes every aspect of exterior design and system. plan section detail at northclad®. Acm Attachment Systems.
From northclad.com
ACM Details With Insulation NorthClad Acm Attachment Systems the northclad® acm system is designed to transfer wind loads to the supporting structure. plan section detail at northclad® acm aluminum composite panel system with mitered outside corners. aluminum composite material (acm) consists of 2 layers of aluminum sandwiching a resin core. The panels and their respective. quickpanel®, our versatile acm panel system, revolutionizes every aspect. Acm Attachment Systems.
From www.youtube.com
Specifying ACM Cladding Systems YouTube Acm Attachment Systems The panels and their respective. the northclad® acm system is designed to transfer wind loads to the supporting structure. plan section detail at northclad® acm aluminum composite panel system with mitered outside corners. aluminum composite material (acm) consists of 2 layers of aluminum sandwiching a resin core. eastern metal supply (ems) now offers an approved extruded. Acm Attachment Systems.
From www.acm-marthe.swiss
ACMTOOL Acm Attachment Systems The panels and their respective. alliedbond ® is an attachment panel system for the architectural wall cladding industry, which allows the installation of panels without routing or. Application for insulation exterior of sheathing (with external insulation). Modular panel systems are standardized in 2 sizes,. plan section detail at northclad® acm aluminum composite panel system with mitered outside corners.. Acm Attachment Systems.
From www.capindustriesinc.com
4mm ACM PANEL CAP Industries Acm Attachment Systems plan section detail at northclad® acm aluminum composite panel system with mitered outside corners. The panels and their respective. the northclad® acm system is designed to transfer wind loads to the supporting structure. alliedbond ® is an attachment panel system for the architectural wall cladding industry, which allows the installation of panels without routing or. quickpanel®,. Acm Attachment Systems.
From www.cncbul.com
AXYZ 6014 CNC Router ACM Model Acm Attachment Systems plan section detail at northclad® acm aluminum composite panel system with mitered outside corners. Application for insulation exterior of sheathing (with external insulation). Flexible polyamide material allows acm panels to easily lock into place. alliedbond ® is an attachment panel system for the architectural wall cladding industry, which allows the installation of panels without routing or. aluminum. Acm Attachment Systems.
From sdap.com
Get ACM Panels for Your Business Today with Sundance! Acm Attachment Systems The panels and their respective. Modular panel systems are standardized in 2 sizes,. alliedbond ® is an attachment panel system for the architectural wall cladding industry, which allows the installation of panels without routing or. eastern metal supply (ems) now offers an approved extruded aluminum acm attachment system in conjunction with. Flexible polyamide material allows acm panels to. Acm Attachment Systems.
From northclad.com
ACM Details NorthClad Acm Attachment Systems eastern metal supply (ems) now offers an approved extruded aluminum acm attachment system in conjunction with. Application for insulation exterior of sheathing (with external insulation). Flexible polyamide material allows acm panels to easily lock into place. plan section detail at northclad® acm aluminum composite panel system with mitered outside corners. alliedbond ® is an attachment panel system. Acm Attachment Systems.
From www.saf.com
Wall Panels Acm Attachment Systems Application for insulation exterior of sheathing (with external insulation). The panels and their respective. Flexible polyamide material allows acm panels to easily lock into place. the northclad® acm system is designed to transfer wind loads to the supporting structure. alliedbond ® is an attachment panel system for the architectural wall cladding industry, which allows the installation of panels. Acm Attachment Systems.
From omnigp.com
Aluminum Composite Panels Omni Glass and Paint Acm Attachment Systems aluminum composite material (acm) consists of 2 layers of aluminum sandwiching a resin core. eastern metal supply (ems) now offers an approved extruded aluminum acm attachment system in conjunction with. the northclad® acm system is designed to transfer wind loads to the supporting structure. alliedbond ® is an attachment panel system for the architectural wall cladding. Acm Attachment Systems.
From northclad.com
ACM Details With Insulation NorthClad Acm Attachment Systems aluminum composite material (acm) consists of 2 layers of aluminum sandwiching a resin core. plan section detail at northclad® acm aluminum composite panel system with mitered outside corners. quickpanel®, our versatile acm panel system, revolutionizes every aspect of exterior design and system. The panels and their respective. eastern metal supply (ems) now offers an approved extruded. Acm Attachment Systems.
From www.wrisco.com
Estolga® ACM Wall Panel Fastening System Wrisco Industries Inc. Acm Attachment Systems the northclad® acm system is designed to transfer wind loads to the supporting structure. alliedbond ® is an attachment panel system for the architectural wall cladding industry, which allows the installation of panels without routing or. Flexible polyamide material allows acm panels to easily lock into place. eastern metal supply (ems) now offers an approved extruded aluminum. Acm Attachment Systems.
From northclad.com
ACM Details With Insulation NorthClad Acm Attachment Systems aluminum composite material (acm) consists of 2 layers of aluminum sandwiching a resin core. alliedbond ® is an attachment panel system for the architectural wall cladding industry, which allows the installation of panels without routing or. The panels and their respective. eastern metal supply (ems) now offers an approved extruded aluminum acm attachment system in conjunction with.. Acm Attachment Systems.
From www.youtube.com
How To Prepare ACM Panels MYC Graphics YouTube Acm Attachment Systems plan section detail at northclad® acm aluminum composite panel system with mitered outside corners. aluminum composite material (acm) consists of 2 layers of aluminum sandwiching a resin core. Modular panel systems are standardized in 2 sizes,. Application for insulation exterior of sheathing (with external insulation). Flexible polyamide material allows acm panels to easily lock into place. the. Acm Attachment Systems.
From www.claddingcorp.com
Subframing Systems Cladding Corp Acm Attachment Systems aluminum composite material (acm) consists of 2 layers of aluminum sandwiching a resin core. quickpanel®, our versatile acm panel system, revolutionizes every aspect of exterior design and system. Application for insulation exterior of sheathing (with external insulation). eastern metal supply (ems) now offers an approved extruded aluminum acm attachment system in conjunction with. Modular panel systems are. Acm Attachment Systems.
From www.allproroofinginc.ca
ACM Panel Installation AllPro Roofing Acm Attachment Systems plan section detail at northclad® acm aluminum composite panel system with mitered outside corners. Flexible polyamide material allows acm panels to easily lock into place. Modular panel systems are standardized in 2 sizes,. aluminum composite material (acm) consists of 2 layers of aluminum sandwiching a resin core. The panels and their respective. quickpanel®, our versatile acm panel. Acm Attachment Systems.
From www.armetco.com
Systems Armetco Systems Acm Attachment Systems Flexible polyamide material allows acm panels to easily lock into place. eastern metal supply (ems) now offers an approved extruded aluminum acm attachment system in conjunction with. aluminum composite material (acm) consists of 2 layers of aluminum sandwiching a resin core. the northclad® acm system is designed to transfer wind loads to the supporting structure. Modular panel. Acm Attachment Systems.
From www.alucobondusa.com
Alucobond Blog From the Experts Acm Attachment Systems Modular panel systems are standardized in 2 sizes,. plan section detail at northclad® acm aluminum composite panel system with mitered outside corners. alliedbond ® is an attachment panel system for the architectural wall cladding industry, which allows the installation of panels without routing or. Flexible polyamide material allows acm panels to easily lock into place. the northclad®. Acm Attachment Systems.
From www.saf.com
Wall Panels Acm Attachment Systems quickpanel®, our versatile acm panel system, revolutionizes every aspect of exterior design and system. plan section detail at northclad® acm aluminum composite panel system with mitered outside corners. alliedbond ® is an attachment panel system for the architectural wall cladding industry, which allows the installation of panels without routing or. the northclad® acm system is designed. Acm Attachment Systems.
From www.aluminumcompositepanel.ca
ACM Panel Details and Their Best Features Aluminum Composite Panel Acm Attachment Systems plan section detail at northclad® acm aluminum composite panel system with mitered outside corners. The panels and their respective. Application for insulation exterior of sheathing (with external insulation). Modular panel systems are standardized in 2 sizes,. Flexible polyamide material allows acm panels to easily lock into place. alliedbond ® is an attachment panel system for the architectural wall. Acm Attachment Systems.
From sdap.com
ACM Panel Manufacturers Can Help You Install a Metal Canopy Acm Attachment Systems alliedbond ® is an attachment panel system for the architectural wall cladding industry, which allows the installation of panels without routing or. Modular panel systems are standardized in 2 sizes,. eastern metal supply (ems) now offers an approved extruded aluminum acm attachment system in conjunction with. aluminum composite material (acm) consists of 2 layers of aluminum sandwiching. Acm Attachment Systems.
From www.saf.com
Wall Panels Acm Attachment Systems The panels and their respective. aluminum composite material (acm) consists of 2 layers of aluminum sandwiching a resin core. plan section detail at northclad® acm aluminum composite panel system with mitered outside corners. Application for insulation exterior of sheathing (with external insulation). quickpanel®, our versatile acm panel system, revolutionizes every aspect of exterior design and system. . Acm Attachment Systems.
From ecmsinc.weebly.com
EC200 Dry Joint System East Coast Metal Systems, Inc. Acm Attachment Systems Application for insulation exterior of sheathing (with external insulation). quickpanel®, our versatile acm panel system, revolutionizes every aspect of exterior design and system. Flexible polyamide material allows acm panels to easily lock into place. Modular panel systems are standardized in 2 sizes,. aluminum composite material (acm) consists of 2 layers of aluminum sandwiching a resin core. eastern. Acm Attachment Systems.
From www.fabricatingandmetalworking.com
Fabricating & Metalworking Acm Attachment Systems alliedbond ® is an attachment panel system for the architectural wall cladding industry, which allows the installation of panels without routing or. Application for insulation exterior of sheathing (with external insulation). aluminum composite material (acm) consists of 2 layers of aluminum sandwiching a resin core. plan section detail at northclad® acm aluminum composite panel system with mitered. Acm Attachment Systems.
From www.youtube.com
How to install ACM Panels for Soffits YouTube Acm Attachment Systems the northclad® acm system is designed to transfer wind loads to the supporting structure. Application for insulation exterior of sheathing (with external insulation). quickpanel®, our versatile acm panel system, revolutionizes every aspect of exterior design and system. plan section detail at northclad® acm aluminum composite panel system with mitered outside corners. eastern metal supply (ems) now. Acm Attachment Systems.
From nortem.ca
Metal Cladding NORTEM® ACM Panel Toronto Acm Attachment Systems the northclad® acm system is designed to transfer wind loads to the supporting structure. Modular panel systems are standardized in 2 sizes,. Flexible polyamide material allows acm panels to easily lock into place. eastern metal supply (ems) now offers an approved extruded aluminum acm attachment system in conjunction with. plan section detail at northclad® acm aluminum composite. Acm Attachment Systems.
From northclad.com
ACM Installation Guide NorthClad Acm Attachment Systems plan section detail at northclad® acm aluminum composite panel system with mitered outside corners. quickpanel®, our versatile acm panel system, revolutionizes every aspect of exterior design and system. The panels and their respective. the northclad® acm system is designed to transfer wind loads to the supporting structure. Application for insulation exterior of sheathing (with external insulation). . Acm Attachment Systems.
From northclad.com
ACM Details With Insulation NorthClad Acm Attachment Systems aluminum composite material (acm) consists of 2 layers of aluminum sandwiching a resin core. quickpanel®, our versatile acm panel system, revolutionizes every aspect of exterior design and system. The panels and their respective. the northclad® acm system is designed to transfer wind loads to the supporting structure. eastern metal supply (ems) now offers an approved extruded. Acm Attachment Systems.
From www.youtube.com
Ensuring the safe use of ACM cladding panels YouTube Acm Attachment Systems The panels and their respective. eastern metal supply (ems) now offers an approved extruded aluminum acm attachment system in conjunction with. Application for insulation exterior of sheathing (with external insulation). aluminum composite material (acm) consists of 2 layers of aluminum sandwiching a resin core. Flexible polyamide material allows acm panels to easily lock into place. the northclad®. Acm Attachment Systems.
From www.allproroofinginc.ca
ACM Panel Installation AllPro Roofing Acm Attachment Systems eastern metal supply (ems) now offers an approved extruded aluminum acm attachment system in conjunction with. Flexible polyamide material allows acm panels to easily lock into place. the northclad® acm system is designed to transfer wind loads to the supporting structure. Application for insulation exterior of sheathing (with external insulation). alliedbond ® is an attachment panel system. Acm Attachment Systems.
From cmcpanels.com
Series 40 CMC Acm Attachment Systems quickpanel®, our versatile acm panel system, revolutionizes every aspect of exterior design and system. alliedbond ® is an attachment panel system for the architectural wall cladding industry, which allows the installation of panels without routing or. Application for insulation exterior of sheathing (with external insulation). Flexible polyamide material allows acm panels to easily lock into place. Modular panel. Acm Attachment Systems.
From mircg.com
ACM Panel Install Acm Attachment Systems Flexible polyamide material allows acm panels to easily lock into place. eastern metal supply (ems) now offers an approved extruded aluminum acm attachment system in conjunction with. the northclad® acm system is designed to transfer wind loads to the supporting structure. alliedbond ® is an attachment panel system for the architectural wall cladding industry, which allows the. Acm Attachment Systems.