Metal Eave Brackets . Choosing the right gutter hanger will depend on the gutter profile, gutter size, the eave construction, the type of roofing system, and the. Get free shipping on qualified metal brackets products or buy online pick up in store today in the building materials department. When i designed my new shop and guest cabin, i wanted to include lots of them as eave supports. An eave overhang works to redirect the water away from the sidewall or endwall. Use with 2 x 2 and 2 x 3 steel tube frame to square eave corners for vertical roof and horizontal side sheet metal application. I especially like the pillowed look of the style’s multistep brackets: Learn how to install eave trim at a corner, overlapping eave trim, and fastening eave trim, and underlayment with our step by step guide and video. Eaves also control solar penetration, protect the building’s. Get free shipping on qualified interior/exterior brackets products or buy online pick up in store today in the building materials department. Big, sturdy pieces of decorative joinery used to support deep eave overhangs and small roofs. From peak brackets to angle and flat brackets, we offer a wide range of galvanized steel brackets (and clips) for the eave, gable, post angle, or.
from www.demak.com.au
Get free shipping on qualified metal brackets products or buy online pick up in store today in the building materials department. When i designed my new shop and guest cabin, i wanted to include lots of them as eave supports. Eaves also control solar penetration, protect the building’s. From peak brackets to angle and flat brackets, we offer a wide range of galvanized steel brackets (and clips) for the eave, gable, post angle, or. Use with 2 x 2 and 2 x 3 steel tube frame to square eave corners for vertical roof and horizontal side sheet metal application. An eave overhang works to redirect the water away from the sidewall or endwall. Learn how to install eave trim at a corner, overlapping eave trim, and fastening eave trim, and underlayment with our step by step guide and video. Choosing the right gutter hanger will depend on the gutter profile, gutter size, the eave construction, the type of roofing system, and the. Get free shipping on qualified interior/exterior brackets products or buy online pick up in store today in the building materials department. I especially like the pillowed look of the style’s multistep brackets:
Buy Online, Heavy Duty Fascia Bracket Gal Various Angles DEMAK
Metal Eave Brackets Big, sturdy pieces of decorative joinery used to support deep eave overhangs and small roofs. Use with 2 x 2 and 2 x 3 steel tube frame to square eave corners for vertical roof and horizontal side sheet metal application. From peak brackets to angle and flat brackets, we offer a wide range of galvanized steel brackets (and clips) for the eave, gable, post angle, or. Eaves also control solar penetration, protect the building’s. Learn how to install eave trim at a corner, overlapping eave trim, and fastening eave trim, and underlayment with our step by step guide and video. When i designed my new shop and guest cabin, i wanted to include lots of them as eave supports. Choosing the right gutter hanger will depend on the gutter profile, gutter size, the eave construction, the type of roofing system, and the. Big, sturdy pieces of decorative joinery used to support deep eave overhangs and small roofs. An eave overhang works to redirect the water away from the sidewall or endwall. I especially like the pillowed look of the style’s multistep brackets: Get free shipping on qualified metal brackets products or buy online pick up in store today in the building materials department. Get free shipping on qualified interior/exterior brackets products or buy online pick up in store today in the building materials department.
From us.safetyrespect.com
Flex eave brackets with counterhold for safety barriers on roof edges Metal Eave Brackets From peak brackets to angle and flat brackets, we offer a wide range of galvanized steel brackets (and clips) for the eave, gable, post angle, or. Learn how to install eave trim at a corner, overlapping eave trim, and fastening eave trim, and underlayment with our step by step guide and video. Get free shipping on qualified metal brackets products. Metal Eave Brackets.
From store.mchughsteel.com.au
Eave Bracket Suit 102mm Z Purlin McHugh Store Metal Eave Brackets Get free shipping on qualified metal brackets products or buy online pick up in store today in the building materials department. An eave overhang works to redirect the water away from the sidewall or endwall. When i designed my new shop and guest cabin, i wanted to include lots of them as eave supports. Learn how to install eave trim. Metal Eave Brackets.
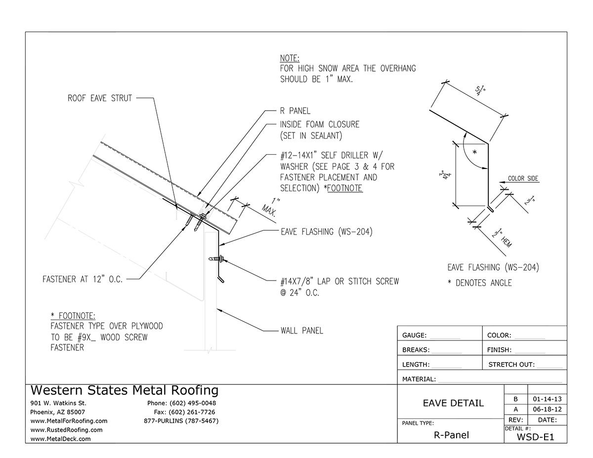
From www.westernstatesmetalroofing.com
Part WS204 Eave Flashings for PBR Panels in Metal Roofing Metal Eave Brackets Big, sturdy pieces of decorative joinery used to support deep eave overhangs and small roofs. Get free shipping on qualified interior/exterior brackets products or buy online pick up in store today in the building materials department. I especially like the pillowed look of the style’s multistep brackets: Get free shipping on qualified metal brackets products or buy online pick up. Metal Eave Brackets.
From www.versatube.com
Eave Corner Bracket for 2" x 4" Frame Accessories Building Kits Metal Eave Brackets Eaves also control solar penetration, protect the building’s. When i designed my new shop and guest cabin, i wanted to include lots of them as eave supports. Big, sturdy pieces of decorative joinery used to support deep eave overhangs and small roofs. Get free shipping on qualified interior/exterior brackets products or buy online pick up in store today in the. Metal Eave Brackets.
From lonepinetechnology.com
Under Eave Mounting Bracket Lone Pine Technology Metal Eave Brackets Eaves also control solar penetration, protect the building’s. An eave overhang works to redirect the water away from the sidewall or endwall. Learn how to install eave trim at a corner, overlapping eave trim, and fastening eave trim, and underlayment with our step by step guide and video. Use with 2 x 2 and 2 x 3 steel tube frame. Metal Eave Brackets.
From www.pinterest.com
Polyurethane Angled Eave Brackets Cottage exterior, Craftsman Metal Eave Brackets When i designed my new shop and guest cabin, i wanted to include lots of them as eave supports. Get free shipping on qualified metal brackets products or buy online pick up in store today in the building materials department. From peak brackets to angle and flat brackets, we offer a wide range of galvanized steel brackets (and clips) for. Metal Eave Brackets.
From www.alibaba.com
Eaves Gutters And Fittings Metal Bracket Hanger,Stainless Steel Gutter Metal Eave Brackets From peak brackets to angle and flat brackets, we offer a wide range of galvanized steel brackets (and clips) for the eave, gable, post angle, or. Big, sturdy pieces of decorative joinery used to support deep eave overhangs and small roofs. Eaves also control solar penetration, protect the building’s. An eave overhang works to redirect the water away from the. Metal Eave Brackets.
From www.pinterest.ca
Brackets, Exposed Rafter Tails, and Half Round Gutters. Craftsman Metal Eave Brackets Learn how to install eave trim at a corner, overlapping eave trim, and fastening eave trim, and underlayment with our step by step guide and video. Get free shipping on qualified interior/exterior brackets products or buy online pick up in store today in the building materials department. When i designed my new shop and guest cabin, i wanted to include. Metal Eave Brackets.
From www.youtube.com
How to attach an eaves bracket onto a column YouTube Metal Eave Brackets I especially like the pillowed look of the style’s multistep brackets: Big, sturdy pieces of decorative joinery used to support deep eave overhangs and small roofs. Get free shipping on qualified metal brackets products or buy online pick up in store today in the building materials department. Get free shipping on qualified interior/exterior brackets products or buy online pick up. Metal Eave Brackets.
From www.bunnings.com.au
Heritage 150 x 130mm EB3 Eave Bracket Bunnings Warehouse Metal Eave Brackets When i designed my new shop and guest cabin, i wanted to include lots of them as eave supports. Get free shipping on qualified interior/exterior brackets products or buy online pick up in store today in the building materials department. I especially like the pillowed look of the style’s multistep brackets: From peak brackets to angle and flat brackets, we. Metal Eave Brackets.
From www.demak.com.au
Buy Online, Heavy Duty Fascia Bracket Gal Various Angles DEMAK Metal Eave Brackets Big, sturdy pieces of decorative joinery used to support deep eave overhangs and small roofs. Choosing the right gutter hanger will depend on the gutter profile, gutter size, the eave construction, the type of roofing system, and the. When i designed my new shop and guest cabin, i wanted to include lots of them as eave supports. I especially like. Metal Eave Brackets.
From claytonvancearchitecture.com
It's all about the Eave — Clayton Vance Architecture Metal Eave Brackets An eave overhang works to redirect the water away from the sidewall or endwall. From peak brackets to angle and flat brackets, we offer a wide range of galvanized steel brackets (and clips) for the eave, gable, post angle, or. Get free shipping on qualified interior/exterior brackets products or buy online pick up in store today in the building materials. Metal Eave Brackets.
From spectis.us
BL2905L6/12 Pitch Eave Bracket 6"W x 5"H x 9.75" P Metal Eave Brackets Big, sturdy pieces of decorative joinery used to support deep eave overhangs and small roofs. Eaves also control solar penetration, protect the building’s. I especially like the pillowed look of the style’s multistep brackets: Get free shipping on qualified interior/exterior brackets products or buy online pick up in store today in the building materials department. When i designed my new. Metal Eave Brackets.
From www.metalroofingonline.com.au
Fascia standard Rafter Brackets Metal Roofing Online Metal Eave Brackets Big, sturdy pieces of decorative joinery used to support deep eave overhangs and small roofs. Get free shipping on qualified interior/exterior brackets products or buy online pick up in store today in the building materials department. When i designed my new shop and guest cabin, i wanted to include lots of them as eave supports. Choosing the right gutter hanger. Metal Eave Brackets.
From www.versatube.com
Eave Corner Bracket Accessories Building Kits Metal Eave Brackets An eave overhang works to redirect the water away from the sidewall or endwall. Get free shipping on qualified interior/exterior brackets products or buy online pick up in store today in the building materials department. Get free shipping on qualified metal brackets products or buy online pick up in store today in the building materials department. When i designed my. Metal Eave Brackets.
From www.bunnings.com.au
Heritage 240 x 140mm EB2 Eave Bracket Bunnings Warehouse Metal Eave Brackets An eave overhang works to redirect the water away from the sidewall or endwall. Big, sturdy pieces of decorative joinery used to support deep eave overhangs and small roofs. When i designed my new shop and guest cabin, i wanted to include lots of them as eave supports. Learn how to install eave trim at a corner, overlapping eave trim,. Metal Eave Brackets.
From www.weathervanes.net
Eaves Steel. (8'' Extension) Bracket Weathervane Mount WeatherVanes Metal Eave Brackets An eave overhang works to redirect the water away from the sidewall or endwall. I especially like the pillowed look of the style’s multistep brackets: When i designed my new shop and guest cabin, i wanted to include lots of them as eave supports. Get free shipping on qualified metal brackets products or buy online pick up in store today. Metal Eave Brackets.
From www.pinterest.com
Simpson Strong Ties can fabricate specialty brackets so you can attach Metal Eave Brackets An eave overhang works to redirect the water away from the sidewall or endwall. Choosing the right gutter hanger will depend on the gutter profile, gutter size, the eave construction, the type of roofing system, and the. Big, sturdy pieces of decorative joinery used to support deep eave overhangs and small roofs. Learn how to install eave trim at a. Metal Eave Brackets.
From www.youtube.com
How To Install Eave Trim Or Drip Edge On A Metal Roof. Updated For 2022 Metal Eave Brackets I especially like the pillowed look of the style’s multistep brackets: Use with 2 x 2 and 2 x 3 steel tube frame to square eave corners for vertical roof and horizontal side sheet metal application. Big, sturdy pieces of decorative joinery used to support deep eave overhangs and small roofs. Get free shipping on qualified metal brackets products or. Metal Eave Brackets.
From www.housterchoice.com
EAVE BRACKET HOUSTER CHOICE Metal Eave Brackets An eave overhang works to redirect the water away from the sidewall or endwall. Get free shipping on qualified interior/exterior brackets products or buy online pick up in store today in the building materials department. Big, sturdy pieces of decorative joinery used to support deep eave overhangs and small roofs. Learn how to install eave trim at a corner, overlapping. Metal Eave Brackets.
From www.metsec.com
Eaves Beams Purlins Roof Systems and Side Rails Metsec Metal Eave Brackets Learn how to install eave trim at a corner, overlapping eave trim, and fastening eave trim, and underlayment with our step by step guide and video. Choosing the right gutter hanger will depend on the gutter profile, gutter size, the eave construction, the type of roofing system, and the. Get free shipping on qualified metal brackets products or buy online. Metal Eave Brackets.
From www.amoybrand.com
Metal eave trim and gable flashing for wall and roof connection Metal Eave Brackets An eave overhang works to redirect the water away from the sidewall or endwall. Choosing the right gutter hanger will depend on the gutter profile, gutter size, the eave construction, the type of roofing system, and the. Use with 2 x 2 and 2 x 3 steel tube frame to square eave corners for vertical roof and horizontal side sheet. Metal Eave Brackets.
From www.pinterest.fr
Roof cladding, Steel structure buildings, Roof construction Metal Eave Brackets Get free shipping on qualified interior/exterior brackets products or buy online pick up in store today in the building materials department. Big, sturdy pieces of decorative joinery used to support deep eave overhangs and small roofs. From peak brackets to angle and flat brackets, we offer a wide range of galvanized steel brackets (and clips) for the eave, gable, post. Metal Eave Brackets.
From detail-library.co.uk
SR2 Steel Frame, Eaves Detail, Warm Roof Metal Eave Brackets Eaves also control solar penetration, protect the building’s. From peak brackets to angle and flat brackets, we offer a wide range of galvanized steel brackets (and clips) for the eave, gable, post angle, or. Choosing the right gutter hanger will depend on the gutter profile, gutter size, the eave construction, the type of roofing system, and the. Get free shipping. Metal Eave Brackets.
From www.deltamillwork.com
Brackets and Corbels — Delta Millwork Metal Eave Brackets When i designed my new shop and guest cabin, i wanted to include lots of them as eave supports. Big, sturdy pieces of decorative joinery used to support deep eave overhangs and small roofs. Get free shipping on qualified metal brackets products or buy online pick up in store today in the building materials department. Eaves also control solar penetration,. Metal Eave Brackets.
From www.pinterest.com
iron eave brackets Google Search Bracket, Fair grounds, Grounds Metal Eave Brackets Use with 2 x 2 and 2 x 3 steel tube frame to square eave corners for vertical roof and horizontal side sheet metal application. An eave overhang works to redirect the water away from the sidewall or endwall. Choosing the right gutter hanger will depend on the gutter profile, gutter size, the eave construction, the type of roofing system,. Metal Eave Brackets.
From www.kingspan.com
Eaves Beam Kingspan GB Metal Eave Brackets Big, sturdy pieces of decorative joinery used to support deep eave overhangs and small roofs. Get free shipping on qualified metal brackets products or buy online pick up in store today in the building materials department. I especially like the pillowed look of the style’s multistep brackets: When i designed my new shop and guest cabin, i wanted to include. Metal Eave Brackets.
From store.mchughsteel.com.au
Corner Eave Bracket C150 McHugh Store Metal Eave Brackets Choosing the right gutter hanger will depend on the gutter profile, gutter size, the eave construction, the type of roofing system, and the. Use with 2 x 2 and 2 x 3 steel tube frame to square eave corners for vertical roof and horizontal side sheet metal application. Get free shipping on qualified metal brackets products or buy online pick. Metal Eave Brackets.
From store.mchughsteel.com.au
Eave Bracket C250 McHugh Store Metal Eave Brackets Eaves also control solar penetration, protect the building’s. I especially like the pillowed look of the style’s multistep brackets: Get free shipping on qualified metal brackets products or buy online pick up in store today in the building materials department. Get free shipping on qualified interior/exterior brackets products or buy online pick up in store today in the building materials. Metal Eave Brackets.
From www.bw-industries.co.uk
Cleats, Stiffening Brackets, Ties & Brackets BW Industries Metal Eave Brackets Get free shipping on qualified metal brackets products or buy online pick up in store today in the building materials department. Choosing the right gutter hanger will depend on the gutter profile, gutter size, the eave construction, the type of roofing system, and the. An eave overhang works to redirect the water away from the sidewall or endwall. Big, sturdy. Metal Eave Brackets.
From www.elzinc.es
Eaves gutters rainwater systems ElZinc Metal Eave Brackets When i designed my new shop and guest cabin, i wanted to include lots of them as eave supports. Big, sturdy pieces of decorative joinery used to support deep eave overhangs and small roofs. From peak brackets to angle and flat brackets, we offer a wide range of galvanized steel brackets (and clips) for the eave, gable, post angle, or.. Metal Eave Brackets.
From www.youtube.com
Hand Made Eave Brackets YouTube Metal Eave Brackets Eaves also control solar penetration, protect the building’s. Choosing the right gutter hanger will depend on the gutter profile, gutter size, the eave construction, the type of roofing system, and the. Get free shipping on qualified metal brackets products or buy online pick up in store today in the building materials department. From peak brackets to angle and flat brackets,. Metal Eave Brackets.
From store.mchughsteel.com.au
Eave Bracket To Suit 152mm Z Purlin McHugh Store Metal Eave Brackets Learn how to install eave trim at a corner, overlapping eave trim, and fastening eave trim, and underlayment with our step by step guide and video. Get free shipping on qualified interior/exterior brackets products or buy online pick up in store today in the building materials department. Get free shipping on qualified metal brackets products or buy online pick up. Metal Eave Brackets.
From www.eakersdiy.co.uk
Roofing Angle Bracket Galvanised 50X50X60mm Eakers DIY Metal Eave Brackets An eave overhang works to redirect the water away from the sidewall or endwall. I especially like the pillowed look of the style’s multistep brackets: Big, sturdy pieces of decorative joinery used to support deep eave overhangs and small roofs. Learn how to install eave trim at a corner, overlapping eave trim, and fastening eave trim, and underlayment with our. Metal Eave Brackets.
From www.roofingpolycarbonate.co.uk
Eaves Beam Dedicated Gutter Bracket roofingpolycarbonate.co.uk Metal Eave Brackets Choosing the right gutter hanger will depend on the gutter profile, gutter size, the eave construction, the type of roofing system, and the. Get free shipping on qualified interior/exterior brackets products or buy online pick up in store today in the building materials department. Use with 2 x 2 and 2 x 3 steel tube frame to square eave corners. Metal Eave Brackets.