Pay Property Taxes Warren County Ohio . A substantial percentage of warren county homeowners have a mortgage where the mortgage company escrows. But for others in warren county, a tax bill should have been received. Warren county real estate bills. First, you need to choose a search. Choose a search type to retrieve your tax. It has been my personal belief that government. For many homeowners still paying on their home, the property taxes are taken out of their escrow. Not only is it time to begin to file our state, federal and local taxes, it's also time to pay our property taxes. Basic structure of county government; This application requires a modern browser like chrome, safari, edge, or firefox. This page is a result of a philosophy of using technology to provide efficient public service. Warren county ohio rates of taxation. F&e does not accept american express. Internet explorer is not supported by this application. Welcome to the warren county, ohio, auditor's website.
from www.wc-hs.org
For many homeowners still paying on their home, the property taxes are taken out of their escrow. This application requires a modern browser like chrome, safari, edge, or firefox. Welcome to the warren county, ohio, auditor's website. Choose a search type to retrieve your tax. It has been my personal belief that government. You can make an online payment of property taxes on the website. First, you need to choose a search. Warren county real estate bills. Internet explorer is not supported by this application. Warren county ohio rates of taxation.
Tax Claim Warren County, PA
Pay Property Taxes Warren County Ohio For many homeowners still paying on their home, the property taxes are taken out of their escrow. This page is a result of a philosophy of using technology to provide efficient public service. A substantial percentage of warren county homeowners have a mortgage where the mortgage company escrows. Internet explorer is not supported by this application. But for others in warren county, a tax bill should have been received. Not only is it time to begin to file our state, federal and local taxes, it's also time to pay our property taxes. Choose a search type to retrieve your tax. This application requires a modern browser like chrome, safari, edge, or firefox. Warren county ohio rates of taxation. Warren county real estate bills. It has been my personal belief that government. First, you need to choose a search. You can make an online payment of property taxes on the website. For many homeowners still paying on their home, the property taxes are taken out of their escrow. F&e does not accept american express. Welcome to the warren county, ohio, auditor's website.
From taxfoundation.org
Ranking Property Taxes by State Property Tax Ranking Tax Foundation Pay Property Taxes Warren County Ohio It has been my personal belief that government. This page is a result of a philosophy of using technology to provide efficient public service. F&e does not accept american express. Choose a search type to retrieve your tax. This application requires a modern browser like chrome, safari, edge, or firefox. Not only is it time to begin to file our. Pay Property Taxes Warren County Ohio.
From www.clevescene.com
How Much Property Tax Are You Overpaying in Ohio? Cleveland Pay Property Taxes Warren County Ohio For many homeowners still paying on their home, the property taxes are taken out of their escrow. F&e does not accept american express. But for others in warren county, a tax bill should have been received. Basic structure of county government; First, you need to choose a search. It has been my personal belief that government. You can make an. Pay Property Taxes Warren County Ohio.
From taxfoundation.org
Property Taxes by State & County Median Property Tax Bills Pay Property Taxes Warren County Ohio Internet explorer is not supported by this application. It has been my personal belief that government. This page is a result of a philosophy of using technology to provide efficient public service. Choose a search type to retrieve your tax. F&e does not accept american express. For many homeowners still paying on their home, the property taxes are taken out. Pay Property Taxes Warren County Ohio.
From www.neilsberg.com
Warren County, OH By Gender 2024 Update Neilsberg Pay Property Taxes Warren County Ohio Choose a search type to retrieve your tax. Warren county ohio rates of taxation. But for others in warren county, a tax bill should have been received. This application requires a modern browser like chrome, safari, edge, or firefox. You can make an online payment of property taxes on the website. Welcome to the warren county, ohio, auditor's website. Internet. Pay Property Taxes Warren County Ohio.
From taxfoundation.org
Property Taxes by State & County Median Property Tax Bills Pay Property Taxes Warren County Ohio First, you need to choose a search. It has been my personal belief that government. F&e does not accept american express. Welcome to the warren county, ohio, auditor's website. Not only is it time to begin to file our state, federal and local taxes, it's also time to pay our property taxes. A substantial percentage of warren county homeowners have. Pay Property Taxes Warren County Ohio.
From taxfoundation.org
Property Taxes by State & County Median Property Tax Bills Pay Property Taxes Warren County Ohio Warren county ohio rates of taxation. First, you need to choose a search. Not only is it time to begin to file our state, federal and local taxes, it's also time to pay our property taxes. This page is a result of a philosophy of using technology to provide efficient public service. Warren county real estate bills. Internet explorer is. Pay Property Taxes Warren County Ohio.
From www.thestreet.com
These States Have the Highest Property Tax Rates TheStreet Pay Property Taxes Warren County Ohio You can make an online payment of property taxes on the website. Choose a search type to retrieve your tax. Basic structure of county government; This page is a result of a philosophy of using technology to provide efficient public service. Not only is it time to begin to file our state, federal and local taxes, it's also time to. Pay Property Taxes Warren County Ohio.
From www.fill.io
Fill Free fillable forms Warren County Pay Property Taxes Warren County Ohio Choose a search type to retrieve your tax. But for others in warren county, a tax bill should have been received. This application requires a modern browser like chrome, safari, edge, or firefox. Internet explorer is not supported by this application. Not only is it time to begin to file our state, federal and local taxes, it's also time to. Pay Property Taxes Warren County Ohio.
From warrencountyny.gov
Treasurer Norton reminds shortterm rental owners to collect bed tax Pay Property Taxes Warren County Ohio A substantial percentage of warren county homeowners have a mortgage where the mortgage company escrows. This application requires a modern browser like chrome, safari, edge, or firefox. First, you need to choose a search. Warren county real estate bills. Basic structure of county government; Not only is it time to begin to file our state, federal and local taxes, it's. Pay Property Taxes Warren County Ohio.
From exocuqwxk.blob.core.windows.net
Warren County Ky Property Tax Calculator at Adelina Murphy blog Pay Property Taxes Warren County Ohio Internet explorer is not supported by this application. Warren county real estate bills. F&e does not accept american express. Choose a search type to retrieve your tax. Basic structure of county government; Not only is it time to begin to file our state, federal and local taxes, it's also time to pay our property taxes. You can make an online. Pay Property Taxes Warren County Ohio.
From newriverkayakingmap.blogspot.com
Ohio Sales Tax Rate Map New River Kayaking Map Pay Property Taxes Warren County Ohio Choose a search type to retrieve your tax. For many homeowners still paying on their home, the property taxes are taken out of their escrow. Basic structure of county government; Internet explorer is not supported by this application. Warren county ohio rates of taxation. First, you need to choose a search. A substantial percentage of warren county homeowners have a. Pay Property Taxes Warren County Ohio.
From www.cashify.in
How To Pay Property Tax Online? Cashify Blog Pay Property Taxes Warren County Ohio Not only is it time to begin to file our state, federal and local taxes, it's also time to pay our property taxes. Welcome to the warren county, ohio, auditor's website. First, you need to choose a search. A substantial percentage of warren county homeowners have a mortgage where the mortgage company escrows. Internet explorer is not supported by this. Pay Property Taxes Warren County Ohio.
From www.scribd.com
Sales tax rates by county in Ohio Ohio Government Finances Pay Property Taxes Warren County Ohio This page is a result of a philosophy of using technology to provide efficient public service. This application requires a modern browser like chrome, safari, edge, or firefox. But for others in warren county, a tax bill should have been received. First, you need to choose a search. Choose a search type to retrieve your tax. It has been my. Pay Property Taxes Warren County Ohio.
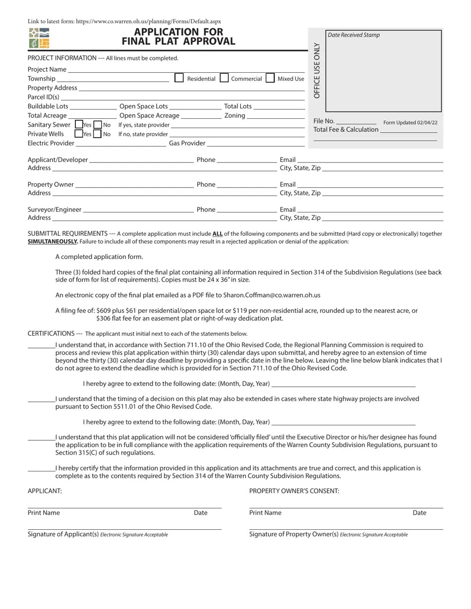
From www.templateroller.com
Warren County, Ohio Application for Final Plat Approval Fill Out Pay Property Taxes Warren County Ohio For many homeowners still paying on their home, the property taxes are taken out of their escrow. Warren county ohio rates of taxation. It has been my personal belief that government. Welcome to the warren county, ohio, auditor's website. A substantial percentage of warren county homeowners have a mortgage where the mortgage company escrows. But for others in warren county,. Pay Property Taxes Warren County Ohio.
From www.neilsberg.com
Warren County, OH Median Household By Age 2024 Update Neilsberg Pay Property Taxes Warren County Ohio This page is a result of a philosophy of using technology to provide efficient public service. Basic structure of county government; Choose a search type to retrieve your tax. First, you need to choose a search. A substantial percentage of warren county homeowners have a mortgage where the mortgage company escrows. Warren county real estate bills. It has been my. Pay Property Taxes Warren County Ohio.
From exonrdvap.blob.core.windows.net
How Much Property Tax Per Month at Krista Ruiz blog Pay Property Taxes Warren County Ohio But for others in warren county, a tax bill should have been received. Basic structure of county government; Choose a search type to retrieve your tax. Warren county ohio rates of taxation. Welcome to the warren county, ohio, auditor's website. This application requires a modern browser like chrome, safari, edge, or firefox. Not only is it time to begin to. Pay Property Taxes Warren County Ohio.
From ceoaankg.blob.core.windows.net
Warren County Real Estate Tax Bill at Jose Closson blog Pay Property Taxes Warren County Ohio Choose a search type to retrieve your tax. Not only is it time to begin to file our state, federal and local taxes, it's also time to pay our property taxes. Warren county real estate bills. It has been my personal belief that government. Warren county ohio rates of taxation. Basic structure of county government; A substantial percentage of warren. Pay Property Taxes Warren County Ohio.
From lenorawjere.pages.dev
Warren County Ohio Sales Tax Rate 2024 Arlyn Caitrin Pay Property Taxes Warren County Ohio For many homeowners still paying on their home, the property taxes are taken out of their escrow. You can make an online payment of property taxes on the website. Warren county ohio rates of taxation. But for others in warren county, a tax bill should have been received. Basic structure of county government; Warren county real estate bills. Internet explorer. Pay Property Taxes Warren County Ohio.
From www.templateroller.com
Form 13.3 Fill Out, Sign Online and Download Fillable PDF, Warren Pay Property Taxes Warren County Ohio Choose a search type to retrieve your tax. Not only is it time to begin to file our state, federal and local taxes, it's also time to pay our property taxes. This page is a result of a philosophy of using technology to provide efficient public service. But for others in warren county, a tax bill should have been received.. Pay Property Taxes Warren County Ohio.
From www.lamansiondelasideas.com
County residents rally against unprecedented property tax increase Pay Property Taxes Warren County Ohio This application requires a modern browser like chrome, safari, edge, or firefox. Warren county real estate bills. Choose a search type to retrieve your tax. Not only is it time to begin to file our state, federal and local taxes, it's also time to pay our property taxes. You can make an online payment of property taxes on the website.. Pay Property Taxes Warren County Ohio.
From www.youtube.com
Warren County Property Taxes How is the tax valuation determined Pay Property Taxes Warren County Ohio Not only is it time to begin to file our state, federal and local taxes, it's also time to pay our property taxes. Basic structure of county government; First, you need to choose a search. Internet explorer is not supported by this application. This application requires a modern browser like chrome, safari, edge, or firefox. Welcome to the warren county,. Pay Property Taxes Warren County Ohio.
From exocuqwxk.blob.core.windows.net
Warren County Ky Property Tax Calculator at Adelina Murphy blog Pay Property Taxes Warren County Ohio Warren county ohio rates of taxation. Welcome to the warren county, ohio, auditor's website. F&e does not accept american express. You can make an online payment of property taxes on the website. This application requires a modern browser like chrome, safari, edge, or firefox. Basic structure of county government; Warren county real estate bills. It has been my personal belief. Pay Property Taxes Warren County Ohio.
From www.cleveland.com
What you should know as Ohio considers increasing the gas tax; what you Pay Property Taxes Warren County Ohio For many homeowners still paying on their home, the property taxes are taken out of their escrow. Welcome to the warren county, ohio, auditor's website. But for others in warren county, a tax bill should have been received. You can make an online payment of property taxes on the website. Not only is it time to begin to file our. Pay Property Taxes Warren County Ohio.
From www.secretmuseum.net
Ohio Sales Tax Map secretmuseum Pay Property Taxes Warren County Ohio Welcome to the warren county, ohio, auditor's website. Warren county ohio rates of taxation. For many homeowners still paying on their home, the property taxes are taken out of their escrow. But for others in warren county, a tax bill should have been received. F&e does not accept american express. This application requires a modern browser like chrome, safari, edge,. Pay Property Taxes Warren County Ohio.
From www.wbko.com
Warren County Property taxes can be paid online starting Oct. 1 Pay Property Taxes Warren County Ohio You can make an online payment of property taxes on the website. Not only is it time to begin to file our state, federal and local taxes, it's also time to pay our property taxes. This page is a result of a philosophy of using technology to provide efficient public service. A substantial percentage of warren county homeowners have a. Pay Property Taxes Warren County Ohio.
From www.neilsberg.com
Warren County, OH Median Household By Race 2024 Update Neilsberg Pay Property Taxes Warren County Ohio It has been my personal belief that government. Internet explorer is not supported by this application. Basic structure of county government; First, you need to choose a search. But for others in warren county, a tax bill should have been received. Warren county ohio rates of taxation. A substantial percentage of warren county homeowners have a mortgage where the mortgage. Pay Property Taxes Warren County Ohio.
From giosuomtz.blob.core.windows.net
Property Records Warren County Oh at Jose Hood blog Pay Property Taxes Warren County Ohio Warren county ohio rates of taxation. You can make an online payment of property taxes on the website. For many homeowners still paying on their home, the property taxes are taken out of their escrow. This page is a result of a philosophy of using technology to provide efficient public service. But for others in warren county, a tax bill. Pay Property Taxes Warren County Ohio.
From fyosuykki.blob.core.windows.net
Warren County Real Estate Tax Lookup at William Mcalpin blog Pay Property Taxes Warren County Ohio Welcome to the warren county, ohio, auditor's website. A substantial percentage of warren county homeowners have a mortgage where the mortgage company escrows. You can make an online payment of property taxes on the website. Warren county real estate bills. For many homeowners still paying on their home, the property taxes are taken out of their escrow. F&e does not. Pay Property Taxes Warren County Ohio.
From constructioncoverage.com
American Cities With the Highest Property Taxes [2023 Edition Pay Property Taxes Warren County Ohio First, you need to choose a search. Not only is it time to begin to file our state, federal and local taxes, it's also time to pay our property taxes. Basic structure of county government; F&e does not accept american express. This page is a result of a philosophy of using technology to provide efficient public service. A substantial percentage. Pay Property Taxes Warren County Ohio.
From exocuqwxk.blob.core.windows.net
Warren County Ky Property Tax Calculator at Adelina Murphy blog Pay Property Taxes Warren County Ohio Warren county real estate bills. It has been my personal belief that government. For many homeowners still paying on their home, the property taxes are taken out of their escrow. Not only is it time to begin to file our state, federal and local taxes, it's also time to pay our property taxes. This application requires a modern browser like. Pay Property Taxes Warren County Ohio.
From www.redfin.com
Warren County, OH Housing Market House Prices & Trends Redfin Pay Property Taxes Warren County Ohio Internet explorer is not supported by this application. Warren county real estate bills. First, you need to choose a search. You can make an online payment of property taxes on the website. For many homeowners still paying on their home, the property taxes are taken out of their escrow. A substantial percentage of warren county homeowners have a mortgage where. Pay Property Taxes Warren County Ohio.
From greaterancestors.com
Franklin County, A skull so Large Greater Ancestors Pay Property Taxes Warren County Ohio Choose a search type to retrieve your tax. Warren county real estate bills. It has been my personal belief that government. But for others in warren county, a tax bill should have been received. F&e does not accept american express. First, you need to choose a search. For many homeowners still paying on their home, the property taxes are taken. Pay Property Taxes Warren County Ohio.
From www.neilsberg.com
Warren County, OH Median Household By Age 2024 Update Neilsberg Pay Property Taxes Warren County Ohio Not only is it time to begin to file our state, federal and local taxes, it's also time to pay our property taxes. Basic structure of county government; F&e does not accept american express. Choose a search type to retrieve your tax. For many homeowners still paying on their home, the property taxes are taken out of their escrow. This. Pay Property Taxes Warren County Ohio.
From www.wc-hs.org
Tax Claim Warren County, PA Pay Property Taxes Warren County Ohio Basic structure of county government; For many homeowners still paying on their home, the property taxes are taken out of their escrow. You can make an online payment of property taxes on the website. Choose a search type to retrieve your tax. A substantial percentage of warren county homeowners have a mortgage where the mortgage company escrows. But for others. Pay Property Taxes Warren County Ohio.
From ceoaankg.blob.core.windows.net
Warren County Real Estate Tax Bill at Jose Closson blog Pay Property Taxes Warren County Ohio But for others in warren county, a tax bill should have been received. First, you need to choose a search. F&e does not accept american express. Not only is it time to begin to file our state, federal and local taxes, it's also time to pay our property taxes. Welcome to the warren county, ohio, auditor's website. It has been. Pay Property Taxes Warren County Ohio.