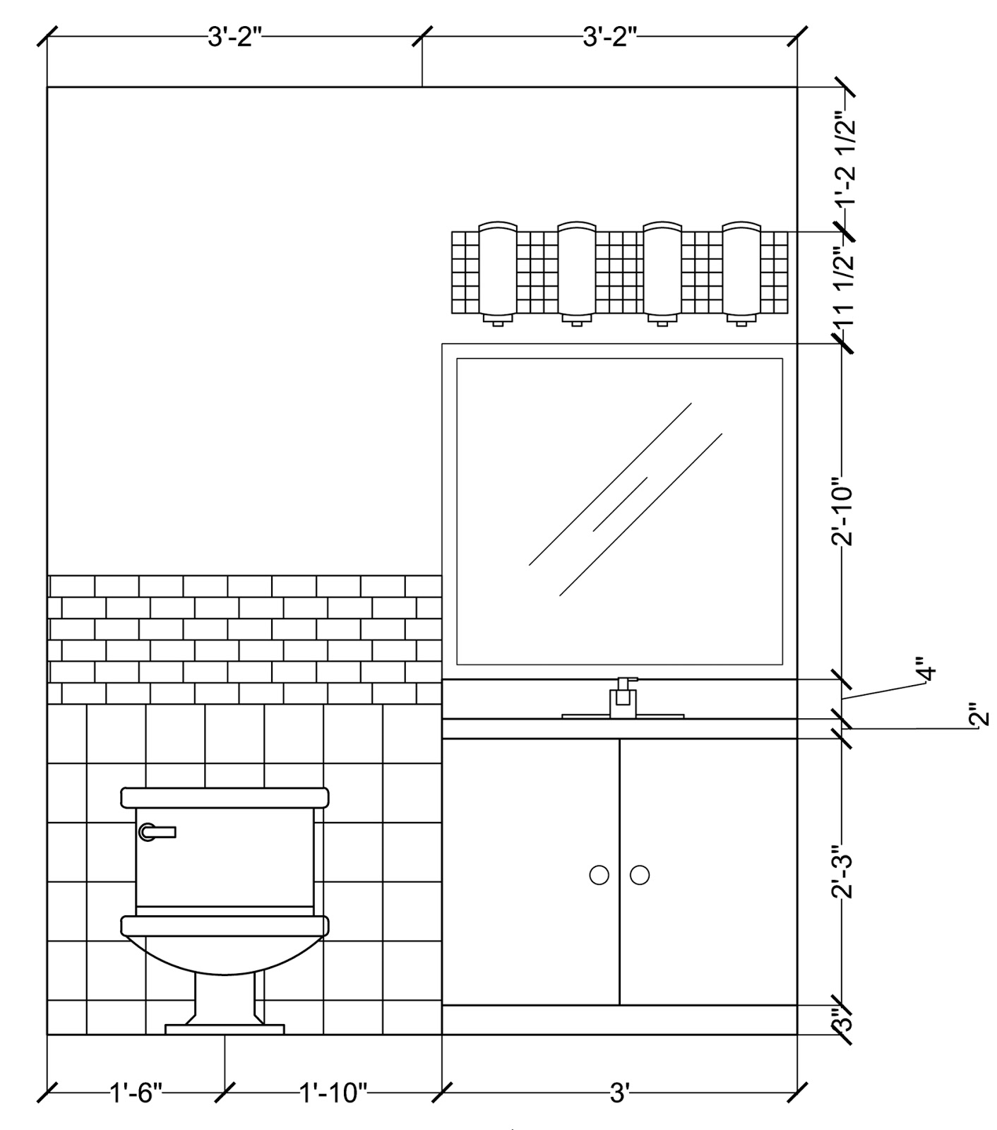
Bathroom Plan And Elevation With Dimensions . Bathroom floor plans by size are drawn to scale, detailed diagrams that provide a comprehensive overview of the layout and dimensions of a bathroom space. Bathroom layouts organize essential fixtures—such as toilets, sinks, showers, and bathtubs—within a space to support hygiene. Toilets, bidets, baths, showers, sinks, towel rails, bathroom. Browse our bathroom layout ideas below to find inspiration and spark your creativity. This autocad file contains the plan and elevation of the bathroom in different projections with the main dimensions. When designing your bathroom layout, start by positioning your sink, shower, tub, and toilet. Next, think about storage solutions, wet and dry zones, and how to tie everything together with beautiful aesthetics. The intuitive drawing tools allow you to make a basic plan for the bathroom with just 4 clicks. A practical guide with detailed scale drawings and templates to help you draw your own bathroom layouts and bathroom floor plans. This dwg file contains bathrooms in plan and in vertical projection, as well as the following 2d autocad models:
from cadbull.com
Toilets, bidets, baths, showers, sinks, towel rails, bathroom. A practical guide with detailed scale drawings and templates to help you draw your own bathroom layouts and bathroom floor plans. This dwg file contains bathrooms in plan and in vertical projection, as well as the following 2d autocad models: When designing your bathroom layout, start by positioning your sink, shower, tub, and toilet. Browse our bathroom layout ideas below to find inspiration and spark your creativity. Bathroom layouts organize essential fixtures—such as toilets, sinks, showers, and bathtubs—within a space to support hygiene. This autocad file contains the plan and elevation of the bathroom in different projections with the main dimensions. Next, think about storage solutions, wet and dry zones, and how to tie everything together with beautiful aesthetics. Bathroom floor plans by size are drawn to scale, detailed diagrams that provide a comprehensive overview of the layout and dimensions of a bathroom space. The intuitive drawing tools allow you to make a basic plan for the bathroom with just 4 clicks.
Elevation detail drawing of bathroom in dwg file. Cadbull
Bathroom Plan And Elevation With Dimensions This autocad file contains the plan and elevation of the bathroom in different projections with the main dimensions. Toilets, bidets, baths, showers, sinks, towel rails, bathroom. This autocad file contains the plan and elevation of the bathroom in different projections with the main dimensions. Bathroom layouts organize essential fixtures—such as toilets, sinks, showers, and bathtubs—within a space to support hygiene. A practical guide with detailed scale drawings and templates to help you draw your own bathroom layouts and bathroom floor plans. This dwg file contains bathrooms in plan and in vertical projection, as well as the following 2d autocad models: Bathroom floor plans by size are drawn to scale, detailed diagrams that provide a comprehensive overview of the layout and dimensions of a bathroom space. Browse our bathroom layout ideas below to find inspiration and spark your creativity. When designing your bathroom layout, start by positioning your sink, shower, tub, and toilet. Next, think about storage solutions, wet and dry zones, and how to tie everything together with beautiful aesthetics. The intuitive drawing tools allow you to make a basic plan for the bathroom with just 4 clicks.
From homedesignideas.help
Bathroom Plan And Elevation With Dimensions BEST HOME DESIGN IDEAS Bathroom Plan And Elevation With Dimensions When designing your bathroom layout, start by positioning your sink, shower, tub, and toilet. This dwg file contains bathrooms in plan and in vertical projection, as well as the following 2d autocad models: Bathroom floor plans by size are drawn to scale, detailed diagrams that provide a comprehensive overview of the layout and dimensions of a bathroom space. Bathroom layouts. Bathroom Plan And Elevation With Dimensions.
From www.artcomcrea.com
Bathroom Plan And Elevation With Dimensions Bathroom Plan And Elevation With Dimensions Next, think about storage solutions, wet and dry zones, and how to tie everything together with beautiful aesthetics. When designing your bathroom layout, start by positioning your sink, shower, tub, and toilet. This dwg file contains bathrooms in plan and in vertical projection, as well as the following 2d autocad models: The intuitive drawing tools allow you to make a. Bathroom Plan And Elevation With Dimensions.
From www.linecad.com
Bathroom Layout Free CAD Block And AutoCAD Drawing Bathroom Plan And Elevation With Dimensions When designing your bathroom layout, start by positioning your sink, shower, tub, and toilet. Browse our bathroom layout ideas below to find inspiration and spark your creativity. Next, think about storage solutions, wet and dry zones, and how to tie everything together with beautiful aesthetics. Toilets, bidets, baths, showers, sinks, towel rails, bathroom. This autocad file contains the plan and. Bathroom Plan And Elevation With Dimensions.
From cadbull.com
Elevation detail drawing of bathroom in dwg file. Cadbull Bathroom Plan And Elevation With Dimensions Browse our bathroom layout ideas below to find inspiration and spark your creativity. Bathroom layouts organize essential fixtures—such as toilets, sinks, showers, and bathtubs—within a space to support hygiene. The intuitive drawing tools allow you to make a basic plan for the bathroom with just 4 clicks. Toilets, bidets, baths, showers, sinks, towel rails, bathroom. Bathroom floor plans by size. Bathroom Plan And Elevation With Dimensions.
From www.pinterest.com
Bathroom elevations sample drawing Infografías Pinterest Bathroom Plan And Elevation With Dimensions A practical guide with detailed scale drawings and templates to help you draw your own bathroom layouts and bathroom floor plans. Browse our bathroom layout ideas below to find inspiration and spark your creativity. Toilets, bidets, baths, showers, sinks, towel rails, bathroom. When designing your bathroom layout, start by positioning your sink, shower, tub, and toilet. Bathroom layouts organize essential. Bathroom Plan And Elevation With Dimensions.
From mavink.com
Bathroom Elevation Cad Blocks Bathroom Plan And Elevation With Dimensions When designing your bathroom layout, start by positioning your sink, shower, tub, and toilet. A practical guide with detailed scale drawings and templates to help you draw your own bathroom layouts and bathroom floor plans. Next, think about storage solutions, wet and dry zones, and how to tie everything together with beautiful aesthetics. The intuitive drawing tools allow you to. Bathroom Plan And Elevation With Dimensions.
From cinvex.us
Bathroom Floor Plans With Dimensions Flooring Guide by Cinvex Bathroom Plan And Elevation With Dimensions When designing your bathroom layout, start by positioning your sink, shower, tub, and toilet. This dwg file contains bathrooms in plan and in vertical projection, as well as the following 2d autocad models: Bathroom floor plans by size are drawn to scale, detailed diagrams that provide a comprehensive overview of the layout and dimensions of a bathroom space. Next, think. Bathroom Plan And Elevation With Dimensions.
From www.artcomcrea.com
Bathroom Plan And Elevation With Dimensions Bathroom Plan And Elevation With Dimensions Browse our bathroom layout ideas below to find inspiration and spark your creativity. A practical guide with detailed scale drawings and templates to help you draw your own bathroom layouts and bathroom floor plans. Toilets, bidets, baths, showers, sinks, towel rails, bathroom. Bathroom floor plans by size are drawn to scale, detailed diagrams that provide a comprehensive overview of the. Bathroom Plan And Elevation With Dimensions.
From www.artcomcrea.com
Bathroom Plan And Elevation With Dimensions Bathroom Plan And Elevation With Dimensions Toilets, bidets, baths, showers, sinks, towel rails, bathroom. This autocad file contains the plan and elevation of the bathroom in different projections with the main dimensions. When designing your bathroom layout, start by positioning your sink, shower, tub, and toilet. Bathroom layouts organize essential fixtures—such as toilets, sinks, showers, and bathtubs—within a space to support hygiene. Bathroom floor plans by. Bathroom Plan And Elevation With Dimensions.
From www.dimensions.com
Bathroom Layouts Dimensions & Drawings Bathroom Plan And Elevation With Dimensions Bathroom layouts organize essential fixtures—such as toilets, sinks, showers, and bathtubs—within a space to support hygiene. This dwg file contains bathrooms in plan and in vertical projection, as well as the following 2d autocad models: The intuitive drawing tools allow you to make a basic plan for the bathroom with just 4 clicks. Next, think about storage solutions, wet and. Bathroom Plan And Elevation With Dimensions.
From househomeimage.blogspot.com
Famous Ideas 48+ Bathroom Ideas Elevation Bathroom Plan And Elevation With Dimensions Bathroom layouts organize essential fixtures—such as toilets, sinks, showers, and bathtubs—within a space to support hygiene. A practical guide with detailed scale drawings and templates to help you draw your own bathroom layouts and bathroom floor plans. Next, think about storage solutions, wet and dry zones, and how to tie everything together with beautiful aesthetics. This autocad file contains the. Bathroom Plan And Elevation With Dimensions.
From homedesignideas.help
Bathroom Plan And Elevation With Dimensions BEST HOME DESIGN IDEAS Bathroom Plan And Elevation With Dimensions When designing your bathroom layout, start by positioning your sink, shower, tub, and toilet. Toilets, bidets, baths, showers, sinks, towel rails, bathroom. Bathroom layouts organize essential fixtures—such as toilets, sinks, showers, and bathtubs—within a space to support hygiene. Bathroom floor plans by size are drawn to scale, detailed diagrams that provide a comprehensive overview of the layout and dimensions of. Bathroom Plan And Elevation With Dimensions.
From www.artcomcrea.com
Bathroom Plan And Elevation With Dimensions Bathroom Plan And Elevation With Dimensions Bathroom floor plans by size are drawn to scale, detailed diagrams that provide a comprehensive overview of the layout and dimensions of a bathroom space. When designing your bathroom layout, start by positioning your sink, shower, tub, and toilet. Bathroom layouts organize essential fixtures—such as toilets, sinks, showers, and bathtubs—within a space to support hygiene. A practical guide with detailed. Bathroom Plan And Elevation With Dimensions.
From homedesignideas.help
Bathroom Plan And Elevation With Dimensions BEST HOME DESIGN IDEAS Bathroom Plan And Elevation With Dimensions A practical guide with detailed scale drawings and templates to help you draw your own bathroom layouts and bathroom floor plans. When designing your bathroom layout, start by positioning your sink, shower, tub, and toilet. Next, think about storage solutions, wet and dry zones, and how to tie everything together with beautiful aesthetics. This autocad file contains the plan and. Bathroom Plan And Elevation With Dimensions.
From mromavolley.com
Design A Bathroom Floor Plan Free Floor Roma Bathroom Plan And Elevation With Dimensions When designing your bathroom layout, start by positioning your sink, shower, tub, and toilet. The intuitive drawing tools allow you to make a basic plan for the bathroom with just 4 clicks. Next, think about storage solutions, wet and dry zones, and how to tie everything together with beautiful aesthetics. Toilets, bidets, baths, showers, sinks, towel rails, bathroom. This autocad. Bathroom Plan And Elevation With Dimensions.
From thumb.cadbull.com
Toilet layout plan and elevation detail drawing in dwg AutoCAd file Bathroom Plan And Elevation With Dimensions Browse our bathroom layout ideas below to find inspiration and spark your creativity. When designing your bathroom layout, start by positioning your sink, shower, tub, and toilet. Bathroom layouts organize essential fixtures—such as toilets, sinks, showers, and bathtubs—within a space to support hygiene. Toilets, bidets, baths, showers, sinks, towel rails, bathroom. Next, think about storage solutions, wet and dry zones,. Bathroom Plan And Elevation With Dimensions.
From dwgmodels.com
Bathroom elevation DWG, free CAD Blocks download Bathroom Plan And Elevation With Dimensions Next, think about storage solutions, wet and dry zones, and how to tie everything together with beautiful aesthetics. A practical guide with detailed scale drawings and templates to help you draw your own bathroom layouts and bathroom floor plans. Bathroom floor plans by size are drawn to scale, detailed diagrams that provide a comprehensive overview of the layout and dimensions. Bathroom Plan And Elevation With Dimensions.
From www.pinterest.co.uk
Bath Elevation Bathroom design small, Bathroom design, House Bathroom Plan And Elevation With Dimensions Bathroom floor plans by size are drawn to scale, detailed diagrams that provide a comprehensive overview of the layout and dimensions of a bathroom space. The intuitive drawing tools allow you to make a basic plan for the bathroom with just 4 clicks. This dwg file contains bathrooms in plan and in vertical projection, as well as the following 2d. Bathroom Plan And Elevation With Dimensions.
From homedesignideas.help
Bathroom Plan And Elevation With Dimensions BEST HOME DESIGN IDEAS Bathroom Plan And Elevation With Dimensions Toilets, bidets, baths, showers, sinks, towel rails, bathroom. Browse our bathroom layout ideas below to find inspiration and spark your creativity. When designing your bathroom layout, start by positioning your sink, shower, tub, and toilet. The intuitive drawing tools allow you to make a basic plan for the bathroom with just 4 clicks. Bathroom layouts organize essential fixtures—such as toilets,. Bathroom Plan And Elevation With Dimensions.
From homedesignideas.help
Bathroom Plan And Elevation With Dimensions BEST HOME DESIGN IDEAS Bathroom Plan And Elevation With Dimensions The intuitive drawing tools allow you to make a basic plan for the bathroom with just 4 clicks. A practical guide with detailed scale drawings and templates to help you draw your own bathroom layouts and bathroom floor plans. Next, think about storage solutions, wet and dry zones, and how to tie everything together with beautiful aesthetics. Bathroom floor plans. Bathroom Plan And Elevation With Dimensions.
From www.pinterest.com
Bathroom elevation Elevation drawing, Interior design classes Bathroom Plan And Elevation With Dimensions A practical guide with detailed scale drawings and templates to help you draw your own bathroom layouts and bathroom floor plans. Bathroom floor plans by size are drawn to scale, detailed diagrams that provide a comprehensive overview of the layout and dimensions of a bathroom space. When designing your bathroom layout, start by positioning your sink, shower, tub, and toilet.. Bathroom Plan And Elevation With Dimensions.
From cadbull.com
Bathroom Plan And Section drawing DWG File Cadbull Bathroom Plan And Elevation With Dimensions Bathroom layouts organize essential fixtures—such as toilets, sinks, showers, and bathtubs—within a space to support hygiene. Toilets, bidets, baths, showers, sinks, towel rails, bathroom. Bathroom floor plans by size are drawn to scale, detailed diagrams that provide a comprehensive overview of the layout and dimensions of a bathroom space. When designing your bathroom layout, start by positioning your sink, shower,. Bathroom Plan And Elevation With Dimensions.
From www.edrawsoft.com
Free Editable Elevation Plan Examples & Templates EdrawMax Bathroom Plan And Elevation With Dimensions A practical guide with detailed scale drawings and templates to help you draw your own bathroom layouts and bathroom floor plans. Bathroom floor plans by size are drawn to scale, detailed diagrams that provide a comprehensive overview of the layout and dimensions of a bathroom space. Toilets, bidets, baths, showers, sinks, towel rails, bathroom. This dwg file contains bathrooms in. Bathroom Plan And Elevation With Dimensions.
From cadbull.com
Toilet folded elevation, all sided section, plan and installation Bathroom Plan And Elevation With Dimensions The intuitive drawing tools allow you to make a basic plan for the bathroom with just 4 clicks. When designing your bathroom layout, start by positioning your sink, shower, tub, and toilet. Bathroom floor plans by size are drawn to scale, detailed diagrams that provide a comprehensive overview of the layout and dimensions of a bathroom space. Browse our bathroom. Bathroom Plan And Elevation With Dimensions.
From cadbull.com
Detailed elevation view of 5’x7’ bathroom building is given in this Bathroom Plan And Elevation With Dimensions When designing your bathroom layout, start by positioning your sink, shower, tub, and toilet. Bathroom floor plans by size are drawn to scale, detailed diagrams that provide a comprehensive overview of the layout and dimensions of a bathroom space. Next, think about storage solutions, wet and dry zones, and how to tie everything together with beautiful aesthetics. The intuitive drawing. Bathroom Plan And Elevation With Dimensions.
From www.pinterest.com
Image result for STANDARD BATHROOM SHOWER ELEVATIONS WITH DIMENSIONS Bathroom Plan And Elevation With Dimensions The intuitive drawing tools allow you to make a basic plan for the bathroom with just 4 clicks. A practical guide with detailed scale drawings and templates to help you draw your own bathroom layouts and bathroom floor plans. Next, think about storage solutions, wet and dry zones, and how to tie everything together with beautiful aesthetics. Browse our bathroom. Bathroom Plan And Elevation With Dimensions.
From www.firstfloorplan.com
Standard Bathroom Dimension Details Drawing free Download AutoCAD file Bathroom Plan And Elevation With Dimensions A practical guide with detailed scale drawings and templates to help you draw your own bathroom layouts and bathroom floor plans. Toilets, bidets, baths, showers, sinks, towel rails, bathroom. This dwg file contains bathrooms in plan and in vertical projection, as well as the following 2d autocad models: Bathroom layouts organize essential fixtures—such as toilets, sinks, showers, and bathtubs—within a. Bathroom Plan And Elevation With Dimensions.
From cadbull.com
Bathroom and kitchen different side elevation view for apartment with Bathroom Plan And Elevation With Dimensions Next, think about storage solutions, wet and dry zones, and how to tie everything together with beautiful aesthetics. When designing your bathroom layout, start by positioning your sink, shower, tub, and toilet. A practical guide with detailed scale drawings and templates to help you draw your own bathroom layouts and bathroom floor plans. The intuitive drawing tools allow you to. Bathroom Plan And Elevation With Dimensions.
From www.tamifaulknerdesign.com
GETTING THE MOST OUT OF A BATHROOM FLOOR PLAN — Tami Faulkner Design Bathroom Plan And Elevation With Dimensions Toilets, bidets, baths, showers, sinks, towel rails, bathroom. Bathroom floor plans by size are drawn to scale, detailed diagrams that provide a comprehensive overview of the layout and dimensions of a bathroom space. This autocad file contains the plan and elevation of the bathroom in different projections with the main dimensions. Browse our bathroom layout ideas below to find inspiration. Bathroom Plan And Elevation With Dimensions.
From www.pinterest.com
Bathroom Elevation Design in 2020 Bathroom drawing, Bathroom plans Bathroom Plan And Elevation With Dimensions Toilets, bidets, baths, showers, sinks, towel rails, bathroom. The intuitive drawing tools allow you to make a basic plan for the bathroom with just 4 clicks. Browse our bathroom layout ideas below to find inspiration and spark your creativity. When designing your bathroom layout, start by positioning your sink, shower, tub, and toilet. Bathroom layouts organize essential fixtures—such as toilets,. Bathroom Plan And Elevation With Dimensions.
From homedesignideas.help
Bathroom Plan And Elevation With Dimensions BEST HOME DESIGN IDEAS Bathroom Plan And Elevation With Dimensions When designing your bathroom layout, start by positioning your sink, shower, tub, and toilet. Next, think about storage solutions, wet and dry zones, and how to tie everything together with beautiful aesthetics. Browse our bathroom layout ideas below to find inspiration and spark your creativity. This autocad file contains the plan and elevation of the bathroom in different projections with. Bathroom Plan And Elevation With Dimensions.
From cadbull.com
Bathroom elevation design dwg file Cadbull Bathroom Plan And Elevation With Dimensions This autocad file contains the plan and elevation of the bathroom in different projections with the main dimensions. Bathroom floor plans by size are drawn to scale, detailed diagrams that provide a comprehensive overview of the layout and dimensions of a bathroom space. This dwg file contains bathrooms in plan and in vertical projection, as well as the following 2d. Bathroom Plan And Elevation With Dimensions.
From engineeringdiscoveries.com
50+ Typical Bathroom Dimensions And Layouts Engineering Discoveries Bathroom Plan And Elevation With Dimensions Browse our bathroom layout ideas below to find inspiration and spark your creativity. The intuitive drawing tools allow you to make a basic plan for the bathroom with just 4 clicks. This autocad file contains the plan and elevation of the bathroom in different projections with the main dimensions. Next, think about storage solutions, wet and dry zones, and how. Bathroom Plan And Elevation With Dimensions.
From www.vrogue.co
Bathroom Plan With Detail Plan And Section Drawing In vrogue.co Bathroom Plan And Elevation With Dimensions This autocad file contains the plan and elevation of the bathroom in different projections with the main dimensions. Toilets, bidets, baths, showers, sinks, towel rails, bathroom. This dwg file contains bathrooms in plan and in vertical projection, as well as the following 2d autocad models: When designing your bathroom layout, start by positioning your sink, shower, tub, and toilet. Next,. Bathroom Plan And Elevation With Dimensions.
From cadbull.com
Sectional elevation design of bathroom dwg file Cadbull Bathroom Plan And Elevation With Dimensions A practical guide with detailed scale drawings and templates to help you draw your own bathroom layouts and bathroom floor plans. Toilets, bidets, baths, showers, sinks, towel rails, bathroom. Next, think about storage solutions, wet and dry zones, and how to tie everything together with beautiful aesthetics. Bathroom layouts organize essential fixtures—such as toilets, sinks, showers, and bathtubs—within a space. Bathroom Plan And Elevation With Dimensions.