How To Size A Ct Cabinet . The current transformer (ct) converts primary current into a secondary current of smaller or larger value through a certain transformation ratio. Cabinets with ct (current transformer) mounting bases may be used with service entrance sizes and voltages as follows: Usually the case, size is the most ostensive differentiating factor e.g. According to the euserc (electric utility service equipment. Most times, the current transformer reduces large current for protection, measurement, and other purposes. (a) 120/240 v, 10, 3w,. A ct metering socket usually becomes necessary when a certain amperage or voltage is reached.
from www.schemadigital.com
A ct metering socket usually becomes necessary when a certain amperage or voltage is reached. (a) 120/240 v, 10, 3w,. The current transformer (ct) converts primary current into a secondary current of smaller or larger value through a certain transformation ratio. Cabinets with ct (current transformer) mounting bases may be used with service entrance sizes and voltages as follows: Most times, the current transformer reduces large current for protection, measurement, and other purposes. According to the euserc (electric utility service equipment. Usually the case, size is the most ostensive differentiating factor e.g.
How To Wire A Ct Electric Meter » Schema Digital
How To Size A Ct Cabinet The current transformer (ct) converts primary current into a secondary current of smaller or larger value through a certain transformation ratio. A ct metering socket usually becomes necessary when a certain amperage or voltage is reached. Cabinets with ct (current transformer) mounting bases may be used with service entrance sizes and voltages as follows: According to the euserc (electric utility service equipment. Most times, the current transformer reduces large current for protection, measurement, and other purposes. Usually the case, size is the most ostensive differentiating factor e.g. (a) 120/240 v, 10, 3w,. The current transformer (ct) converts primary current into a secondary current of smaller or larger value through a certain transformation ratio.
From njsullivan.com
N.J. SULLIVANPEPCO NEMA 1 CT How To Size A Ct Cabinet The current transformer (ct) converts primary current into a secondary current of smaller or larger value through a certain transformation ratio. Most times, the current transformer reduces large current for protection, measurement, and other purposes. Usually the case, size is the most ostensive differentiating factor e.g. (a) 120/240 v, 10, 3w,. According to the euserc (electric utility service equipment. A. How To Size A Ct Cabinet.
From www.measuringknowhow.com
Medicine Size Finding the Perfect Fit Calculator Help How To Size A Ct Cabinet Cabinets with ct (current transformer) mounting bases may be used with service entrance sizes and voltages as follows: Usually the case, size is the most ostensive differentiating factor e.g. (a) 120/240 v, 10, 3w,. The current transformer (ct) converts primary current into a secondary current of smaller or larger value through a certain transformation ratio. According to the euserc (electric. How To Size A Ct Cabinet.
From homivista.com
what is a ct Homi Vista How To Size A Ct Cabinet Most times, the current transformer reduces large current for protection, measurement, and other purposes. Usually the case, size is the most ostensive differentiating factor e.g. Cabinets with ct (current transformer) mounting bases may be used with service entrance sizes and voltages as follows: (a) 120/240 v, 10, 3w,. A ct metering socket usually becomes necessary when a certain amperage or. How To Size A Ct Cabinet.
From homivista.com
what is a ct Homi Vista How To Size A Ct Cabinet The current transformer (ct) converts primary current into a secondary current of smaller or larger value through a certain transformation ratio. Most times, the current transformer reduces large current for protection, measurement, and other purposes. A ct metering socket usually becomes necessary when a certain amperage or voltage is reached. Cabinets with ct (current transformer) mounting bases may be used. How To Size A Ct Cabinet.
From circuitadossataz.z14.web.core.windows.net
Meter And Ct How To Size A Ct Cabinet Most times, the current transformer reduces large current for protection, measurement, and other purposes. (a) 120/240 v, 10, 3w,. Cabinets with ct (current transformer) mounting bases may be used with service entrance sizes and voltages as follows: The current transformer (ct) converts primary current into a secondary current of smaller or larger value through a certain transformation ratio. According to. How To Size A Ct Cabinet.
From njsullivan.com
PEPCO NEMA 1 CT N.J. SULLIVAN How To Size A Ct Cabinet Usually the case, size is the most ostensive differentiating factor e.g. According to the euserc (electric utility service equipment. A ct metering socket usually becomes necessary when a certain amperage or voltage is reached. The current transformer (ct) converts primary current into a secondary current of smaller or larger value through a certain transformation ratio. Most times, the current transformer. How To Size A Ct Cabinet.
From engineering-society.com
Helpful Kitchen Dimensions Standard for Daily Use How To Size A Ct Cabinet Usually the case, size is the most ostensive differentiating factor e.g. The current transformer (ct) converts primary current into a secondary current of smaller or larger value through a certain transformation ratio. A ct metering socket usually becomes necessary when a certain amperage or voltage is reached. According to the euserc (electric utility service equipment. (a) 120/240 v, 10, 3w,.. How To Size A Ct Cabinet.
From codeelectric.com
CT Galvanized Steel CSA 1 (1200 to 1600amp) Code Electric How To Size A Ct Cabinet According to the euserc (electric utility service equipment. Most times, the current transformer reduces large current for protection, measurement, and other purposes. Usually the case, size is the most ostensive differentiating factor e.g. (a) 120/240 v, 10, 3w,. A ct metering socket usually becomes necessary when a certain amperage or voltage is reached. The current transformer (ct) converts primary current. How To Size A Ct Cabinet.
From njsullivan.com
N.J. SULLIVAN How To Size A Ct Cabinet Usually the case, size is the most ostensive differentiating factor e.g. A ct metering socket usually becomes necessary when a certain amperage or voltage is reached. Cabinets with ct (current transformer) mounting bases may be used with service entrance sizes and voltages as follows: The current transformer (ct) converts primary current into a secondary current of smaller or larger value. How To Size A Ct Cabinet.
From schematicgonorejomg2zmq.z13.web.core.windows.net
Ct And Meter Wiring Diagram How To Size A Ct Cabinet Usually the case, size is the most ostensive differentiating factor e.g. Most times, the current transformer reduces large current for protection, measurement, and other purposes. According to the euserc (electric utility service equipment. The current transformer (ct) converts primary current into a secondary current of smaller or larger value through a certain transformation ratio. A ct metering socket usually becomes. How To Size A Ct Cabinet.
From njsullivan.com
N.J. SULLIVANNEMA Type 3R CT and Termination How To Size A Ct Cabinet A ct metering socket usually becomes necessary when a certain amperage or voltage is reached. Usually the case, size is the most ostensive differentiating factor e.g. According to the euserc (electric utility service equipment. The current transformer (ct) converts primary current into a secondary current of smaller or larger value through a certain transformation ratio. (a) 120/240 v, 10, 3w,.. How To Size A Ct Cabinet.
From njsullivan.com
N.J. SULLIVAN3phase CT How To Size A Ct Cabinet A ct metering socket usually becomes necessary when a certain amperage or voltage is reached. According to the euserc (electric utility service equipment. Most times, the current transformer reduces large current for protection, measurement, and other purposes. The current transformer (ct) converts primary current into a secondary current of smaller or larger value through a certain transformation ratio. Cabinets with. How To Size A Ct Cabinet.
From www.ctmrihub.com
CT Scan Room size What do you need to know? CTMRIHUB How To Size A Ct Cabinet (a) 120/240 v, 10, 3w,. A ct metering socket usually becomes necessary when a certain amperage or voltage is reached. According to the euserc (electric utility service equipment. Most times, the current transformer reduces large current for protection, measurement, and other purposes. The current transformer (ct) converts primary current into a secondary current of smaller or larger value through a. How To Size A Ct Cabinet.
From njsullivan.com
NEMA type 3r CT and Termination N.J. SULLIVAN How To Size A Ct Cabinet (a) 120/240 v, 10, 3w,. Usually the case, size is the most ostensive differentiating factor e.g. According to the euserc (electric utility service equipment. The current transformer (ct) converts primary current into a secondary current of smaller or larger value through a certain transformation ratio. Most times, the current transformer reduces large current for protection, measurement, and other purposes. Cabinets. How To Size A Ct Cabinet.
From njsullivan.com
CT MadePowder Coated N.J. SULLIVAN How To Size A Ct Cabinet (a) 120/240 v, 10, 3w,. Usually the case, size is the most ostensive differentiating factor e.g. The current transformer (ct) converts primary current into a secondary current of smaller or larger value through a certain transformation ratio. Most times, the current transformer reduces large current for protection, measurement, and other purposes. According to the euserc (electric utility service equipment. A. How To Size A Ct Cabinet.
From www.schemadigital.com
How To Wire A Ct Electric Meter » Schema Digital How To Size A Ct Cabinet (a) 120/240 v, 10, 3w,. Usually the case, size is the most ostensive differentiating factor e.g. Cabinets with ct (current transformer) mounting bases may be used with service entrance sizes and voltages as follows: Most times, the current transformer reduces large current for protection, measurement, and other purposes. According to the euserc (electric utility service equipment. The current transformer (ct). How To Size A Ct Cabinet.
From njsullivan.com
PEPCO NEMA 3R CT N.J. SULLIVAN How To Size A Ct Cabinet Cabinets with ct (current transformer) mounting bases may be used with service entrance sizes and voltages as follows: Usually the case, size is the most ostensive differentiating factor e.g. Most times, the current transformer reduces large current for protection, measurement, and other purposes. According to the euserc (electric utility service equipment. A ct metering socket usually becomes necessary when a. How To Size A Ct Cabinet.
From njsullivan.com
N.J. SULLIVANCT How To Size A Ct Cabinet Cabinets with ct (current transformer) mounting bases may be used with service entrance sizes and voltages as follows: Most times, the current transformer reduces large current for protection, measurement, and other purposes. Usually the case, size is the most ostensive differentiating factor e.g. A ct metering socket usually becomes necessary when a certain amperage or voltage is reached. The current. How To Size A Ct Cabinet.
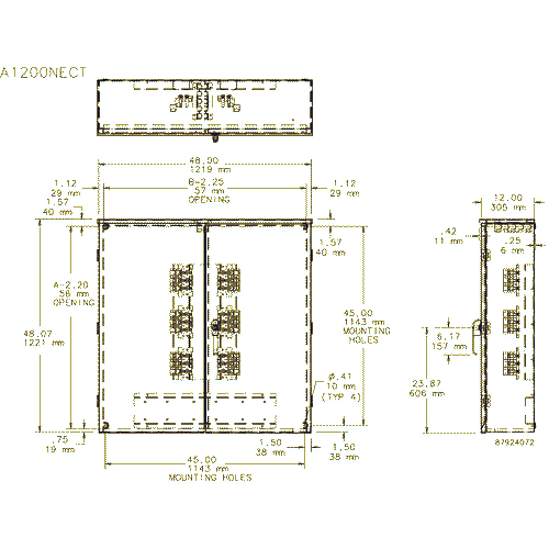
From www.globalindustrial.com
Hoffman A1200NECT, Ct W Lugs, Galvanized/Gray B1456508 How To Size A Ct Cabinet A ct metering socket usually becomes necessary when a certain amperage or voltage is reached. Most times, the current transformer reduces large current for protection, measurement, and other purposes. Cabinets with ct (current transformer) mounting bases may be used with service entrance sizes and voltages as follows: (a) 120/240 v, 10, 3w,. According to the euserc (electric utility service equipment.. How To Size A Ct Cabinet.
From www.reddit.com
Proud of this one. 600amp CT r/electricians How To Size A Ct Cabinet (a) 120/240 v, 10, 3w,. Usually the case, size is the most ostensive differentiating factor e.g. Cabinets with ct (current transformer) mounting bases may be used with service entrance sizes and voltages as follows: Most times, the current transformer reduces large current for protection, measurement, and other purposes. The current transformer (ct) converts primary current into a secondary current of. How To Size A Ct Cabinet.
From www.electriciantalk.com
CT Electrician Talk How To Size A Ct Cabinet (a) 120/240 v, 10, 3w,. Most times, the current transformer reduces large current for protection, measurement, and other purposes. The current transformer (ct) converts primary current into a secondary current of smaller or larger value through a certain transformation ratio. A ct metering socket usually becomes necessary when a certain amperage or voltage is reached. Cabinets with ct (current transformer). How To Size A Ct Cabinet.
From enginelistdenise.z13.web.core.windows.net
Ct Wiring Diagram How To Size A Ct Cabinet According to the euserc (electric utility service equipment. A ct metering socket usually becomes necessary when a certain amperage or voltage is reached. (a) 120/240 v, 10, 3w,. Usually the case, size is the most ostensive differentiating factor e.g. Most times, the current transformer reduces large current for protection, measurement, and other purposes. The current transformer (ct) converts primary current. How To Size A Ct Cabinet.
From www.globalindustrial.com
Hoffman A800NECT, Ct W Lugs, Galvanized/Gray How To Size A Ct Cabinet The current transformer (ct) converts primary current into a secondary current of smaller or larger value through a certain transformation ratio. A ct metering socket usually becomes necessary when a certain amperage or voltage is reached. Usually the case, size is the most ostensive differentiating factor e.g. Cabinets with ct (current transformer) mounting bases may be used with service entrance. How To Size A Ct Cabinet.
From njsullivan.com
PEPCO 400 to 800 AMP NEMA 3R CT PHICT83 N.J. SULLIVAN How To Size A Ct Cabinet According to the euserc (electric utility service equipment. A ct metering socket usually becomes necessary when a certain amperage or voltage is reached. Usually the case, size is the most ostensive differentiating factor e.g. The current transformer (ct) converts primary current into a secondary current of smaller or larger value through a certain transformation ratio. Most times, the current transformer. How To Size A Ct Cabinet.
From forums.mikeholt.com
Ground CT or Main Panel? Information by Electrical How To Size A Ct Cabinet Most times, the current transformer reduces large current for protection, measurement, and other purposes. According to the euserc (electric utility service equipment. The current transformer (ct) converts primary current into a secondary current of smaller or larger value through a certain transformation ratio. Usually the case, size is the most ostensive differentiating factor e.g. A ct metering socket usually becomes. How To Size A Ct Cabinet.
From info.atlantisworldwide.com
Installing a CT Scanner What You Need to Know How To Size A Ct Cabinet A ct metering socket usually becomes necessary when a certain amperage or voltage is reached. Most times, the current transformer reduces large current for protection, measurement, and other purposes. Usually the case, size is the most ostensive differentiating factor e.g. The current transformer (ct) converts primary current into a secondary current of smaller or larger value through a certain transformation. How To Size A Ct Cabinet.
From njsullivan.com
N.J. SULLIVANPEPCO 800A CT NEMA 1 (Indoor) How To Size A Ct Cabinet According to the euserc (electric utility service equipment. Most times, the current transformer reduces large current for protection, measurement, and other purposes. The current transformer (ct) converts primary current into a secondary current of smaller or larger value through a certain transformation ratio. A ct metering socket usually becomes necessary when a certain amperage or voltage is reached. (a) 120/240. How To Size A Ct Cabinet.
From www.globalindustrial.com
Hoffman A800NECT, Ct W Lugs, Galvanized/Gray How To Size A Ct Cabinet (a) 120/240 v, 10, 3w,. Usually the case, size is the most ostensive differentiating factor e.g. According to the euserc (electric utility service equipment. A ct metering socket usually becomes necessary when a certain amperage or voltage is reached. The current transformer (ct) converts primary current into a secondary current of smaller or larger value through a certain transformation ratio.. How To Size A Ct Cabinet.
From njsullivan.com
N.J. SULLIVANCT What they are, their Types, and Construction How To Size A Ct Cabinet A ct metering socket usually becomes necessary when a certain amperage or voltage is reached. (a) 120/240 v, 10, 3w,. Cabinets with ct (current transformer) mounting bases may be used with service entrance sizes and voltages as follows: According to the euserc (electric utility service equipment. Most times, the current transformer reduces large current for protection, measurement, and other purposes.. How To Size A Ct Cabinet.
From njsullivan.com
N.J. SULLIVANPEPCO NEMA 3R CT How To Size A Ct Cabinet (a) 120/240 v, 10, 3w,. Usually the case, size is the most ostensive differentiating factor e.g. The current transformer (ct) converts primary current into a secondary current of smaller or larger value through a certain transformation ratio. Most times, the current transformer reduces large current for protection, measurement, and other purposes. Cabinets with ct (current transformer) mounting bases may be. How To Size A Ct Cabinet.
From njsullivan.com
N.J. SULLIVAN3 Phase Metering CT 15002000 Amp How To Size A Ct Cabinet Most times, the current transformer reduces large current for protection, measurement, and other purposes. (a) 120/240 v, 10, 3w,. Usually the case, size is the most ostensive differentiating factor e.g. According to the euserc (electric utility service equipment. Cabinets with ct (current transformer) mounting bases may be used with service entrance sizes and voltages as follows: A ct metering socket. How To Size A Ct Cabinet.
From njsullivan.com
N.J. SULLIVANCT What they are, their Types, and Construction How To Size A Ct Cabinet Cabinets with ct (current transformer) mounting bases may be used with service entrance sizes and voltages as follows: Most times, the current transformer reduces large current for protection, measurement, and other purposes. The current transformer (ct) converts primary current into a secondary current of smaller or larger value through a certain transformation ratio. Usually the case, size is the most. How To Size A Ct Cabinet.
From njsullivan.com
N.J. SULLIVANNEMA Type 3R CT and Termination How To Size A Ct Cabinet A ct metering socket usually becomes necessary when a certain amperage or voltage is reached. According to the euserc (electric utility service equipment. Most times, the current transformer reduces large current for protection, measurement, and other purposes. Usually the case, size is the most ostensive differentiating factor e.g. Cabinets with ct (current transformer) mounting bases may be used with service. How To Size A Ct Cabinet.
From www.youtube.com
How to Build a CT Build a 400 amp CT Service Upgrade How To Size A Ct Cabinet (a) 120/240 v, 10, 3w,. Most times, the current transformer reduces large current for protection, measurement, and other purposes. Usually the case, size is the most ostensive differentiating factor e.g. The current transformer (ct) converts primary current into a secondary current of smaller or larger value through a certain transformation ratio. According to the euserc (electric utility service equipment. A. How To Size A Ct Cabinet.
From njsullivan.com
PEPCO 400 to 800 AMP NEMA 3R CT PHICT83 N.J. SULLIVAN How To Size A Ct Cabinet The current transformer (ct) converts primary current into a secondary current of smaller or larger value through a certain transformation ratio. According to the euserc (electric utility service equipment. Most times, the current transformer reduces large current for protection, measurement, and other purposes. Cabinets with ct (current transformer) mounting bases may be used with service entrance sizes and voltages as. How To Size A Ct Cabinet.