Classic Homes Parade Floor Plan . the parade floorplan is built by classic homes. This ranch style plan has 2978 sq.ft. the celebration is one of classic homes' newer and most desired ranch plans. 2 story floor plans; As you explore the special features included in. This week we are featuring the parade floor plan. Check the current prices, specifications, square footage, photos, community info and more. 3d tour thursday! classic homes has a wide range of floor plans and models to view and tour in the colorado springs. find the parade plan at timberridge.
from vw-suhba-parade-archives.storage.googleapis.com
As you explore the special features included in. Check the current prices, specifications, square footage, photos, community info and more. the parade floorplan is built by classic homes. classic homes has a wide range of floor plans and models to view and tour in the colorado springs. 2 story floor plans; This week we are featuring the parade floor plan. the celebration is one of classic homes' newer and most desired ranch plans. This ranch style plan has 2978 sq.ft. 3d tour thursday! find the parade plan at timberridge.
Parade of Homes » Parade Archived Detail
Classic Homes Parade Floor Plan classic homes has a wide range of floor plans and models to view and tour in the colorado springs. This ranch style plan has 2978 sq.ft. classic homes has a wide range of floor plans and models to view and tour in the colorado springs. Check the current prices, specifications, square footage, photos, community info and more. As you explore the special features included in. This week we are featuring the parade floor plan. 3d tour thursday! the celebration is one of classic homes' newer and most desired ranch plans. 2 story floor plans; the parade floorplan is built by classic homes. find the parade plan at timberridge.
From www.pinterest.com
the floor plan for this house shows two levels and three rooms, with stairs leading up to Classic Homes Parade Floor Plan the parade floorplan is built by classic homes. find the parade plan at timberridge. This ranch style plan has 2978 sq.ft. Check the current prices, specifications, square footage, photos, community info and more. 2 story floor plans; This week we are featuring the parade floor plan. the celebration is one of classic homes' newer and most. Classic Homes Parade Floor Plan.
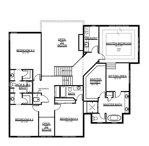
From issuu.com
2022 Parade of Homes Planbook by Home Builders Association of Middle Tennessee (HBAMT) Issuu Classic Homes Parade Floor Plan the parade floorplan is built by classic homes. the celebration is one of classic homes' newer and most desired ranch plans. classic homes has a wide range of floor plans and models to view and tour in the colorado springs. 2 story floor plans; 3d tour thursday! find the parade plan at timberridge. Check. Classic Homes Parade Floor Plan.
From www.pinterest.com
Kings' Chapel Community > PARADE OF HOMES > Parade Floor Plans > Aspen 323 How to plan, Floor Classic Homes Parade Floor Plan 3d tour thursday! find the parade plan at timberridge. This ranch style plan has 2978 sq.ft. the parade floorplan is built by classic homes. the celebration is one of classic homes' newer and most desired ranch plans. Check the current prices, specifications, square footage, photos, community info and more. As you explore the special features included. Classic Homes Parade Floor Plan.
From builderfusion.kchba.net
2017 Fall Parade of Homes Classic Homes Parade Floor Plan This ranch style plan has 2978 sq.ft. 3d tour thursday! classic homes has a wide range of floor plans and models to view and tour in the colorado springs. the celebration is one of classic homes' newer and most desired ranch plans. As you explore the special features included in. find the parade plan at timberridge.. Classic Homes Parade Floor Plan.
From www.pinterest.com
The Parker by Royal Oak Homes Royal oak homes, Parade of homes, Home Classic Homes Parade Floor Plan 2 story floor plans; the parade floorplan is built by classic homes. classic homes has a wide range of floor plans and models to view and tour in the colorado springs. This ranch style plan has 2978 sq.ft. 3d tour thursday! the celebration is one of classic homes' newer and most desired ranch plans. . Classic Homes Parade Floor Plan.
From www.pinterest.com.au
Floor Plan Parade of Homes Presented by the Home Builders Associations of Sarasota and Mana Classic Homes Parade Floor Plan the celebration is one of classic homes' newer and most desired ranch plans. This ranch style plan has 2978 sq.ft. classic homes has a wide range of floor plans and models to view and tour in the colorado springs. find the parade plan at timberridge. 2 story floor plans; the parade floorplan is built by. Classic Homes Parade Floor Plan.
From builderfusion.kchba.net
2016 Fall Parade of Homes Classic Homes Parade Floor Plan the parade floorplan is built by classic homes. 2 story floor plans; This week we are featuring the parade floor plan. 3d tour thursday! Check the current prices, specifications, square footage, photos, community info and more. the celebration is one of classic homes' newer and most desired ranch plans. classic homes has a wide range. Classic Homes Parade Floor Plan.
From www.segalmorelhomes.com
Plan 2 Traditional Classic Homes in PA and NJ Segal & Morel Classic Homes Parade Floor Plan Check the current prices, specifications, square footage, photos, community info and more. 2 story floor plans; As you explore the special features included in. 3d tour thursday! This ranch style plan has 2978 sq.ft. classic homes has a wide range of floor plans and models to view and tour in the colorado springs. the celebration is. Classic Homes Parade Floor Plan.
From builderfusion.kchba.net
2019 Fall Parade of Homes Classic Homes Parade Floor Plan classic homes has a wide range of floor plans and models to view and tour in the colorado springs. Check the current prices, specifications, square footage, photos, community info and more. This week we are featuring the parade floor plan. the parade floorplan is built by classic homes. This ranch style plan has 2978 sq.ft. 2 story. Classic Homes Parade Floor Plan.
From www.pinterest.com
Parade of Homes » Parade Home Detail New house plans, Parade of homes, Dream floors Classic Homes Parade Floor Plan This ranch style plan has 2978 sq.ft. classic homes has a wide range of floor plans and models to view and tour in the colorado springs. the parade floorplan is built by classic homes. Check the current prices, specifications, square footage, photos, community info and more. the celebration is one of classic homes' newer and most desired. Classic Homes Parade Floor Plan.
From www.plougonver.com
Parade Of Homes Floor Plans Classic Homes Parade Floor Plan find the parade plan at timberridge. This week we are featuring the parade floor plan. As you explore the special features included in. 2 story floor plans; 3d tour thursday! the celebration is one of classic homes' newer and most desired ranch plans. Check the current prices, specifications, square footage, photos, community info and more. . Classic Homes Parade Floor Plan.
From classichomesofpensacola.com
2019 Parade of Homes Cottonwood Classic Homes of Pensacola Classic Homes Parade Floor Plan find the parade plan at timberridge. the celebration is one of classic homes' newer and most desired ranch plans. This ranch style plan has 2978 sq.ft. Check the current prices, specifications, square footage, photos, community info and more. 3d tour thursday! This week we are featuring the parade floor plan. 2 story floor plans; As you. Classic Homes Parade Floor Plan.
From builderfusion.kchba.net
2017 Fall Parade of Homes Classic Homes Parade Floor Plan find the parade plan at timberridge. As you explore the special features included in. This week we are featuring the parade floor plan. the parade floorplan is built by classic homes. the celebration is one of classic homes' newer and most desired ranch plans. This ranch style plan has 2978 sq.ft. Check the current prices, specifications, square. Classic Homes Parade Floor Plan.
From www.pinterest.com
Parade of Homes » Parade Home Detail Parade of homes, House plans, Home Classic Homes Parade Floor Plan As you explore the special features included in. 2 story floor plans; This week we are featuring the parade floor plan. Check the current prices, specifications, square footage, photos, community info and more. the parade floorplan is built by classic homes. This ranch style plan has 2978 sq.ft. find the parade plan at timberridge. 3d tour. Classic Homes Parade Floor Plan.
From www.aznewhomes4u.com
Awesome Parade Of Homes Floor Plans New Home Plans Design Classic Homes Parade Floor Plan Check the current prices, specifications, square footage, photos, community info and more. find the parade plan at timberridge. the parade floorplan is built by classic homes. 3d tour thursday! This week we are featuring the parade floor plan. 2 story floor plans; classic homes has a wide range of floor plans and models to view. Classic Homes Parade Floor Plan.
From vw-suhba-parade-archives.storage.googleapis.com
Parade of Homes » Parade Archived Detail Classic Homes Parade Floor Plan the celebration is one of classic homes' newer and most desired ranch plans. the parade floorplan is built by classic homes. 2 story floor plans; Check the current prices, specifications, square footage, photos, community info and more. find the parade plan at timberridge. classic homes has a wide range of floor plans and models to. Classic Homes Parade Floor Plan.
From www.pinterest.com
Parade of Homes » Parade Home Detail Parade of homes, Ranch style house plans, Ranch style Classic Homes Parade Floor Plan This week we are featuring the parade floor plan. As you explore the special features included in. 3d tour thursday! 2 story floor plans; This ranch style plan has 2978 sq.ft. the parade floorplan is built by classic homes. the celebration is one of classic homes' newer and most desired ranch plans. find the parade. Classic Homes Parade Floor Plan.
From paradeofhomestreasurecoast.com
2265 Floor Plan Parade of Homes Classic Homes Parade Floor Plan This week we are featuring the parade floor plan. Check the current prices, specifications, square footage, photos, community info and more. 2 story floor plans; As you explore the special features included in. the celebration is one of classic homes' newer and most desired ranch plans. find the parade plan at timberridge. This ranch style plan has. Classic Homes Parade Floor Plan.
From www.segalmorelhomes.com
Plan 2 Traditional Classic Homes in PA and NJ Segal & Morel Classic Homes Parade Floor Plan the celebration is one of classic homes' newer and most desired ranch plans. find the parade plan at timberridge. This week we are featuring the parade floor plan. As you explore the special features included in. This ranch style plan has 2978 sq.ft. 2 story floor plans; 3d tour thursday! the parade floorplan is built. Classic Homes Parade Floor Plan.
From www.pinterest.com
to Salisbury Homes' St. Parade Home 2014, The Cambridge! Parade of homes Classic Homes Parade Floor Plan 3d tour thursday! Check the current prices, specifications, square footage, photos, community info and more. classic homes has a wide range of floor plans and models to view and tour in the colorado springs. This week we are featuring the parade floor plan. find the parade plan at timberridge. the parade floorplan is built by classic. Classic Homes Parade Floor Plan.
From www.pinterest.co.uk
Floor Plan Parade of Homes Presented by the Home Builders Associations of Sarasota and M Classic Homes Parade Floor Plan the parade floorplan is built by classic homes. Check the current prices, specifications, square footage, photos, community info and more. This week we are featuring the parade floor plan. classic homes has a wide range of floor plans and models to view and tour in the colorado springs. find the parade plan at timberridge. This ranch style. Classic Homes Parade Floor Plan.
From www.manorhomes.biz
Manor Homes JV '18 Parade Classic Homes Parade Floor Plan classic homes has a wide range of floor plans and models to view and tour in the colorado springs. find the parade plan at timberridge. Check the current prices, specifications, square footage, photos, community info and more. This ranch style plan has 2978 sq.ft. This week we are featuring the parade floor plan. 2 story floor plans;. Classic Homes Parade Floor Plan.
From www.pinterest.com
Parade of Homes » floor plan includes a "pool house" with bathroom. House floor plans, Parade Classic Homes Parade Floor Plan the celebration is one of classic homes' newer and most desired ranch plans. classic homes has a wide range of floor plans and models to view and tour in the colorado springs. As you explore the special features included in. the parade floorplan is built by classic homes. Check the current prices, specifications, square footage, photos, community. Classic Homes Parade Floor Plan.
From www.pinterest.com
Floor Plan Parade of Homes Presented by the Home Builders Associations of Sarasota and Manatee Classic Homes Parade Floor Plan This ranch style plan has 2978 sq.ft. the parade floorplan is built by classic homes. the celebration is one of classic homes' newer and most desired ranch plans. As you explore the special features included in. 3d tour thursday! 2 story floor plans; classic homes has a wide range of floor plans and models to. Classic Homes Parade Floor Plan.
From www.howardmodels.com
House Illustration Home Rendering Classic Homes Floor Plan Series Howard Digital Classic Homes Parade Floor Plan This week we are featuring the parade floor plan. classic homes has a wide range of floor plans and models to view and tour in the colorado springs. 3d tour thursday! As you explore the special features included in. This ranch style plan has 2978 sq.ft. the celebration is one of classic homes' newer and most desired. Classic Homes Parade Floor Plan.
From builderfusion.kchba.net
2014 Spring Parade of Homes Classic Homes Parade Floor Plan This week we are featuring the parade floor plan. As you explore the special features included in. 2 story floor plans; find the parade plan at timberridge. the parade floorplan is built by classic homes. 3d tour thursday! classic homes has a wide range of floor plans and models to view and tour in the. Classic Homes Parade Floor Plan.
From issuu.com
2022 Parade of Homes Planbook by Home Builders Association of Middle Tennessee (HBAMT) Issuu Classic Homes Parade Floor Plan classic homes has a wide range of floor plans and models to view and tour in the colorado springs. As you explore the special features included in. find the parade plan at timberridge. Check the current prices, specifications, square footage, photos, community info and more. 2 story floor plans; the celebration is one of classic homes'. Classic Homes Parade Floor Plan.
From www.timesunion.com
Annual Parade of Homes offers peek at builders' best Classic Homes Parade Floor Plan 2 story floor plans; As you explore the special features included in. 3d tour thursday! classic homes has a wide range of floor plans and models to view and tour in the colorado springs. Check the current prices, specifications, square footage, photos, community info and more. the parade floorplan is built by classic homes. This week. Classic Homes Parade Floor Plan.
From builderfusion.kchba.net
2013 Spring Parade of Homes Classic Homes Parade Floor Plan Check the current prices, specifications, square footage, photos, community info and more. 2 story floor plans; 3d tour thursday! As you explore the special features included in. find the parade plan at timberridge. This week we are featuring the parade floor plan. the celebration is one of classic homes' newer and most desired ranch plans. . Classic Homes Parade Floor Plan.
From www.pinterest.com
4th annual parade of homes this is your 1954 p... Vintage House Plans, New House Plans, Mid Classic Homes Parade Floor Plan 2 story floor plans; This week we are featuring the parade floor plan. the parade floorplan is built by classic homes. classic homes has a wide range of floor plans and models to view and tour in the colorado springs. This ranch style plan has 2978 sq.ft. Check the current prices, specifications, square footage, photos, community info. Classic Homes Parade Floor Plan.
From www.pinterest.com
Boise Parade of Homes 2016. The Heartland by Clark and Co. New house plans, Ranch house, How Classic Homes Parade Floor Plan This ranch style plan has 2978 sq.ft. the parade floorplan is built by classic homes. the celebration is one of classic homes' newer and most desired ranch plans. 2 story floor plans; Check the current prices, specifications, square footage, photos, community info and more. find the parade plan at timberridge. classic homes has a wide. Classic Homes Parade Floor Plan.
From www.pinterest.com
St. Utah Parade of Homes 2013 Floor plans. Love this one! Utah parade of homes, Floor Classic Homes Parade Floor Plan the parade floorplan is built by classic homes. find the parade plan at timberridge. This week we are featuring the parade floor plan. Check the current prices, specifications, square footage, photos, community info and more. This ranch style plan has 2978 sq.ft. As you explore the special features included in. 2 story floor plans; 3d tour. Classic Homes Parade Floor Plan.
From www.allabouthomedesign.com
Colorado Springs Parade of Homes Broadmoor Canyons All About Home Design Classic Homes Parade Floor Plan This ranch style plan has 2978 sq.ft. the celebration is one of classic homes' newer and most desired ranch plans. As you explore the special features included in. find the parade plan at timberridge. Check the current prices, specifications, square footage, photos, community info and more. 2 story floor plans; 3d tour thursday! the parade. Classic Homes Parade Floor Plan.
From www.youtube.com
Tour the Winning Home of the 2022 Nashville Parade of Homes! YouTube Classic Homes Parade Floor Plan the parade floorplan is built by classic homes. classic homes has a wide range of floor plans and models to view and tour in the colorado springs. As you explore the special features included in. 2 story floor plans; Check the current prices, specifications, square footage, photos, community info and more. find the parade plan at. Classic Homes Parade Floor Plan.
From www.pinterest.com
Parade of Homes » Parade Home Detail Parade of homes, Custom homes, Floor plans Classic Homes Parade Floor Plan the parade floorplan is built by classic homes. 2 story floor plans; This ranch style plan has 2978 sq.ft. Check the current prices, specifications, square footage, photos, community info and more. As you explore the special features included in. find the parade plan at timberridge. the celebration is one of classic homes' newer and most desired. Classic Homes Parade Floor Plan.