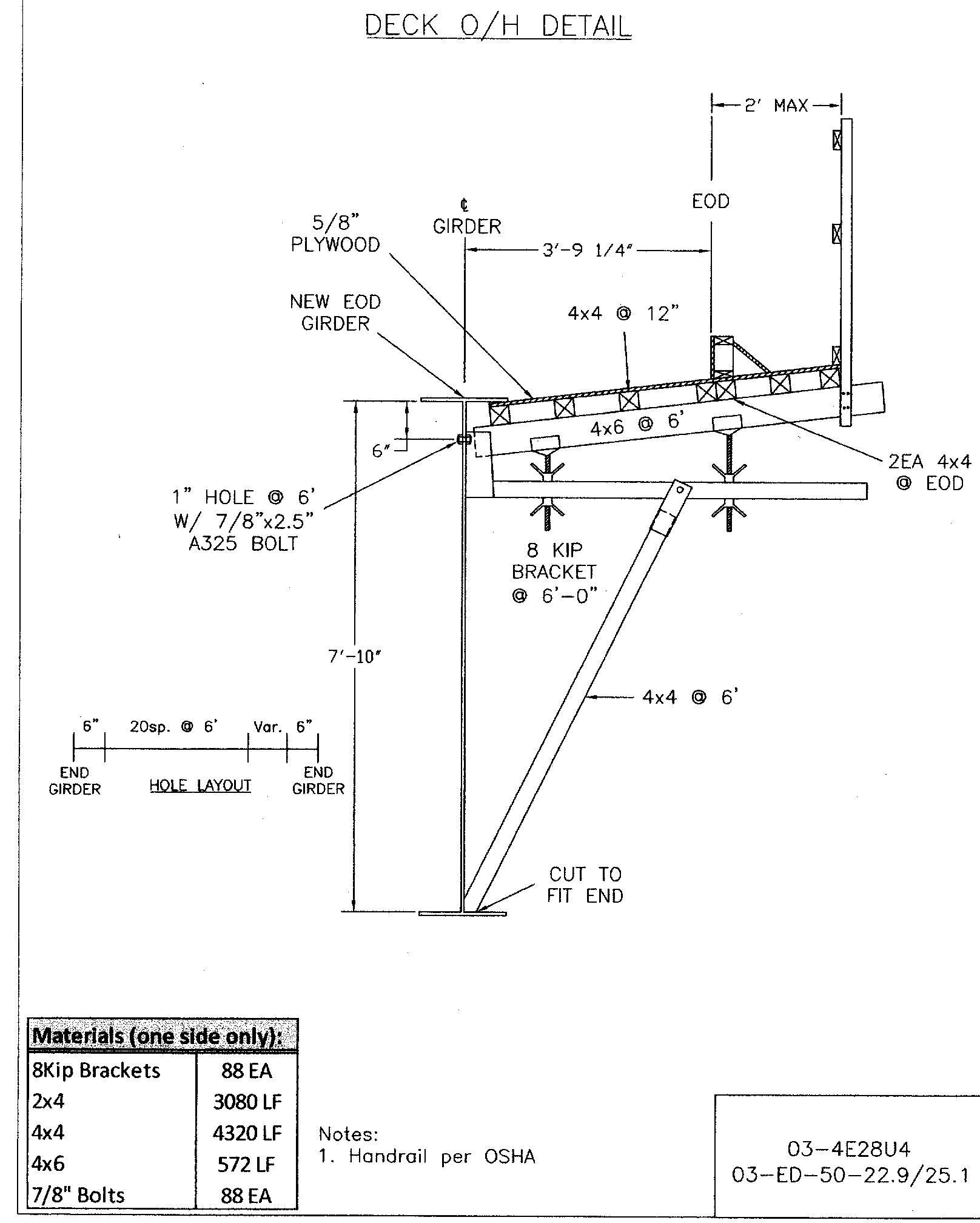
Bridge Overhang Bracket Design Example . dayton superior offers the bridge contractor several different versions of the c49 bridge overhang bracket. c52 2x4 guard rail receptacle and c54 bridge overhang bracket extender the c52 guardrail receptacle is designed to allow. deck design for steel bridges deck overhang brackets. the conventional, overhang bracket system referred to in this article is the system of bridge deck overhang brackets and. adjust the bridge brackets. Deck overhang brackets, such as those shown in figure 7, are.
from meadowburke.com
the conventional, overhang bracket system referred to in this article is the system of bridge deck overhang brackets and. deck design for steel bridges deck overhang brackets. c52 2x4 guard rail receptacle and c54 bridge overhang bracket extender the c52 guardrail receptacle is designed to allow. Deck overhang brackets, such as those shown in figure 7, are. dayton superior offers the bridge contractor several different versions of the c49 bridge overhang bracket. adjust the bridge brackets.
BBA96 Aluminum Bridge Overhang Bracket Meadow Burke
Bridge Overhang Bracket Design Example the conventional, overhang bracket system referred to in this article is the system of bridge deck overhang brackets and. dayton superior offers the bridge contractor several different versions of the c49 bridge overhang bracket. the conventional, overhang bracket system referred to in this article is the system of bridge deck overhang brackets and. Deck overhang brackets, such as those shown in figure 7, are. deck design for steel bridges deck overhang brackets. adjust the bridge brackets. c52 2x4 guard rail receptacle and c54 bridge overhang bracket extender the c52 guardrail receptacle is designed to allow.
From www.gamcoform.com
Bridge Overhang Brackets Gamco Inc. Bridge Overhang Bracket Design Example dayton superior offers the bridge contractor several different versions of the c49 bridge overhang bracket. deck design for steel bridges deck overhang brackets. adjust the bridge brackets. the conventional, overhang bracket system referred to in this article is the system of bridge deck overhang brackets and. c52 2x4 guard rail receptacle and c54 bridge overhang. Bridge Overhang Bracket Design Example.
From hildebranski.com
Bridge Overhang Fillet Calculations Bridge Overhang Bracket Design Example deck design for steel bridges deck overhang brackets. adjust the bridge brackets. Deck overhang brackets, such as those shown in figure 7, are. the conventional, overhang bracket system referred to in this article is the system of bridge deck overhang brackets and. dayton superior offers the bridge contractor several different versions of the c49 bridge overhang. Bridge Overhang Bracket Design Example.
From www.hi-lite-systems.com
Athabasca River Bridge, Canada Aluminum Bridge Overhead Brackets HI Bridge Overhang Bracket Design Example deck design for steel bridges deck overhang brackets. the conventional, overhang bracket system referred to in this article is the system of bridge deck overhang brackets and. c52 2x4 guard rail receptacle and c54 bridge overhang bracket extender the c52 guardrail receptacle is designed to allow. Deck overhang brackets, such as those shown in figure 7, are.. Bridge Overhang Bracket Design Example.
From www.researchgate.net
Typical Overhang Form Bracket Download Scientific Diagram Bridge Overhang Bracket Design Example the conventional, overhang bracket system referred to in this article is the system of bridge deck overhang brackets and. dayton superior offers the bridge contractor several different versions of the c49 bridge overhang bracket. c52 2x4 guard rail receptacle and c54 bridge overhang bracket extender the c52 guardrail receptacle is designed to allow. adjust the bridge. Bridge Overhang Bracket Design Example.
From www.efcoforms.com
HeavyDuty Bridge Overhang Bracket system EFCO Formwork Solutions Bridge Overhang Bracket Design Example deck design for steel bridges deck overhang brackets. Deck overhang brackets, such as those shown in figure 7, are. c52 2x4 guard rail receptacle and c54 bridge overhang bracket extender the c52 guardrail receptacle is designed to allow. adjust the bridge brackets. dayton superior offers the bridge contractor several different versions of the c49 bridge overhang. Bridge Overhang Bracket Design Example.
From www.efcoforms.com
HD BRIDGE OVERHANG BRACKETS EFCO Forms Bridge Overhang Bracket Design Example dayton superior offers the bridge contractor several different versions of the c49 bridge overhang bracket. deck design for steel bridges deck overhang brackets. c52 2x4 guard rail receptacle and c54 bridge overhang bracket extender the c52 guardrail receptacle is designed to allow. Deck overhang brackets, such as those shown in figure 7, are. the conventional, overhang. Bridge Overhang Bracket Design Example.
From www.carrasquilloassociates.com
bridge hanger brackets investigation and structure analysis Bridge Overhang Bracket Design Example dayton superior offers the bridge contractor several different versions of the c49 bridge overhang bracket. Deck overhang brackets, such as those shown in figure 7, are. c52 2x4 guard rail receptacle and c54 bridge overhang bracket extender the c52 guardrail receptacle is designed to allow. adjust the bridge brackets. deck design for steel bridges deck overhang. Bridge Overhang Bracket Design Example.
From constructionenterprisesinc.com
Bridge Overhang Brackets Construction Enterprises Inc Bridge Overhang Bracket Design Example dayton superior offers the bridge contractor several different versions of the c49 bridge overhang bracket. deck design for steel bridges deck overhang brackets. Deck overhang brackets, such as those shown in figure 7, are. the conventional, overhang bracket system referred to in this article is the system of bridge deck overhang brackets and. c52 2x4 guard. Bridge Overhang Bracket Design Example.
From www.pdfprof.com
overhang brackets bridge Bridge Overhang Bracket Design Example dayton superior offers the bridge contractor several different versions of the c49 bridge overhang bracket. Deck overhang brackets, such as those shown in figure 7, are. deck design for steel bridges deck overhang brackets. c52 2x4 guard rail receptacle and c54 bridge overhang bracket extender the c52 guardrail receptacle is designed to allow. adjust the bridge. Bridge Overhang Bracket Design Example.
From www.efcoforms.com
HeavyDuty Bridge Overhang Bracket system EFCO Formwork Solutions Bridge Overhang Bracket Design Example c52 2x4 guard rail receptacle and c54 bridge overhang bracket extender the c52 guardrail receptacle is designed to allow. dayton superior offers the bridge contractor several different versions of the c49 bridge overhang bracket. the conventional, overhang bracket system referred to in this article is the system of bridge deck overhang brackets and. Deck overhang brackets, such. Bridge Overhang Bracket Design Example.
From www.mullerconstructionsupply.com
Bridge Overhang Bracket For Deep Girders Muller Construction Supply Bridge Overhang Bracket Design Example deck design for steel bridges deck overhang brackets. c52 2x4 guard rail receptacle and c54 bridge overhang bracket extender the c52 guardrail receptacle is designed to allow. dayton superior offers the bridge contractor several different versions of the c49 bridge overhang bracket. Deck overhang brackets, such as those shown in figure 7, are. the conventional, overhang. Bridge Overhang Bracket Design Example.
From meadowburke.com
BBS54 Standard Overhang Bracket Meadow Burke Bridge Overhang Bracket Design Example Deck overhang brackets, such as those shown in figure 7, are. adjust the bridge brackets. deck design for steel bridges deck overhang brackets. the conventional, overhang bracket system referred to in this article is the system of bridge deck overhang brackets and. c52 2x4 guard rail receptacle and c54 bridge overhang bracket extender the c52 guardrail. Bridge Overhang Bracket Design Example.
From meadowburke.com
BBA96 Aluminum Bridge Overhang Bracket Meadow Burke Bridge Overhang Bracket Design Example Deck overhang brackets, such as those shown in figure 7, are. c52 2x4 guard rail receptacle and c54 bridge overhang bracket extender the c52 guardrail receptacle is designed to allow. the conventional, overhang bracket system referred to in this article is the system of bridge deck overhang brackets and. adjust the bridge brackets. deck design for. Bridge Overhang Bracket Design Example.
From www.atlastechproducts.com
Concrete Accessories Bridge Overhang Bracket Bridge Overhang Bracket Design Example deck design for steel bridges deck overhang brackets. c52 2x4 guard rail receptacle and c54 bridge overhang bracket extender the c52 guardrail receptacle is designed to allow. the conventional, overhang bracket system referred to in this article is the system of bridge deck overhang brackets and. Deck overhang brackets, such as those shown in figure 7, are.. Bridge Overhang Bracket Design Example.
From www.efcoforms.com
Heavy Duty Bridge Overhang Bracket Side View EFCO Forms Bridge Overhang Bracket Design Example adjust the bridge brackets. dayton superior offers the bridge contractor several different versions of the c49 bridge overhang bracket. c52 2x4 guard rail receptacle and c54 bridge overhang bracket extender the c52 guardrail receptacle is designed to allow. the conventional, overhang bracket system referred to in this article is the system of bridge deck overhang brackets. Bridge Overhang Bracket Design Example.
From surebuilt-usa.com
Bridge Overhang Bracket SureBuilt Concrete Forms & Accessories Bridge Overhang Bracket Design Example deck design for steel bridges deck overhang brackets. Deck overhang brackets, such as those shown in figure 7, are. adjust the bridge brackets. c52 2x4 guard rail receptacle and c54 bridge overhang bracket extender the c52 guardrail receptacle is designed to allow. the conventional, overhang bracket system referred to in this article is the system of. Bridge Overhang Bracket Design Example.
From www.pdfprof.com
overhang brackets bridge Bridge Overhang Bracket Design Example c52 2x4 guard rail receptacle and c54 bridge overhang bracket extender the c52 guardrail receptacle is designed to allow. adjust the bridge brackets. deck design for steel bridges deck overhang brackets. Deck overhang brackets, such as those shown in figure 7, are. the conventional, overhang bracket system referred to in this article is the system of. Bridge Overhang Bracket Design Example.
From www.rothmetalfab.com
Bridge and Highway Repair Products Roth Bridge Overhang Bracket and Bridge Overhang Bracket Design Example Deck overhang brackets, such as those shown in figure 7, are. adjust the bridge brackets. c52 2x4 guard rail receptacle and c54 bridge overhang bracket extender the c52 guardrail receptacle is designed to allow. deck design for steel bridges deck overhang brackets. dayton superior offers the bridge contractor several different versions of the c49 bridge overhang. Bridge Overhang Bracket Design Example.
From constructionenterprisesinc.com
Bridge Overhang Brackets Construction Enterprises Inc Bridge Overhang Bracket Design Example dayton superior offers the bridge contractor several different versions of the c49 bridge overhang bracket. deck design for steel bridges deck overhang brackets. adjust the bridge brackets. Deck overhang brackets, such as those shown in figure 7, are. c52 2x4 guard rail receptacle and c54 bridge overhang bracket extender the c52 guardrail receptacle is designed to. Bridge Overhang Bracket Design Example.
From www.ligforming.com
Bridge Overhang Brackets Forming and Shoring Bridge Overhang Bracket Design Example deck design for steel bridges deck overhang brackets. c52 2x4 guard rail receptacle and c54 bridge overhang bracket extender the c52 guardrail receptacle is designed to allow. the conventional, overhang bracket system referred to in this article is the system of bridge deck overhang brackets and. Deck overhang brackets, such as those shown in figure 7, are.. Bridge Overhang Bracket Design Example.
From www.hi-lite-systems.com
Safe, Efficient & Strong Bridge Overhang Brackets HILITE Bridge Overhang Bracket Design Example adjust the bridge brackets. dayton superior offers the bridge contractor several different versions of the c49 bridge overhang bracket. c52 2x4 guard rail receptacle and c54 bridge overhang bracket extender the c52 guardrail receptacle is designed to allow. the conventional, overhang bracket system referred to in this article is the system of bridge deck overhang brackets. Bridge Overhang Bracket Design Example.
From www.efcoforms.com
HeavyDuty Bridge Overhang Bracket system EFCO Formwork Solutions Bridge Overhang Bracket Design Example adjust the bridge brackets. c52 2x4 guard rail receptacle and c54 bridge overhang bracket extender the c52 guardrail receptacle is designed to allow. dayton superior offers the bridge contractor several different versions of the c49 bridge overhang bracket. Deck overhang brackets, such as those shown in figure 7, are. the conventional, overhang bracket system referred to. Bridge Overhang Bracket Design Example.
From constructionenterprisesinc.com
8kip Deep Girder & Wide Overhang Bracket Construction Enterprises Inc Bridge Overhang Bracket Design Example adjust the bridge brackets. c52 2x4 guard rail receptacle and c54 bridge overhang bracket extender the c52 guardrail receptacle is designed to allow. dayton superior offers the bridge contractor several different versions of the c49 bridge overhang bracket. Deck overhang brackets, such as those shown in figure 7, are. the conventional, overhang bracket system referred to. Bridge Overhang Bracket Design Example.
From constructionenterprisesinc.com
8kip Deep Girder & Wide Overhang Bracket Construction Enterprises Inc Bridge Overhang Bracket Design Example Deck overhang brackets, such as those shown in figure 7, are. adjust the bridge brackets. the conventional, overhang bracket system referred to in this article is the system of bridge deck overhang brackets and. dayton superior offers the bridge contractor several different versions of the c49 bridge overhang bracket. c52 2x4 guard rail receptacle and c54. Bridge Overhang Bracket Design Example.
From www.youtube.com
Exterior Bridge Deck Forming & Bridge Overhang Brackets by Dayton Bridge Overhang Bracket Design Example adjust the bridge brackets. deck design for steel bridges deck overhang brackets. the conventional, overhang bracket system referred to in this article is the system of bridge deck overhang brackets and. Deck overhang brackets, such as those shown in figure 7, are. c52 2x4 guard rail receptacle and c54 bridge overhang bracket extender the c52 guardrail. Bridge Overhang Bracket Design Example.
From spectrumconcreteusa.com
Bridge Overhang Brackets Spectrum Concrete Products, LLC. Bridge Overhang Bracket Design Example deck design for steel bridges deck overhang brackets. Deck overhang brackets, such as those shown in figure 7, are. the conventional, overhang bracket system referred to in this article is the system of bridge deck overhang brackets and. adjust the bridge brackets. c52 2x4 guard rail receptacle and c54 bridge overhang bracket extender the c52 guardrail. Bridge Overhang Bracket Design Example.
From meadowburke.com
BBA96 Aluminum Bridge Overhang Bracket Meadow Burke Bridge Overhang Bracket Design Example the conventional, overhang bracket system referred to in this article is the system of bridge deck overhang brackets and. c52 2x4 guard rail receptacle and c54 bridge overhang bracket extender the c52 guardrail receptacle is designed to allow. Deck overhang brackets, such as those shown in figure 7, are. deck design for steel bridges deck overhang brackets.. Bridge Overhang Bracket Design Example.
From constructionenterprisesinc.com
Bridge Overhang Brackets Construction Enterprises Inc Bridge Overhang Bracket Design Example the conventional, overhang bracket system referred to in this article is the system of bridge deck overhang brackets and. c52 2x4 guard rail receptacle and c54 bridge overhang bracket extender the c52 guardrail receptacle is designed to allow. adjust the bridge brackets. deck design for steel bridges deck overhang brackets. Deck overhang brackets, such as those. Bridge Overhang Bracket Design Example.
From meadowburke.com
BBS54 Standard Overhang Bracket Meadow Burke Bridge Overhang Bracket Design Example the conventional, overhang bracket system referred to in this article is the system of bridge deck overhang brackets and. adjust the bridge brackets. deck design for steel bridges deck overhang brackets. c52 2x4 guard rail receptacle and c54 bridge overhang bracket extender the c52 guardrail receptacle is designed to allow. Deck overhang brackets, such as those. Bridge Overhang Bracket Design Example.
From meadowburke.com
BBS54L Standard Overhang Bracket Meadow Burke Bridge Overhang Bracket Design Example adjust the bridge brackets. c52 2x4 guard rail receptacle and c54 bridge overhang bracket extender the c52 guardrail receptacle is designed to allow. Deck overhang brackets, such as those shown in figure 7, are. dayton superior offers the bridge contractor several different versions of the c49 bridge overhang bracket. the conventional, overhang bracket system referred to. Bridge Overhang Bracket Design Example.
From www.efcoforms.com
HeavyDuty Bridge Overhang Bracket system EFCO Formwork Solutions Bridge Overhang Bracket Design Example the conventional, overhang bracket system referred to in this article is the system of bridge deck overhang brackets and. adjust the bridge brackets. c52 2x4 guard rail receptacle and c54 bridge overhang bracket extender the c52 guardrail receptacle is designed to allow. deck design for steel bridges deck overhang brackets. Deck overhang brackets, such as those. Bridge Overhang Bracket Design Example.
From www.rothmetalfab.com
Bridge and Highway Repair Products Roth Heavy Duty Bridge Overhang Bracket Bridge Overhang Bracket Design Example c52 2x4 guard rail receptacle and c54 bridge overhang bracket extender the c52 guardrail receptacle is designed to allow. deck design for steel bridges deck overhang brackets. the conventional, overhang bracket system referred to in this article is the system of bridge deck overhang brackets and. adjust the bridge brackets. Deck overhang brackets, such as those. Bridge Overhang Bracket Design Example.
From www.pdfprof.com
overhang brackets bridge Bridge Overhang Bracket Design Example Deck overhang brackets, such as those shown in figure 7, are. dayton superior offers the bridge contractor several different versions of the c49 bridge overhang bracket. deck design for steel bridges deck overhang brackets. c52 2x4 guard rail receptacle and c54 bridge overhang bracket extender the c52 guardrail receptacle is designed to allow. adjust the bridge. Bridge Overhang Bracket Design Example.
From meadowburke.com
BBA96 Aluminum Bridge Overhang Bracket Meadow Burke Bridge Overhang Bracket Design Example c52 2x4 guard rail receptacle and c54 bridge overhang bracket extender the c52 guardrail receptacle is designed to allow. deck design for steel bridges deck overhang brackets. dayton superior offers the bridge contractor several different versions of the c49 bridge overhang bracket. Deck overhang brackets, such as those shown in figure 7, are. adjust the bridge. Bridge Overhang Bracket Design Example.
From constructionenterprisesinc.com
8kip Deep Girder & Wide Overhang Bracket Construction Enterprises Inc Bridge Overhang Bracket Design Example the conventional, overhang bracket system referred to in this article is the system of bridge deck overhang brackets and. adjust the bridge brackets. deck design for steel bridges deck overhang brackets. Deck overhang brackets, such as those shown in figure 7, are. dayton superior offers the bridge contractor several different versions of the c49 bridge overhang. Bridge Overhang Bracket Design Example.