Commercial Fire Sprinkler Code California . Nfpa 13 is a publication for the design, installation, testing, and maintenance of automatic fire sprinkler systems. This guideline has been prepared to assist those responsible for the design, installation, testing, and inspection of fire sprinkler systems to. The california fire code (cfc) contains regulations consistent with nationally recognized and accepted practices for safeguarding life. This standard is for the design and installation of fire sprinkler systems in commercial buildings and is pursuant to the 2022 california fire code,. What are the fire sprinkler requirements in california? Qrfs explains california fire code & breaks down the basic inspection, testing & maintenance rules. Nfpa 13 is a publication for the design, installation, testing, and maintenance of automatic fire sprinkler systems.
from www.firesprinklerpro.com
What are the fire sprinkler requirements in california? Nfpa 13 is a publication for the design, installation, testing, and maintenance of automatic fire sprinkler systems. This standard is for the design and installation of fire sprinkler systems in commercial buildings and is pursuant to the 2022 california fire code,. The california fire code (cfc) contains regulations consistent with nationally recognized and accepted practices for safeguarding life. Qrfs explains california fire code & breaks down the basic inspection, testing & maintenance rules. Nfpa 13 is a publication for the design, installation, testing, and maintenance of automatic fire sprinkler systems. This guideline has been prepared to assist those responsible for the design, installation, testing, and inspection of fire sprinkler systems to.
Redding Commercial and Industrial Fire Sprinklers Fire Sprinkler
Commercial Fire Sprinkler Code California What are the fire sprinkler requirements in california? Nfpa 13 is a publication for the design, installation, testing, and maintenance of automatic fire sprinkler systems. Nfpa 13 is a publication for the design, installation, testing, and maintenance of automatic fire sprinkler systems. This standard is for the design and installation of fire sprinkler systems in commercial buildings and is pursuant to the 2022 california fire code,. This guideline has been prepared to assist those responsible for the design, installation, testing, and inspection of fire sprinkler systems to. What are the fire sprinkler requirements in california? Qrfs explains california fire code & breaks down the basic inspection, testing & maintenance rules. The california fire code (cfc) contains regulations consistent with nationally recognized and accepted practices for safeguarding life.
From up.codes
Chapter 8 System Types and Requirements, Los Angeles City Fire Commercial Fire Sprinkler Code California Qrfs explains california fire code & breaks down the basic inspection, testing & maintenance rules. This guideline has been prepared to assist those responsible for the design, installation, testing, and inspection of fire sprinkler systems to. What are the fire sprinkler requirements in california? Nfpa 13 is a publication for the design, installation, testing, and maintenance of automatic fire sprinkler. Commercial Fire Sprinkler Code California.
From www.templateroller.com
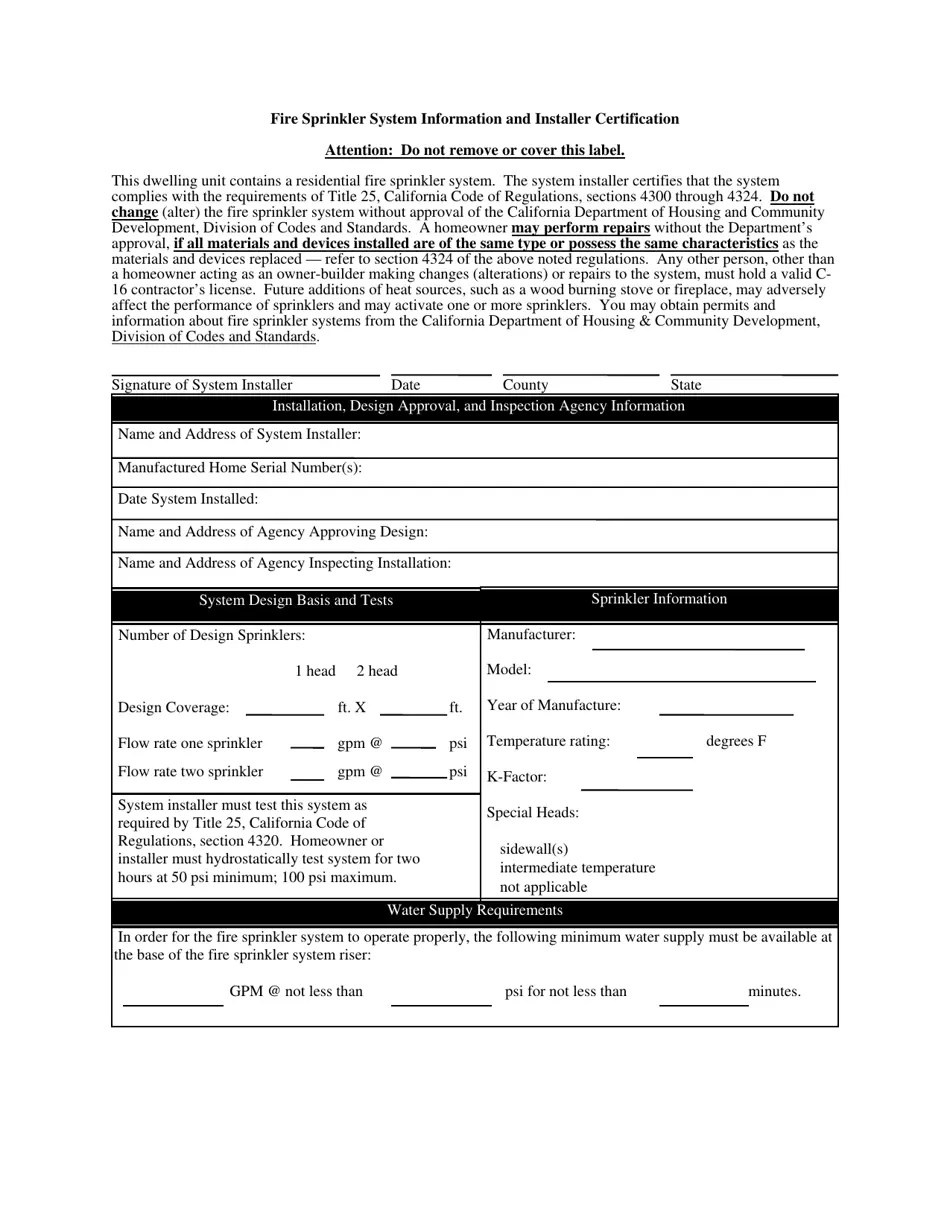
California Fire Sprinkler System Information and Installer Commercial Fire Sprinkler Code California Nfpa 13 is a publication for the design, installation, testing, and maintenance of automatic fire sprinkler systems. This standard is for the design and installation of fire sprinkler systems in commercial buildings and is pursuant to the 2022 california fire code,. Nfpa 13 is a publication for the design, installation, testing, and maintenance of automatic fire sprinkler systems. What are. Commercial Fire Sprinkler Code California.
From mungfali.com
NFPA 13 Fire Sprinkler System Commercial Fire Sprinkler Code California The california fire code (cfc) contains regulations consistent with nationally recognized and accepted practices for safeguarding life. Nfpa 13 is a publication for the design, installation, testing, and maintenance of automatic fire sprinkler systems. Nfpa 13 is a publication for the design, installation, testing, and maintenance of automatic fire sprinkler systems. What are the fire sprinkler requirements in california? This. Commercial Fire Sprinkler Code California.
From joicqtxib.blob.core.windows.net
Fire Sprinkler System Layout Plan at Roy Morse blog Commercial Fire Sprinkler Code California Qrfs explains california fire code & breaks down the basic inspection, testing & maintenance rules. What are the fire sprinkler requirements in california? Nfpa 13 is a publication for the design, installation, testing, and maintenance of automatic fire sprinkler systems. Nfpa 13 is a publication for the design, installation, testing, and maintenance of automatic fire sprinkler systems. This standard is. Commercial Fire Sprinkler Code California.
From up.codes
Chapter 8 System Types and Requirements, California Fire Sprinkler Commercial Fire Sprinkler Code California This standard is for the design and installation of fire sprinkler systems in commercial buildings and is pursuant to the 2022 california fire code,. Qrfs explains california fire code & breaks down the basic inspection, testing & maintenance rules. This guideline has been prepared to assist those responsible for the design, installation, testing, and inspection of fire sprinkler systems to.. Commercial Fire Sprinkler Code California.
From hydrofiretahoe.com
Residential Fire Sprinkler and California Codes Hydro Fire Protection Inc Commercial Fire Sprinkler Code California Nfpa 13 is a publication for the design, installation, testing, and maintenance of automatic fire sprinkler systems. The california fire code (cfc) contains regulations consistent with nationally recognized and accepted practices for safeguarding life. This guideline has been prepared to assist those responsible for the design, installation, testing, and inspection of fire sprinkler systems to. This standard is for the. Commercial Fire Sprinkler Code California.
From www.firesprinklerpro.com
Redding Commercial and Industrial Fire Sprinklers Fire Sprinkler Commercial Fire Sprinkler Code California What are the fire sprinkler requirements in california? This standard is for the design and installation of fire sprinkler systems in commercial buildings and is pursuant to the 2022 california fire code,. Nfpa 13 is a publication for the design, installation, testing, and maintenance of automatic fire sprinkler systems. Nfpa 13 is a publication for the design, installation, testing, and. Commercial Fire Sprinkler Code California.
From www.sierrasprinklerservices.com
Commercial Fire Sprinkler Systems Inspection Acampo, CA Commercial Fire Sprinkler Code California What are the fire sprinkler requirements in california? This standard is for the design and installation of fire sprinkler systems in commercial buildings and is pursuant to the 2022 california fire code,. Nfpa 13 is a publication for the design, installation, testing, and maintenance of automatic fire sprinkler systems. Nfpa 13 is a publication for the design, installation, testing, and. Commercial Fire Sprinkler Code California.
From up.codes
Chapter 8 Sprinkler Position and Location, California One and Two Commercial Fire Sprinkler Code California The california fire code (cfc) contains regulations consistent with nationally recognized and accepted practices for safeguarding life. Qrfs explains california fire code & breaks down the basic inspection, testing & maintenance rules. This standard is for the design and installation of fire sprinkler systems in commercial buildings and is pursuant to the 2022 california fire code,. What are the fire. Commercial Fire Sprinkler Code California.
From www.pinterest.com.au
Fire Sprinkler Systems Majestic Fire Protection Fire sprinkler Commercial Fire Sprinkler Code California Nfpa 13 is a publication for the design, installation, testing, and maintenance of automatic fire sprinkler systems. This guideline has been prepared to assist those responsible for the design, installation, testing, and inspection of fire sprinkler systems to. Nfpa 13 is a publication for the design, installation, testing, and maintenance of automatic fire sprinkler systems. This standard is for the. Commercial Fire Sprinkler Code California.
From www.youtube.com
📛 Types of Sprinkler System 📛 Types of fire sprinkler color code 📛fire Commercial Fire Sprinkler Code California Qrfs explains california fire code & breaks down the basic inspection, testing & maintenance rules. The california fire code (cfc) contains regulations consistent with nationally recognized and accepted practices for safeguarding life. This guideline has been prepared to assist those responsible for the design, installation, testing, and inspection of fire sprinkler systems to. Nfpa 13 is a publication for the. Commercial Fire Sprinkler Code California.
From basc.pnnl.gov
The preferred method for fire sprinkler connection to municipal water Commercial Fire Sprinkler Code California Qrfs explains california fire code & breaks down the basic inspection, testing & maintenance rules. This standard is for the design and installation of fire sprinkler systems in commercial buildings and is pursuant to the 2022 california fire code,. Nfpa 13 is a publication for the design, installation, testing, and maintenance of automatic fire sprinkler systems. The california fire code. Commercial Fire Sprinkler Code California.
From www.jcfireprotection.com
HighRise Building Fire Sprinklers Hayward, CA J& Safety 1st Fire Commercial Fire Sprinkler Code California The california fire code (cfc) contains regulations consistent with nationally recognized and accepted practices for safeguarding life. What are the fire sprinkler requirements in california? Nfpa 13 is a publication for the design, installation, testing, and maintenance of automatic fire sprinkler systems. Qrfs explains california fire code & breaks down the basic inspection, testing & maintenance rules. This standard is. Commercial Fire Sprinkler Code California.
From hgi-fire.com
Choosing the Right Fire Sprinkler Part 1 Harrington Group Inc Commercial Fire Sprinkler Code California What are the fire sprinkler requirements in california? This standard is for the design and installation of fire sprinkler systems in commercial buildings and is pursuant to the 2022 california fire code,. The california fire code (cfc) contains regulations consistent with nationally recognized and accepted practices for safeguarding life. Nfpa 13 is a publication for the design, installation, testing, and. Commercial Fire Sprinkler Code California.
From up.codes
Chapter 13 Installation Requirements for CMSA Sprinklers, California Commercial Fire Sprinkler Code California This standard is for the design and installation of fire sprinkler systems in commercial buildings and is pursuant to the 2022 california fire code,. This guideline has been prepared to assist those responsible for the design, installation, testing, and inspection of fire sprinkler systems to. Nfpa 13 is a publication for the design, installation, testing, and maintenance of automatic fire. Commercial Fire Sprinkler Code California.
From up.codes
Chapter 28 Plans and Calculations, California Fire Sprinkler Code 2022 Commercial Fire Sprinkler Code California This standard is for the design and installation of fire sprinkler systems in commercial buildings and is pursuant to the 2022 california fire code,. Nfpa 13 is a publication for the design, installation, testing, and maintenance of automatic fire sprinkler systems. The california fire code (cfc) contains regulations consistent with nationally recognized and accepted practices for safeguarding life. What are. Commercial Fire Sprinkler Code California.
From aurafiresafety.com
What Are The Fire Sprinkler System Code Requirements For Commercial Commercial Fire Sprinkler Code California The california fire code (cfc) contains regulations consistent with nationally recognized and accepted practices for safeguarding life. Qrfs explains california fire code & breaks down the basic inspection, testing & maintenance rules. This guideline has been prepared to assist those responsible for the design, installation, testing, and inspection of fire sprinkler systems to. Nfpa 13 is a publication for the. Commercial Fire Sprinkler Code California.
From www.youtube.com
Fire sprinkler colour code type। fire sprinkler headscolour code bulb Commercial Fire Sprinkler Code California What are the fire sprinkler requirements in california? Nfpa 13 is a publication for the design, installation, testing, and maintenance of automatic fire sprinkler systems. This standard is for the design and installation of fire sprinkler systems in commercial buildings and is pursuant to the 2022 california fire code,. This guideline has been prepared to assist those responsible for the. Commercial Fire Sprinkler Code California.
From www.firesprinklerpro.com
Commercial & Industrial Fire Sprinklers Fire Sprinkler Service Commercial Fire Sprinkler Code California What are the fire sprinkler requirements in california? Nfpa 13 is a publication for the design, installation, testing, and maintenance of automatic fire sprinkler systems. This standard is for the design and installation of fire sprinkler systems in commercial buildings and is pursuant to the 2022 california fire code,. Nfpa 13 is a publication for the design, installation, testing, and. Commercial Fire Sprinkler Code California.
From ffprotection.com
Northern California Commercial Fire Sprinkler Requirements Commercial Fire Sprinkler Code California What are the fire sprinkler requirements in california? Nfpa 13 is a publication for the design, installation, testing, and maintenance of automatic fire sprinkler systems. This standard is for the design and installation of fire sprinkler systems in commercial buildings and is pursuant to the 2022 california fire code,. Nfpa 13 is a publication for the design, installation, testing, and. Commercial Fire Sprinkler Code California.
From up.codes
Chapter 10 Installation Requirements for Standard Pendent, Upright Commercial Fire Sprinkler Code California This guideline has been prepared to assist those responsible for the design, installation, testing, and inspection of fire sprinkler systems to. This standard is for the design and installation of fire sprinkler systems in commercial buildings and is pursuant to the 2022 california fire code,. Qrfs explains california fire code & breaks down the basic inspection, testing & maintenance rules.. Commercial Fire Sprinkler Code California.
From mepsector.com
Temperature Ratings of Fire Sprinkler and their Color Codes MEP sector Commercial Fire Sprinkler Code California This guideline has been prepared to assist those responsible for the design, installation, testing, and inspection of fire sprinkler systems to. The california fire code (cfc) contains regulations consistent with nationally recognized and accepted practices for safeguarding life. What are the fire sprinkler requirements in california? This standard is for the design and installation of fire sprinkler systems in commercial. Commercial Fire Sprinkler Code California.
From blog.qrfs.com
A Guide to Fire Sprinkler Signs and System Marking in NFPA 13 Commercial Fire Sprinkler Code California Nfpa 13 is a publication for the design, installation, testing, and maintenance of automatic fire sprinkler systems. This standard is for the design and installation of fire sprinkler systems in commercial buildings and is pursuant to the 2022 california fire code,. Qrfs explains california fire code & breaks down the basic inspection, testing & maintenance rules. The california fire code. Commercial Fire Sprinkler Code California.
From up.codes
Chapter 26 Special Designs of Storage Protection, California Fire Commercial Fire Sprinkler Code California This guideline has been prepared to assist those responsible for the design, installation, testing, and inspection of fire sprinkler systems to. This standard is for the design and installation of fire sprinkler systems in commercial buildings and is pursuant to the 2022 california fire code,. The california fire code (cfc) contains regulations consistent with nationally recognized and accepted practices for. Commercial Fire Sprinkler Code California.
From championfireprotection.net
Champion Fire Protection North California Fire Sprinklers Commercial Fire Sprinkler Code California Qrfs explains california fire code & breaks down the basic inspection, testing & maintenance rules. What are the fire sprinkler requirements in california? The california fire code (cfc) contains regulations consistent with nationally recognized and accepted practices for safeguarding life. This standard is for the design and installation of fire sprinkler systems in commercial buildings and is pursuant to the. Commercial Fire Sprinkler Code California.
From www.slideserve.com
PPT Residential Fire Sprinklers in the 2010 CA Codes PowerPoint Commercial Fire Sprinkler Code California This guideline has been prepared to assist those responsible for the design, installation, testing, and inspection of fire sprinkler systems to. This standard is for the design and installation of fire sprinkler systems in commercial buildings and is pursuant to the 2022 california fire code,. Nfpa 13 is a publication for the design, installation, testing, and maintenance of automatic fire. Commercial Fire Sprinkler Code California.
From up.codes
Chapter 28 Plans and Calculations, California Fire Sprinkler Code 2022 Commercial Fire Sprinkler Code California Nfpa 13 is a publication for the design, installation, testing, and maintenance of automatic fire sprinkler systems. This guideline has been prepared to assist those responsible for the design, installation, testing, and inspection of fire sprinkler systems to. What are the fire sprinkler requirements in california? The california fire code (cfc) contains regulations consistent with nationally recognized and accepted practices. Commercial Fire Sprinkler Code California.
From www.chesapeakesprinkler.com
Common Commercial Fire Sprinkler Systems Code Violations Chesapeake Commercial Fire Sprinkler Code California Nfpa 13 is a publication for the design, installation, testing, and maintenance of automatic fire sprinkler systems. This standard is for the design and installation of fire sprinkler systems in commercial buildings and is pursuant to the 2022 california fire code,. Qrfs explains california fire code & breaks down the basic inspection, testing & maintenance rules. What are the fire. Commercial Fire Sprinkler Code California.
From www.usafireprotectioninc.com
USA Fire Protection Commercial Fire Sprinkler Code California Qrfs explains california fire code & breaks down the basic inspection, testing & maintenance rules. The california fire code (cfc) contains regulations consistent with nationally recognized and accepted practices for safeguarding life. Nfpa 13 is a publication for the design, installation, testing, and maintenance of automatic fire sprinkler systems. Nfpa 13 is a publication for the design, installation, testing, and. Commercial Fire Sprinkler Code California.
From mepsector.com
Temperature Ratings of Fire Sprinkler and their Color Codes MEP sector Commercial Fire Sprinkler Code California The california fire code (cfc) contains regulations consistent with nationally recognized and accepted practices for safeguarding life. Qrfs explains california fire code & breaks down the basic inspection, testing & maintenance rules. Nfpa 13 is a publication for the design, installation, testing, and maintenance of automatic fire sprinkler systems. Nfpa 13 is a publication for the design, installation, testing, and. Commercial Fire Sprinkler Code California.
From www.innodez.com
Fire Sprinkler System Design California InnoDez Design & Engineering Commercial Fire Sprinkler Code California Nfpa 13 is a publication for the design, installation, testing, and maintenance of automatic fire sprinkler systems. The california fire code (cfc) contains regulations consistent with nationally recognized and accepted practices for safeguarding life. What are the fire sprinkler requirements in california? This standard is for the design and installation of fire sprinkler systems in commercial buildings and is pursuant. Commercial Fire Sprinkler Code California.
From up.codes
Chapter 28 Plans and Calculations, California Fire Sprinkler Code 2022 Commercial Fire Sprinkler Code California What are the fire sprinkler requirements in california? Qrfs explains california fire code & breaks down the basic inspection, testing & maintenance rules. Nfpa 13 is a publication for the design, installation, testing, and maintenance of automatic fire sprinkler systems. This guideline has been prepared to assist those responsible for the design, installation, testing, and inspection of fire sprinkler systems. Commercial Fire Sprinkler Code California.
From www.ifsecglobal.com
Fire sprinkler systems a guide to designs, colour codes and suppliers Commercial Fire Sprinkler Code California Qrfs explains california fire code & breaks down the basic inspection, testing & maintenance rules. Nfpa 13 is a publication for the design, installation, testing, and maintenance of automatic fire sprinkler systems. This guideline has been prepared to assist those responsible for the design, installation, testing, and inspection of fire sprinkler systems to. The california fire code (cfc) contains regulations. Commercial Fire Sprinkler Code California.
From www.firesprinklerpro.com
Commercial & Industrial Fire Sprinklers Fire Sprinkler Service Commercial Fire Sprinkler Code California Nfpa 13 is a publication for the design, installation, testing, and maintenance of automatic fire sprinkler systems. What are the fire sprinkler requirements in california? This guideline has been prepared to assist those responsible for the design, installation, testing, and inspection of fire sprinkler systems to. Qrfs explains california fire code & breaks down the basic inspection, testing & maintenance. Commercial Fire Sprinkler Code California.
From up.codes
Chapter 10 Installation Requirements for Standard Pendent, Upright Commercial Fire Sprinkler Code California This guideline has been prepared to assist those responsible for the design, installation, testing, and inspection of fire sprinkler systems to. What are the fire sprinkler requirements in california? The california fire code (cfc) contains regulations consistent with nationally recognized and accepted practices for safeguarding life. Nfpa 13 is a publication for the design, installation, testing, and maintenance of automatic. Commercial Fire Sprinkler Code California.