Bed And Breakfast Design Floor Plans . Bed and breakfast design plans form one of the keys to success for any b&b. This, for now, is what i have decided is the best configuration to provide a comfy, homey, luxurious experience for guests. What is bed and breakfast design? Which is absolutely what i want to provide. From the interior design for guest rooms to the overall house plans for a bed and breakfast, the look and feel of your property can have a huge impact on the guest experience, or indeed whether you attract guests in the first. European, traditional style house plan 85220 with 5000 sq ft, 7 bed, 8 bath. In this comprehensive guide, we will delve into the intricacies of bed and breakfast house floor plans, exploring essential. When designing a bed and breakfast house, careful consideration must be given to the floor plan to ensure both functionality and a. In this article, we'll provide a comprehensive guide to help you design a bed and breakfast house that meets the needs of your. This comprehensive article explores essential considerations, design ideas, and practical tips for creating small bed and.
from tenzouw.blogspot.com
From the interior design for guest rooms to the overall house plans for a bed and breakfast, the look and feel of your property can have a huge impact on the guest experience, or indeed whether you attract guests in the first. What is bed and breakfast design? Bed and breakfast design plans form one of the keys to success for any b&b. When designing a bed and breakfast house, careful consideration must be given to the floor plan to ensure both functionality and a. Which is absolutely what i want to provide. This, for now, is what i have decided is the best configuration to provide a comfy, homey, luxurious experience for guests. In this article, we'll provide a comprehensive guide to help you design a bed and breakfast house that meets the needs of your. In this comprehensive guide, we will delve into the intricacies of bed and breakfast house floor plans, exploring essential. European, traditional style house plan 85220 with 5000 sq ft, 7 bed, 8 bath. This comprehensive article explores essential considerations, design ideas, and practical tips for creating small bed and.
bed and breakfast floor plan designs tenzouw
Bed And Breakfast Design Floor Plans From the interior design for guest rooms to the overall house plans for a bed and breakfast, the look and feel of your property can have a huge impact on the guest experience, or indeed whether you attract guests in the first. This comprehensive article explores essential considerations, design ideas, and practical tips for creating small bed and. Which is absolutely what i want to provide. When designing a bed and breakfast house, careful consideration must be given to the floor plan to ensure both functionality and a. In this article, we'll provide a comprehensive guide to help you design a bed and breakfast house that meets the needs of your. From the interior design for guest rooms to the overall house plans for a bed and breakfast, the look and feel of your property can have a huge impact on the guest experience, or indeed whether you attract guests in the first. In this comprehensive guide, we will delve into the intricacies of bed and breakfast house floor plans, exploring essential. European, traditional style house plan 85220 with 5000 sq ft, 7 bed, 8 bath. Bed and breakfast design plans form one of the keys to success for any b&b. What is bed and breakfast design? This, for now, is what i have decided is the best configuration to provide a comfy, homey, luxurious experience for guests.
From picexam.blogspot.com
Choice Bed and breakfast design floor plans Woodworking Basic Project Bed And Breakfast Design Floor Plans This comprehensive article explores essential considerations, design ideas, and practical tips for creating small bed and. This, for now, is what i have decided is the best configuration to provide a comfy, homey, luxurious experience for guests. What is bed and breakfast design? In this article, we'll provide a comprehensive guide to help you design a bed and breakfast house. Bed And Breakfast Design Floor Plans.
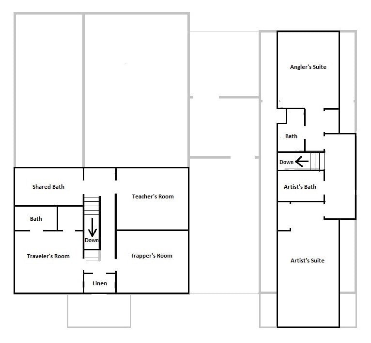
From tenzouw.blogspot.com
bed and breakfast floor plan designs tenzouw Bed And Breakfast Design Floor Plans What is bed and breakfast design? From the interior design for guest rooms to the overall house plans for a bed and breakfast, the look and feel of your property can have a huge impact on the guest experience, or indeed whether you attract guests in the first. European, traditional style house plan 85220 with 5000 sq ft, 7 bed,. Bed And Breakfast Design Floor Plans.
From www.pinterest.com
Awesome Bed and Breakfast Floor Plans Cottage floor plans, Home Bed And Breakfast Design Floor Plans This, for now, is what i have decided is the best configuration to provide a comfy, homey, luxurious experience for guests. What is bed and breakfast design? European, traditional style house plan 85220 with 5000 sq ft, 7 bed, 8 bath. Which is absolutely what i want to provide. Bed and breakfast design plans form one of the keys to. Bed And Breakfast Design Floor Plans.
From jhmrad.com
Upgrade Your Design With These 12 Of Bed And Breakfast House Plans JHMRad Bed And Breakfast Design Floor Plans European, traditional style house plan 85220 with 5000 sq ft, 7 bed, 8 bath. In this comprehensive guide, we will delve into the intricacies of bed and breakfast house floor plans, exploring essential. What is bed and breakfast design? Bed and breakfast design plans form one of the keys to success for any b&b. Which is absolutely what i want. Bed And Breakfast Design Floor Plans.
From www.housedesignideas.us
Bed And Breakfast House Plans House Design Ideas Bed And Breakfast Design Floor Plans In this article, we'll provide a comprehensive guide to help you design a bed and breakfast house that meets the needs of your. European, traditional style house plan 85220 with 5000 sq ft, 7 bed, 8 bath. From the interior design for guest rooms to the overall house plans for a bed and breakfast, the look and feel of your. Bed And Breakfast Design Floor Plans.
From www.theplancollection.com
InLaw Suite Home with 4 Bdrms, 2567 Sq Ft Floor Plan 1081328 Bed And Breakfast Design Floor Plans What is bed and breakfast design? This, for now, is what i have decided is the best configuration to provide a comfy, homey, luxurious experience for guests. In this comprehensive guide, we will delve into the intricacies of bed and breakfast house floor plans, exploring essential. Bed and breakfast design plans form one of the keys to success for any. Bed And Breakfast Design Floor Plans.
From fashiondesignsketchesmen.blogspot.com
bed and breakfast floor plan designs fashiondesignsketchesmen Bed And Breakfast Design Floor Plans When designing a bed and breakfast house, careful consideration must be given to the floor plan to ensure both functionality and a. In this article, we'll provide a comprehensive guide to help you design a bed and breakfast house that meets the needs of your. This comprehensive article explores essential considerations, design ideas, and practical tips for creating small bed. Bed And Breakfast Design Floor Plans.
From housetipster.com
Have a ‘Bed & Breakfast’ Design in Your Home House Tipster Bed And Breakfast Design Floor Plans Bed and breakfast design plans form one of the keys to success for any b&b. What is bed and breakfast design? Which is absolutely what i want to provide. In this comprehensive guide, we will delve into the intricacies of bed and breakfast house floor plans, exploring essential. This comprehensive article explores essential considerations, design ideas, and practical tips for. Bed And Breakfast Design Floor Plans.
From www.pinterest.com
Bed and Blue by Nook Architects Room Interior Design, Interior Floor Bed And Breakfast Design Floor Plans European, traditional style house plan 85220 with 5000 sq ft, 7 bed, 8 bath. When designing a bed and breakfast house, careful consideration must be given to the floor plan to ensure both functionality and a. Which is absolutely what i want to provide. This, for now, is what i have decided is the best configuration to provide a comfy,. Bed And Breakfast Design Floor Plans.
From www.pinterest.com
Bed and Breakfast Inn Chateau Unique house plans, Bed and breakfast Bed And Breakfast Design Floor Plans European, traditional style house plan 85220 with 5000 sq ft, 7 bed, 8 bath. What is bed and breakfast design? Bed and breakfast design plans form one of the keys to success for any b&b. In this article, we'll provide a comprehensive guide to help you design a bed and breakfast house that meets the needs of your. In this. Bed And Breakfast Design Floor Plans.
From www.pinterest.com
Bed And Breakfast House Floor Plans Bed and breakfast inn, Hotel Bed And Breakfast Design Floor Plans In this article, we'll provide a comprehensive guide to help you design a bed and breakfast house that meets the needs of your. When designing a bed and breakfast house, careful consideration must be given to the floor plan to ensure both functionality and a. Which is absolutely what i want to provide. Bed and breakfast design plans form one. Bed And Breakfast Design Floor Plans.
From floorplans.click
Bed And Breakfast Floor Plan Designs floorplans.click Bed And Breakfast Design Floor Plans In this comprehensive guide, we will delve into the intricacies of bed and breakfast house floor plans, exploring essential. From the interior design for guest rooms to the overall house plans for a bed and breakfast, the look and feel of your property can have a huge impact on the guest experience, or indeed whether you attract guests in the. Bed And Breakfast Design Floor Plans.
From fashiondesignsketchesmen.blogspot.com
bed and breakfast floor plan designs fashiondesignsketchesmen Bed And Breakfast Design Floor Plans From the interior design for guest rooms to the overall house plans for a bed and breakfast, the look and feel of your property can have a huge impact on the guest experience, or indeed whether you attract guests in the first. This comprehensive article explores essential considerations, design ideas, and practical tips for creating small bed and. This, for. Bed And Breakfast Design Floor Plans.
From ceiaqttu.blob.core.windows.net
Best Mattress For Bed And Breakfast at Stacy Smith blog Bed And Breakfast Design Floor Plans From the interior design for guest rooms to the overall house plans for a bed and breakfast, the look and feel of your property can have a huge impact on the guest experience, or indeed whether you attract guests in the first. When designing a bed and breakfast house, careful consideration must be given to the floor plan to ensure. Bed And Breakfast Design Floor Plans.
From fashiondesignsketchesmen.blogspot.com
bed and breakfast floor plan designs fashiondesignsketchesmen Bed And Breakfast Design Floor Plans European, traditional style house plan 85220 with 5000 sq ft, 7 bed, 8 bath. From the interior design for guest rooms to the overall house plans for a bed and breakfast, the look and feel of your property can have a huge impact on the guest experience, or indeed whether you attract guests in the first. Which is absolutely what. Bed And Breakfast Design Floor Plans.
From www.streamlinedesign.ca
Golden Acres B&B Log Home Plans 5596sqft Streamline Design Bed And Breakfast Design Floor Plans From the interior design for guest rooms to the overall house plans for a bed and breakfast, the look and feel of your property can have a huge impact on the guest experience, or indeed whether you attract guests in the first. What is bed and breakfast design? In this comprehensive guide, we will delve into the intricacies of bed. Bed And Breakfast Design Floor Plans.
From howtodoeyelinernaturalsimple.blogspot.com
bed and breakfast floor plan designs howtodoeyelinernaturalsimple Bed And Breakfast Design Floor Plans From the interior design for guest rooms to the overall house plans for a bed and breakfast, the look and feel of your property can have a huge impact on the guest experience, or indeed whether you attract guests in the first. In this comprehensive guide, we will delve into the intricacies of bed and breakfast house floor plans, exploring. Bed And Breakfast Design Floor Plans.
From biblus.accasoftware.com
Bed and Breakfast design floor plans, a guide with project dwgs and 3D Bed And Breakfast Design Floor Plans This, for now, is what i have decided is the best configuration to provide a comfy, homey, luxurious experience for guests. In this article, we'll provide a comprehensive guide to help you design a bed and breakfast house that meets the needs of your. Which is absolutely what i want to provide. What is bed and breakfast design? In this. Bed And Breakfast Design Floor Plans.
From www.hartzellhouse.com
Floorplan & Outdoor Spaces at Hartzell House Bed & Breakfast Bed And Breakfast Design Floor Plans This comprehensive article explores essential considerations, design ideas, and practical tips for creating small bed and. Which is absolutely what i want to provide. From the interior design for guest rooms to the overall house plans for a bed and breakfast, the look and feel of your property can have a huge impact on the guest experience, or indeed whether. Bed And Breakfast Design Floor Plans.
From designideas99.blogspot.com
Bed And Breakfast Floor Plans Design Ideas Bed And Breakfast Design Floor Plans What is bed and breakfast design? This comprehensive article explores essential considerations, design ideas, and practical tips for creating small bed and. Bed and breakfast design plans form one of the keys to success for any b&b. In this article, we'll provide a comprehensive guide to help you design a bed and breakfast house that meets the needs of your.. Bed And Breakfast Design Floor Plans.
From senaterace2012.com
20 Perfect Images Bed And Breakfast Building Plans Home Plans Bed And Breakfast Design Floor Plans From the interior design for guest rooms to the overall house plans for a bed and breakfast, the look and feel of your property can have a huge impact on the guest experience, or indeed whether you attract guests in the first. This comprehensive article explores essential considerations, design ideas, and practical tips for creating small bed and. In this. Bed And Breakfast Design Floor Plans.
From portableworkbenchcabinet.blogspot.com
Bed breakfast design floor plans My portable workbench Bed And Breakfast Design Floor Plans When designing a bed and breakfast house, careful consideration must be given to the floor plan to ensure both functionality and a. Which is absolutely what i want to provide. Bed and breakfast design plans form one of the keys to success for any b&b. What is bed and breakfast design? European, traditional style house plan 85220 with 5000 sq. Bed And Breakfast Design Floor Plans.
From www.pinterest.com
EdgeWater Farm Bed and Breakfast Phippsburg, Maine Bed and Bed And Breakfast Design Floor Plans What is bed and breakfast design? In this comprehensive guide, we will delve into the intricacies of bed and breakfast house floor plans, exploring essential. From the interior design for guest rooms to the overall house plans for a bed and breakfast, the look and feel of your property can have a huge impact on the guest experience, or indeed. Bed And Breakfast Design Floor Plans.
From northernlightsstaging.com
Vacation Rental Staging and Design Portfolio Mary Ann BenoitNorthern Bed And Breakfast Design Floor Plans In this comprehensive guide, we will delve into the intricacies of bed and breakfast house floor plans, exploring essential. What is bed and breakfast design? In this article, we'll provide a comprehensive guide to help you design a bed and breakfast house that meets the needs of your. From the interior design for guest rooms to the overall house plans. Bed And Breakfast Design Floor Plans.
From mekahomedesign.it
Come arredare un bed and breakfast Consigli, idee originali Bed And Breakfast Design Floor Plans Bed and breakfast design plans form one of the keys to success for any b&b. In this comprehensive guide, we will delve into the intricacies of bed and breakfast house floor plans, exploring essential. When designing a bed and breakfast house, careful consideration must be given to the floor plan to ensure both functionality and a. This, for now, is. Bed And Breakfast Design Floor Plans.
From slickrocklodge.com
Lodge Floor Plans Slick Rock Lodge Bed And Breakfast Design Floor Plans In this article, we'll provide a comprehensive guide to help you design a bed and breakfast house that meets the needs of your. Bed and breakfast design plans form one of the keys to success for any b&b. In this comprehensive guide, we will delve into the intricacies of bed and breakfast house floor plans, exploring essential. When designing a. Bed And Breakfast Design Floor Plans.
From robvandamnetworth.blogspot.com
bed and breakfast floor plan designs Bed And Breakfast Design Floor Plans What is bed and breakfast design? This comprehensive article explores essential considerations, design ideas, and practical tips for creating small bed and. Which is absolutely what i want to provide. In this comprehensive guide, we will delve into the intricacies of bed and breakfast house floor plans, exploring essential. In this article, we'll provide a comprehensive guide to help you. Bed And Breakfast Design Floor Plans.
From www.thornhedgeinn.com
Floorplans Thornhedge Inn Bar Harbor, Maine Bed And Breakfast Design Floor Plans When designing a bed and breakfast house, careful consideration must be given to the floor plan to ensure both functionality and a. European, traditional style house plan 85220 with 5000 sq ft, 7 bed, 8 bath. In this comprehensive guide, we will delve into the intricacies of bed and breakfast house floor plans, exploring essential. Bed and breakfast design plans. Bed And Breakfast Design Floor Plans.
From yorkelodge.com
Twin Room Yorke Lodge Bed and Breakfast, Canterbury, Kent UK Bed And Breakfast Design Floor Plans From the interior design for guest rooms to the overall house plans for a bed and breakfast, the look and feel of your property can have a huge impact on the guest experience, or indeed whether you attract guests in the first. This comprehensive article explores essential considerations, design ideas, and practical tips for creating small bed and. In this. Bed And Breakfast Design Floor Plans.
From www.littlehotelier.com
Bed and breakfast design Ideas and tips Little Hotelier Bed And Breakfast Design Floor Plans When designing a bed and breakfast house, careful consideration must be given to the floor plan to ensure both functionality and a. Which is absolutely what i want to provide. What is bed and breakfast design? Bed and breakfast design plans form one of the keys to success for any b&b. This comprehensive article explores essential considerations, design ideas, and. Bed And Breakfast Design Floor Plans.
From energiaucb.blogspot.com
18 Best Bed And Breakfast Floor Plans Bed And Breakfast Design Floor Plans In this article, we'll provide a comprehensive guide to help you design a bed and breakfast house that meets the needs of your. This comprehensive article explores essential considerations, design ideas, and practical tips for creating small bed and. Bed and breakfast design plans form one of the keys to success for any b&b. This, for now, is what i. Bed And Breakfast Design Floor Plans.
From www.yourdesign-group.co.uk
Bed and Breakfast Design, Drawings and Visualisation Bed And Breakfast Design Floor Plans This comprehensive article explores essential considerations, design ideas, and practical tips for creating small bed and. This, for now, is what i have decided is the best configuration to provide a comfy, homey, luxurious experience for guests. When designing a bed and breakfast house, careful consideration must be given to the floor plan to ensure both functionality and a. What. Bed And Breakfast Design Floor Plans.
From www.housedesignideas.us
Bed And Breakfast House Floor Plans House Design Ideas Bed And Breakfast Design Floor Plans When designing a bed and breakfast house, careful consideration must be given to the floor plan to ensure both functionality and a. In this article, we'll provide a comprehensive guide to help you design a bed and breakfast house that meets the needs of your. From the interior design for guest rooms to the overall house plans for a bed. Bed And Breakfast Design Floor Plans.
From robvandamnetworth.blogspot.com
bed and breakfast floor plan designs Bed And Breakfast Design Floor Plans From the interior design for guest rooms to the overall house plans for a bed and breakfast, the look and feel of your property can have a huge impact on the guest experience, or indeed whether you attract guests in the first. In this comprehensive guide, we will delve into the intricacies of bed and breakfast house floor plans, exploring. Bed And Breakfast Design Floor Plans.
From favpng.com
Floor Plan Bed And Breakfast Groningen Hotel, PNG, 1200x1085px, Floor Bed And Breakfast Design Floor Plans This, for now, is what i have decided is the best configuration to provide a comfy, homey, luxurious experience for guests. In this article, we'll provide a comprehensive guide to help you design a bed and breakfast house that meets the needs of your. When designing a bed and breakfast house, careful consideration must be given to the floor plan. Bed And Breakfast Design Floor Plans.