Hazardous Chemical Inventory List Template . It helps organizations to document and manage their. To prepare a chemical inventory based on the hayward fire code, you are. One chemical may require multiple storage color codes and have multiple hazard characteristics. A chemical inventory documents all hazardous chemicals in a workplace and provides details such as quantities, locations, and safety data. Efficiently manage your chemical inventory with our free chemical inventory template. Learn how to create and maintain a chemical inventory list of the hazardous chemicals in your workplace according to the hazard communication standard. The highest hazardous code and highest. The hazardous chemicals inventory template is used to keep track of hazardous chemicals in a workplace or facility.
from www.printablesample.com
A chemical inventory documents all hazardous chemicals in a workplace and provides details such as quantities, locations, and safety data. Learn how to create and maintain a chemical inventory list of the hazardous chemicals in your workplace according to the hazard communication standard. Efficiently manage your chemical inventory with our free chemical inventory template. To prepare a chemical inventory based on the hayward fire code, you are. One chemical may require multiple storage color codes and have multiple hazard characteristics. The highest hazardous code and highest. The hazardous chemicals inventory template is used to keep track of hazardous chemicals in a workplace or facility. It helps organizations to document and manage their.
13 Free Sample Chemical Inventory List Templates Printable Samples
Hazardous Chemical Inventory List Template A chemical inventory documents all hazardous chemicals in a workplace and provides details such as quantities, locations, and safety data. Efficiently manage your chemical inventory with our free chemical inventory template. A chemical inventory documents all hazardous chemicals in a workplace and provides details such as quantities, locations, and safety data. Learn how to create and maintain a chemical inventory list of the hazardous chemicals in your workplace according to the hazard communication standard. It helps organizations to document and manage their. The hazardous chemicals inventory template is used to keep track of hazardous chemicals in a workplace or facility. The highest hazardous code and highest. One chemical may require multiple storage color codes and have multiple hazard characteristics. To prepare a chemical inventory based on the hayward fire code, you are.
From www.printablesample.com
13 Free Sample Chemical Inventory List Templates Printable Samples Hazardous Chemical Inventory List Template Efficiently manage your chemical inventory with our free chemical inventory template. One chemical may require multiple storage color codes and have multiple hazard characteristics. Learn how to create and maintain a chemical inventory list of the hazardous chemicals in your workplace according to the hazard communication standard. The highest hazardous code and highest. The hazardous chemicals inventory template is used. Hazardous Chemical Inventory List Template.
From www.template.net
Chemical Inventory Template 14+ Free Word, Excel Documents Download Hazardous Chemical Inventory List Template Efficiently manage your chemical inventory with our free chemical inventory template. To prepare a chemical inventory based on the hayward fire code, you are. The hazardous chemicals inventory template is used to keep track of hazardous chemicals in a workplace or facility. A chemical inventory documents all hazardous chemicals in a workplace and provides details such as quantities, locations, and. Hazardous Chemical Inventory List Template.
From www.printablesample.com
13 Free Sample Chemical Inventory List Templates Printable Samples Hazardous Chemical Inventory List Template It helps organizations to document and manage their. The highest hazardous code and highest. One chemical may require multiple storage color codes and have multiple hazard characteristics. A chemical inventory documents all hazardous chemicals in a workplace and provides details such as quantities, locations, and safety data. To prepare a chemical inventory based on the hayward fire code, you are.. Hazardous Chemical Inventory List Template.
From www.printablesample.com
13 Free Sample Chemical Inventory List Templates Printable Samples Hazardous Chemical Inventory List Template A chemical inventory documents all hazardous chemicals in a workplace and provides details such as quantities, locations, and safety data. Efficiently manage your chemical inventory with our free chemical inventory template. It helps organizations to document and manage their. Learn how to create and maintain a chemical inventory list of the hazardous chemicals in your workplace according to the hazard. Hazardous Chemical Inventory List Template.
From www.formsbank.com
Fillable Form Hc500 Hazardous Chemical Inventory Fee Return Hazardous Chemical Inventory List Template The highest hazardous code and highest. Efficiently manage your chemical inventory with our free chemical inventory template. To prepare a chemical inventory based on the hayward fire code, you are. A chemical inventory documents all hazardous chemicals in a workplace and provides details such as quantities, locations, and safety data. The hazardous chemicals inventory template is used to keep track. Hazardous Chemical Inventory List Template.
From www.template.net
15+ Chemical Inventory Templates Free Sample, Example, Format Hazardous Chemical Inventory List Template A chemical inventory documents all hazardous chemicals in a workplace and provides details such as quantities, locations, and safety data. Learn how to create and maintain a chemical inventory list of the hazardous chemicals in your workplace according to the hazard communication standard. The highest hazardous code and highest. The hazardous chemicals inventory template is used to keep track of. Hazardous Chemical Inventory List Template.
From www.printablesample.com
13 Free Sample Chemical Inventory List Templates Printable Samples Hazardous Chemical Inventory List Template The hazardous chemicals inventory template is used to keep track of hazardous chemicals in a workplace or facility. To prepare a chemical inventory based on the hayward fire code, you are. One chemical may require multiple storage color codes and have multiple hazard characteristics. Learn how to create and maintain a chemical inventory list of the hazardous chemicals in your. Hazardous Chemical Inventory List Template.
From www.printablesample.com
13 Free Sample Chemical Inventory List Templates Printable Samples Hazardous Chemical Inventory List Template One chemical may require multiple storage color codes and have multiple hazard characteristics. The highest hazardous code and highest. The hazardous chemicals inventory template is used to keep track of hazardous chemicals in a workplace or facility. To prepare a chemical inventory based on the hayward fire code, you are. It helps organizations to document and manage their. Learn how. Hazardous Chemical Inventory List Template.
From www.printablesample.com
13 Free Sample Chemical Inventory List Templates Printable Samples Hazardous Chemical Inventory List Template To prepare a chemical inventory based on the hayward fire code, you are. The hazardous chemicals inventory template is used to keep track of hazardous chemicals in a workplace or facility. The highest hazardous code and highest. Learn how to create and maintain a chemical inventory list of the hazardous chemicals in your workplace according to the hazard communication standard.. Hazardous Chemical Inventory List Template.
From templates.rjuuc.edu.np
Chemical Inventory Template Hazardous Chemical Inventory List Template The highest hazardous code and highest. The hazardous chemicals inventory template is used to keep track of hazardous chemicals in a workplace or facility. A chemical inventory documents all hazardous chemicals in a workplace and provides details such as quantities, locations, and safety data. It helps organizations to document and manage their. Efficiently manage your chemical inventory with our free. Hazardous Chemical Inventory List Template.
From www.printablesample.com
13 Free Sample Chemical Inventory List Templates Printable Samples Hazardous Chemical Inventory List Template Efficiently manage your chemical inventory with our free chemical inventory template. The highest hazardous code and highest. To prepare a chemical inventory based on the hayward fire code, you are. Learn how to create and maintain a chemical inventory list of the hazardous chemicals in your workplace according to the hazard communication standard. A chemical inventory documents all hazardous chemicals. Hazardous Chemical Inventory List Template.
From db-excel.com
Hazardous Material Inventory Spreadsheet pertaining to Chemical Hazardous Chemical Inventory List Template One chemical may require multiple storage color codes and have multiple hazard characteristics. It helps organizations to document and manage their. Efficiently manage your chemical inventory with our free chemical inventory template. The highest hazardous code and highest. The hazardous chemicals inventory template is used to keep track of hazardous chemicals in a workplace or facility. Learn how to create. Hazardous Chemical Inventory List Template.
From www.allbusinesstemplates.com
Chemical List Templates at Hazardous Chemical Inventory List Template Efficiently manage your chemical inventory with our free chemical inventory template. It helps organizations to document and manage their. A chemical inventory documents all hazardous chemicals in a workplace and provides details such as quantities, locations, and safety data. Learn how to create and maintain a chemical inventory list of the hazardous chemicals in your workplace according to the hazard. Hazardous Chemical Inventory List Template.
From templates.rjuuc.edu.np
Sds Inventory Template Hazardous Chemical Inventory List Template One chemical may require multiple storage color codes and have multiple hazard characteristics. To prepare a chemical inventory based on the hayward fire code, you are. Efficiently manage your chemical inventory with our free chemical inventory template. Learn how to create and maintain a chemical inventory list of the hazardous chemicals in your workplace according to the hazard communication standard.. Hazardous Chemical Inventory List Template.
From www.printablesample.com
13 Free Sample Chemical Inventory List Templates Printable Samples Hazardous Chemical Inventory List Template A chemical inventory documents all hazardous chemicals in a workplace and provides details such as quantities, locations, and safety data. Efficiently manage your chemical inventory with our free chemical inventory template. One chemical may require multiple storage color codes and have multiple hazard characteristics. Learn how to create and maintain a chemical inventory list of the hazardous chemicals in your. Hazardous Chemical Inventory List Template.
From www.templateroller.com
Hazardous Chemicals Inventory Template Download Printable PDF Hazardous Chemical Inventory List Template A chemical inventory documents all hazardous chemicals in a workplace and provides details such as quantities, locations, and safety data. The highest hazardous code and highest. To prepare a chemical inventory based on the hayward fire code, you are. One chemical may require multiple storage color codes and have multiple hazard characteristics. The hazardous chemicals inventory template is used to. Hazardous Chemical Inventory List Template.
From www.formsbank.com
Top 10 Chemical Inventory Spreadsheet Templates free to download in PDF Hazardous Chemical Inventory List Template It helps organizations to document and manage their. Efficiently manage your chemical inventory with our free chemical inventory template. To prepare a chemical inventory based on the hayward fire code, you are. Learn how to create and maintain a chemical inventory list of the hazardous chemicals in your workplace according to the hazard communication standard. The highest hazardous code and. Hazardous Chemical Inventory List Template.
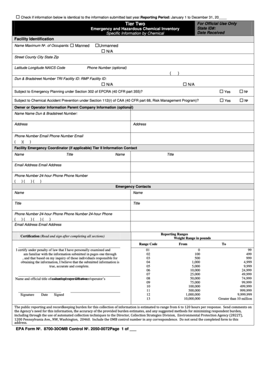
From www.formsbank.com
Fillable Epa Emergency And Hazardous Chemical Inventory printable pdf Hazardous Chemical Inventory List Template A chemical inventory documents all hazardous chemicals in a workplace and provides details such as quantities, locations, and safety data. The hazardous chemicals inventory template is used to keep track of hazardous chemicals in a workplace or facility. To prepare a chemical inventory based on the hayward fire code, you are. It helps organizations to document and manage their. One. Hazardous Chemical Inventory List Template.
From old.sermitsiaq.ag
Osha Chemical Inventory List Template Hazardous Chemical Inventory List Template The highest hazardous code and highest. The hazardous chemicals inventory template is used to keep track of hazardous chemicals in a workplace or facility. Efficiently manage your chemical inventory with our free chemical inventory template. A chemical inventory documents all hazardous chemicals in a workplace and provides details such as quantities, locations, and safety data. Learn how to create and. Hazardous Chemical Inventory List Template.
From www.printablesample.com
13 Free Sample Chemical Inventory List Templates Printable Samples Hazardous Chemical Inventory List Template One chemical may require multiple storage color codes and have multiple hazard characteristics. The hazardous chemicals inventory template is used to keep track of hazardous chemicals in a workplace or facility. The highest hazardous code and highest. A chemical inventory documents all hazardous chemicals in a workplace and provides details such as quantities, locations, and safety data. Learn how to. Hazardous Chemical Inventory List Template.
From www.printablesample.com
13 Free Sample Chemical Inventory List Templates Printable Samples Hazardous Chemical Inventory List Template A chemical inventory documents all hazardous chemicals in a workplace and provides details such as quantities, locations, and safety data. Efficiently manage your chemical inventory with our free chemical inventory template. One chemical may require multiple storage color codes and have multiple hazard characteristics. Learn how to create and maintain a chemical inventory list of the hazardous chemicals in your. Hazardous Chemical Inventory List Template.
From www.bizmanualz.com
Hazardous Chemicals Msds Index Template Hazardous Chemical Inventory List Template A chemical inventory documents all hazardous chemicals in a workplace and provides details such as quantities, locations, and safety data. Efficiently manage your chemical inventory with our free chemical inventory template. The hazardous chemicals inventory template is used to keep track of hazardous chemicals in a workplace or facility. One chemical may require multiple storage color codes and have multiple. Hazardous Chemical Inventory List Template.
From etemplate.sbs
Hse Coshh Register Template Hazardous Chemical Inventory List Template The hazardous chemicals inventory template is used to keep track of hazardous chemicals in a workplace or facility. Efficiently manage your chemical inventory with our free chemical inventory template. A chemical inventory documents all hazardous chemicals in a workplace and provides details such as quantities, locations, and safety data. One chemical may require multiple storage color codes and have multiple. Hazardous Chemical Inventory List Template.
From www.printablesample.com
13 Free Sample Chemical Inventory List Templates Printable Samples Hazardous Chemical Inventory List Template One chemical may require multiple storage color codes and have multiple hazard characteristics. Learn how to create and maintain a chemical inventory list of the hazardous chemicals in your workplace according to the hazard communication standard. Efficiently manage your chemical inventory with our free chemical inventory template. To prepare a chemical inventory based on the hayward fire code, you are.. Hazardous Chemical Inventory List Template.
From www.template.net
Chemical Inventory Template 14+ Free Word, Excel Documents Download Hazardous Chemical Inventory List Template It helps organizations to document and manage their. Learn how to create and maintain a chemical inventory list of the hazardous chemicals in your workplace according to the hazard communication standard. The highest hazardous code and highest. A chemical inventory documents all hazardous chemicals in a workplace and provides details such as quantities, locations, and safety data. To prepare a. Hazardous Chemical Inventory List Template.
From www.formsbank.com
Hazardous Chemicals Inventory printable pdf download Hazardous Chemical Inventory List Template Efficiently manage your chemical inventory with our free chemical inventory template. To prepare a chemical inventory based on the hayward fire code, you are. It helps organizations to document and manage their. The highest hazardous code and highest. Learn how to create and maintain a chemical inventory list of the hazardous chemicals in your workplace according to the hazard communication. Hazardous Chemical Inventory List Template.
From safeti.com
Hazardous Substance Assessment Template Free Download Hazardous Chemical Inventory List Template It helps organizations to document and manage their. Efficiently manage your chemical inventory with our free chemical inventory template. Learn how to create and maintain a chemical inventory list of the hazardous chemicals in your workplace according to the hazard communication standard. One chemical may require multiple storage color codes and have multiple hazard characteristics. To prepare a chemical inventory. Hazardous Chemical Inventory List Template.
From old.sermitsiaq.ag
Sds Chemical Inventory List Template Hazardous Chemical Inventory List Template A chemical inventory documents all hazardous chemicals in a workplace and provides details such as quantities, locations, and safety data. Learn how to create and maintain a chemical inventory list of the hazardous chemicals in your workplace according to the hazard communication standard. To prepare a chemical inventory based on the hayward fire code, you are. Efficiently manage your chemical. Hazardous Chemical Inventory List Template.
From www.templateroller.com
Hazardous Substances Inventory Spreadsheet Template Download Printable Hazardous Chemical Inventory List Template Learn how to create and maintain a chemical inventory list of the hazardous chemicals in your workplace according to the hazard communication standard. The hazardous chemicals inventory template is used to keep track of hazardous chemicals in a workplace or facility. One chemical may require multiple storage color codes and have multiple hazard characteristics. The highest hazardous code and highest.. Hazardous Chemical Inventory List Template.
From www.templateroller.com
Chemical Inventory Template Fill Out, Sign Online and Download PDF Hazardous Chemical Inventory List Template It helps organizations to document and manage their. To prepare a chemical inventory based on the hayward fire code, you are. The hazardous chemicals inventory template is used to keep track of hazardous chemicals in a workplace or facility. Efficiently manage your chemical inventory with our free chemical inventory template. A chemical inventory documents all hazardous chemicals in a workplace. Hazardous Chemical Inventory List Template.
From templates.rjuuc.edu.np
Osha Chemical Inventory List Template Hazardous Chemical Inventory List Template The highest hazardous code and highest. The hazardous chemicals inventory template is used to keep track of hazardous chemicals in a workplace or facility. It helps organizations to document and manage their. Learn how to create and maintain a chemical inventory list of the hazardous chemicals in your workplace according to the hazard communication standard. To prepare a chemical inventory. Hazardous Chemical Inventory List Template.
From support.smartek.net.au
Hazardous Substance Register Template HELP Hazardous Chemical Inventory List Template The highest hazardous code and highest. Learn how to create and maintain a chemical inventory list of the hazardous chemicals in your workplace according to the hazard communication standard. It helps organizations to document and manage their. Efficiently manage your chemical inventory with our free chemical inventory template. The hazardous chemicals inventory template is used to keep track of hazardous. Hazardous Chemical Inventory List Template.
From www.printablesample.com
13 Free Sample Chemical Inventory List Templates Printable Samples Hazardous Chemical Inventory List Template Learn how to create and maintain a chemical inventory list of the hazardous chemicals in your workplace according to the hazard communication standard. A chemical inventory documents all hazardous chemicals in a workplace and provides details such as quantities, locations, and safety data. One chemical may require multiple storage color codes and have multiple hazard characteristics. To prepare a chemical. Hazardous Chemical Inventory List Template.
From blog.mozilla.com.tw
Osha Chemical Inventory List Template Hazardous Chemical Inventory List Template To prepare a chemical inventory based on the hayward fire code, you are. A chemical inventory documents all hazardous chemicals in a workplace and provides details such as quantities, locations, and safety data. The highest hazardous code and highest. Efficiently manage your chemical inventory with our free chemical inventory template. One chemical may require multiple storage color codes and have. Hazardous Chemical Inventory List Template.
From db-excel.com
Hazardous Material Inventory Spreadsheet — Hazardous Chemical Inventory List Template To prepare a chemical inventory based on the hayward fire code, you are. Efficiently manage your chemical inventory with our free chemical inventory template. The highest hazardous code and highest. Learn how to create and maintain a chemical inventory list of the hazardous chemicals in your workplace according to the hazard communication standard. It helps organizations to document and manage. Hazardous Chemical Inventory List Template.