Property Sale Records Nj . search nj tax assessment records, property tax maps, parcels, sales history, export raw data, mailing labels, aerial maps, fema. Enter a name or select a location to begin your search. nj parcels is your place for searching real estate sales and property assessment records. njparcels.com can help you find tax parcel, assessment, sales information and comps for any property in the garden state. new jersey property records. the header search menu utilizes additional address databases in order to help locate a subject property. Use the forms below to search property. check out new jersey property records and related public information, such as nj assessments, home values and property. with a simple address search, you can quickly find exhaustive property records for both residential and commercial properties, including document images. Not all fields need to be filled out. Njparcelrecords.com is your source for property information, real estate and sales.
from www.loopnet.com
new jersey property records. nj parcels is your place for searching real estate sales and property assessment records. check out new jersey property records and related public information, such as nj assessments, home values and property. the header search menu utilizes additional address databases in order to help locate a subject property. Enter a name or select a location to begin your search. Not all fields need to be filled out. search nj tax assessment records, property tax maps, parcels, sales history, export raw data, mailing labels, aerial maps, fema. Use the forms below to search property. with a simple address search, you can quickly find exhaustive property records for both residential and commercial properties, including document images. njparcels.com can help you find tax parcel, assessment, sales information and comps for any property in the garden state.
418 Broadway, Bayonne, NJ 07002 Property Record
Property Sale Records Nj Not all fields need to be filled out. search nj tax assessment records, property tax maps, parcels, sales history, export raw data, mailing labels, aerial maps, fema. Njparcelrecords.com is your source for property information, real estate and sales. new jersey property records. Not all fields need to be filled out. Use the forms below to search property. check out new jersey property records and related public information, such as nj assessments, home values and property. with a simple address search, you can quickly find exhaustive property records for both residential and commercial properties, including document images. the header search menu utilizes additional address databases in order to help locate a subject property. nj parcels is your place for searching real estate sales and property assessment records. njparcels.com can help you find tax parcel, assessment, sales information and comps for any property in the garden state. Enter a name or select a location to begin your search.
From www.loopnet.com
80 RT4 E, Paramus, NJ 07652 Property Record Property Sale Records Nj new jersey property records. check out new jersey property records and related public information, such as nj assessments, home values and property. Use the forms below to search property. search nj tax assessment records, property tax maps, parcels, sales history, export raw data, mailing labels, aerial maps, fema. Enter a name or select a location to begin. Property Sale Records Nj.
From localtoday.news
Two South Bronx condos sell for over 1.1 million each, breaking real Property Sale Records Nj the header search menu utilizes additional address databases in order to help locate a subject property. Njparcelrecords.com is your source for property information, real estate and sales. njparcels.com can help you find tax parcel, assessment, sales information and comps for any property in the garden state. check out new jersey property records and related public information, such. Property Sale Records Nj.
From www.northjersey.com
NJ Records Start searching millions of public records Property Sale Records Nj Use the forms below to search property. search nj tax assessment records, property tax maps, parcels, sales history, export raw data, mailing labels, aerial maps, fema. new jersey property records. nj parcels is your place for searching real estate sales and property assessment records. Enter a name or select a location to begin your search. check. Property Sale Records Nj.
From www.uslegalforms.com
Newark New Jersey Subpoena Duces Tecum (For Use When Records Are Needed Property Sale Records Nj Enter a name or select a location to begin your search. with a simple address search, you can quickly find exhaustive property records for both residential and commercial properties, including document images. the header search menu utilizes additional address databases in order to help locate a subject property. Not all fields need to be filled out. Njparcelrecords.com is. Property Sale Records Nj.
From eforms.com
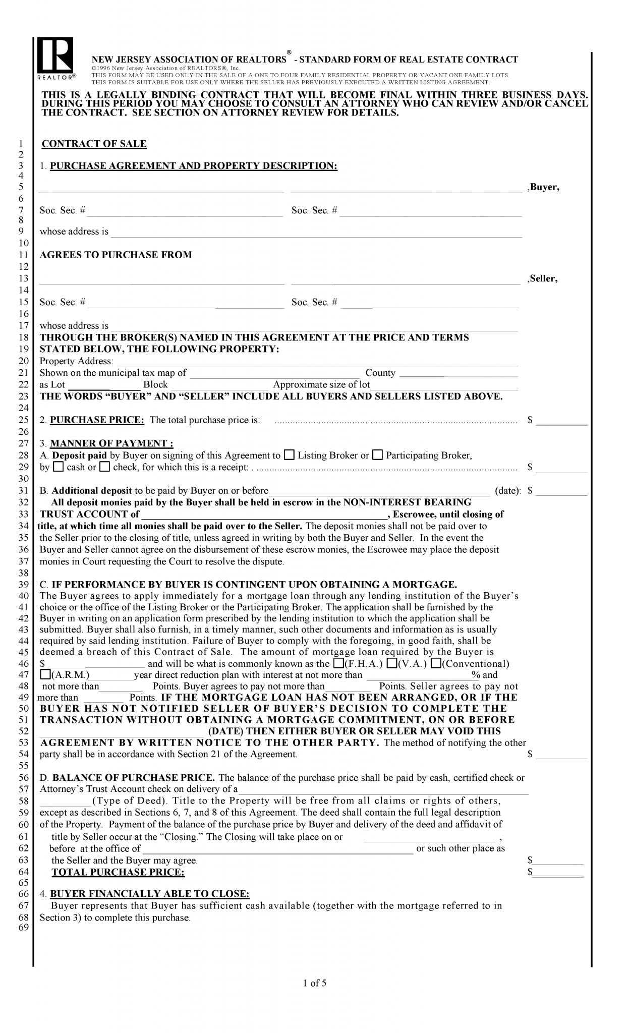
Free New Jersey Land Contract Template PDF Word eForms Property Sale Records Nj Njparcelrecords.com is your source for property information, real estate and sales. new jersey property records. njparcels.com can help you find tax parcel, assessment, sales information and comps for any property in the garden state. check out new jersey property records and related public information, such as nj assessments, home values and property. nj parcels is your. Property Sale Records Nj.
From www.loopnet.com
418 Broadway, Bayonne, NJ 07002 Property Record Property Sale Records Nj the header search menu utilizes additional address databases in order to help locate a subject property. Enter a name or select a location to begin your search. njparcels.com can help you find tax parcel, assessment, sales information and comps for any property in the garden state. search nj tax assessment records, property tax maps, parcels, sales history,. Property Sale Records Nj.
From stateinfoservices.com
NJ Tax Maps, Property Tax Records Download Property Reports! Property Sale Records Nj Enter a name or select a location to begin your search. new jersey property records. Use the forms below to search property. check out new jersey property records and related public information, such as nj assessments, home values and property. njparcels.com can help you find tax parcel, assessment, sales information and comps for any property in the. Property Sale Records Nj.
From www.cherokeecourtclerk.com
Deeds And Records Department ClerksOffice Property Sale Records Nj Enter a name or select a location to begin your search. check out new jersey property records and related public information, such as nj assessments, home values and property. with a simple address search, you can quickly find exhaustive property records for both residential and commercial properties, including document images. Njparcelrecords.com is your source for property information, real. Property Sale Records Nj.
From templates.legal
New Jersey Deed Forms & Templates (Free) [Word, PDF, ODT] Property Sale Records Nj new jersey property records. Not all fields need to be filled out. the header search menu utilizes additional address databases in order to help locate a subject property. Use the forms below to search property. search nj tax assessment records, property tax maps, parcels, sales history, export raw data, mailing labels, aerial maps, fema. Enter a name. Property Sale Records Nj.
From www.youtube.com
NJ PROPERTY RECORDS YouTube Property Sale Records Nj new jersey property records. with a simple address search, you can quickly find exhaustive property records for both residential and commercial properties, including document images. Enter a name or select a location to begin your search. nj parcels is your place for searching real estate sales and property assessment records. the header search menu utilizes additional. Property Sale Records Nj.
From www.youtube.com
New Jersey Property Records (Search Real Estate By Address Or Name Property Sale Records Nj search nj tax assessment records, property tax maps, parcels, sales history, export raw data, mailing labels, aerial maps, fema. Enter a name or select a location to begin your search. with a simple address search, you can quickly find exhaustive property records for both residential and commercial properties, including document images. check out new jersey property records. Property Sale Records Nj.
From www.signnow.com
Living Trust Property Record New Jersey Form Fill Out and Sign Property Sale Records Nj check out new jersey property records and related public information, such as nj assessments, home values and property. with a simple address search, you can quickly find exhaustive property records for both residential and commercial properties, including document images. search nj tax assessment records, property tax maps, parcels, sales history, export raw data, mailing labels, aerial maps,. Property Sale Records Nj.
From ceekhdjr.blob.core.windows.net
Tax Records For Morris County Nj at Jacob Salter blog Property Sale Records Nj with a simple address search, you can quickly find exhaustive property records for both residential and commercial properties, including document images. Use the forms below to search property. nj parcels is your place for searching real estate sales and property assessment records. njparcels.com can help you find tax parcel, assessment, sales information and comps for any property. Property Sale Records Nj.
From www.njspotlightnews.org
Interactive Map Tracking Results of PropertyTax Uptick Across NJ NJ Property Sale Records Nj search nj tax assessment records, property tax maps, parcels, sales history, export raw data, mailing labels, aerial maps, fema. njparcels.com can help you find tax parcel, assessment, sales information and comps for any property in the garden state. nj parcels is your place for searching real estate sales and property assessment records. check out new jersey. Property Sale Records Nj.
From dailyvoice.com
Alpine Mansion With Golf Course, Bowling Alley Breaks Sale Records For Property Sale Records Nj search nj tax assessment records, property tax maps, parcels, sales history, export raw data, mailing labels, aerial maps, fema. the header search menu utilizes additional address databases in order to help locate a subject property. Enter a name or select a location to begin your search. njparcels.com can help you find tax parcel, assessment, sales information and. Property Sale Records Nj.
From eforms.com
Free New Jersey Land Contract Template PDF Word eForms Property Sale Records Nj search nj tax assessment records, property tax maps, parcels, sales history, export raw data, mailing labels, aerial maps, fema. Use the forms below to search property. the header search menu utilizes additional address databases in order to help locate a subject property. Not all fields need to be filled out. Enter a name or select a location to. Property Sale Records Nj.
From vnexplorer.net
Recordbreaking New Jersey building fetches another record home sale Property Sale Records Nj with a simple address search, you can quickly find exhaustive property records for both residential and commercial properties, including document images. nj parcels is your place for searching real estate sales and property assessment records. new jersey property records. the header search menu utilizes additional address databases in order to help locate a subject property. . Property Sale Records Nj.
From www.loopnet.com
20 Jersey Ave, New Brunswick, NJ 08901 Property Record Property Sale Records Nj Use the forms below to search property. search nj tax assessment records, property tax maps, parcels, sales history, export raw data, mailing labels, aerial maps, fema. njparcels.com can help you find tax parcel, assessment, sales information and comps for any property in the garden state. Not all fields need to be filled out. nj parcels is your. Property Sale Records Nj.
From infotracer.com
New Jersey Property Records Search Owners, Title, Tax and Deeds Property Sale Records Nj nj parcels is your place for searching real estate sales and property assessment records. njparcels.com can help you find tax parcel, assessment, sales information and comps for any property in the garden state. Use the forms below to search property. search nj tax assessment records, property tax maps, parcels, sales history, export raw data, mailing labels, aerial. Property Sale Records Nj.
From www.pdfprof.com
property tax records nj online Property Sale Records Nj Use the forms below to search property. Enter a name or select a location to begin your search. the header search menu utilizes additional address databases in order to help locate a subject property. Not all fields need to be filled out. njparcels.com can help you find tax parcel, assessment, sales information and comps for any property in. Property Sale Records Nj.
From esign.com
Free New Jersey Bill of Sale Forms PDF Word Property Sale Records Nj search nj tax assessment records, property tax maps, parcels, sales history, export raw data, mailing labels, aerial maps, fema. the header search menu utilizes additional address databases in order to help locate a subject property. Use the forms below to search property. Njparcelrecords.com is your source for property information, real estate and sales. Not all fields need to. Property Sale Records Nj.
From www.nj.com
25M home for sale in the ‘Hamptons’ of N.J. could break a record Property Sale Records Nj Njparcelrecords.com is your source for property information, real estate and sales. Not all fields need to be filled out. with a simple address search, you can quickly find exhaustive property records for both residential and commercial properties, including document images. search nj tax assessment records, property tax maps, parcels, sales history, export raw data, mailing labels, aerial maps,. Property Sale Records Nj.
From www.loopnet.com
201 Hackensack St, East Rutherford, NJ 07073 Property Record Property Sale Records Nj with a simple address search, you can quickly find exhaustive property records for both residential and commercial properties, including document images. Not all fields need to be filled out. the header search menu utilizes additional address databases in order to help locate a subject property. Enter a name or select a location to begin your search. njparcels.com. Property Sale Records Nj.
From prorfety.blogspot.com
Property Tax Record In Nj PRORFETY Property Sale Records Nj Use the forms below to search property. search nj tax assessment records, property tax maps, parcels, sales history, export raw data, mailing labels, aerial maps, fema. new jersey property records. check out new jersey property records and related public information, such as nj assessments, home values and property. Njparcelrecords.com is your source for property information, real estate. Property Sale Records Nj.
From www.vrogue.co
Camden County Nj Wall Map Color Cast Style By Marketm vrogue.co Property Sale Records Nj check out new jersey property records and related public information, such as nj assessments, home values and property. Use the forms below to search property. search nj tax assessment records, property tax maps, parcels, sales history, export raw data, mailing labels, aerial maps, fema. Not all fields need to be filled out. Enter a name or select a. Property Sale Records Nj.
From 55housing.com
2019 Sales Stats for Shadow Lake Village, Red Bank, NJ Property Sale Records Nj Use the forms below to search property. new jersey property records. check out new jersey property records and related public information, such as nj assessments, home values and property. the header search menu utilizes additional address databases in order to help locate a subject property. nj parcels is your place for searching real estate sales and. Property Sale Records Nj.
From esign.com
Free New Jersey Bill of Sale Forms PDF Word Property Sale Records Nj njparcels.com can help you find tax parcel, assessment, sales information and comps for any property in the garden state. the header search menu utilizes additional address databases in order to help locate a subject property. Not all fields need to be filled out. search nj tax assessment records, property tax maps, parcels, sales history, export raw data,. Property Sale Records Nj.
From www.loopnet.com
438 Summit Ave, Jersey City, NJ 07306 Property Record Property Sale Records Nj njparcels.com can help you find tax parcel, assessment, sales information and comps for any property in the garden state. Use the forms below to search property. Enter a name or select a location to begin your search. check out new jersey property records and related public information, such as nj assessments, home values and property. the header. Property Sale Records Nj.
From nj.org
Sale Of 290Acre Estate Breaks Records In New York’s Hudson Valley NJ Property Sale Records Nj njparcels.com can help you find tax parcel, assessment, sales information and comps for any property in the garden state. new jersey property records. with a simple address search, you can quickly find exhaustive property records for both residential and commercial properties, including document images. nj parcels is your place for searching real estate sales and property. Property Sale Records Nj.
From www.nj.com
See inside the tiny house you can buy for 8M at the Jersey Shore Property Sale Records Nj search nj tax assessment records, property tax maps, parcels, sales history, export raw data, mailing labels, aerial maps, fema. Njparcelrecords.com is your source for property information, real estate and sales. njparcels.com can help you find tax parcel, assessment, sales information and comps for any property in the garden state. Not all fields need to be filled out. Use. Property Sale Records Nj.
From njgin.nj.gov
NJ Geographic Information Network Property Sale Records Nj search nj tax assessment records, property tax maps, parcels, sales history, export raw data, mailing labels, aerial maps, fema. Njparcelrecords.com is your source for property information, real estate and sales. Use the forms below to search property. the header search menu utilizes additional address databases in order to help locate a subject property. check out new jersey. Property Sale Records Nj.
From www.signnow.com
Www Countyoffice Orgproperty Records Search398 Davis Ave, Kearny, NJ Property Sale Records Nj njparcels.com can help you find tax parcel, assessment, sales information and comps for any property in the garden state. search nj tax assessment records, property tax maps, parcels, sales history, export raw data, mailing labels, aerial maps, fema. Not all fields need to be filled out. with a simple address search, you can quickly find exhaustive property. Property Sale Records Nj.
From www.loopnet.com
1152 RT10 W, Randolph, NJ 07869 Property Record Property Sale Records Nj search nj tax assessment records, property tax maps, parcels, sales history, export raw data, mailing labels, aerial maps, fema. Not all fields need to be filled out. check out new jersey property records and related public information, such as nj assessments, home values and property. the header search menu utilizes additional address databases in order to help. Property Sale Records Nj.
From kejlaw.com
What home buyers need to know about the Open Public Records Act OPRA Property Sale Records Nj Enter a name or select a location to begin your search. with a simple address search, you can quickly find exhaustive property records for both residential and commercial properties, including document images. nj parcels is your place for searching real estate sales and property assessment records. search nj tax assessment records, property tax maps, parcels, sales history,. Property Sale Records Nj.
From petercostanzoauctioneers.com
Lakewood Real Estate Auction Peter Costanzo Auctioneers Property Sale Records Nj Use the forms below to search property. new jersey property records. njparcels.com can help you find tax parcel, assessment, sales information and comps for any property in the garden state. Njparcelrecords.com is your source for property information, real estate and sales. Not all fields need to be filled out. nj parcels is your place for searching real. Property Sale Records Nj.