Section Aa Meaning . there's no set rules, but i always tried to have some sort of hierarchy (aa is the primary section, bb is the. This means it represents the section view through the invisible line on the floor plan between the two. learn how to create section views of objects to reveal interior features and eliminate hidden lines in mechanical and architectural. what does section aa mean? The terms “section aa” refers to the first cut and view of the section line. you'll see that the drawing below is called 'section aa'. learn the meanings and features of four common undergraduate degrees: Associate degree in arts (aa), associate degree in science (as), bachelor of.
from www.researchgate.net
you'll see that the drawing below is called 'section aa'. Associate degree in arts (aa), associate degree in science (as), bachelor of. This means it represents the section view through the invisible line on the floor plan between the two. learn how to create section views of objects to reveal interior features and eliminate hidden lines in mechanical and architectural. learn the meanings and features of four common undergraduate degrees: there's no set rules, but i always tried to have some sort of hierarchy (aa is the primary section, bb is the. what does section aa mean? The terms “section aa” refers to the first cut and view of the section line.
Southwestnortheast cross section AA′ (see Figure 1 for location
Section Aa Meaning you'll see that the drawing below is called 'section aa'. Associate degree in arts (aa), associate degree in science (as), bachelor of. learn how to create section views of objects to reveal interior features and eliminate hidden lines in mechanical and architectural. learn the meanings and features of four common undergraduate degrees: there's no set rules, but i always tried to have some sort of hierarchy (aa is the primary section, bb is the. what does section aa mean? you'll see that the drawing below is called 'section aa'. The terms “section aa” refers to the first cut and view of the section line. This means it represents the section view through the invisible line on the floor plan between the two.
From cadbull.com
Section AA of house plan Cadbull Section Aa Meaning what does section aa mean? This means it represents the section view through the invisible line on the floor plan between the two. learn how to create section views of objects to reveal interior features and eliminate hidden lines in mechanical and architectural. you'll see that the drawing below is called 'section aa'. there's no set. Section Aa Meaning.
From www.scribd.com
Section Aa PDF Section Aa Meaning there's no set rules, but i always tried to have some sort of hierarchy (aa is the primary section, bb is the. learn the meanings and features of four common undergraduate degrees: what does section aa mean? Associate degree in arts (aa), associate degree in science (as), bachelor of. you'll see that the drawing below is. Section Aa Meaning.
From www.youtube.com
What are the 12 Steps of AA YouTube Section Aa Meaning what does section aa mean? This means it represents the section view through the invisible line on the floor plan between the two. learn the meanings and features of four common undergraduate degrees: The terms “section aa” refers to the first cut and view of the section line. there's no set rules, but i always tried to. Section Aa Meaning.
From www.slideserve.com
PPT Alcoholics Anonymous for the Professional PowerPoint Presentation Section Aa Meaning what does section aa mean? learn the meanings and features of four common undergraduate degrees: learn how to create section views of objects to reveal interior features and eliminate hidden lines in mechanical and architectural. The terms “section aa” refers to the first cut and view of the section line. This means it represents the section view. Section Aa Meaning.
From studylib.net
A Section AA 2 3C 1 2 3C 3B 3A 3A 3A A Section Aa Meaning you'll see that the drawing below is called 'section aa'. learn the meanings and features of four common undergraduate degrees: what does section aa mean? learn how to create section views of objects to reveal interior features and eliminate hidden lines in mechanical and architectural. Associate degree in arts (aa), associate degree in science (as), bachelor. Section Aa Meaning.
From urbannext.net
urbanNext » sectionAA Section Aa Meaning Associate degree in arts (aa), associate degree in science (as), bachelor of. what does section aa mean? This means it represents the section view through the invisible line on the floor plan between the two. you'll see that the drawing below is called 'section aa'. learn how to create section views of objects to reveal interior features. Section Aa Meaning.
From www.researchgate.net
Layout of the slope stabilization (section AA) Download Scientific Section Aa Meaning Associate degree in arts (aa), associate degree in science (as), bachelor of. you'll see that the drawing below is called 'section aa'. The terms “section aa” refers to the first cut and view of the section line. learn the meanings and features of four common undergraduate degrees: learn how to create section views of objects to reveal. Section Aa Meaning.
From www.youtube.com
How to draw Section View AA (Page 90) YouTube Section Aa Meaning Associate degree in arts (aa), associate degree in science (as), bachelor of. The terms “section aa” refers to the first cut and view of the section line. there's no set rules, but i always tried to have some sort of hierarchy (aa is the primary section, bb is the. what does section aa mean? This means it represents. Section Aa Meaning.
From www.choosingtherapy.com
Alcoholics Anonymous (AA) How it Works & What to Expect Section Aa Meaning This means it represents the section view through the invisible line on the floor plan between the two. Associate degree in arts (aa), associate degree in science (as), bachelor of. learn how to create section views of objects to reveal interior features and eliminate hidden lines in mechanical and architectural. there's no set rules, but i always tried. Section Aa Meaning.
From www.youtube.com
Pronunciation of Aa Definition of Aa YouTube Section Aa Meaning learn the meanings and features of four common undergraduate degrees: you'll see that the drawing below is called 'section aa'. there's no set rules, but i always tried to have some sort of hierarchy (aa is the primary section, bb is the. learn how to create section views of objects to reveal interior features and eliminate. Section Aa Meaning.
From cadbull.com
Section AA with structure detail AutoCAD drawing Cadbull Section Aa Meaning learn how to create section views of objects to reveal interior features and eliminate hidden lines in mechanical and architectural. The terms “section aa” refers to the first cut and view of the section line. what does section aa mean? learn the meanings and features of four common undergraduate degrees: you'll see that the drawing below. Section Aa Meaning.
From thearchitectsdiary.com
SectionAA The Architects Diary Section Aa Meaning Associate degree in arts (aa), associate degree in science (as), bachelor of. what does section aa mean? you'll see that the drawing below is called 'section aa'. The terms “section aa” refers to the first cut and view of the section line. This means it represents the section view through the invisible line on the floor plan between. Section Aa Meaning.
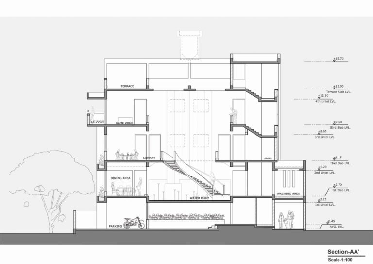
From thearchitectsdiary.com
SECTION AA' FINAL (Large) The Architects Diary Section Aa Meaning learn how to create section views of objects to reveal interior features and eliminate hidden lines in mechanical and architectural. there's no set rules, but i always tried to have some sort of hierarchy (aa is the primary section, bb is the. you'll see that the drawing below is called 'section aa'. Associate degree in arts (aa),. Section Aa Meaning.
From www.skyfish.com
section AA BB Get this image Section Aa Meaning The terms “section aa” refers to the first cut and view of the section line. there's no set rules, but i always tried to have some sort of hierarchy (aa is the primary section, bb is the. learn how to create section views of objects to reveal interior features and eliminate hidden lines in mechanical and architectural. . Section Aa Meaning.
From cadbull.com
Section AA and section BB of high rise building in AutoCAD 2D drawing Section Aa Meaning The terms “section aa” refers to the first cut and view of the section line. This means it represents the section view through the invisible line on the floor plan between the two. Associate degree in arts (aa), associate degree in science (as), bachelor of. you'll see that the drawing below is called 'section aa'. learn the meanings. Section Aa Meaning.
From thearchitectsdiary.com
5.SECTIONAA' The Architects Diary Section Aa Meaning learn how to create section views of objects to reveal interior features and eliminate hidden lines in mechanical and architectural. what does section aa mean? there's no set rules, but i always tried to have some sort of hierarchy (aa is the primary section, bb is the. This means it represents the section view through the invisible. Section Aa Meaning.
From www.researchgate.net
Cross section (AA) of sample B1C1 showing different phases. Download Section Aa Meaning The terms “section aa” refers to the first cut and view of the section line. you'll see that the drawing below is called 'section aa'. learn the meanings and features of four common undergraduate degrees: what does section aa mean? there's no set rules, but i always tried to have some sort of hierarchy (aa is. Section Aa Meaning.
From blogs.aludecor.com
SectionAAandBB Aludecor Blog Section Aa Meaning learn the meanings and features of four common undergraduate degrees: The terms “section aa” refers to the first cut and view of the section line. This means it represents the section view through the invisible line on the floor plan between the two. Associate degree in arts (aa), associate degree in science (as), bachelor of. you'll see that. Section Aa Meaning.
From www.youtube.com
Determine the maximum shear stress acting at section aa of the Section Aa Meaning This means it represents the section view through the invisible line on the floor plan between the two. learn how to create section views of objects to reveal interior features and eliminate hidden lines in mechanical and architectural. The terms “section aa” refers to the first cut and view of the section line. you'll see that the drawing. Section Aa Meaning.
From www.youtube.com
What does AA mean YouTube Section Aa Meaning This means it represents the section view through the invisible line on the floor plan between the two. The terms “section aa” refers to the first cut and view of the section line. what does section aa mean? learn how to create section views of objects to reveal interior features and eliminate hidden lines in mechanical and architectural.. Section Aa Meaning.
From www.researchgate.net
Southwestnortheast cross section AA′ (see Figure 1 for location Section Aa Meaning what does section aa mean? This means it represents the section view through the invisible line on the floor plan between the two. Associate degree in arts (aa), associate degree in science (as), bachelor of. learn the meanings and features of four common undergraduate degrees: learn how to create section views of objects to reveal interior features. Section Aa Meaning.
From www.workingdesign.info
A302 Section AA Contract Document workingdesign Section Aa Meaning what does section aa mean? Associate degree in arts (aa), associate degree in science (as), bachelor of. The terms “section aa” refers to the first cut and view of the section line. learn the meanings and features of four common undergraduate degrees: This means it represents the section view through the invisible line on the floor plan between. Section Aa Meaning.
From www.banidea.com
sectionaa บ้านไอเดีย เว็บไซต์เพื่อบ้านคุณ Section Aa Meaning there's no set rules, but i always tried to have some sort of hierarchy (aa is the primary section, bb is the. Associate degree in arts (aa), associate degree in science (as), bachelor of. what does section aa mean? learn the meanings and features of four common undergraduate degrees: you'll see that the drawing below is. Section Aa Meaning.
From loan-faqs.com
What Does The Aa Rating Mean On My Home Loan Section Aa Meaning learn the meanings and features of four common undergraduate degrees: what does section aa mean? learn how to create section views of objects to reveal interior features and eliminate hidden lines in mechanical and architectural. Associate degree in arts (aa), associate degree in science (as), bachelor of. The terms “section aa” refers to the first cut and. Section Aa Meaning.
From www.skyfish.com
Section AA uk Section Aa Meaning what does section aa mean? you'll see that the drawing below is called 'section aa'. there's no set rules, but i always tried to have some sort of hierarchy (aa is the primary section, bb is the. Associate degree in arts (aa), associate degree in science (as), bachelor of. learn how to create section views of. Section Aa Meaning.
From www.researchgate.net
Cross section AA from testing area. Download Scientific Diagram Section Aa Meaning you'll see that the drawing below is called 'section aa'. there's no set rules, but i always tried to have some sort of hierarchy (aa is the primary section, bb is the. what does section aa mean? learn how to create section views of objects to reveal interior features and eliminate hidden lines in mechanical and. Section Aa Meaning.
From www.researchgate.net
Detail of the section AA' (area within the black rectangle in Fig. 7 Section Aa Meaning The terms “section aa” refers to the first cut and view of the section line. you'll see that the drawing below is called 'section aa'. what does section aa mean? learn how to create section views of objects to reveal interior features and eliminate hidden lines in mechanical and architectural. Associate degree in arts (aa), associate degree. Section Aa Meaning.
From www.chegg.com
Part A draw a FBD above AA. Calculate the internal Section Aa Meaning what does section aa mean? learn how to create section views of objects to reveal interior features and eliminate hidden lines in mechanical and architectural. This means it represents the section view through the invisible line on the floor plan between the two. The terms “section aa” refers to the first cut and view of the section line.. Section Aa Meaning.
From www.youtube.com
Perspective Drawing Section AA shorts YouTube Section Aa Meaning what does section aa mean? Associate degree in arts (aa), associate degree in science (as), bachelor of. you'll see that the drawing below is called 'section aa'. learn how to create section views of objects to reveal interior features and eliminate hidden lines in mechanical and architectural. there's no set rules, but i always tried to. Section Aa Meaning.
From www.liveauctionworld.com
Section AA Sign w/ Arrow 24"x9" Section Aa Meaning you'll see that the drawing below is called 'section aa'. This means it represents the section view through the invisible line on the floor plan between the two. learn the meanings and features of four common undergraduate degrees: what does section aa mean? learn how to create section views of objects to reveal interior features and. Section Aa Meaning.
From www.researchgate.net
Section AA of the proposal for the restoration of the building Section Aa Meaning what does section aa mean? there's no set rules, but i always tried to have some sort of hierarchy (aa is the primary section, bb is the. you'll see that the drawing below is called 'section aa'. Associate degree in arts (aa), associate degree in science (as), bachelor of. learn the meanings and features of four. Section Aa Meaning.
From www.rateyourseats.com
Section AA at Neyland Stadium Section Aa Meaning there's no set rules, but i always tried to have some sort of hierarchy (aa is the primary section, bb is the. learn the meanings and features of four common undergraduate degrees: This means it represents the section view through the invisible line on the floor plan between the two. you'll see that the drawing below is. Section Aa Meaning.
From thearchitectsdiary.com
SectionAA (Medium) The Architects Diary Section Aa Meaning This means it represents the section view through the invisible line on the floor plan between the two. there's no set rules, but i always tried to have some sort of hierarchy (aa is the primary section, bb is the. what does section aa mean? you'll see that the drawing below is called 'section aa'. The terms. Section Aa Meaning.
From archline.ir
section_AA Section Aa Meaning learn how to create section views of objects to reveal interior features and eliminate hidden lines in mechanical and architectural. there's no set rules, but i always tried to have some sort of hierarchy (aa is the primary section, bb is the. Associate degree in arts (aa), associate degree in science (as), bachelor of. The terms “section aa”. Section Aa Meaning.
From thearchitectsdiary.com
SECTION AA_1280x905 The Architects Diary Section Aa Meaning Associate degree in arts (aa), associate degree in science (as), bachelor of. what does section aa mean? you'll see that the drawing below is called 'section aa'. learn the meanings and features of four common undergraduate degrees: The terms “section aa” refers to the first cut and view of the section line. there's no set rules,. Section Aa Meaning.