Montgomery County Auditor Real Estate . We are adjusting values based on the prices of recent real estate. In 2023, the montgomery county auditor’s office is required by the state to conduct a “triennial” update of property values. Find out how to update your property value, appeal your assessment, transfer property, apply for homestead exemption, and more. This site provides access to the real estate, tax record information, and gis maps of montgomery county. If you're 65+, a homeowner, and meet income. Auditor keith talks with stephanie patino and marco vera about how the auditor's office is trying to solve issues facing the hispanic community. Find information about the auditor, recorder, and treasurer who manage tax and real estate matters in montgomery county. Our new real estate website is live! Property owners can visit www.mcrealestate.org to find information about their properties.
from dayton247now.com
In 2023, the montgomery county auditor’s office is required by the state to conduct a “triennial” update of property values. Our new real estate website is live! We are adjusting values based on the prices of recent real estate. Property owners can visit www.mcrealestate.org to find information about their properties. If you're 65+, a homeowner, and meet income. Find information about the auditor, recorder, and treasurer who manage tax and real estate matters in montgomery county. This site provides access to the real estate, tax record information, and gis maps of montgomery county. Find out how to update your property value, appeal your assessment, transfer property, apply for homestead exemption, and more. Auditor keith talks with stephanie patino and marco vera about how the auditor's office is trying to solve issues facing the hispanic community.
Montgomery County auditor provides update on tax revenue
Montgomery County Auditor Real Estate We are adjusting values based on the prices of recent real estate. Find information about the auditor, recorder, and treasurer who manage tax and real estate matters in montgomery county. This site provides access to the real estate, tax record information, and gis maps of montgomery county. We are adjusting values based on the prices of recent real estate. In 2023, the montgomery county auditor’s office is required by the state to conduct a “triennial” update of property values. Auditor keith talks with stephanie patino and marco vera about how the auditor's office is trying to solve issues facing the hispanic community. Our new real estate website is live! Property owners can visit www.mcrealestate.org to find information about their properties. If you're 65+, a homeowner, and meet income. Find out how to update your property value, appeal your assessment, transfer property, apply for homestead exemption, and more.
From www.karlkeith.com
Karl Keith for Montgomery County Auditor Montgomery County Auditor Real Estate Our new real estate website is live! Find information about the auditor, recorder, and treasurer who manage tax and real estate matters in montgomery county. Property owners can visit www.mcrealestate.org to find information about their properties. If you're 65+, a homeowner, and meet income. This site provides access to the real estate, tax record information, and gis maps of montgomery. Montgomery County Auditor Real Estate.
From trotwood.org
Property Visits Conducted by The Montgomery County Auditor's Office Montgomery County Auditor Real Estate Find information about the auditor, recorder, and treasurer who manage tax and real estate matters in montgomery county. Property owners can visit www.mcrealestate.org to find information about their properties. Auditor keith talks with stephanie patino and marco vera about how the auditor's office is trying to solve issues facing the hispanic community. Find out how to update your property value,. Montgomery County Auditor Real Estate.
From www.youtube.com
2017 Triennial Update Appeals Montgomery County Auditor YouTube Montgomery County Auditor Real Estate Auditor keith talks with stephanie patino and marco vera about how the auditor's office is trying to solve issues facing the hispanic community. Property owners can visit www.mcrealestate.org to find information about their properties. If you're 65+, a homeowner, and meet income. We are adjusting values based on the prices of recent real estate. Find out how to update your. Montgomery County Auditor Real Estate.
From www.myhomesandmore.com
Quit Claim Deeds and Judgments Homes and More, Inc Montgomery County Auditor Real Estate Find out how to update your property value, appeal your assessment, transfer property, apply for homestead exemption, and more. In 2023, the montgomery county auditor’s office is required by the state to conduct a “triennial” update of property values. Our new real estate website is live! We are adjusting values based on the prices of recent real estate. This site. Montgomery County Auditor Real Estate.
From www.msn.com
Montgomery County real estate reaches record high value Montgomery County Auditor Real Estate Find information about the auditor, recorder, and treasurer who manage tax and real estate matters in montgomery county. Find out how to update your property value, appeal your assessment, transfer property, apply for homestead exemption, and more. Our new real estate website is live! Auditor keith talks with stephanie patino and marco vera about how the auditor's office is trying. Montgomery County Auditor Real Estate.
From www.clarksvilleonline.com
Montgomery County Trustee Office has applications available for Real Montgomery County Auditor Real Estate Property owners can visit www.mcrealestate.org to find information about their properties. If you're 65+, a homeowner, and meet income. In 2023, the montgomery county auditor’s office is required by the state to conduct a “triennial” update of property values. Find out how to update your property value, appeal your assessment, transfer property, apply for homestead exemption, and more. Auditor keith. Montgomery County Auditor Real Estate.
From www.wdtn.com
Montgomery County Auditor gives annual update Montgomery County Auditor Real Estate This site provides access to the real estate, tax record information, and gis maps of montgomery county. Property owners can visit www.mcrealestate.org to find information about their properties. Find information about the auditor, recorder, and treasurer who manage tax and real estate matters in montgomery county. Auditor keith talks with stephanie patino and marco vera about how the auditor's office. Montgomery County Auditor Real Estate.
From www.pdfprof.com
ohio auditor parcel search Montgomery County Auditor Real Estate Find out how to update your property value, appeal your assessment, transfer property, apply for homestead exemption, and more. If you're 65+, a homeowner, and meet income. Find information about the auditor, recorder, and treasurer who manage tax and real estate matters in montgomery county. Our new real estate website is live! In 2023, the montgomery county auditor’s office is. Montgomery County Auditor Real Estate.
From www.facebook.com
Montgomery County, Indiana Auditor's Office Crawfordsville IN Montgomery County Auditor Real Estate Auditor keith talks with stephanie patino and marco vera about how the auditor's office is trying to solve issues facing the hispanic community. Find information about the auditor, recorder, and treasurer who manage tax and real estate matters in montgomery county. We are adjusting values based on the prices of recent real estate. This site provides access to the real. Montgomery County Auditor Real Estate.
From www.wyso.org
'Prices remain strong and unprecedented.' Montgomery County Auditor Montgomery County Auditor Real Estate Find out how to update your property value, appeal your assessment, transfer property, apply for homestead exemption, and more. This site provides access to the real estate, tax record information, and gis maps of montgomery county. If you're 65+, a homeowner, and meet income. Our new real estate website is live! We are adjusting values based on the prices of. Montgomery County Auditor Real Estate.
From dayton247now.com
Real estate sales hit record numbers in Montgomery County Montgomery County Auditor Real Estate Auditor keith talks with stephanie patino and marco vera about how the auditor's office is trying to solve issues facing the hispanic community. In 2023, the montgomery county auditor’s office is required by the state to conduct a “triennial” update of property values. If you're 65+, a homeowner, and meet income. Find out how to update your property value, appeal. Montgomery County Auditor Real Estate.
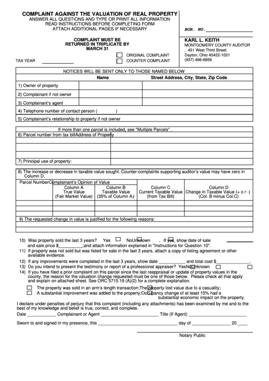
From www.formsbank.com
Complaint Against The Valuation Of Real Property Montgomery County Montgomery County Auditor Real Estate Find out how to update your property value, appeal your assessment, transfer property, apply for homestead exemption, and more. If you're 65+, a homeowner, and meet income. Our new real estate website is live! Find information about the auditor, recorder, and treasurer who manage tax and real estate matters in montgomery county. Auditor keith talks with stephanie patino and marco. Montgomery County Auditor Real Estate.
From www.kmaland.com
State Auditor releases annual report for Montgomery County News Montgomery County Auditor Real Estate Find out how to update your property value, appeal your assessment, transfer property, apply for homestead exemption, and more. Property owners can visit www.mcrealestate.org to find information about their properties. Auditor keith talks with stephanie patino and marco vera about how the auditor's office is trying to solve issues facing the hispanic community. Our new real estate website is live!. Montgomery County Auditor Real Estate.
From www.slideshare.net
Gcl states montgomery county ohio auditor launches real estate mobile app Montgomery County Auditor Real Estate If you're 65+, a homeowner, and meet income. This site provides access to the real estate, tax record information, and gis maps of montgomery county. Find information about the auditor, recorder, and treasurer who manage tax and real estate matters in montgomery county. We are adjusting values based on the prices of recent real estate. Auditor keith talks with stephanie. Montgomery County Auditor Real Estate.
From www.facebook.com
Montgomery County Real Estate Investors Group Montgomery County Auditor Real Estate Property owners can visit www.mcrealestate.org to find information about their properties. If you're 65+, a homeowner, and meet income. Auditor keith talks with stephanie patino and marco vera about how the auditor's office is trying to solve issues facing the hispanic community. In 2023, the montgomery county auditor’s office is required by the state to conduct a “triennial” update of. Montgomery County Auditor Real Estate.
From dayton247now.com
New property values on the way How to challenge the findings Montgomery County Auditor Real Estate Property owners can visit www.mcrealestate.org to find information about their properties. Our new real estate website is live! Find information about the auditor, recorder, and treasurer who manage tax and real estate matters in montgomery county. Auditor keith talks with stephanie patino and marco vera about how the auditor's office is trying to solve issues facing the hispanic community. This. Montgomery County Auditor Real Estate.
From www.facebook.com
Montgomery County Auditor Montgomery County Auditor Real Estate Find information about the auditor, recorder, and treasurer who manage tax and real estate matters in montgomery county. Auditor keith talks with stephanie patino and marco vera about how the auditor's office is trying to solve issues facing the hispanic community. Our new real estate website is live! This site provides access to the real estate, tax record information, and. Montgomery County Auditor Real Estate.
From www.mcohio.org
Real Estate Montgomery County, OH Official site Montgomery County Auditor Real Estate If you're 65+, a homeowner, and meet income. In 2023, the montgomery county auditor’s office is required by the state to conduct a “triennial” update of property values. Auditor keith talks with stephanie patino and marco vera about how the auditor's office is trying to solve issues facing the hispanic community. Property owners can visit www.mcrealestate.org to find information about. Montgomery County Auditor Real Estate.
From 10topstars.wordpress.com
Montgomery County Public Records 10topstars Montgomery County Auditor Real Estate Auditor keith talks with stephanie patino and marco vera about how the auditor's office is trying to solve issues facing the hispanic community. Find out how to update your property value, appeal your assessment, transfer property, apply for homestead exemption, and more. This site provides access to the real estate, tax record information, and gis maps of montgomery county. Property. Montgomery County Auditor Real Estate.
From dayton247now.com
Montgomery County auditor provides update on tax revenue Montgomery County Auditor Real Estate Property owners can visit www.mcrealestate.org to find information about their properties. Our new real estate website is live! Find out how to update your property value, appeal your assessment, transfer property, apply for homestead exemption, and more. We are adjusting values based on the prices of recent real estate. This site provides access to the real estate, tax record information,. Montgomery County Auditor Real Estate.
From www.youtube.com
Montgomery County Ohio Auditor Property Search Elect Adil Baguirov Montgomery County Auditor Real Estate Auditor keith talks with stephanie patino and marco vera about how the auditor's office is trying to solve issues facing the hispanic community. Find out how to update your property value, appeal your assessment, transfer property, apply for homestead exemption, and more. We are adjusting values based on the prices of recent real estate. If you're 65+, a homeowner, and. Montgomery County Auditor Real Estate.
From www.iowaauditors.org
Montgomery County Auditor Iowa State Association of County Auditors Montgomery County Auditor Real Estate Our new real estate website is live! We are adjusting values based on the prices of recent real estate. In 2023, the montgomery county auditor’s office is required by the state to conduct a “triennial” update of property values. Find out how to update your property value, appeal your assessment, transfer property, apply for homestead exemption, and more. Find information. Montgomery County Auditor Real Estate.
From dayton247now.com
Montgomery County real estate market sees 'record shattering year' Montgomery County Auditor Real Estate This site provides access to the real estate, tax record information, and gis maps of montgomery county. In 2023, the montgomery county auditor’s office is required by the state to conduct a “triennial” update of property values. Find out how to update your property value, appeal your assessment, transfer property, apply for homestead exemption, and more. If you're 65+, a. Montgomery County Auditor Real Estate.
From dayton247now.com
Montgomery County Auditor says property values are up about 6 percent Montgomery County Auditor Real Estate We are adjusting values based on the prices of recent real estate. If you're 65+, a homeowner, and meet income. Property owners can visit www.mcrealestate.org to find information about their properties. This site provides access to the real estate, tax record information, and gis maps of montgomery county. Find information about the auditor, recorder, and treasurer who manage tax and. Montgomery County Auditor Real Estate.
From dayton247now.com
Auditor confirms 29 percent increase in property tax value in Montgomery County Auditor Real Estate Property owners can visit www.mcrealestate.org to find information about their properties. Auditor keith talks with stephanie patino and marco vera about how the auditor's office is trying to solve issues facing the hispanic community. We are adjusting values based on the prices of recent real estate. Our new real estate website is live! Find information about the auditor, recorder, and. Montgomery County Auditor Real Estate.
From www.prweb.com
Montgomery County, Ohio Auditor Launches Real Estate Mobile App Montgomery County Auditor Real Estate Our new real estate website is live! We are adjusting values based on the prices of recent real estate. This site provides access to the real estate, tax record information, and gis maps of montgomery county. Auditor keith talks with stephanie patino and marco vera about how the auditor's office is trying to solve issues facing the hispanic community. Find. Montgomery County Auditor Real Estate.
From dayton247now.com
Montgomery County property values available for review, appeal Montgomery County Auditor Real Estate We are adjusting values based on the prices of recent real estate. In 2023, the montgomery county auditor’s office is required by the state to conduct a “triennial” update of property values. Our new real estate website is live! Find out how to update your property value, appeal your assessment, transfer property, apply for homestead exemption, and more. If you're. Montgomery County Auditor Real Estate.
From www.myhomesandmore.com
Quit Claim Deeds and Judgments Homes and More, Inc Montgomery County Auditor Real Estate Find out how to update your property value, appeal your assessment, transfer property, apply for homestead exemption, and more. This site provides access to the real estate, tax record information, and gis maps of montgomery county. In 2023, the montgomery county auditor’s office is required by the state to conduct a “triennial” update of property values. Find information about the. Montgomery County Auditor Real Estate.
From dayton247now.com
Southern suburbs lead Montgomery County communities in property value Montgomery County Auditor Real Estate In 2023, the montgomery county auditor’s office is required by the state to conduct a “triennial” update of property values. Our new real estate website is live! If you're 65+, a homeowner, and meet income. Find information about the auditor, recorder, and treasurer who manage tax and real estate matters in montgomery county. We are adjusting values based on the. Montgomery County Auditor Real Estate.
From dayton247now.com
Montgomery County Auditor finds pricing issues at 15 local Dollar Montgomery County Auditor Real Estate If you're 65+, a homeowner, and meet income. In 2023, the montgomery county auditor’s office is required by the state to conduct a “triennial” update of property values. We are adjusting values based on the prices of recent real estate. Our new real estate website is live! This site provides access to the real estate, tax record information, and gis. Montgomery County Auditor Real Estate.
From fawniaqjuliane.pages.dev
Montgomery County Property Taxes 2024 Halie Maddalena Montgomery County Auditor Real Estate Find information about the auditor, recorder, and treasurer who manage tax and real estate matters in montgomery county. If you're 65+, a homeowner, and meet income. Auditor keith talks with stephanie patino and marco vera about how the auditor's office is trying to solve issues facing the hispanic community. Property owners can visit www.mcrealestate.org to find information about their properties.. Montgomery County Auditor Real Estate.
From www.facebook.com
Montgomery County Auditor Home Facebook Montgomery County Auditor Real Estate Our new real estate website is live! Find out how to update your property value, appeal your assessment, transfer property, apply for homestead exemption, and more. We are adjusting values based on the prices of recent real estate. Property owners can visit www.mcrealestate.org to find information about their properties. In 2023, the montgomery county auditor’s office is required by the. Montgomery County Auditor Real Estate.
From dayton247now.com
Auditor Montgomery County real estate market sets records Montgomery County Auditor Real Estate We are adjusting values based on the prices of recent real estate. If you're 65+, a homeowner, and meet income. This site provides access to the real estate, tax record information, and gis maps of montgomery county. In 2023, the montgomery county auditor’s office is required by the state to conduct a “triennial” update of property values. Find out how. Montgomery County Auditor Real Estate.
From www.slideshare.net
Gcl states montgomery county ohio auditor launches real estate mobile app Montgomery County Auditor Real Estate Auditor keith talks with stephanie patino and marco vera about how the auditor's office is trying to solve issues facing the hispanic community. In 2023, the montgomery county auditor’s office is required by the state to conduct a “triennial” update of property values. Our new real estate website is live! Find out how to update your property value, appeal your. Montgomery County Auditor Real Estate.
From dayton247now.com
Montgomery County Auditor Karl Keith swornin to historic seventh term Montgomery County Auditor Real Estate If you're 65+, a homeowner, and meet income. Find information about the auditor, recorder, and treasurer who manage tax and real estate matters in montgomery county. Auditor keith talks with stephanie patino and marco vera about how the auditor's office is trying to solve issues facing the hispanic community. Our new real estate website is live! In 2023, the montgomery. Montgomery County Auditor Real Estate.