Isolation Permit Example . use this full template or example form to improve your electrical isolation safety. Workers can suffer serious injuries or die when plant accidentally activates or. this safe isolation procedure template ensures that everyone on your projects and teams engages in the same standardised. this isolation permit must be completed and authorised prior to applicable isolation activities being caried out by the parties. as part of the permit to work procedure, all safety regulations and precautions need to be identified and. example entry permit requirements establishing first aid and rescue procedures to be followed in the event of an emergency in the confined space.
from progressprinting.com.au
this isolation permit must be completed and authorised prior to applicable isolation activities being caried out by the parties. example entry permit requirements establishing first aid and rescue procedures to be followed in the event of an emergency in the confined space. Workers can suffer serious injuries or die when plant accidentally activates or. use this full template or example form to improve your electrical isolation safety. this safe isolation procedure template ensures that everyone on your projects and teams engages in the same standardised. as part of the permit to work procedure, all safety regulations and precautions need to be identified and.
Isolation Permit Books Custom Mining Docket Books
Isolation Permit Example example entry permit requirements establishing first aid and rescue procedures to be followed in the event of an emergency in the confined space. this isolation permit must be completed and authorised prior to applicable isolation activities being caried out by the parties. Workers can suffer serious injuries or die when plant accidentally activates or. as part of the permit to work procedure, all safety regulations and precautions need to be identified and. example entry permit requirements establishing first aid and rescue procedures to be followed in the event of an emergency in the confined space. this safe isolation procedure template ensures that everyone on your projects and teams engages in the same standardised. use this full template or example form to improve your electrical isolation safety.
From www.scribd.com
I20110 HSE PR FM 020D (1) Isolation Permit PDF Isolation Permit Example as part of the permit to work procedure, all safety regulations and precautions need to be identified and. use this full template or example form to improve your electrical isolation safety. Workers can suffer serious injuries or die when plant accidentally activates or. this isolation permit must be completed and authorised prior to applicable isolation activities being. Isolation Permit Example.
From www.scribd.com
KAFDLFNSP00000KFDOPETEM00065 R00 Fire System Isolation Permit Isolation Permit Example this safe isolation procedure template ensures that everyone on your projects and teams engages in the same standardised. as part of the permit to work procedure, all safety regulations and precautions need to be identified and. Workers can suffer serious injuries or die when plant accidentally activates or. this isolation permit must be completed and authorised prior. Isolation Permit Example.
From ideas.sybernews.com
Permit To Work Template For Carbonless Printing From £40 With Isolation Permit Example as part of the permit to work procedure, all safety regulations and precautions need to be identified and. this isolation permit must be completed and authorised prior to applicable isolation activities being caried out by the parties. example entry permit requirements establishing first aid and rescue procedures to be followed in the event of an emergency in. Isolation Permit Example.
From studylib.net
Isolation Work permit Isolation Permit Example use this full template or example form to improve your electrical isolation safety. Workers can suffer serious injuries or die when plant accidentally activates or. example entry permit requirements establishing first aid and rescue procedures to be followed in the event of an emergency in the confined space. this isolation permit must be completed and authorised prior. Isolation Permit Example.
From www.scribd.com
Fire Alarm Isolation Permit Form A PDF Hazards Building Engineering Isolation Permit Example use this full template or example form to improve your electrical isolation safety. example entry permit requirements establishing first aid and rescue procedures to be followed in the event of an emergency in the confined space. as part of the permit to work procedure, all safety regulations and precautions need to be identified and. Workers can suffer. Isolation Permit Example.
From progressprinting.com.au
Isolation Permit Books Custom Mining Docket Books Isolation Permit Example this safe isolation procedure template ensures that everyone on your projects and teams engages in the same standardised. example entry permit requirements establishing first aid and rescue procedures to be followed in the event of an emergency in the confined space. as part of the permit to work procedure, all safety regulations and precautions need to be. Isolation Permit Example.
From www.scribd.com
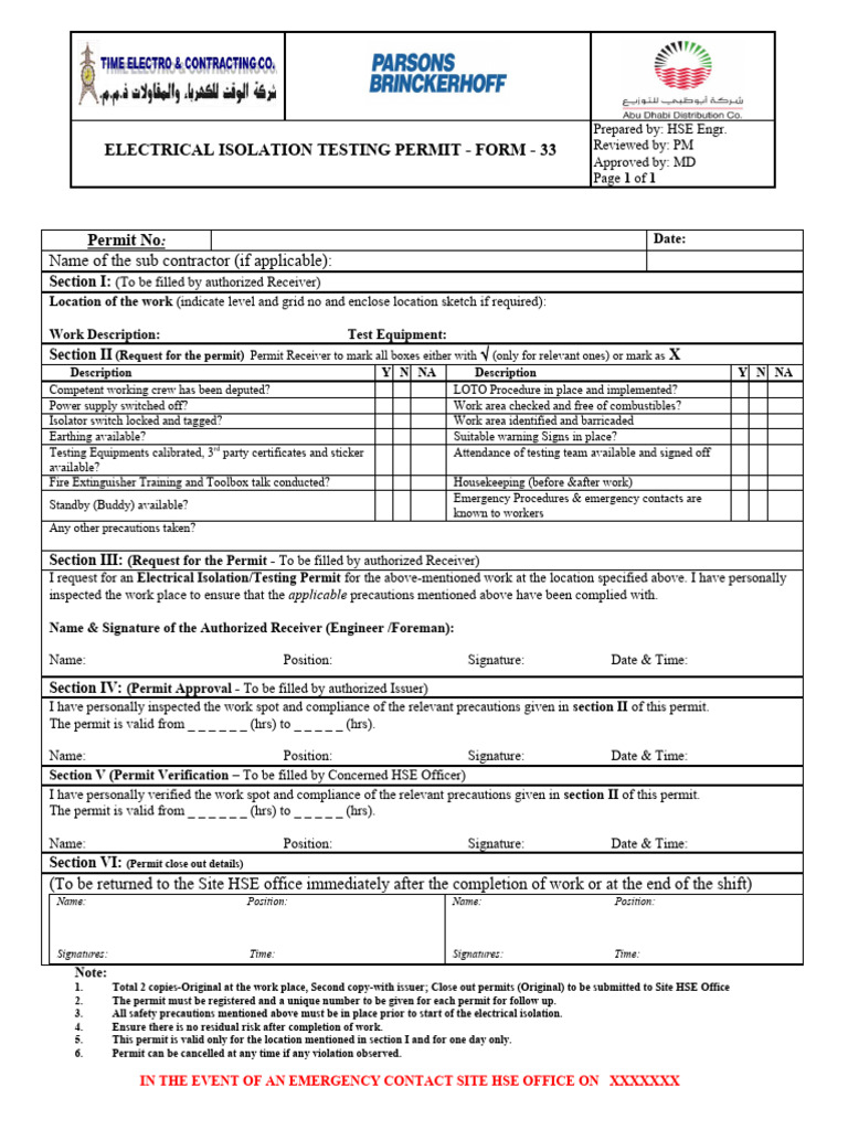
Form 33 Electrical Isolation Testing Permit PDF Safety Isolation Permit Example this isolation permit must be completed and authorised prior to applicable isolation activities being caried out by the parties. Workers can suffer serious injuries or die when plant accidentally activates or. this safe isolation procedure template ensures that everyone on your projects and teams engages in the same standardised. example entry permit requirements establishing first aid and. Isolation Permit Example.
From blog.sgworld.com
Isolation Permits to Work Isolation Permit Example use this full template or example form to improve your electrical isolation safety. Workers can suffer serious injuries or die when plant accidentally activates or. this isolation permit must be completed and authorised prior to applicable isolation activities being caried out by the parties. example entry permit requirements establishing first aid and rescue procedures to be followed. Isolation Permit Example.
From www.scribd.com
Electrical Isolation Work Permit PDF Switch Manufactured Goods Isolation Permit Example this safe isolation procedure template ensures that everyone on your projects and teams engages in the same standardised. Workers can suffer serious injuries or die when plant accidentally activates or. as part of the permit to work procedure, all safety regulations and precautions need to be identified and. example entry permit requirements establishing first aid and rescue. Isolation Permit Example.
From www.mcieast.marines.mil
Marine Corps Installations East > Staff Offices > Safety > Occupational Isolation Permit Example as part of the permit to work procedure, all safety regulations and precautions need to be identified and. Workers can suffer serious injuries or die when plant accidentally activates or. example entry permit requirements establishing first aid and rescue procedures to be followed in the event of an emergency in the confined space. this safe isolation procedure. Isolation Permit Example.
From icertifi.co.uk
Electrical Isolation Certificate Send Unlimited Certificates iCertifi Isolation Permit Example use this full template or example form to improve your electrical isolation safety. example entry permit requirements establishing first aid and rescue procedures to be followed in the event of an emergency in the confined space. as part of the permit to work procedure, all safety regulations and precautions need to be identified and. this safe. Isolation Permit Example.
From www.scribd.com
P007 Electrical Isolation Permit Electricity Electric Power Isolation Permit Example example entry permit requirements establishing first aid and rescue procedures to be followed in the event of an emergency in the confined space. as part of the permit to work procedure, all safety regulations and precautions need to be identified and. use this full template or example form to improve your electrical isolation safety. Workers can suffer. Isolation Permit Example.
From civiltemplates.com
Health and Safety Civil Engineering Templates Isolation Permit Example this safe isolation procedure template ensures that everyone on your projects and teams engages in the same standardised. Workers can suffer serious injuries or die when plant accidentally activates or. example entry permit requirements establishing first aid and rescue procedures to be followed in the event of an emergency in the confined space. use this full template. Isolation Permit Example.
From hsseworld.com
Electrical Isolation Permit to Work forms and checklist Isolation Permit Example example entry permit requirements establishing first aid and rescue procedures to be followed in the event of an emergency in the confined space. Workers can suffer serious injuries or die when plant accidentally activates or. use this full template or example form to improve your electrical isolation safety. as part of the permit to work procedure, all. Isolation Permit Example.
From www.scribd.com
Permit To Work Checklist 11 Isolation Permit WATER INGRESS SENSOR Isolation Permit Example as part of the permit to work procedure, all safety regulations and precautions need to be identified and. this isolation permit must be completed and authorised prior to applicable isolation activities being caried out by the parties. example entry permit requirements establishing first aid and rescue procedures to be followed in the event of an emergency in. Isolation Permit Example.
From progressprinting.com.au
Isolation Permit Books Custom Mining Docket Books Isolation Permit Example use this full template or example form to improve your electrical isolation safety. this safe isolation procedure template ensures that everyone on your projects and teams engages in the same standardised. as part of the permit to work procedure, all safety regulations and precautions need to be identified and. example entry permit requirements establishing first aid. Isolation Permit Example.
From ideas.sybernews.com
Petronas Carigali Permit To Work Procedure Petronas Carigali In Isolation Permit Example this safe isolation procedure template ensures that everyone on your projects and teams engages in the same standardised. example entry permit requirements establishing first aid and rescue procedures to be followed in the event of an emergency in the confined space. as part of the permit to work procedure, all safety regulations and precautions need to be. Isolation Permit Example.
From www.scribd.com
Electrical Isolation Work Permit PDF Electrical Engineering Isolation Permit Example example entry permit requirements establishing first aid and rescue procedures to be followed in the event of an emergency in the confined space. this isolation permit must be completed and authorised prior to applicable isolation activities being caried out by the parties. as part of the permit to work procedure, all safety regulations and precautions need to. Isolation Permit Example.
From sparklingstemware.com
Stunning Electrical Isolation Certificate Template Sparklingstemware Isolation Permit Example as part of the permit to work procedure, all safety regulations and precautions need to be identified and. Workers can suffer serious injuries or die when plant accidentally activates or. example entry permit requirements establishing first aid and rescue procedures to be followed in the event of an emergency in the confined space. this safe isolation procedure. Isolation Permit Example.
From sample.gelorailmu.com
Permit To Work Template Artwork For Carbonless Ncr Print With Regard To Isolation Permit Example example entry permit requirements establishing first aid and rescue procedures to be followed in the event of an emergency in the confined space. use this full template or example form to improve your electrical isolation safety. this safe isolation procedure template ensures that everyone on your projects and teams engages in the same standardised. as part. Isolation Permit Example.
From www.files.construction
Work Permit Electrical Isolation Construction Documents And Templates Isolation Permit Example Workers can suffer serious injuries or die when plant accidentally activates or. this safe isolation procedure template ensures that everyone on your projects and teams engages in the same standardised. as part of the permit to work procedure, all safety regulations and precautions need to be identified and. this isolation permit must be completed and authorised prior. Isolation Permit Example.
From www.pinterest.com
Electrical Isolation Certificate Template (4) Templates With Regard To Isolation Permit Example as part of the permit to work procedure, all safety regulations and precautions need to be identified and. this safe isolation procedure template ensures that everyone on your projects and teams engages in the same standardised. Workers can suffer serious injuries or die when plant accidentally activates or. this isolation permit must be completed and authorised prior. Isolation Permit Example.
From www.tenforce.com
Permits & Isolation Isolation Permit Example as part of the permit to work procedure, all safety regulations and precautions need to be identified and. example entry permit requirements establishing first aid and rescue procedures to be followed in the event of an emergency in the confined space. Workers can suffer serious injuries or die when plant accidentally activates or. this isolation permit must. Isolation Permit Example.
From tradeprintinguk.com
Electrical Isolation Certificate (EIC) Template for Print Isolation Permit Example this isolation permit must be completed and authorised prior to applicable isolation activities being caried out by the parties. use this full template or example form to improve your electrical isolation safety. Workers can suffer serious injuries or die when plant accidentally activates or. this safe isolation procedure template ensures that everyone on your projects and teams. Isolation Permit Example.
From sitemate.com
Here's the right electrical isolation procedure (and a free example) Isolation Permit Example use this full template or example form to improve your electrical isolation safety. this safe isolation procedure template ensures that everyone on your projects and teams engages in the same standardised. example entry permit requirements establishing first aid and rescue procedures to be followed in the event of an emergency in the confined space. Workers can suffer. Isolation Permit Example.
From www.advancedsafetytraining.com
Confined Space E&A Permit Examples Advanced Safety & Training Isolation Permit Example as part of the permit to work procedure, all safety regulations and precautions need to be identified and. this safe isolation procedure template ensures that everyone on your projects and teams engages in the same standardised. example entry permit requirements establishing first aid and rescue procedures to be followed in the event of an emergency in the. Isolation Permit Example.
From www.reecesafety.com
Reece Safety Products Two Part Isolation Tag Reece Safety Isolation Permit Example use this full template or example form to improve your electrical isolation safety. Workers can suffer serious injuries or die when plant accidentally activates or. example entry permit requirements establishing first aid and rescue procedures to be followed in the event of an emergency in the confined space. as part of the permit to work procedure, all. Isolation Permit Example.
From www.formsbank.com
Fillable Confined Space Entry Permit printable pdf download Isolation Permit Example as part of the permit to work procedure, all safety regulations and precautions need to be identified and. use this full template or example form to improve your electrical isolation safety. example entry permit requirements establishing first aid and rescue procedures to be followed in the event of an emergency in the confined space. this isolation. Isolation Permit Example.
From www.slideserve.com
PPT Doc Control No HQS01317005 PowerPoint Presentation, free Isolation Permit Example as part of the permit to work procedure, all safety regulations and precautions need to be identified and. example entry permit requirements establishing first aid and rescue procedures to be followed in the event of an emergency in the confined space. use this full template or example form to improve your electrical isolation safety. this safe. Isolation Permit Example.
From tradeprintinguk.com
Permit To Work in CONFINED Spaces for NCR printing £69 Isolation Permit Example this safe isolation procedure template ensures that everyone on your projects and teams engages in the same standardised. this isolation permit must be completed and authorised prior to applicable isolation activities being caried out by the parties. use this full template or example form to improve your electrical isolation safety. Workers can suffer serious injuries or die. Isolation Permit Example.
From sitemate.com
Electrical Isolation Permit template Use this template for free now Isolation Permit Example this safe isolation procedure template ensures that everyone on your projects and teams engages in the same standardised. use this full template or example form to improve your electrical isolation safety. Workers can suffer serious injuries or die when plant accidentally activates or. as part of the permit to work procedure, all safety regulations and precautions need. Isolation Permit Example.
From www.lockout-tagout.co.uk
LockoutTagout.co.uk Permit / Isolation Certificates Isolation Permit Example Workers can suffer serious injuries or die when plant accidentally activates or. this safe isolation procedure template ensures that everyone on your projects and teams engages in the same standardised. this isolation permit must be completed and authorised prior to applicable isolation activities being caried out by the parties. use this full template or example form to. Isolation Permit Example.
From entirelysafe.com
'Isolation Certificate' Template Isolation Permit Example this isolation permit must be completed and authorised prior to applicable isolation activities being caried out by the parties. Workers can suffer serious injuries or die when plant accidentally activates or. use this full template or example form to improve your electrical isolation safety. this safe isolation procedure template ensures that everyone on your projects and teams. Isolation Permit Example.
From www.rebeccachulew.com
Permit To Work Procedure For Non Routine, High Risk And Critical In Isolation Permit Example as part of the permit to work procedure, all safety regulations and precautions need to be identified and. example entry permit requirements establishing first aid and rescue procedures to be followed in the event of an emergency in the confined space. this isolation permit must be completed and authorised prior to applicable isolation activities being caried out. Isolation Permit Example.
From www.files.construction
Work Permit Electrical Isolation Construction Documents And Templates Isolation Permit Example this safe isolation procedure template ensures that everyone on your projects and teams engages in the same standardised. use this full template or example form to improve your electrical isolation safety. as part of the permit to work procedure, all safety regulations and precautions need to be identified and. example entry permit requirements establishing first aid. Isolation Permit Example.