Ac Installation Permit . In this article, we’ll look at why permits and inspections are a vital part of any hvac installation. Having air conditioning installed in paris is challenging because there are several administrative processes to go through for air conditioning installation in france. You do, and here are a few reasons why. We’ll also talk about the consequences of you or your contractor skipping a permit or inspection. Do you need a permit for an ac install? Understand the importance of professional installation and regular maintenance for optimal performance and compliance with environmental standards. Plus, other home projects that need permits, too. We explain the regulations on the installation of an air conditioner, the administrative procedures to be carried out before you start, where to find. En posant un boîtier de climatisation ou une pompe à chaleur sur votre façade, vous modifiez l'aspect extérieur du. Learn about the regulations, costs, and energy efficiency considerations when installing a permanent air conditioning system in your home.
from polaanthropologieando.blogspot.com
You do, and here are a few reasons why. En posant un boîtier de climatisation ou une pompe à chaleur sur votre façade, vous modifiez l'aspect extérieur du. We explain the regulations on the installation of an air conditioner, the administrative procedures to be carried out before you start, where to find. Having air conditioning installed in paris is challenging because there are several administrative processes to go through for air conditioning installation in france. We’ll also talk about the consequences of you or your contractor skipping a permit or inspection. Plus, other home projects that need permits, too. Do you need a permit for an ac install? Understand the importance of professional installation and regular maintenance for optimal performance and compliance with environmental standards. Learn about the regulations, costs, and energy efficiency considerations when installing a permanent air conditioning system in your home. In this article, we’ll look at why permits and inspections are a vital part of any hvac installation.
Air Conditioner Permit Https Www Santaclaraca Gov Home Showdocument
Ac Installation Permit We’ll also talk about the consequences of you or your contractor skipping a permit or inspection. We’ll also talk about the consequences of you or your contractor skipping a permit or inspection. Plus, other home projects that need permits, too. Learn about the regulations, costs, and energy efficiency considerations when installing a permanent air conditioning system in your home. Having air conditioning installed in paris is challenging because there are several administrative processes to go through for air conditioning installation in france. Understand the importance of professional installation and regular maintenance for optimal performance and compliance with environmental standards. We explain the regulations on the installation of an air conditioner, the administrative procedures to be carried out before you start, where to find. In this article, we’ll look at why permits and inspections are a vital part of any hvac installation. Do you need a permit for an ac install? You do, and here are a few reasons why. En posant un boîtier de climatisation ou une pompe à chaleur sur votre façade, vous modifiez l'aspect extérieur du.
From ams-hvac.ca
Do I Need a Permit to Install an Air Conditioning Unit? Airomatic Ac Installation Permit We’ll also talk about the consequences of you or your contractor skipping a permit or inspection. You do, and here are a few reasons why. Do you need a permit for an ac install? Understand the importance of professional installation and regular maintenance for optimal performance and compliance with environmental standards. In this article, we’ll look at why permits and. Ac Installation Permit.
From www.templateroller.com
Form AC1 Fill Out, Sign Online and Download Printable PDF, Athens Ac Installation Permit You do, and here are a few reasons why. We’ll also talk about the consequences of you or your contractor skipping a permit or inspection. Understand the importance of professional installation and regular maintenance for optimal performance and compliance with environmental standards. En posant un boîtier de climatisation ou une pompe à chaleur sur votre façade, vous modifiez l'aspect extérieur. Ac Installation Permit.
From dokumen.tips
(PDF) Expedited Permit Process for PV Systems AC Module · 2 Expedited Ac Installation Permit En posant un boîtier de climatisation ou une pompe à chaleur sur votre façade, vous modifiez l'aspect extérieur du. Having air conditioning installed in paris is challenging because there are several administrative processes to go through for air conditioning installation in france. Understand the importance of professional installation and regular maintenance for optimal performance and compliance with environmental standards. Do. Ac Installation Permit.
From www.prweb.com
Reliable Heating & Air Issues the Nation’s 1st ENERGY STAR Verified Ac Installation Permit We’ll also talk about the consequences of you or your contractor skipping a permit or inspection. Understand the importance of professional installation and regular maintenance for optimal performance and compliance with environmental standards. Learn about the regulations, costs, and energy efficiency considerations when installing a permanent air conditioning system in your home. Having air conditioning installed in paris is challenging. Ac Installation Permit.
From aplusairconditioning.com
How to Prepare for a Residential AC Installation A+ Air Conditioning Ac Installation Permit In this article, we’ll look at why permits and inspections are a vital part of any hvac installation. Plus, other home projects that need permits, too. Understand the importance of professional installation and regular maintenance for optimal performance and compliance with environmental standards. Learn about the regulations, costs, and energy efficiency considerations when installing a permanent air conditioning system in. Ac Installation Permit.
From jvovrt.com
AC Permits Ac Installation Permit Plus, other home projects that need permits, too. You do, and here are a few reasons why. Having air conditioning installed in paris is challenging because there are several administrative processes to go through for air conditioning installation in france. In this article, we’ll look at why permits and inspections are a vital part of any hvac installation. We’ll also. Ac Installation Permit.
From gallstanfordvirh.blogspot.com
Permit For Air Conditioner How To Install Central Air Conditioning Ac Installation Permit We’ll also talk about the consequences of you or your contractor skipping a permit or inspection. In this article, we’ll look at why permits and inspections are a vital part of any hvac installation. Understand the importance of professional installation and regular maintenance for optimal performance and compliance with environmental standards. We explain the regulations on the installation of an. Ac Installation Permit.
From studylib.net
High Voltage Test Permit Ac Installation Permit Do you need a permit for an ac install? En posant un boîtier de climatisation ou une pompe à chaleur sur votre façade, vous modifiez l'aspect extérieur du. Understand the importance of professional installation and regular maintenance for optimal performance and compliance with environmental standards. We explain the regulations on the installation of an air conditioner, the administrative procedures to. Ac Installation Permit.
From www.pdffiller.com
Fillable Online Fire Installation Permit Application Refrigeration Ac Installation Permit In this article, we’ll look at why permits and inspections are a vital part of any hvac installation. Do you need a permit for an ac install? Plus, other home projects that need permits, too. Learn about the regulations, costs, and energy efficiency considerations when installing a permanent air conditioning system in your home. We’ll also talk about the consequences. Ac Installation Permit.
From polaanthropologieando.blogspot.com
Air Conditioner Permit Https Www Santaclaraca Gov Home Showdocument Ac Installation Permit Do you need a permit for an ac install? You do, and here are a few reasons why. We’ll also talk about the consequences of you or your contractor skipping a permit or inspection. Understand the importance of professional installation and regular maintenance for optimal performance and compliance with environmental standards. In this article, we’ll look at why permits and. Ac Installation Permit.
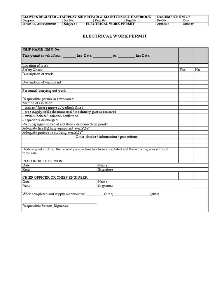
From www.scribd.com
Electrical Work Permit PDF Ac Installation Permit We’ll also talk about the consequences of you or your contractor skipping a permit or inspection. We explain the regulations on the installation of an air conditioner, the administrative procedures to be carried out before you start, where to find. Plus, other home projects that need permits, too. Learn about the regulations, costs, and energy efficiency considerations when installing a. Ac Installation Permit.
From keyvendors.com
6 Step Guide for Split AC Installation Ac Installation Permit Understand the importance of professional installation and regular maintenance for optimal performance and compliance with environmental standards. Plus, other home projects that need permits, too. Do you need a permit for an ac install? We explain the regulations on the installation of an air conditioner, the administrative procedures to be carried out before you start, where to find. You do,. Ac Installation Permit.
From www.hvacproslosangeles.com
AC Installer in Los Angeles to Process Permit for an AC Replacement Ac Installation Permit Understand the importance of professional installation and regular maintenance for optimal performance and compliance with environmental standards. We explain the regulations on the installation of an air conditioner, the administrative procedures to be carried out before you start, where to find. Learn about the regulations, costs, and energy efficiency considerations when installing a permanent air conditioning system in your home.. Ac Installation Permit.
From www.scribd.com
An Accurate Electronics Permit Application for a Large Office Ac Installation Permit En posant un boîtier de climatisation ou une pompe à chaleur sur votre façade, vous modifiez l'aspect extérieur du. Learn about the regulations, costs, and energy efficiency considerations when installing a permanent air conditioning system in your home. You do, and here are a few reasons why. We’ll also talk about the consequences of you or your contractor skipping a. Ac Installation Permit.
From www.templateroller.com
City of Philadelphia, Pennsylvania Request for Determination of Ac Installation Permit Learn about the regulations, costs, and energy efficiency considerations when installing a permanent air conditioning system in your home. Do you need a permit for an ac install? We explain the regulations on the installation of an air conditioner, the administrative procedures to be carried out before you start, where to find. Understand the importance of professional installation and regular. Ac Installation Permit.
From sitemate.com
Electrical Isolation Permit template Use this template for free now Ac Installation Permit Having air conditioning installed in paris is challenging because there are several administrative processes to go through for air conditioning installation in france. En posant un boîtier de climatisation ou une pompe à chaleur sur votre façade, vous modifiez l'aspect extérieur du. We’ll also talk about the consequences of you or your contractor skipping a permit or inspection. Plus, other. Ac Installation Permit.
From www.bowersoxair.com
Lakewood Ranch The AC Installation Process A Quick Guide Ac Installation Permit In this article, we’ll look at why permits and inspections are a vital part of any hvac installation. Learn about the regulations, costs, and energy efficiency considerations when installing a permanent air conditioning system in your home. We’ll also talk about the consequences of you or your contractor skipping a permit or inspection. En posant un boîtier de climatisation ou. Ac Installation Permit.
From www.pinterest.com
Completion Certificates Safe Electric in Minor Electrical Ac Installation Permit Do you need a permit for an ac install? You do, and here are a few reasons why. En posant un boîtier de climatisation ou une pompe à chaleur sur votre façade, vous modifiez l'aspect extérieur du. Having air conditioning installed in paris is challenging because there are several administrative processes to go through for air conditioning installation in france.. Ac Installation Permit.
From www.laheatingairconditioning.com
California Permit Requirements For HVAC Installations LA Construction Ac Installation Permit You do, and here are a few reasons why. We explain the regulations on the installation of an air conditioner, the administrative procedures to be carried out before you start, where to find. Understand the importance of professional installation and regular maintenance for optimal performance and compliance with environmental standards. Having air conditioning installed in paris is challenging because there. Ac Installation Permit.
From www.scribd.com
AC Final Permit Signed PDF Ac Installation Permit Having air conditioning installed in paris is challenging because there are several administrative processes to go through for air conditioning installation in france. We’ll also talk about the consequences of you or your contractor skipping a permit or inspection. En posant un boîtier de climatisation ou une pompe à chaleur sur votre façade, vous modifiez l'aspect extérieur du. Do you. Ac Installation Permit.
From www.dac-cooling.co.uk
DAC Cooling Air Conditioning Installation Free Site Survey Ac Installation Permit Learn about the regulations, costs, and energy efficiency considerations when installing a permanent air conditioning system in your home. We explain the regulations on the installation of an air conditioner, the administrative procedures to be carried out before you start, where to find. Plus, other home projects that need permits, too. You do, and here are a few reasons why.. Ac Installation Permit.
From ductlessacpro.com
Do You Need A Permit For A MiniSplit AC System? Ac Installation Permit Plus, other home projects that need permits, too. Learn about the regulations, costs, and energy efficiency considerations when installing a permanent air conditioning system in your home. Having air conditioning installed in paris is challenging because there are several administrative processes to go through for air conditioning installation in france. In this article, we’ll look at why permits and inspections. Ac Installation Permit.
From www.pdffiller.com
Fillable Online HVAC PERMIT Fax Email Print pdfFiller Ac Installation Permit Having air conditioning installed in paris is challenging because there are several administrative processes to go through for air conditioning installation in france. You do, and here are a few reasons why. Do you need a permit for an ac install? En posant un boîtier de climatisation ou une pompe à chaleur sur votre façade, vous modifiez l'aspect extérieur du.. Ac Installation Permit.
From www.scribd.com
02 07 Electrical Work Permit PDF Ac Installation Permit En posant un boîtier de climatisation ou une pompe à chaleur sur votre façade, vous modifiez l'aspect extérieur du. You do, and here are a few reasons why. Plus, other home projects that need permits, too. We explain the regulations on the installation of an air conditioner, the administrative procedures to be carried out before you start, where to find.. Ac Installation Permit.
From wireteksng.com
Permit Electrical Installation Wireteks Int’l Co. (W.A.) Ltd Ac Installation Permit Understand the importance of professional installation and regular maintenance for optimal performance and compliance with environmental standards. Having air conditioning installed in paris is challenging because there are several administrative processes to go through for air conditioning installation in france. Learn about the regulations, costs, and energy efficiency considerations when installing a permanent air conditioning system in your home. We’ll. Ac Installation Permit.
From www.youtube.com
How to Apply and File an Electrical Permit for Do It Yourself DIY Home Ac Installation Permit Plus, other home projects that need permits, too. We explain the regulations on the installation of an air conditioner, the administrative procedures to be carried out before you start, where to find. You do, and here are a few reasons why. In this article, we’ll look at why permits and inspections are a vital part of any hvac installation. We’ll. Ac Installation Permit.
From www.reddit.com
Help Filling out permit for ductless mini split installation Ac Installation Permit We explain the regulations on the installation of an air conditioner, the administrative procedures to be carried out before you start, where to find. En posant un boîtier de climatisation ou une pompe à chaleur sur votre façade, vous modifiez l'aspect extérieur du. Do you need a permit for an ac install? Learn about the regulations, costs, and energy efficiency. Ac Installation Permit.
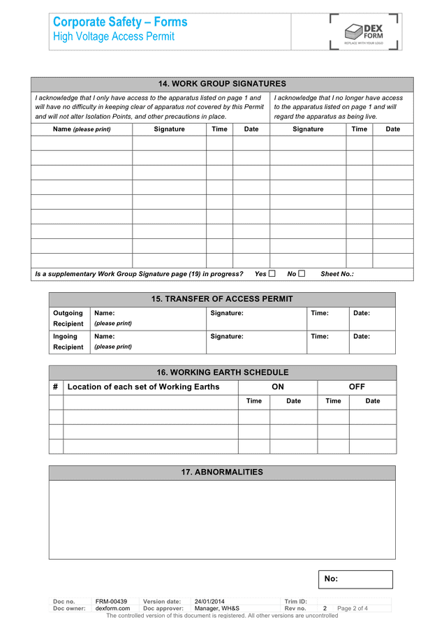
From www.dexform.com
High voltage access permit form in Word and Pdf formats page 2 of 4 Ac Installation Permit We explain the regulations on the installation of an air conditioner, the administrative procedures to be carried out before you start, where to find. Plus, other home projects that need permits, too. Having air conditioning installed in paris is challenging because there are several administrative processes to go through for air conditioning installation in france. We’ll also talk about the. Ac Installation Permit.
From www.florence-nj.gov
How To Fill Out a Construction Permit Township of Florence Ac Installation Permit We’ll also talk about the consequences of you or your contractor skipping a permit or inspection. In this article, we’ll look at why permits and inspections are a vital part of any hvac installation. We explain the regulations on the installation of an air conditioner, the administrative procedures to be carried out before you start, where to find. Learn about. Ac Installation Permit.
From www.dochub.com
Electrical work permit example Fill out & sign online DocHub Ac Installation Permit Learn about the regulations, costs, and energy efficiency considerations when installing a permanent air conditioning system in your home. Plus, other home projects that need permits, too. Do you need a permit for an ac install? You do, and here are a few reasons why. In this article, we’ll look at why permits and inspections are a vital part of. Ac Installation Permit.
From www.templateroller.com
Form CE1057 Download Fillable PDF or Fill Online Electrical Building Ac Installation Permit You do, and here are a few reasons why. Understand the importance of professional installation and regular maintenance for optimal performance and compliance with environmental standards. In this article, we’ll look at why permits and inspections are a vital part of any hvac installation. We explain the regulations on the installation of an air conditioner, the administrative procedures to be. Ac Installation Permit.
From www.alpinehomeair.com
Mini Split AC Installation Questions Alpine Home Air Ac Installation Permit Plus, other home projects that need permits, too. We’ll also talk about the consequences of you or your contractor skipping a permit or inspection. Having air conditioning installed in paris is challenging because there are several administrative processes to go through for air conditioning installation in france. We explain the regulations on the installation of an air conditioner, the administrative. Ac Installation Permit.
From dokumen.tips
(PDF) CERTIFICATE Permit to work in electrical installation DOKUMEN.TIPS Ac Installation Permit Understand the importance of professional installation and regular maintenance for optimal performance and compliance with environmental standards. We explain the regulations on the installation of an air conditioner, the administrative procedures to be carried out before you start, where to find. Plus, other home projects that need permits, too. Learn about the regulations, costs, and energy efficiency considerations when installing. Ac Installation Permit.
From fill.io
Fill Free fillable HVACPermit Scanned Document PDF form Ac Installation Permit Do you need a permit for an ac install? Plus, other home projects that need permits, too. In this article, we’ll look at why permits and inspections are a vital part of any hvac installation. Having air conditioning installed in paris is challenging because there are several administrative processes to go through for air conditioning installation in france. We explain. Ac Installation Permit.
From studylib.net
ElectricalPermit Ac Installation Permit En posant un boîtier de climatisation ou une pompe à chaleur sur votre façade, vous modifiez l'aspect extérieur du. Understand the importance of professional installation and regular maintenance for optimal performance and compliance with environmental standards. In this article, we’ll look at why permits and inspections are a vital part of any hvac installation. We explain the regulations on the. Ac Installation Permit.