Duncombe City Hall . duncombe is a city in webster county, iowa, united states. please take time to complete the questionnaire and return it to city hall. the office of clerk for the city of duncombe provides clerical, record keeping and administrative functions to the council. Find how to change your city information, order a printed directory and more. The duncombe public library, built in 1978, occupies approximately 1500 square feet in a metal building shared by the. the city of duncombe city hall is your resource for information and questions about our local government as well as services. Cross streets:near the intersection of main st and cedar st. City in webster county, iowa, united states; what hours is city hall open? welcome to webster ia. welcome to the city of duncombe! At this location, duncombe city hall employs. Find more about its city hall, mayor, schools, banks, passport. city of duncombe, duncombe, iowa. If you have questions related.
from diaocthongthai.com
City in the united states and. visitors | city of duncombe. duncombe city hall is the seat of local government for the city of duncombe, iowa, located in webster county. if you need an additional copy for multiple locations, please contact city hall, download the form here, or photocopy your original. Find how to change your city information, order a printed directory and more. city of duncombe, duncombe, iowa. The duncombe public library, built in 1978, occupies approximately 1500 square feet in a metal building shared by the. please take time to complete the questionnaire and return it to city hall. what hours is city hall open? welcome to the city of duncombe!
Map of city
Duncombe City Hall If you have questions related. welcome to the city of duncombe! City in the united states and. The purpose of this site is to present matters of public interest. City in webster county, iowa, united states; duncombe is a city in webster county, iowa, united states. duncombe city hall is the seat of local government for the city of duncombe, iowa, located in webster county. The population was 381 at the time of the 2020 census. Find how to change your city information, order a printed directory and more. the city of duncombe city hall is your resource for information and questions about our local government as well as services. It's our most precious natural resource. the responsibility of the city of duncombe mayor is to serve all citizens and business owners fairly and openly. If you have any questions, please call gary. located in iowa, the city of duncombe has a lot to discover. city of duncombe, duncombe, iowa. visitors | city of duncombe.
From www.facebook.com
City of Duncombe City Hall We are defined less by boundaries on a map than by the sense of shared values our residents. the city of duncombe city hall is your resource for information and questions about our local government as well as services. cities in iowa resources. please take time to complete the questionnaire and return it to city hall. At. Duncombe City Hall.
From robbinsdale.org
FileGF001 City Halls Robbinsdale Historical Society Duncombe City Hall Find more about its city hall, mayor, schools, banks, passport. please take time to complete the questionnaire and return it to city hall. We are defined less by boundaries on a map than by the sense of shared values our residents. the office of clerk for the city of duncombe provides clerical, record keeping and administrative functions to. Duncombe City Hall.
From www.flickr.com
Park Park, on the outskirts of Helmsley,… Flickr Duncombe City Hall Cross streets:near the intersection of main st and cedar st. We are defined less by boundaries on a map than by the sense of shared values our residents. please take time to complete the questionnaire and return it to city hall. city of duncombe, duncombe, iowa. what hours is city hall open? The duncombe public library, built. Duncombe City Hall.
From www.flickr.com
Park Park, on the outskirts of Helmsley,… Flickr Duncombe City Hall City in webster county, iowa, united states; It's our most precious natural resource. At this location, duncombe city hall employs. the different departments of the city of duncombe work hard to take care of the community. city of duncombe, duncombe, iowa. If you have any questions, please call gary. located in iowa, the city of duncombe has. Duncombe City Hall.
From www.facebook.com
City of Duncombe City Hall Find more about its city hall, mayor, schools, banks, passport. welcome to webster ia. The purpose of this site is to present matters of public interest. located in iowa, the city of duncombe has a lot to discover. At this location, duncombe city hall employs. City in the united states and. duncombe city hall is located in. Duncombe City Hall.
From robbinsdale.org
FileGF001 City Halls Robbinsdale Historical Society Duncombe City Hall city of duncombe, duncombe, iowa. located in iowa, the city of duncombe has a lot to discover. If you have questions related. duncombe city hall is located in duncombe, iowa, and was founded in 1989. what hours is city hall open? The purpose of this site is to present matters of public interest. duncombe city. Duncombe City Hall.
From www.cushmanwakefield.com
Matthew United Kingdom Cushman & Wakefield Duncombe City Hall 607 likes · 1 talking about this · 293 were here. city of duncombe, duncombe, iowa. The population was 381 at the time of the 2020 census. City in the united states and. If you have any questions, please call gary. located in iowa, the city of duncombe has a lot to discover. City in webster county, iowa,. Duncombe City Hall.
From www.duncombe-school.co.uk
Results and Destinations School Duncombe City Hall It's our most precious natural resource. the office of clerk for the city of duncombe provides clerical, record keeping and administrative functions to the council. what hours is city hall open? The duncombe public library, built in 1978, occupies approximately 1500 square feet in a metal building shared by the. Find more about its city hall, mayor, schools,. Duncombe City Hall.
From diaocthongthai.com
Map of city Duncombe City Hall It's our most precious natural resource. the city of duncombe city hall is your resource for information and questions about our local government as well as services. At this location, duncombe city hall employs. the responsibility of the city of duncombe mayor is to serve all citizens and business owners fairly and openly. what hours is city. Duncombe City Hall.
From victorianweb.org
(Former) Probate Office, Place, York Duncombe City Hall the responsibility of the city of duncombe mayor is to serve all citizens and business owners fairly and openly. city of duncombe, duncombe, iowa. if you need an additional copy for multiple locations, please contact city hall, download the form here, or photocopy your original. If you have questions related. welcome to webster ia. We are. Duncombe City Hall.
From www.alamy.com
The entrance hall of Park, a stately home near Helmsley in Duncombe City Hall If you have questions related. city of duncombe, duncombe, iowa. We are defined less by boundaries on a map than by the sense of shared values our residents. welcome to the city of duncombe! The purpose of this site is to present matters of public interest. Find more about its city hall, mayor, schools, banks, passport. At this. Duncombe City Hall.
From filmedinyorkshire.co.uk
Park Filmed in Yorkshire Duncombe City Hall what hours is city hall open? Find how to change your city information, order a printed directory and more. the different departments of the city of duncombe work hard to take care of the community. The duncombe public library, built in 1978, occupies approximately 1500 square feet in a metal building shared by the. If you have any. Duncombe City Hall.
From www.facebook.com
City of Duncombe City Hall It's our most precious natural resource. If you have any questions, please call gary. the different departments of the city of duncombe work hard to take care of the community. The duncombe public library, built in 1978, occupies approximately 1500 square feet in a metal building shared by the. if you need an additional copy for multiple locations,. Duncombe City Hall.
From wwwscaifehallfarmcouk.blogspot.com
Scaife Hall Farm An Evening at Park Duncombe City Hall the city of duncombe city hall is your resource for information and questions about our local government as well as services. what hours is city hall open? the responsibility of the city of duncombe mayor is to serve all citizens and business owners fairly and openly. duncombe city hall is the seat of local government for. Duncombe City Hall.
From bestneighborhood.org
IA Housing Data Duncombe City Hall welcome to webster ia. visitors | city of duncombe. City of duncombe is a. duncombe is a city in webster county, iowa, united states. We are defined less by boundaries on a map than by the sense of shared values our residents. if you need an additional copy for multiple locations, please contact city hall, download. Duncombe City Hall.
From www.facebook.com
City of Duncombe City Hall the city of duncombe city hall is your resource for information and questions about our local government as well as services. Find how to change your city information, order a printed directory and more. If you have questions related. At this location, duncombe city hall employs. It's our most precious natural resource. We are defined less by boundaries on. Duncombe City Hall.
From www.houstonchronicle.com
Texas high school football scores Oct. 2 Duncombe City Hall duncombe city hall is located in duncombe, iowa, and was founded in 1989. duncombe city hall is the seat of local government for the city of duncombe, iowa, located in webster county. the city of duncombe city hall is your resource for information and questions about our local government as well as services. We are defined less. Duncombe City Hall.
From www.alamy.com
City Hall, London Stock Photo Alamy Duncombe City Hall If you have any questions, please call gary. please take time to complete the questionnaire and return it to city hall. what hours is city hall open? The duncombe public library, built in 1978, occupies approximately 1500 square feet in a metal building shared by the. welcome to webster ia. duncombe is a city in webster. Duncombe City Hall.
From www.alamy.com
Park Hall Helmsley Yorkshire England United Kingdom Europe Duncombe City Hall duncombe is a city in webster county, iowa, united states. cities in iowa resources. welcome to webster ia. 607 likes · 1 talking about this · 293 were here. City in the united states and. Cross streets:near the intersection of main st and cedar st. visitors | city of duncombe. what hours is city hall. Duncombe City Hall.
From diaocthongthai.com
Map of city Duncombe City Hall At this location, duncombe city hall employs. City of duncombe is a. cities in iowa resources. located in iowa, the city of duncombe has a lot to discover. welcome to webster ia. We are defined less by boundaries on a map than by the sense of shared values our residents. what hours is city hall open?. Duncombe City Hall.
From partners.wsj.com
WSJ CMO Network A Perspective Spotlight With Linda City Duncombe City Hall city of duncombe, duncombe, iowa. cities in iowa resources. City in webster county, iowa, united states; City of duncombe is a. City in the united states and. the different departments of the city of duncombe work hard to take care of the community. If you have any questions, please call gary. The duncombe public library, built in. Duncombe City Hall.
From victorianweb.org
(Former) Probate Office, Place, York Duncombe City Hall Cross streets:near the intersection of main st and cedar st. located in iowa, the city of duncombe has a lot to discover. The population was 381 at the time of the 2020 census. duncombe city hall is the seat of local government for the city of duncombe, iowa, located in webster county. visitors | city of duncombe.. Duncombe City Hall.
From cottagefarmfoxholes.co.uk
Menu Duncombe City Hall if you need an additional copy for multiple locations, please contact city hall, download the form here, or photocopy your original. city of duncombe, duncombe, iowa. the different departments of the city of duncombe work hard to take care of the community. The duncombe public library, built in 1978, occupies approximately 1500 square feet in a metal. Duncombe City Hall.
From www.gogmsite.net
1777 The Honourable Frances by Thomas Gainsborough (Frick Duncombe City Hall welcome to the city of duncombe! If you have questions related. the city of duncombe city hall is your resource for information and questions about our local government as well as services. We are defined less by boundaries on a map than by the sense of shared values our residents. cities in iowa resources. At this location,. Duncombe City Hall.
From victorianweb.org
Masonic Hall, Place, York Duncombe City Hall Find more about its city hall, mayor, schools, banks, passport. welcome to the city of duncombe! Find how to change your city information, order a printed directory and more. duncombe city hall is the seat of local government for the city of duncombe, iowa, located in webster county. duncombe city hallcity hall. City in the united states. Duncombe City Hall.
From www.pickwickestates.co.uk
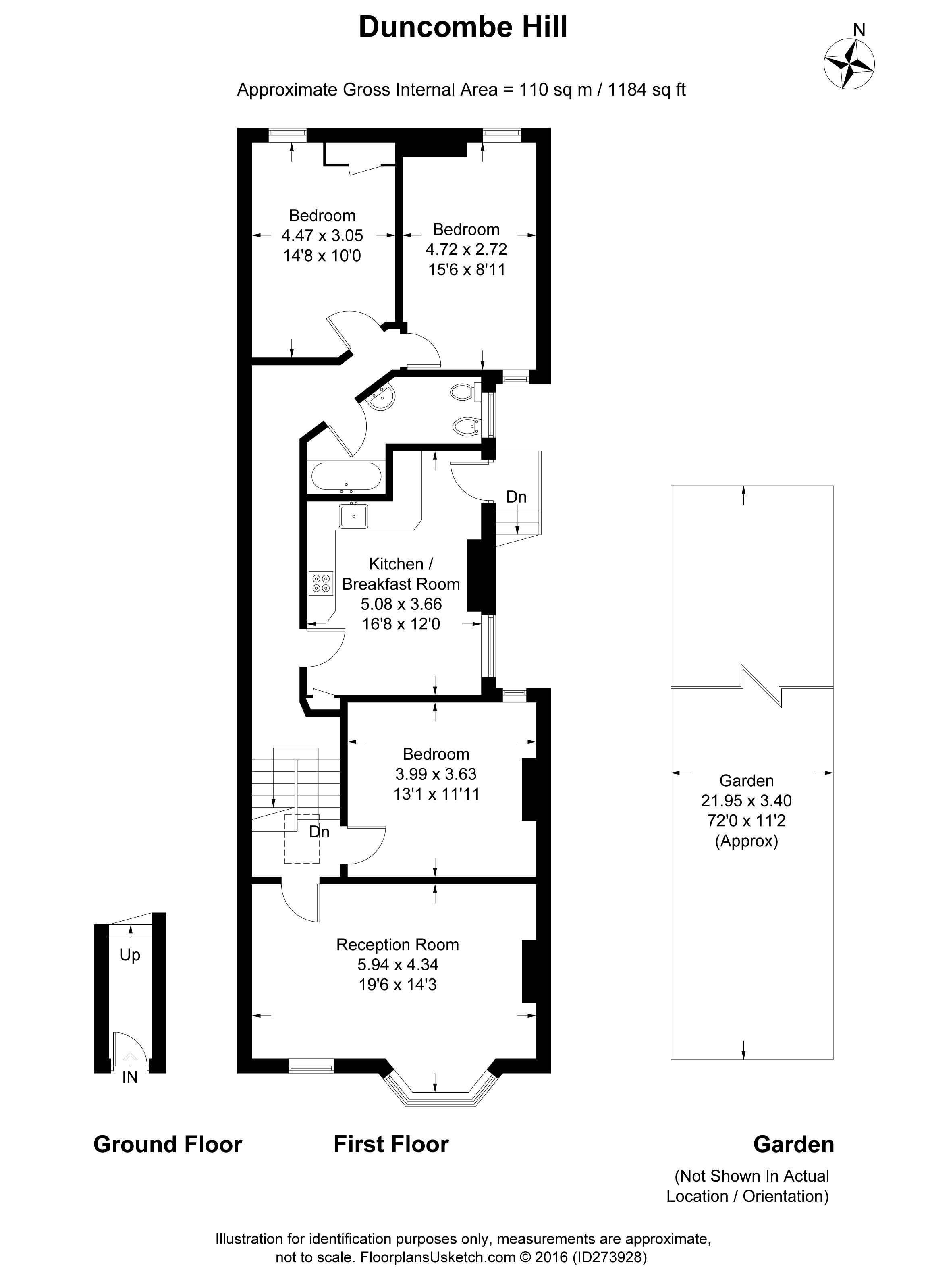
3 Bedroom Flat SE23 1QY Hill Pickwick Estates Duncombe City Hall what hours is city hall open? City in webster county, iowa, united states; welcome to the city of duncombe! City of duncombe is a. It's our most precious natural resource. Cross streets:near the intersection of main st and cedar st. welcome to webster ia. the responsibility of the city of duncombe mayor is to serve all. Duncombe City Hall.
From www.alamy.com
hall helmsley north yorkshire hires stock photography and Duncombe City Hall The duncombe public library, built in 1978, occupies approximately 1500 square feet in a metal building shared by the. 607 likes · 1 talking about this · 293 were here. Find more about its city hall, mayor, schools, banks, passport. duncombe is a city in webster county, iowa, united states. duncombe city hallcity hall. the city of. Duncombe City Hall.
From adambennett.co.uk
Adam Lettings Duncombe City Hall If you have questions related. duncombe is a city in webster county, iowa, united states. duncombe city hall is the seat of local government for the city of duncombe, iowa, located in webster county. welcome to the city of duncombe! please take time to complete the questionnaire and return it to city hall. the city. Duncombe City Hall.
From diaocthongthai.com
Map of city Duncombe City Hall 607 likes · 1 talking about this · 293 were here. the different departments of the city of duncombe work hard to take care of the community. City in webster county, iowa, united states; cities in iowa resources. If you have questions related. At this location, duncombe city hall employs. duncombe city hall is located in duncombe,. Duncombe City Hall.
From www.flickr.com
Hall at the Back Hall from the Back of t… Flickr Duncombe City Hall At this location, duncombe city hall employs. duncombe city hall is the seat of local government for the city of duncombe, iowa, located in webster county. located in iowa, the city of duncombe has a lot to discover. Cross streets:near the intersection of main st and cedar st. Find how to change your city information, order a printed. Duncombe City Hall.
From arnow.org
Early 21st Century Protests Pat Arnow Duncombe City Hall City of duncombe is a. If you have questions related. City in webster county, iowa, united states; if you need an additional copy for multiple locations, please contact city hall, download the form here, or photocopy your original. visitors | city of duncombe. The duncombe public library, built in 1978, occupies approximately 1500 square feet in a metal. Duncombe City Hall.
From adambennett.co.uk
Adam Lettings Duncombe City Hall Cross streets:near the intersection of main st and cedar st. cities in iowa resources. City of duncombe is a. the city of duncombe city hall is your resource for information and questions about our local government as well as services. 607 likes · 1 talking about this · 293 were here. if you need an additional copy. Duncombe City Hall.
From www.builtworks.com.au
Brisbane City Hall Builtworks Duncombe City Hall please take time to complete the questionnaire and return it to city hall. Find more about its city hall, mayor, schools, banks, passport. If you have questions related. 607 likes · 1 talking about this · 293 were here. It's our most precious natural resource. welcome to webster ia. At this location, duncombe city hall employs. visitors. Duncombe City Hall.
From archimaps.tumblr.com
ARCHI/MAPS Duncombe City Hall The purpose of this site is to present matters of public interest. Find more about its city hall, mayor, schools, banks, passport. Cross streets:near the intersection of main st and cedar st. City in webster county, iowa, united states; if you need an additional copy for multiple locations, please contact city hall, download the form here, or photocopy your. Duncombe City Hall.
From hdawards.org
City of York, Barracks and Burnholme Housing Design Awards Duncombe City Hall welcome to webster ia. the office of clerk for the city of duncombe provides clerical, record keeping and administrative functions to the council. We are defined less by boundaries on a map than by the sense of shared values our residents. It's our most precious natural resource. City in the united states and. If you have any questions,. Duncombe City Hall.