Grease Interceptor Csi Division . Precast concrete gravity grease interceptors should be provided with easy access for maintenance, be sized to hold large quantities. Astm c1613, “standard specification for precast concrete grease interceptor tanks” is a specification covering design requirements,. Contact a representative today to learn more about the full line of iapmo approved grease interceptors from csi. Upon entering the grease interceptor, the effluent is directed through the separation chamber of the interceptor by. In fact, a couple days ago an architect from texas suggested we format our csi division pages (division 04) so that, visually, it is easier to find. Get started by filling out. Grease interceptors (also referred to as grease traps for smaller.
from www.pmengineer.com
Upon entering the grease interceptor, the effluent is directed through the separation chamber of the interceptor by. Precast concrete gravity grease interceptors should be provided with easy access for maintenance, be sized to hold large quantities. Get started by filling out. Grease interceptors (also referred to as grease traps for smaller. In fact, a couple days ago an architect from texas suggested we format our csi division pages (division 04) so that, visually, it is easier to find. Astm c1613, “standard specification for precast concrete grease interceptor tanks” is a specification covering design requirements,. Contact a representative today to learn more about the full line of iapmo approved grease interceptors from csi.
Oh, the lowly grease trap 20210616 PM Engineer
Grease Interceptor Csi Division Grease interceptors (also referred to as grease traps for smaller. Get started by filling out. In fact, a couple days ago an architect from texas suggested we format our csi division pages (division 04) so that, visually, it is easier to find. Precast concrete gravity grease interceptors should be provided with easy access for maintenance, be sized to hold large quantities. Contact a representative today to learn more about the full line of iapmo approved grease interceptors from csi. Upon entering the grease interceptor, the effluent is directed through the separation chamber of the interceptor by. Grease interceptors (also referred to as grease traps for smaller. Astm c1613, “standard specification for precast concrete grease interceptor tanks” is a specification covering design requirements,.
From www.masriastore.com
Grease Interceptor Masria Store Grease Interceptor Csi Division Upon entering the grease interceptor, the effluent is directed through the separation chamber of the interceptor by. Precast concrete gravity grease interceptors should be provided with easy access for maintenance, be sized to hold large quantities. Contact a representative today to learn more about the full line of iapmo approved grease interceptors from csi. Astm c1613, “standard specification for precast. Grease Interceptor Csi Division.
From capitalregionwater.com
Fats, Oils, and Grease Disposal Capital Region Water Grease Interceptor Csi Division Contact a representative today to learn more about the full line of iapmo approved grease interceptors from csi. In fact, a couple days ago an architect from texas suggested we format our csi division pages (division 04) so that, visually, it is easier to find. Grease interceptors (also referred to as grease traps for smaller. Astm c1613, “standard specification for. Grease Interceptor Csi Division.
From eureka.patsnap.com
Grease interceptor having a grease removal device Eureka Patsnap Grease Interceptor Csi Division Grease interceptors (also referred to as grease traps for smaller. Upon entering the grease interceptor, the effluent is directed through the separation chamber of the interceptor by. Contact a representative today to learn more about the full line of iapmo approved grease interceptors from csi. In fact, a couple days ago an architect from texas suggested we format our csi. Grease Interceptor Csi Division.
From www.nwpipe.com
NWP Brings Prefabricated Water and Wastewater Products to the Grease Interceptor Csi Division Astm c1613, “standard specification for precast concrete grease interceptor tanks” is a specification covering design requirements,. Contact a representative today to learn more about the full line of iapmo approved grease interceptors from csi. Grease interceptors (also referred to as grease traps for smaller. Get started by filling out. In fact, a couple days ago an architect from texas suggested. Grease Interceptor Csi Division.
From picclick.co.uk
COMMERCIAL GREASE INTERCEPTOR 40LBS Grease Trap Grease Interceptor Grease Interceptor Csi Division Precast concrete gravity grease interceptors should be provided with easy access for maintenance, be sized to hold large quantities. Upon entering the grease interceptor, the effluent is directed through the separation chamber of the interceptor by. Grease interceptors (also referred to as grease traps for smaller. Contact a representative today to learn more about the full line of iapmo approved. Grease Interceptor Csi Division.
From evolvesolutions.ca
Restaurant Grease Interceptors 102 Evolve Mechanical Solutions Grease Interceptor Csi Division Get started by filling out. Astm c1613, “standard specification for precast concrete grease interceptor tanks” is a specification covering design requirements,. Grease interceptors (also referred to as grease traps for smaller. Precast concrete gravity grease interceptors should be provided with easy access for maintenance, be sized to hold large quantities. In fact, a couple days ago an architect from texas. Grease Interceptor Csi Division.
From issuu.com
Grease interceptor sizing and installation tipsNew York Engineers by Grease Interceptor Csi Division In fact, a couple days ago an architect from texas suggested we format our csi division pages (division 04) so that, visually, it is easier to find. Get started by filling out. Upon entering the grease interceptor, the effluent is directed through the separation chamber of the interceptor by. Precast concrete gravity grease interceptors should be provided with easy access. Grease Interceptor Csi Division.
From www.phcppros.com
Grease Interceptors 101 phcppros Grease Interceptor Csi Division Grease interceptors (also referred to as grease traps for smaller. Astm c1613, “standard specification for precast concrete grease interceptor tanks” is a specification covering design requirements,. In fact, a couple days ago an architect from texas suggested we format our csi division pages (division 04) so that, visually, it is easier to find. Contact a representative today to learn more. Grease Interceptor Csi Division.
From royalpumpingandjetting.com
Grease Interceptor Cleaning Royal Pumping & Jetting Orange County Grease Interceptor Csi Division In fact, a couple days ago an architect from texas suggested we format our csi division pages (division 04) so that, visually, it is easier to find. Astm c1613, “standard specification for precast concrete grease interceptor tanks” is a specification covering design requirements,. Grease interceptors (also referred to as grease traps for smaller. Precast concrete gravity grease interceptors should be. Grease Interceptor Csi Division.
From westechequipment.com
SWGI80008 Underground Grease Interceptor Grease Interceptor Csi Division Grease interceptors (also referred to as grease traps for smaller. Get started by filling out. Upon entering the grease interceptor, the effluent is directed through the separation chamber of the interceptor by. Contact a representative today to learn more about the full line of iapmo approved grease interceptors from csi. Precast concrete gravity grease interceptors should be provided with easy. Grease Interceptor Csi Division.
From www.highlandtank.com
Automatic Grease Interceptors for Sports Stadiums & Arenas Highland Tank Grease Interceptor Csi Division Get started by filling out. Precast concrete gravity grease interceptors should be provided with easy access for maintenance, be sized to hold large quantities. In fact, a couple days ago an architect from texas suggested we format our csi division pages (division 04) so that, visually, it is easier to find. Upon entering the grease interceptor, the effluent is directed. Grease Interceptor Csi Division.
From royalpumpingandjetting.com
Grease Interceptor Repair Royal Pumping & Jetting Orange County Grease Interceptor Csi Division Contact a representative today to learn more about the full line of iapmo approved grease interceptors from csi. Precast concrete gravity grease interceptors should be provided with easy access for maintenance, be sized to hold large quantities. Upon entering the grease interceptor, the effluent is directed through the separation chamber of the interceptor by. Grease interceptors (also referred to as. Grease Interceptor Csi Division.
From www.jensenprecast.com
Gravity Grease Interceptor MU 1200 gal. 24"E, 24"E Seismic Jensen Precast Grease Interceptor Csi Division Upon entering the grease interceptor, the effluent is directed through the separation chamber of the interceptor by. Grease interceptors (also referred to as grease traps for smaller. Contact a representative today to learn more about the full line of iapmo approved grease interceptors from csi. Get started by filling out. In fact, a couple days ago an architect from texas. Grease Interceptor Csi Division.
From www.bimobject.com
BIM objects Free download! Z1172 Large Capacity Grease Interceptor Grease Interceptor Csi Division Upon entering the grease interceptor, the effluent is directed through the separation chamber of the interceptor by. In fact, a couple days ago an architect from texas suggested we format our csi division pages (division 04) so that, visually, it is easier to find. Get started by filling out. Contact a representative today to learn more about the full line. Grease Interceptor Csi Division.
From www.linkedin.com
The Significance of Grease Interceptors in Plumbing Systems Grease Interceptor Csi Division Get started by filling out. Contact a representative today to learn more about the full line of iapmo approved grease interceptors from csi. Grease interceptors (also referred to as grease traps for smaller. Astm c1613, “standard specification for precast concrete grease interceptor tanks” is a specification covering design requirements,. Precast concrete gravity grease interceptors should be provided with easy access. Grease Interceptor Csi Division.
From www.nationalstoragetank.com
Grease Interceptors Archives National Storage Tank Grease Interceptor Csi Division Grease interceptors (also referred to as grease traps for smaller. Contact a representative today to learn more about the full line of iapmo approved grease interceptors from csi. Get started by filling out. Precast concrete gravity grease interceptors should be provided with easy access for maintenance, be sized to hold large quantities. In fact, a couple days ago an architect. Grease Interceptor Csi Division.
From parkusa.com
Grease Interceptor ParkUSA Grease Interceptor Csi Division Get started by filling out. Grease interceptors (also referred to as grease traps for smaller. Precast concrete gravity grease interceptors should be provided with easy access for maintenance, be sized to hold large quantities. In fact, a couple days ago an architect from texas suggested we format our csi division pages (division 04) so that, visually, it is easier to. Grease Interceptor Csi Division.
From www.pmengineer.com
Oh, the lowly grease trap 20210616 PM Engineer Grease Interceptor Csi Division Precast concrete gravity grease interceptors should be provided with easy access for maintenance, be sized to hold large quantities. Astm c1613, “standard specification for precast concrete grease interceptor tanks” is a specification covering design requirements,. Upon entering the grease interceptor, the effluent is directed through the separation chamber of the interceptor by. Contact a representative today to learn more about. Grease Interceptor Csi Division.
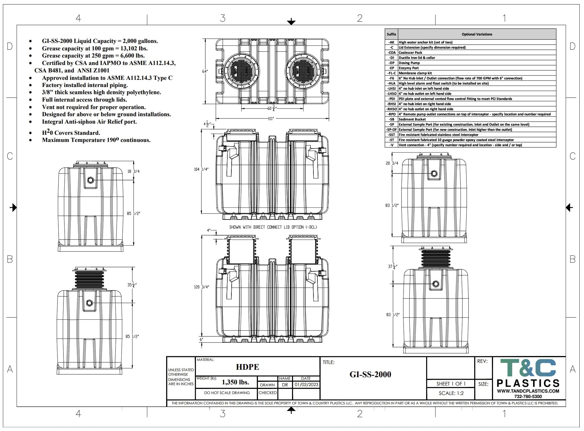
From www.tandcplastics.com
GISS2000 Grease Interceptor Grease Interceptor Csi Division Upon entering the grease interceptor, the effluent is directed through the separation chamber of the interceptor by. Precast concrete gravity grease interceptors should be provided with easy access for maintenance, be sized to hold large quantities. In fact, a couple days ago an architect from texas suggested we format our csi division pages (division 04) so that, visually, it is. Grease Interceptor Csi Division.
From inspectapedia.com
Grease Interceptors Grease Traps, Grease trap types, specifications Grease Interceptor Csi Division Precast concrete gravity grease interceptors should be provided with easy access for maintenance, be sized to hold large quantities. Get started by filling out. Astm c1613, “standard specification for precast concrete grease interceptor tanks” is a specification covering design requirements,. Grease interceptors (also referred to as grease traps for smaller. Upon entering the grease interceptor, the effluent is directed through. Grease Interceptor Csi Division.
From www.revitcity.com
Object Grease Interceptor Grease Interceptor Csi Division In fact, a couple days ago an architect from texas suggested we format our csi division pages (division 04) so that, visually, it is easier to find. Precast concrete gravity grease interceptors should be provided with easy access for maintenance, be sized to hold large quantities. Contact a representative today to learn more about the full line of iapmo approved. Grease Interceptor Csi Division.
From www.piercecountywa.gov
Grease Interceptor Pierce County, WA Official site Grease Interceptor Csi Division Get started by filling out. Precast concrete gravity grease interceptors should be provided with easy access for maintenance, be sized to hold large quantities. In fact, a couple days ago an architect from texas suggested we format our csi division pages (division 04) so that, visually, it is easier to find. Upon entering the grease interceptor, the effluent is directed. Grease Interceptor Csi Division.
From www.piercecountywa.gov
Grease Interceptor Pierce County, WA Official site Grease Interceptor Csi Division Precast concrete gravity grease interceptors should be provided with easy access for maintenance, be sized to hold large quantities. In fact, a couple days ago an architect from texas suggested we format our csi division pages (division 04) so that, visually, it is easier to find. Astm c1613, “standard specification for precast concrete grease interceptor tanks” is a specification covering. Grease Interceptor Csi Division.
From parkusa.com
Grease Interceptor ParkUSA Grease Interceptor Csi Division Get started by filling out. Grease interceptors (also referred to as grease traps for smaller. Astm c1613, “standard specification for precast concrete grease interceptor tanks” is a specification covering design requirements,. Contact a representative today to learn more about the full line of iapmo approved grease interceptors from csi. Upon entering the grease interceptor, the effluent is directed through the. Grease Interceptor Csi Division.
From www.homedepot.com
VEVOR Commercial Grease Interceptor 8 lbs. Carbon Steel Grease Trap 4 Grease Interceptor Csi Division Astm c1613, “standard specification for precast concrete grease interceptor tanks” is a specification covering design requirements,. In fact, a couple days ago an architect from texas suggested we format our csi division pages (division 04) so that, visually, it is easier to find. Precast concrete gravity grease interceptors should be provided with easy access for maintenance, be sized to hold. Grease Interceptor Csi Division.
From www.jensenprecast.com
Grease Interceptor Traffic Rated City of Oceanside Jensen Precast Grease Interceptor Csi Division Grease interceptors (also referred to as grease traps for smaller. Upon entering the grease interceptor, the effluent is directed through the separation chamber of the interceptor by. Get started by filling out. In fact, a couple days ago an architect from texas suggested we format our csi division pages (division 04) so that, visually, it is easier to find. Astm. Grease Interceptor Csi Division.
From www.desertcart.com.eg
Buy Commercial Grease Trap, 3 Stage Filtration Grease Trap Stainless Grease Interceptor Csi Division Astm c1613, “standard specification for precast concrete grease interceptor tanks” is a specification covering design requirements,. Get started by filling out. Upon entering the grease interceptor, the effluent is directed through the separation chamber of the interceptor by. Grease interceptors (also referred to as grease traps for smaller. Contact a representative today to learn more about the full line of. Grease Interceptor Csi Division.
From www.tanksdirect.com
How Does a Grease Interceptor Work? Tanks Direct Grease Interceptor Csi Division Contact a representative today to learn more about the full line of iapmo approved grease interceptors from csi. Astm c1613, “standard specification for precast concrete grease interceptor tanks” is a specification covering design requirements,. In fact, a couple days ago an architect from texas suggested we format our csi division pages (division 04) so that, visually, it is easier to. Grease Interceptor Csi Division.
From www.highlandtank.com
Remote Pump Out for Passive Grease Interceptors Highland Tank Grease Interceptor Csi Division In fact, a couple days ago an architect from texas suggested we format our csi division pages (division 04) so that, visually, it is easier to find. Upon entering the grease interceptor, the effluent is directed through the separation chamber of the interceptor by. Grease interceptors (also referred to as grease traps for smaller. Astm c1613, “standard specification for precast. Grease Interceptor Csi Division.
From www.grainger.com
ZURN, 8 lb Capacity, 4 gpm Flow Rate, Grease Interceptor 53XU47 Grease Interceptor Csi Division Astm c1613, “standard specification for precast concrete grease interceptor tanks” is a specification covering design requirements,. Get started by filling out. Contact a representative today to learn more about the full line of iapmo approved grease interceptors from csi. In fact, a couple days ago an architect from texas suggested we format our csi division pages (division 04) so that,. Grease Interceptor Csi Division.
From masria.com
Grease Interceptor Masria Group Grease Interceptor Csi Division Precast concrete gravity grease interceptors should be provided with easy access for maintenance, be sized to hold large quantities. Get started by filling out. Astm c1613, “standard specification for precast concrete grease interceptor tanks” is a specification covering design requirements,. Grease interceptors (also referred to as grease traps for smaller. Upon entering the grease interceptor, the effluent is directed through. Grease Interceptor Csi Division.
From allstaterec.com
Grease Interceptor 70 lb. grease capacity Allstate Restaurant Supply Grease Interceptor Csi Division Astm c1613, “standard specification for precast concrete grease interceptor tanks” is a specification covering design requirements,. Precast concrete gravity grease interceptors should be provided with easy access for maintenance, be sized to hold large quantities. Get started by filling out. In fact, a couple days ago an architect from texas suggested we format our csi division pages (division 04) so. Grease Interceptor Csi Division.
From www.walmart.com
Grease Interceptor, High Flowing Grease Trap Stainless Steel Easy Grease Interceptor Csi Division Contact a representative today to learn more about the full line of iapmo approved grease interceptors from csi. Astm c1613, “standard specification for precast concrete grease interceptor tanks” is a specification covering design requirements,. Upon entering the grease interceptor, the effluent is directed through the separation chamber of the interceptor by. In fact, a couple days ago an architect from. Grease Interceptor Csi Division.
From www.ubuy.qa
VEVOR Commercial Grease Interceptor 50 LB, Carbon Ubuy Qatar Grease Interceptor Csi Division Astm c1613, “standard specification for precast concrete grease interceptor tanks” is a specification covering design requirements,. In fact, a couple days ago an architect from texas suggested we format our csi division pages (division 04) so that, visually, it is easier to find. Upon entering the grease interceptor, the effluent is directed through the separation chamber of the interceptor by.. Grease Interceptor Csi Division.
From www.mepengineersclub.com
How to Size Grease Interceptor Grease Interceptor Sizing Sheet Grease Interceptor Csi Division In fact, a couple days ago an architect from texas suggested we format our csi division pages (division 04) so that, visually, it is easier to find. Astm c1613, “standard specification for precast concrete grease interceptor tanks” is a specification covering design requirements,. Upon entering the grease interceptor, the effluent is directed through the separation chamber of the interceptor by.. Grease Interceptor Csi Division.