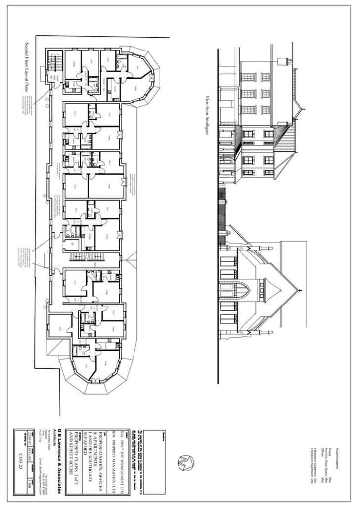
Building Plots For Sale Sleaford . An exciting town centre development opportunity for a mixed use development comprising 6 shops, 3 offices and 8 flats, full. Building plots for sale in sleaford, lincolnshire from savills, world leading estate agents. A wide range of farms & land for sale in sleaford, lincolnshire with primelocation. Plot for sale land off, southgate, sleaford, lincolnshire, ng34. Offers in region of £600,000. Find land, building plots and conversion and renovation opportunities in sleaford, lincolnshire, east midlands, england (town) Search for local properties for sale, read our information on buying and selling property, access area information for sleaford and much more,. From country estates to city apartments, your ideal. Narrow your search by property type. Farms and land for sale in ng34. Land for sale chapel lane, little hale, sleaford, lincolnshire,.
from www.onthemarket.com
An exciting town centre development opportunity for a mixed use development comprising 6 shops, 3 offices and 8 flats, full. Offers in region of £600,000. Land for sale chapel lane, little hale, sleaford, lincolnshire,. From country estates to city apartments, your ideal. Farms and land for sale in ng34. Plot for sale land off, southgate, sleaford, lincolnshire, ng34. Find land, building plots and conversion and renovation opportunities in sleaford, lincolnshire, east midlands, england (town) Narrow your search by property type. A wide range of farms & land for sale in sleaford, lincolnshire with primelocation. Building plots for sale in sleaford, lincolnshire from savills, world leading estate agents.
Building Plot, Aslackby, Sleaford Land £250,000
Building Plots For Sale Sleaford Narrow your search by property type. From country estates to city apartments, your ideal. Plot for sale land off, southgate, sleaford, lincolnshire, ng34. Offers in region of £600,000. Land for sale chapel lane, little hale, sleaford, lincolnshire,. Building plots for sale in sleaford, lincolnshire from savills, world leading estate agents. Find land, building plots and conversion and renovation opportunities in sleaford, lincolnshire, east midlands, england (town) Narrow your search by property type. An exciting town centre development opportunity for a mixed use development comprising 6 shops, 3 offices and 8 flats, full. Farms and land for sale in ng34. Search for local properties for sale, read our information on buying and selling property, access area information for sleaford and much more,. A wide range of farms & land for sale in sleaford, lincolnshire with primelocation.
From www.onthemarket.com
Sleaford Road, Brant Broughton, Lincoln Plot for sale £450,000 Building Plots For Sale Sleaford Narrow your search by property type. Find land, building plots and conversion and renovation opportunities in sleaford, lincolnshire, east midlands, england (town) Farms and land for sale in ng34. From country estates to city apartments, your ideal. Search for local properties for sale, read our information on buying and selling property, access area information for sleaford and much more,. Land. Building Plots For Sale Sleaford.
From www.ftplan.co.uk
Development plots and new build homes in Lincolnshire From Fytche Building Plots For Sale Sleaford Land for sale chapel lane, little hale, sleaford, lincolnshire,. Offers in region of £600,000. Find land, building plots and conversion and renovation opportunities in sleaford, lincolnshire, east midlands, england (town) Narrow your search by property type. Plot for sale land off, southgate, sleaford, lincolnshire, ng34. A wide range of farms & land for sale in sleaford, lincolnshire with primelocation. Farms. Building Plots For Sale Sleaford.
From www.zoopla.co.uk
New home, 3 bed detached house for sale in "The Yewdale Plot 17" at Building Plots For Sale Sleaford Offers in region of £600,000. A wide range of farms & land for sale in sleaford, lincolnshire with primelocation. An exciting town centre development opportunity for a mixed use development comprising 6 shops, 3 offices and 8 flats, full. Farms and land for sale in ng34. Search for local properties for sale, read our information on buying and selling property,. Building Plots For Sale Sleaford.
From search.savills.com
Building plots for sale in Essex, England Savills Building Plots For Sale Sleaford Land for sale chapel lane, little hale, sleaford, lincolnshire,. An exciting town centre development opportunity for a mixed use development comprising 6 shops, 3 offices and 8 flats, full. Building plots for sale in sleaford, lincolnshire from savills, world leading estate agents. Find land, building plots and conversion and renovation opportunities in sleaford, lincolnshire, east midlands, england (town) Search for. Building Plots For Sale Sleaford.
From search.savills.com
Building plots for sale in UK Savills Building Plots For Sale Sleaford Narrow your search by property type. Plot for sale land off, southgate, sleaford, lincolnshire, ng34. Farms and land for sale in ng34. Find land, building plots and conversion and renovation opportunities in sleaford, lincolnshire, east midlands, england (town) Land for sale chapel lane, little hale, sleaford, lincolnshire,. Building plots for sale in sleaford, lincolnshire from savills, world leading estate agents.. Building Plots For Sale Sleaford.
From www.zoopla.co.uk
3 bed bungalow for sale in Sleaford Road, Heckington, Sleaford Building Plots For Sale Sleaford Narrow your search by property type. Search for local properties for sale, read our information on buying and selling property, access area information for sleaford and much more,. A wide range of farms & land for sale in sleaford, lincolnshire with primelocation. From country estates to city apartments, your ideal. Plot for sale land off, southgate, sleaford, lincolnshire, ng34. Land. Building Plots For Sale Sleaford.
From search.savills.com
Building plots for sale in UK Savills Building Plots For Sale Sleaford Narrow your search by property type. An exciting town centre development opportunity for a mixed use development comprising 6 shops, 3 offices and 8 flats, full. Farms and land for sale in ng34. A wide range of farms & land for sale in sleaford, lincolnshire with primelocation. Search for local properties for sale, read our information on buying and selling. Building Plots For Sale Sleaford.
From www.onthemarket.com
Flaxwell Fields, Lincoln Road, Ruskington, Sleaford, NG34 2 bed semi Building Plots For Sale Sleaford Building plots for sale in sleaford, lincolnshire from savills, world leading estate agents. Narrow your search by property type. A wide range of farms & land for sale in sleaford, lincolnshire with primelocation. An exciting town centre development opportunity for a mixed use development comprising 6 shops, 3 offices and 8 flats, full. Farms and land for sale in ng34.. Building Plots For Sale Sleaford.
From www.onthemarket.com
Mill Lane, Pickworth, Sleaford... Plot £230,000 Building Plots For Sale Sleaford An exciting town centre development opportunity for a mixed use development comprising 6 shops, 3 offices and 8 flats, full. Search for local properties for sale, read our information on buying and selling property, access area information for sleaford and much more,. A wide range of farms & land for sale in sleaford, lincolnshire with primelocation. Find land, building plots. Building Plots For Sale Sleaford.
From www.rightmove.co.uk
Plot for sale in Land Off, Southgate, Sleaford, Lincolnshire, NG34 Building Plots For Sale Sleaford Search for local properties for sale, read our information on buying and selling property, access area information for sleaford and much more,. Plot for sale land off, southgate, sleaford, lincolnshire, ng34. An exciting town centre development opportunity for a mixed use development comprising 6 shops, 3 offices and 8 flats, full. Building plots for sale in sleaford, lincolnshire from savills,. Building Plots For Sale Sleaford.
From addland.com
Building Plot at Much Dewchurch Self Build for sale in Herefordshire Building Plots For Sale Sleaford An exciting town centre development opportunity for a mixed use development comprising 6 shops, 3 offices and 8 flats, full. Farms and land for sale in ng34. Building plots for sale in sleaford, lincolnshire from savills, world leading estate agents. From country estates to city apartments, your ideal. Search for local properties for sale, read our information on buying and. Building Plots For Sale Sleaford.
From www.zoopla.co.uk
3 bed semidetached house for sale in Sleaford Road, Ruskington Building Plots For Sale Sleaford A wide range of farms & land for sale in sleaford, lincolnshire with primelocation. Offers in region of £600,000. An exciting town centre development opportunity for a mixed use development comprising 6 shops, 3 offices and 8 flats, full. Land for sale chapel lane, little hale, sleaford, lincolnshire,. Building plots for sale in sleaford, lincolnshire from savills, world leading estate. Building Plots For Sale Sleaford.
From www.onthemarket.com
Building Plot, Aslackby, Sleaford Land £250,000 Building Plots For Sale Sleaford An exciting town centre development opportunity for a mixed use development comprising 6 shops, 3 offices and 8 flats, full. Offers in region of £600,000. Farms and land for sale in ng34. Find land, building plots and conversion and renovation opportunities in sleaford, lincolnshire, east midlands, england (town) Search for local properties for sale, read our information on buying and. Building Plots For Sale Sleaford.
From www.pygott-crone.com
Plot 38 The Cavendish, 35 Wallis Street, Quarrington, Sleaford Building Plots For Sale Sleaford A wide range of farms & land for sale in sleaford, lincolnshire with primelocation. Building plots for sale in sleaford, lincolnshire from savills, world leading estate agents. Plot for sale land off, southgate, sleaford, lincolnshire, ng34. Find land, building plots and conversion and renovation opportunities in sleaford, lincolnshire, east midlands, england (town) Search for local properties for sale, read our. Building Plots For Sale Sleaford.
From www.onthemarket.com
Sleaford Road, Brant Broughton, Lincoln Plot for sale £500,000 Building Plots For Sale Sleaford Offers in region of £600,000. Narrow your search by property type. Plot for sale land off, southgate, sleaford, lincolnshire, ng34. An exciting town centre development opportunity for a mixed use development comprising 6 shops, 3 offices and 8 flats, full. Building plots for sale in sleaford, lincolnshire from savills, world leading estate agents. Land for sale chapel lane, little hale,. Building Plots For Sale Sleaford.
From search.savills.com
Building plots for sale in UK Savills Building Plots For Sale Sleaford Find land, building plots and conversion and renovation opportunities in sleaford, lincolnshire, east midlands, england (town) An exciting town centre development opportunity for a mixed use development comprising 6 shops, 3 offices and 8 flats, full. Land for sale chapel lane, little hale, sleaford, lincolnshire,. From country estates to city apartments, your ideal. A wide range of farms & land. Building Plots For Sale Sleaford.
From www.rightmove.co.uk
Plot for sale in Land Off, Southgate, Sleaford, Lincolnshire, NG34 Building Plots For Sale Sleaford Plot for sale land off, southgate, sleaford, lincolnshire, ng34. Find land, building plots and conversion and renovation opportunities in sleaford, lincolnshire, east midlands, england (town) A wide range of farms & land for sale in sleaford, lincolnshire with primelocation. Narrow your search by property type. From country estates to city apartments, your ideal. Offers in region of £600,000. Building plots. Building Plots For Sale Sleaford.
From www.onthemarket.com
Sleaford Road, Brant Broughton, Lincoln Plot for sale £450,000 Building Plots For Sale Sleaford A wide range of farms & land for sale in sleaford, lincolnshire with primelocation. Land for sale chapel lane, little hale, sleaford, lincolnshire,. Find land, building plots and conversion and renovation opportunities in sleaford, lincolnshire, east midlands, england (town) Offers in region of £600,000. Building plots for sale in sleaford, lincolnshire from savills, world leading estate agents. From country estates. Building Plots For Sale Sleaford.
From www.belvoir.co.uk
2 Bedroom Property For Sale in Sleaford £120,000 Building Plots For Sale Sleaford Farms and land for sale in ng34. Offers in region of £600,000. Building plots for sale in sleaford, lincolnshire from savills, world leading estate agents. Find land, building plots and conversion and renovation opportunities in sleaford, lincolnshire, east midlands, england (town) A wide range of farms & land for sale in sleaford, lincolnshire with primelocation. Narrow your search by property. Building Plots For Sale Sleaford.
From www.rightmove.co.uk
Plot for sale in Land Off, Southgate, Sleaford, Lincolnshire, NG34 Building Plots For Sale Sleaford Offers in region of £600,000. Farms and land for sale in ng34. Narrow your search by property type. Search for local properties for sale, read our information on buying and selling property, access area information for sleaford and much more,. Building plots for sale in sleaford, lincolnshire from savills, world leading estate agents. Land for sale chapel lane, little hale,. Building Plots For Sale Sleaford.
From www.zoopla.co.uk
New home, 4 bed end terrace house for sale in "The Midford Plot 50 Building Plots For Sale Sleaford Offers in region of £600,000. Building plots for sale in sleaford, lincolnshire from savills, world leading estate agents. Plot for sale land off, southgate, sleaford, lincolnshire, ng34. Land for sale chapel lane, little hale, sleaford, lincolnshire,. Search for local properties for sale, read our information on buying and selling property, access area information for sleaford and much more,. Find land,. Building Plots For Sale Sleaford.
From search.savills.com
Building plots for sale in UK Savills Building Plots For Sale Sleaford Search for local properties for sale, read our information on buying and selling property, access area information for sleaford and much more,. Narrow your search by property type. Farms and land for sale in ng34. Offers in region of £600,000. Building plots for sale in sleaford, lincolnshire from savills, world leading estate agents. Plot for sale land off, southgate, sleaford,. Building Plots For Sale Sleaford.
From www.rightmove.co.uk
Plot for sale in Land Off, Southgate, Sleaford, Lincolnshire, NG34 Building Plots For Sale Sleaford Farms and land for sale in ng34. Building plots for sale in sleaford, lincolnshire from savills, world leading estate agents. An exciting town centre development opportunity for a mixed use development comprising 6 shops, 3 offices and 8 flats, full. Search for local properties for sale, read our information on buying and selling property, access area information for sleaford and. Building Plots For Sale Sleaford.
From www.zoopla.co.uk
4 bed detached house for sale in Plot 137 The Whisby, Pastures Grange Building Plots For Sale Sleaford Land for sale chapel lane, little hale, sleaford, lincolnshire,. An exciting town centre development opportunity for a mixed use development comprising 6 shops, 3 offices and 8 flats, full. Search for local properties for sale, read our information on buying and selling property, access area information for sleaford and much more,. Offers in region of £600,000. Find land, building plots. Building Plots For Sale Sleaford.
From www.primelocation.com
"The Easedale Plot 16" at London Road, Sleaford NG34, 3 bedroom semi Building Plots For Sale Sleaford From country estates to city apartments, your ideal. Plot for sale land off, southgate, sleaford, lincolnshire, ng34. An exciting town centre development opportunity for a mixed use development comprising 6 shops, 3 offices and 8 flats, full. Offers in region of £600,000. Find land, building plots and conversion and renovation opportunities in sleaford, lincolnshire, east midlands, england (town) Building plots. Building Plots For Sale Sleaford.
From search.savills.com
Building plots for sale in UK Savills Building Plots For Sale Sleaford Search for local properties for sale, read our information on buying and selling property, access area information for sleaford and much more,. Farms and land for sale in ng34. Land for sale chapel lane, little hale, sleaford, lincolnshire,. A wide range of farms & land for sale in sleaford, lincolnshire with primelocation. Building plots for sale in sleaford, lincolnshire from. Building Plots For Sale Sleaford.
From www.loopnet.com
East Road, Sleaford, LIN NG34 7EQ Building Plots For Sale Sleaford Land for sale chapel lane, little hale, sleaford, lincolnshire,. Search for local properties for sale, read our information on buying and selling property, access area information for sleaford and much more,. From country estates to city apartments, your ideal. Building plots for sale in sleaford, lincolnshire from savills, world leading estate agents. An exciting town centre development opportunity for a. Building Plots For Sale Sleaford.
From www.zoopla.co.uk
3 bed bungalow for sale in Durham Avenue, Sleaford NG34 Zoopla Building Plots For Sale Sleaford Farms and land for sale in ng34. Land for sale chapel lane, little hale, sleaford, lincolnshire,. An exciting town centre development opportunity for a mixed use development comprising 6 shops, 3 offices and 8 flats, full. Search for local properties for sale, read our information on buying and selling property, access area information for sleaford and much more,. A wide. Building Plots For Sale Sleaford.
From www.zoopla.co.uk
4 bed terraced house for sale in Westgate, Sleaford NG34 Zoopla Building Plots For Sale Sleaford Building plots for sale in sleaford, lincolnshire from savills, world leading estate agents. An exciting town centre development opportunity for a mixed use development comprising 6 shops, 3 offices and 8 flats, full. Find land, building plots and conversion and renovation opportunities in sleaford, lincolnshire, east midlands, england (town) From country estates to city apartments, your ideal. Farms and land. Building Plots For Sale Sleaford.
From www.longhurst-group.org.uk
Handley Chase, Sleaford New build homes Shared Ownership Building Plots For Sale Sleaford Offers in region of £600,000. Building plots for sale in sleaford, lincolnshire from savills, world leading estate agents. From country estates to city apartments, your ideal. An exciting town centre development opportunity for a mixed use development comprising 6 shops, 3 offices and 8 flats, full. A wide range of farms & land for sale in sleaford, lincolnshire with primelocation.. Building Plots For Sale Sleaford.
From www.onthemarket.com
Building Plot, Aslackby, Sleaford Land £250,000 Building Plots For Sale Sleaford Offers in region of £600,000. Search for local properties for sale, read our information on buying and selling property, access area information for sleaford and much more,. Plot for sale land off, southgate, sleaford, lincolnshire, ng34. Find land, building plots and conversion and renovation opportunities in sleaford, lincolnshire, east midlands, england (town) Land for sale chapel lane, little hale, sleaford,. Building Plots For Sale Sleaford.
From www.onthemarket.com
Building Plot, Aslackby, Sleaford Land £250,000 Building Plots For Sale Sleaford Narrow your search by property type. Search for local properties for sale, read our information on buying and selling property, access area information for sleaford and much more,. Farms and land for sale in ng34. Building plots for sale in sleaford, lincolnshire from savills, world leading estate agents. A wide range of farms & land for sale in sleaford, lincolnshire. Building Plots For Sale Sleaford.
From www.eastmidlandsbusinesslink.co.uk
122 affordable homes set for Sleaford brownfield site East Midlands Building Plots For Sale Sleaford Building plots for sale in sleaford, lincolnshire from savills, world leading estate agents. Farms and land for sale in ng34. Offers in region of £600,000. Find land, building plots and conversion and renovation opportunities in sleaford, lincolnshire, east midlands, england (town) From country estates to city apartments, your ideal. Narrow your search by property type. Plot for sale land off,. Building Plots For Sale Sleaford.
From www.zoopla.co.uk
3 bed detached house for sale in Sleaford Avenue, Motherwell ML1, £ Building Plots For Sale Sleaford A wide range of farms & land for sale in sleaford, lincolnshire with primelocation. Offers in region of £600,000. Search for local properties for sale, read our information on buying and selling property, access area information for sleaford and much more,. Building plots for sale in sleaford, lincolnshire from savills, world leading estate agents. From country estates to city apartments,. Building Plots For Sale Sleaford.
From www.zoopla.co.uk
4 bed detached house for sale in Sleaford Road, Boston PE21 Zoopla Building Plots For Sale Sleaford Find land, building plots and conversion and renovation opportunities in sleaford, lincolnshire, east midlands, england (town) Building plots for sale in sleaford, lincolnshire from savills, world leading estate agents. Search for local properties for sale, read our information on buying and selling property, access area information for sleaford and much more,. Offers in region of £600,000. Land for sale chapel. Building Plots For Sale Sleaford.