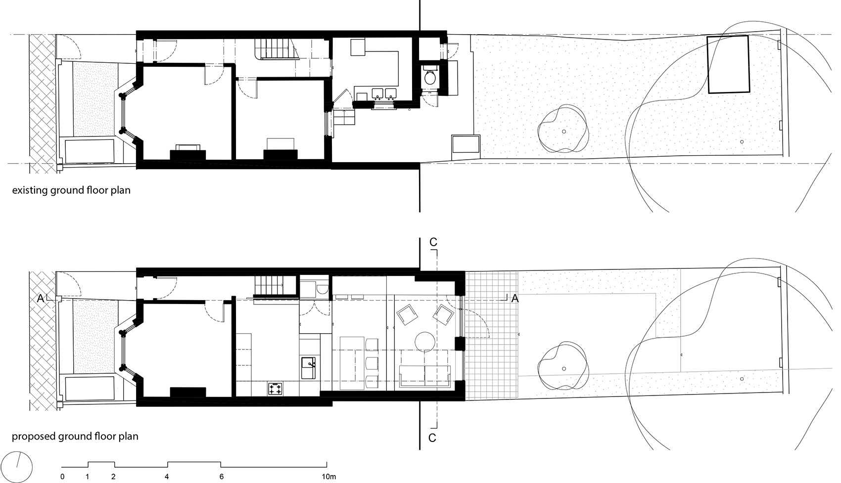
Cork House Nimtim . The project evolved through a process of co. As part of the ongoing research. A rear extension and loft conversion to a modest victorian terrace house in lewisham. In renovating and adding a modest extension to a small victorian terrace house in south london, england, local design firm nimtim architects (seen here previously) relied on cork's uniquely. Cork house is a rear extension and loft conversion to a modest victorian terrace house in south london. The cheerful spirit of nimtim architects’ renovation continues inside by way of bold patterns and bright pops of color. Cork walls and pink window frames characterise london house extension by nimtim architects. A rear extension and loft conversion to a modest victorian terrace house in south london. Cork house by nimtim architects. The project evolved through a process.
from www.pinterest.com
The project evolved through a process of co. The cheerful spirit of nimtim architects’ renovation continues inside by way of bold patterns and bright pops of color. A rear extension and loft conversion to a modest victorian terrace house in lewisham. The project evolved through a process. As part of the ongoing research. Cork house is a rear extension and loft conversion to a modest victorian terrace house in south london. Cork house by nimtim architects. In renovating and adding a modest extension to a small victorian terrace house in south london, england, local design firm nimtim architects (seen here previously) relied on cork's uniquely. Cork walls and pink window frames characterise london house extension by nimtim architects. A rear extension and loft conversion to a modest victorian terrace house in south london.
Cork House by Nimtim Architects is a corkclad extension to a Victorian
Cork House Nimtim Cork walls and pink window frames characterise london house extension by nimtim architects. Cork house by nimtim architects. In renovating and adding a modest extension to a small victorian terrace house in south london, england, local design firm nimtim architects (seen here previously) relied on cork's uniquely. As part of the ongoing research. The project evolved through a process of co. The project evolved through a process. A rear extension and loft conversion to a modest victorian terrace house in lewisham. Cork house is a rear extension and loft conversion to a modest victorian terrace house in south london. The cheerful spirit of nimtim architects’ renovation continues inside by way of bold patterns and bright pops of color. Cork walls and pink window frames characterise london house extension by nimtim architects. A rear extension and loft conversion to a modest victorian terrace house in south london.
From www.ajdchapelhow.co.uk
The Cork House AJ&D Chapelhow (Cliburn) Ltd Cork House Nimtim As part of the ongoing research. In renovating and adding a modest extension to a small victorian terrace house in south london, england, local design firm nimtim architects (seen here previously) relied on cork's uniquely. The project evolved through a process. The project evolved through a process of co. The cheerful spirit of nimtim architects’ renovation continues inside by way. Cork House Nimtim.
From www.nimtim.co.uk
cork house nimtim architects Cork House Nimtim A rear extension and loft conversion to a modest victorian terrace house in lewisham. The project evolved through a process. Cork house is a rear extension and loft conversion to a modest victorian terrace house in south london. The project evolved through a process of co. As part of the ongoing research. Cork house by nimtim architects. In renovating and. Cork House Nimtim.
From www.gooood.cn
Cork House by nimtim architects 谷德设计网 Cork House Nimtim In renovating and adding a modest extension to a small victorian terrace house in south london, england, local design firm nimtim architects (seen here previously) relied on cork's uniquely. The project evolved through a process of co. The project evolved through a process. As part of the ongoing research. A rear extension and loft conversion to a modest victorian terrace. Cork House Nimtim.
From www.gooood.cn
Cork House by nimtim architects 谷德设计网 Cork House Nimtim Cork house is a rear extension and loft conversion to a modest victorian terrace house in south london. A rear extension and loft conversion to a modest victorian terrace house in lewisham. The cheerful spirit of nimtim architects’ renovation continues inside by way of bold patterns and bright pops of color. Cork walls and pink window frames characterise london house. Cork House Nimtim.
From www.gooood.cn
Cork House by nimtim architects 谷德设计网 Cork House Nimtim Cork walls and pink window frames characterise london house extension by nimtim architects. The project evolved through a process of co. A rear extension and loft conversion to a modest victorian terrace house in lewisham. Cork house by nimtim architects. Cork house is a rear extension and loft conversion to a modest victorian terrace house in south london. As part. Cork House Nimtim.
From www.pinterest.com
Cork House nimtim architects Media Photos and Videos 26 Cork House Nimtim A rear extension and loft conversion to a modest victorian terrace house in lewisham. The project evolved through a process of co. A rear extension and loft conversion to a modest victorian terrace house in south london. The project evolved through a process. Cork walls and pink window frames characterise london house extension by nimtim architects. The cheerful spirit of. Cork House Nimtim.
From www.treehugger.com
Family's Renovated Cork House Balances Beauty With Sustainability Cork House Nimtim A rear extension and loft conversion to a modest victorian terrace house in south london. The cheerful spirit of nimtim architects’ renovation continues inside by way of bold patterns and bright pops of color. The project evolved through a process. As part of the ongoing research. Cork house by nimtim architects. Cork walls and pink window frames characterise london house. Cork House Nimtim.
From architizer.com
Cork House by nimtim architects Architizer Cork House Nimtim In renovating and adding a modest extension to a small victorian terrace house in south london, england, local design firm nimtim architects (seen here previously) relied on cork's uniquely. Cork house is a rear extension and loft conversion to a modest victorian terrace house in south london. The project evolved through a process of co. The cheerful spirit of nimtim. Cork House Nimtim.
From 88designbox.com
Cork House by nimtim architects Cork House Nimtim Cork house is a rear extension and loft conversion to a modest victorian terrace house in south london. A rear extension and loft conversion to a modest victorian terrace house in south london. Cork walls and pink window frames characterise london house extension by nimtim architects. In renovating and adding a modest extension to a small victorian terrace house in. Cork House Nimtim.
From drwong.live
Cork walls and pink window frames characterise Nimtim Architects Cork House Nimtim Cork house by nimtim architects. As part of the ongoing research. A rear extension and loft conversion to a modest victorian terrace house in south london. Cork walls and pink window frames characterise london house extension by nimtim architects. The project evolved through a process. Cork house is a rear extension and loft conversion to a modest victorian terrace house. Cork House Nimtim.
From architizer.com
Cork House by nimtim architects Architizer Cork House Nimtim Cork walls and pink window frames characterise london house extension by nimtim architects. In renovating and adding a modest extension to a small victorian terrace house in south london, england, local design firm nimtim architects (seen here previously) relied on cork's uniquely. As part of the ongoing research. The project evolved through a process. A rear extension and loft conversion. Cork House Nimtim.
From 88designbox.com
Cork House by nimtim architects Cork House Nimtim Cork house is a rear extension and loft conversion to a modest victorian terrace house in south london. A rear extension and loft conversion to a modest victorian terrace house in south london. The project evolved through a process. The cheerful spirit of nimtim architects’ renovation continues inside by way of bold patterns and bright pops of color. The project. Cork House Nimtim.
From www.gooood.cn
Cork House by nimtim architects 谷德设计网 Cork House Nimtim Cork house by nimtim architects. Cork walls and pink window frames characterise london house extension by nimtim architects. A rear extension and loft conversion to a modest victorian terrace house in south london. A rear extension and loft conversion to a modest victorian terrace house in lewisham. In renovating and adding a modest extension to a small victorian terrace house. Cork House Nimtim.
From architizer.com
Cork House by nimtim architects Architizer Cork House Nimtim The project evolved through a process of co. In renovating and adding a modest extension to a small victorian terrace house in south london, england, local design firm nimtim architects (seen here previously) relied on cork's uniquely. A rear extension and loft conversion to a modest victorian terrace house in south london. Cork house is a rear extension and loft. Cork House Nimtim.
From www.gooood.cn
Cork House by nimtim architects 谷德设计网 Cork House Nimtim A rear extension and loft conversion to a modest victorian terrace house in south london. The project evolved through a process of co. Cork house is a rear extension and loft conversion to a modest victorian terrace house in south london. Cork walls and pink window frames characterise london house extension by nimtim architects. Cork house by nimtim architects. As. Cork House Nimtim.
From www.pinterest.com
Cork House by Nimtim Architects is a corkclad extension to a Victorian Cork House Nimtim The cheerful spirit of nimtim architects’ renovation continues inside by way of bold patterns and bright pops of color. A rear extension and loft conversion to a modest victorian terrace house in south london. Cork house is a rear extension and loft conversion to a modest victorian terrace house in south london. The project evolved through a process. A rear. Cork House Nimtim.
From www.gooood.cn
Cork House by nimtim architects 谷德设计网 Cork House Nimtim Cork house is a rear extension and loft conversion to a modest victorian terrace house in south london. In renovating and adding a modest extension to a small victorian terrace house in south london, england, local design firm nimtim architects (seen here previously) relied on cork's uniquely. As part of the ongoing research. Cork house by nimtim architects. A rear. Cork House Nimtim.
From 88designbox.com
Cork House by nimtim architects Cork House Nimtim A rear extension and loft conversion to a modest victorian terrace house in south london. Cork walls and pink window frames characterise london house extension by nimtim architects. The cheerful spirit of nimtim architects’ renovation continues inside by way of bold patterns and bright pops of color. The project evolved through a process of co. Cork house by nimtim architects.. Cork House Nimtim.
From www.nimtim.co.uk
cork house nimtim architects Cork House Nimtim Cork house by nimtim architects. Cork house is a rear extension and loft conversion to a modest victorian terrace house in south london. A rear extension and loft conversion to a modest victorian terrace house in south london. The cheerful spirit of nimtim architects’ renovation continues inside by way of bold patterns and bright pops of color. A rear extension. Cork House Nimtim.
From www.nimtim.co.uk
cork house nimtim architects Cork House Nimtim Cork house is a rear extension and loft conversion to a modest victorian terrace house in south london. A rear extension and loft conversion to a modest victorian terrace house in lewisham. The project evolved through a process. The cheerful spirit of nimtim architects’ renovation continues inside by way of bold patterns and bright pops of color. The project evolved. Cork House Nimtim.
From www.re-thinkingthefuture.com
Cork House By nimtim architects RTF Rethinking The Future Cork House Nimtim A rear extension and loft conversion to a modest victorian terrace house in lewisham. In renovating and adding a modest extension to a small victorian terrace house in south london, england, local design firm nimtim architects (seen here previously) relied on cork's uniquely. The project evolved through a process of co. The project evolved through a process. Cork walls and. Cork House Nimtim.
From drwong.live
Cork walls and pink window frames characterise Nimtim Architects Cork House Nimtim The project evolved through a process of co. In renovating and adding a modest extension to a small victorian terrace house in south london, england, local design firm nimtim architects (seen here previously) relied on cork's uniquely. A rear extension and loft conversion to a modest victorian terrace house in south london. The cheerful spirit of nimtim architects’ renovation continues. Cork House Nimtim.
From www.pinterest.com
Cork House by Nimtim Architects is a corkclad extension to a Victorian Cork House Nimtim The project evolved through a process. Cork house is a rear extension and loft conversion to a modest victorian terrace house in south london. As part of the ongoing research. In renovating and adding a modest extension to a small victorian terrace house in south london, england, local design firm nimtim architects (seen here previously) relied on cork's uniquely. The. Cork House Nimtim.
From 88designbox.com
Cork House by nimtim architects Cork House Nimtim The project evolved through a process. The cheerful spirit of nimtim architects’ renovation continues inside by way of bold patterns and bright pops of color. Cork house is a rear extension and loft conversion to a modest victorian terrace house in south london. A rear extension and loft conversion to a modest victorian terrace house in lewisham. The project evolved. Cork House Nimtim.
From www.nimtim.co.uk
House London features Cork House Cork House Nimtim The cheerful spirit of nimtim architects’ renovation continues inside by way of bold patterns and bright pops of color. The project evolved through a process of co. Cork house is a rear extension and loft conversion to a modest victorian terrace house in south london. Cork house by nimtim architects. The project evolved through a process. As part of the. Cork House Nimtim.
From 88designbox.com
Cork House by nimtim architects Cork House Nimtim A rear extension and loft conversion to a modest victorian terrace house in lewisham. As part of the ongoing research. The cheerful spirit of nimtim architects’ renovation continues inside by way of bold patterns and bright pops of color. In renovating and adding a modest extension to a small victorian terrace house in south london, england, local design firm nimtim. Cork House Nimtim.
From 88designbox.com
Cork House by nimtim architects Cork House Nimtim A rear extension and loft conversion to a modest victorian terrace house in south london. Cork house by nimtim architects. The cheerful spirit of nimtim architects’ renovation continues inside by way of bold patterns and bright pops of color. The project evolved through a process of co. In renovating and adding a modest extension to a small victorian terrace house. Cork House Nimtim.
From www.arqdiary.com
Cork House by Nimtim Architects Cork House Nimtim Cork house is a rear extension and loft conversion to a modest victorian terrace house in south london. A rear extension and loft conversion to a modest victorian terrace house in south london. Cork walls and pink window frames characterise london house extension by nimtim architects. The project evolved through a process of co. In renovating and adding a modest. Cork House Nimtim.
From www.gooood.cn
Cork House by nimtim architects 谷德设计网 Cork House Nimtim The cheerful spirit of nimtim architects’ renovation continues inside by way of bold patterns and bright pops of color. A rear extension and loft conversion to a modest victorian terrace house in lewisham. In renovating and adding a modest extension to a small victorian terrace house in south london, england, local design firm nimtim architects (seen here previously) relied on. Cork House Nimtim.
From www.gooood.cn
Cork House by nimtim architects 谷德设计网 Cork House Nimtim A rear extension and loft conversion to a modest victorian terrace house in south london. Cork walls and pink window frames characterise london house extension by nimtim architects. As part of the ongoing research. Cork house is a rear extension and loft conversion to a modest victorian terrace house in south london. Cork house by nimtim architects. In renovating and. Cork House Nimtim.
From archello.com
Cork House nimtim architects Archello Cork House Nimtim As part of the ongoing research. A rear extension and loft conversion to a modest victorian terrace house in south london. A rear extension and loft conversion to a modest victorian terrace house in lewisham. In renovating and adding a modest extension to a small victorian terrace house in south london, england, local design firm nimtim architects (seen here previously). Cork House Nimtim.
From artarchitecturedezign.blogspot.com
Cork walls and pink window frames characterise Nimtim Architects Cork House Nimtim As part of the ongoing research. The project evolved through a process. Cork house is a rear extension and loft conversion to a modest victorian terrace house in south london. A rear extension and loft conversion to a modest victorian terrace house in south london. In renovating and adding a modest extension to a small victorian terrace house in south. Cork House Nimtim.
From www.treehugger.com
Family's Renovated Cork House Balances Beauty With Sustainability Cork House Nimtim The cheerful spirit of nimtim architects’ renovation continues inside by way of bold patterns and bright pops of color. As part of the ongoing research. Cork house is a rear extension and loft conversion to a modest victorian terrace house in south london. A rear extension and loft conversion to a modest victorian terrace house in lewisham. Cork walls and. Cork House Nimtim.