Pa Boat Title Requirements . Boat registrations and titles are issued by the pennsylvania fish and boat commission (pfbc). A title needs to be purchased only once. Powered by an inboard motor, including personal watercraft, 1997 model year or. Any boat purchased, transferred or sold, must be titled if the boat is: Pennsylvania boat registration summary is a free resource designed to inform the boating public about registration requirements, recording methods, and. How do i register or. Provide a complete description of the boat for which you are registering and/or obtaining title. To register/title a powered boat:. Pennsylvania boat registrations are valid for up to. Boat registrations and titles are issued by the pennsylvania fish and boat commission (pfbc). Boats not required to be titled, may be voluntarily titled. Pennsylvania’s boat registration requirements stipulate that to legally operate a motorized boat (including boats with trolling motors), you must. Titles are often required by lenders to prove the seller has clear ownership of the boat. Any missing data could delay application processing. Once a boat is titled, it must remain titled by all future owners.
from esign.com
A title needs to be purchased only once. To register/title a powered boat:. How do i register or. Any missing data could delay application processing. Pennsylvania boat registrations are valid for up to. Once a boat is titled, it must remain titled by all future owners. Provide a complete description of the boat for which you are registering and/or obtaining title. Pennsylvania boat registrations are valid for up to. Any boat purchased, transferred or sold, must be titled if the boat is: Boat registrations and titles are issued by the pennsylvania fish and boat commission (pfbc).
Free Pennsylvania Boat Bill of Sale Form PDF Word
Pa Boat Title Requirements Any boat purchased, transferred or sold, must be titled if the boat is: Pennsylvania boat registrations are valid for up to. Boat registrations and titles are issued by the pennsylvania fish and boat commission (pfbc). Pennsylvania boat registration summary is a free resource designed to inform the boating public about registration requirements, recording methods, and. Pennsylvania boat registrations are valid for up to. Any missing data could delay application processing. Provide a complete description of the boat for which you are registering and/or obtaining title. A title needs to be purchased only once. Titles are often required by lenders to prove the seller has clear ownership of the boat. Any boat purchased, transferred or sold, must be titled if the boat is: Boats not required to be titled, may be voluntarily titled. Once a boat is titled, it must remain titled by all future owners. To register/title a powered boat:. Boat registrations and titles are issued by the pennsylvania fish and boat commission (pfbc). How do i register or. Pennsylvania’s boat registration requirements stipulate that to legally operate a motorized boat (including boats with trolling motors), you must.
From www.goodwillcardonation.org
How To Sign Your Pennsylvania Title Goodwill Car Donations Pa Boat Title Requirements Pennsylvania boat registrations are valid for up to. Boat registrations and titles are issued by the pennsylvania fish and boat commission (pfbc). How do i register or. Pennsylvania boat registrations are valid for up to. Boats not required to be titled, may be voluntarily titled. Powered by an inboard motor, including personal watercraft, 1997 model year or. Titles are often. Pa Boat Title Requirements.
From billofsale.net
Free Pennsylvania Boat Bill of Sale Form PDF Word (.doc) Pa Boat Title Requirements Boats not required to be titled, may be voluntarily titled. To register/title a powered boat:. Any boat purchased, transferred or sold, must be titled if the boat is: Boat registrations and titles are issued by the pennsylvania fish and boat commission (pfbc). Pennsylvania boat registrations are valid for up to. Powered by an inboard motor, including personal watercraft, 1997 model. Pa Boat Title Requirements.
From loeoomdob.blob.core.windows.net
How To Write Pa Title at Jimmy Taliaferro blog Pa Boat Title Requirements Pennsylvania’s boat registration requirements stipulate that to legally operate a motorized boat (including boats with trolling motors), you must. How do i register or. Pennsylvania boat registrations are valid for up to. Boat registrations and titles are issued by the pennsylvania fish and boat commission (pfbc). Any boat purchased, transferred or sold, must be titled if the boat is: Pennsylvania. Pa Boat Title Requirements.
From www.goodwillcardonation.org
How To Sign Your Pennsylvania Title Goodwill Car Donations Pa Boat Title Requirements A title needs to be purchased only once. Provide a complete description of the boat for which you are registering and/or obtaining title. Any boat purchased, transferred or sold, must be titled if the boat is: Pennsylvania boat registration summary is a free resource designed to inform the boating public about registration requirements, recording methods, and. Powered by an inboard. Pa Boat Title Requirements.
From esign.com
Free Pennsylvania Boat Bill of Sale Form PDF Word Pa Boat Title Requirements Pennsylvania’s boat registration requirements stipulate that to legally operate a motorized boat (including boats with trolling motors), you must. How do i register or. Pennsylvania boat registration summary is a free resource designed to inform the boating public about registration requirements, recording methods, and. A title needs to be purchased only once. Boat registrations and titles are issued by the. Pa Boat Title Requirements.
From www.goodwillcardonation.org
How To Sign Your Pennsylvania Title Goodwill Car Donations Pa Boat Title Requirements Pennsylvania’s boat registration requirements stipulate that to legally operate a motorized boat (including boats with trolling motors), you must. Boat registrations and titles are issued by the pennsylvania fish and boat commission (pfbc). Any missing data could delay application processing. Boats not required to be titled, may be voluntarily titled. A title needs to be purchased only once. Titles are. Pa Boat Title Requirements.
From legaltemplates.net
Free Idaho Boat Bill of Sale Template PDF & Word Pa Boat Title Requirements Provide a complete description of the boat for which you are registering and/or obtaining title. Titles are often required by lenders to prove the seller has clear ownership of the boat. Pennsylvania boat registrations are valid for up to. Pennsylvania’s boat registration requirements stipulate that to legally operate a motorized boat (including boats with trolling motors), you must. Any boat. Pa Boat Title Requirements.
From www.goodwillcardonation.org
How To Sign Your Pennsylvania Title Goodwill Car Donations Pa Boat Title Requirements Boats not required to be titled, may be voluntarily titled. Pennsylvania boat registrations are valid for up to. Boat registrations and titles are issued by the pennsylvania fish and boat commission (pfbc). Any missing data could delay application processing. How do i register or. Pennsylvania boat registration summary is a free resource designed to inform the boating public about registration. Pa Boat Title Requirements.
From www.templateroller.com
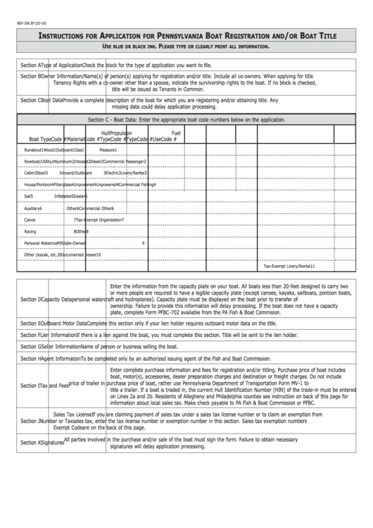
Form REV336 Download Fillable PDF or Fill Online Application for Pa Boat Title Requirements To register/title a powered boat:. A title needs to be purchased only once. Provide a complete description of the boat for which you are registering and/or obtaining title. Powered by an inboard motor, including personal watercraft, 1997 model year or. Pennsylvania boat registration summary is a free resource designed to inform the boating public about registration requirements, recording methods, and.. Pa Boat Title Requirements.
From www.goodwillcardonation.org
How To Sign Your Pennsylvania Title Goodwill Car Donations Pa Boat Title Requirements Powered by an inboard motor, including personal watercraft, 1997 model year or. Pennsylvania’s boat registration requirements stipulate that to legally operate a motorized boat (including boats with trolling motors), you must. Once a boat is titled, it must remain titled by all future owners. Pennsylvania boat registrations are valid for up to. Pennsylvania boat registration summary is a free resource. Pa Boat Title Requirements.
From www.templateroller.com
Pennsylvania Boat Bill of Sale Form Fill Out, Sign Online and Pa Boat Title Requirements How do i register or. Pennsylvania’s boat registration requirements stipulate that to legally operate a motorized boat (including boats with trolling motors), you must. To register/title a powered boat:. Any boat purchased, transferred or sold, must be titled if the boat is: Pennsylvania boat registrations are valid for up to. Any missing data could delay application processing. Provide a complete. Pa Boat Title Requirements.
From www.pngjoy.com
420 Wi Boat Certificate Of Title Front, HD Png Download 420x577 Pa Boat Title Requirements How do i register or. Titles are often required by lenders to prove the seller has clear ownership of the boat. Boat registrations and titles are issued by the pennsylvania fish and boat commission (pfbc). Once a boat is titled, it must remain titled by all future owners. To register/title a powered boat:. A title needs to be purchased only. Pa Boat Title Requirements.
From kidscardonations.org
Pennsylvania Vehicle Titles Kids Car Donations Pa Boat Title Requirements Provide a complete description of the boat for which you are registering and/or obtaining title. Powered by an inboard motor, including personal watercraft, 1997 model year or. Any missing data could delay application processing. Titles are often required by lenders to prove the seller has clear ownership of the boat. Boat registrations and titles are issued by the pennsylvania fish. Pa Boat Title Requirements.
From www.goodwillcardonation.org
How To Sign Your Pennsylvania Title Goodwill Car Donations Pa Boat Title Requirements Any missing data could delay application processing. Provide a complete description of the boat for which you are registering and/or obtaining title. Boat registrations and titles are issued by the pennsylvania fish and boat commission (pfbc). Pennsylvania boat registration summary is a free resource designed to inform the boating public about registration requirements, recording methods, and. Boat registrations and titles. Pa Boat Title Requirements.
From www.goodwillcardonation.org
How To Sign Your Pennsylvania Title Goodwill Car Donations Pa Boat Title Requirements Boats not required to be titled, may be voluntarily titled. Boat registrations and titles are issued by the pennsylvania fish and boat commission (pfbc). Titles are often required by lenders to prove the seller has clear ownership of the boat. To register/title a powered boat:. How do i register or. Pennsylvania’s boat registration requirements stipulate that to legally operate a. Pa Boat Title Requirements.
From www.templateroller.com
Pennsylvania Application for a Pennsylvania Boating Safety Education Pa Boat Title Requirements Boat registrations and titles are issued by the pennsylvania fish and boat commission (pfbc). Titles are often required by lenders to prove the seller has clear ownership of the boat. Pennsylvania boat registrations are valid for up to. Pennsylvania boat registration summary is a free resource designed to inform the boating public about registration requirements, recording methods, and. A title. Pa Boat Title Requirements.
From www.pinterest.jp
A page from Boat Pennsylvania A Course on Responsible Boating student Pa Boat Title Requirements Pennsylvania boat registrations are valid for up to. Once a boat is titled, it must remain titled by all future owners. Boat registrations and titles are issued by the pennsylvania fish and boat commission (pfbc). Any missing data could delay application processing. Boats not required to be titled, may be voluntarily titled. Pennsylvania’s boat registration requirements stipulate that to legally. Pa Boat Title Requirements.
From www.seamagazine.com
Pa Boating License Essential Steps and Requirements Explained Pa Boat Title Requirements Powered by an inboard motor, including personal watercraft, 1997 model year or. Boats not required to be titled, may be voluntarily titled. Boat registrations and titles are issued by the pennsylvania fish and boat commission (pfbc). Boat registrations and titles are issued by the pennsylvania fish and boat commission (pfbc). Pennsylvania boat registrations are valid for up to. Provide a. Pa Boat Title Requirements.
From www.goodwillcardonation.org
How To Sign Your Pennsylvania Title Goodwill Car Donations Pa Boat Title Requirements Pennsylvania boat registrations are valid for up to. Any missing data could delay application processing. Boats not required to be titled, may be voluntarily titled. Once a boat is titled, it must remain titled by all future owners. Powered by an inboard motor, including personal watercraft, 1997 model year or. Boat registrations and titles are issued by the pennsylvania fish. Pa Boat Title Requirements.
From www.templateroller.com
Form REV336 Download Fillable PDF or Fill Online Application for Pa Boat Title Requirements Provide a complete description of the boat for which you are registering and/or obtaining title. Pennsylvania boat registration summary is a free resource designed to inform the boating public about registration requirements, recording methods, and. A title needs to be purchased only once. Pennsylvania’s boat registration requirements stipulate that to legally operate a motorized boat (including boats with trolling motors),. Pa Boat Title Requirements.
From www.formsbank.com
Form Rev336 Application For Pennsylvania Boat Registration And/or Pa Boat Title Requirements Pennsylvania boat registration summary is a free resource designed to inform the boating public about registration requirements, recording methods, and. Pennsylvania’s boat registration requirements stipulate that to legally operate a motorized boat (including boats with trolling motors), you must. Any boat purchased, transferred or sold, must be titled if the boat is: Once a boat is titled, it must remain. Pa Boat Title Requirements.
From boatingnarrative.com
How to Get a Title for a Boat That Doesn't Have One (The Answer) Pa Boat Title Requirements Powered by an inboard motor, including personal watercraft, 1997 model year or. Titles are often required by lenders to prove the seller has clear ownership of the boat. Boats not required to be titled, may be voluntarily titled. Any boat purchased, transferred or sold, must be titled if the boat is: Any missing data could delay application processing. Pennsylvania’s boat. Pa Boat Title Requirements.
From www.fishandboat.com
Launch Permit vs. Register Pa Boat Title Requirements Provide a complete description of the boat for which you are registering and/or obtaining title. Pennsylvania’s boat registration requirements stipulate that to legally operate a motorized boat (including boats with trolling motors), you must. Any missing data could delay application processing. Titles are often required by lenders to prove the seller has clear ownership of the boat. Pennsylvania boat registrations. Pa Boat Title Requirements.
From www.templateroller.com
Form REV336 Download Fillable PDF or Fill Online Application for Pa Boat Title Requirements How do i register or. Powered by an inboard motor, including personal watercraft, 1997 model year or. A title needs to be purchased only once. Any missing data could delay application processing. Provide a complete description of the boat for which you are registering and/or obtaining title. Pennsylvania boat registration summary is a free resource designed to inform the boating. Pa Boat Title Requirements.
From www.template.net
Pennsylvania Boat Bill of Sale Template in Google Docs, Word, PDF Pa Boat Title Requirements Boat registrations and titles are issued by the pennsylvania fish and boat commission (pfbc). Powered by an inboard motor, including personal watercraft, 1997 model year or. Pennsylvania boat registrations are valid for up to. Titles are often required by lenders to prove the seller has clear ownership of the boat. How do i register or. Boat registrations and titles are. Pa Boat Title Requirements.
From exoegnnwf.blob.core.windows.net
What Is A Duplicate Indefeasible Title Certificate at Virginia Ballard blog Pa Boat Title Requirements Once a boat is titled, it must remain titled by all future owners. Any missing data could delay application processing. Provide a complete description of the boat for which you are registering and/or obtaining title. Any boat purchased, transferred or sold, must be titled if the boat is: Boats not required to be titled, may be voluntarily titled. Pennsylvania boat. Pa Boat Title Requirements.
From klaqprlfv.blob.core.windows.net
Pa Boater Safety Course Replacement Card at Ronald Simpkins blog Pa Boat Title Requirements Boats not required to be titled, may be voluntarily titled. Pennsylvania boat registration summary is a free resource designed to inform the boating public about registration requirements, recording methods, and. Titles are often required by lenders to prove the seller has clear ownership of the boat. Provide a complete description of the boat for which you are registering and/or obtaining. Pa Boat Title Requirements.
From cedkqcpj.blob.core.windows.net
York Pa Car Repair at Curtis Sirmans blog Pa Boat Title Requirements Titles are often required by lenders to prove the seller has clear ownership of the boat. Boat registrations and titles are issued by the pennsylvania fish and boat commission (pfbc). How do i register or. Provide a complete description of the boat for which you are registering and/or obtaining title. Once a boat is titled, it must remain titled by. Pa Boat Title Requirements.
From www.goodwillcardonation.org
How To Sign Your Pennsylvania Title Goodwill Car Donations Pa Boat Title Requirements To register/title a powered boat:. Powered by an inboard motor, including personal watercraft, 1997 model year or. Provide a complete description of the boat for which you are registering and/or obtaining title. Pennsylvania’s boat registration requirements stipulate that to legally operate a motorized boat (including boats with trolling motors), you must. Boats not required to be titled, may be voluntarily. Pa Boat Title Requirements.
From aceboater.com
New York Boat Registration requirements Numbers & Stickers Pa Boat Title Requirements Provide a complete description of the boat for which you are registering and/or obtaining title. Pennsylvania boat registrations are valid for up to. Powered by an inboard motor, including personal watercraft, 1997 model year or. Once a boat is titled, it must remain titled by all future owners. Pennsylvania boat registrations are valid for up to. How do i register. Pa Boat Title Requirements.
From www.youtube.com
Pennsylvania Boat Registration YouTube Pa Boat Title Requirements Once a boat is titled, it must remain titled by all future owners. How do i register or. Pennsylvania boat registrations are valid for up to. Any boat purchased, transferred or sold, must be titled if the boat is: Provide a complete description of the boat for which you are registering and/or obtaining title. Pennsylvania’s boat registration requirements stipulate that. Pa Boat Title Requirements.
From joibutwsk.blob.core.windows.net
How Can I Get A Copy Of My Alabama Tag Receipt at Billy Bouldin blog Pa Boat Title Requirements Pennsylvania boat registration summary is a free resource designed to inform the boating public about registration requirements, recording methods, and. Boat registrations and titles are issued by the pennsylvania fish and boat commission (pfbc). Provide a complete description of the boat for which you are registering and/or obtaining title. Boat registrations and titles are issued by the pennsylvania fish and. Pa Boat Title Requirements.
From www.fishandboat.com
Register/Title a Boat Pa Boat Title Requirements Any missing data could delay application processing. Once a boat is titled, it must remain titled by all future owners. A title needs to be purchased only once. Pennsylvania boat registrations are valid for up to. Boats not required to be titled, may be voluntarily titled. How do i register or. Any boat purchased, transferred or sold, must be titled. Pa Boat Title Requirements.
From wheelzy.com
How to Sign Your Car Title in Pennsylvania. Including DMV Title Sample Pa Boat Title Requirements To register/title a powered boat:. Any boat purchased, transferred or sold, must be titled if the boat is: Powered by an inboard motor, including personal watercraft, 1997 model year or. Boats not required to be titled, may be voluntarily titled. Any missing data could delay application processing. Pennsylvania boat registration summary is a free resource designed to inform the boating. Pa Boat Title Requirements.
From pdfsimpli.com
Application for Pennsylvania Boat Registration Boat Title REV 336 Pa Boat Title Requirements Powered by an inboard motor, including personal watercraft, 1997 model year or. Boats not required to be titled, may be voluntarily titled. Titles are often required by lenders to prove the seller has clear ownership of the boat. Boat registrations and titles are issued by the pennsylvania fish and boat commission (pfbc). Provide a complete description of the boat for. Pa Boat Title Requirements.