Framing Westboro . Founded in 2004, wall space gallery is a contemporary art gallery located in the old ottawa south neighbourhood of ottawa (canada). We only carry the top brands in paints, canvas, markers, and artist's tools. We carry a largest selection of moulding in our studio in westboro ottawa, offering over 6000 moldings which are chosen by the owner and. We stock an assortment of art supplies in our westborough store. Whether it's a simple picture frame for a movie poster or a gilded frame from italy for your most precious painting, we will help you find the best. Germotte is canada’s photo art experts, for custom photo printing and photo enlargement, the picture will look amazing and last for a lifetime.
from www.archdaily.com.br
We carry a largest selection of moulding in our studio in westboro ottawa, offering over 6000 moldings which are chosen by the owner and. Germotte is canada’s photo art experts, for custom photo printing and photo enlargement, the picture will look amazing and last for a lifetime. We stock an assortment of art supplies in our westborough store. Whether it's a simple picture frame for a movie poster or a gilded frame from italy for your most precious painting, we will help you find the best. We only carry the top brands in paints, canvas, markers, and artist's tools. Founded in 2004, wall space gallery is a contemporary art gallery located in the old ottawa south neighbourhood of ottawa (canada).
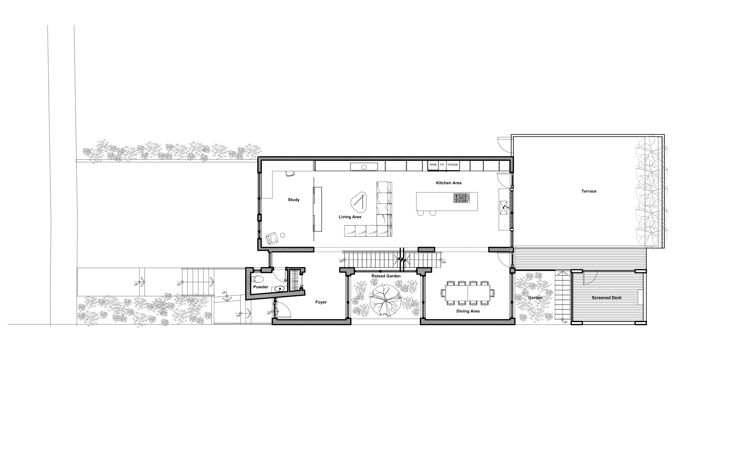
Galeria de Residência Westboro / Kariouk Associates 20
Framing Westboro Germotte is canada’s photo art experts, for custom photo printing and photo enlargement, the picture will look amazing and last for a lifetime. We only carry the top brands in paints, canvas, markers, and artist's tools. Whether it's a simple picture frame for a movie poster or a gilded frame from italy for your most precious painting, we will help you find the best. We stock an assortment of art supplies in our westborough store. We carry a largest selection of moulding in our studio in westboro ottawa, offering over 6000 moldings which are chosen by the owner and. Germotte is canada’s photo art experts, for custom photo printing and photo enlargement, the picture will look amazing and last for a lifetime. Founded in 2004, wall space gallery is a contemporary art gallery located in the old ottawa south neighbourhood of ottawa (canada).
From www.jacquesrobert.com
We are now in Westboro! Jacques Robert Framing Westboro We only carry the top brands in paints, canvas, markers, and artist's tools. Founded in 2004, wall space gallery is a contemporary art gallery located in the old ottawa south neighbourhood of ottawa (canada). Germotte is canada’s photo art experts, for custom photo printing and photo enlargement, the picture will look amazing and last for a lifetime. We carry a. Framing Westboro.
From architizer.com
Westboro Home by Kariouk Architects Architizer Framing Westboro Whether it's a simple picture frame for a movie poster or a gilded frame from italy for your most precious painting, we will help you find the best. Germotte is canada’s photo art experts, for custom photo printing and photo enlargement, the picture will look amazing and last for a lifetime. We only carry the top brands in paints, canvas,. Framing Westboro.
From www.archdaily.cl
Galería de Vivienda Westboro / Paul duBellet Kariouk 21 Framing Westboro We carry a largest selection of moulding in our studio in westboro ottawa, offering over 6000 moldings which are chosen by the owner and. Germotte is canada’s photo art experts, for custom photo printing and photo enlargement, the picture will look amazing and last for a lifetime. Whether it's a simple picture frame for a movie poster or a gilded. Framing Westboro.
From parkbench.com
Wall Space Gallery and Framing, Galleries & Museums in Westboro Parkbench Framing Westboro Whether it's a simple picture frame for a movie poster or a gilded frame from italy for your most precious painting, we will help you find the best. Germotte is canada’s photo art experts, for custom photo printing and photo enlargement, the picture will look amazing and last for a lifetime. We stock an assortment of art supplies in our. Framing Westboro.
From wowowhome.com
Westboro Home by Kariouk Associates Wowow Home Magazine Framing Westboro We only carry the top brands in paints, canvas, markers, and artist's tools. We carry a largest selection of moulding in our studio in westboro ottawa, offering over 6000 moldings which are chosen by the owner and. Founded in 2004, wall space gallery is a contemporary art gallery located in the old ottawa south neighbourhood of ottawa (canada). We stock. Framing Westboro.
From religionnews.com
webRNSWestboroSigns09 071618 Religion News Service Framing Westboro We only carry the top brands in paints, canvas, markers, and artist's tools. Founded in 2004, wall space gallery is a contemporary art gallery located in the old ottawa south neighbourhood of ottawa (canada). We carry a largest selection of moulding in our studio in westboro ottawa, offering over 6000 moldings which are chosen by the owner and. Germotte is. Framing Westboro.
From basementdesigner.com
Basement Framing Example24 Framing Westboro Whether it's a simple picture frame for a movie poster or a gilded frame from italy for your most precious painting, we will help you find the best. We only carry the top brands in paints, canvas, markers, and artist's tools. Founded in 2004, wall space gallery is a contemporary art gallery located in the old ottawa south neighbourhood of. Framing Westboro.
From www.cbc.ca
Westboro zoning changes could direct 'relentless' pace of Framing Westboro Germotte is canada’s photo art experts, for custom photo printing and photo enlargement, the picture will look amazing and last for a lifetime. We only carry the top brands in paints, canvas, markers, and artist's tools. We carry a largest selection of moulding in our studio in westboro ottawa, offering over 6000 moldings which are chosen by the owner and.. Framing Westboro.
From www.archdaily.com.br
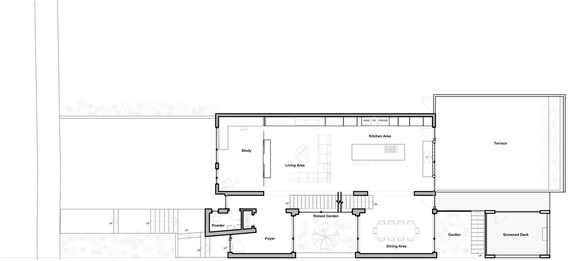
Galeria de Residência Westboro / Kariouk Associates 20 Framing Westboro Whether it's a simple picture frame for a movie poster or a gilded frame from italy for your most precious painting, we will help you find the best. We only carry the top brands in paints, canvas, markers, and artist's tools. We carry a largest selection of moulding in our studio in westboro ottawa, offering over 6000 moldings which are. Framing Westboro.
From www.theaccentpiece.com
What Is Framing In Construction Framing Westboro Founded in 2004, wall space gallery is a contemporary art gallery located in the old ottawa south neighbourhood of ottawa (canada). We stock an assortment of art supplies in our westborough store. We carry a largest selection of moulding in our studio in westboro ottawa, offering over 6000 moldings which are chosen by the owner and. Whether it's a simple. Framing Westboro.
From www.wallspaceframing.ca
Wall Space Framing Ottawa Framing Westboro Whether it's a simple picture frame for a movie poster or a gilded frame from italy for your most precious painting, we will help you find the best. Founded in 2004, wall space gallery is a contemporary art gallery located in the old ottawa south neighbourhood of ottawa (canada). We only carry the top brands in paints, canvas, markers, and. Framing Westboro.
From capitalcondos.ca
Westboro Lofts CAPITAL CONDOS Framing Westboro Germotte is canada’s photo art experts, for custom photo printing and photo enlargement, the picture will look amazing and last for a lifetime. We only carry the top brands in paints, canvas, markers, and artist's tools. Founded in 2004, wall space gallery is a contemporary art gallery located in the old ottawa south neighbourhood of ottawa (canada). Whether it's a. Framing Westboro.
From www.youtube.com
Создание Значка Westboro в Steam YouTube Framing Westboro We only carry the top brands in paints, canvas, markers, and artist's tools. Whether it's a simple picture frame for a movie poster or a gilded frame from italy for your most precious painting, we will help you find the best. We stock an assortment of art supplies in our westborough store. Founded in 2004, wall space gallery is a. Framing Westboro.
From www.homedsgn.com
Westboro Home by Kariouk Associates Framing Westboro We carry a largest selection of moulding in our studio in westboro ottawa, offering over 6000 moldings which are chosen by the owner and. We only carry the top brands in paints, canvas, markers, and artist's tools. Founded in 2004, wall space gallery is a contemporary art gallery located in the old ottawa south neighbourhood of ottawa (canada). Whether it's. Framing Westboro.
From www.flickr.com
Last Framing Shop 1 This is the original framing shop in W… Flickr Framing Westboro Whether it's a simple picture frame for a movie poster or a gilded frame from italy for your most precious painting, we will help you find the best. We stock an assortment of art supplies in our westborough store. Founded in 2004, wall space gallery is a contemporary art gallery located in the old ottawa south neighbourhood of ottawa (canada).. Framing Westboro.
From chellteam.com
Westboro The Urban Village with a Beach Chell Team Framing Westboro We only carry the top brands in paints, canvas, markers, and artist's tools. Founded in 2004, wall space gallery is a contemporary art gallery located in the old ottawa south neighbourhood of ottawa (canada). Whether it's a simple picture frame for a movie poster or a gilded frame from italy for your most precious painting, we will help you find. Framing Westboro.
From www.westboroconnection.com
Floor Plans of Westboro Connection in Ottawa, ON Framing Westboro Germotte is canada’s photo art experts, for custom photo printing and photo enlargement, the picture will look amazing and last for a lifetime. We only carry the top brands in paints, canvas, markers, and artist's tools. Founded in 2004, wall space gallery is a contemporary art gallery located in the old ottawa south neighbourhood of ottawa (canada). Whether it's a. Framing Westboro.
From klauffgog.blob.core.windows.net
How Much For Framing A House at Terry Burch blog Framing Westboro We stock an assortment of art supplies in our westborough store. Founded in 2004, wall space gallery is a contemporary art gallery located in the old ottawa south neighbourhood of ottawa (canada). Germotte is canada’s photo art experts, for custom photo printing and photo enlargement, the picture will look amazing and last for a lifetime. Whether it's a simple picture. Framing Westboro.
From www.landandfarm.com
County Road D, Westboro, WI 54490 MLS 22205959 Land and Farm Framing Westboro We stock an assortment of art supplies in our westborough store. Founded in 2004, wall space gallery is a contemporary art gallery located in the old ottawa south neighbourhood of ottawa (canada). Germotte is canada’s photo art experts, for custom photo printing and photo enlargement, the picture will look amazing and last for a lifetime. We only carry the top. Framing Westboro.
From www.craiyon.com
Futuristic glass window with ornate framing Framing Westboro We carry a largest selection of moulding in our studio in westboro ottawa, offering over 6000 moldings which are chosen by the owner and. We stock an assortment of art supplies in our westborough store. Founded in 2004, wall space gallery is a contemporary art gallery located in the old ottawa south neighbourhood of ottawa (canada). We only carry the. Framing Westboro.
From www.archdaily.com.br
Galeria de Residência Westboro / Kariouk Associates 19 Framing Westboro We carry a largest selection of moulding in our studio in westboro ottawa, offering over 6000 moldings which are chosen by the owner and. Founded in 2004, wall space gallery is a contemporary art gallery located in the old ottawa south neighbourhood of ottawa (canada). We only carry the top brands in paints, canvas, markers, and artist's tools. Germotte is. Framing Westboro.
From www.architectsdca.com
Westboro Village Façade • Architects DCA Inc. Framing Westboro We carry a largest selection of moulding in our studio in westboro ottawa, offering over 6000 moldings which are chosen by the owner and. Founded in 2004, wall space gallery is a contemporary art gallery located in the old ottawa south neighbourhood of ottawa (canada). Germotte is canada’s photo art experts, for custom photo printing and photo enlargement, the picture. Framing Westboro.
From theframingstudiollc.com
Services The Framing Studio Framing Westboro Whether it's a simple picture frame for a movie poster or a gilded frame from italy for your most precious painting, we will help you find the best. We stock an assortment of art supplies in our westborough store. Founded in 2004, wall space gallery is a contemporary art gallery located in the old ottawa south neighbourhood of ottawa (canada).. Framing Westboro.
From www.pinterest.com
Gallery of Westboro Home / Kariouk Associates 21 Contemporary House Framing Westboro Germotte is canada’s photo art experts, for custom photo printing and photo enlargement, the picture will look amazing and last for a lifetime. We only carry the top brands in paints, canvas, markers, and artist's tools. We stock an assortment of art supplies in our westborough store. Whether it's a simple picture frame for a movie poster or a gilded. Framing Westboro.
From capitalcurrent.ca
Bringing nature into Westboro Village Capital Current Framing Westboro We stock an assortment of art supplies in our westborough store. We only carry the top brands in paints, canvas, markers, and artist's tools. Founded in 2004, wall space gallery is a contemporary art gallery located in the old ottawa south neighbourhood of ottawa (canada). Whether it's a simple picture frame for a movie poster or a gilded frame from. Framing Westboro.
From parkbench.com
Wall Space Gallery and Framing, Galleries & Museums in Westboro Parkbench Framing Westboro We carry a largest selection of moulding in our studio in westboro ottawa, offering over 6000 moldings which are chosen by the owner and. Founded in 2004, wall space gallery is a contemporary art gallery located in the old ottawa south neighbourhood of ottawa (canada). Whether it's a simple picture frame for a movie poster or a gilded frame from. Framing Westboro.
From capitalcurrent.ca
Westboro community embraces grassroots — and sometimes subversive — art Framing Westboro We stock an assortment of art supplies in our westborough store. We carry a largest selection of moulding in our studio in westboro ottawa, offering over 6000 moldings which are chosen by the owner and. Founded in 2004, wall space gallery is a contemporary art gallery located in the old ottawa south neighbourhood of ottawa (canada). We only carry the. Framing Westboro.
From www.pinterest.com
Needlework Needlework, Framed cross stitch, Canvas prints Framing Westboro We carry a largest selection of moulding in our studio in westboro ottawa, offering over 6000 moldings which are chosen by the owner and. We only carry the top brands in paints, canvas, markers, and artist's tools. Germotte is canada’s photo art experts, for custom photo printing and photo enlargement, the picture will look amazing and last for a lifetime.. Framing Westboro.
From scheerconstruction.com
Wood and Metal Framing Services Scheer Construction Framing Westboro We only carry the top brands in paints, canvas, markers, and artist's tools. We stock an assortment of art supplies in our westborough store. We carry a largest selection of moulding in our studio in westboro ottawa, offering over 6000 moldings which are chosen by the owner and. Founded in 2004, wall space gallery is a contemporary art gallery located. Framing Westboro.
From landofgames.ru
Westboro дата выхода, видео, трейлеры, скриншоты, системные Framing Westboro Germotte is canada’s photo art experts, for custom photo printing and photo enlargement, the picture will look amazing and last for a lifetime. Founded in 2004, wall space gallery is a contemporary art gallery located in the old ottawa south neighbourhood of ottawa (canada). We only carry the top brands in paints, canvas, markers, and artist's tools. We stock an. Framing Westboro.
From kitchissippi.com
Westboro and Hintonburg a hotspot for Christmas movie filming locations Framing Westboro Whether it's a simple picture frame for a movie poster or a gilded frame from italy for your most precious painting, we will help you find the best. We carry a largest selection of moulding in our studio in westboro ottawa, offering over 6000 moldings which are chosen by the owner and. We only carry the top brands in paints,. Framing Westboro.
From salvigroup.com
Westboro Salvi Group Framing Westboro We stock an assortment of art supplies in our westborough store. Whether it's a simple picture frame for a movie poster or a gilded frame from italy for your most precious painting, we will help you find the best. Germotte is canada’s photo art experts, for custom photo printing and photo enlargement, the picture will look amazing and last for. Framing Westboro.
From www.framingstory.com
PACKAGE & SERVICES FRAMING STORY Framing Westboro We only carry the top brands in paints, canvas, markers, and artist's tools. Whether it's a simple picture frame for a movie poster or a gilded frame from italy for your most precious painting, we will help you find the best. Founded in 2004, wall space gallery is a contemporary art gallery located in the old ottawa south neighbourhood of. Framing Westboro.
From fernandezframing.com
Fernandez Framing Framing Westboro We only carry the top brands in paints, canvas, markers, and artist's tools. Whether it's a simple picture frame for a movie poster or a gilded frame from italy for your most precious painting, we will help you find the best. Germotte is canada’s photo art experts, for custom photo printing and photo enlargement, the picture will look amazing and. Framing Westboro.
From ceilinghub.in
GypSerra Framing System Ceiling Hub Pvt Ltd Framing Westboro We carry a largest selection of moulding in our studio in westboro ottawa, offering over 6000 moldings which are chosen by the owner and. We only carry the top brands in paints, canvas, markers, and artist's tools. We stock an assortment of art supplies in our westborough store. Founded in 2004, wall space gallery is a contemporary art gallery located. Framing Westboro.