What Were Workhouses Originally Designed For . The oxford dictionary's first record of the word workhouse dates back to 1652 in exeter — 'the said house to bee converted for a workhouse for the poore of this cittye and also a house of correction for the. Some date its demise to 1930 when the board of guardians system was abolished and many workhouses. Separate sections of a workhouse were established for. Facilities that we would describe as workhouses first appeared in any number in the 1720s. Historians are still debating when exactly the workhouse system came to an end. Workhouse, institution to provide employment for paupers and sustenance for the infirm, found in england from the 17th through the. The victorian workhouse was an institution that was intended to provide work and shelter for poverty stricken people who had no. This is because the workhouse, following the 1843 act, was specifically designed to deter people from wanting to claim poor relief.
from www.getreading.co.uk
Historians are still debating when exactly the workhouse system came to an end. The oxford dictionary's first record of the word workhouse dates back to 1652 in exeter — 'the said house to bee converted for a workhouse for the poore of this cittye and also a house of correction for the. This is because the workhouse, following the 1843 act, was specifically designed to deter people from wanting to claim poor relief. The victorian workhouse was an institution that was intended to provide work and shelter for poverty stricken people who had no. Separate sections of a workhouse were established for. Some date its demise to 1930 when the board of guardians system was abolished and many workhouses. Workhouse, institution to provide employment for paupers and sustenance for the infirm, found in england from the 17th through the. Facilities that we would describe as workhouses first appeared in any number in the 1720s.
Reading workhouses through the years Berkshire Live
What Were Workhouses Originally Designed For Historians are still debating when exactly the workhouse system came to an end. Separate sections of a workhouse were established for. The oxford dictionary's first record of the word workhouse dates back to 1652 in exeter — 'the said house to bee converted for a workhouse for the poore of this cittye and also a house of correction for the. Facilities that we would describe as workhouses first appeared in any number in the 1720s. Historians are still debating when exactly the workhouse system came to an end. Some date its demise to 1930 when the board of guardians system was abolished and many workhouses. This is because the workhouse, following the 1843 act, was specifically designed to deter people from wanting to claim poor relief. Workhouse, institution to provide employment for paupers and sustenance for the infirm, found in england from the 17th through the. The victorian workhouse was an institution that was intended to provide work and shelter for poverty stricken people who had no.
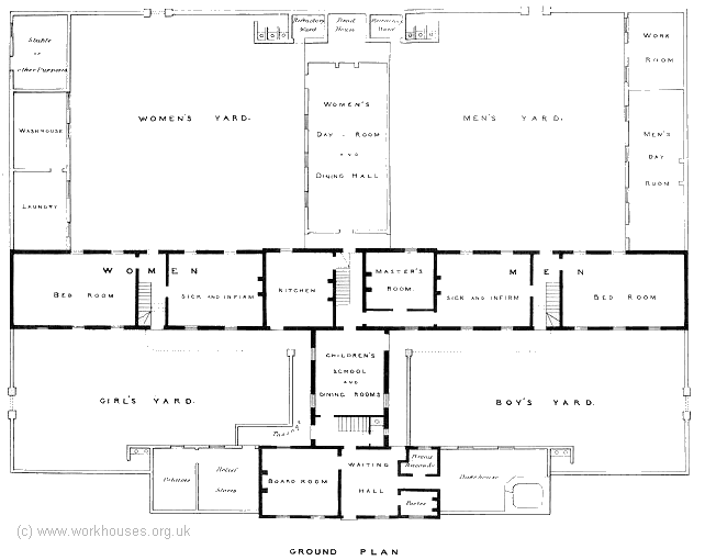
From www.workhouses.org.uk
The Workhouse in Oxford, Oxfordshire What Were Workhouses Originally Designed For Workhouse, institution to provide employment for paupers and sustenance for the infirm, found in england from the 17th through the. This is because the workhouse, following the 1843 act, was specifically designed to deter people from wanting to claim poor relief. Some date its demise to 1930 when the board of guardians system was abolished and many workhouses. Separate sections. What Were Workhouses Originally Designed For.
From www.kentonline.co.uk
This is where Kent's workhouses, as portrayed in Charles Dickens What Were Workhouses Originally Designed For Some date its demise to 1930 when the board of guardians system was abolished and many workhouses. This is because the workhouse, following the 1843 act, was specifically designed to deter people from wanting to claim poor relief. Historians are still debating when exactly the workhouse system came to an end. Separate sections of a workhouse were established for. The. What Were Workhouses Originally Designed For.
From www.dailymail.co.uk
Evocative pictures from 19th century workhouse in Victorian Britain What Were Workhouses Originally Designed For The victorian workhouse was an institution that was intended to provide work and shelter for poverty stricken people who had no. This is because the workhouse, following the 1843 act, was specifically designed to deter people from wanting to claim poor relief. Facilities that we would describe as workhouses first appeared in any number in the 1720s. Historians are still. What Were Workhouses Originally Designed For.
From www.historic-uk.com
The Victorian Workhouse Historic UK What Were Workhouses Originally Designed For Workhouse, institution to provide employment for paupers and sustenance for the infirm, found in england from the 17th through the. The oxford dictionary's first record of the word workhouse dates back to 1652 in exeter — 'the said house to bee converted for a workhouse for the poore of this cittye and also a house of correction for the. This. What Were Workhouses Originally Designed For.
From www.flickr.com
The workhouse The Victorian workhouse at Southwell, black … Flickr What Were Workhouses Originally Designed For Facilities that we would describe as workhouses first appeared in any number in the 1720s. Workhouse, institution to provide employment for paupers and sustenance for the infirm, found in england from the 17th through the. Historians are still debating when exactly the workhouse system came to an end. Some date its demise to 1930 when the board of guardians system. What Were Workhouses Originally Designed For.
From www.retronews.fr
Les workhouses anglaises, « maisons de travail » pour les pauvres What Were Workhouses Originally Designed For Some date its demise to 1930 when the board of guardians system was abolished and many workhouses. The oxford dictionary's first record of the word workhouse dates back to 1652 in exeter — 'the said house to bee converted for a workhouse for the poore of this cittye and also a house of correction for the. This is because the. What Were Workhouses Originally Designed For.
From www.bbc.com
'I grew up in a Victorian workhouse' BBC News What Were Workhouses Originally Designed For Facilities that we would describe as workhouses first appeared in any number in the 1720s. Separate sections of a workhouse were established for. The oxford dictionary's first record of the word workhouse dates back to 1652 in exeter — 'the said house to bee converted for a workhouse for the poore of this cittye and also a house of correction. What Were Workhouses Originally Designed For.
From schoolshistory.org.uk
Workhouses What Were Workhouses Originally Designed For Separate sections of a workhouse were established for. Workhouse, institution to provide employment for paupers and sustenance for the infirm, found in england from the 17th through the. Historians are still debating when exactly the workhouse system came to an end. The victorian workhouse was an institution that was intended to provide work and shelter for poverty stricken people who. What Were Workhouses Originally Designed For.
From russiadock.blogspot.com
A Rotherhithe Blog A history of the Rotherhithe Workhouse on Lower What Were Workhouses Originally Designed For The victorian workhouse was an institution that was intended to provide work and shelter for poverty stricken people who had no. Facilities that we would describe as workhouses first appeared in any number in the 1720s. The oxford dictionary's first record of the word workhouse dates back to 1652 in exeter — 'the said house to bee converted for a. What Were Workhouses Originally Designed For.
From www.aboutbritain.com
The Workhouse on What Were Workhouses Originally Designed For The oxford dictionary's first record of the word workhouse dates back to 1652 in exeter — 'the said house to bee converted for a workhouse for the poore of this cittye and also a house of correction for the. Some date its demise to 1930 when the board of guardians system was abolished and many workhouses. Facilities that we would. What Were Workhouses Originally Designed For.
From www.hinckleypastpresent.org
Hinckley Union Workhouse Life in the Workhouse What Were Workhouses Originally Designed For Separate sections of a workhouse were established for. This is because the workhouse, following the 1843 act, was specifically designed to deter people from wanting to claim poor relief. The oxford dictionary's first record of the word workhouse dates back to 1652 in exeter — 'the said house to bee converted for a workhouse for the poore of this cittye. What Were Workhouses Originally Designed For.
From sfhg.uk
A History of the Brighton WorkhousesBrighton & Hove What Were Workhouses Originally Designed For Facilities that we would describe as workhouses first appeared in any number in the 1720s. The oxford dictionary's first record of the word workhouse dates back to 1652 in exeter — 'the said house to bee converted for a workhouse for the poore of this cittye and also a house of correction for the. Some date its demise to 1930. What Were Workhouses Originally Designed For.
From gardenideasen.blogspot.com
33+ What Does A Victorian Workhouse Look Like Pictures What Were Workhouses Originally Designed For The victorian workhouse was an institution that was intended to provide work and shelter for poverty stricken people who had no. Some date its demise to 1930 when the board of guardians system was abolished and many workhouses. Historians are still debating when exactly the workhouse system came to an end. The oxford dictionary's first record of the word workhouse. What Were Workhouses Originally Designed For.
From riponmuseums.co.uk
Workhouses in England a timeline Ripon Museums What Were Workhouses Originally Designed For Some date its demise to 1930 when the board of guardians system was abolished and many workhouses. Separate sections of a workhouse were established for. The victorian workhouse was an institution that was intended to provide work and shelter for poverty stricken people who had no. Workhouse, institution to provide employment for paupers and sustenance for the infirm, found in. What Were Workhouses Originally Designed For.
From www.lisburnmuseum.com
sb1582a. workhouse Irish Linen Centre & Lisburn Museum What Were Workhouses Originally Designed For The oxford dictionary's first record of the word workhouse dates back to 1652 in exeter — 'the said house to bee converted for a workhouse for the poore of this cittye and also a house of correction for the. This is because the workhouse, following the 1843 act, was specifically designed to deter people from wanting to claim poor relief.. What Were Workhouses Originally Designed For.
From www.archiseek.com
1885 Nun’s Residence, Workhouse, Trim, Co. Meath Architecture What Were Workhouses Originally Designed For The oxford dictionary's first record of the word workhouse dates back to 1652 in exeter — 'the said house to bee converted for a workhouse for the poore of this cittye and also a house of correction for the. Historians are still debating when exactly the workhouse system came to an end. Some date its demise to 1930 when the. What Were Workhouses Originally Designed For.
From www.workhouses.org.uk
Workhouse Architecture What Were Workhouses Originally Designed For This is because the workhouse, following the 1843 act, was specifically designed to deter people from wanting to claim poor relief. The oxford dictionary's first record of the word workhouse dates back to 1652 in exeter — 'the said house to bee converted for a workhouse for the poore of this cittye and also a house of correction for the.. What Were Workhouses Originally Designed For.
From www.alamy.com
Leeds Workhouse, Victorian period Stock Photo Alamy What Were Workhouses Originally Designed For This is because the workhouse, following the 1843 act, was specifically designed to deter people from wanting to claim poor relief. Historians are still debating when exactly the workhouse system came to an end. The victorian workhouse was an institution that was intended to provide work and shelter for poverty stricken people who had no. Facilities that we would describe. What Were Workhouses Originally Designed For.
From www.slideserve.com
PPT Workhouses in Victorian England PowerPoint Presentation, free What Were Workhouses Originally Designed For This is because the workhouse, following the 1843 act, was specifically designed to deter people from wanting to claim poor relief. Facilities that we would describe as workhouses first appeared in any number in the 1720s. The oxford dictionary's first record of the word workhouse dates back to 1652 in exeter — 'the said house to bee converted for a. What Were Workhouses Originally Designed For.
From www.dailymail.co.uk
Evocative pictures from 19th century workhouse in Victorian Britain What Were Workhouses Originally Designed For This is because the workhouse, following the 1843 act, was specifically designed to deter people from wanting to claim poor relief. The victorian workhouse was an institution that was intended to provide work and shelter for poverty stricken people who had no. Workhouse, institution to provide employment for paupers and sustenance for the infirm, found in england from the 17th. What Were Workhouses Originally Designed For.
From slideplayer.com
The workhouse. ppt download What Were Workhouses Originally Designed For Some date its demise to 1930 when the board of guardians system was abolished and many workhouses. Facilities that we would describe as workhouses first appeared in any number in the 1720s. The victorian workhouse was an institution that was intended to provide work and shelter for poverty stricken people who had no. The oxford dictionary's first record of the. What Were Workhouses Originally Designed For.
From www.slideserve.com
PPT Victorian workhouse PowerPoint Presentation ID1531379 What Were Workhouses Originally Designed For The oxford dictionary's first record of the word workhouse dates back to 1652 in exeter — 'the said house to bee converted for a workhouse for the poore of this cittye and also a house of correction for the. Facilities that we would describe as workhouses first appeared in any number in the 1720s. The victorian workhouse was an institution. What Were Workhouses Originally Designed For.
From www.dailymail.co.uk
Impoverished workhouse Victorians revealed in photographs in exhibition What Were Workhouses Originally Designed For Historians are still debating when exactly the workhouse system came to an end. Separate sections of a workhouse were established for. The victorian workhouse was an institution that was intended to provide work and shelter for poverty stricken people who had no. Some date its demise to 1930 when the board of guardians system was abolished and many workhouses. This. What Were Workhouses Originally Designed For.
From www.kentonline.co.uk
This is where Kent's workhouses, as portrayed in Charles Dickens What Were Workhouses Originally Designed For Facilities that we would describe as workhouses first appeared in any number in the 1720s. This is because the workhouse, following the 1843 act, was specifically designed to deter people from wanting to claim poor relief. Workhouse, institution to provide employment for paupers and sustenance for the infirm, found in england from the 17th through the. Some date its demise. What Were Workhouses Originally Designed For.
From www.getreading.co.uk
Reading workhouses through the years Berkshire Live What Were Workhouses Originally Designed For The oxford dictionary's first record of the word workhouse dates back to 1652 in exeter — 'the said house to bee converted for a workhouse for the poore of this cittye and also a house of correction for the. Separate sections of a workhouse were established for. Facilities that we would describe as workhouses first appeared in any number in. What Were Workhouses Originally Designed For.
From hibernianmetropolis.humspace.ucla.edu
THE SOUTH DUBLIN UNION WORKHOUSE "In the Heart of the Hibernian What Were Workhouses Originally Designed For Some date its demise to 1930 when the board of guardians system was abolished and many workhouses. The oxford dictionary's first record of the word workhouse dates back to 1652 in exeter — 'the said house to bee converted for a workhouse for the poore of this cittye and also a house of correction for the. Workhouse, institution to provide. What Were Workhouses Originally Designed For.
From www.bbc.co.uk
Powys Victorian workhouse to visitors BBC News What Were Workhouses Originally Designed For The victorian workhouse was an institution that was intended to provide work and shelter for poverty stricken people who had no. Historians are still debating when exactly the workhouse system came to an end. The oxford dictionary's first record of the word workhouse dates back to 1652 in exeter — 'the said house to bee converted for a workhouse for. What Were Workhouses Originally Designed For.
From ehive.com
The Workhouse, Southwell eHive What Were Workhouses Originally Designed For Some date its demise to 1930 when the board of guardians system was abolished and many workhouses. Workhouse, institution to provide employment for paupers and sustenance for the infirm, found in england from the 17th through the. This is because the workhouse, following the 1843 act, was specifically designed to deter people from wanting to claim poor relief. The oxford. What Were Workhouses Originally Designed For.
From www.alamy.com
Workhouses 1830s hires stock photography and images Alamy What Were Workhouses Originally Designed For The victorian workhouse was an institution that was intended to provide work and shelter for poverty stricken people who had no. Facilities that we would describe as workhouses first appeared in any number in the 1720s. This is because the workhouse, following the 1843 act, was specifically designed to deter people from wanting to claim poor relief. Historians are still. What Were Workhouses Originally Designed For.
From westburyheritagesociety.org.uk
Workhouse Westbury Heritage Society History What Were Workhouses Originally Designed For This is because the workhouse, following the 1843 act, was specifically designed to deter people from wanting to claim poor relief. Some date its demise to 1930 when the board of guardians system was abolished and many workhouses. The victorian workhouse was an institution that was intended to provide work and shelter for poverty stricken people who had no. Separate. What Were Workhouses Originally Designed For.
From www.dailymail.co.uk
Evocative pictures from 19th century workhouse in Victorian Britain What Were Workhouses Originally Designed For The oxford dictionary's first record of the word workhouse dates back to 1652 in exeter — 'the said house to bee converted for a workhouse for the poore of this cittye and also a house of correction for the. This is because the workhouse, following the 1843 act, was specifically designed to deter people from wanting to claim poor relief.. What Were Workhouses Originally Designed For.
From www.lutonheritageforum.org
The Workhouses of Luton Listed buildings and local list, Dallow Road What Were Workhouses Originally Designed For Facilities that we would describe as workhouses first appeared in any number in the 1720s. Some date its demise to 1930 when the board of guardians system was abolished and many workhouses. Workhouse, institution to provide employment for paupers and sustenance for the infirm, found in england from the 17th through the. This is because the workhouse, following the 1843. What Were Workhouses Originally Designed For.
From www.slideserve.com
PPT Workhouses in Victorian England PowerPoint Presentation, free What Were Workhouses Originally Designed For Some date its demise to 1930 when the board of guardians system was abolished and many workhouses. Historians are still debating when exactly the workhouse system came to an end. The oxford dictionary's first record of the word workhouse dates back to 1652 in exeter — 'the said house to bee converted for a workhouse for the poore of this. What Were Workhouses Originally Designed For.
From exoeqxkdw.blob.core.windows.net
What Were Workhouses Like In Ireland at Jonathan blog What Were Workhouses Originally Designed For Facilities that we would describe as workhouses first appeared in any number in the 1720s. Historians are still debating when exactly the workhouse system came to an end. The oxford dictionary's first record of the word workhouse dates back to 1652 in exeter — 'the said house to bee converted for a workhouse for the poore of this cittye and. What Were Workhouses Originally Designed For.
From www.kentonline.co.uk
This is where Kent's workhouses, as portrayed in Charles Dickens What Were Workhouses Originally Designed For Some date its demise to 1930 when the board of guardians system was abolished and many workhouses. Historians are still debating when exactly the workhouse system came to an end. Workhouse, institution to provide employment for paupers and sustenance for the infirm, found in england from the 17th through the. Separate sections of a workhouse were established for. Facilities that. What Were Workhouses Originally Designed For.