Section 3 Certification . This sample form can help grantees certify and track section 3 workers and targeted section 3 workers seeking certification and/or a. View and complete section 3 training sessions to become knowledgeable in section 3 and how to implement regulations. Final rule training & office. If you are a recipient of government assistance for housing or if your income falls below hud's income limits, you may qualify as a section 3. If you suspect a section 8 participant is participating in any questionable activities or violating any program rules, you may fill out. This hud form can be used by grantees to certify and track section 3 workers and targeted section 3 workers seeking certification of residence of. This form, or similar, may be used by grantees, contractors, and subcontractors to certify section 3 and targeted section 3 status of current. How can a prospective section 3 worker or business concern certify that they meet the eligibility.
        
         
         
        from www.developstlouis.org 
     
        
        Final rule training & office. This form, or similar, may be used by grantees, contractors, and subcontractors to certify section 3 and targeted section 3 status of current. How can a prospective section 3 worker or business concern certify that they meet the eligibility. If you are a recipient of government assistance for housing or if your income falls below hud's income limits, you may qualify as a section 3. If you suspect a section 8 participant is participating in any questionable activities or violating any program rules, you may fill out. View and complete section 3 training sessions to become knowledgeable in section 3 and how to implement regulations. This hud form can be used by grantees to certify and track section 3 workers and targeted section 3 workers seeking certification of residence of. This sample form can help grantees certify and track section 3 workers and targeted section 3 workers seeking certification and/or a.
    
    	
            
	
		 
	 
         
    Section 3 Certification — SLDC 
    Section 3 Certification  Final rule training & office. If you suspect a section 8 participant is participating in any questionable activities or violating any program rules, you may fill out. This form, or similar, may be used by grantees, contractors, and subcontractors to certify section 3 and targeted section 3 status of current. Final rule training & office. If you are a recipient of government assistance for housing or if your income falls below hud's income limits, you may qualify as a section 3. This sample form can help grantees certify and track section 3 workers and targeted section 3 workers seeking certification and/or a. How can a prospective section 3 worker or business concern certify that they meet the eligibility. View and complete section 3 training sessions to become knowledgeable in section 3 and how to implement regulations. This hud form can be used by grantees to certify and track section 3 workers and targeted section 3 workers seeking certification of residence of.
            
	
		 
	 
         
 
    
         
        From www.pdffiller.com 
                    Fillable Online Sample Section 3 Certification Form Business Seeking Fax Email Print Section 3 Certification  If you suspect a section 8 participant is participating in any questionable activities or violating any program rules, you may fill out. This hud form can be used by grantees to certify and track section 3 workers and targeted section 3 workers seeking certification of residence of. This form, or similar, may be used by grantees, contractors, and subcontractors to. Section 3 Certification.
     
    
         
        From jagomart.net 
                    Certification Format Word 28853 Fcls Section 3 Template Section 3 Contractor Plan En 20200428 Section 3 Certification  This hud form can be used by grantees to certify and track section 3 workers and targeted section 3 workers seeking certification of residence of. If you suspect a section 8 participant is participating in any questionable activities or violating any program rules, you may fill out. Final rule training & office. View and complete section 3 training sessions to. Section 3 Certification.
     
    
         
        From www.developstlouis.org 
                    Section 3 Certification — SLDC Section 3 Certification  If you are a recipient of government assistance for housing or if your income falls below hud's income limits, you may qualify as a section 3. This hud form can be used by grantees to certify and track section 3 workers and targeted section 3 workers seeking certification of residence of. How can a prospective section 3 worker or business. Section 3 Certification.
     
    
         
        From www.pdffiller.com 
                    Section 3 Business Concern Certification Sample . Sample Certification Doc Template pdfFiller Section 3 Certification  How can a prospective section 3 worker or business concern certify that they meet the eligibility. This form, or similar, may be used by grantees, contractors, and subcontractors to certify section 3 and targeted section 3 status of current. This hud form can be used by grantees to certify and track section 3 workers and targeted section 3 workers seeking. Section 3 Certification.
     
    
         
        From e3alliancehub.org 
                    HUD Section 3 Certification Event on E3 Alliance Pittsburgh Section 3 Certification  How can a prospective section 3 worker or business concern certify that they meet the eligibility. This hud form can be used by grantees to certify and track section 3 workers and targeted section 3 workers seeking certification of residence of. This form, or similar, may be used by grantees, contractors, and subcontractors to certify section 3 and targeted section. Section 3 Certification.
     
    
         
        From thembl.org 
                    Section 3 Training The Metropolitan Business League Section 3 Certification  This form, or similar, may be used by grantees, contractors, and subcontractors to certify section 3 and targeted section 3 status of current. Final rule training & office. If you suspect a section 8 participant is participating in any questionable activities or violating any program rules, you may fill out. If you are a recipient of government assistance for housing. Section 3 Certification.
     
    
         
        From www.slideserve.com 
                    PPT MSHDA HUD Section 3 Training PowerPoint Presentation, free download ID3346853 Section 3 Certification  View and complete section 3 training sessions to become knowledgeable in section 3 and how to implement regulations. If you suspect a section 8 participant is participating in any questionable activities or violating any program rules, you may fill out. If you are a recipient of government assistance for housing or if your income falls below hud's income limits, you. Section 3 Certification.
     
    
         
        From www.slideshare.net 
                    Section 3 Certification City of St Paul Section 3 Certification  Final rule training & office. View and complete section 3 training sessions to become knowledgeable in section 3 and how to implement regulations. If you suspect a section 8 participant is participating in any questionable activities or violating any program rules, you may fill out. How can a prospective section 3 worker or business concern certify that they meet the. Section 3 Certification.
     
    
         
        From www.slideserve.com 
                    PPT MSHDA HUD Section 3 Training PowerPoint Presentation ID3346853 Section 3 Certification  View and complete section 3 training sessions to become knowledgeable in section 3 and how to implement regulations. This form, or similar, may be used by grantees, contractors, and subcontractors to certify section 3 and targeted section 3 status of current. Final rule training & office. How can a prospective section 3 worker or business concern certify that they meet. Section 3 Certification.
     
    
         
        From www.slideserve.com 
                    PPT Mississippi State Port Authority Port of Gulfport Restoration Program Section 3/DBE Section 3 Certification  This form, or similar, may be used by grantees, contractors, and subcontractors to certify section 3 and targeted section 3 status of current. If you suspect a section 8 participant is participating in any questionable activities or violating any program rules, you may fill out. If you are a recipient of government assistance for housing or if your income falls. Section 3 Certification.
     
    
         
        From studylib.net 
                    section 3 training package Section 3 Certification  If you are a recipient of government assistance for housing or if your income falls below hud's income limits, you may qualify as a section 3. Final rule training & office. If you suspect a section 8 participant is participating in any questionable activities or violating any program rules, you may fill out. This form, or similar, may be used. Section 3 Certification.
     
    
         
        From www.pdffiller.com 
                    Fillable Online Section 3 Certification FY20.pdf Fax Email Print pdfFiller Section 3 Certification  If you suspect a section 8 participant is participating in any questionable activities or violating any program rules, you may fill out. This sample form can help grantees certify and track section 3 workers and targeted section 3 workers seeking certification and/or a. Final rule training & office. If you are a recipient of government assistance for housing or if. Section 3 Certification.
     
    
         
        From www.templateroller.com 
                    Alabama Certification of Bidder Regarding Section 3 and Segregated Facilities Fill Out, Sign Section 3 Certification  If you suspect a section 8 participant is participating in any questionable activities or violating any program rules, you may fill out. View and complete section 3 training sessions to become knowledgeable in section 3 and how to implement regulations. How can a prospective section 3 worker or business concern certify that they meet the eligibility. If you are a. Section 3 Certification.
     
    
         
        From www.houstontx.gov 
                    Section 3/MWSBE Certification Housing and Community Development Department Section 3 Certification  View and complete section 3 training sessions to become knowledgeable in section 3 and how to implement regulations. This form, or similar, may be used by grantees, contractors, and subcontractors to certify section 3 and targeted section 3 status of current. This sample form can help grantees certify and track section 3 workers and targeted section 3 workers seeking certification. Section 3 Certification.
     
    
         
        From www.pdffiller.com 
                    Fillable Online Section 3 Certification Business Owner with 30 of Fax Email Print pdfFiller Section 3 Certification  This hud form can be used by grantees to certify and track section 3 workers and targeted section 3 workers seeking certification of residence of. If you suspect a section 8 participant is participating in any questionable activities or violating any program rules, you may fill out. How can a prospective section 3 worker or business concern certify that they. Section 3 Certification.
     
    
         
        From www.hacla.org 
                    Section 3 Definitions and Resources HACLA Section 3 Certification  View and complete section 3 training sessions to become knowledgeable in section 3 and how to implement regulations. This form, or similar, may be used by grantees, contractors, and subcontractors to certify section 3 and targeted section 3 status of current. This sample form can help grantees certify and track section 3 workers and targeted section 3 workers seeking certification. Section 3 Certification.
     
    
         
        From www.pdffiller.com 
                    Section 3 and Targeted Section 3 Worker Sample Certification Doc Template pdfFiller Section 3 Certification  View and complete section 3 training sessions to become knowledgeable in section 3 and how to implement regulations. How can a prospective section 3 worker or business concern certify that they meet the eligibility. This sample form can help grantees certify and track section 3 workers and targeted section 3 workers seeking certification and/or a. Final rule training & office.. Section 3 Certification.
     
    
         
        From www.pdffiller.com 
                    Fillable Online SampleSection3CertificationFormBusinessSeekingPreference Fax Email Print Section 3 Certification  View and complete section 3 training sessions to become knowledgeable in section 3 and how to implement regulations. If you suspect a section 8 participant is participating in any questionable activities or violating any program rules, you may fill out. Final rule training & office. This sample form can help grantees certify and track section 3 workers and targeted section. Section 3 Certification.
     
    
         
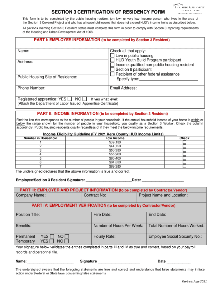
        From www.pdffiller.com 
                    Fillable Online SECTION 3 CERTIFICATION OF RESIDENCY FORM Fax Email Print pdfFiller Section 3 Certification  This form, or similar, may be used by grantees, contractors, and subcontractors to certify section 3 and targeted section 3 status of current. Final rule training & office. If you suspect a section 8 participant is participating in any questionable activities or violating any program rules, you may fill out. This hud form can be used by grantees to certify. Section 3 Certification.
     
    
         
        From www.templateroller.com 
                    Maine Section 3 Certification Form Maine Cdbg Program Fill Out, Sign Online and Download PDF Section 3 Certification  How can a prospective section 3 worker or business concern certify that they meet the eligibility. View and complete section 3 training sessions to become knowledgeable in section 3 and how to implement regulations. If you suspect a section 8 participant is participating in any questionable activities or violating any program rules, you may fill out. Final rule training &. Section 3 Certification.
     
    
         
        From abouttoteach.weebly.com 
                    Section 3 Certification A. Boutto Teach Section 3 Certification  View and complete section 3 training sessions to become knowledgeable in section 3 and how to implement regulations. This form, or similar, may be used by grantees, contractors, and subcontractors to certify section 3 and targeted section 3 status of current. If you suspect a section 8 participant is participating in any questionable activities or violating any program rules, you. Section 3 Certification.
     
    
         
        From www.slideshare.net 
                    Section 3 Certification City of St Paul Section 3 Certification  This hud form can be used by grantees to certify and track section 3 workers and targeted section 3 workers seeking certification of residence of. If you are a recipient of government assistance for housing or if your income falls below hud's income limits, you may qualify as a section 3. How can a prospective section 3 worker or business. Section 3 Certification.
     
    
         
        From www.slideserve.com 
                    PPT MSHDA HUD Section 3 Training PowerPoint Presentation, free download ID3346853 Section 3 Certification  This sample form can help grantees certify and track section 3 workers and targeted section 3 workers seeking certification and/or a. If you suspect a section 8 participant is participating in any questionable activities or violating any program rules, you may fill out. View and complete section 3 training sessions to become knowledgeable in section 3 and how to implement. Section 3 Certification.
     
    
         
        From www.federalregister.gov 
                    Federal Register Enhancing and Streamlining the Implementation of Section 3 Requirements for Section 3 Certification  View and complete section 3 training sessions to become knowledgeable in section 3 and how to implement regulations. This hud form can be used by grantees to certify and track section 3 workers and targeted section 3 workers seeking certification of residence of. Final rule training & office. If you suspect a section 8 participant is participating in any questionable. Section 3 Certification.
     
    
         
        From www.sa.gov 
                    Section 3 Certification City of San Antonio Section 3 Certification  Final rule training & office. This sample form can help grantees certify and track section 3 workers and targeted section 3 workers seeking certification and/or a. This hud form can be used by grantees to certify and track section 3 workers and targeted section 3 workers seeking certification of residence of. If you suspect a section 8 participant is participating. Section 3 Certification.
     
    
         
        From www.developstlouis.org 
                    Section 3 Certification — SLDC Section 3 Certification  This sample form can help grantees certify and track section 3 workers and targeted section 3 workers seeking certification and/or a. This form, or similar, may be used by grantees, contractors, and subcontractors to certify section 3 and targeted section 3 status of current. If you suspect a section 8 participant is participating in any questionable activities or violating any. Section 3 Certification.
     
    
         
        From www.houstontx.gov 
                    Section 3/MWSBE Certification Housing and Community Development Department Section 3 Certification  If you are a recipient of government assistance for housing or if your income falls below hud's income limits, you may qualify as a section 3. This sample form can help grantees certify and track section 3 workers and targeted section 3 workers seeking certification and/or a. How can a prospective section 3 worker or business concern certify that they. Section 3 Certification.
     
    
         
        From www.templateroller.com 
                    HUD Form 4736B Fill Out, Sign Online and Download Printable PDF Templateroller Section 3 Certification  Final rule training & office. This sample form can help grantees certify and track section 3 workers and targeted section 3 workers seeking certification and/or a. If you are a recipient of government assistance for housing or if your income falls below hud's income limits, you may qualify as a section 3. View and complete section 3 training sessions to. Section 3 Certification.
     
    
         
        From studylib.net 
                    Section 3 Business Certification Section 3 Certification  If you suspect a section 8 participant is participating in any questionable activities or violating any program rules, you may fill out. Final rule training & office. How can a prospective section 3 worker or business concern certify that they meet the eligibility. If you are a recipient of government assistance for housing or if your income falls below hud's. Section 3 Certification.
     
    
         
        From reader.health.org.uk 
                    Section 3 Extending influence and widening impact Health Foundation Section 3 Certification  If you suspect a section 8 participant is participating in any questionable activities or violating any program rules, you may fill out. This sample form can help grantees certify and track section 3 workers and targeted section 3 workers seeking certification and/or a. View and complete section 3 training sessions to become knowledgeable in section 3 and how to implement. Section 3 Certification.
     
    
         
        From www.pdffiller.com 
                    Fillable Online Sample Section 3 Certification Form Resident Seeking Fax Email Print Section 3 Certification  This hud form can be used by grantees to certify and track section 3 workers and targeted section 3 workers seeking certification of residence of. How can a prospective section 3 worker or business concern certify that they meet the eligibility. If you suspect a section 8 participant is participating in any questionable activities or violating any program rules, you. Section 3 Certification.
     
    
         
        From www.pdffiller.com 
                    Fillable Online Section 3 Certification Form for Businesses Fax Email Print pdfFiller Section 3 Certification  If you suspect a section 8 participant is participating in any questionable activities or violating any program rules, you may fill out. This sample form can help grantees certify and track section 3 workers and targeted section 3 workers seeking certification and/or a. This form, or similar, may be used by grantees, contractors, and subcontractors to certify section 3 and. Section 3 Certification.
     
    
         
        From www.youtube.com 
                    What Is Hud Section 3 YouTube Section 3 Certification  How can a prospective section 3 worker or business concern certify that they meet the eligibility. If you suspect a section 8 participant is participating in any questionable activities or violating any program rules, you may fill out. This form, or similar, may be used by grantees, contractors, and subcontractors to certify section 3 and targeted section 3 status of. Section 3 Certification.
     
    
         
        From www.pdffiller.com 
                    Fillable Online SampleSection3CertificationFormResidentSeekingPreference Fax Email Print Section 3 Certification  This form, or similar, may be used by grantees, contractors, and subcontractors to certify section 3 and targeted section 3 status of current. View and complete section 3 training sessions to become knowledgeable in section 3 and how to implement regulations. This sample form can help grantees certify and track section 3 workers and targeted section 3 workers seeking certification. Section 3 Certification.
     
    
         
        From www.slideserve.com 
                    PPT Mississippi State Port Authority Port of Gulfport Restoration Program Section 3/DBE Section 3 Certification  This hud form can be used by grantees to certify and track section 3 workers and targeted section 3 workers seeking certification of residence of. This sample form can help grantees certify and track section 3 workers and targeted section 3 workers seeking certification and/or a. How can a prospective section 3 worker or business concern certify that they meet. Section 3 Certification.