Lightning Protection System Building Requirements . lightning protection systems (lps) for commercial and industrial facilities are not typically a requirement of national building codes. all lightning protection systems on a building or structure shall be interconnected in accordance with nfpa 780 or ul 96a, as applicable. lightning protection systems provide a safe path for electricity to travel to the ground without causing damage to the. In doing so, it provides facility owners the basis of. a new section has been added to the 2024 international building code (ibc), section 2703 lightning protection systems (lps), which specifies safety. nfpa 780 provides lightning protection standards, regulations and installation requirements. Lightning protection systems for structures are typically not a requirement of national.
from shellysavonlea.net
lightning protection systems provide a safe path for electricity to travel to the ground without causing damage to the. nfpa 780 provides lightning protection standards, regulations and installation requirements. lightning protection systems (lps) for commercial and industrial facilities are not typically a requirement of national building codes. Lightning protection systems for structures are typically not a requirement of national. a new section has been added to the 2024 international building code (ibc), section 2703 lightning protection systems (lps), which specifies safety. all lightning protection systems on a building or structure shall be interconnected in accordance with nfpa 780 or ul 96a, as applicable. In doing so, it provides facility owners the basis of.
Lightning Protection System Design For High Rise Building Shelly Lighting
Lightning Protection System Building Requirements all lightning protection systems on a building or structure shall be interconnected in accordance with nfpa 780 or ul 96a, as applicable. all lightning protection systems on a building or structure shall be interconnected in accordance with nfpa 780 or ul 96a, as applicable. nfpa 780 provides lightning protection standards, regulations and installation requirements. lightning protection systems (lps) for commercial and industrial facilities are not typically a requirement of national building codes. In doing so, it provides facility owners the basis of. a new section has been added to the 2024 international building code (ibc), section 2703 lightning protection systems (lps), which specifies safety. lightning protection systems provide a safe path for electricity to travel to the ground without causing damage to the. Lightning protection systems for structures are typically not a requirement of national.
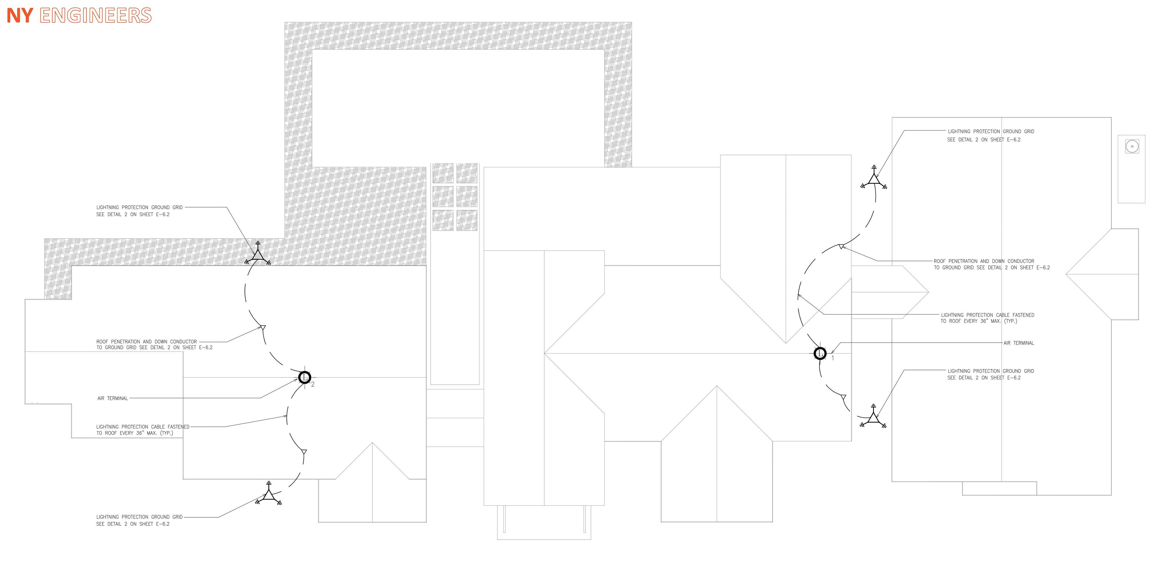
From www.ny-engineers.com
Lightning Protection Electrical Engineering Services Lightning Protection System Building Requirements lightning protection systems provide a safe path for electricity to travel to the ground without causing damage to the. all lightning protection systems on a building or structure shall be interconnected in accordance with nfpa 780 or ul 96a, as applicable. nfpa 780 provides lightning protection standards, regulations and installation requirements. lightning protection systems (lps) for. Lightning Protection System Building Requirements.
From electrical-engineering-portal.com
Lightning Protection System Germany Regulations Lightning Protection System Building Requirements Lightning protection systems for structures are typically not a requirement of national. lightning protection systems provide a safe path for electricity to travel to the ground without causing damage to the. all lightning protection systems on a building or structure shall be interconnected in accordance with nfpa 780 or ul 96a, as applicable. a new section has. Lightning Protection System Building Requirements.
From www.lectrotech.co.za
Basic Lightning Lightning Protection Lightning Protection System Building Requirements In doing so, it provides facility owners the basis of. lightning protection systems (lps) for commercial and industrial facilities are not typically a requirement of national building codes. lightning protection systems provide a safe path for electricity to travel to the ground without causing damage to the. Lightning protection systems for structures are typically not a requirement of. Lightning Protection System Building Requirements.
From electrical-engineering-portal.com
Lightning protection guide EEP Lightning Protection System Building Requirements all lightning protection systems on a building or structure shall be interconnected in accordance with nfpa 780 or ul 96a, as applicable. In doing so, it provides facility owners the basis of. a new section has been added to the 2024 international building code (ibc), section 2703 lightning protection systems (lps), which specifies safety. lightning protection systems. Lightning Protection System Building Requirements.
From mavink.com
Faraday Cage Lightning Protection System Lightning Protection System Building Requirements lightning protection systems (lps) for commercial and industrial facilities are not typically a requirement of national building codes. Lightning protection systems for structures are typically not a requirement of national. a new section has been added to the 2024 international building code (ibc), section 2703 lightning protection systems (lps), which specifies safety. lightning protection systems provide a. Lightning Protection System Building Requirements.
From animalia-life.club
Lightning Arrester Installation Lightning Protection System Building Requirements all lightning protection systems on a building or structure shall be interconnected in accordance with nfpa 780 or ul 96a, as applicable. In doing so, it provides facility owners the basis of. lightning protection systems provide a safe path for electricity to travel to the ground without causing damage to the. lightning protection systems (lps) for commercial. Lightning Protection System Building Requirements.
From shellysavonlea.net
Lightning Protection System And Earthing Shelly Lighting Lightning Protection System Building Requirements a new section has been added to the 2024 international building code (ibc), section 2703 lightning protection systems (lps), which specifies safety. Lightning protection systems for structures are typically not a requirement of national. lightning protection systems provide a safe path for electricity to travel to the ground without causing damage to the. all lightning protection systems. Lightning Protection System Building Requirements.
From www.youtube.com
External Lightning Protection System Lecture 1 Basics of Air Lightning Protection System Building Requirements In doing so, it provides facility owners the basis of. all lightning protection systems on a building or structure shall be interconnected in accordance with nfpa 780 or ul 96a, as applicable. lightning protection systems (lps) for commercial and industrial facilities are not typically a requirement of national building codes. nfpa 780 provides lightning protection standards, regulations. Lightning Protection System Building Requirements.
From www.electrical-knowhow.com
Course Lightning2 Lightning Protection System Design and Calculations Lightning Protection System Building Requirements all lightning protection systems on a building or structure shall be interconnected in accordance with nfpa 780 or ul 96a, as applicable. nfpa 780 provides lightning protection standards, regulations and installation requirements. Lightning protection systems for structures are typically not a requirement of national. In doing so, it provides facility owners the basis of. a new section. Lightning Protection System Building Requirements.
From www.electrical-knowhow.com
Conventional Lightning Protection System Components Part One Lightning Protection System Building Requirements lightning protection systems (lps) for commercial and industrial facilities are not typically a requirement of national building codes. a new section has been added to the 2024 international building code (ibc), section 2703 lightning protection systems (lps), which specifies safety. nfpa 780 provides lightning protection standards, regulations and installation requirements. all lightning protection systems on a. Lightning Protection System Building Requirements.
From westernreservelightningrod.com
Residential Lightning Protection Western Reserve Lightning Rod Lightning Protection System Building Requirements nfpa 780 provides lightning protection standards, regulations and installation requirements. all lightning protection systems on a building or structure shall be interconnected in accordance with nfpa 780 or ul 96a, as applicable. Lightning protection systems for structures are typically not a requirement of national. In doing so, it provides facility owners the basis of. lightning protection systems. Lightning Protection System Building Requirements.
From www.astra-rc.com
Lightning Lightning Protection System Building Requirements In doing so, it provides facility owners the basis of. a new section has been added to the 2024 international building code (ibc), section 2703 lightning protection systems (lps), which specifies safety. nfpa 780 provides lightning protection standards, regulations and installation requirements. lightning protection systems (lps) for commercial and industrial facilities are not typically a requirement of. Lightning Protection System Building Requirements.
From ideaengineeringsolution.blogspot.com
Lightning Protection System Full Details Idea Engineering Solution Lightning Protection System Building Requirements lightning protection systems provide a safe path for electricity to travel to the ground without causing damage to the. all lightning protection systems on a building or structure shall be interconnected in accordance with nfpa 780 or ul 96a, as applicable. Lightning protection systems for structures are typically not a requirement of national. nfpa 780 provides lightning. Lightning Protection System Building Requirements.
From www.buildingenclosureonline.com
Lightning Protection Systems Coordinating with the Building Enclosure Lightning Protection System Building Requirements a new section has been added to the 2024 international building code (ibc), section 2703 lightning protection systems (lps), which specifies safety. nfpa 780 provides lightning protection standards, regulations and installation requirements. Lightning protection systems for structures are typically not a requirement of national. all lightning protection systems on a building or structure shall be interconnected in. Lightning Protection System Building Requirements.
From ecle.biz
Residential Lightning Protection Systems Understanding Lightning Lightning Protection System Building Requirements all lightning protection systems on a building or structure shall be interconnected in accordance with nfpa 780 or ul 96a, as applicable. lightning protection systems (lps) for commercial and industrial facilities are not typically a requirement of national building codes. lightning protection systems provide a safe path for electricity to travel to the ground without causing damage. Lightning Protection System Building Requirements.
From dxowzvwnr.blob.core.windows.net
Home Lightning Protection System Uk at Harold Robinson blog Lightning Protection System Building Requirements Lightning protection systems for structures are typically not a requirement of national. all lightning protection systems on a building or structure shall be interconnected in accordance with nfpa 780 or ul 96a, as applicable. a new section has been added to the 2024 international building code (ibc), section 2703 lightning protection systems (lps), which specifies safety. In doing. Lightning Protection System Building Requirements.
From shellysavonlea.net
Lightning Protection System Design For High Rise Building Shelly Lighting Lightning Protection System Building Requirements nfpa 780 provides lightning protection standards, regulations and installation requirements. a new section has been added to the 2024 international building code (ibc), section 2703 lightning protection systems (lps), which specifies safety. lightning protection systems (lps) for commercial and industrial facilities are not typically a requirement of national building codes. all lightning protection systems on a. Lightning Protection System Building Requirements.
From www.lectrotech.co.za
Basic Lightning Lightning Protection Lightning Protection System Building Requirements all lightning protection systems on a building or structure shall be interconnected in accordance with nfpa 780 or ul 96a, as applicable. Lightning protection systems for structures are typically not a requirement of national. lightning protection systems (lps) for commercial and industrial facilities are not typically a requirement of national building codes. In doing so, it provides facility. Lightning Protection System Building Requirements.
From windmyte.weebly.com
Lightning protection system types windmyte Lightning Protection System Building Requirements nfpa 780 provides lightning protection standards, regulations and installation requirements. In doing so, it provides facility owners the basis of. all lightning protection systems on a building or structure shall be interconnected in accordance with nfpa 780 or ul 96a, as applicable. lightning protection systems provide a safe path for electricity to travel to the ground without. Lightning Protection System Building Requirements.
From shellysavonlea.net
Lightning Protection System Design Guide Shelly Lighting Lightning Protection System Building Requirements lightning protection systems (lps) for commercial and industrial facilities are not typically a requirement of national building codes. lightning protection systems provide a safe path for electricity to travel to the ground without causing damage to the. all lightning protection systems on a building or structure shall be interconnected in accordance with nfpa 780 or ul 96a,. Lightning Protection System Building Requirements.
From kingsmillindustries.com
The Design of an External Lightning Protection System Kingsmill Lightning Protection System Building Requirements a new section has been added to the 2024 international building code (ibc), section 2703 lightning protection systems (lps), which specifies safety. Lightning protection systems for structures are typically not a requirement of national. nfpa 780 provides lightning protection standards, regulations and installation requirements. all lightning protection systems on a building or structure shall be interconnected in. Lightning Protection System Building Requirements.
From engineering.electrical-equipment.org
Installing lightning protection system for your facility in 3 Steps Lightning Protection System Building Requirements nfpa 780 provides lightning protection standards, regulations and installation requirements. lightning protection systems (lps) for commercial and industrial facilities are not typically a requirement of national building codes. Lightning protection systems for structures are typically not a requirement of national. In doing so, it provides facility owners the basis of. a new section has been added to. Lightning Protection System Building Requirements.
From shellysavonlea.net
Lightning Protection System Design Software Shelly Lighting Lightning Protection System Building Requirements all lightning protection systems on a building or structure shall be interconnected in accordance with nfpa 780 or ul 96a, as applicable. Lightning protection systems for structures are typically not a requirement of national. In doing so, it provides facility owners the basis of. a new section has been added to the 2024 international building code (ibc), section. Lightning Protection System Building Requirements.
From www.takolightningsystem.com
Installing Lightning Protection System by TAKO since 1979 Lightning Protection System Building Requirements all lightning protection systems on a building or structure shall be interconnected in accordance with nfpa 780 or ul 96a, as applicable. In doing so, it provides facility owners the basis of. a new section has been added to the 2024 international building code (ibc), section 2703 lightning protection systems (lps), which specifies safety. Lightning protection systems for. Lightning Protection System Building Requirements.
From ielasopa640.weebly.com
Lightning protection for high rise buildings ielasopa Lightning Protection System Building Requirements a new section has been added to the 2024 international building code (ibc), section 2703 lightning protection systems (lps), which specifies safety. nfpa 780 provides lightning protection standards, regulations and installation requirements. lightning protection systems (lps) for commercial and industrial facilities are not typically a requirement of national building codes. Lightning protection systems for structures are typically. Lightning Protection System Building Requirements.
From www.northeastlightning.com
Lightning Protection System Diagram Northeast Lightning Protection Lightning Protection System Building Requirements lightning protection systems provide a safe path for electricity to travel to the ground without causing damage to the. lightning protection systems (lps) for commercial and industrial facilities are not typically a requirement of national building codes. all lightning protection systems on a building or structure shall be interconnected in accordance with nfpa 780 or ul 96a,. Lightning Protection System Building Requirements.
From www.surgedevices.co.uk
Lightning Protection in Domestic installations... Surge Devices Lightning Protection System Building Requirements all lightning protection systems on a building or structure shall be interconnected in accordance with nfpa 780 or ul 96a, as applicable. lightning protection systems provide a safe path for electricity to travel to the ground without causing damage to the. nfpa 780 provides lightning protection standards, regulations and installation requirements. In doing so, it provides facility. Lightning Protection System Building Requirements.
From shellysavonlea.net
Early Streamer Emission Lightning Protection System Shelly Lighting Lightning Protection System Building Requirements a new section has been added to the 2024 international building code (ibc), section 2703 lightning protection systems (lps), which specifies safety. all lightning protection systems on a building or structure shall be interconnected in accordance with nfpa 780 or ul 96a, as applicable. Lightning protection systems for structures are typically not a requirement of national. lightning. Lightning Protection System Building Requirements.
From www.boltlp.com
Lightning Protection Installation Bolt Lightning Protection Ft Worth Lightning Protection System Building Requirements all lightning protection systems on a building or structure shall be interconnected in accordance with nfpa 780 or ul 96a, as applicable. In doing so, it provides facility owners the basis of. a new section has been added to the 2024 international building code (ibc), section 2703 lightning protection systems (lps), which specifies safety. Lightning protection systems for. Lightning Protection System Building Requirements.
From shellysavonlea.net
Lightning Protection System Design Guide Shelly Lighting Lightning Protection System Building Requirements nfpa 780 provides lightning protection standards, regulations and installation requirements. all lightning protection systems on a building or structure shall be interconnected in accordance with nfpa 780 or ul 96a, as applicable. Lightning protection systems for structures are typically not a requirement of national. lightning protection systems (lps) for commercial and industrial facilities are not typically a. Lightning Protection System Building Requirements.
From lightning.org
Lightning Protection Overview Lightning Protection Institute Lightning Protection System Building Requirements a new section has been added to the 2024 international building code (ibc), section 2703 lightning protection systems (lps), which specifies safety. lightning protection systems (lps) for commercial and industrial facilities are not typically a requirement of national building codes. lightning protection systems provide a safe path for electricity to travel to the ground without causing damage. Lightning Protection System Building Requirements.
From shellysavonlea.net
Lightning Protection System Design Guidelines Shelly Lighting Lightning Protection System Building Requirements In doing so, it provides facility owners the basis of. nfpa 780 provides lightning protection standards, regulations and installation requirements. lightning protection systems (lps) for commercial and industrial facilities are not typically a requirement of national building codes. lightning protection systems provide a safe path for electricity to travel to the ground without causing damage to the.. Lightning Protection System Building Requirements.
From ecle.biz
Designing Lightning Protection Systems Principles Of Lightning Lightning Protection System Building Requirements all lightning protection systems on a building or structure shall be interconnected in accordance with nfpa 780 or ul 96a, as applicable. Lightning protection systems for structures are typically not a requirement of national. lightning protection systems provide a safe path for electricity to travel to the ground without causing damage to the. a new section has. Lightning Protection System Building Requirements.
From www.lsp-international.com
BS EN IEC 62305 Lightning protection standard Lightning Protection System Building Requirements nfpa 780 provides lightning protection standards, regulations and installation requirements. lightning protection systems (lps) for commercial and industrial facilities are not typically a requirement of national building codes. Lightning protection systems for structures are typically not a requirement of national. lightning protection systems provide a safe path for electricity to travel to the ground without causing damage. Lightning Protection System Building Requirements.
From shellysavonlea.net
Lightning Protection System Ground Resistance Shelly Lighting Lightning Protection System Building Requirements lightning protection systems (lps) for commercial and industrial facilities are not typically a requirement of national building codes. nfpa 780 provides lightning protection standards, regulations and installation requirements. a new section has been added to the 2024 international building code (ibc), section 2703 lightning protection systems (lps), which specifies safety. all lightning protection systems on a. Lightning Protection System Building Requirements.