Standard Office Trailer Size . Here are some of the factors that will help. The right sized office trailer is the trailer that adequately meets your needs and can comfortably fit your staff and equipment in the space. You’ll need enough space for the trailer of your choice and for the truck that. Trailers come in sizes from 36 feet long to 70 feet long. Often measure around 10’ x 44’, suitable for several people with room for basic office furniture. 10’ x 40’ and 10’ x 50’ trailers: However, a mobile office can be as small or as large as you need it to be. They often include separate office. Can be as large as 12’ x 60’, providing ample space for larger teams or. In general, plan to allow 100 to 150 square feet per person. The standard size for office trailers typically ranges between 8′ x 24′ and 12′ x 60′ with variations in sq ft, customizability, and comfort. The size you choose for your construction office trailer should depend on the number of people and assets you will have in a space.
from vestamodular.com
Here are some of the factors that will help. In general, plan to allow 100 to 150 square feet per person. Can be as large as 12’ x 60’, providing ample space for larger teams or. The right sized office trailer is the trailer that adequately meets your needs and can comfortably fit your staff and equipment in the space. The standard size for office trailers typically ranges between 8′ x 24′ and 12′ x 60′ with variations in sq ft, customizability, and comfort. Often measure around 10’ x 44’, suitable for several people with room for basic office furniture. However, a mobile office can be as small or as large as you need it to be. You’ll need enough space for the trailer of your choice and for the truck that. They often include separate office. Trailers come in sizes from 36 feet long to 70 feet long.
Office Trailer Rentals A Complete Guide VESTA Modular
Standard Office Trailer Size Often measure around 10’ x 44’, suitable for several people with room for basic office furniture. They often include separate office. Trailers come in sizes from 36 feet long to 70 feet long. However, a mobile office can be as small or as large as you need it to be. You’ll need enough space for the trailer of your choice and for the truck that. The standard size for office trailers typically ranges between 8′ x 24′ and 12′ x 60′ with variations in sq ft, customizability, and comfort. In general, plan to allow 100 to 150 square feet per person. Often measure around 10’ x 44’, suitable for several people with room for basic office furniture. Can be as large as 12’ x 60’, providing ample space for larger teams or. The size you choose for your construction office trailer should depend on the number of people and assets you will have in a space. The right sized office trailer is the trailer that adequately meets your needs and can comfortably fit your staff and equipment in the space. Here are some of the factors that will help. 10’ x 40’ and 10’ x 50’ trailers:
From thegannagency.com
Semi Truck and Trailer Dimensions The Gann Agency Standard Office Trailer Size However, a mobile office can be as small or as large as you need it to be. Can be as large as 12’ x 60’, providing ample space for larger teams or. The right sized office trailer is the trailer that adequately meets your needs and can comfortably fit your staff and equipment in the space. They often include separate. Standard Office Trailer Size.
From apexsiterentals.com
Construction Trailer Sizes A Guide to Office + Construction Trailers Sizes Standard Office Trailer Size 10’ x 40’ and 10’ x 50’ trailers: Can be as large as 12’ x 60’, providing ample space for larger teams or. The size you choose for your construction office trailer should depend on the number of people and assets you will have in a space. Here are some of the factors that will help. Often measure around 10’. Standard Office Trailer Size.
From streamlogistics.com
Trailer Dimensions Stream Logistics Standard Office Trailer Size They often include separate office. The right sized office trailer is the trailer that adequately meets your needs and can comfortably fit your staff and equipment in the space. Trailers come in sizes from 36 feet long to 70 feet long. In general, plan to allow 100 to 150 square feet per person. Here are some of the factors that. Standard Office Trailer Size.
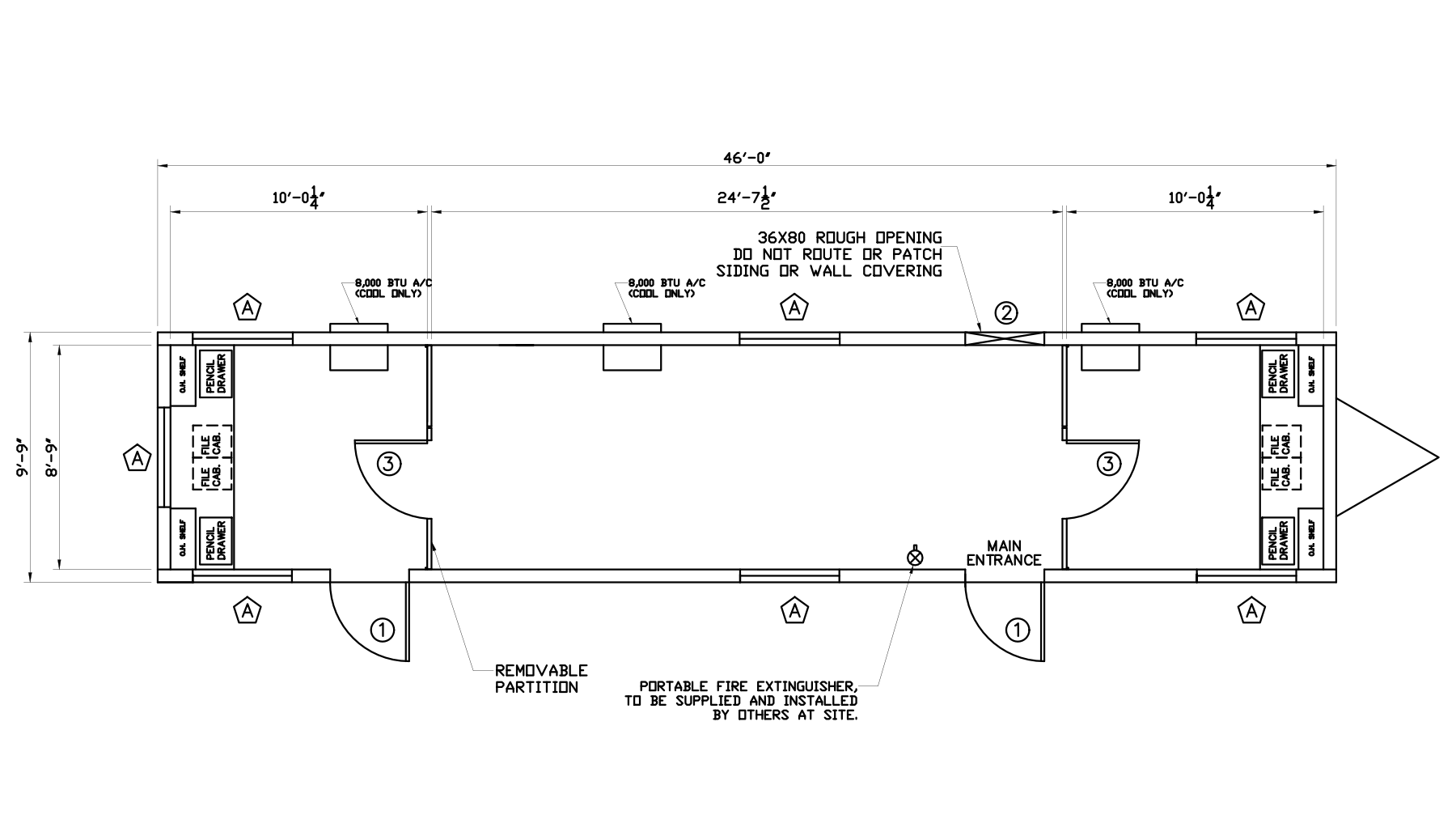
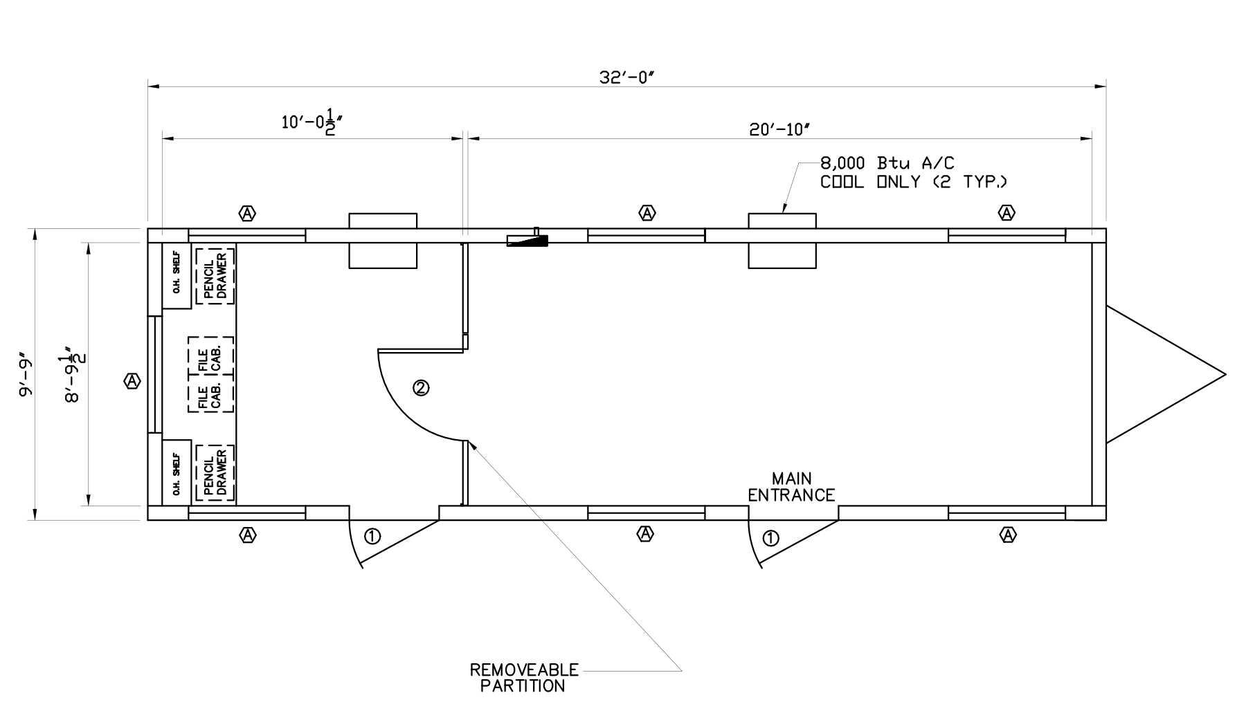
From www.anchormodular.com
Office Trailer Floor Plans Standard Office Trailer Size The right sized office trailer is the trailer that adequately meets your needs and can comfortably fit your staff and equipment in the space. The standard size for office trailers typically ranges between 8′ x 24′ and 12′ x 60′ with variations in sq ft, customizability, and comfort. Can be as large as 12’ x 60’, providing ample space for. Standard Office Trailer Size.
From design.udlvirtual.edu.pe
Standard Trailer Dimensions Design Talk Standard Office Trailer Size Often measure around 10’ x 44’, suitable for several people with room for basic office furniture. 10’ x 40’ and 10’ x 50’ trailers: The right sized office trailer is the trailer that adequately meets your needs and can comfortably fit your staff and equipment in the space. However, a mobile office can be as small or as large as. Standard Office Trailer Size.
From christiesrv.com
Ontario's 1 New & Used Mobile Office Trailers for Sale or Lease Standard Office Trailer Size In general, plan to allow 100 to 150 square feet per person. Can be as large as 12’ x 60’, providing ample space for larger teams or. Here are some of the factors that will help. The standard size for office trailers typically ranges between 8′ x 24′ and 12′ x 60′ with variations in sq ft, customizability, and comfort.. Standard Office Trailer Size.
From www.anchormodular.com
Office Trailer Floor Plans Standard Office Trailer Size The standard size for office trailers typically ranges between 8′ x 24′ and 12′ x 60′ with variations in sq ft, customizability, and comfort. However, a mobile office can be as small or as large as you need it to be. They often include separate office. In general, plan to allow 100 to 150 square feet per person. You’ll need. Standard Office Trailer Size.
From www.triumphmodular.com
Elevate Your Workspace 10x36 Office Trailers for Rent/Sale Triumph Standard Office Trailer Size They often include separate office. In general, plan to allow 100 to 150 square feet per person. Can be as large as 12’ x 60’, providing ample space for larger teams or. Trailers come in sizes from 36 feet long to 70 feet long. The standard size for office trailers typically ranges between 8′ x 24′ and 12′ x 60′. Standard Office Trailer Size.
From floorplans.click
Office Trailer Floor Plans floorplans.click Standard Office Trailer Size In general, plan to allow 100 to 150 square feet per person. Can be as large as 12’ x 60’, providing ample space for larger teams or. 10’ x 40’ and 10’ x 50’ trailers: The size you choose for your construction office trailer should depend on the number of people and assets you will have in a space. Trailers. Standard Office Trailer Size.
From www.dearjohnrental.com
O10x4404 Standard Office Trailer Size Often measure around 10’ x 44’, suitable for several people with room for basic office furniture. Trailers come in sizes from 36 feet long to 70 feet long. They often include separate office. However, a mobile office can be as small or as large as you need it to be. Can be as large as 12’ x 60’, providing ample. Standard Office Trailer Size.
From duenastrailers.com
Office Trailers Dueñas Trailers Standard Office Trailer Size You’ll need enough space for the trailer of your choice and for the truck that. They often include separate office. 10’ x 40’ and 10’ x 50’ trailers: Here are some of the factors that will help. The right sized office trailer is the trailer that adequately meets your needs and can comfortably fit your staff and equipment in the. Standard Office Trailer Size.
From christiesrv.com
Ontario's 1 New & Used Mobile Office Trailers for Sale or Lease Standard Office Trailer Size Can be as large as 12’ x 60’, providing ample space for larger teams or. Often measure around 10’ x 44’, suitable for several people with room for basic office furniture. The right sized office trailer is the trailer that adequately meets your needs and can comfortably fit your staff and equipment in the space. They often include separate office.. Standard Office Trailer Size.
From daccotrailers.com
Office Trailers Floor Plans DACCO Trailers Standard Office Trailer Size Trailers come in sizes from 36 feet long to 70 feet long. The standard size for office trailers typically ranges between 8′ x 24′ and 12′ x 60′ with variations in sq ft, customizability, and comfort. Can be as large as 12’ x 60’, providing ample space for larger teams or. However, a mobile office can be as small or. Standard Office Trailer Size.
From www.costowl.com
Mobile Office Trailer Rental Rates How Much Does Mobile Office Trailer Standard Office Trailer Size The size you choose for your construction office trailer should depend on the number of people and assets you will have in a space. You’ll need enough space for the trailer of your choice and for the truck that. Here are some of the factors that will help. However, a mobile office can be as small or as large as. Standard Office Trailer Size.
From streamlogistics.com
Trailer Dimensions Stream Logistics Construction Logistics Standard Office Trailer Size The size you choose for your construction office trailer should depend on the number of people and assets you will have in a space. In general, plan to allow 100 to 150 square feet per person. You’ll need enough space for the trailer of your choice and for the truck that. However, a mobile office can be as small or. Standard Office Trailer Size.
From www.wilmotmodular.com
Expanding Capabilities with Mobile Office Trailers Wilmot Standard Office Trailer Size Often measure around 10’ x 44’, suitable for several people with room for basic office furniture. Can be as large as 12’ x 60’, providing ample space for larger teams or. However, a mobile office can be as small or as large as you need it to be. In general, plan to allow 100 to 150 square feet per person.. Standard Office Trailer Size.
From joiivreim.blob.core.windows.net
Drop Frame Trailer Dimensions at Nora Nunez blog Standard Office Trailer Size Here are some of the factors that will help. Trailers come in sizes from 36 feet long to 70 feet long. Often measure around 10’ x 44’, suitable for several people with room for basic office furniture. You’ll need enough space for the trailer of your choice and for the truck that. However, a mobile office can be as small. Standard Office Trailer Size.
From standardbuildings.com
Standard Buildings OFFICE TRAILERS Standard Office Trailer Size You’ll need enough space for the trailer of your choice and for the truck that. 10’ x 40’ and 10’ x 50’ trailers: In general, plan to allow 100 to 150 square feet per person. Here are some of the factors that will help. They often include separate office. The standard size for office trailers typically ranges between 8′ x. Standard Office Trailer Size.
From streamlogistics.com
Trailer Dimensions Stream Logistics Standard Office Trailer Size However, a mobile office can be as small or as large as you need it to be. Trailers come in sizes from 36 feet long to 70 feet long. In general, plan to allow 100 to 150 square feet per person. The right sized office trailer is the trailer that adequately meets your needs and can comfortably fit your staff. Standard Office Trailer Size.
From www.triumphmodular.com
Elevate Your Workspace 10x36 Office Trailers for Rent/Sale Triumph Standard Office Trailer Size 10’ x 40’ and 10’ x 50’ trailers: Trailers come in sizes from 36 feet long to 70 feet long. Can be as large as 12’ x 60’, providing ample space for larger teams or. The standard size for office trailers typically ranges between 8′ x 24′ and 12′ x 60′ with variations in sq ft, customizability, and comfort. The. Standard Office Trailer Size.
From trucktrailerbinnagu.blogspot.com
Truck Trailer Truck Trailer Dimensions Standard Office Trailer Size Can be as large as 12’ x 60’, providing ample space for larger teams or. 10’ x 40’ and 10’ x 50’ trailers: The standard size for office trailers typically ranges between 8′ x 24′ and 12′ x 60′ with variations in sq ft, customizability, and comfort. Here are some of the factors that will help. However, a mobile office. Standard Office Trailer Size.
From mobileasemodular.com
Mobile Office Trailers Mobilease Modular Space, Inc. Standard Office Trailer Size 10’ x 40’ and 10’ x 50’ trailers: Often measure around 10’ x 44’, suitable for several people with room for basic office furniture. You’ll need enough space for the trailer of your choice and for the truck that. The right sized office trailer is the trailer that adequately meets your needs and can comfortably fit your staff and equipment. Standard Office Trailer Size.
From www.steintransportation.com
Trailer Selector Guide for Freight Shipping & Trucking Stein Standard Office Trailer Size The standard size for office trailers typically ranges between 8′ x 24′ and 12′ x 60′ with variations in sq ft, customizability, and comfort. However, a mobile office can be as small or as large as you need it to be. The right sized office trailer is the trailer that adequately meets your needs and can comfortably fit your staff. Standard Office Trailer Size.
From vestamodular.com
Office Trailer Rentals A Complete Guide VESTA Modular Standard Office Trailer Size Here are some of the factors that will help. The right sized office trailer is the trailer that adequately meets your needs and can comfortably fit your staff and equipment in the space. In general, plan to allow 100 to 150 square feet per person. The standard size for office trailers typically ranges between 8′ x 24′ and 12′ x. Standard Office Trailer Size.
From streamlogistics.com
Trailer Dimensions Stream Logistics Standard Office Trailer Size 10’ x 40’ and 10’ x 50’ trailers: They often include separate office. Often measure around 10’ x 44’, suitable for several people with room for basic office furniture. Here are some of the factors that will help. The right sized office trailer is the trailer that adequately meets your needs and can comfortably fit your staff and equipment in. Standard Office Trailer Size.
From christiesrv.com
Ontario's 1 New & Used Mobile Office Trailers for Sale or Lease Standard Office Trailer Size The standard size for office trailers typically ranges between 8′ x 24′ and 12′ x 60′ with variations in sq ft, customizability, and comfort. The right sized office trailer is the trailer that adequately meets your needs and can comfortably fit your staff and equipment in the space. The size you choose for your construction office trailer should depend on. Standard Office Trailer Size.
From www.anchormodular.com
Office Trailer Floor Plans Standard Office Trailer Size The standard size for office trailers typically ranges between 8′ x 24′ and 12′ x 60′ with variations in sq ft, customizability, and comfort. They often include separate office. However, a mobile office can be as small or as large as you need it to be. Can be as large as 12’ x 60’, providing ample space for larger teams. Standard Office Trailer Size.
From floorplans.click
Office Trailer Floor Plans floorplans.click Standard Office Trailer Size The right sized office trailer is the trailer that adequately meets your needs and can comfortably fit your staff and equipment in the space. They often include separate office. Can be as large as 12’ x 60’, providing ample space for larger teams or. The size you choose for your construction office trailer should depend on the number of people. Standard Office Trailer Size.
From www.anchormodular.com
Office Trailer Floor Plans Standard Office Trailer Size Can be as large as 12’ x 60’, providing ample space for larger teams or. Here are some of the factors that will help. However, a mobile office can be as small or as large as you need it to be. The size you choose for your construction office trailer should depend on the number of people and assets you. Standard Office Trailer Size.
From www.dedward.com
Office Trailers Windber, PA D. Edward Leasing Standard Office Trailer Size The standard size for office trailers typically ranges between 8′ x 24′ and 12′ x 60′ with variations in sq ft, customizability, and comfort. Here are some of the factors that will help. The size you choose for your construction office trailer should depend on the number of people and assets you will have in a space. 10’ x 40’. Standard Office Trailer Size.
From www.mainetrailer.com
Office Trailers Maine Trailer Shipping Container Leasing and Standard Office Trailer Size 10’ x 40’ and 10’ x 50’ trailers: The size you choose for your construction office trailer should depend on the number of people and assets you will have in a space. The right sized office trailer is the trailer that adequately meets your needs and can comfortably fit your staff and equipment in the space. You’ll need enough space. Standard Office Trailer Size.
From www.mainetrailer.com
Office Trailers Maine Trailer Shipping Container Leasing and Standard Office Trailer Size The right sized office trailer is the trailer that adequately meets your needs and can comfortably fit your staff and equipment in the space. However, a mobile office can be as small or as large as you need it to be. In general, plan to allow 100 to 150 square feet per person. Trailers come in sizes from 36 feet. Standard Office Trailer Size.
From www.anchormodular.com
Office Trailer Floor Plans Standard Office Trailer Size In general, plan to allow 100 to 150 square feet per person. The size you choose for your construction office trailer should depend on the number of people and assets you will have in a space. Trailers come in sizes from 36 feet long to 70 feet long. They often include separate office. Often measure around 10’ x 44’, suitable. Standard Office Trailer Size.
From www.taylortourtransportation.com
Taylor Transportation Trailer Dimensions Standard Office Trailer Size The right sized office trailer is the trailer that adequately meets your needs and can comfortably fit your staff and equipment in the space. However, a mobile office can be as small or as large as you need it to be. You’ll need enough space for the trailer of your choice and for the truck that. Often measure around 10’. Standard Office Trailer Size.
From www.mainetrailer.com
Office Trailers Maine Trailer Shipping Container Leasing and Standard Office Trailer Size Often measure around 10’ x 44’, suitable for several people with room for basic office furniture. They often include separate office. The standard size for office trailers typically ranges between 8′ x 24′ and 12′ x 60′ with variations in sq ft, customizability, and comfort. 10’ x 40’ and 10’ x 50’ trailers: Can be as large as 12’ x. Standard Office Trailer Size.