Flow Meter Chamber . A positive displacement flow meter is a device that measures the flow rate of a fluid by measuring the amount of fluid that is displaced by a series of chambers or. There are many flow meter types, each with its own working principle. These meters measure flow rate by capturing the fluid in a chamber and measuring its volume. What is a flow meter. A venturi flow meter is a type of differential pressure flow meter that generates a flow measurement by measuring the pressure difference at two different locations in a pipe. This is similar to filling a bucket with. The flow through the meter measurement chamber follows the path of least resistance. Therefore, no liquid passes through the center cavity between the measurement gears. The various types also vary in accuracy and system requirements.
from www.naturtech.sk
There are many flow meter types, each with its own working principle. Therefore, no liquid passes through the center cavity between the measurement gears. A venturi flow meter is a type of differential pressure flow meter that generates a flow measurement by measuring the pressure difference at two different locations in a pipe. The various types also vary in accuracy and system requirements. A positive displacement flow meter is a device that measures the flow rate of a fluid by measuring the amount of fluid that is displaced by a series of chambers or. This is similar to filling a bucket with. What is a flow meter. The flow through the meter measurement chamber follows the path of least resistance. These meters measure flow rate by capturing the fluid in a chamber and measuring its volume.
Watermeter chambers and valve chambers NATURTECH, s.r.o.
Flow Meter Chamber What is a flow meter. The various types also vary in accuracy and system requirements. These meters measure flow rate by capturing the fluid in a chamber and measuring its volume. What is a flow meter. This is similar to filling a bucket with. A venturi flow meter is a type of differential pressure flow meter that generates a flow measurement by measuring the pressure difference at two different locations in a pipe. The flow through the meter measurement chamber follows the path of least resistance. There are many flow meter types, each with its own working principle. A positive displacement flow meter is a device that measures the flow rate of a fluid by measuring the amount of fluid that is displaced by a series of chambers or. Therefore, no liquid passes through the center cavity between the measurement gears.
From www.completeutility.ca
PRV & Flow Meter Installation Surrey Our Work Water Projects Complete Utility Contractors Flow Meter Chamber These meters measure flow rate by capturing the fluid in a chamber and measuring its volume. A venturi flow meter is a type of differential pressure flow meter that generates a flow measurement by measuring the pressure difference at two different locations in a pipe. A positive displacement flow meter is a device that measures the flow rate of a. Flow Meter Chamber.
From www.floodfortress.co.uk
Chambers Flood Fortress Flow Meter Chamber These meters measure flow rate by capturing the fluid in a chamber and measuring its volume. What is a flow meter. The flow through the meter measurement chamber follows the path of least resistance. The various types also vary in accuracy and system requirements. There are many flow meter types, each with its own working principle. This is similar to. Flow Meter Chamber.
From yibenpumpchina.en.made-in-china.com
FM Flow Meter Aluminum Metering Chamber, 1" Thread China Meter and Pd Flow Meter Flow Meter Chamber What is a flow meter. A positive displacement flow meter is a device that measures the flow rate of a fluid by measuring the amount of fluid that is displaced by a series of chambers or. There are many flow meter types, each with its own working principle. A venturi flow meter is a type of differential pressure flow meter. Flow Meter Chamber.
From www.youtube.com
(FLOWMETER CHAMBER (TYPE A YouTube Flow Meter Chamber These meters measure flow rate by capturing the fluid in a chamber and measuring its volume. The flow through the meter measurement chamber follows the path of least resistance. This is similar to filling a bucket with. What is a flow meter. There are many flow meter types, each with its own working principle. A positive displacement flow meter is. Flow Meter Chamber.
From www.magneticlevel-gauge.com
IP65 Waterproof Flow Meter Stainless Steel Chamber Flow Meter Chamber There are many flow meter types, each with its own working principle. The flow through the meter measurement chamber follows the path of least resistance. A venturi flow meter is a type of differential pressure flow meter that generates a flow measurement by measuring the pressure difference at two different locations in a pipe. Therefore, no liquid passes through the. Flow Meter Chamber.
From www.suremeter.com
Liquid Turbine Flow Meter Structure Sure Flow Meter Chamber A venturi flow meter is a type of differential pressure flow meter that generates a flow measurement by measuring the pressure difference at two different locations in a pipe. This is similar to filling a bucket with. There are many flow meter types, each with its own working principle. These meters measure flow rate by capturing the fluid in a. Flow Meter Chamber.
From www.completeutility.ca
PRV & Flow Meter Installation Surrey Our Work Water Projects Complete Utility Contractors Flow Meter Chamber This is similar to filling a bucket with. The flow through the meter measurement chamber follows the path of least resistance. A venturi flow meter is a type of differential pressure flow meter that generates a flow measurement by measuring the pressure difference at two different locations in a pipe. The various types also vary in accuracy and system requirements.. Flow Meter Chamber.
From chemicalengineeringworld.com
Ultrasonic Flow Meter Working and Types Chemical Engineering World Flow Meter Chamber A positive displacement flow meter is a device that measures the flow rate of a fluid by measuring the amount of fluid that is displaced by a series of chambers or. These meters measure flow rate by capturing the fluid in a chamber and measuring its volume. Therefore, no liquid passes through the center cavity between the measurement gears. The. Flow Meter Chamber.
From web1expert.com
Mechanical Water Flow Meter and How it Works 1Expert Flow Meter Chamber This is similar to filling a bucket with. These meters measure flow rate by capturing the fluid in a chamber and measuring its volume. Therefore, no liquid passes through the center cavity between the measurement gears. A venturi flow meter is a type of differential pressure flow meter that generates a flow measurement by measuring the pressure difference at two. Flow Meter Chamber.
From fpmccann.co.uk
StormBrake™ Flow Control Chamber FP McCann Flow Meter Chamber A venturi flow meter is a type of differential pressure flow meter that generates a flow measurement by measuring the pressure difference at two different locations in a pipe. These meters measure flow rate by capturing the fluid in a chamber and measuring its volume. There are many flow meter types, each with its own working principle. The various types. Flow Meter Chamber.
From www.smartmeasurement.com
Industrial Flow Meter Applications Flow Meter Chamber A positive displacement flow meter is a device that measures the flow rate of a fluid by measuring the amount of fluid that is displaced by a series of chambers or. Therefore, no liquid passes through the center cavity between the measurement gears. The various types also vary in accuracy and system requirements. What is a flow meter. A venturi. Flow Meter Chamber.
From instrumentationtools.com
Reasons to Calibrate Different Types of Flowmeters Instrumentation Tools Flow Meter Chamber This is similar to filling a bucket with. The various types also vary in accuracy and system requirements. There are many flow meter types, each with its own working principle. A venturi flow meter is a type of differential pressure flow meter that generates a flow measurement by measuring the pressure difference at two different locations in a pipe. What. Flow Meter Chamber.
From www.naturtech.sk
Watermeter chambers and valve chambers NATURTECH, s.r.o. Flow Meter Chamber A venturi flow meter is a type of differential pressure flow meter that generates a flow measurement by measuring the pressure difference at two different locations in a pipe. There are many flow meter types, each with its own working principle. The flow through the meter measurement chamber follows the path of least resistance. The various types also vary in. Flow Meter Chamber.
From www.doppelflowmeter.com
Exploring Flow Measuring Devices in Fluid Mechanics A Comprehensive Guide DOPPEL flowmeter Flow Meter Chamber What is a flow meter. Therefore, no liquid passes through the center cavity between the measurement gears. A positive displacement flow meter is a device that measures the flow rate of a fluid by measuring the amount of fluid that is displaced by a series of chambers or. A venturi flow meter is a type of differential pressure flow meter. Flow Meter Chamber.
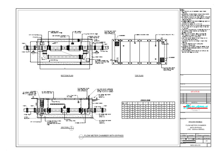
From www.scribd.com
Flow Meter Chamber With Bypass Bottom Plan Top Plan PDF Flow Meter Chamber What is a flow meter. Therefore, no liquid passes through the center cavity between the measurement gears. This is similar to filling a bucket with. The flow through the meter measurement chamber follows the path of least resistance. These meters measure flow rate by capturing the fluid in a chamber and measuring its volume. There are many flow meter types,. Flow Meter Chamber.
From www.blue-white.com
A Comprehensive Guide to Flow Meter Types and Their Functions BlueWhite Industries Flow Meter Chamber The various types also vary in accuracy and system requirements. Therefore, no liquid passes through the center cavity between the measurement gears. A venturi flow meter is a type of differential pressure flow meter that generates a flow measurement by measuring the pressure difference at two different locations in a pipe. The flow through the meter measurement chamber follows the. Flow Meter Chamber.
From www.completeutility.ca
PRV & Flow Meter Installation Surrey Our Work Water Projects Complete Utility Contractors Flow Meter Chamber Therefore, no liquid passes through the center cavity between the measurement gears. A positive displacement flow meter is a device that measures the flow rate of a fluid by measuring the amount of fluid that is displaced by a series of chambers or. The various types also vary in accuracy and system requirements. What is a flow meter. This is. Flow Meter Chamber.
From cadbull.com
Flow Meter Chamber CAD Block Cadbull Flow Meter Chamber There are many flow meter types, each with its own working principle. What is a flow meter. A venturi flow meter is a type of differential pressure flow meter that generates a flow measurement by measuring the pressure difference at two different locations in a pipe. The various types also vary in accuracy and system requirements. This is similar to. Flow Meter Chamber.
From www.researchgate.net
Sorption of NO2 from air onto filter using a gas flow meter chamber Download Scientific Diagram Flow Meter Chamber Therefore, no liquid passes through the center cavity between the measurement gears. There are many flow meter types, each with its own working principle. A venturi flow meter is a type of differential pressure flow meter that generates a flow measurement by measuring the pressure difference at two different locations in a pipe. This is similar to filling a bucket. Flow Meter Chamber.
From www.aliexpress.com
LZM151818m3hpaneltypewithcontrolvalveflowmeterflowmeterlzm15panel.jpg Flow Meter Chamber The flow through the meter measurement chamber follows the path of least resistance. A positive displacement flow meter is a device that measures the flow rate of a fluid by measuring the amount of fluid that is displaced by a series of chambers or. These meters measure flow rate by capturing the fluid in a chamber and measuring its volume.. Flow Meter Chamber.
From www.truelancer.com
R.C.C Manhole and Flow Meter Chamber Fitting by Muhammad Waqas Ahmed Truelancer Flow Meter Chamber This is similar to filling a bucket with. What is a flow meter. Therefore, no liquid passes through the center cavity between the measurement gears. A venturi flow meter is a type of differential pressure flow meter that generates a flow measurement by measuring the pressure difference at two different locations in a pipe. There are many flow meter types,. Flow Meter Chamber.
From www.suntex.com.tw
SUNTEX INSTRUMENTS CO.,LTD Suntex Products Flow Meter Chamber The various types also vary in accuracy and system requirements. A positive displacement flow meter is a device that measures the flow rate of a fluid by measuring the amount of fluid that is displaced by a series of chambers or. A venturi flow meter is a type of differential pressure flow meter that generates a flow measurement by measuring. Flow Meter Chamber.
From www.labrepco.com
M1SBFF SMARTBOX® Chamber Euthanasia System with Flow Meter Flow Meter Chamber These meters measure flow rate by capturing the fluid in a chamber and measuring its volume. A venturi flow meter is a type of differential pressure flow meter that generates a flow measurement by measuring the pressure difference at two different locations in a pipe. There are many flow meter types, each with its own working principle. The flow through. Flow Meter Chamber.
From www.alphasport.com.au
OXYGEN FLOW METER/BALL CHAMBER 515800 *** ORDER IN ONLY *** Alpha Sport Flow Meter Chamber This is similar to filling a bucket with. Therefore, no liquid passes through the center cavity between the measurement gears. The various types also vary in accuracy and system requirements. What is a flow meter. These meters measure flow rate by capturing the fluid in a chamber and measuring its volume. A venturi flow meter is a type of differential. Flow Meter Chamber.
From rach.io
EveryDrop Wired Irrigation Flow Meter Rachio Flow Meter Chamber There are many flow meter types, each with its own working principle. A venturi flow meter is a type of differential pressure flow meter that generates a flow measurement by measuring the pressure difference at two different locations in a pipe. The various types also vary in accuracy and system requirements. This is similar to filling a bucket with. Therefore,. Flow Meter Chamber.
From reco.bg
Water meter chamber DN500 H1000 Flow Meter Chamber The various types also vary in accuracy and system requirements. A venturi flow meter is a type of differential pressure flow meter that generates a flow measurement by measuring the pressure difference at two different locations in a pipe. These meters measure flow rate by capturing the fluid in a chamber and measuring its volume. This is similar to filling. Flow Meter Chamber.
From www.researchgate.net
Illustration of the metering principle. (A) The metering chambers are... Download Scientific Flow Meter Chamber These meters measure flow rate by capturing the fluid in a chamber and measuring its volume. The flow through the meter measurement chamber follows the path of least resistance. There are many flow meter types, each with its own working principle. A positive displacement flow meter is a device that measures the flow rate of a fluid by measuring the. Flow Meter Chamber.
From www.gpimeters.com
G2S15TQ9GMB Electronic Flow Meter 11/2" 316SS GPImeters Flow Meter Chamber The flow through the meter measurement chamber follows the path of least resistance. A positive displacement flow meter is a device that measures the flow rate of a fluid by measuring the amount of fluid that is displaced by a series of chambers or. What is a flow meter. There are many flow meter types, each with its own working. Flow Meter Chamber.
From www.researchgate.net
Equipment in a surface metering and regulating inlet chamber Download Scientific Diagram Flow Meter Chamber The various types also vary in accuracy and system requirements. Therefore, no liquid passes through the center cavity between the measurement gears. What is a flow meter. A venturi flow meter is a type of differential pressure flow meter that generates a flow measurement by measuring the pressure difference at two different locations in a pipe. The flow through the. Flow Meter Chamber.
From www.flowhire.co.uk
Flow Meter Hire Specialists Portable and Clamp On Options. Flow Meter Chamber There are many flow meter types, each with its own working principle. These meters measure flow rate by capturing the fluid in a chamber and measuring its volume. Therefore, no liquid passes through the center cavity between the measurement gears. The flow through the meter measurement chamber follows the path of least resistance. A positive displacement flow meter is a. Flow Meter Chamber.
From instrumentationtools.com
Turbine Flow Meter Installation Procedure Instrumentation Tools Flow Meter Chamber What is a flow meter. This is similar to filling a bucket with. A positive displacement flow meter is a device that measures the flow rate of a fluid by measuring the amount of fluid that is displaced by a series of chambers or. These meters measure flow rate by capturing the fluid in a chamber and measuring its volume.. Flow Meter Chamber.
From www.researchgate.net
Sorption of NO 2 from air onto filter using a gas flow meter chamber Download Scientific Diagram Flow Meter Chamber A positive displacement flow meter is a device that measures the flow rate of a fluid by measuring the amount of fluid that is displaced by a series of chambers or. There are many flow meter types, each with its own working principle. This is similar to filling a bucket with. Therefore, no liquid passes through the center cavity between. Flow Meter Chamber.
From www.enviropro.co.uk
Penstocks and stormwater flow control chambers Marshalls plc civils and drainage ESI Enviropro Flow Meter Chamber There are many flow meter types, each with its own working principle. What is a flow meter. This is similar to filling a bucket with. Therefore, no liquid passes through the center cavity between the measurement gears. A positive displacement flow meter is a device that measures the flow rate of a fluid by measuring the amount of fluid that. Flow Meter Chamber.
From precisionflow.com
Precision Flow Meters & Controls Leading provider of flow measurement solutions and services. Flow Meter Chamber The various types also vary in accuracy and system requirements. A venturi flow meter is a type of differential pressure flow meter that generates a flow measurement by measuring the pressure difference at two different locations in a pipe. A positive displacement flow meter is a device that measures the flow rate of a fluid by measuring the amount of. Flow Meter Chamber.
From www.naturtech.sk
Watermeter chambers and valve chambers NATURTECH, s.r.o. Flow Meter Chamber A venturi flow meter is a type of differential pressure flow meter that generates a flow measurement by measuring the pressure difference at two different locations in a pipe. The flow through the meter measurement chamber follows the path of least resistance. There are many flow meter types, each with its own working principle. The various types also vary in. Flow Meter Chamber.