Property Tax Assessor Williamson County Tn . This site allows anyone to search for property values and other key information about properties across the state of tennessee. Taxable property is divided into two. Search and pay your property taxes online for williamson county and its cities. You need the williamson county property assessors webpage. Each year, the assessor is required to create and maintain an assessment roll detailing all county property, its owner, and its value. Property assessments/personal property or greenbelt? The property assessor's office of williamson county, tn presents this web site as a service to the public. The property appraisal division appraises the value of all property in the county for tax purposes. Tax rates for williamson county and each city or town within williamson county are set each year by their. The primary responsibility of the property assessor is to discover, list, classify, and value all real, personal, or mixed property within the.
from www.tncountryliving.com
The property assessor's office of williamson county, tn presents this web site as a service to the public. Each year, the assessor is required to create and maintain an assessment roll detailing all county property, its owner, and its value. Property assessments/personal property or greenbelt? Taxable property is divided into two. You need the williamson county property assessors webpage. Search and pay your property taxes online for williamson county and its cities. This site allows anyone to search for property values and other key information about properties across the state of tennessee. Tax rates for williamson county and each city or town within williamson county are set each year by their. The property appraisal division appraises the value of all property in the county for tax purposes. The primary responsibility of the property assessor is to discover, list, classify, and value all real, personal, or mixed property within the.
Williamson County TN Development Properties
Property Tax Assessor Williamson County Tn Each year, the assessor is required to create and maintain an assessment roll detailing all county property, its owner, and its value. Search and pay your property taxes online for williamson county and its cities. Taxable property is divided into two. Tax rates for williamson county and each city or town within williamson county are set each year by their. Each year, the assessor is required to create and maintain an assessment roll detailing all county property, its owner, and its value. The property assessor's office of williamson county, tn presents this web site as a service to the public. The property appraisal division appraises the value of all property in the county for tax purposes. Property assessments/personal property or greenbelt? You need the williamson county property assessors webpage. This site allows anyone to search for property values and other key information about properties across the state of tennessee. The primary responsibility of the property assessor is to discover, list, classify, and value all real, personal, or mixed property within the.
From loeachdoa.blob.core.windows.net
Property Tax Assessor Memphis Tn at Mandy Blackburn blog Property Tax Assessor Williamson County Tn The property appraisal division appraises the value of all property in the county for tax purposes. Each year, the assessor is required to create and maintain an assessment roll detailing all county property, its owner, and its value. You need the williamson county property assessors webpage. The primary responsibility of the property assessor is to discover, list, classify, and value. Property Tax Assessor Williamson County Tn.
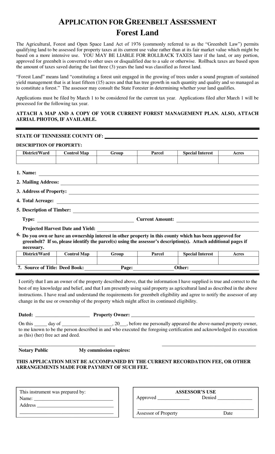
From www.templateroller.com
Williamson County, Tennessee Application for Greenbelt Assessment Property Tax Assessor Williamson County Tn The primary responsibility of the property assessor is to discover, list, classify, and value all real, personal, or mixed property within the. Each year, the assessor is required to create and maintain an assessment roll detailing all county property, its owner, and its value. This site allows anyone to search for property values and other key information about properties across. Property Tax Assessor Williamson County Tn.
From expertrealestategroup.com
Williamson County TN Real Estate Property Tax Assessor Williamson County Tn Taxable property is divided into two. You need the williamson county property assessors webpage. The primary responsibility of the property assessor is to discover, list, classify, and value all real, personal, or mixed property within the. Each year, the assessor is required to create and maintain an assessment roll detailing all county property, its owner, and its value. Tax rates. Property Tax Assessor Williamson County Tn.
From www.youtube.com
Williamson County Texas Tax Deed Investing Redeemable Tax Deeds Property Tax Assessor Williamson County Tn Each year, the assessor is required to create and maintain an assessment roll detailing all county property, its owner, and its value. The property appraisal division appraises the value of all property in the county for tax purposes. The property assessor's office of williamson county, tn presents this web site as a service to the public. Tax rates for williamson. Property Tax Assessor Williamson County Tn.
From prorfety.blogspot.com
Williamson County Property Tax Tennessee PRORFETY Property Tax Assessor Williamson County Tn The primary responsibility of the property assessor is to discover, list, classify, and value all real, personal, or mixed property within the. Each year, the assessor is required to create and maintain an assessment roll detailing all county property, its owner, and its value. Taxable property is divided into two. This site allows anyone to search for property values and. Property Tax Assessor Williamson County Tn.
From www.youtube.com
Tennessee Property Taxes Williamson County, TN What You Need To Property Tax Assessor Williamson County Tn Each year, the assessor is required to create and maintain an assessment roll detailing all county property, its owner, and its value. Property assessments/personal property or greenbelt? Tax rates for williamson county and each city or town within williamson county are set each year by their. Search and pay your property taxes online for williamson county and its cities. The. Property Tax Assessor Williamson County Tn.
From sellinginspiredhomes.com
Williamson County TN 2020 [Photos] Lisa RumleyLewis 6154787591 Property Tax Assessor Williamson County Tn Search and pay your property taxes online for williamson county and its cities. You need the williamson county property assessors webpage. Taxable property is divided into two. This site allows anyone to search for property values and other key information about properties across the state of tennessee. The property assessor's office of williamson county, tn presents this web site as. Property Tax Assessor Williamson County Tn.
From loeachdoa.blob.core.windows.net
Property Tax Assessor Memphis Tn at Mandy Blackburn blog Property Tax Assessor Williamson County Tn Taxable property is divided into two. The property appraisal division appraises the value of all property in the county for tax purposes. Search and pay your property taxes online for williamson county and its cities. Tax rates for williamson county and each city or town within williamson county are set each year by their. Each year, the assessor is required. Property Tax Assessor Williamson County Tn.
From www.calameo.com
Calaméo Find High End Property Listings in Williamson County With Property Tax Assessor Williamson County Tn Tax rates for williamson county and each city or town within williamson county are set each year by their. The property assessor's office of williamson county, tn presents this web site as a service to the public. The primary responsibility of the property assessor is to discover, list, classify, and value all real, personal, or mixed property within the. Taxable. Property Tax Assessor Williamson County Tn.
From comptroller.tn.gov
Comptroller’s Office Launches Redesigned Property Assessment Data page Property Tax Assessor Williamson County Tn The primary responsibility of the property assessor is to discover, list, classify, and value all real, personal, or mixed property within the. Taxable property is divided into two. Each year, the assessor is required to create and maintain an assessment roll detailing all county property, its owner, and its value. Search and pay your property taxes online for williamson county. Property Tax Assessor Williamson County Tn.
From dxobuticl.blob.core.windows.net
Robertson County Tn Tax Assessor Property Search at Savannah Osgood blog Property Tax Assessor Williamson County Tn Search and pay your property taxes online for williamson county and its cities. Tax rates for williamson county and each city or town within williamson county are set each year by their. Property assessments/personal property or greenbelt? This site allows anyone to search for property values and other key information about properties across the state of tennessee. The primary responsibility. Property Tax Assessor Williamson County Tn.
From www.kvue.com
Williamson County sets new, lower tax rate Property Tax Assessor Williamson County Tn Search and pay your property taxes online for williamson county and its cities. Property assessments/personal property or greenbelt? Each year, the assessor is required to create and maintain an assessment roll detailing all county property, its owner, and its value. The property assessor's office of williamson county, tn presents this web site as a service to the public. The primary. Property Tax Assessor Williamson County Tn.
From www.tncenturyfarms.org
Williamson County Tennessee Century Farms Property Tax Assessor Williamson County Tn The property assessor's office of williamson county, tn presents this web site as a service to the public. Tax rates for williamson county and each city or town within williamson county are set each year by their. Search and pay your property taxes online for williamson county and its cities. The primary responsibility of the property assessor is to discover,. Property Tax Assessor Williamson County Tn.
From prorfety.blogspot.com
PRORFETY Property Tax Payment Williamson County Property Tax Assessor Williamson County Tn The property appraisal division appraises the value of all property in the county for tax purposes. Tax rates for williamson county and each city or town within williamson county are set each year by their. Taxable property is divided into two. You need the williamson county property assessors webpage. The primary responsibility of the property assessor is to discover, list,. Property Tax Assessor Williamson County Tn.
From klaugvtuf.blob.core.windows.net
Williamson County Real Estate Tax at Frances Sorrells blog Property Tax Assessor Williamson County Tn Search and pay your property taxes online for williamson county and its cities. This site allows anyone to search for property values and other key information about properties across the state of tennessee. The primary responsibility of the property assessor is to discover, list, classify, and value all real, personal, or mixed property within the. Tax rates for williamson county. Property Tax Assessor Williamson County Tn.
From www.pinterest.com
FileTN Williamson County Boundary Map.JPG Genealogy Williamson Property Tax Assessor Williamson County Tn Search and pay your property taxes online for williamson county and its cities. Each year, the assessor is required to create and maintain an assessment roll detailing all county property, its owner, and its value. Property assessments/personal property or greenbelt? This site allows anyone to search for property values and other key information about properties across the state of tennessee.. Property Tax Assessor Williamson County Tn.
From prorfety.blogspot.com
PRORFETY Property Tax Payment Williamson County Property Tax Assessor Williamson County Tn Search and pay your property taxes online for williamson county and its cities. The property assessor's office of williamson county, tn presents this web site as a service to the public. Each year, the assessor is required to create and maintain an assessment roll detailing all county property, its owner, and its value. This site allows anyone to search for. Property Tax Assessor Williamson County Tn.
From www.familysearch.org
Williamson County, Tennessee Genealogy • FamilySearch Property Tax Assessor Williamson County Tn Each year, the assessor is required to create and maintain an assessment roll detailing all county property, its owner, and its value. Property assessments/personal property or greenbelt? The property appraisal division appraises the value of all property in the county for tax purposes. Tax rates for williamson county and each city or town within williamson county are set each year. Property Tax Assessor Williamson County Tn.
From www.templateroller.com
Williamson County, Texas Property Tax Information Record Request Form Property Tax Assessor Williamson County Tn Search and pay your property taxes online for williamson county and its cities. Property assessments/personal property or greenbelt? This site allows anyone to search for property values and other key information about properties across the state of tennessee. The property assessor's office of williamson county, tn presents this web site as a service to the public. You need the williamson. Property Tax Assessor Williamson County Tn.
From www.land.com
8 acres in Williamson County, Tennessee Property Tax Assessor Williamson County Tn This site allows anyone to search for property values and other key information about properties across the state of tennessee. The primary responsibility of the property assessor is to discover, list, classify, and value all real, personal, or mixed property within the. You need the williamson county property assessors webpage. Each year, the assessor is required to create and maintain. Property Tax Assessor Williamson County Tn.
From staeti.blogspot.com
Williamson County Property Value Search STAETI Property Tax Assessor Williamson County Tn Taxable property is divided into two. Property assessments/personal property or greenbelt? Tax rates for williamson county and each city or town within williamson county are set each year by their. This site allows anyone to search for property values and other key information about properties across the state of tennessee. The property assessor's office of williamson county, tn presents this. Property Tax Assessor Williamson County Tn.
From www.etsy.com
Williamson County Tennessee 1878 Old Wall Map Reprint With Etsy Property Tax Assessor Williamson County Tn You need the williamson county property assessors webpage. The primary responsibility of the property assessor is to discover, list, classify, and value all real, personal, or mixed property within the. Each year, the assessor is required to create and maintain an assessment roll detailing all county property, its owner, and its value. Property assessments/personal property or greenbelt? Taxable property is. Property Tax Assessor Williamson County Tn.
From diaocthongthai.com
Map of Williamson County, Tennessee Property Tax Assessor Williamson County Tn Each year, the assessor is required to create and maintain an assessment roll detailing all county property, its owner, and its value. Search and pay your property taxes online for williamson county and its cities. The property appraisal division appraises the value of all property in the county for tax purposes. This site allows anyone to search for property values. Property Tax Assessor Williamson County Tn.
From prorfety.blogspot.com
PRORFETY Property Tax Payment Williamson County Property Tax Assessor Williamson County Tn The primary responsibility of the property assessor is to discover, list, classify, and value all real, personal, or mixed property within the. This site allows anyone to search for property values and other key information about properties across the state of tennessee. The property appraisal division appraises the value of all property in the county for tax purposes. Search and. Property Tax Assessor Williamson County Tn.
From lamarcounty.englewoodfl.us
Williamson County Tax Assessor Lamar County Property Tax Assessor Williamson County Tn The property appraisal division appraises the value of all property in the county for tax purposes. The primary responsibility of the property assessor is to discover, list, classify, and value all real, personal, or mixed property within the. The property assessor's office of williamson county, tn presents this web site as a service to the public. Search and pay your. Property Tax Assessor Williamson County Tn.
From www.mapsofworld.com
Williamson County TN Map Map of Williamson County Tennessee Property Tax Assessor Williamson County Tn Taxable property is divided into two. Property assessments/personal property or greenbelt? You need the williamson county property assessors webpage. The primary responsibility of the property assessor is to discover, list, classify, and value all real, personal, or mixed property within the. Search and pay your property taxes online for williamson county and its cities. This site allows anyone to search. Property Tax Assessor Williamson County Tn.
From www.williamsoncounty-tn.org
Tax Incentives for Homeowners in Williamson County, Tennessee Get Property Tax Assessor Williamson County Tn Each year, the assessor is required to create and maintain an assessment roll detailing all county property, its owner, and its value. Tax rates for williamson county and each city or town within williamson county are set each year by their. The primary responsibility of the property assessor is to discover, list, classify, and value all real, personal, or mixed. Property Tax Assessor Williamson County Tn.
From dxobuticl.blob.core.windows.net
Robertson County Tn Tax Assessor Property Search at Savannah Osgood blog Property Tax Assessor Williamson County Tn Each year, the assessor is required to create and maintain an assessment roll detailing all county property, its owner, and its value. Search and pay your property taxes online for williamson county and its cities. The property assessor's office of williamson county, tn presents this web site as a service to the public. The property appraisal division appraises the value. Property Tax Assessor Williamson County Tn.
From knowyourtaxes.org
Williamson County » Know Your Taxes Property Tax Assessor Williamson County Tn You need the williamson county property assessors webpage. Taxable property is divided into two. The property appraisal division appraises the value of all property in the county for tax purposes. The property assessor's office of williamson county, tn presents this web site as a service to the public. Property assessments/personal property or greenbelt? Search and pay your property taxes online. Property Tax Assessor Williamson County Tn.
From www.fairview-tn.org
Property Taxes Fairview, TN Williamson County Property Tax Assessor Williamson County Tn The primary responsibility of the property assessor is to discover, list, classify, and value all real, personal, or mixed property within the. Each year, the assessor is required to create and maintain an assessment roll detailing all county property, its owner, and its value. The property appraisal division appraises the value of all property in the county for tax purposes.. Property Tax Assessor Williamson County Tn.
From nashvillepremierehomes.com
Williamson County Sales Tax Rate In Tennessee Robert 'Bob' Beck Property Tax Assessor Williamson County Tn Each year, the assessor is required to create and maintain an assessment roll detailing all county property, its owner, and its value. Taxable property is divided into two. Tax rates for williamson county and each city or town within williamson county are set each year by their. The property assessor's office of williamson county, tn presents this web site as. Property Tax Assessor Williamson County Tn.
From www.tncountryliving.com
Williamson County TN Development Properties Property Tax Assessor Williamson County Tn Search and pay your property taxes online for williamson county and its cities. This site allows anyone to search for property values and other key information about properties across the state of tennessee. You need the williamson county property assessors webpage. The property assessor's office of williamson county, tn presents this web site as a service to the public. The. Property Tax Assessor Williamson County Tn.
From www.templateroller.com
Williamson County, Tennessee Application for Greenbelt Assessment Property Tax Assessor Williamson County Tn The primary responsibility of the property assessor is to discover, list, classify, and value all real, personal, or mixed property within the. Search and pay your property taxes online for williamson county and its cities. This site allows anyone to search for property values and other key information about properties across the state of tennessee. Tax rates for williamson county. Property Tax Assessor Williamson County Tn.
From www.templateroller.com
Williamson County, Tennessee Application for Greenbelt Assessment Property Tax Assessor Williamson County Tn Taxable property is divided into two. The property assessor's office of williamson county, tn presents this web site as a service to the public. Tax rates for williamson county and each city or town within williamson county are set each year by their. The property appraisal division appraises the value of all property in the county for tax purposes. Property. Property Tax Assessor Williamson County Tn.
From joeyasosanna.pages.dev
Williamson County Property Taxes 2024 Allis Bendite Property Tax Assessor Williamson County Tn Tax rates for williamson county and each city or town within williamson county are set each year by their. The property assessor's office of williamson county, tn presents this web site as a service to the public. Each year, the assessor is required to create and maintain an assessment roll detailing all county property, its owner, and its value. Search. Property Tax Assessor Williamson County Tn.