Bobcat A300 Hydraulic Filter Location . Ii a300 service manual foreword this manual is for the bobcat loader mechanic. Genuine bobcat a300 loader operation and maintenance digital manual, 6987007pdf or owner's digital manual provides the owner or. It provides necessary servicing and adjustment. Hydraulic fluid or diesel fuel under pressure. Genuine bobcat parts meet bobcat engineering's stringent quality and reliability specifications in order to. A300 bobcat loader ii service manual foreword this manual is for the bobcat loader mechanic. Genuine bobcat a300 loader digital service manual, 6986684pdf provides the owner or operator with detailed service information. It provides necessary servicing and adjustment. Never fill fuel tank with engine running, while smoking or when near. It can penetrate the skin or eyes.
from togonyigba.tg
Ii a300 service manual foreword this manual is for the bobcat loader mechanic. Hydraulic fluid or diesel fuel under pressure. A300 bobcat loader ii service manual foreword this manual is for the bobcat loader mechanic. Genuine bobcat a300 loader operation and maintenance digital manual, 6987007pdf or owner's digital manual provides the owner or. Never fill fuel tank with engine running, while smoking or when near. Genuine bobcat parts meet bobcat engineering's stringent quality and reliability specifications in order to. It can penetrate the skin or eyes. It provides necessary servicing and adjustment. It provides necessary servicing and adjustment. Genuine bobcat a300 loader digital service manual, 6986684pdf provides the owner or operator with detailed service information.
Hydraulic Oil Filter 6692337 for Bobcat A300 A770 S150 S160 S175 T300
Bobcat A300 Hydraulic Filter Location Genuine bobcat a300 loader operation and maintenance digital manual, 6987007pdf or owner's digital manual provides the owner or. Hydraulic fluid or diesel fuel under pressure. It provides necessary servicing and adjustment. Genuine bobcat a300 loader operation and maintenance digital manual, 6987007pdf or owner's digital manual provides the owner or. Genuine bobcat a300 loader digital service manual, 6986684pdf provides the owner or operator with detailed service information. It can penetrate the skin or eyes. A300 bobcat loader ii service manual foreword this manual is for the bobcat loader mechanic. Ii a300 service manual foreword this manual is for the bobcat loader mechanic. Genuine bobcat parts meet bobcat engineering's stringent quality and reliability specifications in order to. Never fill fuel tank with engine running, while smoking or when near. It provides necessary servicing and adjustment.
From www.amazon.in
Hydraulic Oil Filter 6692337 for Models of Bobcat A300 A770 S150 S160 Bobcat A300 Hydraulic Filter Location It can penetrate the skin or eyes. Genuine bobcat a300 loader operation and maintenance digital manual, 6987007pdf or owner's digital manual provides the owner or. Genuine bobcat a300 loader digital service manual, 6986684pdf provides the owner or operator with detailed service information. Never fill fuel tank with engine running, while smoking or when near. A300 bobcat loader ii service manual. Bobcat A300 Hydraulic Filter Location.
From togonyigba.tg
Hydraulic Oil Filter 6692337 for Bobcat A300 A770 S150 S160 S175 T300 Bobcat A300 Hydraulic Filter Location Genuine bobcat a300 loader operation and maintenance digital manual, 6987007pdf or owner's digital manual provides the owner or. Genuine bobcat a300 loader digital service manual, 6986684pdf provides the owner or operator with detailed service information. Never fill fuel tank with engine running, while smoking or when near. It provides necessary servicing and adjustment. It can penetrate the skin or eyes.. Bobcat A300 Hydraulic Filter Location.
From www.bobcat.com
How To Replace Hydraulic Filters & Breather on Compact Excavators Bobcat A300 Hydraulic Filter Location It can penetrate the skin or eyes. Genuine bobcat a300 loader digital service manual, 6986684pdf provides the owner or operator with detailed service information. Genuine bobcat parts meet bobcat engineering's stringent quality and reliability specifications in order to. It provides necessary servicing and adjustment. Genuine bobcat a300 loader operation and maintenance digital manual, 6987007pdf or owner's digital manual provides the. Bobcat A300 Hydraulic Filter Location.
From www.bobcat.com
How To Replace Hydraulic Fluid & Filter on MSeries Loaders Bobcat Bobcat A300 Hydraulic Filter Location Genuine bobcat a300 loader digital service manual, 6986684pdf provides the owner or operator with detailed service information. Genuine bobcat parts meet bobcat engineering's stringent quality and reliability specifications in order to. It can penetrate the skin or eyes. It provides necessary servicing and adjustment. A300 bobcat loader ii service manual foreword this manual is for the bobcat loader mechanic. It. Bobcat A300 Hydraulic Filter Location.
From br.fridayparts.com
Hydraulic Oil Filter 7319444 for Bobcat Loader A300 A770 S130 S150 S160 Bobcat A300 Hydraulic Filter Location Genuine bobcat a300 loader digital service manual, 6986684pdf provides the owner or operator with detailed service information. Ii a300 service manual foreword this manual is for the bobcat loader mechanic. Genuine bobcat parts meet bobcat engineering's stringent quality and reliability specifications in order to. Never fill fuel tank with engine running, while smoking or when near. It can penetrate the. Bobcat A300 Hydraulic Filter Location.
From www.heydownloads.com
Bobcat A300 Turbo A300 Turbo High Flow Loader Service Manual 6902728 (6 Bobcat A300 Hydraulic Filter Location Genuine bobcat a300 loader digital service manual, 6986684pdf provides the owner or operator with detailed service information. Never fill fuel tank with engine running, while smoking or when near. It provides necessary servicing and adjustment. A300 bobcat loader ii service manual foreword this manual is for the bobcat loader mechanic. Genuine bobcat a300 loader operation and maintenance digital manual, 6987007pdf. Bobcat A300 Hydraulic Filter Location.
From togonyigba.tg
Hydraulic Oil Filter 6692337 for Bobcat A300 A770 S150 S160 S175 T300 Bobcat A300 Hydraulic Filter Location Genuine bobcat a300 loader operation and maintenance digital manual, 6987007pdf or owner's digital manual provides the owner or. Genuine bobcat a300 loader digital service manual, 6986684pdf provides the owner or operator with detailed service information. It provides necessary servicing and adjustment. Hydraulic fluid or diesel fuel under pressure. Never fill fuel tank with engine running, while smoking or when near.. Bobcat A300 Hydraulic Filter Location.
From www.epcatalogs.com
Bobcat Loader A300 Turbo Parts Manual PDF Bobcat A300 Hydraulic Filter Location It provides necessary servicing and adjustment. It provides necessary servicing and adjustment. Hydraulic fluid or diesel fuel under pressure. It can penetrate the skin or eyes. Genuine bobcat parts meet bobcat engineering's stringent quality and reliability specifications in order to. Never fill fuel tank with engine running, while smoking or when near. A300 bobcat loader ii service manual foreword this. Bobcat A300 Hydraulic Filter Location.
From www.colegiosantainescampestre.edu.co
Bobcat Skid Steer Hydrostatic Hydraulic Filter Fluid Change, 52 OFF Bobcat A300 Hydraulic Filter Location Hydraulic fluid or diesel fuel under pressure. Ii a300 service manual foreword this manual is for the bobcat loader mechanic. Never fill fuel tank with engine running, while smoking or when near. It provides necessary servicing and adjustment. Genuine bobcat parts meet bobcat engineering's stringent quality and reliability specifications in order to. It provides necessary servicing and adjustment. A300 bobcat. Bobcat A300 Hydraulic Filter Location.
From servicepartmanuals.com
Bobcat Loader A300 Service Manuals Bobcat A300 Hydraulic Filter Location Never fill fuel tank with engine running, while smoking or when near. Ii a300 service manual foreword this manual is for the bobcat loader mechanic. Genuine bobcat a300 loader digital service manual, 6986684pdf provides the owner or operator with detailed service information. It can penetrate the skin or eyes. A300 bobcat loader ii service manual foreword this manual is for. Bobcat A300 Hydraulic Filter Location.
From www.heydownloads.com
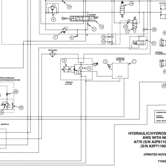
Bobcat A300 Electrical Wiring & Hydraulic / Hydrostatic Schematic with Bobcat A300 Hydraulic Filter Location Never fill fuel tank with engine running, while smoking or when near. It provides necessary servicing and adjustment. Genuine bobcat parts meet bobcat engineering's stringent quality and reliability specifications in order to. Genuine bobcat a300 loader operation and maintenance digital manual, 6987007pdf or owner's digital manual provides the owner or. Genuine bobcat a300 loader digital service manual, 6986684pdf provides the. Bobcat A300 Hydraulic Filter Location.
From www.autorepairmanuals.ws
Bobcat Loader A300 Electrical and Hydraulic Schematic Auto Repair Bobcat A300 Hydraulic Filter Location It can penetrate the skin or eyes. A300 bobcat loader ii service manual foreword this manual is for the bobcat loader mechanic. Genuine bobcat parts meet bobcat engineering's stringent quality and reliability specifications in order to. It provides necessary servicing and adjustment. It provides necessary servicing and adjustment. Never fill fuel tank with engine running, while smoking or when near.. Bobcat A300 Hydraulic Filter Location.
From autoepcservice.com
Bobcat Loader A300 Hydraulic & Electrical Schematic Bobcat A300 Hydraulic Filter Location It provides necessary servicing and adjustment. Ii a300 service manual foreword this manual is for the bobcat loader mechanic. Genuine bobcat parts meet bobcat engineering's stringent quality and reliability specifications in order to. It provides necessary servicing and adjustment. Genuine bobcat a300 loader operation and maintenance digital manual, 6987007pdf or owner's digital manual provides the owner or. It can penetrate. Bobcat A300 Hydraulic Filter Location.
From www.ebay.com
Hydraulic Oil Filter 6692337 for Bobcat A300 A770 S150 S250 S300 Bobcat A300 Hydraulic Filter Location It provides necessary servicing and adjustment. Genuine bobcat a300 loader operation and maintenance digital manual, 6987007pdf or owner's digital manual provides the owner or. Hydraulic fluid or diesel fuel under pressure. Genuine bobcat a300 loader digital service manual, 6986684pdf provides the owner or operator with detailed service information. Ii a300 service manual foreword this manual is for the bobcat loader. Bobcat A300 Hydraulic Filter Location.
From www.autorepairmanuals.ws
Bobcat Loader A300 Electrical and Hydraulic Schematic Auto Repair Bobcat A300 Hydraulic Filter Location Genuine bobcat parts meet bobcat engineering's stringent quality and reliability specifications in order to. It can penetrate the skin or eyes. It provides necessary servicing and adjustment. Ii a300 service manual foreword this manual is for the bobcat loader mechanic. It provides necessary servicing and adjustment. Genuine bobcat a300 loader operation and maintenance digital manual, 6987007pdf or owner's digital manual. Bobcat A300 Hydraulic Filter Location.
From www.ebay.com
6661022 Hydraulic Drain Case Filter For Bobcat 428 425 A220 A300 S100 Bobcat A300 Hydraulic Filter Location It provides necessary servicing and adjustment. It can penetrate the skin or eyes. Hydraulic fluid or diesel fuel under pressure. Ii a300 service manual foreword this manual is for the bobcat loader mechanic. Genuine bobcat a300 loader operation and maintenance digital manual, 6987007pdf or owner's digital manual provides the owner or. Never fill fuel tank with engine running, while smoking. Bobcat A300 Hydraulic Filter Location.
From togonyigba.tg
Hydraulic Oil Filter 6692337 for Bobcat A300 A770 S150 S160 S175 T300 Bobcat A300 Hydraulic Filter Location A300 bobcat loader ii service manual foreword this manual is for the bobcat loader mechanic. It can penetrate the skin or eyes. Genuine bobcat a300 loader operation and maintenance digital manual, 6987007pdf or owner's digital manual provides the owner or. Genuine bobcat parts meet bobcat engineering's stringent quality and reliability specifications in order to. Never fill fuel tank with engine. Bobcat A300 Hydraulic Filter Location.
From togonyigba.tg
Hydraulic Oil Filter 6692337 for Bobcat A300 A770 S150 S160 S175 T300 Bobcat A300 Hydraulic Filter Location It provides necessary servicing and adjustment. Ii a300 service manual foreword this manual is for the bobcat loader mechanic. Genuine bobcat a300 loader operation and maintenance digital manual, 6987007pdf or owner's digital manual provides the owner or. Never fill fuel tank with engine running, while smoking or when near. It can penetrate the skin or eyes. Hydraulic fluid or diesel. Bobcat A300 Hydraulic Filter Location.
From autoepcservice.com
Bobcat Loader A300 Electrical and Hydraulic Schematic Bobcat A300 Hydraulic Filter Location Genuine bobcat a300 loader operation and maintenance digital manual, 6987007pdf or owner's digital manual provides the owner or. Genuine bobcat parts meet bobcat engineering's stringent quality and reliability specifications in order to. Never fill fuel tank with engine running, while smoking or when near. Hydraulic fluid or diesel fuel under pressure. A300 bobcat loader ii service manual foreword this manual. Bobcat A300 Hydraulic Filter Location.
From www.fridayparts.com
buy Maintenance Filter Kit for Bobcat Skid Steer A300 S220 S250 S300 Bobcat A300 Hydraulic Filter Location Hydraulic fluid or diesel fuel under pressure. Genuine bobcat parts meet bobcat engineering's stringent quality and reliability specifications in order to. Genuine bobcat a300 loader operation and maintenance digital manual, 6987007pdf or owner's digital manual provides the owner or. It provides necessary servicing and adjustment. Ii a300 service manual foreword this manual is for the bobcat loader mechanic. Never fill. Bobcat A300 Hydraulic Filter Location.
From www.bobcat.com
How To Change a Round Style Air Filter on Bobcat Engines Bobcat Company Bobcat A300 Hydraulic Filter Location It can penetrate the skin or eyes. A300 bobcat loader ii service manual foreword this manual is for the bobcat loader mechanic. Never fill fuel tank with engine running, while smoking or when near. Hydraulic fluid or diesel fuel under pressure. Genuine bobcat a300 loader operation and maintenance digital manual, 6987007pdf or owner's digital manual provides the owner or. Genuine. Bobcat A300 Hydraulic Filter Location.
From www.scribd.com
Bobcat Filter Reference Guide Bobcat A300 Hydraulic Filter Location It provides necessary servicing and adjustment. Never fill fuel tank with engine running, while smoking or when near. Genuine bobcat a300 loader operation and maintenance digital manual, 6987007pdf or owner's digital manual provides the owner or. Genuine bobcat a300 loader digital service manual, 6986684pdf provides the owner or operator with detailed service information. It can penetrate the skin or eyes.. Bobcat A300 Hydraulic Filter Location.
From www.fridayparts.com
500 Hour Maintenance Filter Kit 7343869 for Bobcat Loader A300 Bobcat A300 Hydraulic Filter Location Ii a300 service manual foreword this manual is for the bobcat loader mechanic. Genuine bobcat a300 loader digital service manual, 6986684pdf provides the owner or operator with detailed service information. It provides necessary servicing and adjustment. Hydraulic fluid or diesel fuel under pressure. It can penetrate the skin or eyes. Genuine bobcat a300 loader operation and maintenance digital manual, 6987007pdf. Bobcat A300 Hydraulic Filter Location.
From www.aliexpress.com
6661022InLineHydraulicOilFilterAssembly6661807KV1341430HL67 Bobcat A300 Hydraulic Filter Location A300 bobcat loader ii service manual foreword this manual is for the bobcat loader mechanic. Genuine bobcat a300 loader operation and maintenance digital manual, 6987007pdf or owner's digital manual provides the owner or. Genuine bobcat parts meet bobcat engineering's stringent quality and reliability specifications in order to. Ii a300 service manual foreword this manual is for the bobcat loader mechanic.. Bobcat A300 Hydraulic Filter Location.
From www.amazon.in
YIHETOP Hydraulic Oil Filter 6686926 For Bobcat 3600 3650 A300 S130 Bobcat A300 Hydraulic Filter Location Genuine bobcat a300 loader operation and maintenance digital manual, 6987007pdf or owner's digital manual provides the owner or. It provides necessary servicing and adjustment. Genuine bobcat a300 loader digital service manual, 6986684pdf provides the owner or operator with detailed service information. It can penetrate the skin or eyes. Hydraulic fluid or diesel fuel under pressure. Genuine bobcat parts meet bobcat. Bobcat A300 Hydraulic Filter Location.
From www.enginegensetparts.com
Hydraulic Filter 6692337 P575347 H88110 For BOBCAT A300 A770 S130 S150 Bobcat A300 Hydraulic Filter Location Ii a300 service manual foreword this manual is for the bobcat loader mechanic. It can penetrate the skin or eyes. Hydraulic fluid or diesel fuel under pressure. It provides necessary servicing and adjustment. It provides necessary servicing and adjustment. A300 bobcat loader ii service manual foreword this manual is for the bobcat loader mechanic. Genuine bobcat a300 loader operation and. Bobcat A300 Hydraulic Filter Location.
From shop.bobcat.com
Hydraulic Oil Filter 6661248 Bobcat Company Bobcat A300 Hydraulic Filter Location Ii a300 service manual foreword this manual is for the bobcat loader mechanic. Genuine bobcat a300 loader operation and maintenance digital manual, 6987007pdf or owner's digital manual provides the owner or. It can penetrate the skin or eyes. Hydraulic fluid or diesel fuel under pressure. A300 bobcat loader ii service manual foreword this manual is for the bobcat loader mechanic.. Bobcat A300 Hydraulic Filter Location.
From www.epcatalogs.com
Bobcat Loader A300 Turbo Parts Manual PDF Bobcat A300 Hydraulic Filter Location Genuine bobcat a300 loader digital service manual, 6986684pdf provides the owner or operator with detailed service information. A300 bobcat loader ii service manual foreword this manual is for the bobcat loader mechanic. Hydraulic fluid or diesel fuel under pressure. It can penetrate the skin or eyes. Genuine bobcat a300 loader operation and maintenance digital manual, 6987007pdf or owner's digital manual. Bobcat A300 Hydraulic Filter Location.
From www.bobcat.com
How To Replace Hydraulic Fluid and Filters on Bobcat RSeries Loaders Bobcat A300 Hydraulic Filter Location Ii a300 service manual foreword this manual is for the bobcat loader mechanic. Hydraulic fluid or diesel fuel under pressure. It provides necessary servicing and adjustment. Never fill fuel tank with engine running, while smoking or when near. Genuine bobcat parts meet bobcat engineering's stringent quality and reliability specifications in order to. Genuine bobcat a300 loader operation and maintenance digital. Bobcat A300 Hydraulic Filter Location.
From www.bobcat.com
How To Replace Hydraulic Fluid on Bobcat Compact Excavators Bobcat Bobcat A300 Hydraulic Filter Location Genuine bobcat a300 loader digital service manual, 6986684pdf provides the owner or operator with detailed service information. Genuine bobcat parts meet bobcat engineering's stringent quality and reliability specifications in order to. It can penetrate the skin or eyes. Hydraulic fluid or diesel fuel under pressure. It provides necessary servicing and adjustment. A300 bobcat loader ii service manual foreword this manual. Bobcat A300 Hydraulic Filter Location.
From www.bobcat.com
How to Replace Hydraulic Fluid, Filters & Breather Cap on Toolcat Bobcat A300 Hydraulic Filter Location It provides necessary servicing and adjustment. It can penetrate the skin or eyes. Never fill fuel tank with engine running, while smoking or when near. Genuine bobcat a300 loader operation and maintenance digital manual, 6987007pdf or owner's digital manual provides the owner or. Hydraulic fluid or diesel fuel under pressure. It provides necessary servicing and adjustment. Genuine bobcat parts meet. Bobcat A300 Hydraulic Filter Location.
From www.heydownloads.com
Bobcat A300 Turbo A300 Turbo High Flow Loader Service Manual 6902728 (6 Bobcat A300 Hydraulic Filter Location Never fill fuel tank with engine running, while smoking or when near. A300 bobcat loader ii service manual foreword this manual is for the bobcat loader mechanic. Hydraulic fluid or diesel fuel under pressure. It can penetrate the skin or eyes. Genuine bobcat a300 loader digital service manual, 6986684pdf provides the owner or operator with detailed service information. It provides. Bobcat A300 Hydraulic Filter Location.
From autoepcservice.com
Bobcat Loader A300 Hydraulic & Electrical Schematic Bobcat A300 Hydraulic Filter Location Ii a300 service manual foreword this manual is for the bobcat loader mechanic. Hydraulic fluid or diesel fuel under pressure. A300 bobcat loader ii service manual foreword this manual is for the bobcat loader mechanic. Never fill fuel tank with engine running, while smoking or when near. It provides necessary servicing and adjustment. Genuine bobcat a300 loader operation and maintenance. Bobcat A300 Hydraulic Filter Location.
From www.fridayparts.com
buy Hydraulic Oil Filter 6692337 P575347 for Bobcat A300 A770 S150 S160 Bobcat A300 Hydraulic Filter Location A300 bobcat loader ii service manual foreword this manual is for the bobcat loader mechanic. It provides necessary servicing and adjustment. It provides necessary servicing and adjustment. Never fill fuel tank with engine running, while smoking or when near. Genuine bobcat parts meet bobcat engineering's stringent quality and reliability specifications in order to. It can penetrate the skin or eyes.. Bobcat A300 Hydraulic Filter Location.
From www.epcatalogs.com
Bobcat Loader A300 Turbo Parts Manual PDF Bobcat A300 Hydraulic Filter Location Genuine bobcat parts meet bobcat engineering's stringent quality and reliability specifications in order to. It provides necessary servicing and adjustment. Ii a300 service manual foreword this manual is for the bobcat loader mechanic. Genuine bobcat a300 loader digital service manual, 6986684pdf provides the owner or operator with detailed service information. Never fill fuel tank with engine running, while smoking or. Bobcat A300 Hydraulic Filter Location.