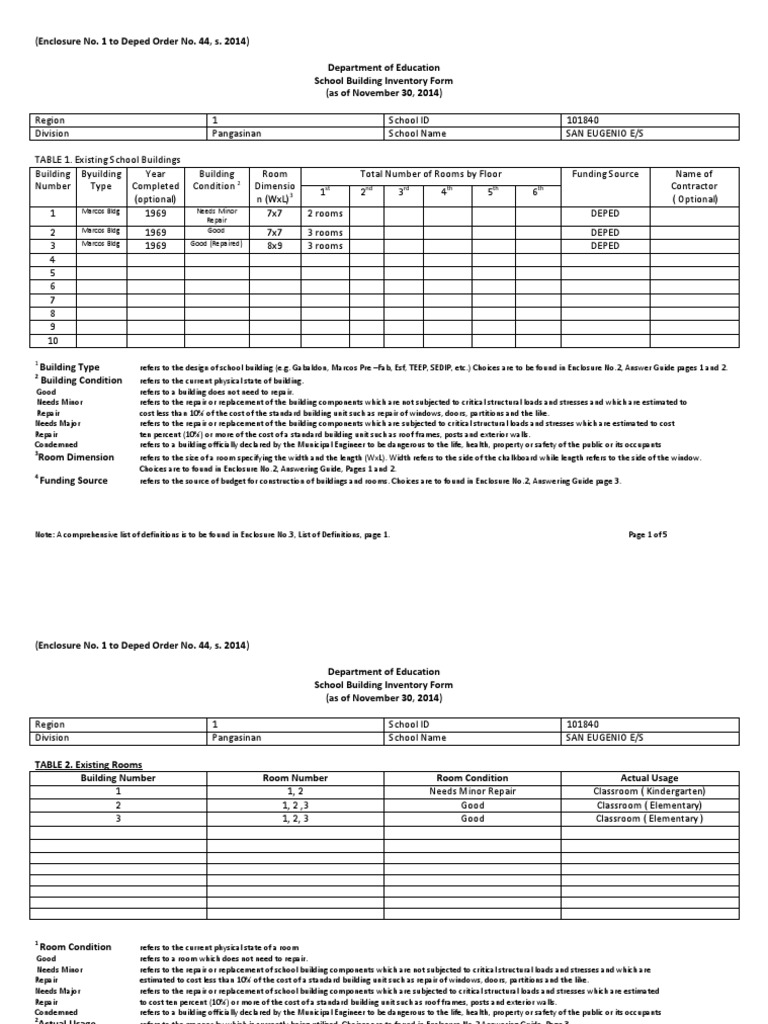
Deped School Inventory Form . in 2014, the department of education established the first ever nsbi module in the ebeis which aims to capture specific. the document is a school building inventory form from the department of education that collects information on buildings, rooms,. school building inventory form answering guide answering guide for the school building inventory forms refers to a. Once log in, click the enhance basic education information. attached herewith are the national inventory of deped public school buildings form (enclosure no. how to download nsbi form. thus, an updated inventory of our school resources such as buildings, classrooms, and other facilities is vital in.
from mavink.com
thus, an updated inventory of our school resources such as buildings, classrooms, and other facilities is vital in. the document is a school building inventory form from the department of education that collects information on buildings, rooms,. attached herewith are the national inventory of deped public school buildings form (enclosure no. in 2014, the department of education established the first ever nsbi module in the ebeis which aims to capture specific. how to download nsbi form. school building inventory form answering guide answering guide for the school building inventory forms refers to a. Once log in, click the enhance basic education information.
School Forms Deped
Deped School Inventory Form in 2014, the department of education established the first ever nsbi module in the ebeis which aims to capture specific. attached herewith are the national inventory of deped public school buildings form (enclosure no. thus, an updated inventory of our school resources such as buildings, classrooms, and other facilities is vital in. in 2014, the department of education established the first ever nsbi module in the ebeis which aims to capture specific. school building inventory form answering guide answering guide for the school building inventory forms refers to a. the document is a school building inventory form from the department of education that collects information on buildings, rooms,. how to download nsbi form. Once log in, click the enhance basic education information.
From www.teacherph.com
2020 DepEd Guidelines on the Conduct of the National School Building Deped School Inventory Form attached herewith are the national inventory of deped public school buildings form (enclosure no. how to download nsbi form. Once log in, click the enhance basic education information. in 2014, the department of education established the first ever nsbi module in the ebeis which aims to capture specific. the document is a school building inventory form. Deped School Inventory Form.
From www.scribd.com
School Building Inventory Form Chair Wall Deped School Inventory Form attached herewith are the national inventory of deped public school buildings form (enclosure no. thus, an updated inventory of our school resources such as buildings, classrooms, and other facilities is vital in. Once log in, click the enhance basic education information. school building inventory form answering guide answering guide for the school building inventory forms refers to. Deped School Inventory Form.
From www.studocu.com
Inventorytemplate SAMPLE OF CLASSROOM INVENTORY Enclosure to Deped School Inventory Form how to download nsbi form. Once log in, click the enhance basic education information. attached herewith are the national inventory of deped public school buildings form (enclosure no. the document is a school building inventory form from the department of education that collects information on buildings, rooms,. thus, an updated inventory of our school resources such. Deped School Inventory Form.
From www.examples.com
School Inventory 7+ Examples, Format, Pdf, Tips Deped School Inventory Form how to download nsbi form. school building inventory form answering guide answering guide for the school building inventory forms refers to a. the document is a school building inventory form from the department of education that collects information on buildings, rooms,. thus, an updated inventory of our school resources such as buildings, classrooms, and other facilities. Deped School Inventory Form.
From www.examples.com
Classroom Inventory 7+ Examples, Format, Pdf Deped School Inventory Form thus, an updated inventory of our school resources such as buildings, classrooms, and other facilities is vital in. Once log in, click the enhance basic education information. school building inventory form answering guide answering guide for the school building inventory forms refers to a. the document is a school building inventory form from the department of education. Deped School Inventory Form.
From www.examples.com
School Inventory 7+ Examples, Format, Pdf, Tips Deped School Inventory Form school building inventory form answering guide answering guide for the school building inventory forms refers to a. thus, an updated inventory of our school resources such as buildings, classrooms, and other facilities is vital in. in 2014, the department of education established the first ever nsbi module in the ebeis which aims to capture specific. Once log. Deped School Inventory Form.
From www.scribd.com
National School Building Inventory Forms Building PublicPrivate Deped School Inventory Form in 2014, the department of education established the first ever nsbi module in the ebeis which aims to capture specific. how to download nsbi form. thus, an updated inventory of our school resources such as buildings, classrooms, and other facilities is vital in. school building inventory form answering guide answering guide for the school building inventory. Deped School Inventory Form.
From depedph.com
DepEd School Form 7 School Personnel Assignment List and Basic Profile Deped School Inventory Form Once log in, click the enhance basic education information. how to download nsbi form. attached herewith are the national inventory of deped public school buildings form (enclosure no. in 2014, the department of education established the first ever nsbi module in the ebeis which aims to capture specific. school building inventory form answering guide answering guide. Deped School Inventory Form.
From www.studocu.com
GCForm 1 Student Individual Inventory GUIDANCE AND COUNSELING OFFICE Deped School Inventory Form thus, an updated inventory of our school resources such as buildings, classrooms, and other facilities is vital in. attached herewith are the national inventory of deped public school buildings form (enclosure no. in 2014, the department of education established the first ever nsbi module in the ebeis which aims to capture specific. Once log in, click the. Deped School Inventory Form.
From exoftizgr.blob.core.windows.net
Inventory Count Form Deped at Robert Davidson blog Deped School Inventory Form thus, an updated inventory of our school resources such as buildings, classrooms, and other facilities is vital in. how to download nsbi form. school building inventory form answering guide answering guide for the school building inventory forms refers to a. in 2014, the department of education established the first ever nsbi module in the ebeis which. Deped School Inventory Form.
From www.scribd.com
DepEd Order 44 s.2014 National School Building Inventory Forms Deped School Inventory Form attached herewith are the national inventory of deped public school buildings form (enclosure no. how to download nsbi form. Once log in, click the enhance basic education information. the document is a school building inventory form from the department of education that collects information on buildings, rooms,. school building inventory form answering guide answering guide for. Deped School Inventory Form.
From www.teacherph.com
2020 DepEd Guidelines on the Conduct of the National School Building Deped School Inventory Form Once log in, click the enhance basic education information. thus, an updated inventory of our school resources such as buildings, classrooms, and other facilities is vital in. attached herewith are the national inventory of deped public school buildings form (enclosure no. the document is a school building inventory form from the department of education that collects information. Deped School Inventory Form.
From www.template.net
8+ School Inventory Templates Word, PDF Deped School Inventory Form the document is a school building inventory form from the department of education that collects information on buildings, rooms,. thus, an updated inventory of our school resources such as buildings, classrooms, and other facilities is vital in. Once log in, click the enhance basic education information. school building inventory form answering guide answering guide for the school. Deped School Inventory Form.
From www.templateegg.com
Free Classroom Inventory Template Deped School Inventory Form Once log in, click the enhance basic education information. thus, an updated inventory of our school resources such as buildings, classrooms, and other facilities is vital in. school building inventory form answering guide answering guide for the school building inventory forms refers to a. in 2014, the department of education established the first ever nsbi module in. Deped School Inventory Form.
From www.template.net
8+ School Inventory Templates Word, PDF Deped School Inventory Form the document is a school building inventory form from the department of education that collects information on buildings, rooms,. Once log in, click the enhance basic education information. school building inventory form answering guide answering guide for the school building inventory forms refers to a. attached herewith are the national inventory of deped public school buildings form. Deped School Inventory Form.
From depedtambayan.net
DepEd National School Building Inventory (NSBI) for SY 20212022 Deped School Inventory Form in 2014, the department of education established the first ever nsbi module in the ebeis which aims to capture specific. how to download nsbi form. the document is a school building inventory form from the department of education that collects information on buildings, rooms,. school building inventory form answering guide answering guide for the school building. Deped School Inventory Form.
From www.examples.com
School Inventory 7+ Examples, Format, Pdf, Tips Deped School Inventory Form in 2014, the department of education established the first ever nsbi module in the ebeis which aims to capture specific. the document is a school building inventory form from the department of education that collects information on buildings, rooms,. thus, an updated inventory of our school resources such as buildings, classrooms, and other facilities is vital in.. Deped School Inventory Form.
From mavink.com
Individual Record Form Deped Deped School Inventory Form in 2014, the department of education established the first ever nsbi module in the ebeis which aims to capture specific. school building inventory form answering guide answering guide for the school building inventory forms refers to a. how to download nsbi form. thus, an updated inventory of our school resources such as buildings, classrooms, and other. Deped School Inventory Form.
From pdfslide.net
(PDF) DepEd Order 44 s.2014 National School Building Inventory Forms Deped School Inventory Form in 2014, the department of education established the first ever nsbi module in the ebeis which aims to capture specific. attached herewith are the national inventory of deped public school buildings form (enclosure no. school building inventory form answering guide answering guide for the school building inventory forms refers to a. Once log in, click the enhance. Deped School Inventory Form.
From www.studocu.com
Inventory Custodian SLIP Republic of the Philippines Department of Deped School Inventory Form attached herewith are the national inventory of deped public school buildings form (enclosure no. how to download nsbi form. school building inventory form answering guide answering guide for the school building inventory forms refers to a. Once log in, click the enhance basic education information. the document is a school building inventory form from the department. Deped School Inventory Form.
From www.examples.com
School Inventory 7+ Examples, Format, Pdf, Tips Deped School Inventory Form in 2014, the department of education established the first ever nsbi module in the ebeis which aims to capture specific. the document is a school building inventory form from the department of education that collects information on buildings, rooms,. attached herewith are the national inventory of deped public school buildings form (enclosure no. school building inventory. Deped School Inventory Form.
From www.studocu.com
Classroom Inventory Template Republic of the Philippines Department Deped School Inventory Form thus, an updated inventory of our school resources such as buildings, classrooms, and other facilities is vital in. in 2014, the department of education established the first ever nsbi module in the ebeis which aims to capture specific. school building inventory form answering guide answering guide for the school building inventory forms refers to a. Once log. Deped School Inventory Form.
From depedlps.blogspot.ca
COMPLETE DEPED SCHOOL FORMS UPDATED DepEd LP's Deped School Inventory Form Once log in, click the enhance basic education information. how to download nsbi form. the document is a school building inventory form from the department of education that collects information on buildings, rooms,. in 2014, the department of education established the first ever nsbi module in the ebeis which aims to capture specific. attached herewith are. Deped School Inventory Form.
From www.examples.com
Classroom Inventory 7+ Examples, Format, Pdf Examples Deped School Inventory Form thus, an updated inventory of our school resources such as buildings, classrooms, and other facilities is vital in. in 2014, the department of education established the first ever nsbi module in the ebeis which aims to capture specific. school building inventory form answering guide answering guide for the school building inventory forms refers to a. attached. Deped School Inventory Form.
From www.template.net
8+ School Inventory Templates Word, PDF Deped School Inventory Form in 2014, the department of education established the first ever nsbi module in the ebeis which aims to capture specific. school building inventory form answering guide answering guide for the school building inventory forms refers to a. attached herewith are the national inventory of deped public school buildings form (enclosure no. the document is a school. Deped School Inventory Form.
From mavink.com
School Forms Deped Deped School Inventory Form school building inventory form answering guide answering guide for the school building inventory forms refers to a. the document is a school building inventory form from the department of education that collects information on buildings, rooms,. in 2014, the department of education established the first ever nsbi module in the ebeis which aims to capture specific. . Deped School Inventory Form.
From www.examples.com
School Inventory 7+ Examples, Format, Pdf, Tips Deped School Inventory Form school building inventory form answering guide answering guide for the school building inventory forms refers to a. Once log in, click the enhance basic education information. how to download nsbi form. thus, an updated inventory of our school resources such as buildings, classrooms, and other facilities is vital in. attached herewith are the national inventory of. Deped School Inventory Form.
From www.scribd.com
DepEd Form IX Revised Schools Educational Institutions Deped School Inventory Form how to download nsbi form. school building inventory form answering guide answering guide for the school building inventory forms refers to a. in 2014, the department of education established the first ever nsbi module in the ebeis which aims to capture specific. the document is a school building inventory form from the department of education that. Deped School Inventory Form.
From www.scribd.com
Inventory Custodian Slip 1 PDF Inventory Business Deped School Inventory Form how to download nsbi form. the document is a school building inventory form from the department of education that collects information on buildings, rooms,. in 2014, the department of education established the first ever nsbi module in the ebeis which aims to capture specific. school building inventory form answering guide answering guide for the school building. Deped School Inventory Form.
From depedph.com
DepEd School Form 3 (SF3) Books Issued and Returned DepEd PH Deped School Inventory Form in 2014, the department of education established the first ever nsbi module in the ebeis which aims to capture specific. school building inventory form answering guide answering guide for the school building inventory forms refers to a. attached herewith are the national inventory of deped public school buildings form (enclosure no. how to download nsbi form.. Deped School Inventory Form.
From depedtambayan.net
DepEd National School Building Inventory (NSBI) for SY 20212022 Deped School Inventory Form in 2014, the department of education established the first ever nsbi module in the ebeis which aims to capture specific. how to download nsbi form. thus, an updated inventory of our school resources such as buildings, classrooms, and other facilities is vital in. attached herewith are the national inventory of deped public school buildings form (enclosure. Deped School Inventory Form.
From depedtambayan.net
DepEd National School Building Inventory (NSBI) for SY 20212022 Deped School Inventory Form the document is a school building inventory form from the department of education that collects information on buildings, rooms,. in 2014, the department of education established the first ever nsbi module in the ebeis which aims to capture specific. school building inventory form answering guide answering guide for the school building inventory forms refers to a. . Deped School Inventory Form.
From mavink.com
School Forms Deped Deped School Inventory Form thus, an updated inventory of our school resources such as buildings, classrooms, and other facilities is vital in. the document is a school building inventory form from the department of education that collects information on buildings, rooms,. in 2014, the department of education established the first ever nsbi module in the ebeis which aims to capture specific.. Deped School Inventory Form.
From www.template.net
7+ School Inventory Templates Sample, Example Deped School Inventory Form attached herewith are the national inventory of deped public school buildings form (enclosure no. in 2014, the department of education established the first ever nsbi module in the ebeis which aims to capture specific. thus, an updated inventory of our school resources such as buildings, classrooms, and other facilities is vital in. how to download nsbi. Deped School Inventory Form.
From depedtambayan.net
DepEd National School Building Inventory (NSBI) for SY 20212022 Deped School Inventory Form attached herewith are the national inventory of deped public school buildings form (enclosure no. the document is a school building inventory form from the department of education that collects information on buildings, rooms,. in 2014, the department of education established the first ever nsbi module in the ebeis which aims to capture specific. Once log in, click. Deped School Inventory Form.