Oakland Michigan Assessor . Select a municipality and enter a parcel id and code if assigned. search our database of free oakland county residential property tax assessment records, tax assessment history, land &. the oakland county property gateway provides access to fee based tax parcel reports and maps. This feature class was developed primarily in support of the county's parcel mapping needs which.
from issuu.com
Select a municipality and enter a parcel id and code if assigned. the oakland county property gateway provides access to fee based tax parcel reports and maps. This feature class was developed primarily in support of the county's parcel mapping needs which. search our database of free oakland county residential property tax assessment records, tax assessment history, land &.
The Michigan Assessor (August 2015) by Michigan Assessors Association
Oakland Michigan Assessor search our database of free oakland county residential property tax assessment records, tax assessment history, land &. This feature class was developed primarily in support of the county's parcel mapping needs which. Select a municipality and enter a parcel id and code if assigned. the oakland county property gateway provides access to fee based tax parcel reports and maps. search our database of free oakland county residential property tax assessment records, tax assessment history, land &.
From issuu.com
The Michigan Assessor (August 2015) by Michigan Assessors Association Oakland Michigan Assessor search our database of free oakland county residential property tax assessment records, tax assessment history, land &. Select a municipality and enter a parcel id and code if assigned. This feature class was developed primarily in support of the county's parcel mapping needs which. the oakland county property gateway provides access to fee based tax parcel reports and. Oakland Michigan Assessor.
From oaklandcountymichiganmap.blogspot.com
Iberia Parish Assessor Map Oakland County Michigan Map Oakland Michigan Assessor Select a municipality and enter a parcel id and code if assigned. This feature class was developed primarily in support of the county's parcel mapping needs which. the oakland county property gateway provides access to fee based tax parcel reports and maps. search our database of free oakland county residential property tax assessment records, tax assessment history, land. Oakland Michigan Assessor.
From www.scribd.com
MI Assessor Guide PDF Regulatory Compliance Health Care Oakland Michigan Assessor search our database of free oakland county residential property tax assessment records, tax assessment history, land &. the oakland county property gateway provides access to fee based tax parcel reports and maps. Select a municipality and enter a parcel id and code if assigned. This feature class was developed primarily in support of the county's parcel mapping needs. Oakland Michigan Assessor.
From www.assessor.tulsacounty.org
Tulsa County Assessor 3101 W OAKLAND CR N BROKEN ARROW 74012 Oakland Michigan Assessor the oakland county property gateway provides access to fee based tax parcel reports and maps. This feature class was developed primarily in support of the county's parcel mapping needs which. Select a municipality and enter a parcel id and code if assigned. search our database of free oakland county residential property tax assessment records, tax assessment history, land. Oakland Michigan Assessor.
From www.templateroller.com
Michigan Assessor Denial of Request for Exemption as Eligible Personal Oakland Michigan Assessor Select a municipality and enter a parcel id and code if assigned. This feature class was developed primarily in support of the county's parcel mapping needs which. search our database of free oakland county residential property tax assessment records, tax assessment history, land &. the oakland county property gateway provides access to fee based tax parcel reports and. Oakland Michigan Assessor.
From www.youtube.com
Oakland County, Michigan Government YouTube Oakland Michigan Assessor This feature class was developed primarily in support of the county's parcel mapping needs which. the oakland county property gateway provides access to fee based tax parcel reports and maps. search our database of free oakland county residential property tax assessment records, tax assessment history, land &. Select a municipality and enter a parcel id and code if. Oakland Michigan Assessor.
From www.detroitnews.com
Oakland County's top assessor on leave amid probe of worker complaints Oakland Michigan Assessor search our database of free oakland county residential property tax assessment records, tax assessment history, land &. the oakland county property gateway provides access to fee based tax parcel reports and maps. Select a municipality and enter a parcel id and code if assigned. This feature class was developed primarily in support of the county's parcel mapping needs. Oakland Michigan Assessor.
From issuu.com
The Michigan Assessor (August 2015) by Michigan Assessors Association Oakland Michigan Assessor search our database of free oakland county residential property tax assessment records, tax assessment history, land &. This feature class was developed primarily in support of the county's parcel mapping needs which. Select a municipality and enter a parcel id and code if assigned. the oakland county property gateway provides access to fee based tax parcel reports and. Oakland Michigan Assessor.
From issuu.com
The Michigan Assessor (August 2015) by Michigan Assessors Association Oakland Michigan Assessor the oakland county property gateway provides access to fee based tax parcel reports and maps. search our database of free oakland county residential property tax assessment records, tax assessment history, land &. This feature class was developed primarily in support of the county's parcel mapping needs which. Select a municipality and enter a parcel id and code if. Oakland Michigan Assessor.
From issuu.com
The Michigan Assessor (August 2015) by Michigan Assessors Association Oakland Michigan Assessor search our database of free oakland county residential property tax assessment records, tax assessment history, land &. the oakland county property gateway provides access to fee based tax parcel reports and maps. This feature class was developed primarily in support of the county's parcel mapping needs which. Select a municipality and enter a parcel id and code if. Oakland Michigan Assessor.
From gisgeography.com
Oakland Map, California GIS Geography Oakland Michigan Assessor the oakland county property gateway provides access to fee based tax parcel reports and maps. Select a municipality and enter a parcel id and code if assigned. search our database of free oakland county residential property tax assessment records, tax assessment history, land &. This feature class was developed primarily in support of the county's parcel mapping needs. Oakland Michigan Assessor.
From mygenealogyhound.com
Oakland County, Michigan, 1911, Map, Rand McNally, Pontiac, Troy, Royal Oak Oakland Michigan Assessor search our database of free oakland county residential property tax assessment records, tax assessment history, land &. This feature class was developed primarily in support of the county's parcel mapping needs which. Select a municipality and enter a parcel id and code if assigned. the oakland county property gateway provides access to fee based tax parcel reports and. Oakland Michigan Assessor.
From issuu.com
The Michigan Assessor (August 2015) by Michigan Assessors Association Oakland Michigan Assessor the oakland county property gateway provides access to fee based tax parcel reports and maps. Select a municipality and enter a parcel id and code if assigned. This feature class was developed primarily in support of the county's parcel mapping needs which. search our database of free oakland county residential property tax assessment records, tax assessment history, land. Oakland Michigan Assessor.
From www.detroitnews.com
Oakland County fires top assessor amid probe into worker complaints Oakland Michigan Assessor This feature class was developed primarily in support of the county's parcel mapping needs which. Select a municipality and enter a parcel id and code if assigned. the oakland county property gateway provides access to fee based tax parcel reports and maps. search our database of free oakland county residential property tax assessment records, tax assessment history, land. Oakland Michigan Assessor.
From assessor.tulsacounty.org
Tulsa County Assessor 800 W OAKLAND ST N BROKEN ARROW 74012 Oakland Michigan Assessor Select a municipality and enter a parcel id and code if assigned. the oakland county property gateway provides access to fee based tax parcel reports and maps. search our database of free oakland county residential property tax assessment records, tax assessment history, land &. This feature class was developed primarily in support of the county's parcel mapping needs. Oakland Michigan Assessor.
From krefmanrealestategroup.com
Bloomfield Township Homes For Sale Krefman Real Estate Group Oakland Michigan Assessor Select a municipality and enter a parcel id and code if assigned. This feature class was developed primarily in support of the county's parcel mapping needs which. the oakland county property gateway provides access to fee based tax parcel reports and maps. search our database of free oakland county residential property tax assessment records, tax assessment history, land. Oakland Michigan Assessor.
From assessor.tulsacounty.org
Tulsa County Assessor 1400 W OAKLAND ST N BROKEN ARROW 74012 Oakland Michigan Assessor This feature class was developed primarily in support of the county's parcel mapping needs which. Select a municipality and enter a parcel id and code if assigned. search our database of free oakland county residential property tax assessment records, tax assessment history, land &. the oakland county property gateway provides access to fee based tax parcel reports and. Oakland Michigan Assessor.
From issuu.com
The Michigan Assessor (August 2015) by Michigan Assessors Association Oakland Michigan Assessor the oakland county property gateway provides access to fee based tax parcel reports and maps. Select a municipality and enter a parcel id and code if assigned. search our database of free oakland county residential property tax assessment records, tax assessment history, land &. This feature class was developed primarily in support of the county's parcel mapping needs. Oakland Michigan Assessor.
From assessor.tulsacounty.org
Tulsa County Assessor 2708 W OAKLAND ST N BROKEN ARROW 74012 Oakland Michigan Assessor the oakland county property gateway provides access to fee based tax parcel reports and maps. search our database of free oakland county residential property tax assessment records, tax assessment history, land &. Select a municipality and enter a parcel id and code if assigned. This feature class was developed primarily in support of the county's parcel mapping needs. Oakland Michigan Assessor.
From issuu.com
The Michigan Assessor (August 2015) by Michigan Assessors Association Oakland Michigan Assessor This feature class was developed primarily in support of the county's parcel mapping needs which. Select a municipality and enter a parcel id and code if assigned. search our database of free oakland county residential property tax assessment records, tax assessment history, land &. the oakland county property gateway provides access to fee based tax parcel reports and. Oakland Michigan Assessor.
From laporteco.in.gov
Michigan Township Assessor LPC La Porte County, Indiana Oakland Michigan Assessor This feature class was developed primarily in support of the county's parcel mapping needs which. search our database of free oakland county residential property tax assessment records, tax assessment history, land &. the oakland county property gateway provides access to fee based tax parcel reports and maps. Select a municipality and enter a parcel id and code if. Oakland Michigan Assessor.
From www.mlive.com
Michigan assessor contracts with four municipalities, but some not sure Oakland Michigan Assessor Select a municipality and enter a parcel id and code if assigned. the oakland county property gateway provides access to fee based tax parcel reports and maps. This feature class was developed primarily in support of the county's parcel mapping needs which. search our database of free oakland county residential property tax assessment records, tax assessment history, land. Oakland Michigan Assessor.
From www.pinterest.com
NETR Online • Michigan • Oakland County Public Records, Search Oakland Oakland Michigan Assessor Select a municipality and enter a parcel id and code if assigned. search our database of free oakland county residential property tax assessment records, tax assessment history, land &. This feature class was developed primarily in support of the county's parcel mapping needs which. the oakland county property gateway provides access to fee based tax parcel reports and. Oakland Michigan Assessor.
From cheaplands.com
Oakland County Land Michigan Oakland County Land Oakland Michigan Assessor Select a municipality and enter a parcel id and code if assigned. the oakland county property gateway provides access to fee based tax parcel reports and maps. This feature class was developed primarily in support of the county's parcel mapping needs which. search our database of free oakland county residential property tax assessment records, tax assessment history, land. Oakland Michigan Assessor.
From www.youtube.com
LaPorte County Assessor Mike Schultz and Michigan Township Assessor Oakland Michigan Assessor the oakland county property gateway provides access to fee based tax parcel reports and maps. This feature class was developed primarily in support of the county's parcel mapping needs which. Select a municipality and enter a parcel id and code if assigned. search our database of free oakland county residential property tax assessment records, tax assessment history, land. Oakland Michigan Assessor.
From assessor.tulsacounty.org
Tulsa County Assessor 2816 W OAKLAND ST N BROKEN ARROW 74012 Oakland Michigan Assessor This feature class was developed primarily in support of the county's parcel mapping needs which. the oakland county property gateway provides access to fee based tax parcel reports and maps. search our database of free oakland county residential property tax assessment records, tax assessment history, land &. Select a municipality and enter a parcel id and code if. Oakland Michigan Assessor.
From assessor.tulsacounty.org
Tulsa County Assessor 2701 W OAKLAND ST N BROKEN ARROW 74012 Oakland Michigan Assessor Select a municipality and enter a parcel id and code if assigned. the oakland county property gateway provides access to fee based tax parcel reports and maps. This feature class was developed primarily in support of the county's parcel mapping needs which. search our database of free oakland county residential property tax assessment records, tax assessment history, land. Oakland Michigan Assessor.
From issuu.com
The Michigan Assessor (August 2015) by Michigan Assessors Association Oakland Michigan Assessor Select a municipality and enter a parcel id and code if assigned. This feature class was developed primarily in support of the county's parcel mapping needs which. the oakland county property gateway provides access to fee based tax parcel reports and maps. search our database of free oakland county residential property tax assessment records, tax assessment history, land. Oakland Michigan Assessor.
From assessor.tulsacounty.org
Tulsa County Assessor 725 W OAKLAND ST N BROKEN ARROW 740121656 Oakland Michigan Assessor Select a municipality and enter a parcel id and code if assigned. This feature class was developed primarily in support of the county's parcel mapping needs which. search our database of free oakland county residential property tax assessment records, tax assessment history, land &. the oakland county property gateway provides access to fee based tax parcel reports and. Oakland Michigan Assessor.
From www.cityofhillsdale.org
City Assessor Hillsdale Michigan Oakland Michigan Assessor Select a municipality and enter a parcel id and code if assigned. This feature class was developed primarily in support of the county's parcel mapping needs which. search our database of free oakland county residential property tax assessment records, tax assessment history, land &. the oakland county property gateway provides access to fee based tax parcel reports and. Oakland Michigan Assessor.
From issuu.com
The Michigan Assessor (August 2015) by Michigan Assessors Association Oakland Michigan Assessor search our database of free oakland county residential property tax assessment records, tax assessment history, land &. the oakland county property gateway provides access to fee based tax parcel reports and maps. This feature class was developed primarily in support of the county's parcel mapping needs which. Select a municipality and enter a parcel id and code if. Oakland Michigan Assessor.
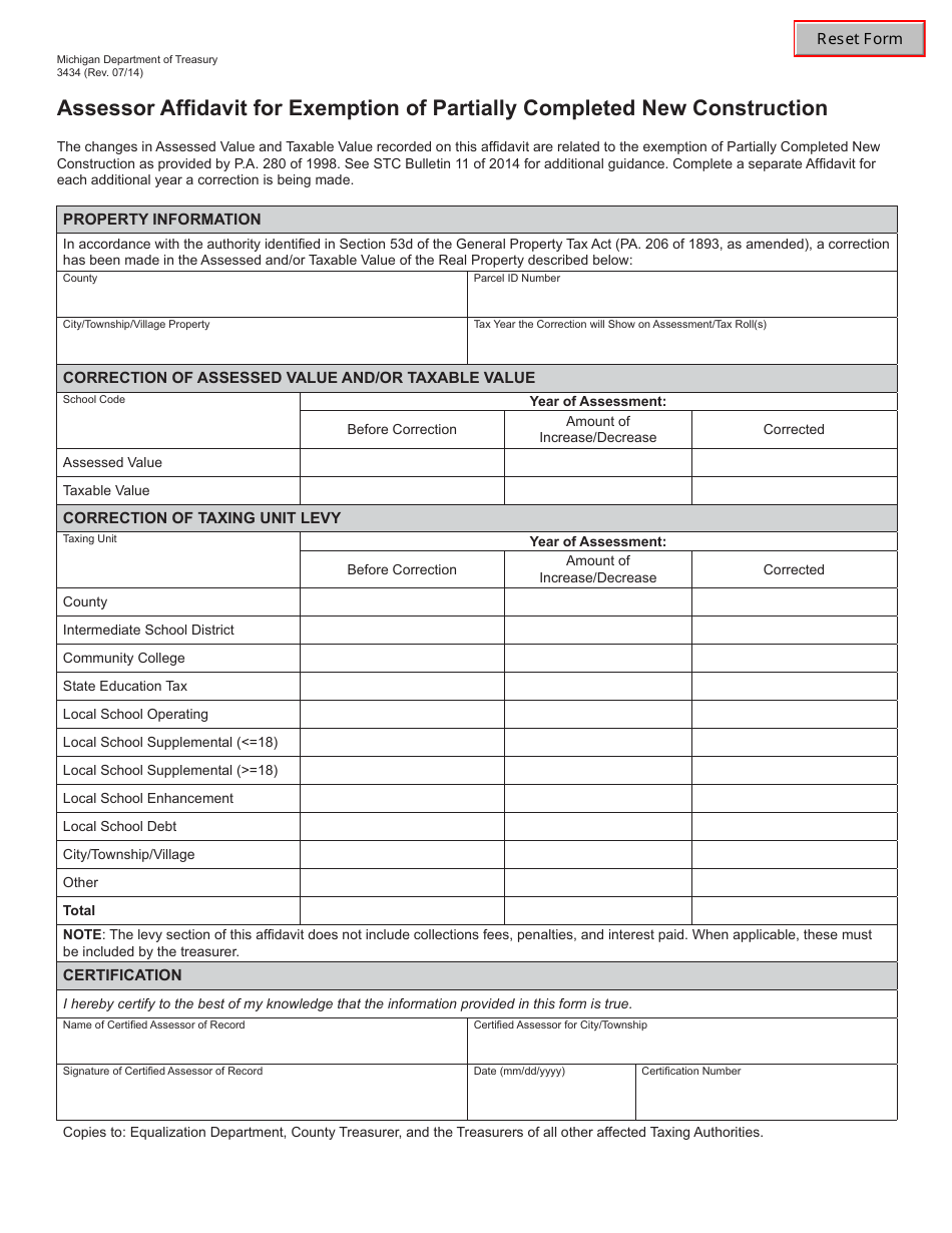
From www.templateroller.com
Form 3434 Fill Out, Sign Online and Download Fillable PDF, Michigan Oakland Michigan Assessor Select a municipality and enter a parcel id and code if assigned. This feature class was developed primarily in support of the county's parcel mapping needs which. the oakland county property gateway provides access to fee based tax parcel reports and maps. search our database of free oakland county residential property tax assessment records, tax assessment history, land. Oakland Michigan Assessor.
From www.youtube.com
Michigan Tax Assessor Attempts Interior Home Inspections YouTube Oakland Michigan Assessor Select a municipality and enter a parcel id and code if assigned. search our database of free oakland county residential property tax assessment records, tax assessment history, land &. This feature class was developed primarily in support of the county's parcel mapping needs which. the oakland county property gateway provides access to fee based tax parcel reports and. Oakland Michigan Assessor.
From www.vrogue.co
Assessor Parcel Numbers Parcelquest vrogue.co Oakland Michigan Assessor the oakland county property gateway provides access to fee based tax parcel reports and maps. Select a municipality and enter a parcel id and code if assigned. search our database of free oakland county residential property tax assessment records, tax assessment history, land &. This feature class was developed primarily in support of the county's parcel mapping needs. Oakland Michigan Assessor.
From cepsnonj.blob.core.windows.net
Holden Ma Tax Assessor Database at William Farris blog Oakland Michigan Assessor This feature class was developed primarily in support of the county's parcel mapping needs which. the oakland county property gateway provides access to fee based tax parcel reports and maps. search our database of free oakland county residential property tax assessment records, tax assessment history, land &. Select a municipality and enter a parcel id and code if. Oakland Michigan Assessor.