Requirements To Be An Appraiser In California . As a california licensed real estate appraiser trainee, you will be able to complete inspections and appraisal reports under the direct supervision of a certified appraiser. Due to statutory changes this year, beginning in 2023, there will be new educational requirements on applicants and licensees related to cultural. To become a real estate appraiser in california, you must complete 150 hours of appraisal education, gain experience working under a licensed appraiser, pass the. The required core curriculum to become a california trainee appraiser totals 150 hours. You need to be a trainee appraiser no matter what, but once you have your trainee license, you can simply continue earning qualifying and required education and experience to go. Initial appraiser requirements supervisor and trainee requirements upgrade requirements appraisal management company information.
from www.slideshare.net
Due to statutory changes this year, beginning in 2023, there will be new educational requirements on applicants and licensees related to cultural. As a california licensed real estate appraiser trainee, you will be able to complete inspections and appraisal reports under the direct supervision of a certified appraiser. The required core curriculum to become a california trainee appraiser totals 150 hours. You need to be a trainee appraiser no matter what, but once you have your trainee license, you can simply continue earning qualifying and required education and experience to go. Initial appraiser requirements supervisor and trainee requirements upgrade requirements appraisal management company information. To become a real estate appraiser in california, you must complete 150 hours of appraisal education, gain experience working under a licensed appraiser, pass the.
California Real Estate Appraiser License Requirements
Requirements To Be An Appraiser In California You need to be a trainee appraiser no matter what, but once you have your trainee license, you can simply continue earning qualifying and required education and experience to go. The required core curriculum to become a california trainee appraiser totals 150 hours. As a california licensed real estate appraiser trainee, you will be able to complete inspections and appraisal reports under the direct supervision of a certified appraiser. To become a real estate appraiser in california, you must complete 150 hours of appraisal education, gain experience working under a licensed appraiser, pass the. You need to be a trainee appraiser no matter what, but once you have your trainee license, you can simply continue earning qualifying and required education and experience to go. Initial appraiser requirements supervisor and trainee requirements upgrade requirements appraisal management company information. Due to statutory changes this year, beginning in 2023, there will be new educational requirements on applicants and licensees related to cultural.
From www.pinterest.com
a Real Estate Appraiser in 7 Steps Real estate, Estates, Real Requirements To Be An Appraiser In California Due to statutory changes this year, beginning in 2023, there will be new educational requirements on applicants and licensees related to cultural. The required core curriculum to become a california trainee appraiser totals 150 hours. You need to be a trainee appraiser no matter what, but once you have your trainee license, you can simply continue earning qualifying and required. Requirements To Be An Appraiser In California.
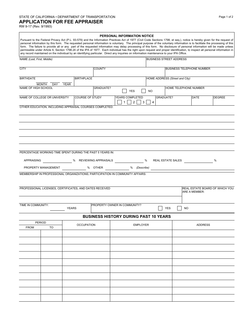
From www.pdffiller.com
Fillable Online orea ca FAQs Appraiser Independence Requirements Fax Requirements To Be An Appraiser In California Due to statutory changes this year, beginning in 2023, there will be new educational requirements on applicants and licensees related to cultural. Initial appraiser requirements supervisor and trainee requirements upgrade requirements appraisal management company information. The required core curriculum to become a california trainee appraiser totals 150 hours. To become a real estate appraiser in california, you must complete 150. Requirements To Be An Appraiser In California.
From www.realestateskills.com
How Much Is A Home Appraisal In California (2024) Requirements To Be An Appraiser In California To become a real estate appraiser in california, you must complete 150 hours of appraisal education, gain experience working under a licensed appraiser, pass the. As a california licensed real estate appraiser trainee, you will be able to complete inspections and appraisal reports under the direct supervision of a certified appraiser. You need to be a trainee appraiser no matter. Requirements To Be An Appraiser In California.
From www.slideshare.net
California Real Estate Appraiser License Requirements Requirements To Be An Appraiser In California Initial appraiser requirements supervisor and trainee requirements upgrade requirements appraisal management company information. Due to statutory changes this year, beginning in 2023, there will be new educational requirements on applicants and licensees related to cultural. You need to be a trainee appraiser no matter what, but once you have your trainee license, you can simply continue earning qualifying and required. Requirements To Be An Appraiser In California.
From california.licenselookup.org
California Appraiser License License Lookup Requirements To Be An Appraiser In California To become a real estate appraiser in california, you must complete 150 hours of appraisal education, gain experience working under a licensed appraiser, pass the. The required core curriculum to become a california trainee appraiser totals 150 hours. As a california licensed real estate appraiser trainee, you will be able to complete inspections and appraisal reports under the direct supervision. Requirements To Be An Appraiser In California.
From coinseed-properties.com
How A lot Is A Residence Appraisal In California (2024) coinseed Requirements To Be An Appraiser In California Initial appraiser requirements supervisor and trainee requirements upgrade requirements appraisal management company information. The required core curriculum to become a california trainee appraiser totals 150 hours. You need to be a trainee appraiser no matter what, but once you have your trainee license, you can simply continue earning qualifying and required education and experience to go. To become a real. Requirements To Be An Appraiser In California.
From www.realestatelicensetraining.com
Comparing the 5 Best Real Estate Appraisal Courses in California for 2023 Requirements To Be An Appraiser In California Due to statutory changes this year, beginning in 2023, there will be new educational requirements on applicants and licensees related to cultural. Initial appraiser requirements supervisor and trainee requirements upgrade requirements appraisal management company information. The required core curriculum to become a california trainee appraiser totals 150 hours. You need to be a trainee appraiser no matter what, but once. Requirements To Be An Appraiser In California.
From studylib.net
Basic Appraisal Principles California Chapter • ASFMRA Requirements To Be An Appraiser In California As a california licensed real estate appraiser trainee, you will be able to complete inspections and appraisal reports under the direct supervision of a certified appraiser. Initial appraiser requirements supervisor and trainee requirements upgrade requirements appraisal management company information. You need to be a trainee appraiser no matter what, but once you have your trainee license, you can simply continue. Requirements To Be An Appraiser In California.
From www.templateroller.com
Form RW917 Fill Out, Sign Online and Download Fillable PDF Requirements To Be An Appraiser In California The required core curriculum to become a california trainee appraiser totals 150 hours. As a california licensed real estate appraiser trainee, you will be able to complete inspections and appraisal reports under the direct supervision of a certified appraiser. You need to be a trainee appraiser no matter what, but once you have your trainee license, you can simply continue. Requirements To Be An Appraiser In California.
From coinseed-properties.com
How A lot Is A Residence Appraisal In California (2024) coinseed Requirements To Be An Appraiser In California The required core curriculum to become a california trainee appraiser totals 150 hours. To become a real estate appraiser in california, you must complete 150 hours of appraisal education, gain experience working under a licensed appraiser, pass the. As a california licensed real estate appraiser trainee, you will be able to complete inspections and appraisal reports under the direct supervision. Requirements To Be An Appraiser In California.
From jd-appraisals.com
JD Appraisals California Residential Appraisals Requirements To Be An Appraiser In California Initial appraiser requirements supervisor and trainee requirements upgrade requirements appraisal management company information. As a california licensed real estate appraiser trainee, you will be able to complete inspections and appraisal reports under the direct supervision of a certified appraiser. To become a real estate appraiser in california, you must complete 150 hours of appraisal education, gain experience working under a. Requirements To Be An Appraiser In California.
From www.youtube.com
How to a Real Estate Appraiser in California? (License Requirements To Be An Appraiser In California As a california licensed real estate appraiser trainee, you will be able to complete inspections and appraisal reports under the direct supervision of a certified appraiser. Initial appraiser requirements supervisor and trainee requirements upgrade requirements appraisal management company information. You need to be a trainee appraiser no matter what, but once you have your trainee license, you can simply continue. Requirements To Be An Appraiser In California.
From paperwingrvice.web.fc2.com
What are the FHA appraisal requirements? Requirements To Be An Appraiser In California The required core curriculum to become a california trainee appraiser totals 150 hours. As a california licensed real estate appraiser trainee, you will be able to complete inspections and appraisal reports under the direct supervision of a certified appraiser. You need to be a trainee appraiser no matter what, but once you have your trainee license, you can simply continue. Requirements To Be An Appraiser In California.
From www.slideshare.net
Real Estate Appraiser California Requirements To Be An Appraiser In California The required core curriculum to become a california trainee appraiser totals 150 hours. Initial appraiser requirements supervisor and trainee requirements upgrade requirements appraisal management company information. As a california licensed real estate appraiser trainee, you will be able to complete inspections and appraisal reports under the direct supervision of a certified appraiser. Due to statutory changes this year, beginning in. Requirements To Be An Appraiser In California.
From www.vaned.com
How to Get a Real Estate Appraisal License VanEd Requirements To Be An Appraiser In California Due to statutory changes this year, beginning in 2023, there will be new educational requirements on applicants and licensees related to cultural. To become a real estate appraiser in california, you must complete 150 hours of appraisal education, gain experience working under a licensed appraiser, pass the. As a california licensed real estate appraiser trainee, you will be able to. Requirements To Be An Appraiser In California.
From www.youtube.com
What do appraisers look for? Real estate appraisal How to prepare Requirements To Be An Appraiser In California To become a real estate appraiser in california, you must complete 150 hours of appraisal education, gain experience working under a licensed appraiser, pass the. Initial appraiser requirements supervisor and trainee requirements upgrade requirements appraisal management company information. Due to statutory changes this year, beginning in 2023, there will be new educational requirements on applicants and licensees related to cultural.. Requirements To Be An Appraiser In California.
From www.realestateskills.com
How Much Is A Home Appraisal In California (2024) Requirements To Be An Appraiser In California The required core curriculum to become a california trainee appraiser totals 150 hours. To become a real estate appraiser in california, you must complete 150 hours of appraisal education, gain experience working under a licensed appraiser, pass the. Initial appraiser requirements supervisor and trainee requirements upgrade requirements appraisal management company information. As a california licensed real estate appraiser trainee, you. Requirements To Be An Appraiser In California.
From www.slideserve.com
PPT Exploring the Different Paths to a Certified Real Estate Requirements To Be An Appraiser In California Due to statutory changes this year, beginning in 2023, there will be new educational requirements on applicants and licensees related to cultural. To become a real estate appraiser in california, you must complete 150 hours of appraisal education, gain experience working under a licensed appraiser, pass the. As a california licensed real estate appraiser trainee, you will be able to. Requirements To Be An Appraiser In California.
From www.nashvillesmls.com
What to Know About the Home Appraisal Process Requirements To Be An Appraiser In California Initial appraiser requirements supervisor and trainee requirements upgrade requirements appraisal management company information. As a california licensed real estate appraiser trainee, you will be able to complete inspections and appraisal reports under the direct supervision of a certified appraiser. The required core curriculum to become a california trainee appraiser totals 150 hours. To become a real estate appraiser in california,. Requirements To Be An Appraiser In California.
From sacramentoappraisalblog.com
Top items to review in an appraisal report Part 3 Sacramento Requirements To Be An Appraiser In California To become a real estate appraiser in california, you must complete 150 hours of appraisal education, gain experience working under a licensed appraiser, pass the. You need to be a trainee appraiser no matter what, but once you have your trainee license, you can simply continue earning qualifying and required education and experience to go. Initial appraiser requirements supervisor and. Requirements To Be An Appraiser In California.
From www.wikihow.life
How to a Real Estate Appraiser in California 9 Steps Requirements To Be An Appraiser In California Due to statutory changes this year, beginning in 2023, there will be new educational requirements on applicants and licensees related to cultural. The required core curriculum to become a california trainee appraiser totals 150 hours. As a california licensed real estate appraiser trainee, you will be able to complete inspections and appraisal reports under the direct supervision of a certified. Requirements To Be An Appraiser In California.
From www.wikihow.life
How to a Real Estate Appraiser in California 9 Steps Requirements To Be An Appraiser In California To become a real estate appraiser in california, you must complete 150 hours of appraisal education, gain experience working under a licensed appraiser, pass the. You need to be a trainee appraiser no matter what, but once you have your trainee license, you can simply continue earning qualifying and required education and experience to go. Initial appraiser requirements supervisor and. Requirements To Be An Appraiser In California.
From www.wikihow.life
How to a Real Estate Appraiser in California 9 Steps Requirements To Be An Appraiser In California To become a real estate appraiser in california, you must complete 150 hours of appraisal education, gain experience working under a licensed appraiser, pass the. As a california licensed real estate appraiser trainee, you will be able to complete inspections and appraisal reports under the direct supervision of a certified appraiser. Initial appraiser requirements supervisor and trainee requirements upgrade requirements. Requirements To Be An Appraiser In California.
From pricelunch34.pythonanywhere.com
Heartwarming Tips About How To A Appraiser In California Requirements To Be An Appraiser In California As a california licensed real estate appraiser trainee, you will be able to complete inspections and appraisal reports under the direct supervision of a certified appraiser. To become a real estate appraiser in california, you must complete 150 hours of appraisal education, gain experience working under a licensed appraiser, pass the. The required core curriculum to become a california trainee. Requirements To Be An Appraiser In California.
From realestatelikeaboss.com
How to an Appraiser in California Real Estate Like A Boss Requirements To Be An Appraiser In California To become a real estate appraiser in california, you must complete 150 hours of appraisal education, gain experience working under a licensed appraiser, pass the. The required core curriculum to become a california trainee appraiser totals 150 hours. You need to be a trainee appraiser no matter what, but once you have your trainee license, you can simply continue earning. Requirements To Be An Appraiser In California.
From www.mckissock.com
California Appraisal License McKissock Learning Requirements To Be An Appraiser In California The required core curriculum to become a california trainee appraiser totals 150 hours. Initial appraiser requirements supervisor and trainee requirements upgrade requirements appraisal management company information. You need to be a trainee appraiser no matter what, but once you have your trainee license, you can simply continue earning qualifying and required education and experience to go. As a california licensed. Requirements To Be An Appraiser In California.
From www.wikihow.life
How to a Real Estate Appraiser in California 9 Steps Requirements To Be An Appraiser In California The required core curriculum to become a california trainee appraiser totals 150 hours. Due to statutory changes this year, beginning in 2023, there will be new educational requirements on applicants and licensees related to cultural. You need to be a trainee appraiser no matter what, but once you have your trainee license, you can simply continue earning qualifying and required. Requirements To Be An Appraiser In California.
From www.realestateskills.com
How Much Is A Home Appraisal In California (2024) Requirements To Be An Appraiser In California You need to be a trainee appraiser no matter what, but once you have your trainee license, you can simply continue earning qualifying and required education and experience to go. Initial appraiser requirements supervisor and trainee requirements upgrade requirements appraisal management company information. The required core curriculum to become a california trainee appraiser totals 150 hours. As a california licensed. Requirements To Be An Appraiser In California.
From www.wikihow.life
How to a Real Estate Appraiser in California 9 Steps Requirements To Be An Appraiser In California As a california licensed real estate appraiser trainee, you will be able to complete inspections and appraisal reports under the direct supervision of a certified appraiser. You need to be a trainee appraiser no matter what, but once you have your trainee license, you can simply continue earning qualifying and required education and experience to go. To become a real. Requirements To Be An Appraiser In California.
From www.propertyinsurancecoveragelaw.com
New Requirements for Being a Property Insurance Appraiser—Are Insurers Requirements To Be An Appraiser In California Initial appraiser requirements supervisor and trainee requirements upgrade requirements appraisal management company information. As a california licensed real estate appraiser trainee, you will be able to complete inspections and appraisal reports under the direct supervision of a certified appraiser. You need to be a trainee appraiser no matter what, but once you have your trainee license, you can simply continue. Requirements To Be An Appraiser In California.
From www.youtube.com
How to Make the Inventory and Appraisal in California Probate Requirements To Be An Appraiser In California As a california licensed real estate appraiser trainee, you will be able to complete inspections and appraisal reports under the direct supervision of a certified appraiser. To become a real estate appraiser in california, you must complete 150 hours of appraisal education, gain experience working under a licensed appraiser, pass the. Initial appraiser requirements supervisor and trainee requirements upgrade requirements. Requirements To Be An Appraiser In California.
From www.wikihow.com
How to a Real Estate Appraiser in California 9 Steps Requirements To Be An Appraiser In California Initial appraiser requirements supervisor and trainee requirements upgrade requirements appraisal management company information. The required core curriculum to become a california trainee appraiser totals 150 hours. You need to be a trainee appraiser no matter what, but once you have your trainee license, you can simply continue earning qualifying and required education and experience to go. To become a real. Requirements To Be An Appraiser In California.
From www.propertyinsurancecoveragelaw.com
Who Is Competent to Be an Appraiser to an Insurance Loss? Property Requirements To Be An Appraiser In California To become a real estate appraiser in california, you must complete 150 hours of appraisal education, gain experience working under a licensed appraiser, pass the. As a california licensed real estate appraiser trainee, you will be able to complete inspections and appraisal reports under the direct supervision of a certified appraiser. The required core curriculum to become a california trainee. Requirements To Be An Appraiser In California.
From gustancho.com
FHA Appraisal Guidelines and Property Checklists Requirements To Be An Appraiser In California As a california licensed real estate appraiser trainee, you will be able to complete inspections and appraisal reports under the direct supervision of a certified appraiser. Initial appraiser requirements supervisor and trainee requirements upgrade requirements appraisal management company information. The required core curriculum to become a california trainee appraiser totals 150 hours. To become a real estate appraiser in california,. Requirements To Be An Appraiser In California.
From realestatelikeaboss.com
How to an Appraiser in California Real Estate Like A Boss Requirements To Be An Appraiser In California You need to be a trainee appraiser no matter what, but once you have your trainee license, you can simply continue earning qualifying and required education and experience to go. Due to statutory changes this year, beginning in 2023, there will be new educational requirements on applicants and licensees related to cultural. As a california licensed real estate appraiser trainee,. Requirements To Be An Appraiser In California.