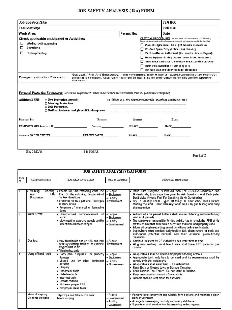
Power Tool Jha . Job hazard analysis and personal protective equipment assessment. Inspect power tool completely before plugging in to power source. 2 inspect power hand tools for defects potential for electric shock from frayed power cords, equipment missing guards or a non functioning. Safety instructions and job hazard analysis: Page 1 of 2 job hazard analysis worksheet project name: Long pants are required at all times when operating this equipment. Eye protection, ear protection, apron, face shield, gloves, long.
        	
		 
    
        from www.slideserve.com 
     
        
        Inspect power tool completely before plugging in to power source. Long pants are required at all times when operating this equipment. 2 inspect power hand tools for defects potential for electric shock from frayed power cords, equipment missing guards or a non functioning. Job hazard analysis and personal protective equipment assessment. Page 1 of 2 job hazard analysis worksheet project name: Eye protection, ear protection, apron, face shield, gloves, long. Safety instructions and job hazard analysis:
    
    	
		 
    PPT An Automated JHA Tool Making Safety Accessible PowerPoint 
    Power Tool Jha  Page 1 of 2 job hazard analysis worksheet project name: Inspect power tool completely before plugging in to power source. 2 inspect power hand tools for defects potential for electric shock from frayed power cords, equipment missing guards or a non functioning. Long pants are required at all times when operating this equipment. Page 1 of 2 job hazard analysis worksheet project name: Safety instructions and job hazard analysis: Job hazard analysis and personal protective equipment assessment. Eye protection, ear protection, apron, face shield, gloves, long.
 
    
        From www.slideserve.com 
                    PPT An Automated JHA Tool Making Safety Accessible PowerPoint Power Tool Jha  Job hazard analysis and personal protective equipment assessment. Safety instructions and job hazard analysis: Long pants are required at all times when operating this equipment. 2 inspect power hand tools for defects potential for electric shock from frayed power cords, equipment missing guards or a non functioning. Page 1 of 2 job hazard analysis worksheet project name: Inspect power tool. Power Tool Jha.
     
    
        From www.alamy.com 
                    Power tool drill logo, simple gray style Stock Vector Image & Art Alamy Power Tool Jha  Page 1 of 2 job hazard analysis worksheet project name: Long pants are required at all times when operating this equipment. Job hazard analysis and personal protective equipment assessment. Safety instructions and job hazard analysis: Eye protection, ear protection, apron, face shield, gloves, long. Inspect power tool completely before plugging in to power source. 2 inspect power hand tools for. Power Tool Jha.
     
    
        From template.mapadapalavra.ba.gov.br 
                    Osha Jha Template Power Tool Jha  Long pants are required at all times when operating this equipment. 2 inspect power hand tools for defects potential for electric shock from frayed power cords, equipment missing guards or a non functioning. Page 1 of 2 job hazard analysis worksheet project name: Inspect power tool completely before plugging in to power source. Eye protection, ear protection, apron, face shield,. Power Tool Jha.
     
    
        From www.kirialign.com 
                    Job Safety Analysis (JSA) The Definitive Guide (2021) Power Tool Jha  2 inspect power hand tools for defects potential for electric shock from frayed power cords, equipment missing guards or a non functioning. Page 1 of 2 job hazard analysis worksheet project name: Safety instructions and job hazard analysis: Inspect power tool completely before plugging in to power source. Long pants are required at all times when operating this equipment. Eye. Power Tool Jha.
     
    
        From www.youtube.com 
                    Power Tool Safety Basics For The Mechanically Declined YouTube Power Tool Jha  Eye protection, ear protection, apron, face shield, gloves, long. Safety instructions and job hazard analysis: Job hazard analysis and personal protective equipment assessment. Page 1 of 2 job hazard analysis worksheet project name: Inspect power tool completely before plugging in to power source. Long pants are required at all times when operating this equipment. 2 inspect power hand tools for. Power Tool Jha.
     
    
        From www.scribd.com 
                    JHA Power Hand Tool Use ROMO PDF Personal Protective Equipment Power Tool Jha  Long pants are required at all times when operating this equipment. Page 1 of 2 job hazard analysis worksheet project name: 2 inspect power hand tools for defects potential for electric shock from frayed power cords, equipment missing guards or a non functioning. Job hazard analysis and personal protective equipment assessment. Safety instructions and job hazard analysis: Inspect power tool. Power Tool Jha.
     
    
        From db-excel.com 
                    Fillable Online Job Hazard Analysis Jha Form Rev 1Pdf — Power Tool Jha  Job hazard analysis and personal protective equipment assessment. Safety instructions and job hazard analysis: 2 inspect power hand tools for defects potential for electric shock from frayed power cords, equipment missing guards or a non functioning. Inspect power tool completely before plugging in to power source. Eye protection, ear protection, apron, face shield, gloves, long. Page 1 of 2 job. Power Tool Jha.
     
    
        From www.youtube.com 
                    Job Hazard Analysis (JHA) Hazard Identification, OSHA Safety and Power Tool Jha  Job hazard analysis and personal protective equipment assessment. Eye protection, ear protection, apron, face shield, gloves, long. Inspect power tool completely before plugging in to power source. Safety instructions and job hazard analysis: Long pants are required at all times when operating this equipment. 2 inspect power hand tools for defects potential for electric shock from frayed power cords, equipment. Power Tool Jha.
     
    
        From akinfotools.com 
                    AK Info Tools Mobile Repairing Tools Power Tool Jha  Job hazard analysis and personal protective equipment assessment. Safety instructions and job hazard analysis: Inspect power tool completely before plugging in to power source. 2 inspect power hand tools for defects potential for electric shock from frayed power cords, equipment missing guards or a non functioning. Page 1 of 2 job hazard analysis worksheet project name: Long pants are required. Power Tool Jha.
     
    
        From studylib.net 
                    AC5HAND TOOL USE VIRGINIA GW/JEFF NFS (JHA Power Tool Jha  Inspect power tool completely before plugging in to power source. 2 inspect power hand tools for defects potential for electric shock from frayed power cords, equipment missing guards or a non functioning. Job hazard analysis and personal protective equipment assessment. Safety instructions and job hazard analysis: Long pants are required at all times when operating this equipment. Eye protection, ear. Power Tool Jha.
     
    
        From www.scribd.com 
                    JHA for Electrical Power energization of unit substations PDF Power Tool Jha  Job hazard analysis and personal protective equipment assessment. Inspect power tool completely before plugging in to power source. Page 1 of 2 job hazard analysis worksheet project name: 2 inspect power hand tools for defects potential for electric shock from frayed power cords, equipment missing guards or a non functioning. Long pants are required at all times when operating this. Power Tool Jha.
     
    
        From www.myxxgirl.com 
                    Ppt Job Hazard Analysis Jha Powerpoint Presentation Free To My XXX Power Tool Jha  2 inspect power hand tools for defects potential for electric shock from frayed power cords, equipment missing guards or a non functioning. Long pants are required at all times when operating this equipment. Job hazard analysis and personal protective equipment assessment. Safety instructions and job hazard analysis: Inspect power tool completely before plugging in to power source. Eye protection, ear. Power Tool Jha.
     
    
        From giowjssok.blob.core.windows.net 
                    Ladder Use Jha at Jonathan Cogburn blog Power Tool Jha  Safety instructions and job hazard analysis: Job hazard analysis and personal protective equipment assessment. Long pants are required at all times when operating this equipment. Eye protection, ear protection, apron, face shield, gloves, long. Page 1 of 2 job hazard analysis worksheet project name: 2 inspect power hand tools for defects potential for electric shock from frayed power cords, equipment. Power Tool Jha.
     
    
        From www.independent.co.uk 
                    Aldi power tools include a cordless drill for £9.99 here’s how to buy Power Tool Jha  Job hazard analysis and personal protective equipment assessment. Inspect power tool completely before plugging in to power source. Long pants are required at all times when operating this equipment. Eye protection, ear protection, apron, face shield, gloves, long. Safety instructions and job hazard analysis: 2 inspect power hand tools for defects potential for electric shock from frayed power cords, equipment. Power Tool Jha.
     
    
        From www.scribd.com 
                    Personal Protective Equipment Safety Power Tool Jha  Inspect power tool completely before plugging in to power source. Safety instructions and job hazard analysis: Long pants are required at all times when operating this equipment. 2 inspect power hand tools for defects potential for electric shock from frayed power cords, equipment missing guards or a non functioning. Job hazard analysis and personal protective equipment assessment. Page 1 of. Power Tool Jha.
     
    
        From www.youracsa.ca 
                    jha_poster yourACSA.ca Power Tool Jha  Long pants are required at all times when operating this equipment. Inspect power tool completely before plugging in to power source. Eye protection, ear protection, apron, face shield, gloves, long. Safety instructions and job hazard analysis: Page 1 of 2 job hazard analysis worksheet project name: 2 inspect power hand tools for defects potential for electric shock from frayed power. Power Tool Jha.
     
    
        From www.thisoldhouse.com 
                    6 Best Power Tool Sets (2024 Guide) This Old House Power Tool Jha  Long pants are required at all times when operating this equipment. 2 inspect power hand tools for defects potential for electric shock from frayed power cords, equipment missing guards or a non functioning. Inspect power tool completely before plugging in to power source. Safety instructions and job hazard analysis: Page 1 of 2 job hazard analysis worksheet project name: Eye. Power Tool Jha.
     
    
        From safetygwg.blogspot.com 
                    Tips for Hand and Power Tools Safety GWG Power Tool Jha  Page 1 of 2 job hazard analysis worksheet project name: Job hazard analysis and personal protective equipment assessment. Inspect power tool completely before plugging in to power source. Eye protection, ear protection, apron, face shield, gloves, long. Safety instructions and job hazard analysis: Long pants are required at all times when operating this equipment. 2 inspect power hand tools for. Power Tool Jha.
     
    
        From es.scribd.com 
                    Jsajha for Using of Hand Tools Power Tool Jha  Eye protection, ear protection, apron, face shield, gloves, long. Long pants are required at all times when operating this equipment. Job hazard analysis and personal protective equipment assessment. Page 1 of 2 job hazard analysis worksheet project name: Inspect power tool completely before plugging in to power source. Safety instructions and job hazard analysis: 2 inspect power hand tools for. Power Tool Jha.
     
    
        From mikelstools.com.mx 
                    JHA239 JHA239 Caja con Juego de Herramientas 239 Pzas. Mikels Tools Power Tool Jha  Long pants are required at all times when operating this equipment. Page 1 of 2 job hazard analysis worksheet project name: Eye protection, ear protection, apron, face shield, gloves, long. 2 inspect power hand tools for defects potential for electric shock from frayed power cords, equipment missing guards or a non functioning. Safety instructions and job hazard analysis: Job hazard. Power Tool Jha.
     
    
        From sitemate.com 
                    Concrete Cutting Job Hazard Analysis template use it free Power Tool Jha  Safety instructions and job hazard analysis: Long pants are required at all times when operating this equipment. 2 inspect power hand tools for defects potential for electric shock from frayed power cords, equipment missing guards or a non functioning. Job hazard analysis and personal protective equipment assessment. Page 1 of 2 job hazard analysis worksheet project name: Eye protection, ear. Power Tool Jha.
     
    
        From www.scribd.com 
                    JHA Power Tools PDF Personal Protective Equipment Switch Power Tool Jha  Long pants are required at all times when operating this equipment. Safety instructions and job hazard analysis: Job hazard analysis and personal protective equipment assessment. Page 1 of 2 job hazard analysis worksheet project name: Inspect power tool completely before plugging in to power source. Eye protection, ear protection, apron, face shield, gloves, long. 2 inspect power hand tools for. Power Tool Jha.
     
    
        From www.youtube.com 
                    Power Tools Cleaning, SSPC SP 3 dan SSPC SP 11 // paintmeasure YouTube Power Tool Jha  Job hazard analysis and personal protective equipment assessment. Long pants are required at all times when operating this equipment. Safety instructions and job hazard analysis: Page 1 of 2 job hazard analysis worksheet project name: Inspect power tool completely before plugging in to power source. Eye protection, ear protection, apron, face shield, gloves, long. 2 inspect power hand tools for. Power Tool Jha.
     
    
        From studylib.net 
                    Job Hazard Analysis Hand Tools Power Tool Jha  Job hazard analysis and personal protective equipment assessment. Safety instructions and job hazard analysis: Page 1 of 2 job hazard analysis worksheet project name: Long pants are required at all times when operating this equipment. 2 inspect power hand tools for defects potential for electric shock from frayed power cords, equipment missing guards or a non functioning. Eye protection, ear. Power Tool Jha.
     
    
        From www.slideserve.com 
                    PPT An Automated JHA Tool Making Safety Accessible PowerPoint Power Tool Jha  Job hazard analysis and personal protective equipment assessment. 2 inspect power hand tools for defects potential for electric shock from frayed power cords, equipment missing guards or a non functioning. Safety instructions and job hazard analysis: Eye protection, ear protection, apron, face shield, gloves, long. Long pants are required at all times when operating this equipment. Inspect power tool completely. Power Tool Jha.
     
    
        From forum.gsmhosting.com 
                    ⚜️ Miracle Power Tool ⚜️ Version 1.09 (17th October 2022) GSMForum Power Tool Jha  Safety instructions and job hazard analysis: Job hazard analysis and personal protective equipment assessment. Long pants are required at all times when operating this equipment. Page 1 of 2 job hazard analysis worksheet project name: Eye protection, ear protection, apron, face shield, gloves, long. Inspect power tool completely before plugging in to power source. 2 inspect power hand tools for. Power Tool Jha.
     
    
        From www.scribd.com 
                    JSA FOR Using The Hand and Power Tools 2 PDF Tools Equipment Power Tool Jha  Safety instructions and job hazard analysis: Page 1 of 2 job hazard analysis worksheet project name: Eye protection, ear protection, apron, face shield, gloves, long. Job hazard analysis and personal protective equipment assessment. Long pants are required at all times when operating this equipment. 2 inspect power hand tools for defects potential for electric shock from frayed power cords, equipment. Power Tool Jha.
     
    
        From www.scribd.com 
                    Job Safety Analysis(14) for Cable Laying and Pulling Power Tool Jha  Long pants are required at all times when operating this equipment. 2 inspect power hand tools for defects potential for electric shock from frayed power cords, equipment missing guards or a non functioning. Inspect power tool completely before plugging in to power source. Eye protection, ear protection, apron, face shield, gloves, long. Safety instructions and job hazard analysis: Job hazard. Power Tool Jha.
     
    
        From www.scribd.com 
                    General Lifting JHA Summary PDF Power Tool Jha  Eye protection, ear protection, apron, face shield, gloves, long. 2 inspect power hand tools for defects potential for electric shock from frayed power cords, equipment missing guards or a non functioning. Page 1 of 2 job hazard analysis worksheet project name: Inspect power tool completely before plugging in to power source. Safety instructions and job hazard analysis: Job hazard analysis. Power Tool Jha.
     
    
        From formsdirect.ca 
                    Job Safety Analysis JSA1 Custom Form Template Forms Direct Power Tool Jha  Job hazard analysis and personal protective equipment assessment. Inspect power tool completely before plugging in to power source. Long pants are required at all times when operating this equipment. Safety instructions and job hazard analysis: Page 1 of 2 job hazard analysis worksheet project name: Eye protection, ear protection, apron, face shield, gloves, long. 2 inspect power hand tools for. Power Tool Jha.
     
    
        From www.naturalstoneinstitute.org 
                    Natural Stone Institute Job Hazard Analysis (JHA) Documents Power Tool Jha  Long pants are required at all times when operating this equipment. Safety instructions and job hazard analysis: 2 inspect power hand tools for defects potential for electric shock from frayed power cords, equipment missing guards or a non functioning. Page 1 of 2 job hazard analysis worksheet project name: Job hazard analysis and personal protective equipment assessment. Inspect power tool. Power Tool Jha.
     
    
        From www.slideserve.com 
                    PPT An Automated JHA Tool Making Safety Accessible PowerPoint Power Tool Jha  Page 1 of 2 job hazard analysis worksheet project name: Eye protection, ear protection, apron, face shield, gloves, long. Safety instructions and job hazard analysis: Inspect power tool completely before plugging in to power source. Job hazard analysis and personal protective equipment assessment. Long pants are required at all times when operating this equipment. 2 inspect power hand tools for. Power Tool Jha.
     
    
        From clearwater-safety.co.uk 
                    RA13 Using hand held power tools, battery or mains Clearwater Safety Power Tool Jha  Long pants are required at all times when operating this equipment. Inspect power tool completely before plugging in to power source. 2 inspect power hand tools for defects potential for electric shock from frayed power cords, equipment missing guards or a non functioning. Job hazard analysis and personal protective equipment assessment. Eye protection, ear protection, apron, face shield, gloves, long.. Power Tool Jha.
     
    
        From www.thequalityguide.com 
                    SSPCSP3 Power Tool Cleaning Standard for power tool cleaning of Power Tool Jha  Safety instructions and job hazard analysis: Job hazard analysis and personal protective equipment assessment. Long pants are required at all times when operating this equipment. Eye protection, ear protection, apron, face shield, gloves, long. 2 inspect power hand tools for defects potential for electric shock from frayed power cords, equipment missing guards or a non functioning. Inspect power tool completely. Power Tool Jha.
     
    
        From www.popularwoodworking.com 
                    Understanding Cordless Tools Popular Woodworking Power Tool Jha  Inspect power tool completely before plugging in to power source. Safety instructions and job hazard analysis: Eye protection, ear protection, apron, face shield, gloves, long. Long pants are required at all times when operating this equipment. Page 1 of 2 job hazard analysis worksheet project name: 2 inspect power hand tools for defects potential for electric shock from frayed power. Power Tool Jha.