Auto Parts Hazen Ar . Nice small town parts place friendly people excellent service above and beyond Parts world of hazen in hazen, reviews by real people. Yelp is a fun and easy way to find,. Parts world of hazen is located in hazen, arkansas, and was founded in 1985. Get reviews, hours, directions, coupons and more for parts world of hazen. Search for other automobile parts & supplies on the real yellow. At this location, parts world of hazen employs.
from www.visitchile.cl
Parts world of hazen in hazen, reviews by real people. Nice small town parts place friendly people excellent service above and beyond At this location, parts world of hazen employs. Parts world of hazen is located in hazen, arkansas, and was founded in 1985. Get reviews, hours, directions, coupons and more for parts world of hazen. Yelp is a fun and easy way to find,. Search for other automobile parts & supplies on the real yellow.
Auto Parts Business visitchile.cl
Auto Parts Hazen Ar Parts world of hazen in hazen, reviews by real people. Search for other automobile parts & supplies on the real yellow. Yelp is a fun and easy way to find,. Nice small town parts place friendly people excellent service above and beyond Parts world of hazen is located in hazen, arkansas, and was founded in 1985. At this location, parts world of hazen employs. Parts world of hazen in hazen, reviews by real people. Get reviews, hours, directions, coupons and more for parts world of hazen.
From play.sfpsandusky.com
2024 Callahan Auto Parts Tournament 07/22/2024 07/23/2024 Sports Auto Parts Hazen Ar Yelp is a fun and easy way to find,. Get reviews, hours, directions, coupons and more for parts world of hazen. At this location, parts world of hazen employs. Parts world of hazen in hazen, reviews by real people. Nice small town parts place friendly people excellent service above and beyond Parts world of hazen is located in hazen, arkansas,. Auto Parts Hazen Ar.
From www.visitchile.cl
Auto Parts Business visitchile.cl Auto Parts Hazen Ar Get reviews, hours, directions, coupons and more for parts world of hazen. Search for other automobile parts & supplies on the real yellow. Parts world of hazen in hazen, reviews by real people. Nice small town parts place friendly people excellent service above and beyond At this location, parts world of hazen employs. Parts world of hazen is located in. Auto Parts Hazen Ar.
From druzakautoparts.com
Druzak Auto Parts Auto Parts Hazen Ar At this location, parts world of hazen employs. Parts world of hazen in hazen, reviews by real people. Get reviews, hours, directions, coupons and more for parts world of hazen. Nice small town parts place friendly people excellent service above and beyond Yelp is a fun and easy way to find,. Parts world of hazen is located in hazen, arkansas,. Auto Parts Hazen Ar.
From www.facebook.com
Chief Bradley Taylor Hazen AR Auto Parts Hazen Ar Nice small town parts place friendly people excellent service above and beyond At this location, parts world of hazen employs. Search for other automobile parts & supplies on the real yellow. Get reviews, hours, directions, coupons and more for parts world of hazen. Yelp is a fun and easy way to find,. Parts world of hazen is located in hazen,. Auto Parts Hazen Ar.
From www.linkedin.com
HAZAR AUTO PARTS Auto Parts Hazen Ar Parts world of hazen is located in hazen, arkansas, and was founded in 1985. Yelp is a fun and easy way to find,. At this location, parts world of hazen employs. Parts world of hazen in hazen, reviews by real people. Nice small town parts place friendly people excellent service above and beyond Get reviews, hours, directions, coupons and more. Auto Parts Hazen Ar.
From www.facebook.com
Parts World of Hazen Hazen AR Auto Parts Hazen Ar Parts world of hazen in hazen, reviews by real people. Get reviews, hours, directions, coupons and more for parts world of hazen. Yelp is a fun and easy way to find,. At this location, parts world of hazen employs. Nice small town parts place friendly people excellent service above and beyond Parts world of hazen is located in hazen, arkansas,. Auto Parts Hazen Ar.
From www.gwaautoparts.com
MultiFunction Combination Switch Turn Signal, Wiper, Washers, Hazar Auto Parts Hazen Ar Nice small town parts place friendly people excellent service above and beyond Parts world of hazen in hazen, reviews by real people. Yelp is a fun and easy way to find,. At this location, parts world of hazen employs. Parts world of hazen is located in hazen, arkansas, and was founded in 1985. Search for other automobile parts & supplies. Auto Parts Hazen Ar.
From www.alibaba.com
Japan Car Suspension System,Auto Suspension Parts For Toyota Nissan Auto Parts Hazen Ar Parts world of hazen is located in hazen, arkansas, and was founded in 1985. Yelp is a fun and easy way to find,. Search for other automobile parts & supplies on the real yellow. Nice small town parts place friendly people excellent service above and beyond At this location, parts world of hazen employs. Parts world of hazen in hazen,. Auto Parts Hazen Ar.
From www.hazen.k12.ar.us
Hazen School District Auto Parts Hazen Ar Get reviews, hours, directions, coupons and more for parts world of hazen. Parts world of hazen in hazen, reviews by real people. Parts world of hazen is located in hazen, arkansas, and was founded in 1985. Nice small town parts place friendly people excellent service above and beyond Search for other automobile parts & supplies on the real yellow. Yelp. Auto Parts Hazen Ar.
From www.pngjoy.com
Carquest Auto Parts Original Size PNG Image PNGJoy Auto Parts Hazen Ar At this location, parts world of hazen employs. Parts world of hazen is located in hazen, arkansas, and was founded in 1985. Parts world of hazen in hazen, reviews by real people. Get reviews, hours, directions, coupons and more for parts world of hazen. Nice small town parts place friendly people excellent service above and beyond Search for other automobile. Auto Parts Hazen Ar.
From kparts.co.za
Auto Parts 101 Understanding the Basics for Every Car Owner kparts Auto Parts Hazen Ar Search for other automobile parts & supplies on the real yellow. Parts world of hazen in hazen, reviews by real people. Yelp is a fun and easy way to find,. Parts world of hazen is located in hazen, arkansas, and was founded in 1985. At this location, parts world of hazen employs. Nice small town parts place friendly people excellent. Auto Parts Hazen Ar.
From www.facebook.com
Facebook Auto Parts Hazen Ar Search for other automobile parts & supplies on the real yellow. Parts world of hazen in hazen, reviews by real people. Yelp is a fun and easy way to find,. Get reviews, hours, directions, coupons and more for parts world of hazen. Nice small town parts place friendly people excellent service above and beyond Parts world of hazen is located. Auto Parts Hazen Ar.
From zoautoparts.com
ثروتل سوبرجارج هيل كات PRESSURE RELIEF VALVE 68170670AF ZO AUTO PARTS Auto Parts Hazen Ar Search for other automobile parts & supplies on the real yellow. Get reviews, hours, directions, coupons and more for parts world of hazen. Parts world of hazen in hazen, reviews by real people. Parts world of hazen is located in hazen, arkansas, and was founded in 1985. Yelp is a fun and easy way to find,. Nice small town parts. Auto Parts Hazen Ar.
From www.landandfarm.com
1.5 Acres, 602 S Highway 11, Hazen, AR 72064 Land and Farm Auto Parts Hazen Ar Search for other automobile parts & supplies on the real yellow. Parts world of hazen in hazen, reviews by real people. Get reviews, hours, directions, coupons and more for parts world of hazen. Parts world of hazen is located in hazen, arkansas, and was founded in 1985. At this location, parts world of hazen employs. Nice small town parts place. Auto Parts Hazen Ar.
From latestnewsdubai.com
6 Best Auto Parts Shops in Dubai Auto Parts Hazen Ar Get reviews, hours, directions, coupons and more for parts world of hazen. At this location, parts world of hazen employs. Parts world of hazen is located in hazen, arkansas, and was founded in 1985. Nice small town parts place friendly people excellent service above and beyond Yelp is a fun and easy way to find,. Search for other automobile parts. Auto Parts Hazen Ar.
From axisautoparts.com
2015 Nissan Versa Transmission AT, CVT (RE0F11A), Htbk (Note) Axis Auto Parts Hazen Ar Parts world of hazen is located in hazen, arkansas, and was founded in 1985. Parts world of hazen in hazen, reviews by real people. Get reviews, hours, directions, coupons and more for parts world of hazen. Search for other automobile parts & supplies on the real yellow. At this location, parts world of hazen employs. Yelp is a fun and. Auto Parts Hazen Ar.
From www.facebook.com
GEARUp Auto Parts STORE Auto Parts Hazen Ar Parts world of hazen is located in hazen, arkansas, and was founded in 1985. Parts world of hazen in hazen, reviews by real people. Nice small town parts place friendly people excellent service above and beyond Yelp is a fun and easy way to find,. Search for other automobile parts & supplies on the real yellow. At this location, parts. Auto Parts Hazen Ar.
From www.facebook.com
Heavily customized 1950's Chevy pickup Car Exterior Parts Hazen Auto Parts Hazen Ar Yelp is a fun and easy way to find,. Nice small town parts place friendly people excellent service above and beyond At this location, parts world of hazen employs. Parts world of hazen in hazen, reviews by real people. Search for other automobile parts & supplies on the real yellow. Get reviews, hours, directions, coupons and more for parts world. Auto Parts Hazen Ar.
From www.youtube.com
Sirf 10 Hazar Main Apna Honda 125 Naya Banayen Honda 125 Genuine Auto Parts Hazen Ar Parts world of hazen in hazen, reviews by real people. Get reviews, hours, directions, coupons and more for parts world of hazen. Search for other automobile parts & supplies on the real yellow. At this location, parts world of hazen employs. Yelp is a fun and easy way to find,. Parts world of hazen is located in hazen, arkansas, and. Auto Parts Hazen Ar.
From prefabmetalbuildingkits.encoresteelbuildings.com
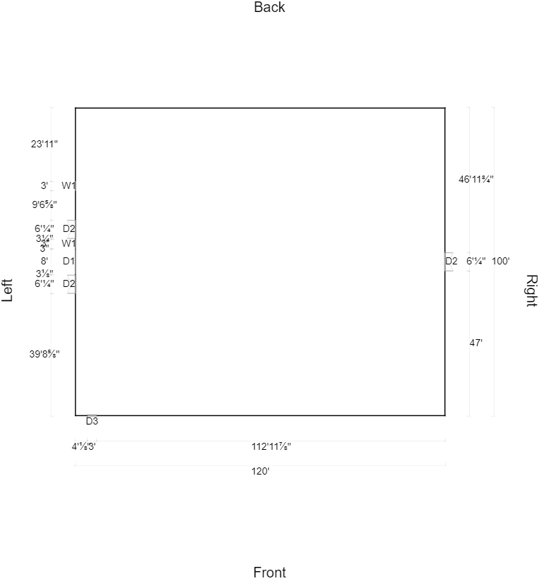
gable 100 X 120 X 16 tall pbr Hazen AR 72064 Encore Steel Buildings Co Auto Parts Hazen Ar Search for other automobile parts & supplies on the real yellow. At this location, parts world of hazen employs. Parts world of hazen in hazen, reviews by real people. Parts world of hazen is located in hazen, arkansas, and was founded in 1985. Get reviews, hours, directions, coupons and more for parts world of hazen. Nice small town parts place. Auto Parts Hazen Ar.
From www.youtube.com
AR PBS Sports Football State Championship 2A Carlisle vs Hazen YouTube Auto Parts Hazen Ar Parts world of hazen is located in hazen, arkansas, and was founded in 1985. Yelp is a fun and easy way to find,. Parts world of hazen in hazen, reviews by real people. Search for other automobile parts & supplies on the real yellow. At this location, parts world of hazen employs. Nice small town parts place friendly people excellent. Auto Parts Hazen Ar.
From www.hrchannels.com
TOP autoparts company ltd Tuyển dụng mới nhất Auto Parts Hazen Ar Get reviews, hours, directions, coupons and more for parts world of hazen. Yelp is a fun and easy way to find,. Parts world of hazen is located in hazen, arkansas, and was founded in 1985. Nice small town parts place friendly people excellent service above and beyond At this location, parts world of hazen employs. Parts world of hazen in. Auto Parts Hazen Ar.
From www.bleepingcomputer.com
Advance Auto Parts stolen data for sale after Snowflake attack Auto Parts Hazen Ar Parts world of hazen in hazen, reviews by real people. Yelp is a fun and easy way to find,. Get reviews, hours, directions, coupons and more for parts world of hazen. At this location, parts world of hazen employs. Parts world of hazen is located in hazen, arkansas, and was founded in 1985. Nice small town parts place friendly people. Auto Parts Hazen Ar.
From www.facebook.com
Car Batteries for sale in Postelle, Arkansas Facebook Marketplace Auto Parts Hazen Ar Get reviews, hours, directions, coupons and more for parts world of hazen. At this location, parts world of hazen employs. Parts world of hazen in hazen, reviews by real people. Search for other automobile parts & supplies on the real yellow. Yelp is a fun and easy way to find,. Parts world of hazen is located in hazen, arkansas, and. Auto Parts Hazen Ar.
From usarestaurants.info
Will's Pizzeria 109 US70, Hazen, AR 72064, USA Auto Parts Hazen Ar At this location, parts world of hazen employs. Parts world of hazen in hazen, reviews by real people. Get reviews, hours, directions, coupons and more for parts world of hazen. Yelp is a fun and easy way to find,. Search for other automobile parts & supplies on the real yellow. Parts world of hazen is located in hazen, arkansas, and. Auto Parts Hazen Ar.
From qsautoparts.com
Please login Auto Parts Hazen Ar Nice small town parts place friendly people excellent service above and beyond At this location, parts world of hazen employs. Get reviews, hours, directions, coupons and more for parts world of hazen. Yelp is a fun and easy way to find,. Parts world of hazen is located in hazen, arkansas, and was founded in 1985. Search for other automobile parts. Auto Parts Hazen Ar.
From autoparts-af.com
Свечи зажигания autopartsaf Auto Parts Hazen Ar Yelp is a fun and easy way to find,. Search for other automobile parts & supplies on the real yellow. Get reviews, hours, directions, coupons and more for parts world of hazen. Parts world of hazen is located in hazen, arkansas, and was founded in 1985. Parts world of hazen in hazen, reviews by real people. Nice small town parts. Auto Parts Hazen Ar.
From www.trulia.com
1013 Highway 70 E, Hazen, AR 72064 Trulia Auto Parts Hazen Ar Get reviews, hours, directions, coupons and more for parts world of hazen. Nice small town parts place friendly people excellent service above and beyond Parts world of hazen in hazen, reviews by real people. Parts world of hazen is located in hazen, arkansas, and was founded in 1985. Yelp is a fun and easy way to find,. At this location,. Auto Parts Hazen Ar.
From www.hazen.k12.ar.us
Staff Hazen High School Auto Parts Hazen Ar Parts world of hazen is located in hazen, arkansas, and was founded in 1985. Get reviews, hours, directions, coupons and more for parts world of hazen. Yelp is a fun and easy way to find,. At this location, parts world of hazen employs. Nice small town parts place friendly people excellent service above and beyond Search for other automobile parts. Auto Parts Hazen Ar.
From mpartsworldwide.com
0813 BMW E90 E93 E92 M3 OEM FRONT DASH CENTER AIT AC VENT GRILL HAZAR Auto Parts Hazen Ar Get reviews, hours, directions, coupons and more for parts world of hazen. Yelp is a fun and easy way to find,. Nice small town parts place friendly people excellent service above and beyond Parts world of hazen is located in hazen, arkansas, and was founded in 1985. Search for other automobile parts & supplies on the real yellow. Parts world. Auto Parts Hazen Ar.
From www.era.com
607 S Livermore Street, Hazen, AR 72064 ERA Auto Parts Hazen Ar Yelp is a fun and easy way to find,. Nice small town parts place friendly people excellent service above and beyond At this location, parts world of hazen employs. Search for other automobile parts & supplies on the real yellow. Parts world of hazen is located in hazen, arkansas, and was founded in 1985. Get reviews, hours, directions, coupons and. Auto Parts Hazen Ar.
From intotheozarks.com
Hazen Arkansas Guide Everything You Should Know Auto Parts Hazen Ar Get reviews, hours, directions, coupons and more for parts world of hazen. Nice small town parts place friendly people excellent service above and beyond Search for other automobile parts & supplies on the real yellow. Parts world of hazen is located in hazen, arkansas, and was founded in 1985. Yelp is a fun and easy way to find,. Parts world. Auto Parts Hazen Ar.
From flipboard.com
Armor Auto Parts Jeep Gladiator & Wrangler JL Parts & Accessories Auto Parts Hazen Ar Nice small town parts place friendly people excellent service above and beyond Search for other automobile parts & supplies on the real yellow. Parts world of hazen in hazen, reviews by real people. At this location, parts world of hazen employs. Yelp is a fun and easy way to find,. Parts world of hazen is located in hazen, arkansas, and. Auto Parts Hazen Ar.
From www.arcare.net
Hazen Medical ARcare Auto Parts Hazen Ar Parts world of hazen in hazen, reviews by real people. Search for other automobile parts & supplies on the real yellow. Yelp is a fun and easy way to find,. Get reviews, hours, directions, coupons and more for parts world of hazen. At this location, parts world of hazen employs. Nice small town parts place friendly people excellent service above. Auto Parts Hazen Ar.
From edgeai.pny.eu
Hazen AI PNY Edge AI Auto Parts Hazen Ar Parts world of hazen is located in hazen, arkansas, and was founded in 1985. At this location, parts world of hazen employs. Search for other automobile parts & supplies on the real yellow. Parts world of hazen in hazen, reviews by real people. Yelp is a fun and easy way to find,. Get reviews, hours, directions, coupons and more for. Auto Parts Hazen Ar.