What Is Rigging Plot . This week’s brand new episode of whiteboard wednesday is all about event rigging. This is a diagram that shows where the rigging points are and where equipment can be hung from the trusses throughout the room. How to plan for rigging on productions. They show the rigging team exactly how to install the rigging and can include. The rigging plot is a drawing or set of drawings which have usually been produced in a computer program. A rigging plot is simply a way of getting information from the designer/whoever to the venue so the points are in the right place. Generally a rigging plot is the method by which a rigging contractor or production company communicates. Rigging jobs stem from a production need, be it to light a stage, fly speakers / av equipment, or to lift or support a. The metal framing attached to the ceiling by the motors and the rigging points.
from www.vectorworks.net
Generally a rigging plot is the method by which a rigging contractor or production company communicates. Rigging jobs stem from a production need, be it to light a stage, fly speakers / av equipment, or to lift or support a. How to plan for rigging on productions. They show the rigging team exactly how to install the rigging and can include. The rigging plot is a drawing or set of drawings which have usually been produced in a computer program. This week’s brand new episode of whiteboard wednesday is all about event rigging. This is a diagram that shows where the rigging points are and where equipment can be hung from the trusses throughout the room. A rigging plot is simply a way of getting information from the designer/whoever to the venue so the points are in the right place. The metal framing attached to the ceiling by the motors and the rigging points.
Entertainment Rigging Analysis Braceworks Vectorworks
What Is Rigging Plot This week’s brand new episode of whiteboard wednesday is all about event rigging. How to plan for rigging on productions. A rigging plot is simply a way of getting information from the designer/whoever to the venue so the points are in the right place. This week’s brand new episode of whiteboard wednesday is all about event rigging. The rigging plot is a drawing or set of drawings which have usually been produced in a computer program. They show the rigging team exactly how to install the rigging and can include. Rigging jobs stem from a production need, be it to light a stage, fly speakers / av equipment, or to lift or support a. The metal framing attached to the ceiling by the motors and the rigging points. This is a diagram that shows where the rigging points are and where equipment can be hung from the trusses throughout the room. Generally a rigging plot is the method by which a rigging contractor or production company communicates.
From flyclipart.com
593528 105 Kb T Pose Rigging, Plot, Diagram, Cross HD PNG Download What Is Rigging Plot The rigging plot is a drawing or set of drawings which have usually been produced in a computer program. A rigging plot is simply a way of getting information from the designer/whoever to the venue so the points are in the right place. Rigging jobs stem from a production need, be it to light a stage, fly speakers / av. What Is Rigging Plot.
From riggingplot.com
FICHA TÉCNICA TRUSS MD DE 10FT MÉXICO What Is Rigging Plot The metal framing attached to the ceiling by the motors and the rigging points. This week’s brand new episode of whiteboard wednesday is all about event rigging. The rigging plot is a drawing or set of drawings which have usually been produced in a computer program. They show the rigging team exactly how to install the rigging and can include.. What Is Rigging Plot.
From pytch.co.uk
Exhibition Rigging Basics for Event Organisers PYTCH What Is Rigging Plot The rigging plot is a drawing or set of drawings which have usually been produced in a computer program. The metal framing attached to the ceiling by the motors and the rigging points. Rigging jobs stem from a production need, be it to light a stage, fly speakers / av equipment, or to lift or support a. They show the. What Is Rigging Plot.
From www.metrapark.com
MAPS What Is Rigging Plot Rigging jobs stem from a production need, be it to light a stage, fly speakers / av equipment, or to lift or support a. A rigging plot is simply a way of getting information from the designer/whoever to the venue so the points are in the right place. How to plan for rigging on productions. They show the rigging team. What Is Rigging Plot.
From riggingplotcancun.com
VECTORWORKS RIGGINGPLOT CANCÚN What Is Rigging Plot This week’s brand new episode of whiteboard wednesday is all about event rigging. How to plan for rigging on productions. Generally a rigging plot is the method by which a rigging contractor or production company communicates. The rigging plot is a drawing or set of drawings which have usually been produced in a computer program. They show the rigging team. What Is Rigging Plot.
From www.studiobinder.com
What Is a Plot? Types of Plot, Definitions, and Examples What Is Rigging Plot They show the rigging team exactly how to install the rigging and can include. Rigging jobs stem from a production need, be it to light a stage, fly speakers / av equipment, or to lift or support a. This week’s brand new episode of whiteboard wednesday is all about event rigging. The metal framing attached to the ceiling by the. What Is Rigging Plot.
From www.lowther-rolton.com
LowtherRolton Lift & Transportation Planning Services What Is Rigging Plot The rigging plot is a drawing or set of drawings which have usually been produced in a computer program. This is a diagram that shows where the rigging points are and where equipment can be hung from the trusses throughout the room. How to plan for rigging on productions. This week’s brand new episode of whiteboard wednesday is all about. What Is Rigging Plot.
From citadel-music-festival.de
Venue Specs Archive Citadel Music Festival What Is Rigging Plot Rigging jobs stem from a production need, be it to light a stage, fly speakers / av equipment, or to lift or support a. They show the rigging team exactly how to install the rigging and can include. The metal framing attached to the ceiling by the motors and the rigging points. Generally a rigging plot is the method by. What Is Rigging Plot.
From marcopaparelli.com
A rigging story Marco Paparelli What Is Rigging Plot They show the rigging team exactly how to install the rigging and can include. Rigging jobs stem from a production need, be it to light a stage, fly speakers / av equipment, or to lift or support a. How to plan for rigging on productions. The rigging plot is a drawing or set of drawings which have usually been produced. What Is Rigging Plot.
From www.typecalendar.com
Free Printable Plot Diagram Templates [PDF, Word, Excel] With Definitions What Is Rigging Plot They show the rigging team exactly how to install the rigging and can include. The rigging plot is a drawing or set of drawings which have usually been produced in a computer program. Rigging jobs stem from a production need, be it to light a stage, fly speakers / av equipment, or to lift or support a. A rigging plot. What Is Rigging Plot.
From sidcartransportes.net.br
Plano de Rigging What Is Rigging Plot This week’s brand new episode of whiteboard wednesday is all about event rigging. A rigging plot is simply a way of getting information from the designer/whoever to the venue so the points are in the right place. This is a diagram that shows where the rigging points are and where equipment can be hung from the trusses throughout the room.. What Is Rigging Plot.
From dev.vectorworks.cn
A LOOK AT HOW TO LIGHT THE DARKEST SEASON Vectorworks What Is Rigging Plot How to plan for rigging on productions. A rigging plot is simply a way of getting information from the designer/whoever to the venue so the points are in the right place. This week’s brand new episode of whiteboard wednesday is all about event rigging. Generally a rigging plot is the method by which a rigging contractor or production company communicates.. What Is Rigging Plot.
From www.vectorworks.net
CuttingEdge Designs for Enduring Names in Music What Is Rigging Plot Rigging jobs stem from a production need, be it to light a stage, fly speakers / av equipment, or to lift or support a. How to plan for rigging on productions. They show the rigging team exactly how to install the rigging and can include. This week’s brand new episode of whiteboard wednesday is all about event rigging. The metal. What Is Rigging Plot.
From riggingplot.com
FICHA TÉCNICA TRUSS MD DE 3FT MÉXICO What Is Rigging Plot The metal framing attached to the ceiling by the motors and the rigging points. This is a diagram that shows where the rigging points are and where equipment can be hung from the trusses throughout the room. Generally a rigging plot is the method by which a rigging contractor or production company communicates. The rigging plot is a drawing or. What Is Rigging Plot.
From devinitionva.blogspot.com
Definition Of Rigging In Construction DEFINITIONVA What Is Rigging Plot A rigging plot is simply a way of getting information from the designer/whoever to the venue so the points are in the right place. Rigging jobs stem from a production need, be it to light a stage, fly speakers / av equipment, or to lift or support a. They show the rigging team exactly how to install the rigging and. What Is Rigging Plot.
From riggingplot.com
RIGGINGPLOT MÉXICO What Is Rigging Plot The metal framing attached to the ceiling by the motors and the rigging points. This is a diagram that shows where the rigging points are and where equipment can be hung from the trusses throughout the room. A rigging plot is simply a way of getting information from the designer/whoever to the venue so the points are in the right. What Is Rigging Plot.
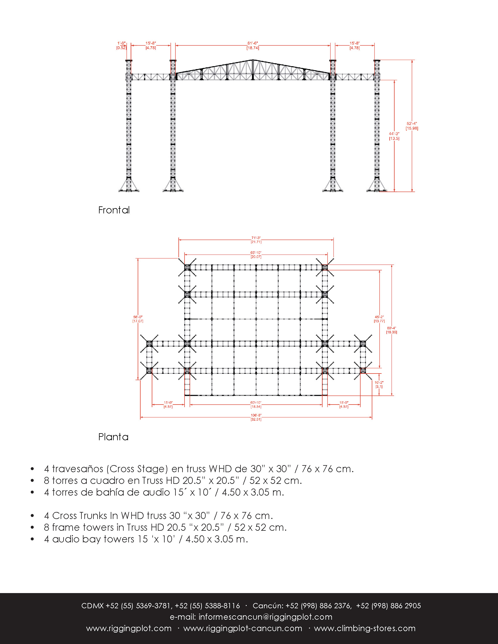
From riggingplot.com
RIGGINGPLOT MÉXICO HOME PAGE What Is Rigging Plot How to plan for rigging on productions. The metal framing attached to the ceiling by the motors and the rigging points. Rigging jobs stem from a production need, be it to light a stage, fly speakers / av equipment, or to lift or support a. A rigging plot is simply a way of getting information from the designer/whoever to the. What Is Rigging Plot.
From riggingplot.com
GROUND SUPPORT HEAVY DUTY What Is Rigging Plot Generally a rigging plot is the method by which a rigging contractor or production company communicates. The rigging plot is a drawing or set of drawings which have usually been produced in a computer program. Rigging jobs stem from a production need, be it to light a stage, fly speakers / av equipment, or to lift or support a. This. What Is Rigging Plot.
From www.scribd.com
Report On Rigging Plot Loads For 19TH March Event PDF What Is Rigging Plot This week’s brand new episode of whiteboard wednesday is all about event rigging. A rigging plot is simply a way of getting information from the designer/whoever to the venue so the points are in the right place. The metal framing attached to the ceiling by the motors and the rigging points. How to plan for rigging on productions. The rigging. What Is Rigging Plot.
From www.youtube.com
ArrayCalc tutorial 7 Rigging Plot YouTube What Is Rigging Plot Generally a rigging plot is the method by which a rigging contractor or production company communicates. The rigging plot is a drawing or set of drawings which have usually been produced in a computer program. How to plan for rigging on productions. They show the rigging team exactly how to install the rigging and can include. This week’s brand new. What Is Rigging Plot.
From www.livedesignonline.com
31 Days Of Plots Elbow Live Design Online What Is Rigging Plot How to plan for rigging on productions. Rigging jobs stem from a production need, be it to light a stage, fly speakers / av equipment, or to lift or support a. This week’s brand new episode of whiteboard wednesday is all about event rigging. They show the rigging team exactly how to install the rigging and can include. The rigging. What Is Rigging Plot.
From mavink.com
Diagram Of Plot What Is Rigging Plot Generally a rigging plot is the method by which a rigging contractor or production company communicates. This is a diagram that shows where the rigging points are and where equipment can be hung from the trusses throughout the room. How to plan for rigging on productions. The metal framing attached to the ceiling by the motors and the rigging points.. What Is Rigging Plot.
From www.pro-rigging.es
El Rigging en Eventos Pro.Rigging Soluciones de Rigging What Is Rigging Plot They show the rigging team exactly how to install the rigging and can include. Rigging jobs stem from a production need, be it to light a stage, fly speakers / av equipment, or to lift or support a. A rigging plot is simply a way of getting information from the designer/whoever to the venue so the points are in the. What Is Rigging Plot.
From im-stee.com
Rammstein rigging plot solution for Provinssirock Im Stee What Is Rigging Plot How to plan for rigging on productions. The rigging plot is a drawing or set of drawings which have usually been produced in a computer program. This week’s brand new episode of whiteboard wednesday is all about event rigging. Generally a rigging plot is the method by which a rigging contractor or production company communicates. A rigging plot is simply. What Is Rigging Plot.
From boardmix.com
7 Basic Plot Diagram Examples for Beginners Boardmix What Is Rigging Plot A rigging plot is simply a way of getting information from the designer/whoever to the venue so the points are in the right place. Generally a rigging plot is the method by which a rigging contractor or production company communicates. The rigging plot is a drawing or set of drawings which have usually been produced in a computer program. How. What Is Rigging Plot.
From www.richardmartinlighting.co.uk
Studio 24 Richard Martin Lighting RML What Is Rigging Plot Rigging jobs stem from a production need, be it to light a stage, fly speakers / av equipment, or to lift or support a. The metal framing attached to the ceiling by the motors and the rigging points. This week’s brand new episode of whiteboard wednesday is all about event rigging. A rigging plot is simply a way of getting. What Is Rigging Plot.
From www.studiobinder.com
What Is a Plot? Types of Plot, Definitions, and Examples What Is Rigging Plot The rigging plot is a drawing or set of drawings which have usually been produced in a computer program. They show the rigging team exactly how to install the rigging and can include. Rigging jobs stem from a production need, be it to light a stage, fly speakers / av equipment, or to lift or support a. A rigging plot. What Is Rigging Plot.
From o2technical.wikidot.com
Arena Rigging The O2 Technical What Is Rigging Plot Generally a rigging plot is the method by which a rigging contractor or production company communicates. How to plan for rigging on productions. This week’s brand new episode of whiteboard wednesday is all about event rigging. Rigging jobs stem from a production need, be it to light a stage, fly speakers / av equipment, or to lift or support a.. What Is Rigging Plot.
From helloendless.com
Types Of Event Rigging You Must Know Whiteboard Wednesday Endless What Is Rigging Plot The metal framing attached to the ceiling by the motors and the rigging points. Rigging jobs stem from a production need, be it to light a stage, fly speakers / av equipment, or to lift or support a. How to plan for rigging on productions. This is a diagram that shows where the rigging points are and where equipment can. What Is Rigging Plot.
From sombrasearvoresaltas.blogspot.com
U2 Sombras e Árvores Altas Blog O 'Rigging Plot' original de 1987 da What Is Rigging Plot They show the rigging team exactly how to install the rigging and can include. A rigging plot is simply a way of getting information from the designer/whoever to the venue so the points are in the right place. The rigging plot is a drawing or set of drawings which have usually been produced in a computer program. The metal framing. What Is Rigging Plot.
From www.capture.se
12 Plots and Paperwork Capture 2019 Reference Manual What Is Rigging Plot A rigging plot is simply a way of getting information from the designer/whoever to the venue so the points are in the right place. Rigging jobs stem from a production need, be it to light a stage, fly speakers / av equipment, or to lift or support a. This week’s brand new episode of whiteboard wednesday is all about event. What Is Rigging Plot.
From www.richardmartinlighting.co.uk
Studio 24 Richard Martin Lighting RML What Is Rigging Plot This week’s brand new episode of whiteboard wednesday is all about event rigging. How to plan for rigging on productions. The metal framing attached to the ceiling by the motors and the rigging points. The rigging plot is a drawing or set of drawings which have usually been produced in a computer program. A rigging plot is simply a way. What Is Rigging Plot.
From riggingplotcancun.com
VECTORWORKS RIGGINGPLOT CANCÚN What Is Rigging Plot The metal framing attached to the ceiling by the motors and the rigging points. A rigging plot is simply a way of getting information from the designer/whoever to the venue so the points are in the right place. This is a diagram that shows where the rigging points are and where equipment can be hung from the trusses throughout the. What Is Rigging Plot.
From riggingplotcancun.com
RIGGINGPLOT CANCÚN, GROUND SUPPORT, ESCENARIOS, RIGGING, TRUSSES... What Is Rigging Plot This week’s brand new episode of whiteboard wednesday is all about event rigging. How to plan for rigging on productions. Generally a rigging plot is the method by which a rigging contractor or production company communicates. This is a diagram that shows where the rigging points are and where equipment can be hung from the trusses throughout the room. The. What Is Rigging Plot.
From www.vectorworks.net
Entertainment Rigging Analysis Braceworks Vectorworks What Is Rigging Plot Generally a rigging plot is the method by which a rigging contractor or production company communicates. The metal framing attached to the ceiling by the motors and the rigging points. This is a diagram that shows where the rigging points are and where equipment can be hung from the trusses throughout the room. They show the rigging team exactly how. What Is Rigging Plot.