Hud Housing Quality Standards Inspection Form . the hud.gov webpage provides a manual for housing quality standards inspections by the u.s. Department of housing and urban. As defined in § 982.4, hqs refers to the minimum quality standards developed by hud in. housing quality standards (hqs) inspection form. § 982.401 housing quality standards. hqs define standard housing and establish the minimum criteria for the health and safety of program participants. the program regulations governing the housing quality standards and inspection requirements for the hcv.
from www.pdffiller.com
the hud.gov webpage provides a manual for housing quality standards inspections by the u.s. hqs define standard housing and establish the minimum criteria for the health and safety of program participants. § 982.401 housing quality standards. the program regulations governing the housing quality standards and inspection requirements for the hcv. As defined in § 982.4, hqs refers to the minimum quality standards developed by hud in. Department of housing and urban. housing quality standards (hqs) inspection form.
Fillable Online dhcd maryland HOUSING QUALITY STANDARDS INSPECTION
Hud Housing Quality Standards Inspection Form housing quality standards (hqs) inspection form. housing quality standards (hqs) inspection form. hqs define standard housing and establish the minimum criteria for the health and safety of program participants. § 982.401 housing quality standards. Department of housing and urban. the hud.gov webpage provides a manual for housing quality standards inspections by the u.s. the program regulations governing the housing quality standards and inspection requirements for the hcv. As defined in § 982.4, hqs refers to the minimum quality standards developed by hud in.
From www.pdffiller.com
Fillable Online Housing & Quality Standards Inspections Fax Email Print Hud Housing Quality Standards Inspection Form hqs define standard housing and establish the minimum criteria for the health and safety of program participants. Department of housing and urban. § 982.401 housing quality standards. the program regulations governing the housing quality standards and inspection requirements for the hcv. As defined in § 982.4, hqs refers to the minimum quality standards developed by hud in.. Hud Housing Quality Standards Inspection Form.
From www.pdffiller.com
Fillable Online kydlgweb ky HOME Housing Quality Standards (HQS Hud Housing Quality Standards Inspection Form housing quality standards (hqs) inspection form. § 982.401 housing quality standards. the program regulations governing the housing quality standards and inspection requirements for the hcv. hqs define standard housing and establish the minimum criteria for the health and safety of program participants. the hud.gov webpage provides a manual for housing quality standards inspections by the. Hud Housing Quality Standards Inspection Form.
From www.pdffiller.com
Fillable Online dhcd maryland HOUSING QUALITY STANDARDS INSPECTION Hud Housing Quality Standards Inspection Form housing quality standards (hqs) inspection form. the program regulations governing the housing quality standards and inspection requirements for the hcv. As defined in § 982.4, hqs refers to the minimum quality standards developed by hud in. the hud.gov webpage provides a manual for housing quality standards inspections by the u.s. § 982.401 housing quality standards. . Hud Housing Quality Standards Inspection Form.
From www.pdffiller.com
Fillable Online Housing Quality Standards (HQS) Inspection Information Hud Housing Quality Standards Inspection Form Department of housing and urban. housing quality standards (hqs) inspection form. the hud.gov webpage provides a manual for housing quality standards inspections by the u.s. As defined in § 982.4, hqs refers to the minimum quality standards developed by hud in. the program regulations governing the housing quality standards and inspection requirements for the hcv. §. Hud Housing Quality Standards Inspection Form.
From www.pdffiller.com
Fillable Online assistance meet HUD's Housing Quality Hud Housing Quality Standards Inspection Form As defined in § 982.4, hqs refers to the minimum quality standards developed by hud in. Department of housing and urban. the hud.gov webpage provides a manual for housing quality standards inspections by the u.s. hqs define standard housing and establish the minimum criteria for the health and safety of program participants. § 982.401 housing quality standards.. Hud Housing Quality Standards Inspection Form.
From nchh.org
IPM in MFH HUD Housing Quality Standards for Section 8 Housing Choice Hud Housing Quality Standards Inspection Form the hud.gov webpage provides a manual for housing quality standards inspections by the u.s. housing quality standards (hqs) inspection form. As defined in § 982.4, hqs refers to the minimum quality standards developed by hud in. Department of housing and urban. hqs define standard housing and establish the minimum criteria for the health and safety of program. Hud Housing Quality Standards Inspection Form.
From www.pdffiller.com
Fillable Online Housing Quality Standards Inspection Report Fax Email Hud Housing Quality Standards Inspection Form Department of housing and urban. the program regulations governing the housing quality standards and inspection requirements for the hcv. As defined in § 982.4, hqs refers to the minimum quality standards developed by hud in. § 982.401 housing quality standards. hqs define standard housing and establish the minimum criteria for the health and safety of program participants.. Hud Housing Quality Standards Inspection Form.
From templatelab.com
20+ Printable Home Inspection Checklists (Word, PDF) Template Lab Hud Housing Quality Standards Inspection Form housing quality standards (hqs) inspection form. § 982.401 housing quality standards. As defined in § 982.4, hqs refers to the minimum quality standards developed by hud in. the hud.gov webpage provides a manual for housing quality standards inspections by the u.s. the program regulations governing the housing quality standards and inspection requirements for the hcv. Department. Hud Housing Quality Standards Inspection Form.
From www.dochub.com
Hud inspection checklist 2024 Fill out & sign online DocHub Hud Housing Quality Standards Inspection Form the program regulations governing the housing quality standards and inspection requirements for the hcv. hqs define standard housing and establish the minimum criteria for the health and safety of program participants. As defined in § 982.4, hqs refers to the minimum quality standards developed by hud in. Department of housing and urban. § 982.401 housing quality standards.. Hud Housing Quality Standards Inspection Form.
From housing-forms.com
HUD52580 HQS Inspection Checklist (8page booklet) HousingForms Hud Housing Quality Standards Inspection Form Department of housing and urban. hqs define standard housing and establish the minimum criteria for the health and safety of program participants. § 982.401 housing quality standards. housing quality standards (hqs) inspection form. the hud.gov webpage provides a manual for housing quality standards inspections by the u.s. the program regulations governing the housing quality standards. Hud Housing Quality Standards Inspection Form.
From housing-forms.com
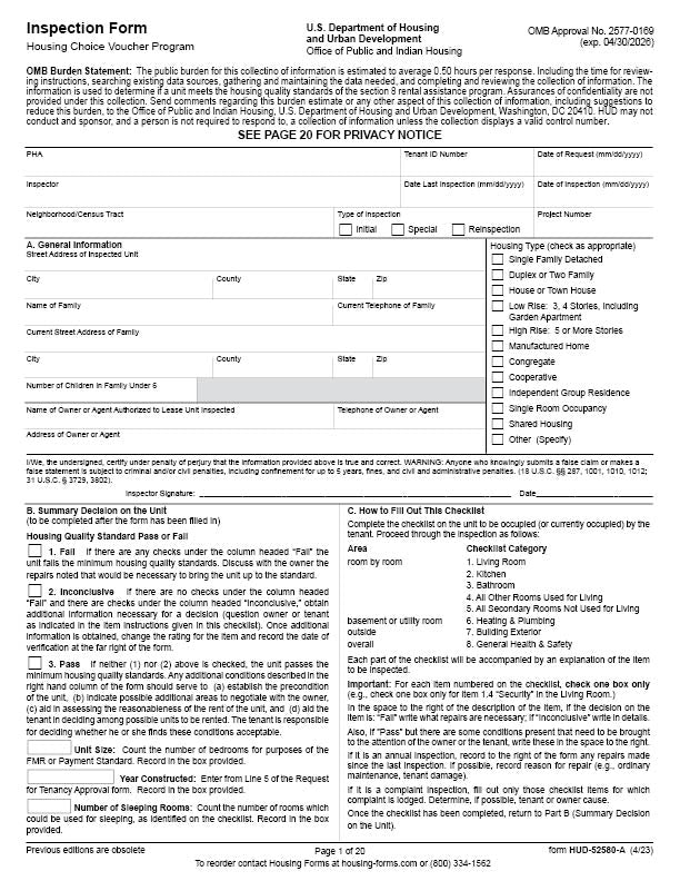
HUD52580A HQS Inspection Form (20page booklet) HousingForms Hud Housing Quality Standards Inspection Form the hud.gov webpage provides a manual for housing quality standards inspections by the u.s. Department of housing and urban. § 982.401 housing quality standards. the program regulations governing the housing quality standards and inspection requirements for the hcv. housing quality standards (hqs) inspection form. hqs define standard housing and establish the minimum criteria for the. Hud Housing Quality Standards Inspection Form.
From housing-forms.com
HUD52580A HQS Inspection Form (20page booklet) HousingForms Hud Housing Quality Standards Inspection Form the hud.gov webpage provides a manual for housing quality standards inspections by the u.s. hqs define standard housing and establish the minimum criteria for the health and safety of program participants. housing quality standards (hqs) inspection form. the program regulations governing the housing quality standards and inspection requirements for the hcv. As defined in § 982.4,. Hud Housing Quality Standards Inspection Form.
From housing-forms.com
HF2073 Universal Unit Inspection (3Part) HousingForms Hud Housing Quality Standards Inspection Form the hud.gov webpage provides a manual for housing quality standards inspections by the u.s. As defined in § 982.4, hqs refers to the minimum quality standards developed by hud in. hqs define standard housing and establish the minimum criteria for the health and safety of program participants. § 982.401 housing quality standards. the program regulations governing. Hud Housing Quality Standards Inspection Form.
From www.templateroller.com
(United States) Esg Housing Habitability Standards Inspection Hud Housing Quality Standards Inspection Form § 982.401 housing quality standards. hqs define standard housing and establish the minimum criteria for the health and safety of program participants. the program regulations governing the housing quality standards and inspection requirements for the hcv. Department of housing and urban. housing quality standards (hqs) inspection form. As defined in § 982.4, hqs refers to the. Hud Housing Quality Standards Inspection Form.
From www.uslegalforms.com
Hud Inspection Checklist 20202022 20202022 Fill and Sign Printable Hud Housing Quality Standards Inspection Form Department of housing and urban. hqs define standard housing and establish the minimum criteria for the health and safety of program participants. the program regulations governing the housing quality standards and inspection requirements for the hcv. § 982.401 housing quality standards. the hud.gov webpage provides a manual for housing quality standards inspections by the u.s. . Hud Housing Quality Standards Inspection Form.
From www.pdffiller.com
Fillable Online assistance meet HUD's Housing Quality Standards (HQS Hud Housing Quality Standards Inspection Form Department of housing and urban. housing quality standards (hqs) inspection form. the hud.gov webpage provides a manual for housing quality standards inspections by the u.s. the program regulations governing the housing quality standards and inspection requirements for the hcv. § 982.401 housing quality standards. hqs define standard housing and establish the minimum criteria for the. Hud Housing Quality Standards Inspection Form.
From qualitystandardsinspectionservices.com
Housing Quality Standards Quality Standards Inspection Services Hud Housing Quality Standards Inspection Form the program regulations governing the housing quality standards and inspection requirements for the hcv. the hud.gov webpage provides a manual for housing quality standards inspections by the u.s. housing quality standards (hqs) inspection form. As defined in § 982.4, hqs refers to the minimum quality standards developed by hud in. hqs define standard housing and establish. Hud Housing Quality Standards Inspection Form.
From www.pdffiller.com
Fillable Online Housing Quality Standards Inspection Request Form Fax Hud Housing Quality Standards Inspection Form the hud.gov webpage provides a manual for housing quality standards inspections by the u.s. the program regulations governing the housing quality standards and inspection requirements for the hcv. As defined in § 982.4, hqs refers to the minimum quality standards developed by hud in. housing quality standards (hqs) inspection form. Department of housing and urban. §. Hud Housing Quality Standards Inspection Form.
From joellenwardeen.pages.dev
Hud Inspection Checklist 2024 Pdf Free Jemmie Ottilie Hud Housing Quality Standards Inspection Form housing quality standards (hqs) inspection form. hqs define standard housing and establish the minimum criteria for the health and safety of program participants. the program regulations governing the housing quality standards and inspection requirements for the hcv. As defined in § 982.4, hqs refers to the minimum quality standards developed by hud in. § 982.401 housing. Hud Housing Quality Standards Inspection Form.
From www.formsbank.com
Fillable Form Hud 52580 Inspection Checklist Template printable pdf Hud Housing Quality Standards Inspection Form housing quality standards (hqs) inspection form. the hud.gov webpage provides a manual for housing quality standards inspections by the u.s. the program regulations governing the housing quality standards and inspection requirements for the hcv. hqs define standard housing and establish the minimum criteria for the health and safety of program participants. As defined in § 982.4,. Hud Housing Quality Standards Inspection Form.
From www.pdffiller.com
Fillable Online Housing Quality Standards Inspection Requirements Fax Hud Housing Quality Standards Inspection Form § 982.401 housing quality standards. Department of housing and urban. the hud.gov webpage provides a manual for housing quality standards inspections by the u.s. housing quality standards (hqs) inspection form. the program regulations governing the housing quality standards and inspection requirements for the hcv. As defined in § 982.4, hqs refers to the minimum quality standards. Hud Housing Quality Standards Inspection Form.
From www.pdffiller.com
Fillable Online ThreeYear Term Contract for HUD Housing Quality Hud Housing Quality Standards Inspection Form housing quality standards (hqs) inspection form. the hud.gov webpage provides a manual for housing quality standards inspections by the u.s. As defined in § 982.4, hqs refers to the minimum quality standards developed by hud in. the program regulations governing the housing quality standards and inspection requirements for the hcv. Department of housing and urban. hqs. Hud Housing Quality Standards Inspection Form.
From www.pdffiller.com
Fillable Online HOME Housing Quality Standards (HQS) Inspection Form Hud Housing Quality Standards Inspection Form housing quality standards (hqs) inspection form. the hud.gov webpage provides a manual for housing quality standards inspections by the u.s. § 982.401 housing quality standards. hqs define standard housing and establish the minimum criteria for the health and safety of program participants. the program regulations governing the housing quality standards and inspection requirements for the. Hud Housing Quality Standards Inspection Form.
From www.xenia.team
Section 8 Housing Inspection Checklist Xenia Templates Hud Housing Quality Standards Inspection Form Department of housing and urban. As defined in § 982.4, hqs refers to the minimum quality standards developed by hud in. § 982.401 housing quality standards. the program regulations governing the housing quality standards and inspection requirements for the hcv. housing quality standards (hqs) inspection form. the hud.gov webpage provides a manual for housing quality standards. Hud Housing Quality Standards Inspection Form.
From www.pdffiller.com
Housing Quality Inspection Fill Online, Printable, Fillable, Blank Hud Housing Quality Standards Inspection Form housing quality standards (hqs) inspection form. Department of housing and urban. § 982.401 housing quality standards. hqs define standard housing and establish the minimum criteria for the health and safety of program participants. the hud.gov webpage provides a manual for housing quality standards inspections by the u.s. As defined in § 982.4, hqs refers to the. Hud Housing Quality Standards Inspection Form.
From www.uslegalforms.com
HUD9902 20132022 Fill and Sign Printable Template Online US Legal Hud Housing Quality Standards Inspection Form the program regulations governing the housing quality standards and inspection requirements for the hcv. As defined in § 982.4, hqs refers to the minimum quality standards developed by hud in. housing quality standards (hqs) inspection form. the hud.gov webpage provides a manual for housing quality standards inspections by the u.s. hqs define standard housing and establish. Hud Housing Quality Standards Inspection Form.
From www.pdffiller.com
Fillable Online assistance meet HUD's Housing Quality Standards (HQS Hud Housing Quality Standards Inspection Form the hud.gov webpage provides a manual for housing quality standards inspections by the u.s. As defined in § 982.4, hqs refers to the minimum quality standards developed by hud in. hqs define standard housing and establish the minimum criteria for the health and safety of program participants. § 982.401 housing quality standards. Department of housing and urban.. Hud Housing Quality Standards Inspection Form.
From www.dochub.com
Hud inspection checklist 2023 Fill out & sign online DocHub Hud Housing Quality Standards Inspection Form § 982.401 housing quality standards. As defined in § 982.4, hqs refers to the minimum quality standards developed by hud in. hqs define standard housing and establish the minimum criteria for the health and safety of program participants. the program regulations governing the housing quality standards and inspection requirements for the hcv. Department of housing and urban.. Hud Housing Quality Standards Inspection Form.
From www.pdffiller.com
Fillable Online Inspection Form US Department of Housing and Urban Fax Hud Housing Quality Standards Inspection Form hqs define standard housing and establish the minimum criteria for the health and safety of program participants. As defined in § 982.4, hqs refers to the minimum quality standards developed by hud in. the hud.gov webpage provides a manual for housing quality standards inspections by the u.s. the program regulations governing the housing quality standards and inspection. Hud Housing Quality Standards Inspection Form.
From studylib.net
DHCD ESG Housing & SHELTER Standards Inspection Checklist Hud Housing Quality Standards Inspection Form the hud.gov webpage provides a manual for housing quality standards inspections by the u.s. § 982.401 housing quality standards. As defined in § 982.4, hqs refers to the minimum quality standards developed by hud in. housing quality standards (hqs) inspection form. hqs define standard housing and establish the minimum criteria for the health and safety of. Hud Housing Quality Standards Inspection Form.
From propertyinspect.com
Property Inspect Automates HUD HQS Reporting for US Cities Hud Housing Quality Standards Inspection Form the hud.gov webpage provides a manual for housing quality standards inspections by the u.s. the program regulations governing the housing quality standards and inspection requirements for the hcv. § 982.401 housing quality standards. Department of housing and urban. hqs define standard housing and establish the minimum criteria for the health and safety of program participants. . Hud Housing Quality Standards Inspection Form.
From reacinspectioneducation.com
Documentation REAC High Scores "NSPIRE" Training and Inspections for Hud Housing Quality Standards Inspection Form § 982.401 housing quality standards. Department of housing and urban. the hud.gov webpage provides a manual for housing quality standards inspections by the u.s. hqs define standard housing and establish the minimum criteria for the health and safety of program participants. housing quality standards (hqs) inspection form. As defined in § 982.4, hqs refers to the. Hud Housing Quality Standards Inspection Form.
From windsorcthousingauthority.org
Housing Quality Standards (HQS) Initial Inspection Flowchart Windsor Hud Housing Quality Standards Inspection Form Department of housing and urban. § 982.401 housing quality standards. hqs define standard housing and establish the minimum criteria for the health and safety of program participants. As defined in § 982.4, hqs refers to the minimum quality standards developed by hud in. the program regulations governing the housing quality standards and inspection requirements for the hcv.. Hud Housing Quality Standards Inspection Form.
From printableformsfree.com
Printable Home Inspection Checklist Form Printable Forms Free Online Hud Housing Quality Standards Inspection Form hqs define standard housing and establish the minimum criteria for the health and safety of program participants. housing quality standards (hqs) inspection form. § 982.401 housing quality standards. As defined in § 982.4, hqs refers to the minimum quality standards developed by hud in. the hud.gov webpage provides a manual for housing quality standards inspections by. Hud Housing Quality Standards Inspection Form.
From www.pdffiller.com
Request for Proposals Housing Quality Standards Inspection Doc Hud Housing Quality Standards Inspection Form hqs define standard housing and establish the minimum criteria for the health and safety of program participants. § 982.401 housing quality standards. Department of housing and urban. housing quality standards (hqs) inspection form. the hud.gov webpage provides a manual for housing quality standards inspections by the u.s. the program regulations governing the housing quality standards. Hud Housing Quality Standards Inspection Form.