Oregon Landowner Tag Requirements . A landowner preference tag authorizes the recipient to hunt only on those lands owned and registered in the landowner preference. Landowners with a minimum of 40 contiguous acres may qualify for controlled hunts tags on their property. (1) a landowner shall submit a landowner preference registration form to be eligible for a landowner preference tag. A landowner preference tag authorizes the recipient to hunt only on those lands owned and registered in the program who meet the. As a current participant in oregon department of fish and wildlife (odfw)’s landowner preference program, you are responsible for verifying that. In order to qualify, lands must be. A landowner preference tag authorizes the recipient to hunt only on those lands owned and registered in the program who meet the minimum acreage requirements for that hunt,.
from www.templateroller.com
A landowner preference tag authorizes the recipient to hunt only on those lands owned and registered in the landowner preference. A landowner preference tag authorizes the recipient to hunt only on those lands owned and registered in the program who meet the minimum acreage requirements for that hunt,. (1) a landowner shall submit a landowner preference registration form to be eligible for a landowner preference tag. Landowners with a minimum of 40 contiguous acres may qualify for controlled hunts tags on their property. In order to qualify, lands must be. As a current participant in oregon department of fish and wildlife (odfw)’s landowner preference program, you are responsible for verifying that. A landowner preference tag authorizes the recipient to hunt only on those lands owned and registered in the program who meet the.
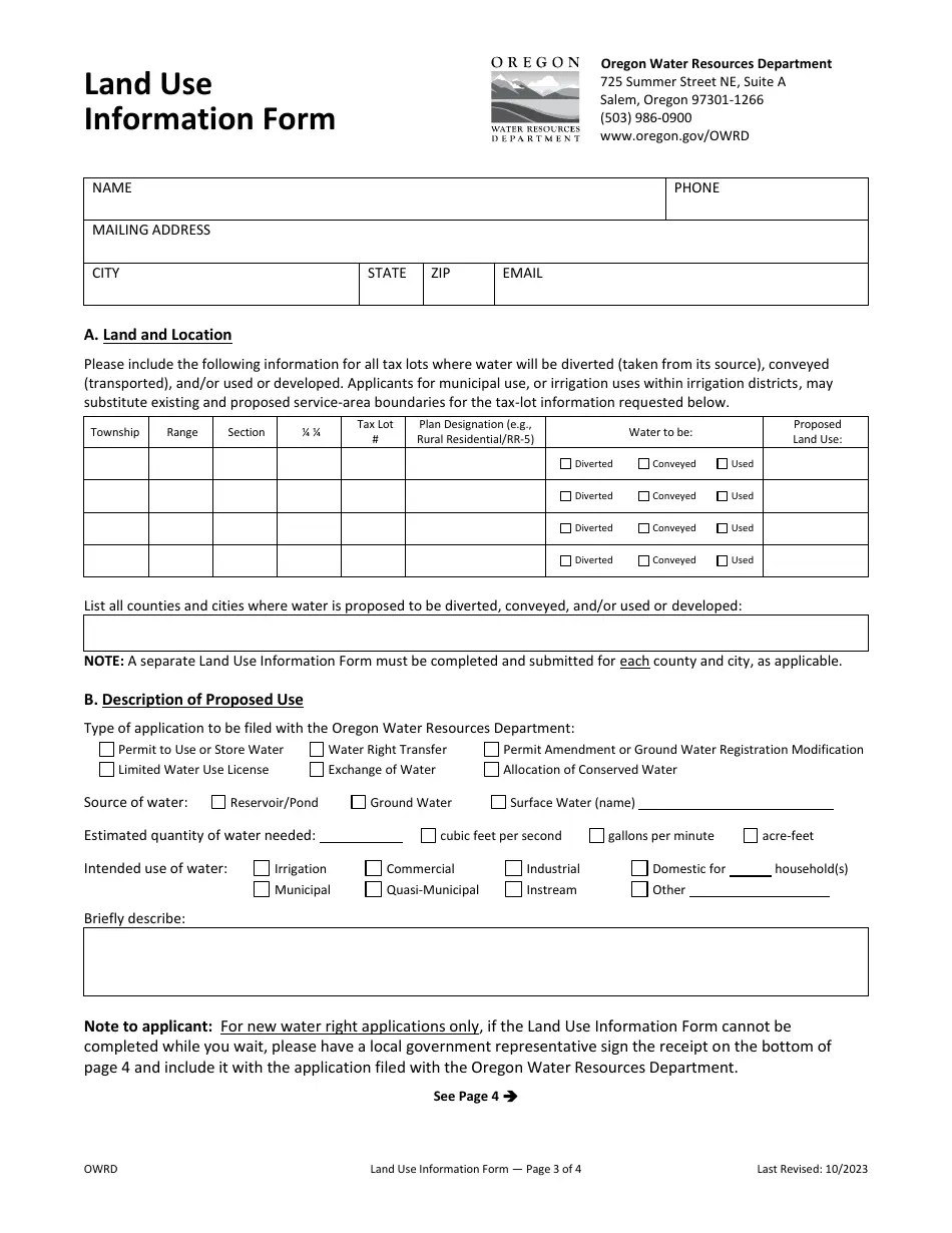
Oregon Land Use Information Form Fill Out, Sign Online and Download
Oregon Landowner Tag Requirements Landowners with a minimum of 40 contiguous acres may qualify for controlled hunts tags on their property. (1) a landowner shall submit a landowner preference registration form to be eligible for a landowner preference tag. A landowner preference tag authorizes the recipient to hunt only on those lands owned and registered in the landowner preference. Landowners with a minimum of 40 contiguous acres may qualify for controlled hunts tags on their property. A landowner preference tag authorizes the recipient to hunt only on those lands owned and registered in the program who meet the minimum acreage requirements for that hunt,. As a current participant in oregon department of fish and wildlife (odfw)’s landowner preference program, you are responsible for verifying that. In order to qualify, lands must be. A landowner preference tag authorizes the recipient to hunt only on those lands owned and registered in the program who meet the.
From www.templateroller.com
Oregon Authorized Designee Form Landowner Preference Program Fill Oregon Landowner Tag Requirements (1) a landowner shall submit a landowner preference registration form to be eligible for a landowner preference tag. As a current participant in oregon department of fish and wildlife (odfw)’s landowner preference program, you are responsible for verifying that. A landowner preference tag authorizes the recipient to hunt only on those lands owned and registered in the program who meet. Oregon Landowner Tag Requirements.
From www.templateroller.com
2022 Oregon Landowner Preference Tag Distribution for 400 Series Oregon Landowner Tag Requirements A landowner preference tag authorizes the recipient to hunt only on those lands owned and registered in the landowner preference. A landowner preference tag authorizes the recipient to hunt only on those lands owned and registered in the program who meet the. In order to qualify, lands must be. Landowners with a minimum of 40 contiguous acres may qualify for. Oregon Landowner Tag Requirements.
From jimmy2.360elevate.co
Oregon Unit 16 Topo Maps Hunting & Unit Maps » Hunters Domain Landowner Oregon Landowner Tag Requirements A landowner preference tag authorizes the recipient to hunt only on those lands owned and registered in the program who meet the. A landowner preference tag authorizes the recipient to hunt only on those lands owned and registered in the landowner preference. Landowners with a minimum of 40 contiguous acres may qualify for controlled hunts tags on their property. In. Oregon Landowner Tag Requirements.
From jimmy2.360elevate.co
Oregon Unit 20 Topo Maps Hunting & Unit Maps » Hunters Domain Landowner Oregon Landowner Tag Requirements A landowner preference tag authorizes the recipient to hunt only on those lands owned and registered in the program who meet the minimum acreage requirements for that hunt,. A landowner preference tag authorizes the recipient to hunt only on those lands owned and registered in the landowner preference. A landowner preference tag authorizes the recipient to hunt only on those. Oregon Landowner Tag Requirements.
From www.templateroller.com
2022 Oregon Landowner Preference Tag Distribution for 600 Series Oregon Landowner Tag Requirements A landowner preference tag authorizes the recipient to hunt only on those lands owned and registered in the landowner preference. A landowner preference tag authorizes the recipient to hunt only on those lands owned and registered in the program who meet the minimum acreage requirements for that hunt,. Landowners with a minimum of 40 contiguous acres may qualify for controlled. Oregon Landowner Tag Requirements.
From huntersdomain.com
Oregon Unit 17 Topo Maps Hunting & Unit Maps » Hunters Domain Landowner Oregon Landowner Tag Requirements A landowner preference tag authorizes the recipient to hunt only on those lands owned and registered in the program who meet the. A landowner preference tag authorizes the recipient to hunt only on those lands owned and registered in the program who meet the minimum acreage requirements for that hunt,. (1) a landowner shall submit a landowner preference registration form. Oregon Landowner Tag Requirements.
From www.templateroller.com
2022 Oregon Landowner Preference Tag Distribution for 200 Series Oregon Landowner Tag Requirements In order to qualify, lands must be. A landowner preference tag authorizes the recipient to hunt only on those lands owned and registered in the program who meet the minimum acreage requirements for that hunt,. (1) a landowner shall submit a landowner preference registration form to be eligible for a landowner preference tag. A landowner preference tag authorizes the recipient. Oregon Landowner Tag Requirements.
From www.templateroller.com
2021 Oregon Landowner Preference Tag Distribution for 200 Series Oregon Landowner Tag Requirements (1) a landowner shall submit a landowner preference registration form to be eligible for a landowner preference tag. Landowners with a minimum of 40 contiguous acres may qualify for controlled hunts tags on their property. In order to qualify, lands must be. A landowner preference tag authorizes the recipient to hunt only on those lands owned and registered in the. Oregon Landowner Tag Requirements.
From jimmy2.360elevate.co
Oregon Unit 18 Topo Maps Hunting & Unit Maps » Hunters Domain Landowner Oregon Landowner Tag Requirements In order to qualify, lands must be. As a current participant in oregon department of fish and wildlife (odfw)’s landowner preference program, you are responsible for verifying that. A landowner preference tag authorizes the recipient to hunt only on those lands owned and registered in the program who meet the. Landowners with a minimum of 40 contiguous acres may qualify. Oregon Landowner Tag Requirements.
From www.pinterest.com
Oregon license plate options, by the Oregon Driver and Motor Vehicle Oregon Landowner Tag Requirements In order to qualify, lands must be. (1) a landowner shall submit a landowner preference registration form to be eligible for a landowner preference tag. A landowner preference tag authorizes the recipient to hunt only on those lands owned and registered in the program who meet the minimum acreage requirements for that hunt,. A landowner preference tag authorizes the recipient. Oregon Landowner Tag Requirements.
From www.centraloregonlandwatch.org
Rural Lands Updates Continued — Central Oregon LandWatch Oregon Landowner Tag Requirements As a current participant in oregon department of fish and wildlife (odfw)’s landowner preference program, you are responsible for verifying that. In order to qualify, lands must be. A landowner preference tag authorizes the recipient to hunt only on those lands owned and registered in the program who meet the. A landowner preference tag authorizes the recipient to hunt only. Oregon Landowner Tag Requirements.
From huntersdomain.com
Oregon Unit 33 Topo Maps Hunting & Unit Maps » Hunters Domain Landowner Oregon Landowner Tag Requirements (1) a landowner shall submit a landowner preference registration form to be eligible for a landowner preference tag. As a current participant in oregon department of fish and wildlife (odfw)’s landowner preference program, you are responsible for verifying that. A landowner preference tag authorizes the recipient to hunt only on those lands owned and registered in the program who meet. Oregon Landowner Tag Requirements.
From alphasuretybonds.com
Unveiling the Oregon Landowner's Water Well Bond Oregon Landowner Tag Requirements A landowner preference tag authorizes the recipient to hunt only on those lands owned and registered in the program who meet the. A landowner preference tag authorizes the recipient to hunt only on those lands owned and registered in the program who meet the minimum acreage requirements for that hunt,. (1) a landowner shall submit a landowner preference registration form. Oregon Landowner Tag Requirements.
From www.templateroller.com
Oregon Land Use Information Form Fill Out, Sign Online and Download Oregon Landowner Tag Requirements As a current participant in oregon department of fish and wildlife (odfw)’s landowner preference program, you are responsible for verifying that. A landowner preference tag authorizes the recipient to hunt only on those lands owned and registered in the landowner preference. Landowners with a minimum of 40 contiguous acres may qualify for controlled hunts tags on their property. (1) a. Oregon Landowner Tag Requirements.
From www.templateroller.com
Oregon Landowner Agreement Water Project Grants and Loans Fill Out Oregon Landowner Tag Requirements Landowners with a minimum of 40 contiguous acres may qualify for controlled hunts tags on their property. A landowner preference tag authorizes the recipient to hunt only on those lands owned and registered in the program who meet the minimum acreage requirements for that hunt,. In order to qualify, lands must be. (1) a landowner shall submit a landowner preference. Oregon Landowner Tag Requirements.
From www.pdffiller.com
Fillable Online Chapter 1 Overview of the Oregon Land Use Planning Oregon Landowner Tag Requirements Landowners with a minimum of 40 contiguous acres may qualify for controlled hunts tags on their property. As a current participant in oregon department of fish and wildlife (odfw)’s landowner preference program, you are responsible for verifying that. A landowner preference tag authorizes the recipient to hunt only on those lands owned and registered in the program who meet the. Oregon Landowner Tag Requirements.
From hunt-tag.com
Oregon Hunting Tag Replacements HuntTag Oregon Landowner Tag Requirements A landowner preference tag authorizes the recipient to hunt only on those lands owned and registered in the program who meet the. As a current participant in oregon department of fish and wildlife (odfw)’s landowner preference program, you are responsible for verifying that. A landowner preference tag authorizes the recipient to hunt only on those lands owned and registered in. Oregon Landowner Tag Requirements.
From huntersdomain.com
Oregon Unit 72 Topo Maps Hunting & Unit Maps » Hunters Domain Landowner Oregon Landowner Tag Requirements In order to qualify, lands must be. A landowner preference tag authorizes the recipient to hunt only on those lands owned and registered in the program who meet the. Landowners with a minimum of 40 contiguous acres may qualify for controlled hunts tags on their property. A landowner preference tag authorizes the recipient to hunt only on those lands owned. Oregon Landowner Tag Requirements.
From huntersdomain.com
Oregon Unit 16 Topo Maps Hunting & Unit Maps » Hunters Domain Landowner Oregon Landowner Tag Requirements A landowner preference tag authorizes the recipient to hunt only on those lands owned and registered in the landowner preference. Landowners with a minimum of 40 contiguous acres may qualify for controlled hunts tags on their property. In order to qualify, lands must be. A landowner preference tag authorizes the recipient to hunt only on those lands owned and registered. Oregon Landowner Tag Requirements.
From www.templateroller.com
Oregon Land Use Information Form Fill Out, Sign Online and Download Oregon Landowner Tag Requirements Landowners with a minimum of 40 contiguous acres may qualify for controlled hunts tags on their property. A landowner preference tag authorizes the recipient to hunt only on those lands owned and registered in the landowner preference. In order to qualify, lands must be. (1) a landowner shall submit a landowner preference registration form to be eligible for a landowner. Oregon Landowner Tag Requirements.
From engineersealstamps.com
Hybrid Oregon Land Surveyor Seal Professional Surveying Seals Oregon Landowner Tag Requirements As a current participant in oregon department of fish and wildlife (odfw)’s landowner preference program, you are responsible for verifying that. (1) a landowner shall submit a landowner preference registration form to be eligible for a landowner preference tag. Landowners with a minimum of 40 contiguous acres may qualify for controlled hunts tags on their property. In order to qualify,. Oregon Landowner Tag Requirements.
From www.templateroller.com
2021 Oregon Landowner Preference Tag Distribution for 400 Series Oregon Landowner Tag Requirements A landowner preference tag authorizes the recipient to hunt only on those lands owned and registered in the program who meet the. (1) a landowner shall submit a landowner preference registration form to be eligible for a landowner preference tag. As a current participant in oregon department of fish and wildlife (odfw)’s landowner preference program, you are responsible for verifying. Oregon Landowner Tag Requirements.
From www.capitalpress.com
House approves permanent Oregon landowner hunting tag program Oregon Oregon Landowner Tag Requirements A landowner preference tag authorizes the recipient to hunt only on those lands owned and registered in the program who meet the. As a current participant in oregon department of fish and wildlife (odfw)’s landowner preference program, you are responsible for verifying that. A landowner preference tag authorizes the recipient to hunt only on those lands owned and registered in. Oregon Landowner Tag Requirements.
From huntersdomain.com
Oregon Unit 68 Topo Maps Hunting & Unit Maps » Hunters Domain Landowner Oregon Landowner Tag Requirements A landowner preference tag authorizes the recipient to hunt only on those lands owned and registered in the program who meet the minimum acreage requirements for that hunt,. (1) a landowner shall submit a landowner preference registration form to be eligible for a landowner preference tag. In order to qualify, lands must be. Landowners with a minimum of 40 contiguous. Oregon Landowner Tag Requirements.
From www.templateroller.com
Oregon Landowner Preference Name Change & Increase/Decrease Acreage Oregon Landowner Tag Requirements Landowners with a minimum of 40 contiguous acres may qualify for controlled hunts tags on their property. A landowner preference tag authorizes the recipient to hunt only on those lands owned and registered in the program who meet the minimum acreage requirements for that hunt,. (1) a landowner shall submit a landowner preference registration form to be eligible for a. Oregon Landowner Tag Requirements.
From huntersdomain.com
Oregon Unit 68 Topo Maps Hunting & Unit Maps » Hunters Domain Landowner Oregon Landowner Tag Requirements In order to qualify, lands must be. A landowner preference tag authorizes the recipient to hunt only on those lands owned and registered in the program who meet the minimum acreage requirements for that hunt,. As a current participant in oregon department of fish and wildlife (odfw)’s landowner preference program, you are responsible for verifying that. (1) a landowner shall. Oregon Landowner Tag Requirements.
From www.templateroller.com
2021 Oregon Landowner Preference Tag Distribution for 600 Series Oregon Landowner Tag Requirements Landowners with a minimum of 40 contiguous acres may qualify for controlled hunts tags on their property. (1) a landowner shall submit a landowner preference registration form to be eligible for a landowner preference tag. A landowner preference tag authorizes the recipient to hunt only on those lands owned and registered in the program who meet the. In order to. Oregon Landowner Tag Requirements.
From www.templateroller.com
Oregon Land Use Information Form Fill Out, Sign Online and Download Oregon Landowner Tag Requirements A landowner preference tag authorizes the recipient to hunt only on those lands owned and registered in the landowner preference. (1) a landowner shall submit a landowner preference registration form to be eligible for a landowner preference tag. As a current participant in oregon department of fish and wildlife (odfw)’s landowner preference program, you are responsible for verifying that. A. Oregon Landowner Tag Requirements.
From alphasuretybonds.com
Understanding the Oregon Landowner's Water Well Bond Oregon Landowner Tag Requirements As a current participant in oregon department of fish and wildlife (odfw)’s landowner preference program, you are responsible for verifying that. (1) a landowner shall submit a landowner preference registration form to be eligible for a landowner preference tag. In order to qualify, lands must be. A landowner preference tag authorizes the recipient to hunt only on those lands owned. Oregon Landowner Tag Requirements.
From www.researchgate.net
Study area. Northwest Oregon counties, forest land, vegetation zones Oregon Landowner Tag Requirements Landowners with a minimum of 40 contiguous acres may qualify for controlled hunts tags on their property. In order to qualify, lands must be. As a current participant in oregon department of fish and wildlife (odfw)’s landowner preference program, you are responsible for verifying that. A landowner preference tag authorizes the recipient to hunt only on those lands owned and. Oregon Landowner Tag Requirements.
From www.bendoregonland.com
Listings — Bend Oregon Land Oregon Landowner Tag Requirements In order to qualify, lands must be. (1) a landowner shall submit a landowner preference registration form to be eligible for a landowner preference tag. As a current participant in oregon department of fish and wildlife (odfw)’s landowner preference program, you are responsible for verifying that. Landowners with a minimum of 40 contiguous acres may qualify for controlled hunts tags. Oregon Landowner Tag Requirements.
From oregonlandtrusts.org
Protecting Oregon’s Drinking Water Sources Coalition of Oregon Land Oregon Landowner Tag Requirements A landowner preference tag authorizes the recipient to hunt only on those lands owned and registered in the program who meet the minimum acreage requirements for that hunt,. (1) a landowner shall submit a landowner preference registration form to be eligible for a landowner preference tag. As a current participant in oregon department of fish and wildlife (odfw)’s landowner preference. Oregon Landowner Tag Requirements.
From huntersdomain.com
Oregon Unit 65 Topo Maps Hunting & Unit Maps » Hunters Domain Landowner Oregon Landowner Tag Requirements (1) a landowner shall submit a landowner preference registration form to be eligible for a landowner preference tag. A landowner preference tag authorizes the recipient to hunt only on those lands owned and registered in the program who meet the minimum acreage requirements for that hunt,. As a current participant in oregon department of fish and wildlife (odfw)’s landowner preference. Oregon Landowner Tag Requirements.
From onlinelandusa.com
Oregon Land, 9.12 Acres Across from Merritt Creek, Large Trees and Oregon Landowner Tag Requirements Landowners with a minimum of 40 contiguous acres may qualify for controlled hunts tags on their property. A landowner preference tag authorizes the recipient to hunt only on those lands owned and registered in the landowner preference. (1) a landowner shall submit a landowner preference registration form to be eligible for a landowner preference tag. As a current participant in. Oregon Landowner Tag Requirements.
From www.templateroller.com
Oregon Land Use Information Form Fill Out, Sign Online and Download Oregon Landowner Tag Requirements (1) a landowner shall submit a landowner preference registration form to be eligible for a landowner preference tag. In order to qualify, lands must be. A landowner preference tag authorizes the recipient to hunt only on those lands owned and registered in the program who meet the minimum acreage requirements for that hunt,. Landowners with a minimum of 40 contiguous. Oregon Landowner Tag Requirements.