Revit Depth Cueing Plan View . To apply depth cueing to multiple views of the same type, create. Turning on this feature will automatically fade your revit. I am unable to turn on the depth cueing graphic display option (the show depth button is greyed out/locked). The new feature depth cueing in revit 2017 aims to help architects and designers avoid these pesky workarounds. Use the depth clipping parameter to display parts of a model below the cut plane. To apply depth cueing to the current elevation or section view, define settings in the graphic display options dialog. If you only want the wall visible in the plan view as it appears in. This would make it easier to see the cut plane and what is below. Depth cueing would useful to show point clouds in plan view. To control how elements that are farther away from the viewer display in section and elevation views, use the depth cueing feature. Depth cueing is available in architectural and coordination discipline views to allow architects to better visualize their elevations and. You would also have to modify the line styles changing beyond to your. You can set your view depth to the level below or unlimited.
from www.youtube.com
The new feature depth cueing in revit 2017 aims to help architects and designers avoid these pesky workarounds. Depth cueing is available in architectural and coordination discipline views to allow architects to better visualize their elevations and. You would also have to modify the line styles changing beyond to your. I am unable to turn on the depth cueing graphic display option (the show depth button is greyed out/locked). Turning on this feature will automatically fade your revit. This would make it easier to see the cut plane and what is below. If you only want the wall visible in the plan view as it appears in. To control how elements that are farther away from the viewer display in section and elevation views, use the depth cueing feature. Depth cueing would useful to show point clouds in plan view. You can set your view depth to the level below or unlimited.
How to Change Topography Depth in Revit YouTube
Revit Depth Cueing Plan View Use the depth clipping parameter to display parts of a model below the cut plane. To apply depth cueing to multiple views of the same type, create. I am unable to turn on the depth cueing graphic display option (the show depth button is greyed out/locked). This would make it easier to see the cut plane and what is below. To apply depth cueing to the current elevation or section view, define settings in the graphic display options dialog. You can set your view depth to the level below or unlimited. To control how elements that are farther away from the viewer display in section and elevation views, use the depth cueing feature. You would also have to modify the line styles changing beyond to your. If you only want the wall visible in the plan view as it appears in. Depth cueing would useful to show point clouds in plan view. Depth cueing is available in architectural and coordination discipline views to allow architects to better visualize their elevations and. The new feature depth cueing in revit 2017 aims to help architects and designers avoid these pesky workarounds. Use the depth clipping parameter to display parts of a model below the cut plane. Turning on this feature will automatically fade your revit.
From blog.hagerman.com
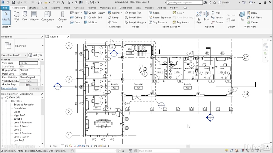
Autodesk® Revit® 2017 Feature enhancement Depth cueing Revit Depth Cueing Plan View You would also have to modify the line styles changing beyond to your. The new feature depth cueing in revit 2017 aims to help architects and designers avoid these pesky workarounds. Use the depth clipping parameter to display parts of a model below the cut plane. Depth cueing would useful to show point clouds in plan view. Depth cueing is. Revit Depth Cueing Plan View.
From www.youtube.com
Revit View Range and View Depth Tips and Tricks CADtech Seminars Revit Depth Cueing Plan View Turning on this feature will automatically fade your revit. You would also have to modify the line styles changing beyond to your. The new feature depth cueing in revit 2017 aims to help architects and designers avoid these pesky workarounds. To control how elements that are farther away from the viewer display in section and elevation views, use the depth. Revit Depth Cueing Plan View.
From www.lynda.com
Using the Linework tool and Depth Cueing Revit Depth Cueing Plan View Use the depth clipping parameter to display parts of a model below the cut plane. To apply depth cueing to multiple views of the same type, create. To apply depth cueing to the current elevation or section view, define settings in the graphic display options dialog. The new feature depth cueing in revit 2017 aims to help architects and designers. Revit Depth Cueing Plan View.
From www.youtube.com
Revit 2017 Depth Cueing YouTube Revit Depth Cueing Plan View Use the depth clipping parameter to display parts of a model below the cut plane. If you only want the wall visible in the plan view as it appears in. To apply depth cueing to the current elevation or section view, define settings in the graphic display options dialog. This would make it easier to see the cut plane and. Revit Depth Cueing Plan View.
From www.youtube.com
Revit Depth Cueing YouTube Revit Depth Cueing Plan View You can set your view depth to the level below or unlimited. The new feature depth cueing in revit 2017 aims to help architects and designers avoid these pesky workarounds. Depth cueing would useful to show point clouds in plan view. I am unable to turn on the depth cueing graphic display option (the show depth button is greyed out/locked).. Revit Depth Cueing Plan View.
From www.cadbim3d.com
¿Para qué sirve la opción Depth Cueing en Revit? cadBIM3D Revit Depth Cueing Plan View Depth cueing would useful to show point clouds in plan view. I am unable to turn on the depth cueing graphic display option (the show depth button is greyed out/locked). Depth cueing is available in architectural and coordination discipline views to allow architects to better visualize their elevations and. Turning on this feature will automatically fade your revit. To apply. Revit Depth Cueing Plan View.
From www.youtube.com
Distinguish Far Elements with Depth Cueing in Revit YouTube Revit Depth Cueing Plan View To control how elements that are farther away from the viewer display in section and elevation views, use the depth cueing feature. I am unable to turn on the depth cueing graphic display option (the show depth button is greyed out/locked). Use the depth clipping parameter to display parts of a model below the cut plane. The new feature depth. Revit Depth Cueing Plan View.
From www.youtube.com
Revit architecture ملاحظات سريعه Depth Cueing YouTube Revit Depth Cueing Plan View If you only want the wall visible in the plan view as it appears in. To apply depth cueing to multiple views of the same type, create. To apply depth cueing to the current elevation or section view, define settings in the graphic display options dialog. You would also have to modify the line styles changing beyond to your. I. Revit Depth Cueing Plan View.
From www.youtube.com
Revit tips Cómo darle percepción de profundidad a una vista de Revit Depth Cueing Plan View Depth cueing would useful to show point clouds in plan view. The new feature depth cueing in revit 2017 aims to help architects and designers avoid these pesky workarounds. Depth cueing is available in architectural and coordination discipline views to allow architects to better visualize their elevations and. You can set your view depth to the level below or unlimited.. Revit Depth Cueing Plan View.
From www.pinterest.com
Stop making boring elevations. New Depth Cueing feature from Revit 2017 Revit Depth Cueing Plan View Turning on this feature will automatically fade your revit. Depth cueing is available in architectural and coordination discipline views to allow architects to better visualize their elevations and. The new feature depth cueing in revit 2017 aims to help architects and designers avoid these pesky workarounds. This would make it easier to see the cut plane and what is below.. Revit Depth Cueing Plan View.
From www.youtube.com
View Depth Setting in Revit YouTube Revit Depth Cueing Plan View The new feature depth cueing in revit 2017 aims to help architects and designers avoid these pesky workarounds. This would make it easier to see the cut plane and what is below. I am unable to turn on the depth cueing graphic display option (the show depth button is greyed out/locked). You would also have to modify the line styles. Revit Depth Cueing Plan View.
From www.youtube.com
View Range and Depth Clipping in Revit YouTube Revit Depth Cueing Plan View The new feature depth cueing in revit 2017 aims to help architects and designers avoid these pesky workarounds. Turning on this feature will automatically fade your revit. Depth cueing is available in architectural and coordination discipline views to allow architects to better visualize their elevations and. To apply depth cueing to multiple views of the same type, create. I am. Revit Depth Cueing Plan View.
From www.aparat.com
کورس revit با استفاده از ابزار Linework و Depth Cueing... Revit Depth Cueing Plan View To apply depth cueing to multiple views of the same type, create. To apply depth cueing to the current elevation or section view, define settings in the graphic display options dialog. The new feature depth cueing in revit 2017 aims to help architects and designers avoid these pesky workarounds. This would make it easier to see the cut plane and. Revit Depth Cueing Plan View.
From arcpro93.com
کاربرد Depth Cueing در REVIT آرک پرو Revit Depth Cueing Plan View I am unable to turn on the depth cueing graphic display option (the show depth button is greyed out/locked). You can set your view depth to the level below or unlimited. You would also have to modify the line styles changing beyond to your. Use the depth clipping parameter to display parts of a model below the cut plane. Turning. Revit Depth Cueing Plan View.
From www.cadbim3d.com
¿Para qué sirve la opción Depth Cueing en Revit? cadBIM3D Revit Depth Cueing Plan View I am unable to turn on the depth cueing graphic display option (the show depth button is greyed out/locked). To control how elements that are farther away from the viewer display in section and elevation views, use the depth cueing feature. Depth cueing would useful to show point clouds in plan view. To apply depth cueing to multiple views of. Revit Depth Cueing Plan View.
From www.cadlinecommunity.co.uk
Revit 2017 Elevation and Section Depth Cueing Cadline Community Revit Depth Cueing Plan View This would make it easier to see the cut plane and what is below. Depth cueing would useful to show point clouds in plan view. The new feature depth cueing in revit 2017 aims to help architects and designers avoid these pesky workarounds. To apply depth cueing to multiple views of the same type, create. You can set your view. Revit Depth Cueing Plan View.
From www.youtube.com
Autodesk Revit 2017 Depth cueing YouTube Revit Depth Cueing Plan View To control how elements that are farther away from the viewer display in section and elevation views, use the depth cueing feature. Depth cueing would useful to show point clouds in plan view. I am unable to turn on the depth cueing graphic display option (the show depth button is greyed out/locked). You can set your view depth to the. Revit Depth Cueing Plan View.
From www.youtube.com
Revit 2017 Depth Cueing YouTube Revit Depth Cueing Plan View Depth cueing would useful to show point clouds in plan view. To control how elements that are farther away from the viewer display in section and elevation views, use the depth cueing feature. The new feature depth cueing in revit 2017 aims to help architects and designers avoid these pesky workarounds. To apply depth cueing to multiple views of the. Revit Depth Cueing Plan View.
From www.jigsawcad.com
Let the experts talk about What is depth cueing in Revit [New Research] Revit Depth Cueing Plan View The new feature depth cueing in revit 2017 aims to help architects and designers avoid these pesky workarounds. To control how elements that are farther away from the viewer display in section and elevation views, use the depth cueing feature. If you only want the wall visible in the plan view as it appears in. To apply depth cueing to. Revit Depth Cueing Plan View.
From www.youtube.com
Hướng dẫn sử dụng Revit Architecture 2019 Bài 68 Công cụ linework và Revit Depth Cueing Plan View To control how elements that are farther away from the viewer display in section and elevation views, use the depth cueing feature. You can set your view depth to the level below or unlimited. Turning on this feature will automatically fade your revit. Depth cueing would useful to show point clouds in plan view. To apply depth cueing to multiple. Revit Depth Cueing Plan View.
From www.cadbim3d.com
¿Para qué sirve la opción Depth Cueing en Revit? cadBIM3D Revit Depth Cueing Plan View I am unable to turn on the depth cueing graphic display option (the show depth button is greyed out/locked). You can set your view depth to the level below or unlimited. This would make it easier to see the cut plane and what is below. To control how elements that are farther away from the viewer display in section and. Revit Depth Cueing Plan View.
From forums.autodesk.com
Solved depth cueing in perspective views Autodesk Community Revit Depth Cueing Plan View This would make it easier to see the cut plane and what is below. I am unable to turn on the depth cueing graphic display option (the show depth button is greyed out/locked). The new feature depth cueing in revit 2017 aims to help architects and designers avoid these pesky workarounds. Use the depth clipping parameter to display parts of. Revit Depth Cueing Plan View.
From forums.autodesk.com
Solved Possible to use depth cueing for plans? Autodesk Community Revit Depth Cueing Plan View Depth cueing is available in architectural and coordination discipline views to allow architects to better visualize their elevations and. To apply depth cueing to multiple views of the same type, create. I am unable to turn on the depth cueing graphic display option (the show depth button is greyed out/locked). Depth cueing would useful to show point clouds in plan. Revit Depth Cueing Plan View.
From www.youtube.com
How to Change Topography Depth in Revit YouTube Revit Depth Cueing Plan View Depth cueing is available in architectural and coordination discipline views to allow architects to better visualize their elevations and. Turning on this feature will automatically fade your revit. I am unable to turn on the depth cueing graphic display option (the show depth button is greyed out/locked). You would also have to modify the line styles changing beyond to your.. Revit Depth Cueing Plan View.
From www.revitforum.org
Depth Cueing in Elevations and Sections Revit Forum Revit Depth Cueing Plan View Use the depth clipping parameter to display parts of a model below the cut plane. To apply depth cueing to the current elevation or section view, define settings in the graphic display options dialog. Depth cueing would useful to show point clouds in plan view. I am unable to turn on the depth cueing graphic display option (the show depth. Revit Depth Cueing Plan View.
From www.cadbim3d.com
¿Para qué sirve la opción Depth Cueing en Revit? cadBIM3D Revit Depth Cueing Plan View Depth cueing is available in architectural and coordination discipline views to allow architects to better visualize their elevations and. Depth cueing would useful to show point clouds in plan view. The new feature depth cueing in revit 2017 aims to help architects and designers avoid these pesky workarounds. Use the depth clipping parameter to display parts of a model below. Revit Depth Cueing Plan View.
From ideatesolutions.blogspot.com
Ideate Solutions Bring Your Elevations to Life in Revit 2017! Revit Depth Cueing Plan View You would also have to modify the line styles changing beyond to your. To apply depth cueing to the current elevation or section view, define settings in the graphic display options dialog. If you only want the wall visible in the plan view as it appears in. Turning on this feature will automatically fade your revit. To apply depth cueing. Revit Depth Cueing Plan View.
From www.youtube.com
Revit Tutorial Adding Depth to Your Revit Elevations (Revisited Revit Depth Cueing Plan View To apply depth cueing to multiple views of the same type, create. The new feature depth cueing in revit 2017 aims to help architects and designers avoid these pesky workarounds. This would make it easier to see the cut plane and what is below. To apply depth cueing to the current elevation or section view, define settings in the graphic. Revit Depth Cueing Plan View.
From graitec.com
Revit Depth Cueing Graphic Display Options GRAITEC Revit Depth Cueing Plan View Depth cueing is available in architectural and coordination discipline views to allow architects to better visualize their elevations and. To control how elements that are farther away from the viewer display in section and elevation views, use the depth cueing feature. This would make it easier to see the cut plane and what is below. To apply depth cueing to. Revit Depth Cueing Plan View.
From www.jigsawcad.com
Let the experts talk about What is depth cueing in Revit [New Research] Revit Depth Cueing Plan View Turning on this feature will automatically fade your revit. Use the depth clipping parameter to display parts of a model below the cut plane. The new feature depth cueing in revit 2017 aims to help architects and designers avoid these pesky workarounds. To apply depth cueing to the current elevation or section view, define settings in the graphic display options. Revit Depth Cueing Plan View.
From www.solutions-tcc.org
REVIT TUTORIAL ADDING DEPTH TO YOUR ELEVATIONS ( REDUX ) Bim solutions Revit Depth Cueing Plan View If you only want the wall visible in the plan view as it appears in. You can set your view depth to the level below or unlimited. You would also have to modify the line styles changing beyond to your. To control how elements that are farther away from the viewer display in section and elevation views, use the depth. Revit Depth Cueing Plan View.
From forums.autodesk.com
add tool to manipulate fade intensity in depth cueing and contour Revit Depth Cueing Plan View If you only want the wall visible in the plan view as it appears in. This would make it easier to see the cut plane and what is below. To apply depth cueing to multiple views of the same type, create. I am unable to turn on the depth cueing graphic display option (the show depth button is greyed out/locked).. Revit Depth Cueing Plan View.
From www.youtube.com
What's New in Revit 2017 Depth Cueing and Railing Improvements YouTube Revit Depth Cueing Plan View You would also have to modify the line styles changing beyond to your. If you only want the wall visible in the plan view as it appears in. To apply depth cueing to the current elevation or section view, define settings in the graphic display options dialog. The new feature depth cueing in revit 2017 aims to help architects and. Revit Depth Cueing Plan View.
From www.revitforum.org
Depth Cueing in Elevations and Sections Revit Forum Revit Depth Cueing Plan View To apply depth cueing to multiple views of the same type, create. The new feature depth cueing in revit 2017 aims to help architects and designers avoid these pesky workarounds. Use the depth clipping parameter to display parts of a model below the cut plane. You would also have to modify the line styles changing beyond to your. I am. Revit Depth Cueing Plan View.
From www.youtube.com
Revit 2017 Make Your Revit Elevations POP with Depth Cueing YouTube Revit Depth Cueing Plan View I am unable to turn on the depth cueing graphic display option (the show depth button is greyed out/locked). To control how elements that are farther away from the viewer display in section and elevation views, use the depth cueing feature. Use the depth clipping parameter to display parts of a model below the cut plane. If you only want. Revit Depth Cueing Plan View.